Advertorial

Pozvánka na 2. ročník stavebného veľtrhu BigMarket na Slovensku

Na podujatí sa predstaví až 37 vystavovateľov - popredných dodávateľov stavebných materiálov a inovácií s prezentáciou...

Hotel Hirschen Spa House, Rakúsko

Novotvar v prostredí alpskej obce.

Vytvorte si kúpeľňu snov: dizajnové riešenie od značky hansgrohe

Hansgrohe - prémiová značka kúpeľňových riešení, ponúka nadčasový dizajn, technickú precíznosť a udržateľné inovácie...

Okná Internorm za minuloročné ceny + hliníkový kryt zdarma!

Využite špeciálnu akciu Internorm: okná za minuloročné ceny a hliníkový kryt úplne zadarmo. Ponuka je časovo obmedzená!

Moderné plynové technológie: Efektivita a inovácie pre 21. storočie

Sumarizácia najdôležitejších inovácií, ktoré redefinujúcich využitie tohto energetického zdroja.

Utesňovanie spodných stavieb pomocou hydro-aktívnej fólie AMPHIBIA.

AMPHIBIA 3000 GRIP 1.3 od spoločnosti ATRO predstavuje modernú hydroizolačnú technológiu, ktorá spája vysokú odolnosť,...

Dekarbonizácia individuálneho vykurovania domácností – Green Deal evolučne a nie revolučne

Ambiciózne plány EK narazili na ekonomické možnosti domácností v jednotlivých členských štátoch –...

Minimalistické dvere IDEA – technická precíznosť a čistota prevedenia

IDEA DOOR od spoločnosti JAP prináša do interiéru čistý minimalistický vzhľad vďaka bezrámovému riešeniu a precíznej...

Dom s výhľadom na údolie, Dlouhý Most (ČR)

Kontinuita riešenia od vonkajšieho obkladu až po kovania a kľučky.

Schell Vitus – osvedčené riešenie pre sprchy a umývadlá vo verejnom sektore s viac ako desaťročnou tradíciou

Nástenné nadomietkové armatúry Vitus sú mimoriadne vhodné pre rýchlu a efektívnu...

Kompozitné okná predstavujú súčasnosť a budúcnosť

Okenné profily z kompozitného materiálu RAU-FIPRO X od spoločnosti Rehau sú v porovnaní s tradičnými plastovými profilmi mnohonásobne...

Myotis - stoly 2025

Najnovší sortiment stolov pre zariadenie interiérov...

Priemyselné sklenené priečky Dorsis Digero: svetelné rozhranie pre moderné interiéry

Spojenie moderného dizajnu, funkčnosti a svetla do harmonického architektonického prvku.

Význam prirodzeného svetla pre moderné a flexibilné pracovné prostredie

Kancelárska budova Baumit v slovinskom Trzine prešla premenou na moderné a udržateľné pracovisko. Architekti kládli dôraz...

Konferencia Xella Dialóg predstaví novinky a trendy v stavebníctve

Mottom šiesteho ročníku on-line konferencie odborníkov Xella Dialóg je Efektívny návrh budov 2025+: zmeny a riešenia

Vondráčkova vila, Rožnov pod Radhoštěm CZ

Rekonštrukcia a prístavba pôvodnej funkcionalistickej vily advokáta Josefa Vondráčka z 30-tych rokov od českých architektov OK Plan architects.
Diela
Red 410.06.2016
25670+5
Vondráčkova vila, Rožnov pod Radhoštěm CZ
Autori: architekt Luděk Rýzner, Ing. arch. František Čekal, Ing. arch. Lukáš BargelInvestor: súkromná osobaPlocha pozemku: 3018 m2Zastavaná plocha: 351 m2Obostavaný objem: 1450 m3Návrh: 2010 - 2011Realizácia: 2011 - 2013Adresa: Rožnov pod Radhoštěm, Česká republikaPublikované: 10. jún 2016

Cílem projektu bylo navrácení původní podoby funkcionalistické vile a vyřešení dalšího samostatného bydlení na pozemku, tak aby mohl fungovat celkově objekt jako vícegenerační.

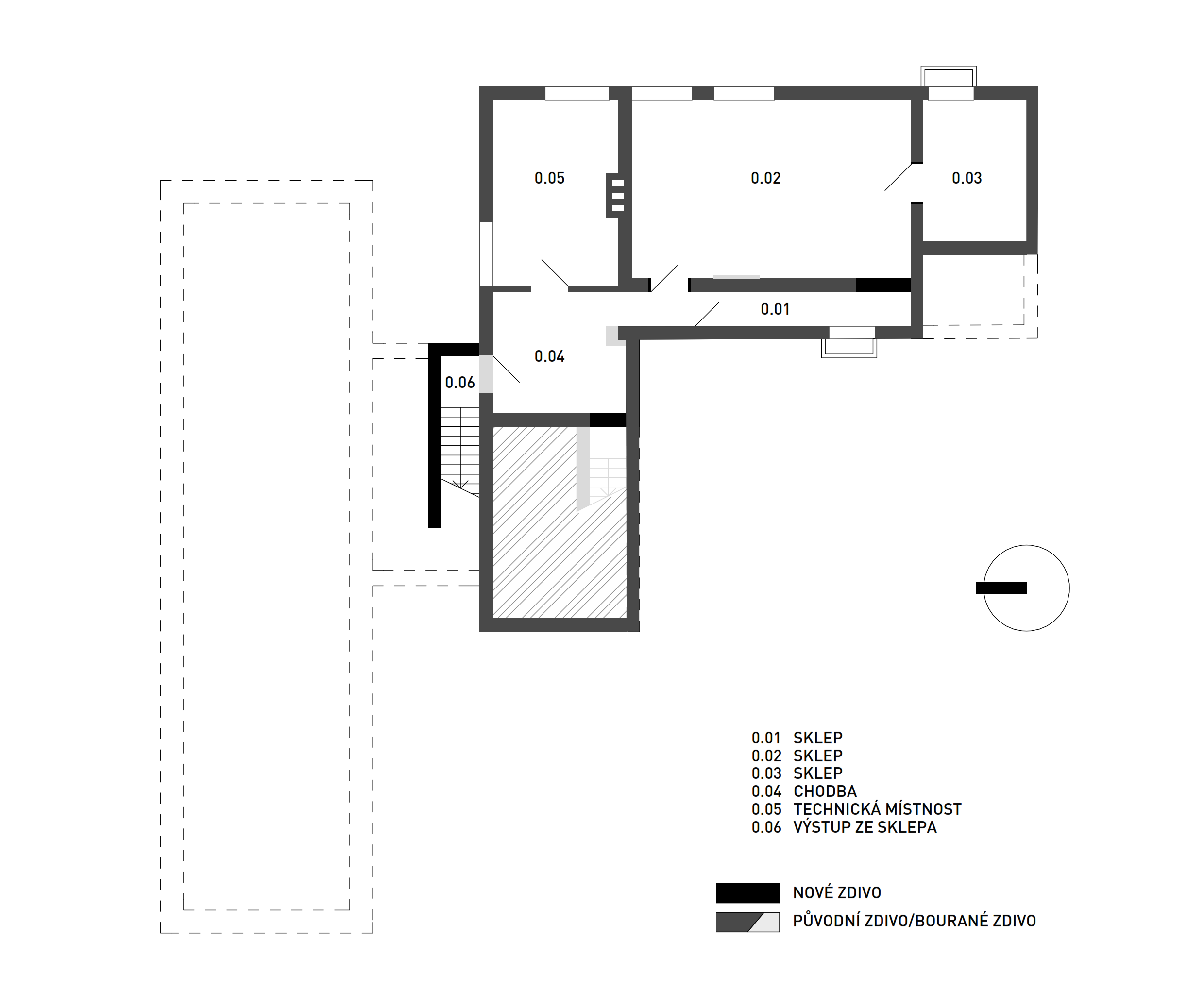
Původní objekt navrhli architekti Lubomír a Čestmír Šlapetové jako rekreační vilu pro moravskoostravského advokáta Josefa Vondráčka a jeho rodinu v letech 1933-1934. Půdorys ve tvaru L byl řešen tak, že vstup a garáž byly situovány od západu, byt domovníka k severu, zatímco obytný pokoj s prosklenou zimní zahradou byl orientován k jihu k výhledu na smrkový les v blízkosti řeky Bečvy. První patro zahrnovalo ložnice, s oddělenou část pro děti a pro rodiče. Ložnice měly výstup na terasy. Dům byl postaven ze škvárobetonových tvárnic a zesílen železobetonovými stropními konstrukcemi.

foto: Jakub Skokan & Martin Tůma

V 60.letech byla stavba zastřešena valbovou střechou, po změně majitelů v 80.letech byla vyměněna okna, zrušena zimní zahrada, objekt byl částečně přistavěn a ztratil tak zcela svůj původní charakter.

Novými stavebními  úpravami  je hlavní vjezd a vstup na pozemek  navržen  z ulice Slezská. Stavba  je  koncipovaná  jako stávající  patrový rodinný dům se zázemím zapuštěného suterénu a samostatná jednopodlažní přízemní  přístavba. Na pozemku je dále řešeno využití stávající garáže a venkovní bazén.

Původní objekt slouží cele jako bydlení investora, přístavba je navržena jako bydlení pro rodiče a hosty.

Situácia
SituáciaOK Plan architects
foto: Jakub Skokan & Martin Tůma

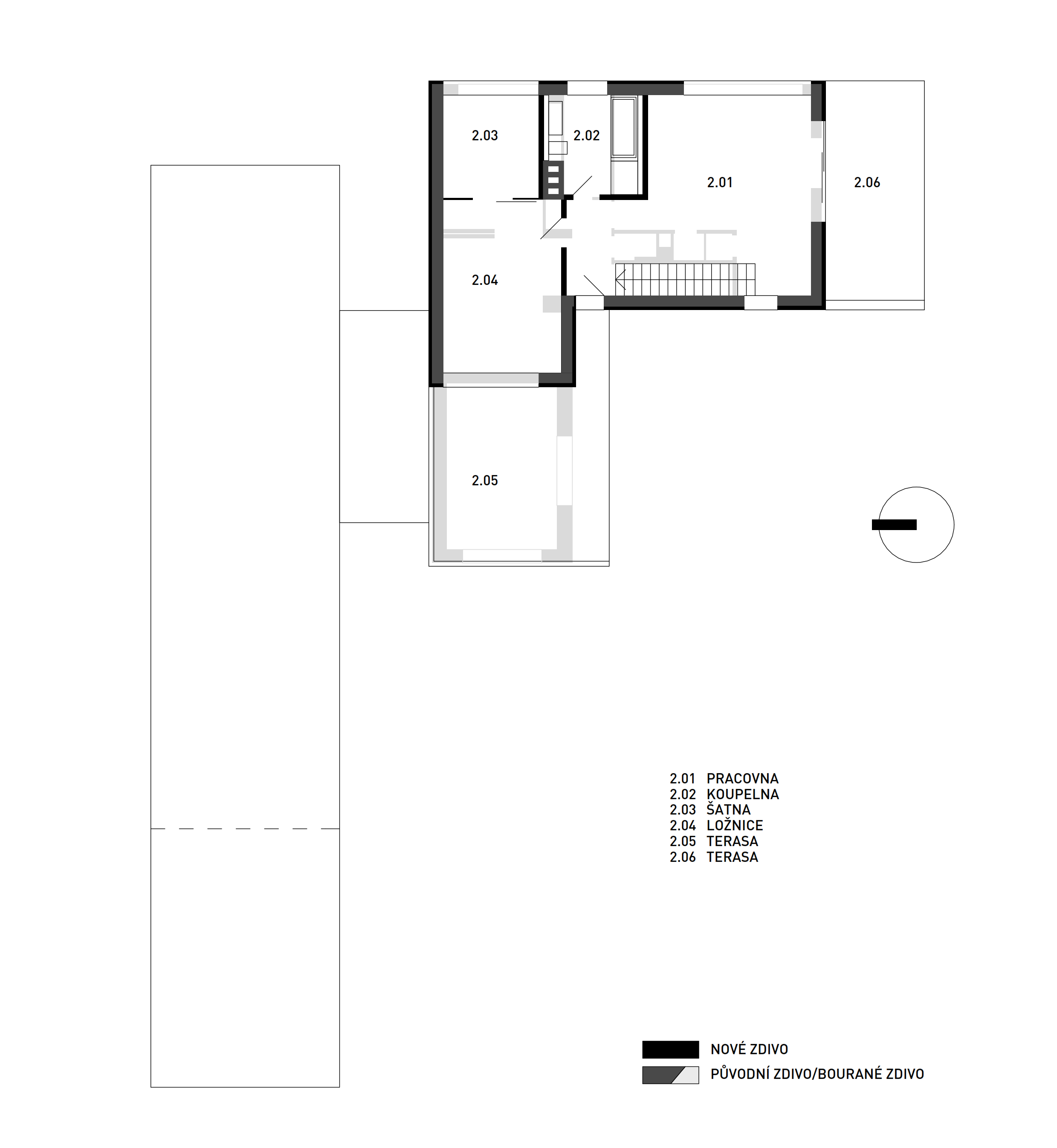
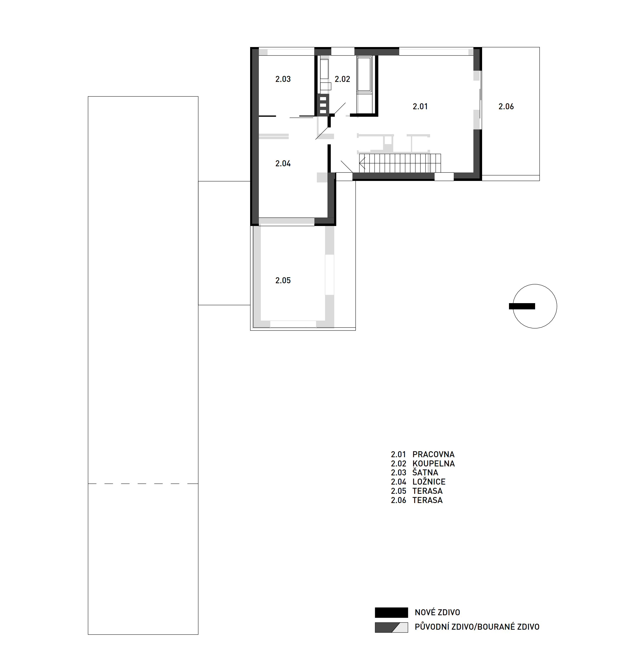
U původního domu je zrušena střecha, dostavby z 80.let, jsou osazena nová hliníková okna. Dům je opatřen kontaktním zateplovacím systémem, aby dosáhl současných tepelných parametrů. Stávající objekt je výrazně  dispozičně upraven v obou podlažích. V přízemí je hlavní vstup do domu, hobby místnost, hlavní obytný prostor s kuchyní a se schodištěm do patra. Je obnovena původní zimní zahrada. Do patra je pak umístěna ložnice s šatnou a koupelnou a velká pracovna.

Přístavba je koncipovaná do dlouhého přízemního kvádru, který je ke stávajícímu domu přimknut subtilním proskleným krčkem. Ten slouží jako hlavní vstupní prostor obou objektů a pro výstup schodiště ze suterénu. V přístavbě je samostatný byt 2+kk pro rodiče a bydlení pro hosty v samostatném pokoji se zázemím. Část přístavby slouží jako zastřešené stání pro osobní automobily.

foto: Jakub Skokan & Martin Tůma

Nová část je od stávajícího domu materiálově a výrazově v kontrastu. Černé obkladové fundermax desky jsou v kontrastu s bílou omítkou funkcionalistické vily. Přístavba  má obvodové a střední nosné stěny z keramických broušených  bloků, fasáda je řešena ze zavěšených obkladů z fundermax desek. Strop je z monolitického pohledového železobetonu

Nově je řešena také zahrada – jsou ponechány hodnotné vzrostlé stromy, pozemek je nově oplocen. Původní chata byla zdemolována, původní garáž je vzhledově upravena, aby odpovídala celkovému novému pojetí. Ke garáži je přistavěna krytá grilovací terasa s návazností na nový venkovní bazén.

foto: Jakub Skokan & Martin Tůma
foto: Jakub Skokan & Martin Tůma
foto: Jakub Skokan & Martin Tůma
foto: Jakub Skokan & Martin Tůma
foto: Jakub Skokan & Martin Tůma
foto: Jakub Skokan & Martin Tůma
foto: Jakub Skokan & Martin Tůma
foto: Jakub Skokan & Martin Tůma
foto: Jakub Skokan & Martin Tůma
foto: Jakub Skokan & Martin Tůma
foto: Jakub Skokan & Martin Tůma
foto: Jakub Skokan & Martin Tůma
foto: Jakub Skokan & Martin Tůma
foto: Jakub Skokan & Martin Tůma
foto: Jakub Skokan & Martin Tůma
foto: Jakub Skokan & Martin Tůma
foto: Jakub Skokan & Martin Tůma
foto: Jakub Skokan & Martin Tůma
foto: Jakub Skokan & Martin Tůma
foto: Jakub Skokan & Martin Tůma
foto: Jakub Skokan & Martin Tůma
Pôdorys 1. PP
Pôdorys 1. PPOK Plan architects
Pôdorys 1. NP
Pôdorys 1. NPOK Plan architects
Pôdorys 2. NP
Pôdorys 2. NPOK Plan architects
Rez
RezOK Plan architects

Zdroj: autorská správa OK Plan architects, Boys play nice

architekt Luděk Rýzner
Ing. arch. František Čekal
Ing. arch. Lukáš Bargel
Vložené
23. máj 2016
0
2567
Hlavný obsahHlavný obsah
Čakajte prosím