Advertorial

Pozvánka na 2. ročník stavebného veľtrhu BigMarket na Slovensku

Na podujatí sa predstaví až 37 vystavovateľov - popredných dodávateľov stavebných materiálov a inovácií s prezentáciou...

Hotel Hirschen Spa House, Rakúsko

Novotvar v prostredí alpskej obce.

Vytvorte si kúpeľňu snov: dizajnové riešenie od značky hansgrohe

Hansgrohe - prémiová značka kúpeľňových riešení, ponúka nadčasový dizajn, technickú precíznosť a udržateľné inovácie...

Okná Internorm za minuloročné ceny + hliníkový kryt zdarma!

Využite špeciálnu akciu Internorm: okná za minuloročné ceny a hliníkový kryt úplne zadarmo. Ponuka je časovo obmedzená!

Moderné plynové technológie: Efektivita a inovácie pre 21. storočie

Sumarizácia najdôležitejších inovácií, ktoré redefinujúcich využitie tohto energetického zdroja.

Utesňovanie spodných stavieb pomocou hydro-aktívnej fólie AMPHIBIA.

AMPHIBIA 3000 GRIP 1.3 od spoločnosti ATRO predstavuje modernú hydroizolačnú technológiu, ktorá spája vysokú odolnosť,...

Dekarbonizácia individuálneho vykurovania domácností – Green Deal evolučne a nie revolučne

Ambiciózne plány EK narazili na ekonomické možnosti domácností v jednotlivých členských štátoch –...

Minimalistické dvere IDEA – technická precíznosť a čistota prevedenia

IDEA DOOR od spoločnosti JAP prináša do interiéru čistý minimalistický vzhľad vďaka bezrámovému riešeniu a precíznej...

Dom s výhľadom na údolie, Dlouhý Most (ČR)

Kontinuita riešenia od vonkajšieho obkladu až po kovania a kľučky.

Schell Vitus – osvedčené riešenie pre sprchy a umývadlá vo verejnom sektore s viac ako desaťročnou tradíciou

Nástenné nadomietkové armatúry Vitus sú mimoriadne vhodné pre rýchlu a efektívnu...

Kompozitné okná predstavujú súčasnosť a budúcnosť

Okenné profily z kompozitného materiálu RAU-FIPRO X od spoločnosti Rehau sú v porovnaní s tradičnými plastovými profilmi mnohonásobne...

Myotis - stoly 2025

Najnovší sortiment stolov pre zariadenie interiérov...

Priemyselné sklenené priečky Dorsis Digero: svetelné rozhranie pre moderné interiéry

Spojenie moderného dizajnu, funkčnosti a svetla do harmonického architektonického prvku.

Význam prirodzeného svetla pre moderné a flexibilné pracovné prostredie

Kancelárska budova Baumit v slovinskom Trzine prešla premenou na moderné a udržateľné pracovisko. Architekti kládli dôraz...

Konferencia Xella Dialóg predstaví novinky a trendy v stavebníctve

Mottom šiesteho ročníku on-line konferencie odborníkov Xella Dialóg je Efektívny návrh budov 2025+: zmeny a riešenia

(Ne)determinovaný divadelný dom: diplomová práca nominovaná na Cenu profesora Jozefa Lacka

Projekt testuje zažité vzťahy diváka a perfomera, hraného a bežného, verejného a uzavretého, oddeleného a otvoreného.
Diela
Red 322.02.2025
5280+22
(Ne)determinovaný divadelný dom: diplomová práca nominovaná na Cenu profesora Jozefa Lacka
Autori: Mgr. arch. Sára KrčmárikováSpolupráca: Mgr. art. Vít Halada, ArtD. (vedúci práce)Návrh: 2023 - 2024Adresa: SlovenskoPublikované: 22. február 2025

V októbri minulého roka sme priniesli výsledky celoštátnej súťaže o najlepšiu diplomovú prácu absolventov architektonických škôl na Slovensku - Ceny profesora Jozefa Lacka. Jednotlivé školy nominovali tohto roku do súťaže spolu 17 absolventských projektov. V sérii článkov individuálne predstavíme všetky nominované práce, ktoré tvoria pestrú mozaiku toho najlepšieho z tvorby diplomantov našich škôl.

Nominácie za jednotlivé školy:

Fakulta architektúry a dizajnu STU v Bratislave - 8
Katedra architektúry SvF STU v Bratislave - 2
Fakulta záhradníctva a krajinného inžinierstva v Nitre - 2
Fakulta umení TU v Košiciach - 2
Katedra architektúry VŠVU v Bratislave - 3

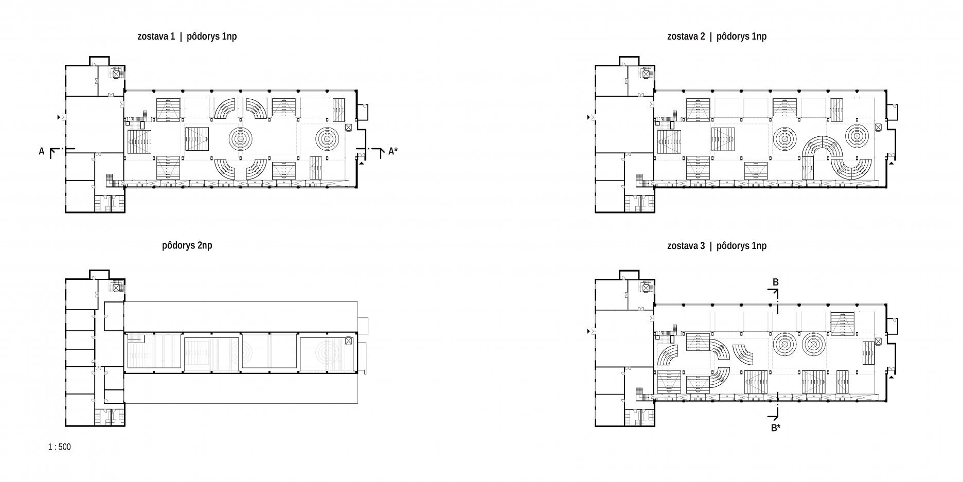
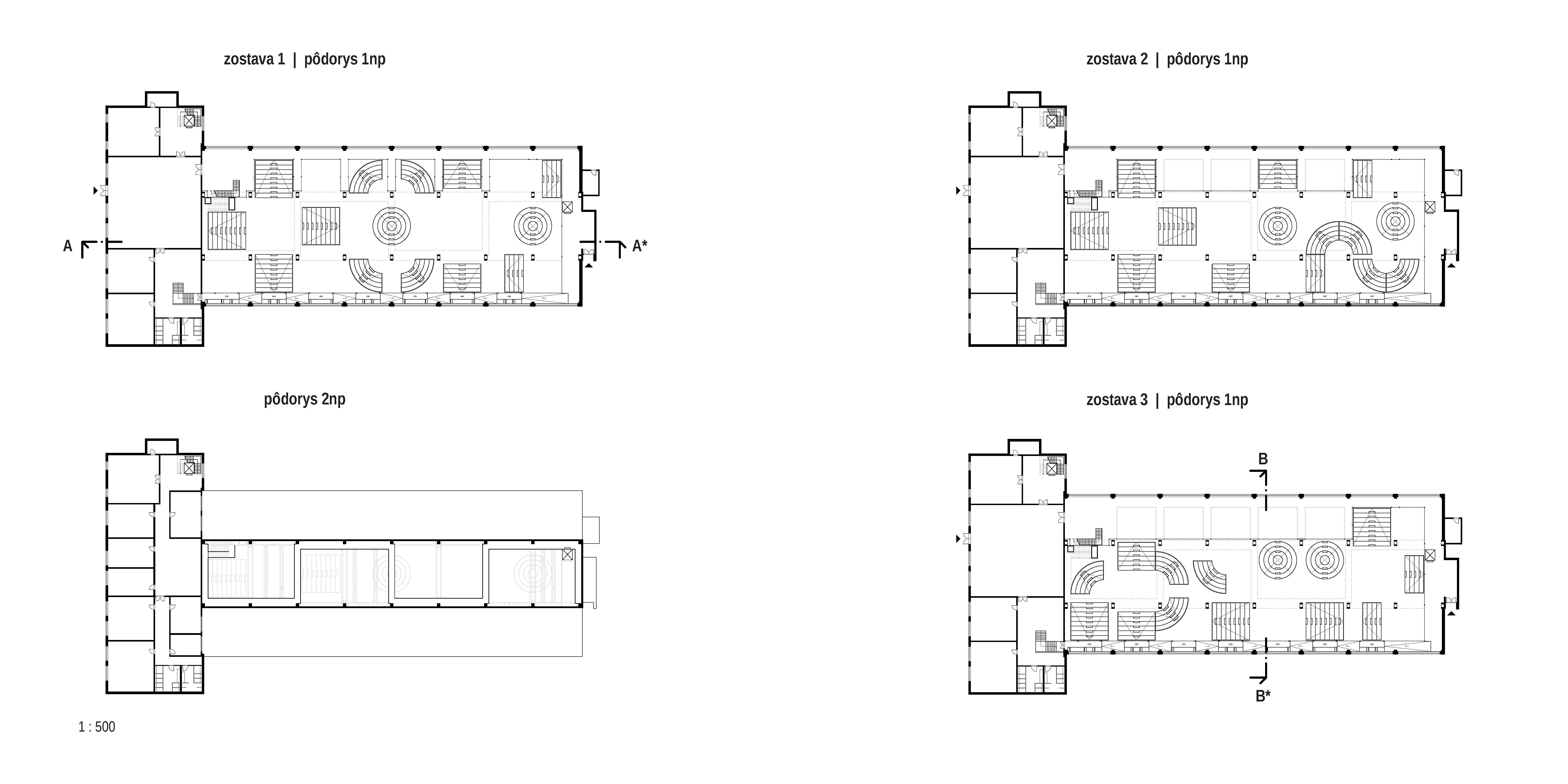
Dnes priblížime prácu "(Ne)determinovaný divadelný dom", ktorá vznikla na pôde Katedry architektúry VŠVU v Bratislave pod vedením Víta Haladu. Sára Krčmáriková sa v nej zaoberá konceptom variabilného usporiadania typových modulov, osadených do jestvujúcich budov.

"Práca predstavuje koncept premenlivého divadelného domu navrhnutého v ústrety rôznorodosti diváckeho aj divadelného priestoru... ...Moduly vytvárajú priestor, ktorého gradient tvorí niekoľko úrovní divadelnej skúsenosti. Komunikačné línie chodieb, mostov a ochodzí navzájom prekrývajú a narúša sa koncept anonymného hľadiska zahaleného v temnote.

Analýzou viacerých konceptov divadelného priestoru, sústrediac sa na vzťah javiska s hľadiskom, dospievam k výberu niekoľkých divadelných typov, ktoré v praktickej časti pretváram do jednoduchej geometrie a uvádzam do nových súvislostí. Moduly, navrhnuté v javiskovej, hľadiskovej a zmiešanej geometrii tvoria priestor, ktorého (ne)determinácia spočíva v priestorovej vrstevnatosti, v rozochvení hraníc divadelnej dispozície, kedy sa stierajú rozmedzia medzi divadelným a diváckym, diváckym a verejným, verejným a divadelným a divák sa mimovoľne stáva horizontom performačného diania. Mojim záujmom je sprostredkovať divadelný zážitok širokej skupine obyvateľstva na rôznych diváckych úrovniach, v rôznej miere interaktivity a v rôznom čase, vzbudiť diskusiu o (re)forme súčasnej divadelnej architektúry."

Kompletné portfólio - písomná časť:

 

Praktická časť diplomovej práce

 

Kompletné portfólio - praktická časť:

 

Plagáty:

 

Fotografie modelu:

Mgr. arch. Sára Krčmáriková

Súvisiace články

Vložené
16. september 2024
0
528
Hlavný obsahHlavný obsah
Čakajte prosím