Advertorial

Pozvánka na 2. ročník stavebného veľtrhu BigMarket na Slovensku

Na podujatí sa predstaví až 37 vystavovateľov - popredných dodávateľov stavebných materiálov a inovácií s prezentáciou...

Hotel Hirschen Spa House, Rakúsko

Novotvar v prostredí alpskej obce.

Vytvorte si kúpeľňu snov: dizajnové riešenie od značky hansgrohe

Hansgrohe - prémiová značka kúpeľňových riešení, ponúka nadčasový dizajn, technickú precíznosť a udržateľné inovácie...

Okná Internorm za minuloročné ceny + hliníkový kryt zdarma!

Využite špeciálnu akciu Internorm: okná za minuloročné ceny a hliníkový kryt úplne zadarmo. Ponuka je časovo obmedzená!

Moderné plynové technológie: Efektivita a inovácie pre 21. storočie

Sumarizácia najdôležitejších inovácií, ktoré redefinujúcich využitie tohto energetického zdroja.

Utesňovanie spodných stavieb pomocou hydro-aktívnej fólie AMPHIBIA.

AMPHIBIA 3000 GRIP 1.3 od spoločnosti ATRO predstavuje modernú hydroizolačnú technológiu, ktorá spája vysokú odolnosť,...

Dekarbonizácia individuálneho vykurovania domácností – Green Deal evolučne a nie revolučne

Ambiciózne plány EK narazili na ekonomické možnosti domácností v jednotlivých členských štátoch –...

Minimalistické dvere IDEA – technická precíznosť a čistota prevedenia

IDEA DOOR od spoločnosti JAP prináša do interiéru čistý minimalistický vzhľad vďaka bezrámovému riešeniu a precíznej...

Dom s výhľadom na údolie, Dlouhý Most (ČR)

Kontinuita riešenia od vonkajšieho obkladu až po kovania a kľučky.

Schell Vitus – osvedčené riešenie pre sprchy a umývadlá vo verejnom sektore s viac ako desaťročnou tradíciou

Nástenné nadomietkové armatúry Vitus sú mimoriadne vhodné pre rýchlu a efektívnu...

Kompozitné okná predstavujú súčasnosť a budúcnosť

Okenné profily z kompozitného materiálu RAU-FIPRO X od spoločnosti Rehau sú v porovnaní s tradičnými plastovými profilmi mnohonásobne...

Myotis - stoly 2025

Najnovší sortiment stolov pre zariadenie interiérov...

Priemyselné sklenené priečky Dorsis Digero: svetelné rozhranie pre moderné interiéry

Spojenie moderného dizajnu, funkčnosti a svetla do harmonického architektonického prvku.

Význam prirodzeného svetla pre moderné a flexibilné pracovné prostredie

Kancelárska budova Baumit v slovinskom Trzine prešla premenou na moderné a udržateľné pracovisko. Architekti kládli dôraz...

Konferencia Xella Dialóg predstaví novinky a trendy v stavebníctve

Mottom šiesteho ročníku on-line konferencie odborníkov Xella Dialóg je Efektívny návrh budov 2025+: zmeny a riešenia

Polyfunkčný objekt – obytný súbor Saint-Denis, Paríž: diplomová práca nominovaná na Cenu profesora Jozefa Lacka

Záverečná práca absolventky Fakulty architektúry STU v Bratislave, nominovaná v rámci Celoštátnej súťaže o najlepšiu diplomovú prácu absolventov architektonických škôl na Slovensku za akademický rok 2019/2020.
Diela
Red 330.08.2020
40240+31
Polyfunkčný objekt – obytný súbor Saint-Denis, Paríž: diplomová práca nominovaná na Cenu profesora Jozefa Lacka
Autori: Ing. arch. Andrea BušováSpolupráca: Ing. arch. Pavol Paňák (vedúci práce)Návrh: 2019 - 2020Adresa: Saint-Denis , Saint-Denis, FrancúzskoPublikované: 30. august 2020

"...Od utópie ruských konštruktivistov a kolektívnych domov sa táto líniová štruktúra dostala až k súčasným možnostiam prefabrikácie a montáže oceľových konštrukcií. Žeriav ako ich súčasť ich môže stavať, udržovať aj prestavovať (nech je mechanický či robotický). V tomto zmysle je to štruktúra radikálne polyfunkčná a inovujúca: ná/strojovo, konštrukčne aj materiálovo...," píše v posudku oponentka diplomovej práce Monika Mitášová.

Prácu predstavujeme s autorským textom:

Diplomová práca reaguje na 16. ročník medzinárodnej súťaže Isover - obytný súbor Saint-Gobain Multi-Comfort Student Contest 2020, ktorej úlohou bolo navrhnúť komplexné riešenie udržateľného rozvoja výstavby mestskej rezidenčno-rekreačnej zóny v post industriálnej oblasti, kedysi najväčšieho priemyselného areálu na svete. Polyfunkčný objekt, ktorý je súčasťou urbanistického návrhu zóny, plní kľúčovú úlohu urbanistického a ideového konceptu návrhu.

Objekt sa nachádza na rozhraní riešeného územia a železničnej trati a zohráva úlohu bariérového domu, ktorý má zabezpečiť vhodné akustické podmienky navrhovanej rezidenčnej oblasti. Typologicky objekt predstavuje dlhý dom, ktorý bol špecifickou ideovou figúrou v 20. storočí a za inšpiráciou som nemusela ísť ďaleko. Ako napríklad v Paríži Montparnasse alebo Ríme Corviale alebo rezidenčný komplex Les Courtilliéres priamo v Saint Denis. Všetky spomenuté objekty naprieč históriou tohto typologického druhu boli navrhované ako prevažne monofunkčné stavby. V práci navrhujem nový typologický druh, tzv. typologický hybrid. Zamýšľam sa ale aj nad úvahami utopistického ideálu dlhej a polyfunkčnej hybridnej formy. V práci som zistila, že sa vraciam k ideálu Corviale, ale v zmysle udržateľnosti a novým potrebám spoločnosti, ktorá smeruje k efektívnejšiemu a ekologickejšiemu fungovaniu obytnej zóny.

Jedným z cieľov bolo teda nájdenie rovnováhy medzi takýmto dĺžkovým rozmerom, ktorý by mal plniť akustickú stránku urbanistického návrhu a zároveň dosiahnuť jeho príjemné obytné merítko pre zabezpečenie komfortu bývania, keďže je súčasťou rezidenčnej oblasti.

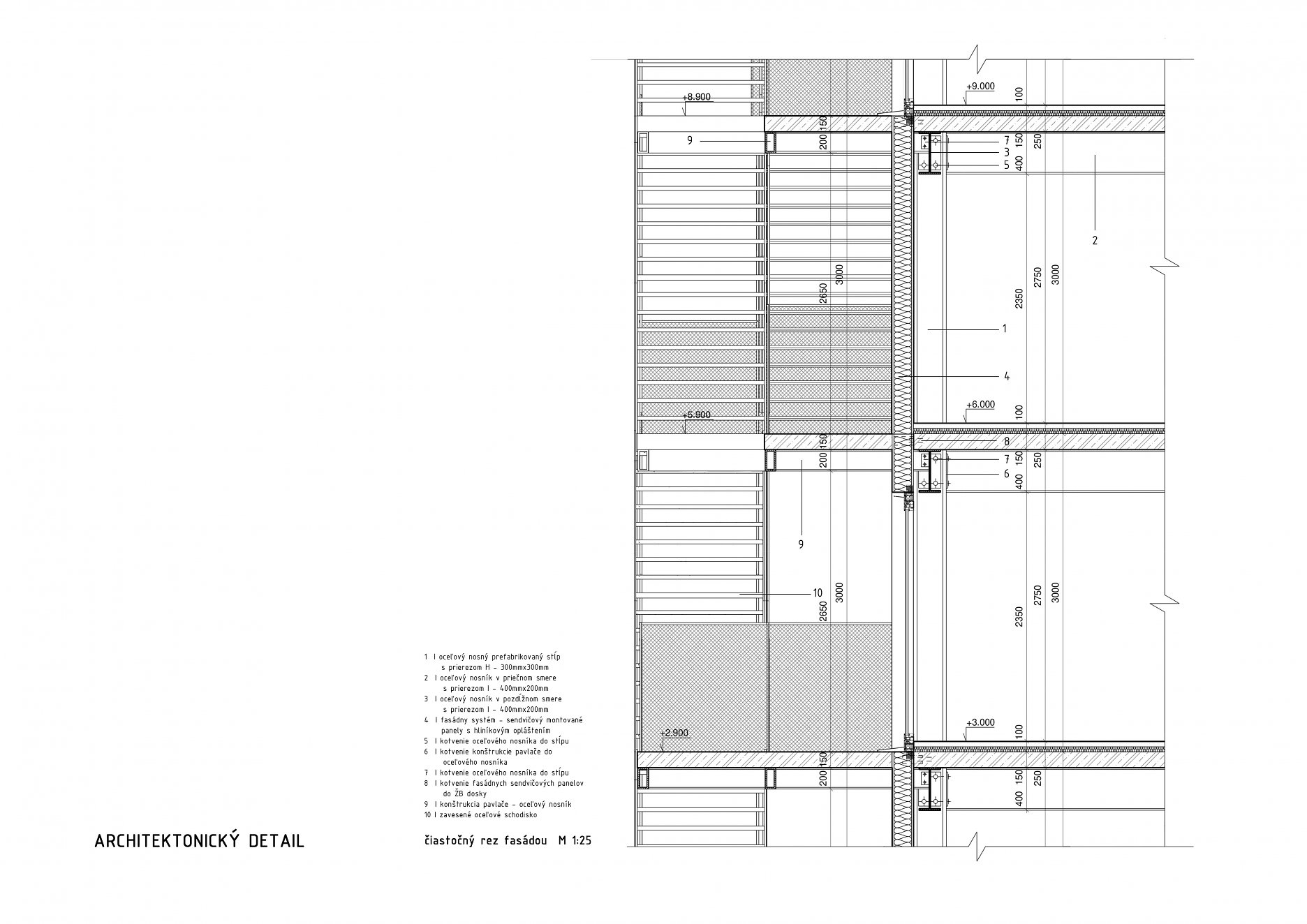
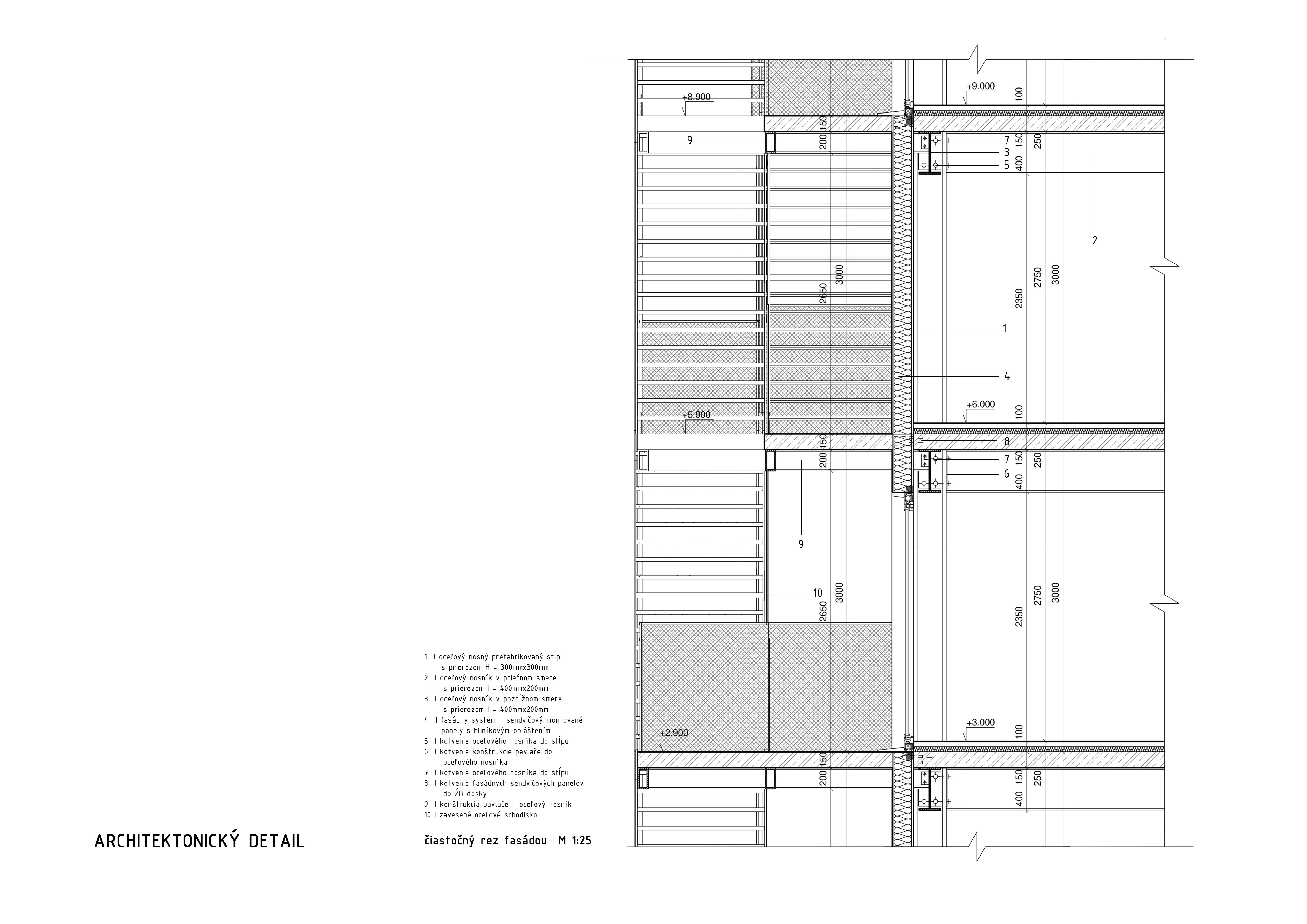
Postindustriálna zóna ovplyvnila konštrukciu navrhovaného objektu a pretavila sa do návrhu v podobe prefabrikácie.

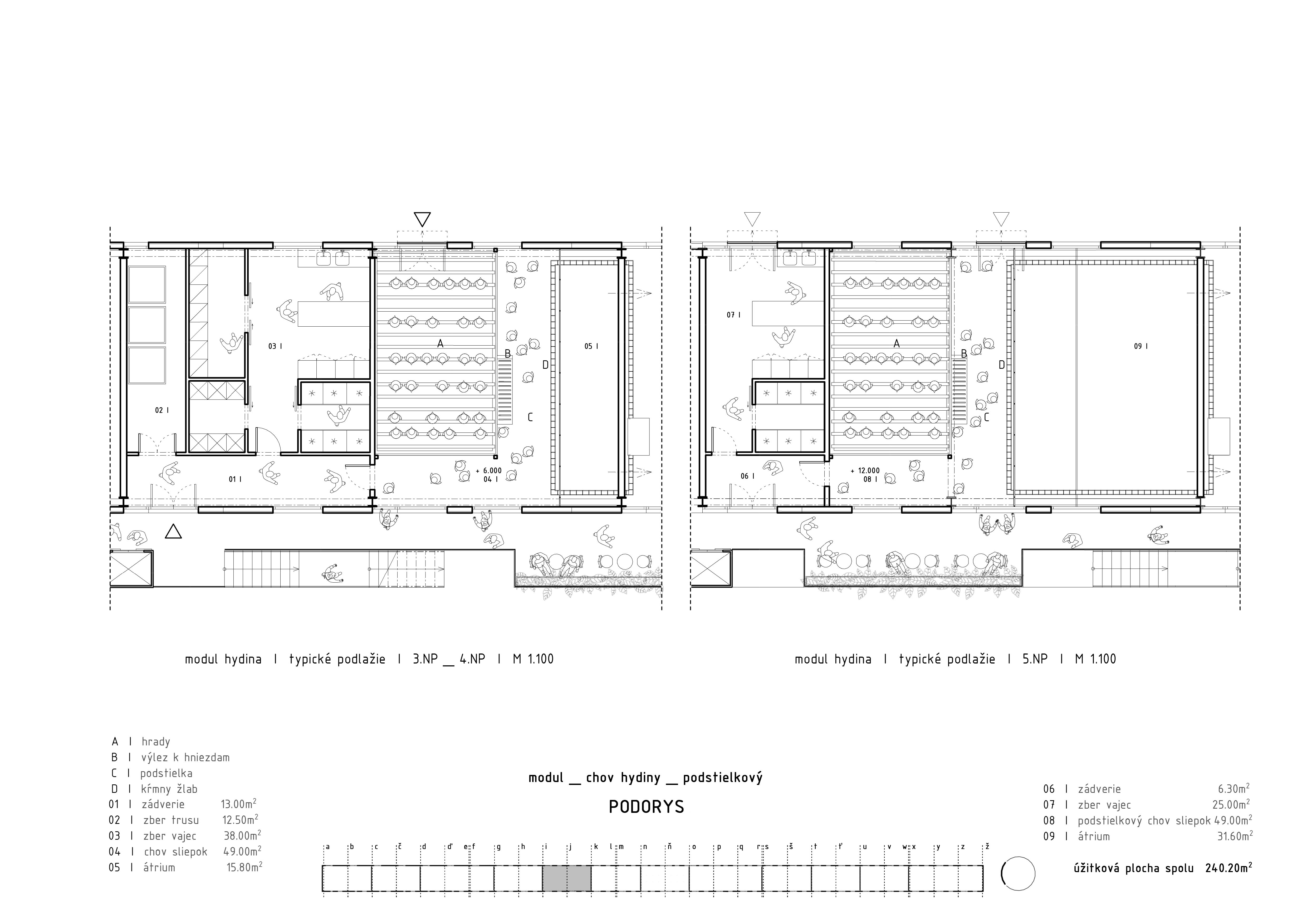
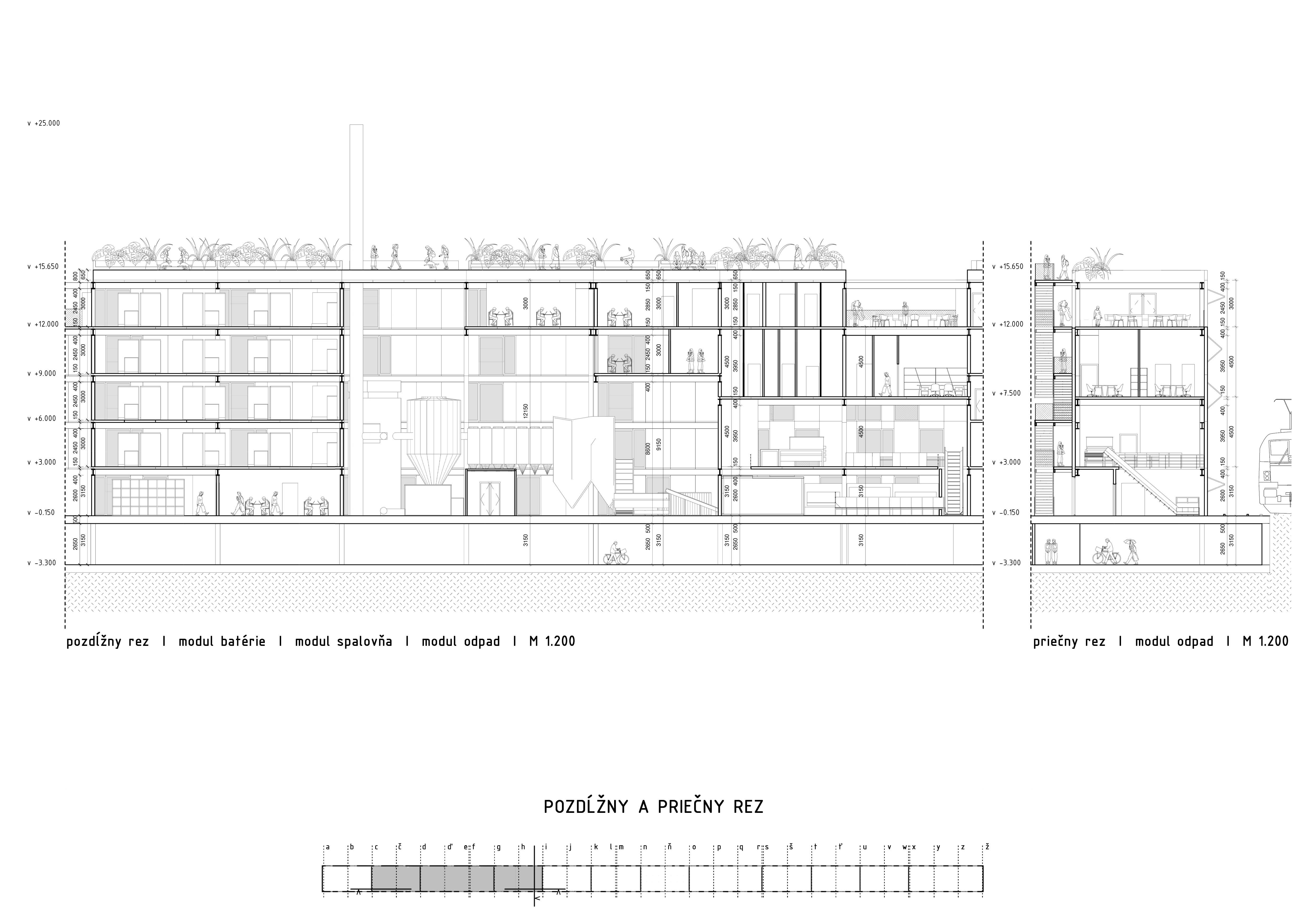
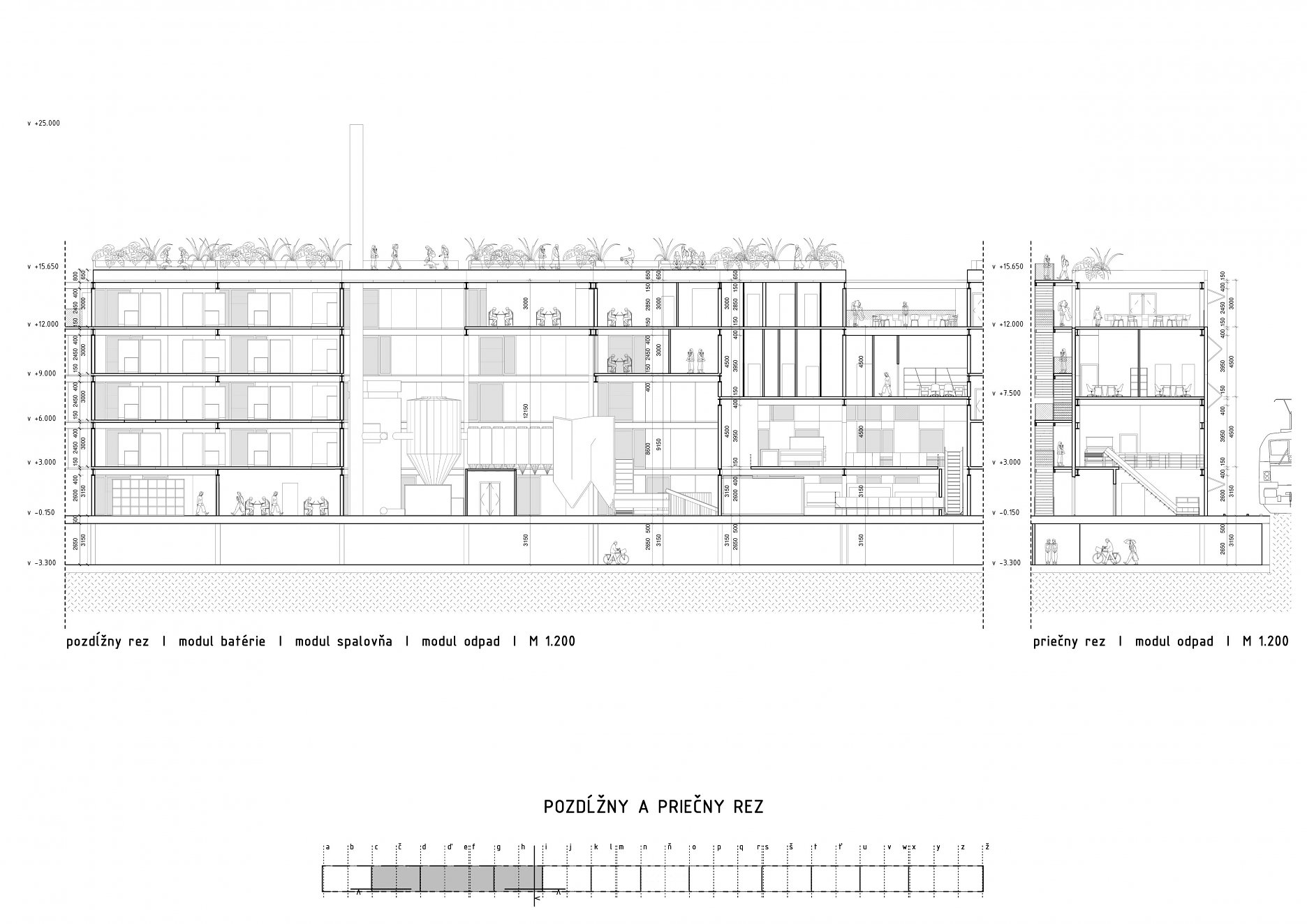
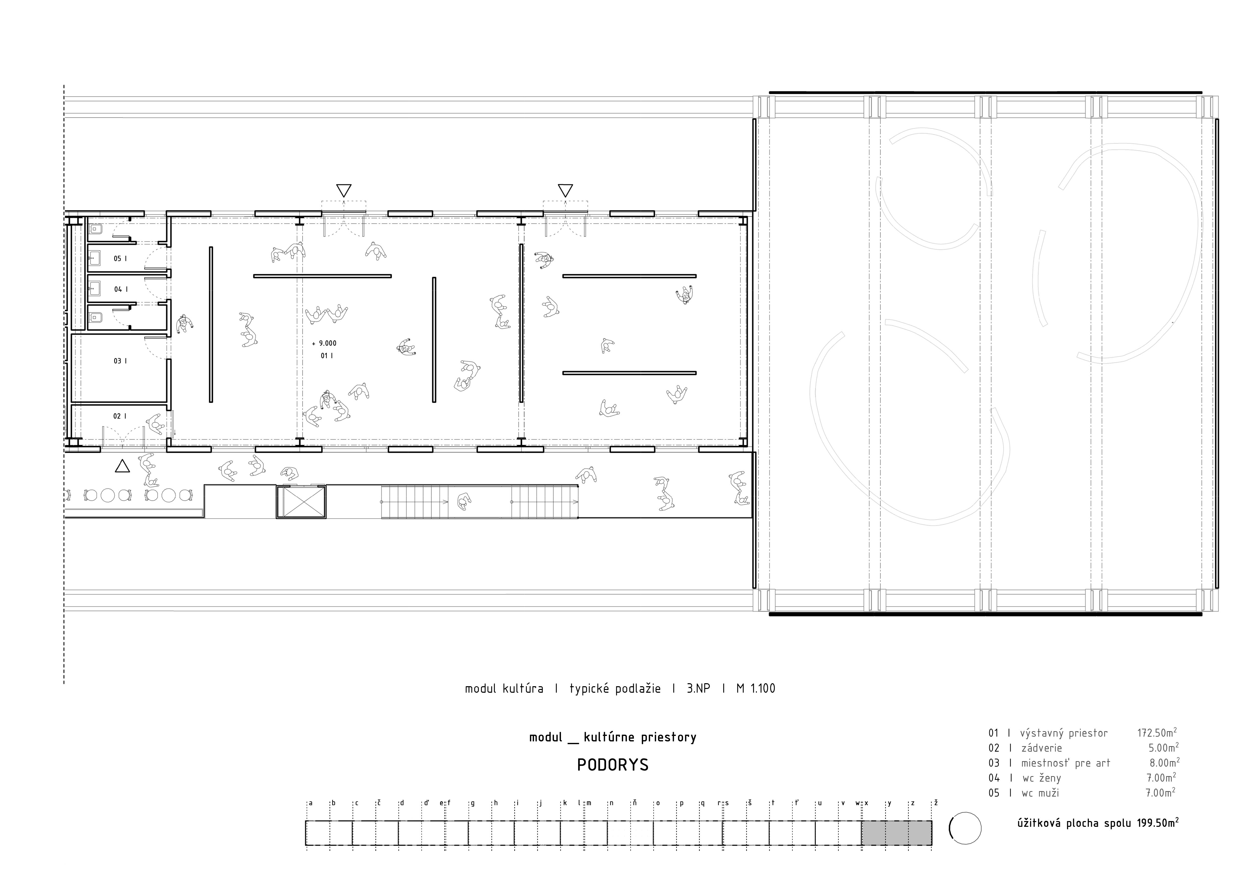
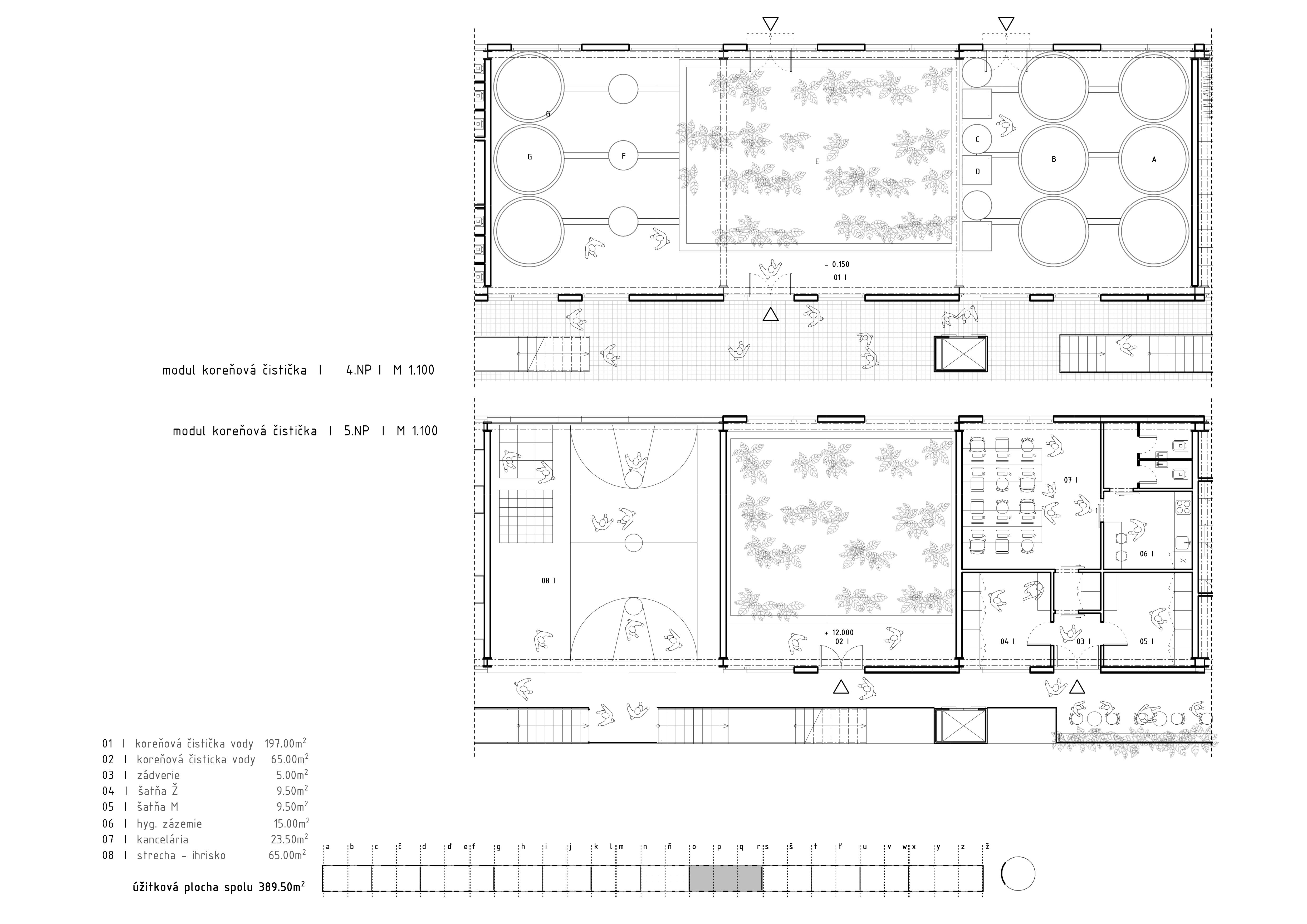
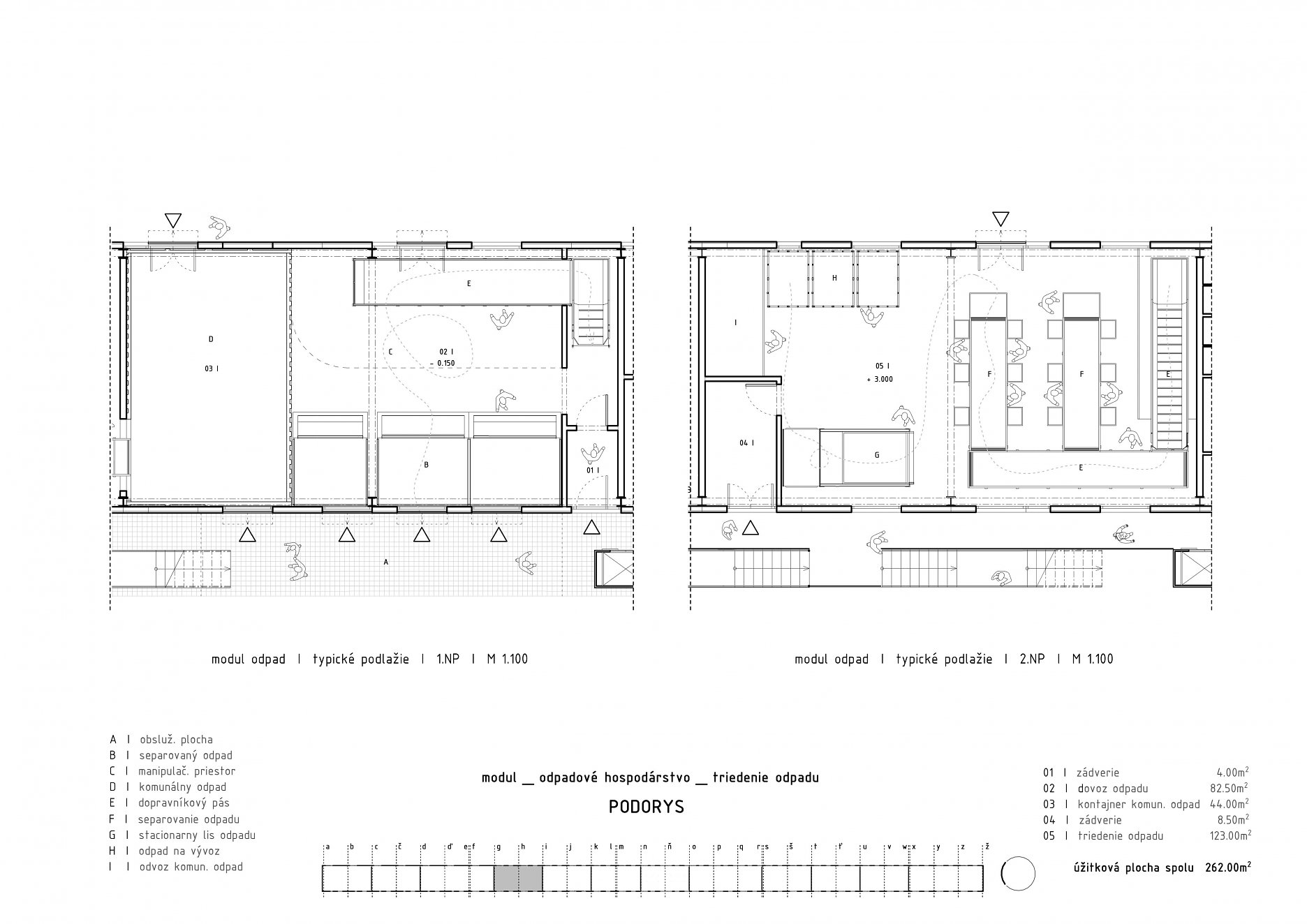
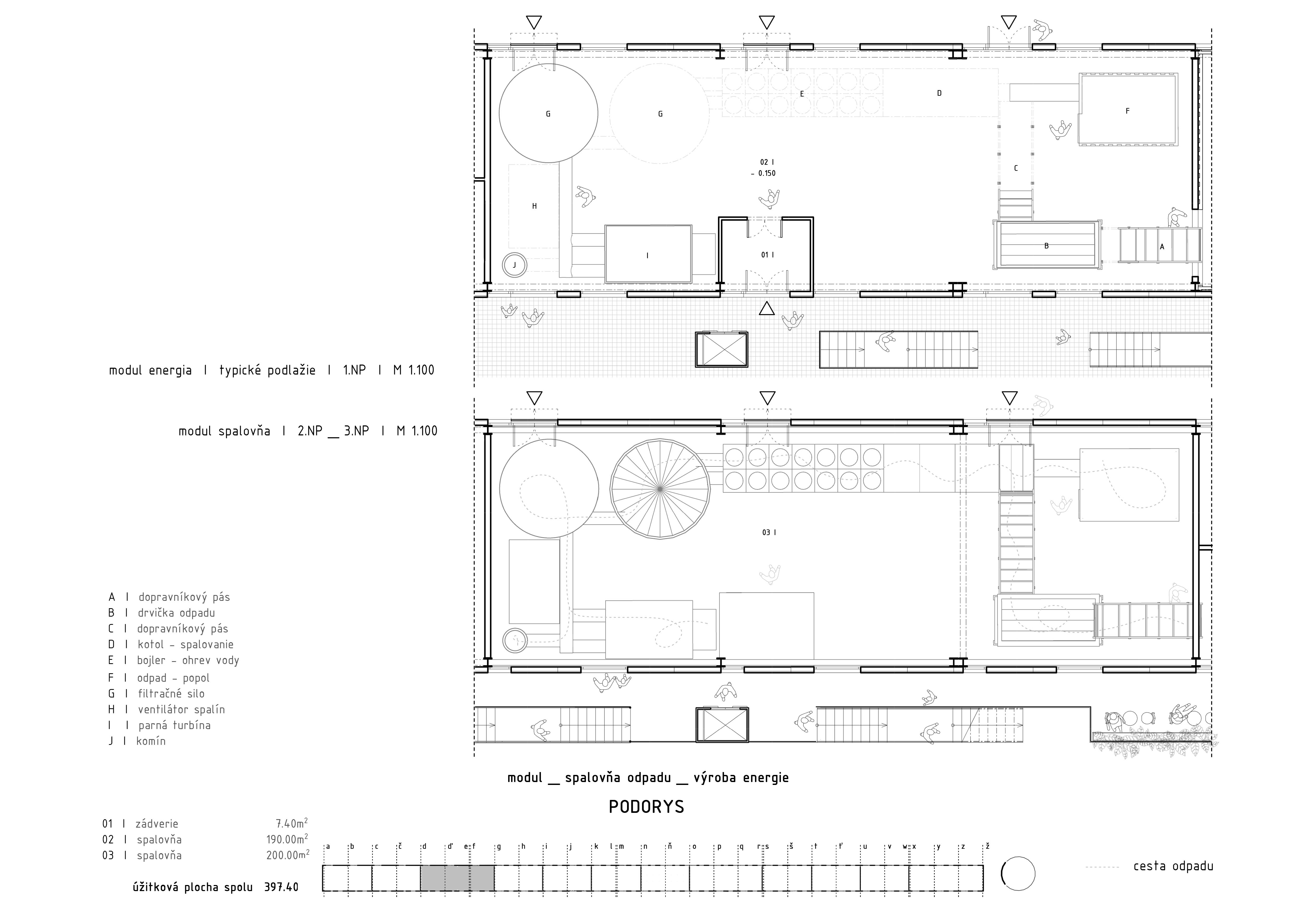
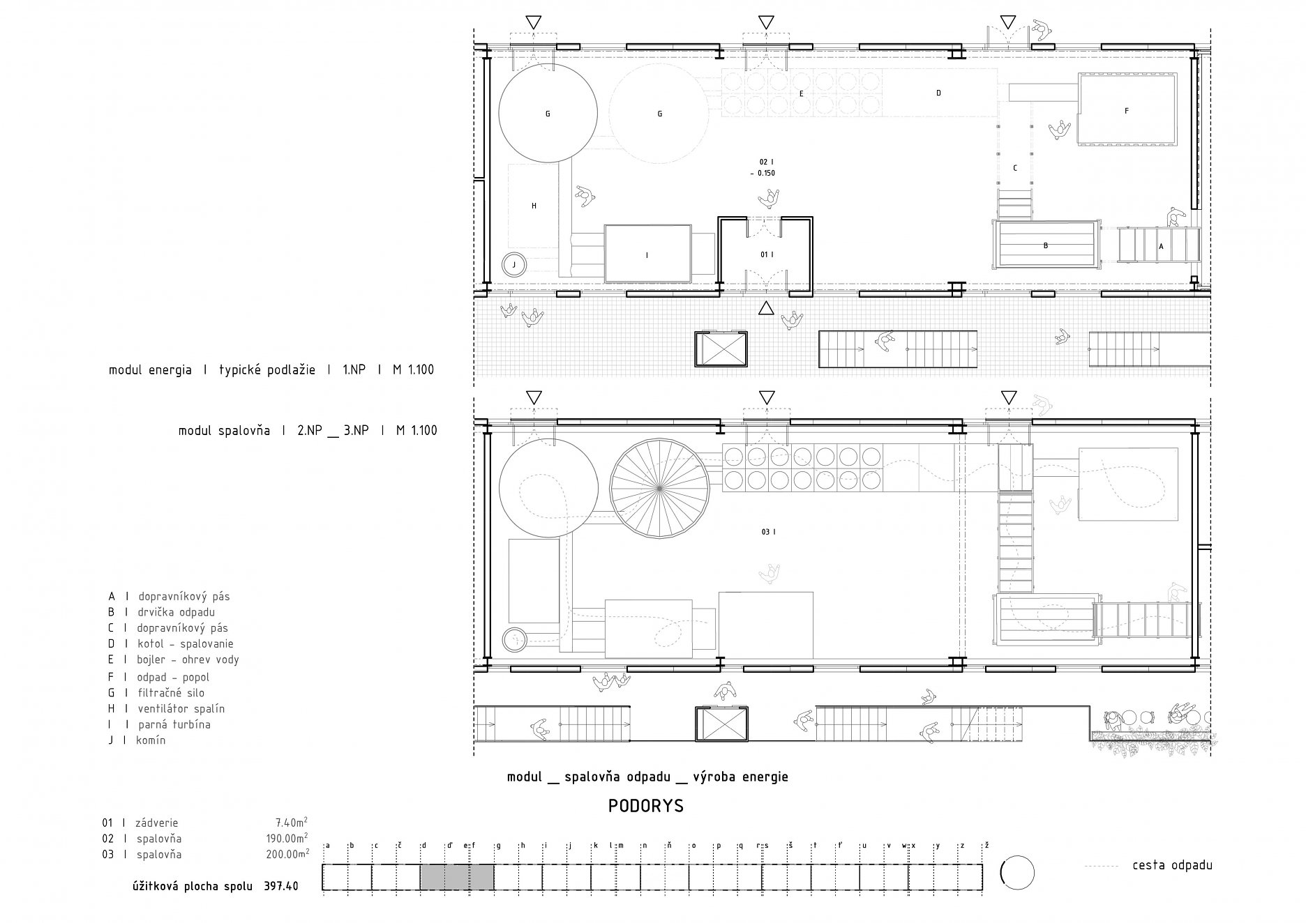
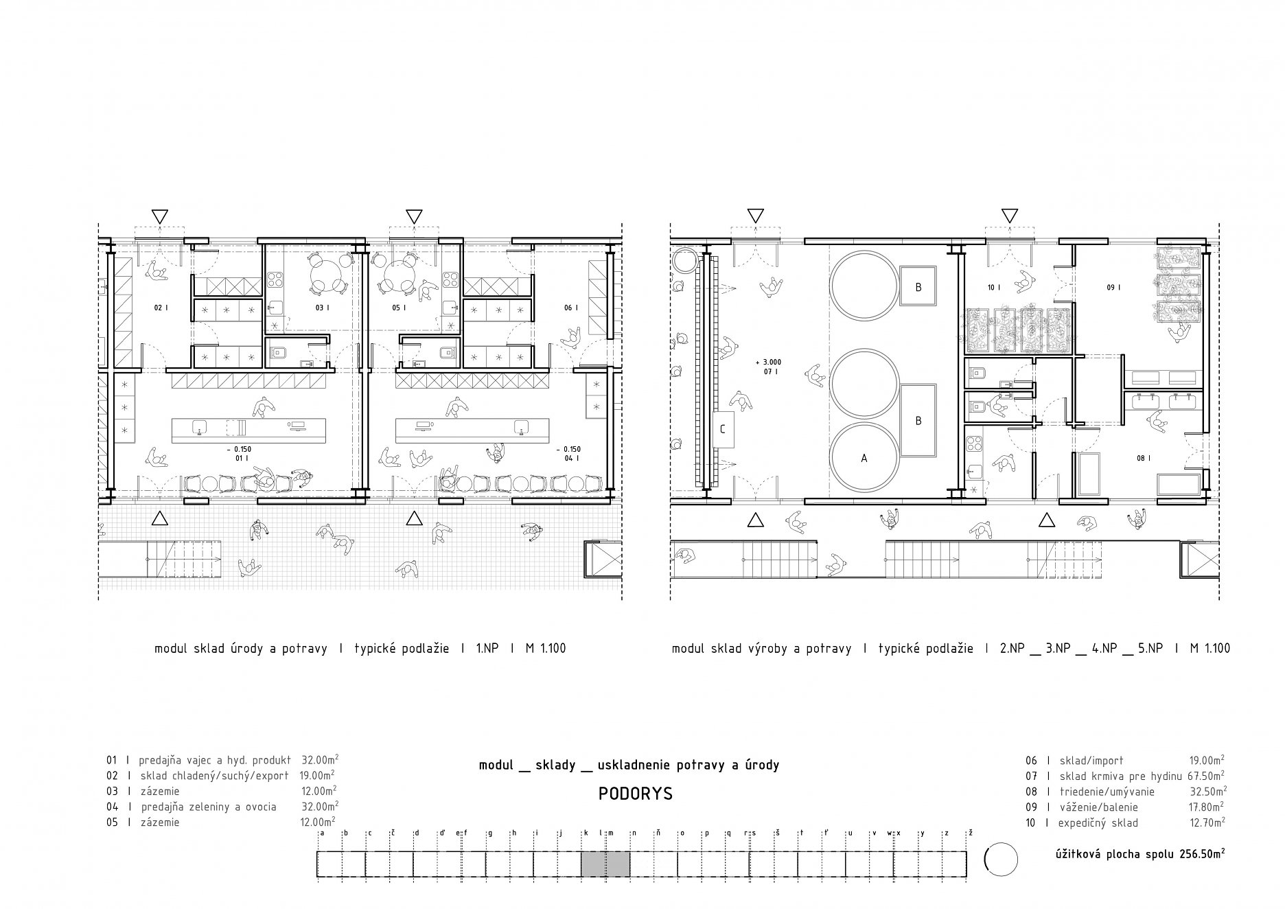
Oceľový prefabrikovaný objekt je konštruovaný pomocou žeriavu, ktorý je pevnou súčasťou architektonického návrhu.

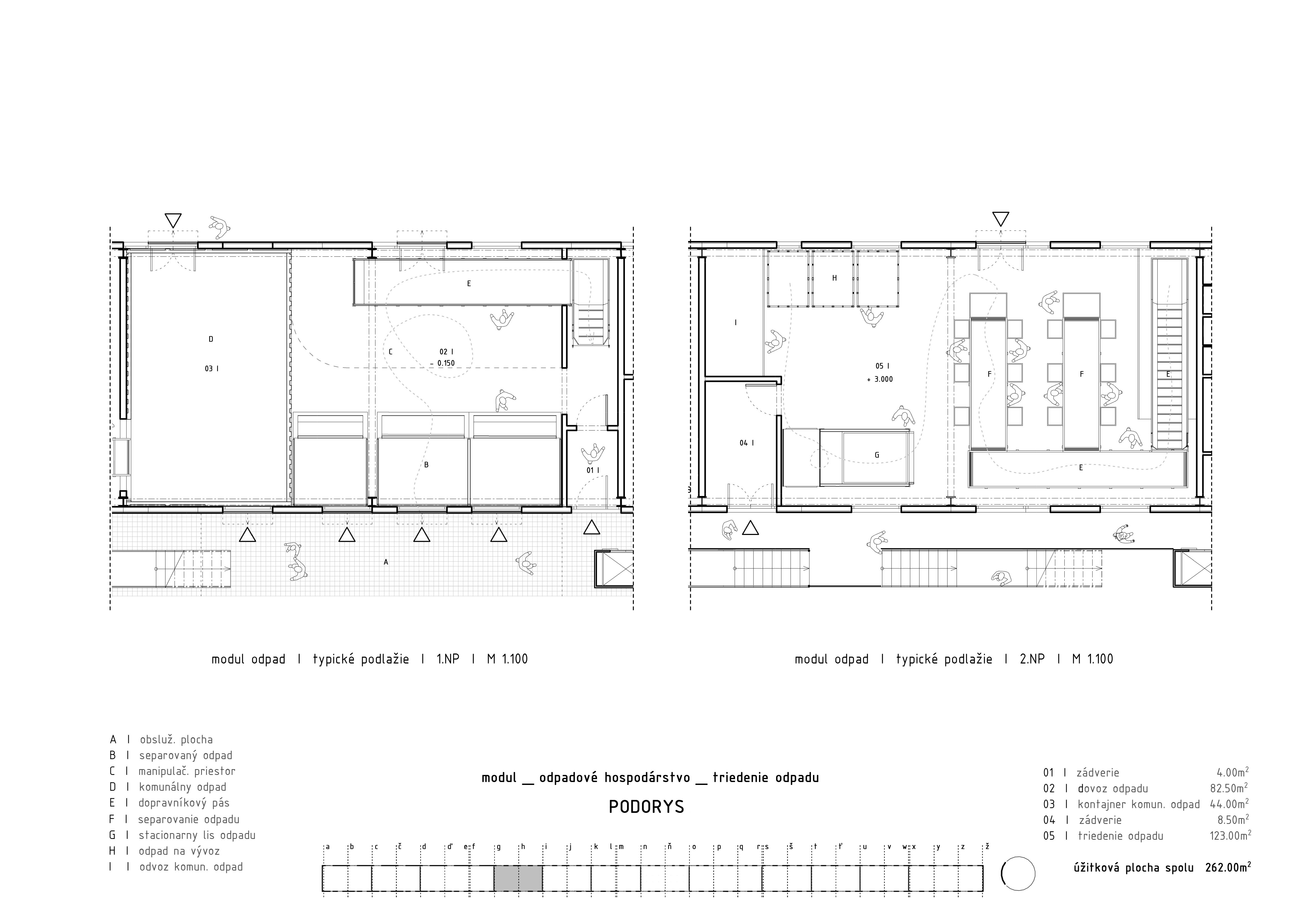
Žeriav je súčasťou pojazdnej halovej konštrukcie, ktorá má za úlohu samotnú výstavbu objektu, následnú obsluhu technických a hospodárskych prevádzok, no i mestotvornú funkciu v podobe nadstrešeného polointeriérového námestia s univerzálnym využitím.

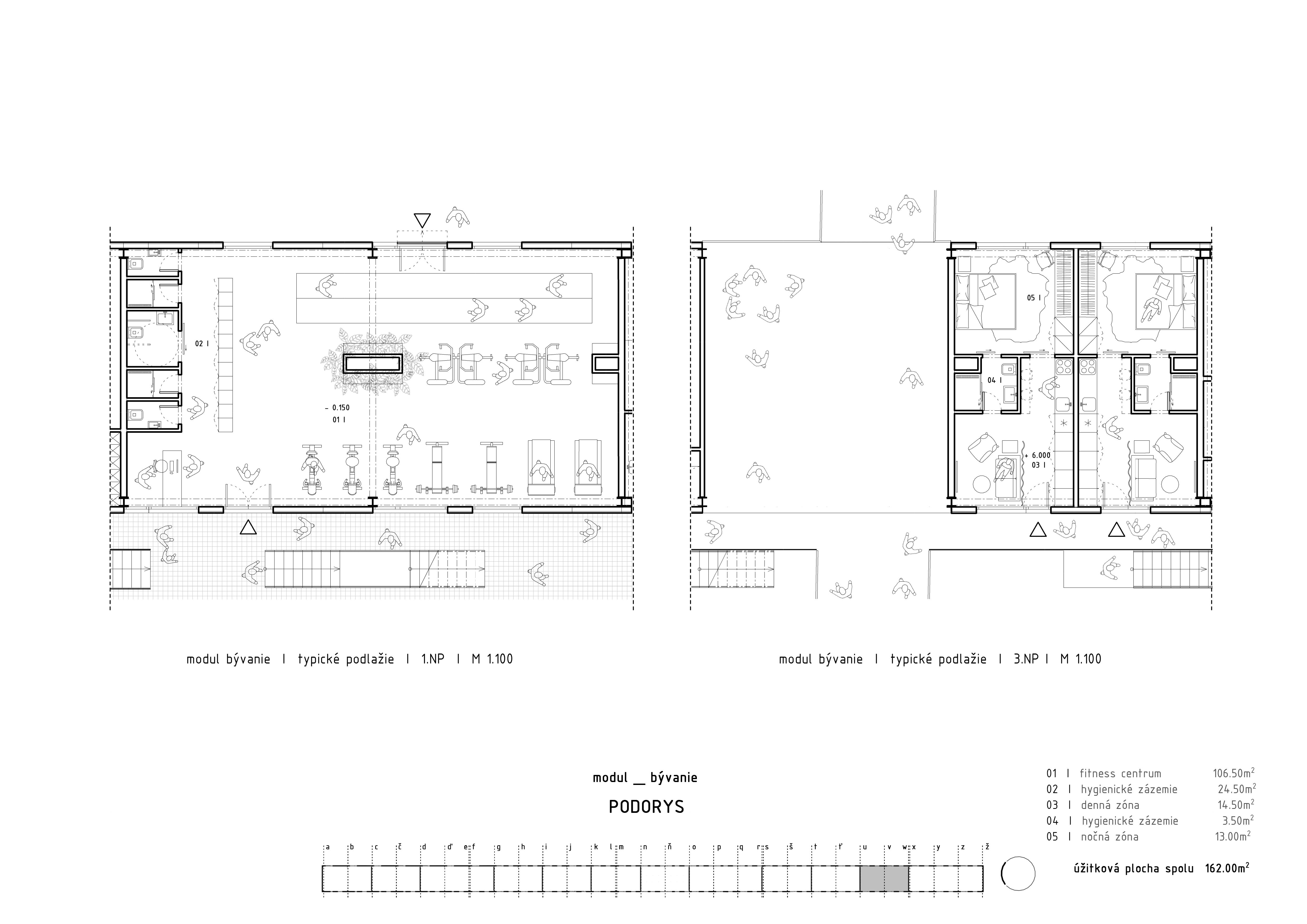
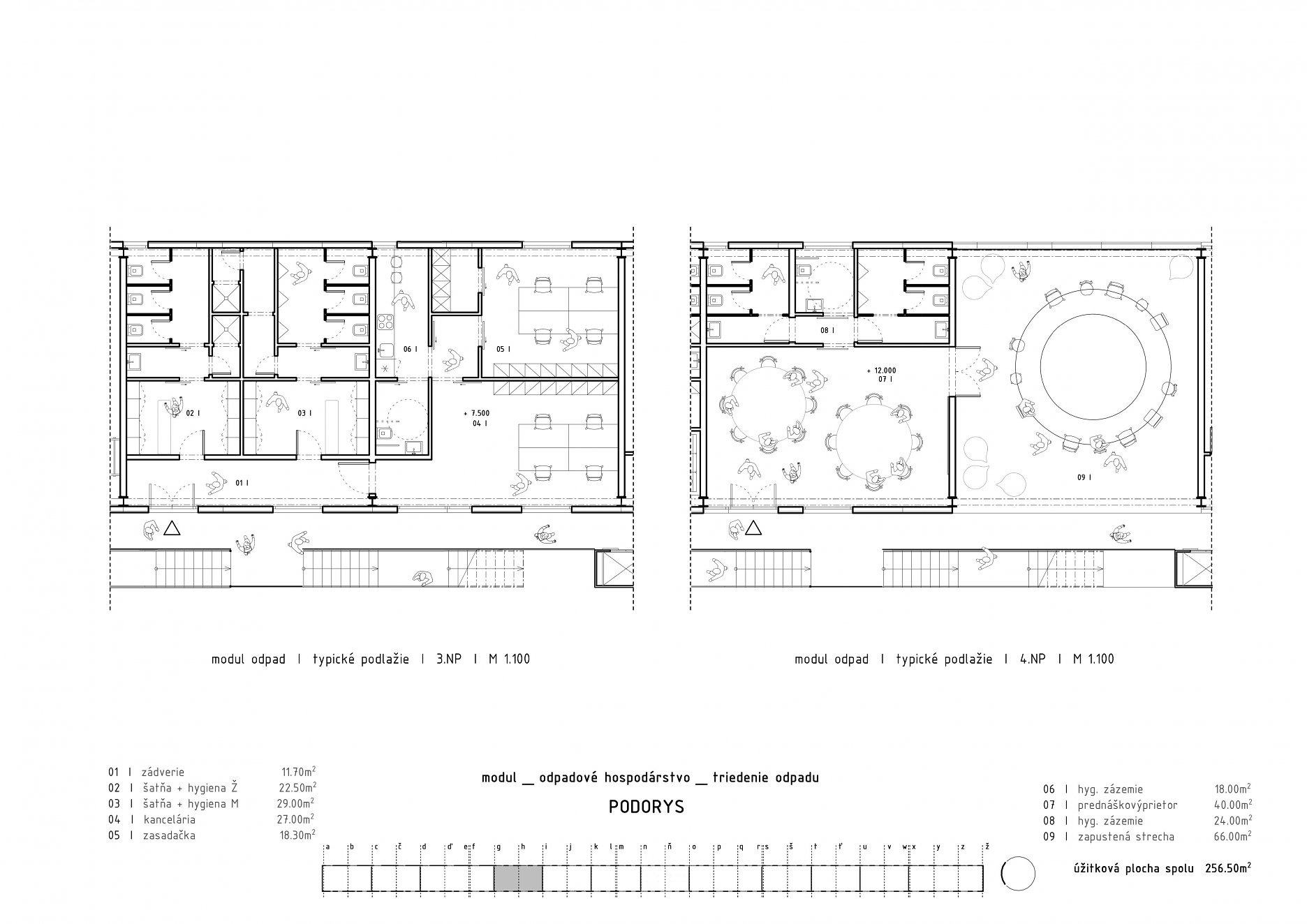
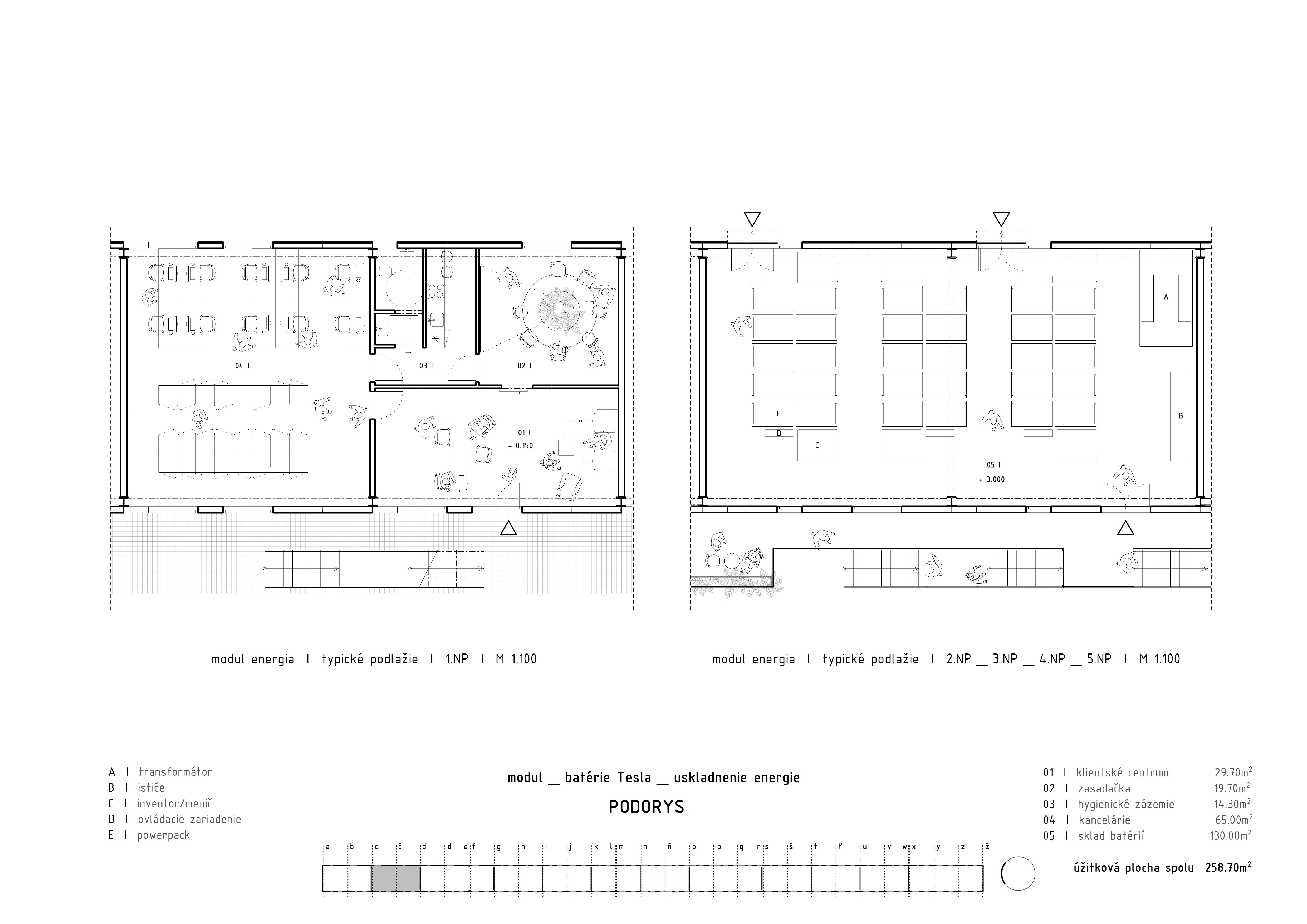
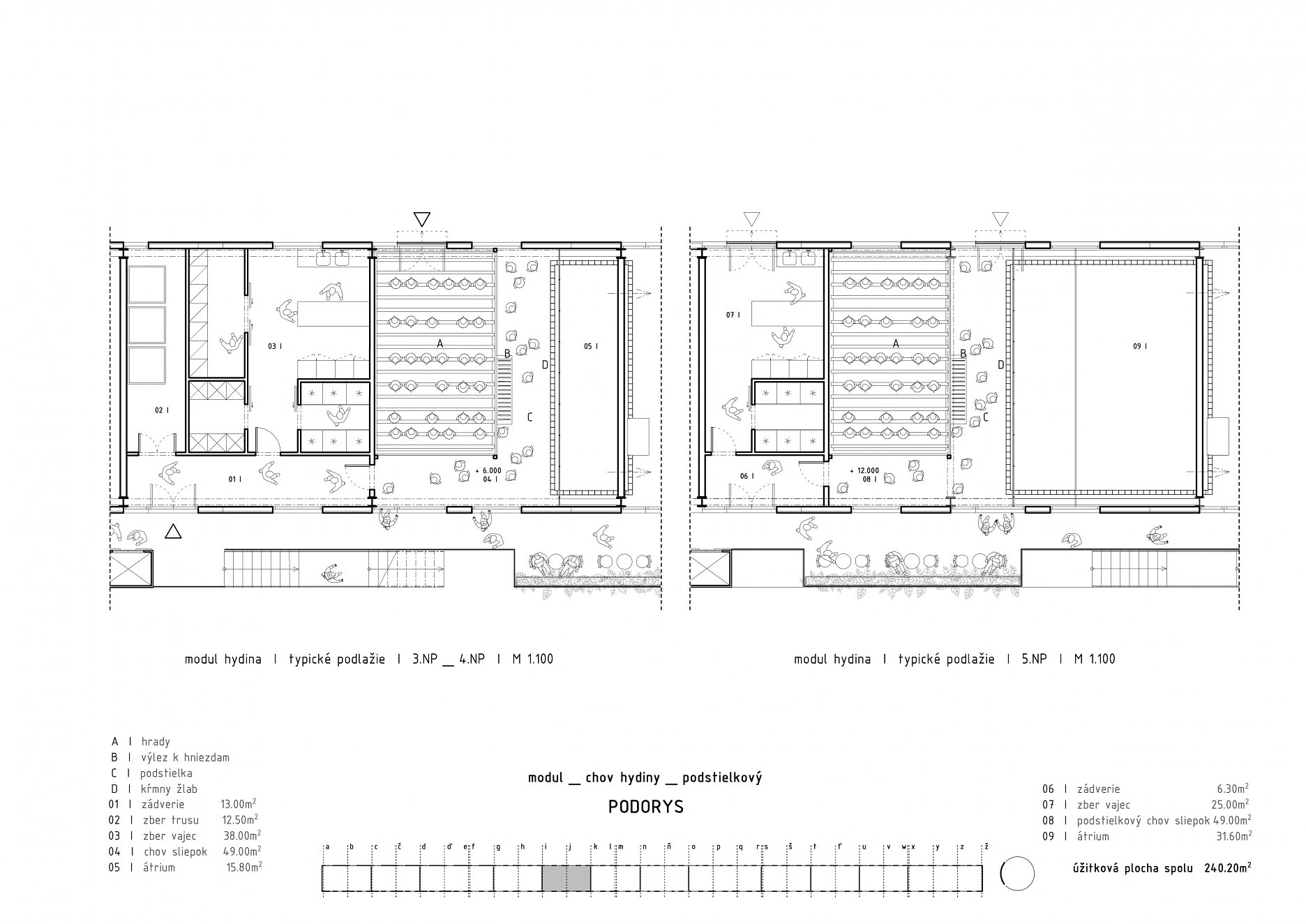
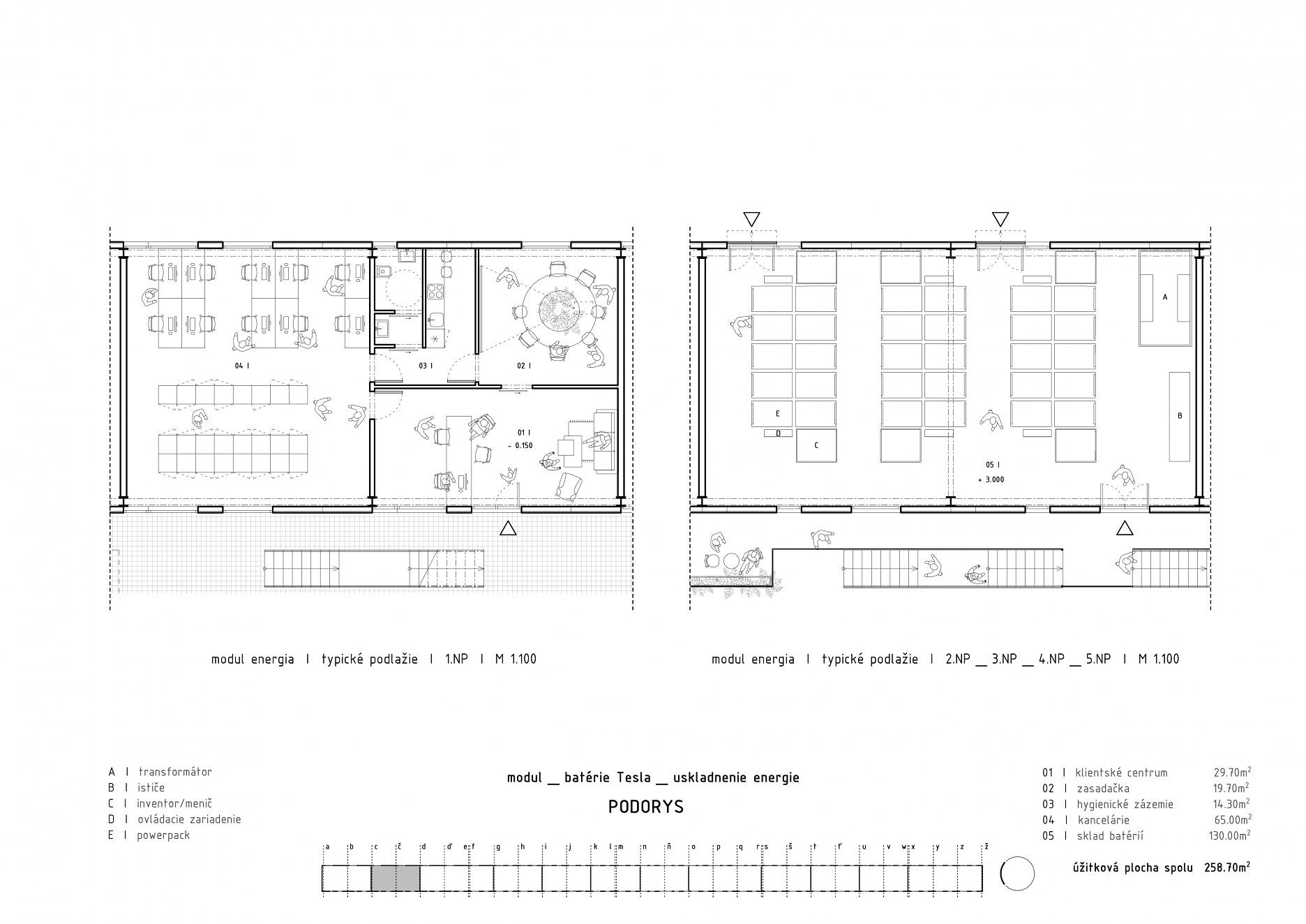
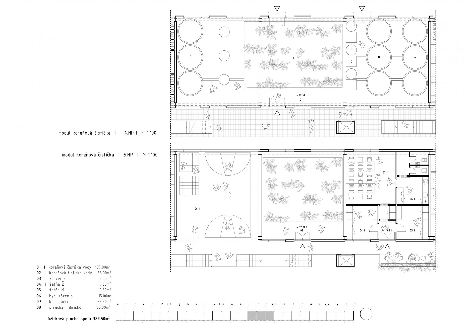
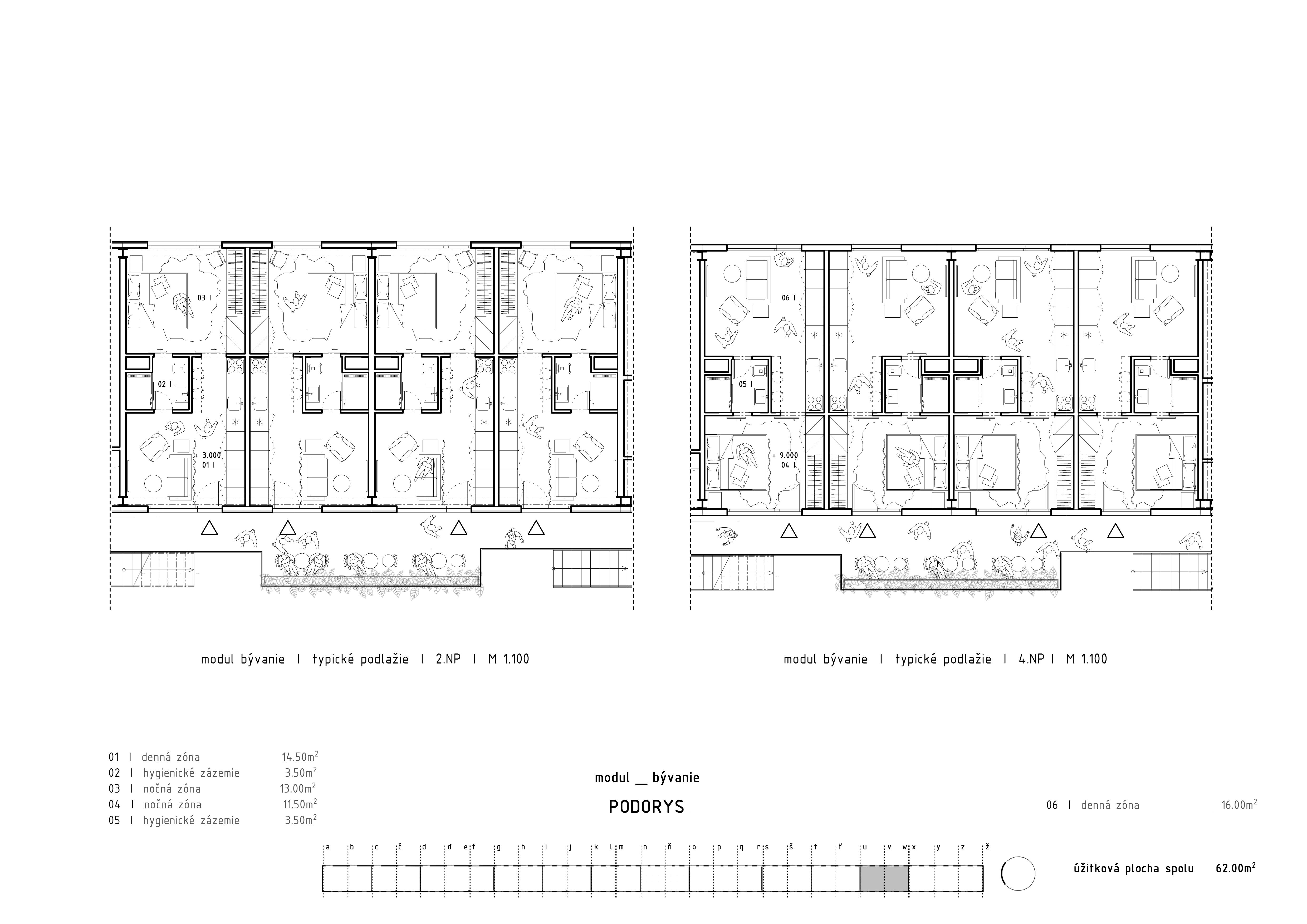
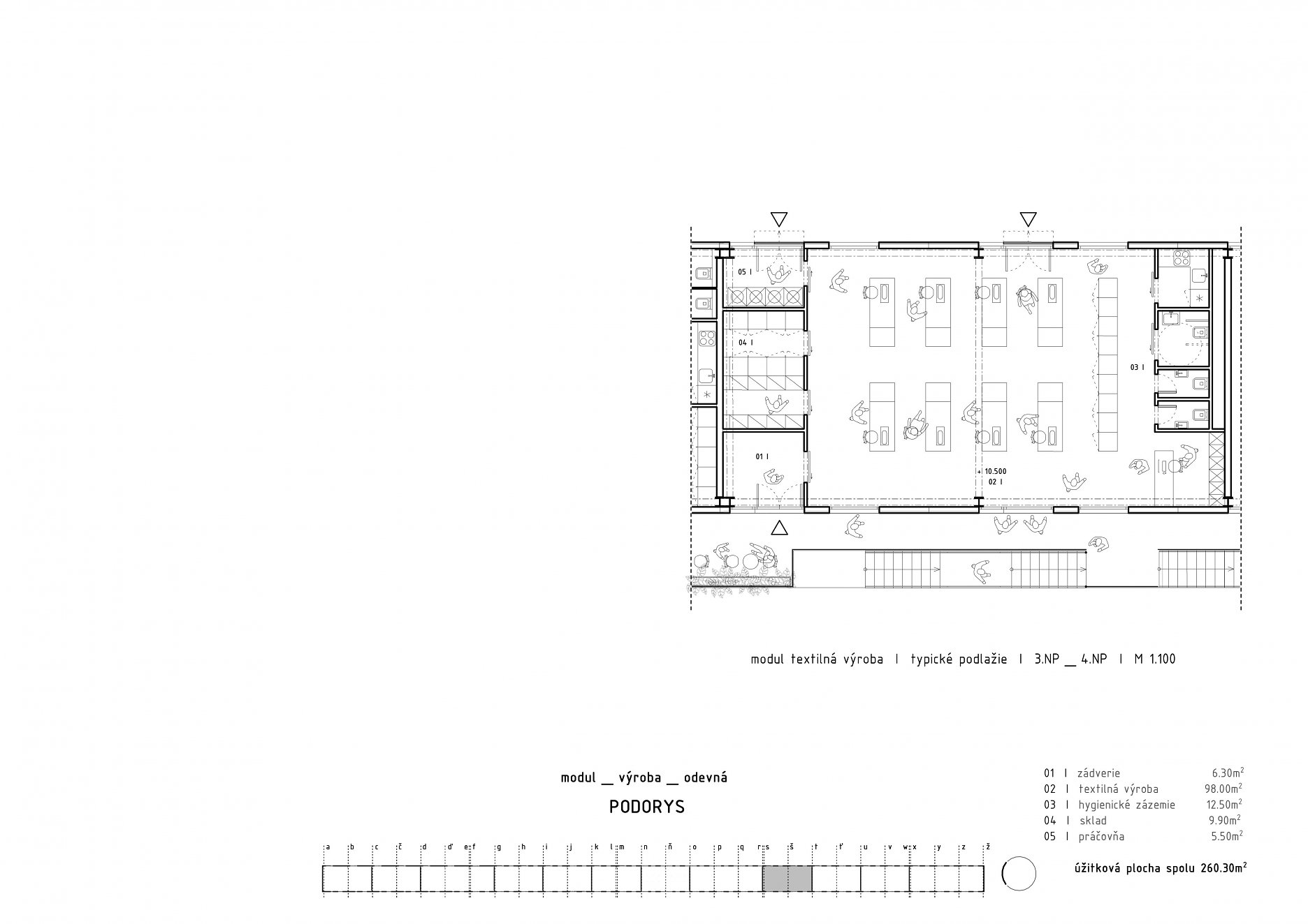
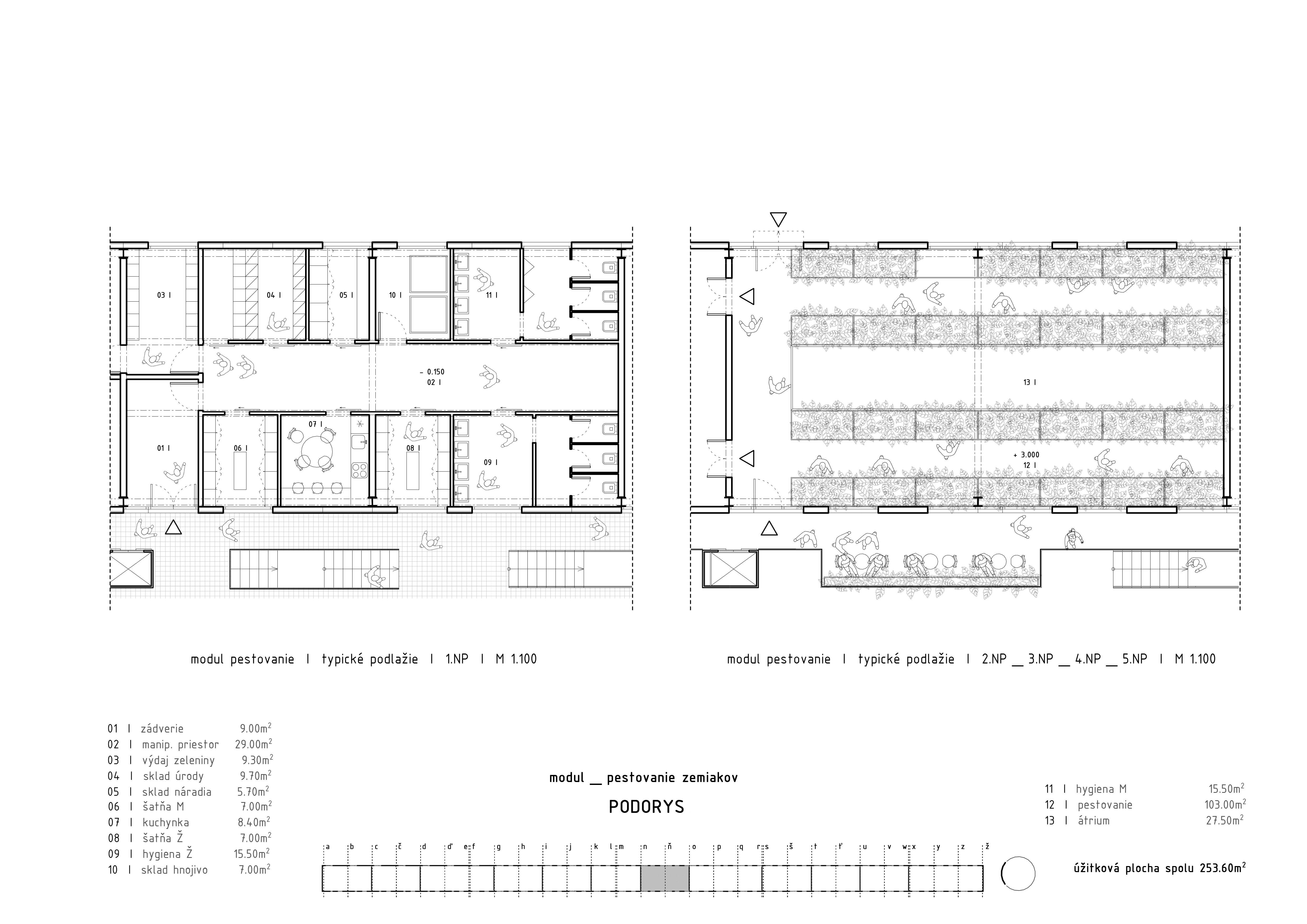
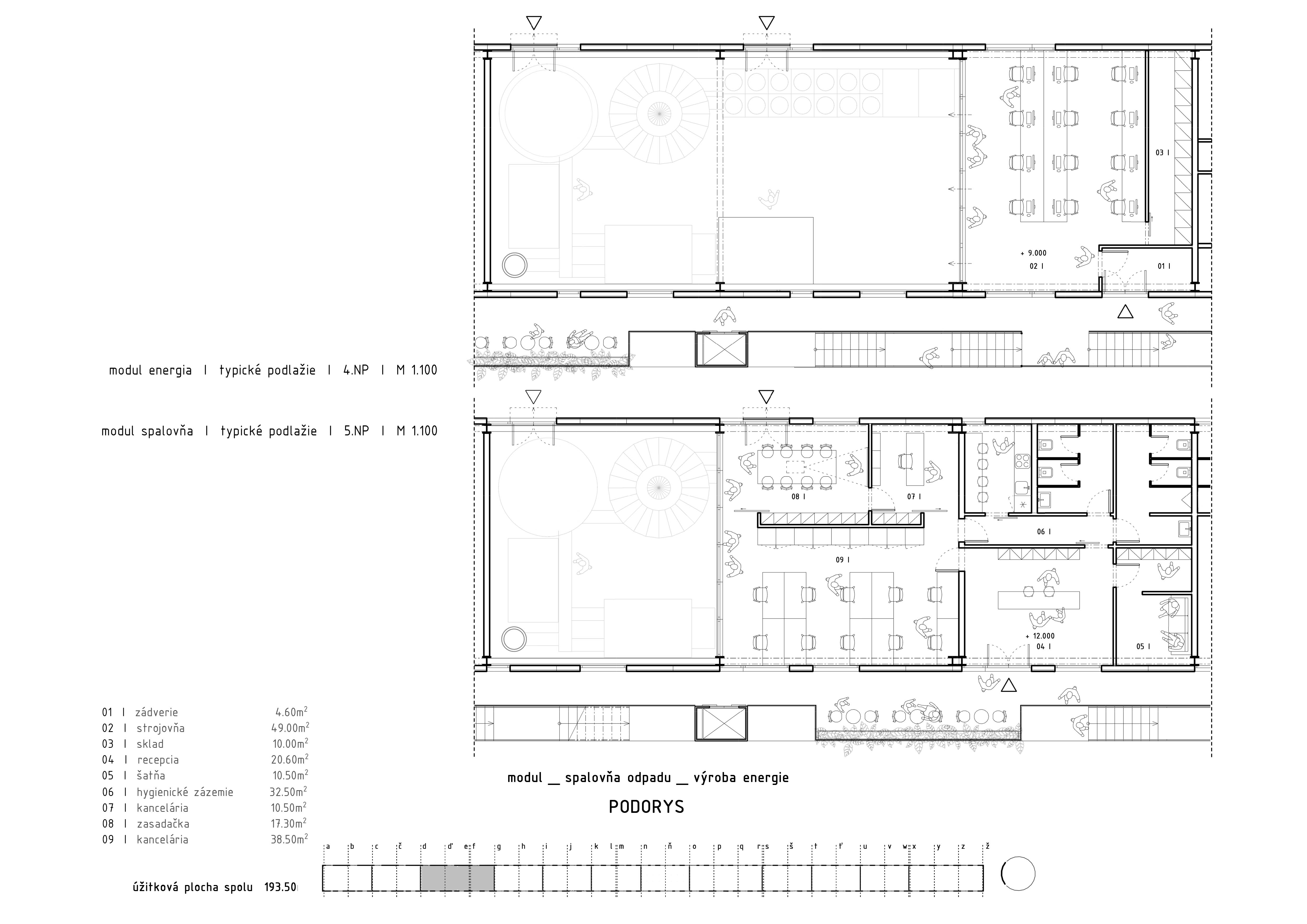
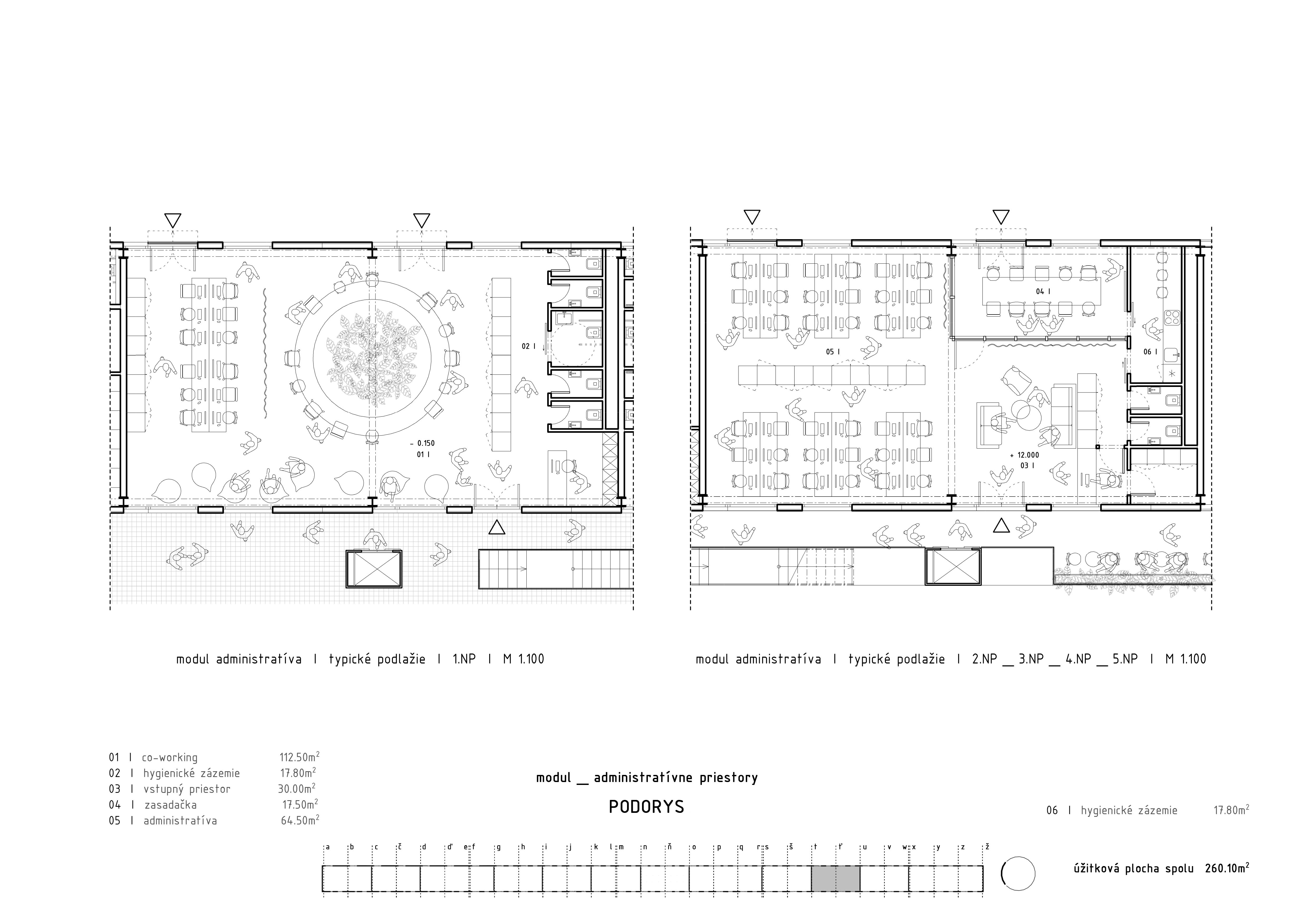
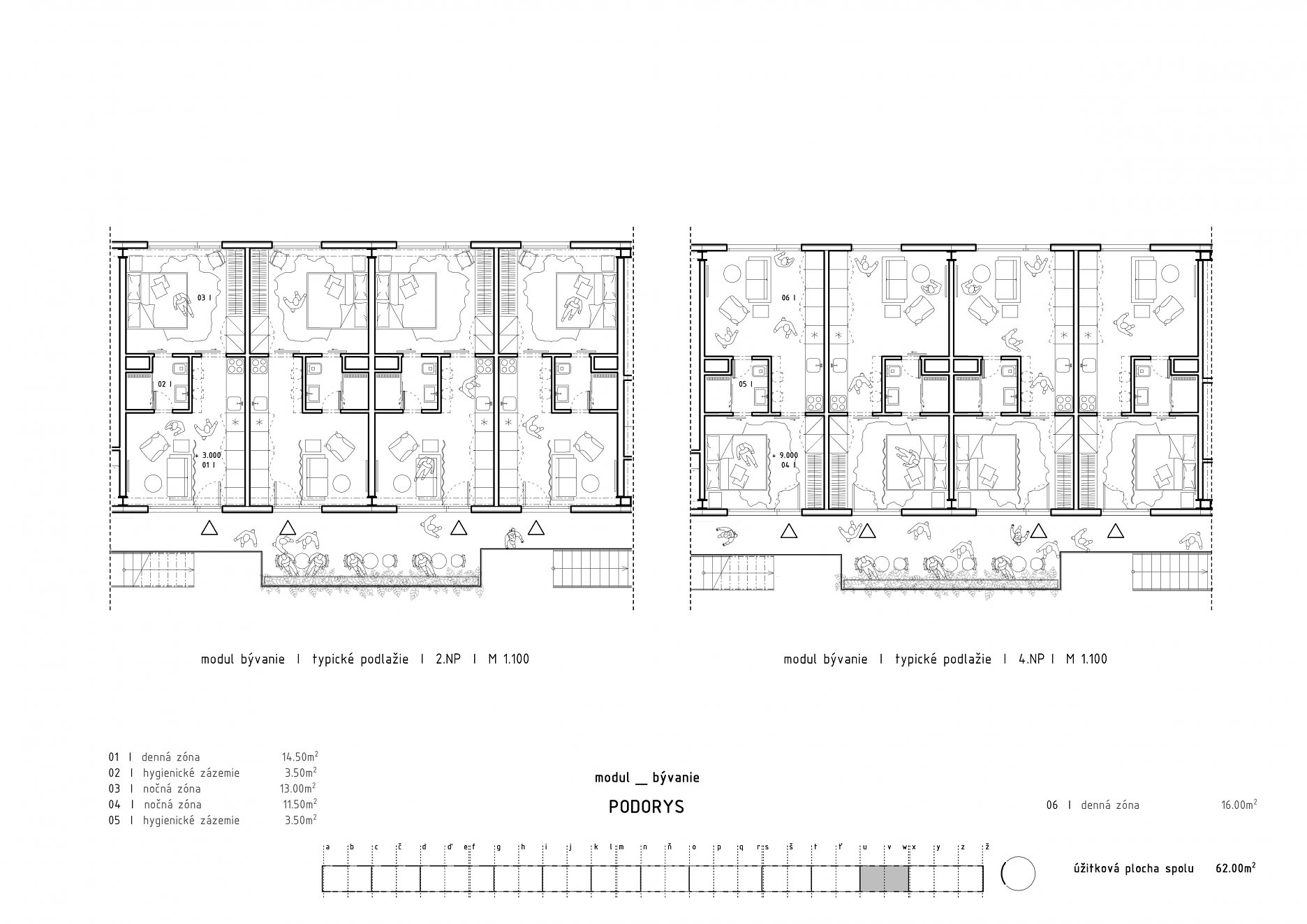
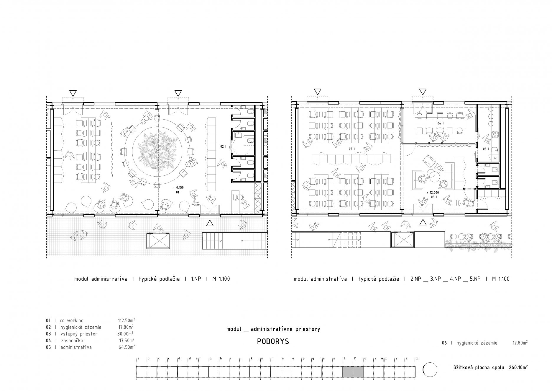
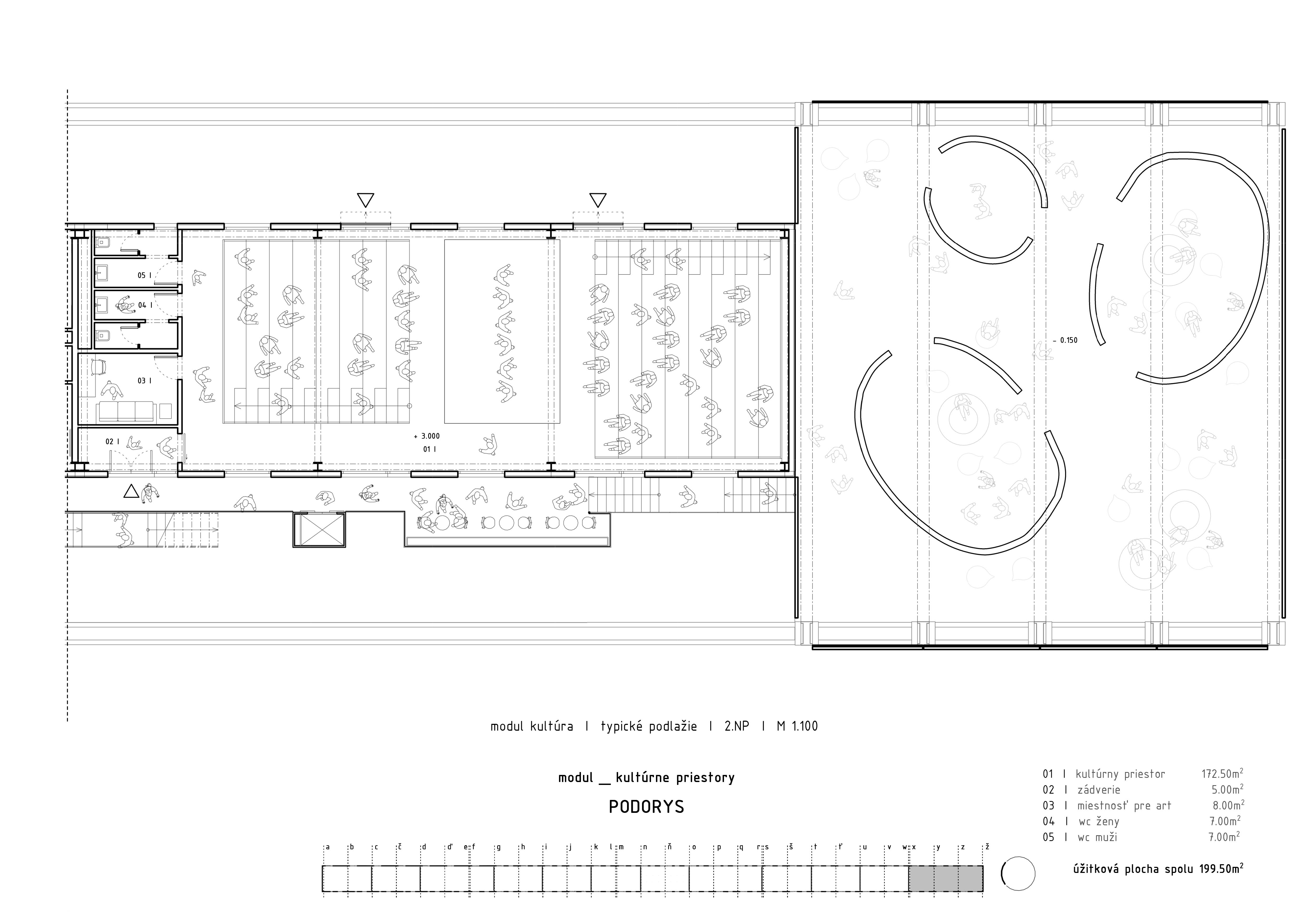
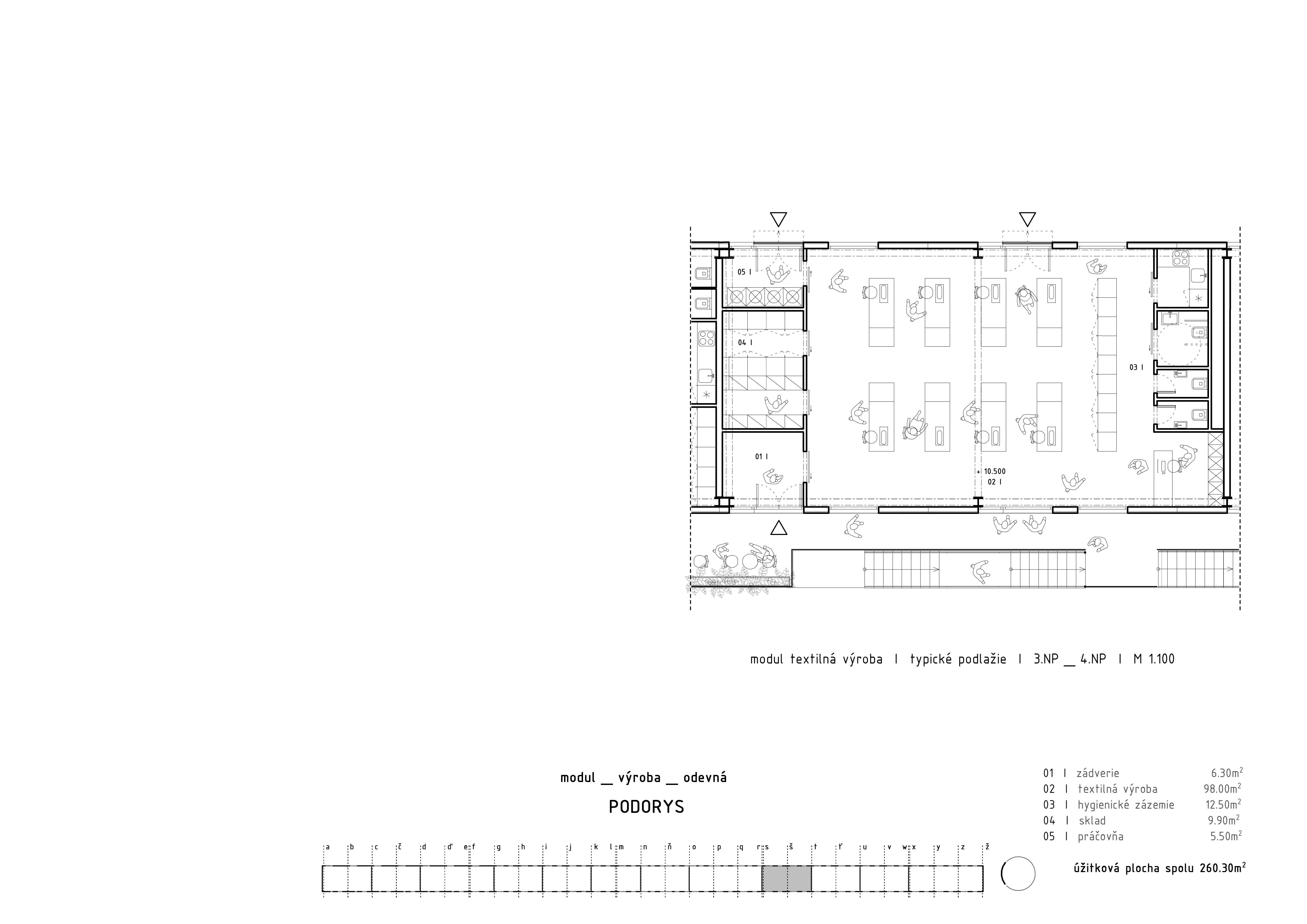
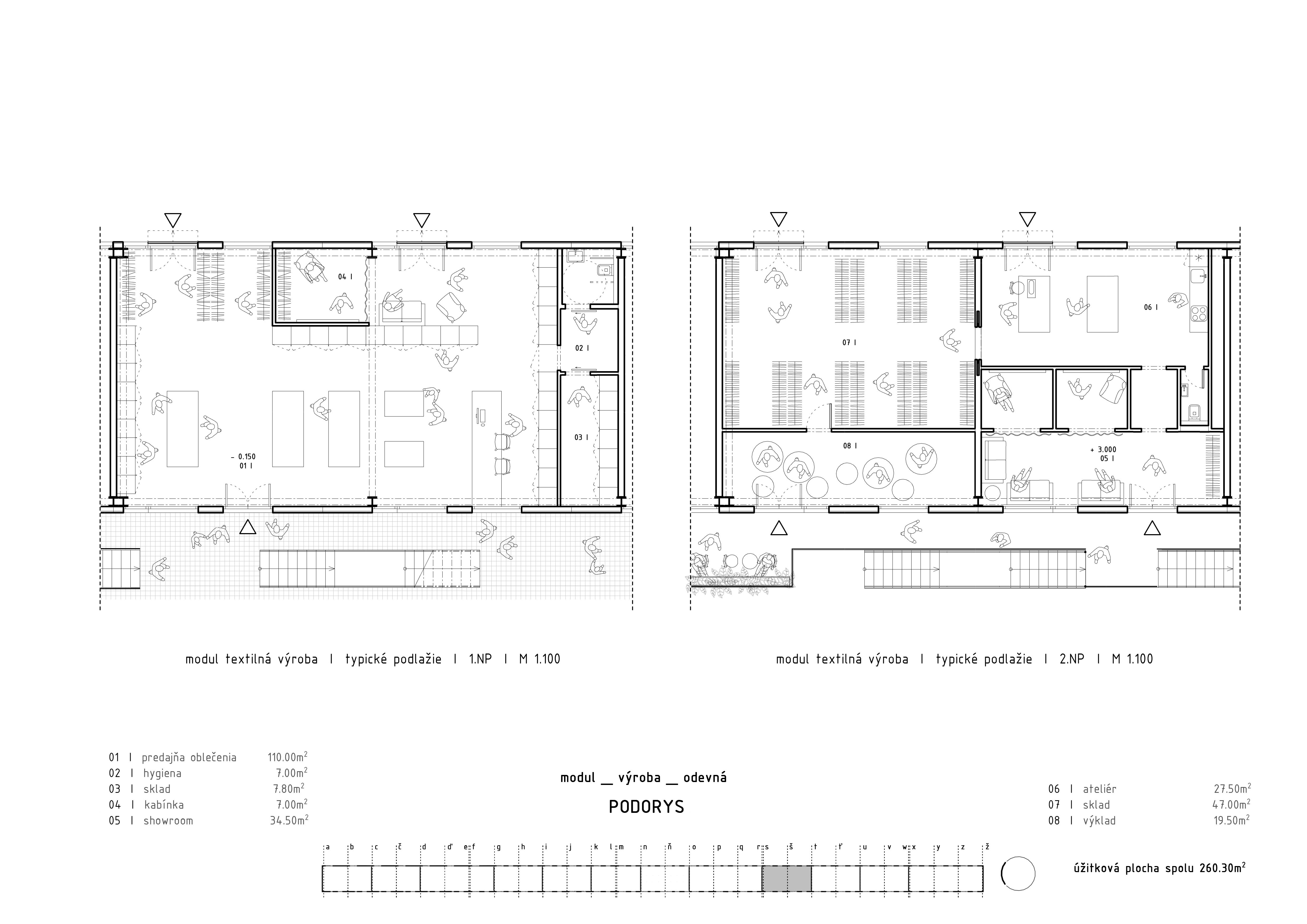
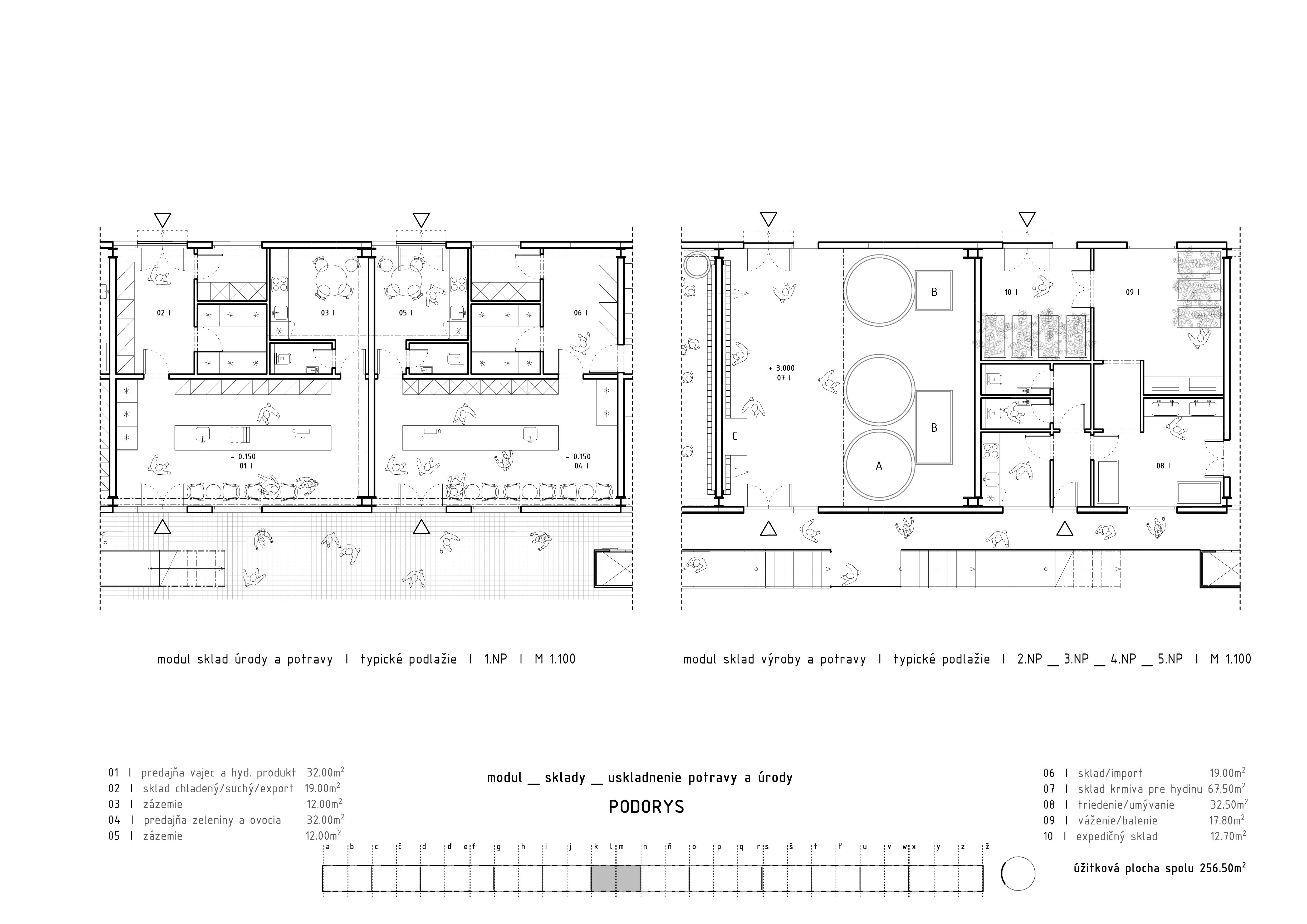
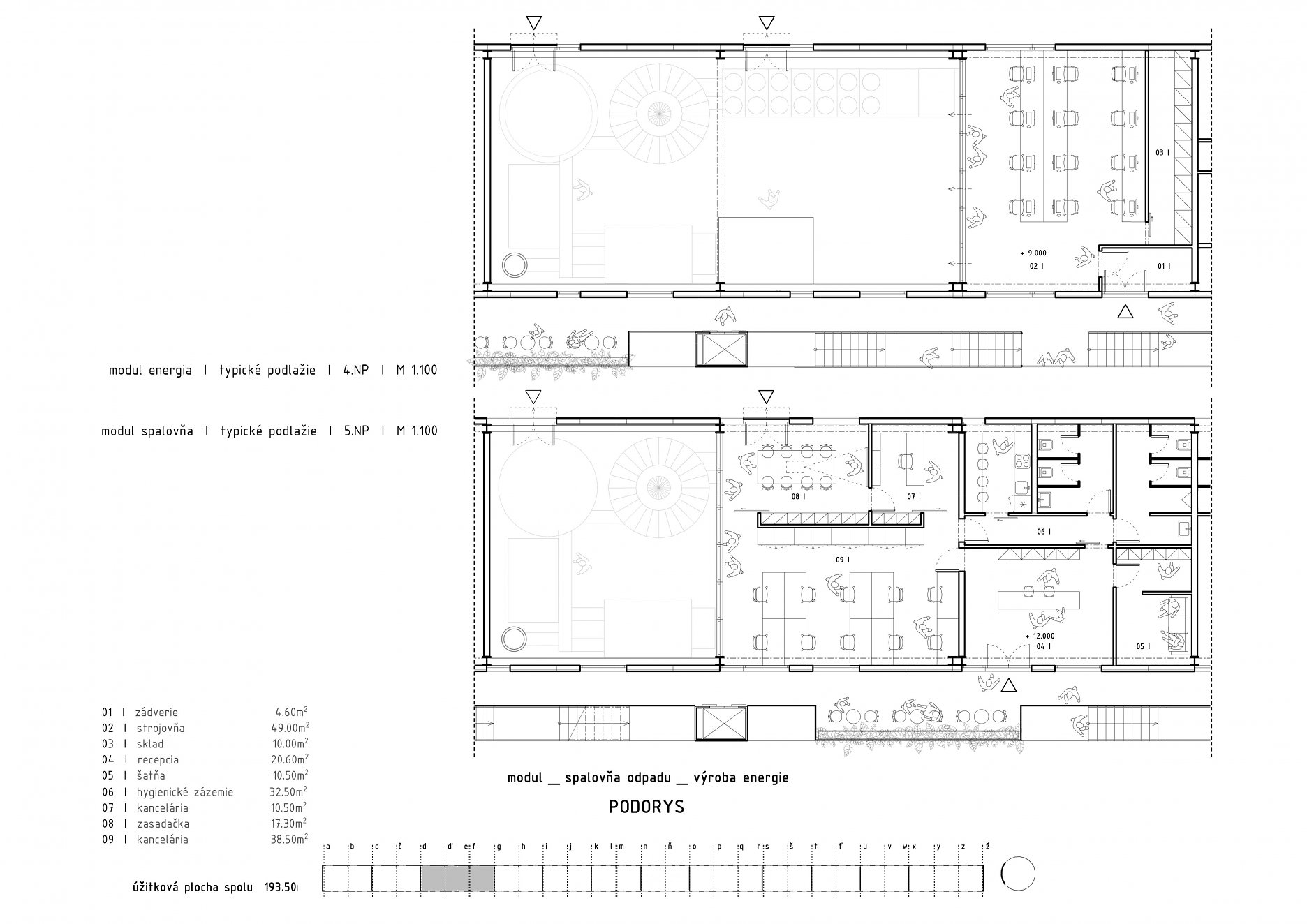
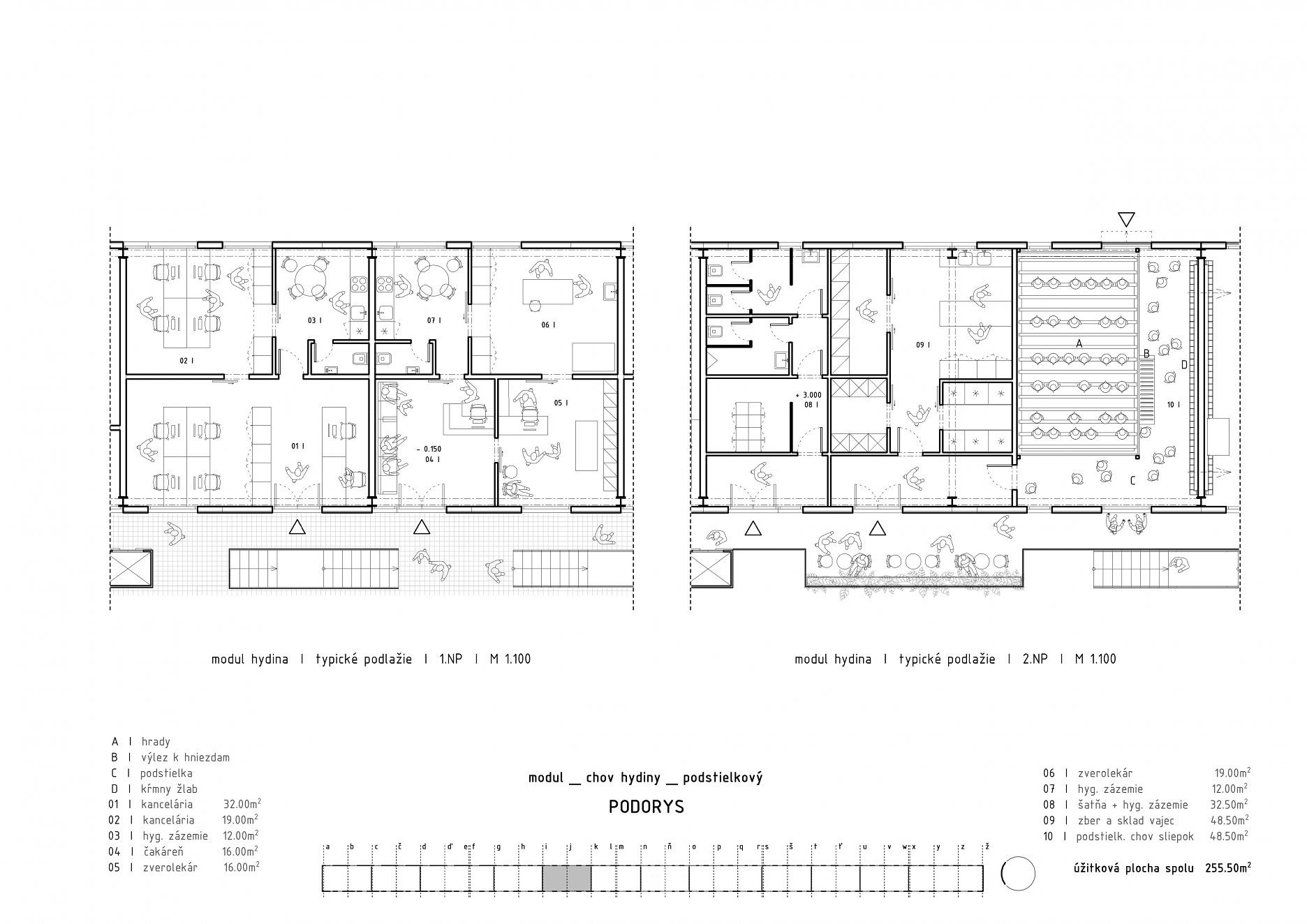
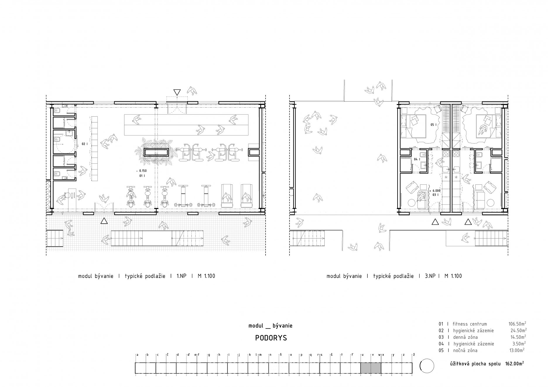
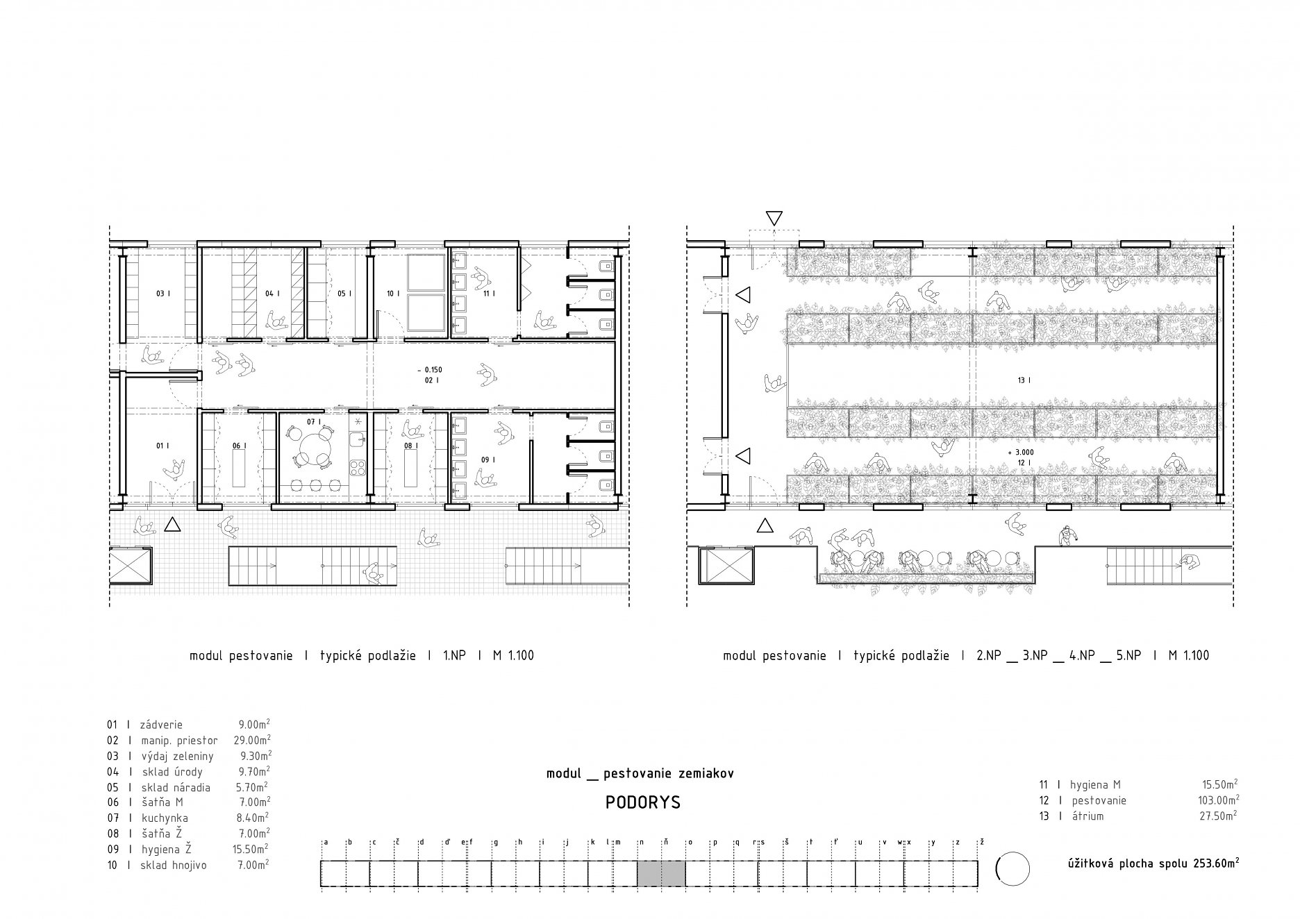
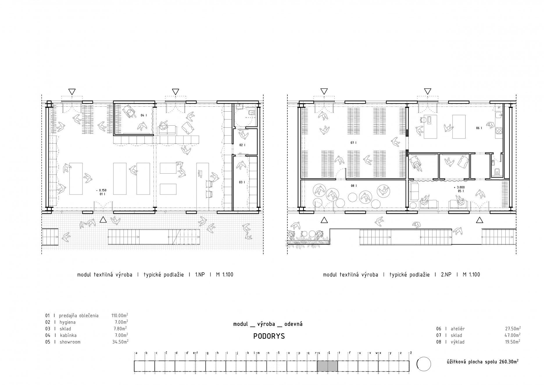
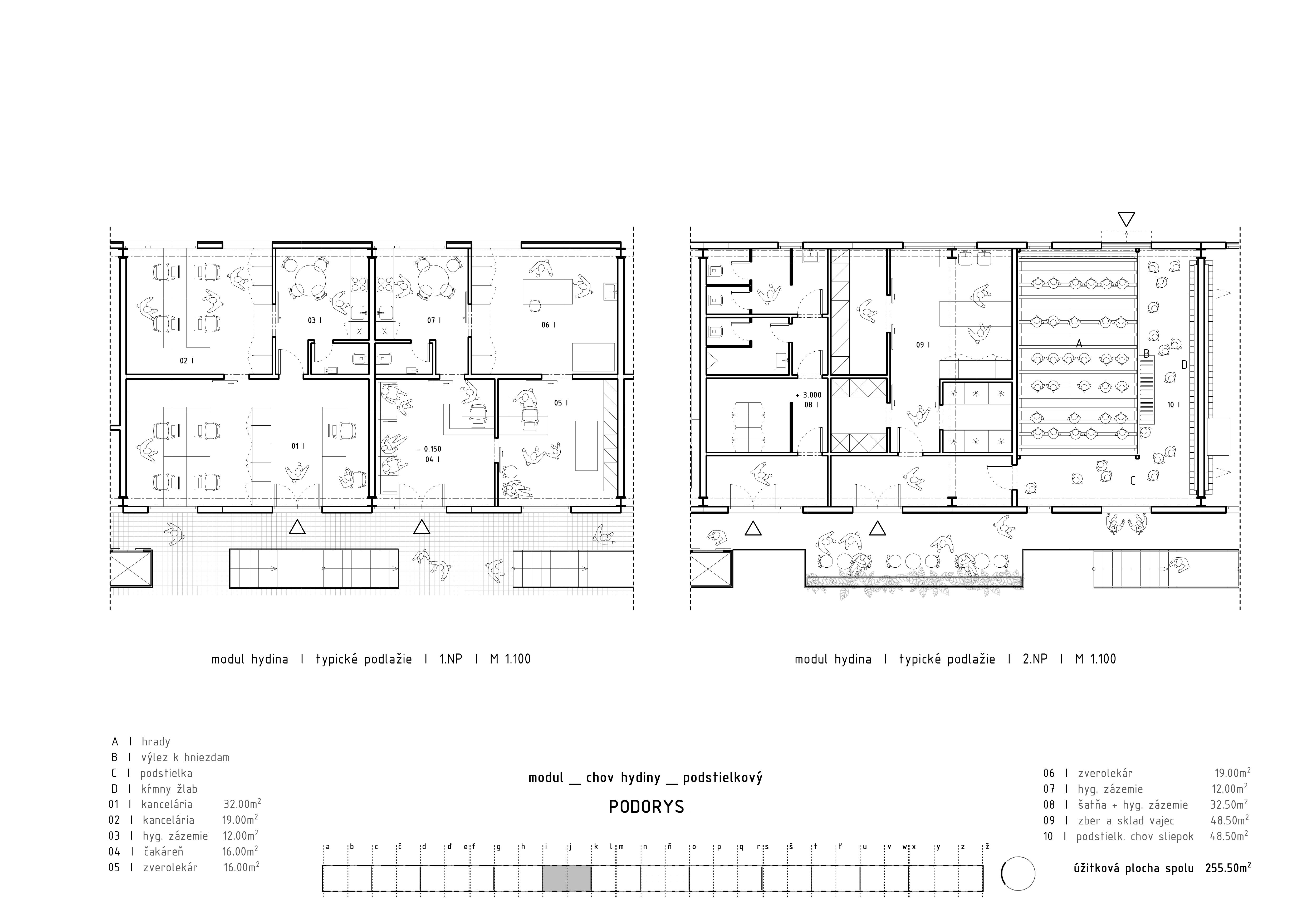
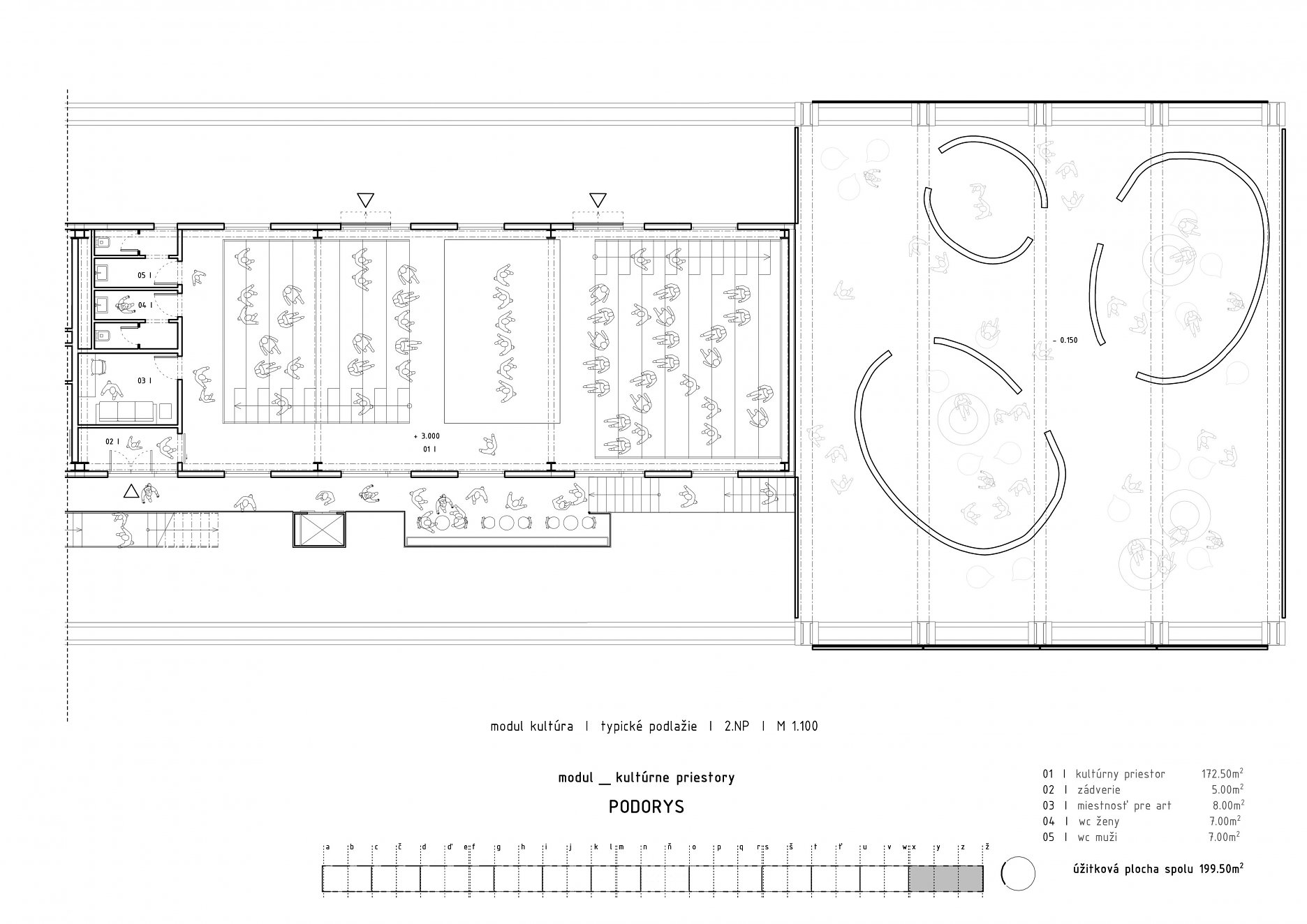
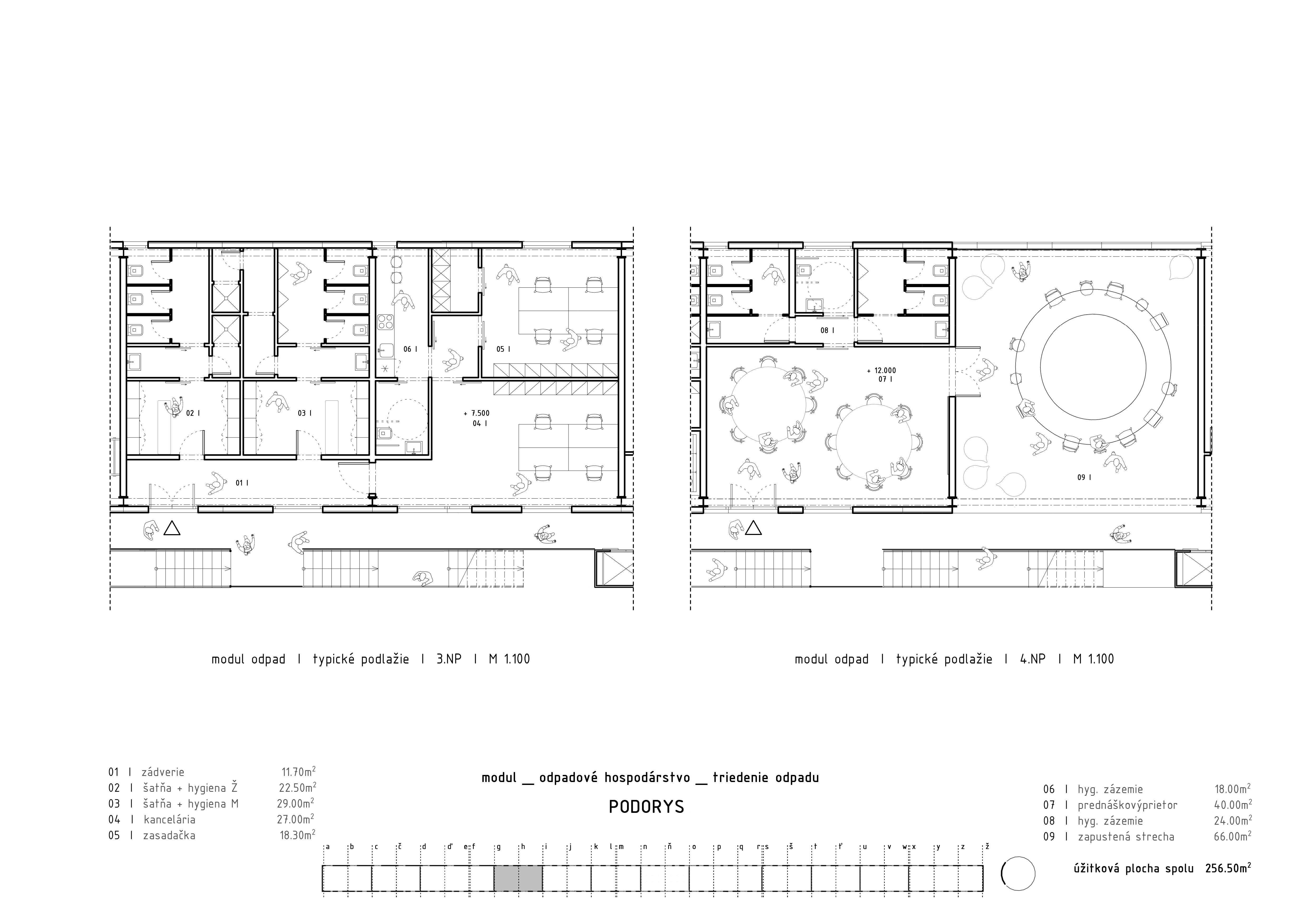
Úlohou bolo experimentovanie s funkciami, ktoré bežne figurujú skôr v extraviláne mestských štruktúr. Program polyfunkčného objektu pozostáva z funkcií ako pestovanie zemiakov, chov hydiny, odpadové či vodné hospodárstvo, nezávadná výroba, čistička odpadových vôd či spaľovňa odpadu. No nachádzajú sa tu aj typické mestotvorné funkcie ako sú služby, bývanie, administratívne priestory, či kultúra. Jednotlivé prevádzky boli dimenzované na kapacitu navrhovanej zóny pre 300 bytov s cca 1000 obyvateľmi a cieľom bolo zabezpečiť energetickú nezávislosť obytnej zóny v čo najvyššej miere. Výzvou bolo hľadanie architektonického výrazu, ktorý by plnil potreby jednotlivých hospodárskych a technických prevádzok a zároveň by objekt vedel zapadnúť do atmosféry obytnej štruktúry. Radenie a rozličnosť funkcii je viditeľný aj na samotnom dizajne fasády, vzhľadom na rôzne potreby presvetlenia. Na prvý pohľad nevýhodná poloha železnice je využívaná v prospech objektu - na dovoz a vývoz.

V dejinách urbanizmu sa stále hľadá ideál mesta, nájdenie jeho komplexnosti a ideálneho zahustenia. Cieľom návrhu bolo vytvoriť akési nadštandardné podmienky zastavovacej zóny pri maximalizácii sebestačnosti a nezávislého života od vonkajšieho prostredia. Výsledkom diplomovej práce je akýsi urbanistický a sociálny experiment, ktorý má ponúknuť širokú škálu rôznych funkcií, ktoré prekračujú obvyklú mestskú polyfunkčnosť.

Grafická časť diplomovej práce:

 

Vizualizácie:

Posudok oponenta DP _ prof. Ing. arch. Monika Mitášová, PhD

Hoci by sa dalo veľmi dlho kontroverzne diskutovať o povahe tohto projektu, uvediem niekoľko dôvodov, prečo ho navrhujem komisii na obhajobu s hodnotením A s plným počtom bodov 100.
V súčasnosti absolvuje štúdium minimum diplomantov, ktorí sú schopní a ochotní pracovať s veľmi komplexnými a pritom neoverenými zadaniami a návrhmi. Často za úspech považujeme, ak rozvíjajú už sformulované, alebo aspoň overované postupy. K experimentácii sa hlásia výnimočne, pretože pre ňu akoby nie je objednávka a je riskantná. A tento súťažný projekt jasne ukazuje, že riešenie komplexných a inovujúcich zadaní nie je vec trhu ani rozpočtu, ale vec voľby architektiek a architektov, ktorí overujú a rozširujú zadanie.

Urbanisticky ide o okrajovú štruktúru súboru, ktorej funkcia je akustická aj rozhraničujúca. V architektonickej mierke ide vlastne o infraštruktúru-technické mesto. Na jednej strane poskytuje servis rezidenčnej zóne, na druhej strane je obsaditeľná samostatným programom. Od utópie ruských konštruktivistov a kolektívnych domov sa táto líniová štruktúra dostala až k súčasným možnostiam prefabrikácie a montáže oceľových konštrukcií. Žeriav ako ich súčasť ich môže stavať, udržovať aj prestavovať (nech je mechanický či robotický). V tomto zmysle je to štruktúra radikálne polyfunkčná a inovujúca: ná/strojovo, konštrukčne aj materiálovo.

Aj program si diplomantka sama sformulovala komplexnejšie s ohľadom na rezidenčnú zónu: dnes sa uvažuje o zdieľaných ekonomikách, ale relatívna sebestačnosť novej štruktúry stojí za otestovanie. Uvedených 12 funkcií sa napokon môže meniť. Samu by ma zaujímalo, ako by bola v Saint-Denis takáto líniová štruktúra užívaná na podporu lokality aj autonómne.

Diplomantka navrhla postupne všetky sekcie líniovej štruktúry, ale rovnako je dôležité, že každá sekcia by mohla byť aj prebudovaná, vymeniteľná či obsadená novými funkciami. „Objekt“ je zdanlivo stabilne rozvrhnutý, v skutočnosti je jeho montovateľnosť a skladobnosť zárukou možných nových členení a skladobnosti (ktoré by sa dali nakresliť do scenára). Poukazuje na to rozvrh, obsluha aj údržba štruktúry pojazdnou halou so žeriavom ale aj komunikácia po predsadenej pavlači s výťahmi a zavesenými schodiskami. Ide o inovatívne, originálne riešenie, ktoré je treba v plnej miere oceniť!

Teda hoci by sa dalo diskutovať ďalej, záver je, že diplomantka spracovala veľmi komplexný problém na výnimočnej úrovni od úvodných analýz, cez program a hmotovo-priestororvé riešenie až po inovatívne pochopenie konštrukcie a materiálu oceľového skladobného systému a obkladových vrstiev. Aj výkresovo a jazykovo je práca zvládnutá na výnimočnej úrovni. Krátko povedané: je to jedna z najlepších prác, akú som mala možnosť posudzovať a navrhujem ju nielen na obhajobu, ale aj na Lackovu cenu a na publikovanie.

 

Posudok oponenta DP _ Ing. arch. Pavel Paňák

Jednou z lákavých vízií v dejinách architektúry a jej teórie je hľadanie podoby ideálneho mesta, sídla. Teda hľadanie jasnej schémy, ktorá úspešne absorbuje celú neobyčajnú komplexnosť mestskej štruktúry. Všetky doteraz vlastne neúspešné posúvajú však premýšľanie a hľadanie ideálu do nových, čiastočných odpovedí na prospech humanizácie urbánnej štruktúry. To je dôležitejšie než neuchopiteľná chiméra ideálu.

Andrea Bušová vo svojej práci rieši zvláštny dom, ktorý vyplynul z jej urbanistickej a hmotovej zastavovacej kompozície zo zimného semestra. Riešila tu obytný súbor v parížskej štvrti Saint Denis v rámci ešte neuzavretej študentskej súťaže. V situácii potrebnej bariéry oddeľujúcej obytnú zónu od rušnej železničnej línie navrhuje diplomantka dlhý úzky pás či líniu iného druhu. Fascinácia dlhým domom je v dejinách architektúry 20. storočia sprítomnená v niektorých realizovaných i nerealizovaných príkladoch. Jej dom je zároveň a hlavne sociologickým, sociálnym, technologicko-výrobným, konštrukčným, funkčným, komplexným organizmom vo forme elementárnej figúry. Je pokusom o koncentrát mestotvorných funkcií i tých zdanlivo vylučujúcich svoju spoluprítomnosť.

Táto práca určite nastoľuje mnohé otázniky, pochybnosti a neistoty – mnohé ani nemajú ideálnu odpoveď. Dôležité je, že autorka v nich vie, že riskuje možný čiastkový omyl. Mnohé jej rozhodnutia sú podložené starostlivým skúmaním nárokov i mechanizmov takých funkcií, ktoré prekračujú obvyklé typologické okruhy bežnej architektonickej praxe. Je to v skutočnosti racionálna, nesentimentálna architektúra jednotného rámca pochádzajúceho z jednotného prvkového repertoáru. Jej dom je zároveň pokusom o univerzálnu schému osaditeľnú v príbuzných kontextoch, je testom možných susedstiev v jednotiacom rámci, je architektonickou inkorporáciou idey pásového mesta. Dúfam, že podnieti plodnú rozpravu pre jej obhajobe. A o to ide najmä.

Andrea Bušová je talentovaná a pracovitá a ako preukazuje táto práca, vlastní aj potrebnú dávku idealizmu. Bez neho sa hodnotná architektúra nedá robiť.

 

Podklady: Andrea Bušová

Poloha diela

Ing. arch. Andrea Bušová

Súvisiace články

Vložené
24. august 2020
0
4024
Hlavný obsahHlavný obsah
Čakajte prosím