Advertorial

95 rokov Internorm: 30 miliónov okien a dverí z Rakúska

Európska značka okien oslavuje jubileum: za 95 rokov sa vyvinula na najväčšiu medzinárodne pôsobiacu okennú značku a inovačného...

Pozvánka na 2. ročník stavebného veľtrhu BigMarket na Slovensku

Na podujatí sa predstaví až 37 vystavovateľov - popredných dodávateľov stavebných materiálov a inovácií s prezentáciou...

Hotel Hirschen Spa House, Rakúsko

Novotvar v prostredí alpskej obce.

Vytvorte si kúpeľňu snov: dizajnové riešenie od značky hansgrohe

Hansgrohe - prémiová značka kúpeľňových riešení, ponúka nadčasový dizajn, technickú precíznosť a udržateľné inovácie...

Okná Internorm za minuloročné ceny + hliníkový kryt zdarma!

Využite špeciálnu akciu Internorm: okná za minuloročné ceny a hliníkový kryt úplne zadarmo. Ponuka je časovo obmedzená!

Moderné plynové technológie: Efektivita a inovácie pre 21. storočie

Sumarizácia najdôležitejších inovácií, ktoré redefinujúcich využitie tohto energetického zdroja.

Utesňovanie spodných stavieb pomocou hydro-aktívnej fólie AMPHIBIA.

AMPHIBIA 3000 GRIP 1.3 od spoločnosti ATRO predstavuje modernú hydroizolačnú technológiu, ktorá spája vysokú odolnosť,...

Dekarbonizácia individuálneho vykurovania domácností – Green Deal evolučne a nie revolučne

Ambiciózne plány EK narazili na ekonomické možnosti domácností v jednotlivých členských štátoch –...

Minimalistické dvere IDEA – technická precíznosť a čistota prevedenia

IDEA DOOR od spoločnosti JAP prináša do interiéru čistý minimalistický vzhľad vďaka bezrámovému riešeniu a precíznej...

Dom s výhľadom na údolie, Dlouhý Most (ČR)

Kontinuita riešenia od vonkajšieho obkladu až po kovania a kľučky.

Schell Vitus – osvedčené riešenie pre sprchy a umývadlá vo verejnom sektore s viac ako desaťročnou tradíciou

Nástenné nadomietkové armatúry Vitus sú mimoriadne vhodné pre rýchlu a efektívnu...

Kompozitné okná predstavujú súčasnosť a budúcnosť

Okenné profily z kompozitného materiálu RAU-FIPRO X od spoločnosti Rehau sú v porovnaní s tradičnými plastovými profilmi mnohonásobne...

Myotis - stoly 2025

Najnovší sortiment stolov pre zariadenie interiérov...

Priemyselné sklenené priečky Dorsis Digero: svetelné rozhranie pre moderné interiéry

Spojenie moderného dizajnu, funkčnosti a svetla do harmonického architektonického prvku.

Význam prirodzeného svetla pre moderné a flexibilné pracovné prostredie

Kancelárska budova Baumit v slovinskom Trzine prešla premenou na moderné a udržateľné pracovisko. Architekti kládli dôraz...

Miesto, meno, dom...

Architekt František Kalesný
Diskusia
Red 317.02.2026
2780+6
Miesto, meno, dom...

Tvorba v období rokov 1975 až 2026: Doc. Ing. arch. František Kalesný, PhD.,

(Medailón z pera Doc. PhDr. Jozefa Pauera, CSc.):

Aj keď nemožno dospieť k totožnosti architektúry a textu o nej,  je možné písať o architektúre a pokúsiť sa tak vyjadriť vzťah,  ktorý medzi nimi existuje. A tak sa vydávam na riskantnú cestu  realizácie takej možnosti. 

Neraz sa stáva, že podliehame klamu, a to nielen laici, ale aj  architekti sami, že architektúra sa rodí a vyrastá z architektúry  alebo dokonca z kresby na rysovacej doske alebo vo virtuálnych priestoroch počítačových programov. Ale to nezodpovedá  skutočnému počiatku architektúry. Architektúra sa rodí z ľudských životných situácií, z rozmanitých priesečníkov vzťahov človeka a sveta.

Práca a dielo architekta, Doc. Ing. arch. Františka Kalesného, PhD. podáva už pol storočia o tomto fakte zjavné, technicky a umelecky presvedčivé svedectvo.

Siegfried Giedion v práci Velenie preberá mechanizácia  (Mechanization Takes Command, Oxford and New York 1948) poukazuje na prichádzajúci koniec racionalistického prístupu  k svetu a na odklon od jednosmernej cesty logiky. Pritom poukazuje na permanentný problém, pred riešením ktorého stojí  nastupujúca generácia. „Každá generácia musí niesť tak bremeno  minulosti, ako aj zodpovednosť za budúcnosť. Prítomnosť sa  začína stále viac chápať ako číra spojka medzi včerajškom  a zajtrajškom... Každá generácia musí hľadať iné riešenie toho  istého problému: preklenúť priepasť medzi vnútornou a vonkajšou  realitou.“ (s. 723)  

Podobne ako modernistická architektúra prvej polovice 20. storočia hľadala riešenie problému rozlíšenia kolektívnej  a privátnej sféry v ľudskej spoločnosti s plným vedomím zmien,  ktoré práve vtedy vo svete prebiehali, aj architektonická tvorba Františka Kalesného zrkadlí jeho autentické úsilie o rozlíšenie a citlivé zharmonizovanie verejnej a privátnej sféry v spoločnosti  poznamenanej zmenami, ktoré prebiehajú najmä v ostatných  troch desaťročiach v našej spoločnosti a ktoré významne  ovplyvňujú podoby našich životov. 

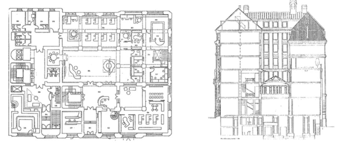
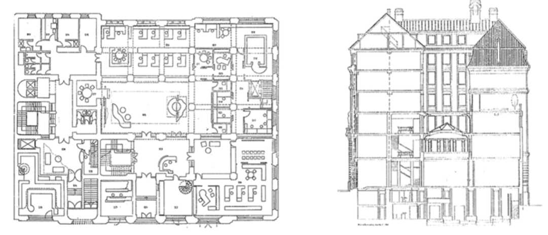
Dom sociálnych služieb Břeclav, 1982,  Autor: F. Kalesný
Dom sociálnych služieb Břeclav, 1982, Autor: F. Kalesný
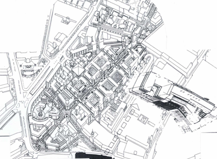
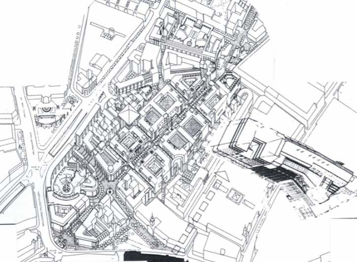
Urbanisticko-architektonická štúdia zóny Obchodnej ulice, Bratislava, 1980 Autorí: F. Kalesný, J. Bahna
Urbanisticko-architektonická štúdia zóny Obchodnej ulice, Bratislava, 1980 Autorí: F. Kalesný, J. Bahna

V celej tvorbe Františka Kalesného zaznieva ozvena jeho  ranej palladiovskej inšpirácie, podľa ktorej mesto je veľký dom  a dom je malé mesto, čo v jeho chápaní poukazuje na jednotu  architektonického a urbanistického priestoru, na dialogickosť  interiéru budovy a jej exteriéru, ktorý je zasa vnútorným  priestorom mesta. Práve tento vzťah sa Františkovi Kalesnému javí ako určujúci pre vývoj architektúry od jej vzniku.

Pre jeho  tvorbu je charakteristická dominancia záujmu o architektúru  v mestskom prostredí, práve ona sa ponúka všetkým spôsobom ľudského bývania, rozprestiera miesta, ktoré dovoľujú ľuďom,  aby sa stretávali tak v intímnej dialogickosti stretnutí v súkromí  domova (byty, rodinné domy), ako aj v kvalitatívne a hodnotovo  užšie vymedzených (školy, internáty, hotely, múzeá a pod.), menej vymedzených (úrady, obchody, polyfunkčné centrá a pod.)  i celkom voľných a náhodných (ulice, námestia) stretnutiach.  V dnešnom mestskom prostredí, napriek alebo práve kvôli  hustote jeho zastavanosti, je to nie vždy jednoduchá a ľahká  úloha. Ľudské stretnutia, aby si zachovali svoj ľudský charakter,  potrebujú disponovať kvalitami ľudskej identifikácie a orientácie. 

Združený obchodný dom Ružinov, Bratislava, realizácia 1984, Autori: J. Bahna, F. Kalesný, Ľ. Mihálik, P. Čížek, P. Minarovič
Združený obchodný dom Ružinov, Bratislava, realizácia 1984, Autori: J. Bahna, F. Kalesný, Ľ. Mihálik, P. Čížek, P. Minarovič
Obchodný dom Prior, Prešov, realizácia 1986, Autori: F. Kalesný, F. Minárik
Obchodný dom Prior, Prešov, realizácia 1986, Autori: F. Kalesný, F. Minárik
Obchodné centrum OTEX, Nám. SNP  Bratislava, architektonická štúdia - súťaž  1991, Autori: F. Kalesný, J. Mackovič
Obchodné centrum OTEX, Nám. SNP Bratislava, architektonická štúdia - súťaž 1991, Autori: F. Kalesný, J. Mackovič

Človek potrebuje vedieť, kto je a kde je. Samozrejme, vedomie  týchto základných existenciálnych potrieb sa u človeka objavuje  až vtedy, keď nie sú v dostatočnej miere saturované. Teda až keď  sa cíti stratený, zablúdi alebo má čo i len pocit, že sa nedokáže  v priestore zorientovať, nájsť cestu, ktorá vedie na miesto, ktoré je jeho cieľom, až vtedy si uvedomuje potrebu orientácie.

"Bratislavské preluky", hotel - obchodný dom, Nám. SNP Bratislava 1989, Študijná úloha ZSA, Autori: F. Kalesný, M. Žitňanský
"Bratislavské preluky", hotel - obchodný dom, Nám. SNP Bratislava 1989, Študijná úloha ZSA, Autori: F. Kalesný, M. Žitňanský

Podobne, keď ho prepadne pocit ohrozenia, zmocňuje sa ho strach, má pocit, že sa nesmie alebo nedokáže prejaviť autenticky, potrebuje si nasadzovať masku pretvárky, skrývať svoje city a myšlienky, neprejavovať svoje názory a postoje, až v takej situácii si uvedomí potrebu identifikácie.

S týmito základnými existenciálnymi potrebami je to teda podobné ako so základnými biologickými potrebami – uvedomujeme si ich, až keď nie sú saturované v primeranej kvalite a kvantite, keď sa naruší miera ich uspokojenia.

Samozrejme, tieto potreby sú inak saturované na úrovni mestského bývania, inak na úrovni verejného bývania a ešte v inej miere v útočisku privátneho bývania. A architekt pri každej svojej úlohe čelí povinnosti pamätať na tento fakt, teda,  že každé jeho zadanie, od návrhu dajme tomu, kusu nábytku  až po riešenie mestských častí a celkov, je súčasťou riešenia  ľudskej existenciálnej situácie. Architektonické dielo Františka  Kalesného je pôsobivým príkladom zaujatého, autentického  napĺňania tejto povinnosti. 

Stanica rýchlodráhy Prior, Bratislava – urbanisticko-architektonická štúdia revitalizácie zóny Kamenného námestia, 1987, Autori: F. Kalesný, B. Somora, Ľ. Mihálik, S. Mečiar
Stanica rýchlodráhy Prior, Bratislava – urbanisticko-architektonická štúdia revitalizácie zóny Kamenného námestia, 1987, Autori: F. Kalesný, B. Somora, Ľ. Mihálik, S. Mečiar

Sterilné kópie modernizmu a servilnosť voči vedeckému pohľadu  na svet vytvorili v architektúre a urbanizme po druhej svetovej vojne  neraz priestory, v ktorých človek stráca orientáciu, nenachádza v nich miesto pre rozvinutie psychických funkcií identifikácie  a orientácie, nedisponujú schopnosťou stať sa miestom ľudských  stretnutí, miestom medziľudskej komunikácie. Urbanistický  priestor stratil v modernej architektúre figuratívny charakter, bol  len zvyškovým priestorom voči vnútornému priestoru. Verejné  priestory sa zredukovali, vznikali prekážky v orientácii človeka. Takéto medzipriestory strácali výraz a význam, strácali schopnosť  výpovede.  

Obchodný dom Prior, Svit – rekonštrukcia a dostavba, 1987, Autor: F. Kalesný.
Obchodný dom Prior, Svit – rekonštrukcia a dostavba, 1987, Autor: F. Kalesný.
Rekonštrukcia , dostavba a interiér hradnej vinárne– národnej kultúrnej pamiatky v areáli bratislavského hradu, architektonická štúdia 1992, Autor: F. Kalesný, autor. spolupráca Ľ. Mihálik
Rekonštrukcia , dostavba a interiér hradnej vinárne– národnej kultúrnej pamiatky v areáli bratislavského hradu, architektonická štúdia 1992, Autor: F. Kalesný, autor. spolupráca Ľ. Mihálik
Rekonštrukcia , dostavba a interiér hradnej vinárne– národnej kultúrnej pamiatky v areáli bratislavského hradu, architektonická štúdia 1992, Autor: F. Kalesný, autor. Spolupráca Ľ. Mihálik
Rekonštrukcia , dostavba a interiér hradnej vinárne– národnej kultúrnej pamiatky v areáli bratislavského hradu, architektonická štúdia 1992, Autor: F. Kalesný, autor. Spolupráca Ľ. Mihálik
Esencia – Centrum tradičnej kultúry, Košice, architektonická štúdia – súťaž, 2024, Autori: F. Kalesný, M. Nabizada, N. Nemergutová.
Esencia – Centrum tradičnej kultúry, Košice, architektonická štúdia – súťaž, 2024, Autori: F. Kalesný, M. Nabizada, N. Nemergutová.
Dostavba komplexu Vysokej školy múzických umení , Svoradova ulica Bratislava, architektonická štúdia – súťaž 2021, Autori: F. Kalesný, Y. Meziani, J. Klemon
Dostavba komplexu Vysokej školy múzických umení , Svoradova ulica Bratislava, architektonická štúdia – súťaž 2021, Autori: F. Kalesný, Y. Meziani, J. Klemon

V tejto súvislosti Robert Venturi v monografii z r. 1966  (Komplexnosť a protirečenie v modernej architektúre) hovorí  o neschopnosti modernizmu prispôsobiť sa zložitostiam  a protirečeniam modernej skúsenosti. 

Predzvesťou kvalitatívne nového prístupu k architektonickému  utváraniu priestoru je tvorba Louisa I. Kahna v 50. a 60. rokoch  dvadsiateho storočia. Je citlivá na vzťah tradície a súčasnosti  a zdôrazňuje aj citovú a významovú zložku stavby.  

Kahn sa snaží, aby stavba nebola iba čírym hlasom matérie, holým objektom, ale aby bola aj rečou ducha. Keďže modernistická architektúra zanedbala dimenziu významu, experimenty postmoderny boli sprevádzané hľadaním komunikatívnej, zmysluplnej architektúry. Celkom stručne možno vystihnúť pomer medzi doktrínou moderného hnutia a koncepciou postmodernizmu formou niekoľkých binárnych opozícií. Oproti ideám sociálneho mesiášstva stavia postmoderna sociálny konformizmus, koncepciám radikálneho pretvárania prostredia čelí kontextualizmom, začlenením nového objektu do existujúceho prostredia, podriadením objektu historickej zástavbe alebo prírodnému prostrediu.

Pátosu novosti celého moderného hnutia sa stavia do protikladu aluzionizmus – od najrôznejších narážok na historické tradície cez využívanie tradičných foriem až po radikálny eklektizmus.  

Rezidencia veľvyslanca Slovenskej republiky ,Bukurešť, Rumunsko, rekonštrukcia a interiér, 1996, Autor: F. Kalesný, spolupráca D. Ježková
Rezidencia veľvyslanca Slovenskej republiky ,Bukurešť, Rumunsko, rekonštrukcia a interiér, 1996, Autor: F. Kalesný, spolupráca D. Ježková

Abstraktná geometrizácia rafinovaných foriem sa odmieta  úmyselným symbolizmom – akcentovaným vyjadrením ideí  architektonickými prostriedkami. Štrukturálny racionalizmus  celej modernej architektúry bol vystriedaný „chaosom“ ako  novým poriadkom, ironickou a paradoxnou architektúrou,  disfunkcionalizmom s jeho úmyselným porušovaním konštrukčnej  logiky stavania.  

Súťaž na rekonštrukciu budovy Národnej banky Slovenska -bývalej budovy Tatra banky nám. SNP Bratislava , architektonická štúdia – súťaž, 3. cena, Autori: F. Kalesný, I. Kepko, J. Moravčík, J. Šujan
Súťaž na rekonštrukciu budovy Národnej banky Slovenska -bývalej budovy Tatra banky nám. SNP Bratislava , architektonická štúdia – súťaž, 3. cena, Autori: F. Kalesný, I. Kepko, J. Moravčík, J. Šujan

Priestor zmysluplnej architektúry by mal mať – v predstavách  postmodernistov, ako sú napríklad Robert Venturi, Charles  Moore, Michael Graves, James Stirling v 80. rokoch, Hans Hollein  a iní, ale aj voči nim do istej miery opoziční dekonštruktivisti  Peter Eisenman, Zaha Hadid, zoskupenie Coop Himmelblau,  zoskupenie Rema Koolhaasa OMA a iní – figuratívnu, čitateľnú  štruktúru, ktorá poskytuje rozmanité možnosti interpretácie  bez straty identity a stimuluje funkciu orientácie. Oproti fatalite  univerzálneho priestoru by mal byť mnohoznačný, konkrétny, historicky určený. Kompozičným princípom pre nich bola nie  nová myšlienka jednoty v mnohosti, ktorá aj v nasledujúcich  rokoch a v našej súčasnosti nachádza nové interpretácie a budí  ešte vždy nádeje aktivizácie účasti každého človeka na živote vo  všetkých oblastiach života spoločnosti.  

Slovenské centrum vedy pre všetkých Petržalka, Bratislava, urbanisticko- architektonická štúdia, 1995 Autor: F. Kalesný, spolupráca D. Havrila
Slovenské centrum vedy pre všetkých Petržalka, Bratislava, urbanisticko- architektonická štúdia, 1995 Autor: F. Kalesný, spolupráca D. Havrila
Bratislava Petržalka – Panónska cesta, sektor „C“, polyfunkčná zóna, urbanisticko- architektonická štúdia 1992, Autori: F. Kalesný, V. Zigo
Bratislava Petržalka – Panónska cesta, sektor „C“, polyfunkčná zóna, urbanisticko- architektonická štúdia 1992, Autori: F. Kalesný, V. Zigo

Týchto niekoľko poznámok o charakteristických črtách a vyústení moderného hnutia do postmoderny uvádzam s cieľom len v náznakoch vystihnúť myšlienkovú atmosféru, v ktorej sa formovalo vlastné tvorivé úsilie a smerovanie tvorby Františka Kalesného. Podobne ako v celom svete, aj u nás kríza moderny viedla k hľadaniu nových podôb architektúry a urbanizmu. Koncom sedemdesiatych rokov sa menil názor na zástavbu v centre  mesta práve pod vplyvom charakteristických čŕt postmoderných  koncepcií. A v tomto období hľadania, formulovania nových  otázok, prístupov k novým výzvam nastupuje František Kalesný  na bratislavské pracovisko ŠPÚO do ateliéru architekta Ivana  Matušíka.  

Stáva sa tu priamym účastníkom živého, vzrušujúceho, hoci  odvekého, ale predsa vždy obnovujúceho hľadania autentického  vzťahu k dejinám architektúry, k jej podstate, ako aj k jej jazykovým  a štýlovým variáciám. A zároveň spolutvorcom a tvorcom úvah  a projektov, ktoré riešili vzťah mesta a krajiny, ako aj konkrétne  zadania pre dostavby či rekonštrukcie rôznych častí mesta.

Komplexné výcvikové stredisko športovcov, Vysoké Tatry – Mlynická dolina,architektonická štúdia, 1987, Autor: F. Kalesný.
Komplexné výcvikové stredisko športovcov, Vysoké Tatry – Mlynická dolina,architektonická štúdia, 1987, Autor: F. Kalesný.

Vo svojom prístupe k riešeniu rozvrhu mestských území a ich štruktúrnych častí disponuje architekt Kalesný tak vedomím základných ľudských existenciálnych potrieb identity a orientácie, ako aj jasnou predstavou o architektonike mesta, o jeho nielen čisto funkcionálnych vymedzeniach, ale aj o ľudskom zmysle  týchto funkcií. Výrazné svedectvo o tom podávajú aj konštrukčne,  materiálovo a esteticky harmonické realizácie jeho projektov  v Bratislave a v niekoľkých ďalších mestách Slovenska, ako aj  v zahraničí. Jedným z posledných, zatiaľ nerealizovaným, je projekt  polyfukčného zariadenia voľnočasových činností, „Nová plaváreň,  rekonštrukcia hokejového štadióna a dostavba nekomerčných  ubytovacích kapacít pre športovcov“ v bratislavskom Ružinove,  ktorý je znamenitou a krásnou ukážkou Kalesného variácie na van  eyckovskú „ríšu medzi“, keď veľmi senzibilne uvádza priestorové  časti do vzájomných vzťahov tak, aby v nich pretrvávala kontinuita exteriéru a interiéru, kontinuita priestorov s rôznou mierou  verejného charakteru tak, aby aj na miestach verejného stretávania  sa boli možné stretnutia s užšie vymedzenými charakteristikami,  ako aj stretnutia užšie nedefinované, celkom voľné a náhodné. 

Nová plaváreň, rekonštrukcia hokejového štadióna a dostavba nekomerčných ubytovacích kapacít športovcov , Ružinov, Bratislava, architektonická štúdia – súťaž 2022, 1. cena, Autori: F. Kalesný, Y. Meziani, J. Klemon, N. Janovičová, I. Muzafarov.
Nová plaváreň, rekonštrukcia hokejového štadióna a dostavba nekomerčných ubytovacích kapacít športovcov , Ružinov, Bratislava, architektonická štúdia – súťaž 2022, 1. cena, Autori: F. Kalesný, Y. Meziani, J. Klemon, N. Janovičová, I. Muzafarov.

Tak sa jeho priestory otvárajú pre životné situácie a potreby  verejného bývania v ich rozmanitých voľných, otvorených  a viacvrstvových formách. Ako slovo samo napovedá, priestoru  je vlastné rozprestieranie, teda uvoľňovanie, prestieranie miesta  pre jeho voľnosť, jeho otváranie pre možnosti ľudských spôsobov  bývania. Na takto „rozprestretých“, pre bývanie uvoľnených  miestach ľudia na nich usídlení, prebývajúci, napokon dospievajú  k dôvernosti domova alebo tiež k odcudzenosti budovania alebo  k rôznym odtieňom týchto krajností či k ľahostajnosti voči domovu  i k cudzote bezdomovia. 

Architektonická a urbanistická tvorba Františka Kalesného sa odvíjala počas poslednej štvrtiny dvadsiateho storočia a prvej  štvrtiny dvadsiateho prvého storočia pozdĺž takejto osi, pričom  ju v ostatných 30 rokoch sprevádzala aj pedagogická práca so študentmi Fakulty architektúry STU v Bratislave.  

Schopnosťou pochopiť a svojsky originálne kombinovať rôzne  koncepcie budovania a bývania, rôzne predstavy domova v ich  aktuálnych vzťahoch a konkrétnej situovanosti v kontexte mesta  František Kalesný dokáže formovať priestor, tak privátny, ako aj  verejný, takým spôsobom, aby sa otváral pre spolupatričnosť  vecí, ktoré nie sú len v ňom uložené, alebo umiestnené, ale samy  sú miestami prináležiacimi k ľuďom, k ich činnostiam a vzťahom,  s ich vzájomnosťou, blízkosťou v ich susedskom prebývaní.  V takomto rozprestieraní priestoru sa veci a ľudia zhromažďujú  vo svojej spolunáležitosti, veci a bytosti nie sú iba v priestore  umiestnené, ale veci samy a ľudia sami sú miestami vzájomného opatrovania, prináležitosti a spolupatričnosti. 

Trvalé záložné pracovisko Národnej banky Slovenska , Kremnica, urbanisticko-architektonická štúdia – súťaž, 2023, Autori: F. Kalesný, J. Klemon, M. Nagyová, N. Janovičová.
Trvalé záložné pracovisko Národnej banky Slovenska , Kremnica, urbanisticko-architektonická štúdia – súťaž, 2023, Autori: F. Kalesný, J. Klemon, M. Nagyová, N. Janovičová.

František Kalesný sa práve v takýchto intenciách usiluje svojou  architektúrou v mestskom prostredí otvárať, rozprestierať,  znásobovať a rozsvecovať možnosti ľudských stretnutí, ľudských spojení umocnených žiarivou atmosférou pokoja. V jednom  z jeho posledných projektov, ktorý uvádzam vyššie ako jeden  príklad za všetky, možno pozorovať zbystrené vnímanie situácie,  polohy a sociálneho kontextu, vďaka čomu sa architektovi darí  vychádzať v ústrety špecifickým potrebám komunity, ktorej má  objekt slúžiť a originálnym architektonickým riešením dosiahnuť  spolupôsobenie priepustnosti a inkluzívnosti celku tohto  verejného kultúrno-voľnočasového zariadenia. Jeho priestory  umožňujú prísne, a zároveň flexibilné členenie. Rozmanité  aktivity sú umiestnené do autonómnych objemov rozdelených transparentnými stenami v celkovej fúzii interiéru a exteriéru, čo  prispieva k presvetlenosti miesta. Prázdno, predmety, autonómne  objemy členia priestor a dovoľujú mu voľne dýchať a plynúť,  zatiaľ čo niektoré prvky nadobúdajú takmer plastickú kvalitu. Plynulý dynamizmus plných a prázdnych telies, ktorým architekt  Kalesný poskytuje priestor, teda usporadúva priestor, udržiava  ho a necháva, aby zavládla otvorenosť, v ktorej sa môžu zjavovať  veci potrebné pre ľudské bývanie vo všetkých jeho spôsoboch.  

„Každá generácia musí niesť tak bremeno minulosti, ako aj  zodpovednosť za budúcnosť. 
Prítomnosť sa začína stále viac chápať ako číra spojka medzi  včerajškom a zajtrajškom... 
Každá generácia musí hľadať iné riešenie toho istého problému:  preklenúť priepasť medzi vnútornou a vonkajšou realitou.“ 
(Siegfried Giedion, Mechanization Takes Command, Oxford and New York 1948)

Doc. PhDr. Jozef Pauer, CSc

 

Vložené
14. február 2026
0
278
Hlavný obsahHlavný obsah
Čakajte prosím