IDEA DOOR od spoločnosti JAP prináša do interiéru čistý minimalistický vzhľad vďaka bezrámovému riešeniu a precíznej...
Nástenné nadomietkové armatúry Vitus sú mimoriadne vhodné pre rýchlu a efektívnu...
Okenné profily z kompozitného materiálu RAU-FIPRO X od spoločnosti Rehau sú v porovnaní s tradičnými plastovými profilmi mnohonásobne...
Najnovší sortiment stolov pre zariadenie interiérov...
Spojenie moderného dizajnu, funkčnosti a svetla do harmonického architektonického prvku.
Kancelárska budova Baumit v slovinskom Trzine prešla premenou na moderné a udržateľné pracovisko. Architekti kládli dôraz...
Mottom šiesteho ročníku on-line konferencie odborníkov Xella Dialóg je Efektívny návrh budov 2025+: zmeny a riešenia
Robot WLTR predstavuje moderný prístup k murovaným konštrukciám. Vďaka automatizácii dokáže rýchlo, presne a bezpečne realizovať...
Okrem bezpečnosti majú okná aj elegantný vzhľad, pretože nie sú viditeľné žiadne uzamykacie časti kovania.
Dvere MASTER v skrytej zárubni AKTIVE je možné vyrobiť až do výšky 3 700 mm
Internorm stavia na energetickú efektívnosť a inteligentné tieniace riešenia.
Slovensko vo výbere zastupuje šesť realizácií.
Spoločnosť Internorm odteraz stavia na novej variante tepelnoizolačného skla od AGC, ktorá v produkcii ročne ušetrí 10...
Jubilejný 20. ročník prestížnej medzinárodnej súťaže pre študentov architektúry priniesol...
Otočné a posuvné dvere MASTER od podlahy až po strop, ponúkajú mimoriadnu variabilitu výšky, materiálu a zladenia so skrytými...

Už 180 rokov oceňuje Kráľovský inštitút britských architektov (RIBA) výnimočnú architektúru. Táto profesionálna organizácia, ktorá má viac ako 44 000 členov pôsobiacich v Spojenom kráľovstve a v zahraničí, bola založená v roku 1834 a o štyridsať rokov neskôr v roku 1848 udelila prvú kráľovskú Zlatú medailu za architektúru, známu ako Zlatá medaila RIBA.
Jednou z mnohých činností, ktorým sa RIBA venuje, je aj spolupráca s parlamentom a snaha o zlepšenie kvality výstavby a jej podpora. Preto každý rok udeľuje niekoľko ocenení výnimočným stavbám. Ocenenie konkrétnych diel každoročne vrcholí udelením Stirlingovej ceny, ktorú získavajú členovia RIBA za najvýznamnejší architektonický počin roku.
Cena, ktorá je dnes považovaná za najprestížnejšie ocenenie v rámci Spojeného kráľovstva, je pomenovaná po britskom architektovi Jamesovi Stirlingovi a je udeľovaná od roku 1996.
Zaujímavé bude aj porovnanie v blízkom kontexte. Nedávno sme zverejnili nominácie na CE.ZA.AR - Cenu za architektúru udeľovanú Slovenskou komorou architektov, pred časom zas užší výber poroty Českej ceny za architektúru.
Predstavujeme nominované diela s krátkym komentárom poroty:
Bytový dom Barretts Grove
Architekti: Amin Taha + Groupwork
Barretts Grove je osobitá budova v nesúrodnej mestskej ulici. Poloha v blízkosti základnej školy je vhodným miestom pre dom postavený z "rozprávkových materiálov"- tehál, dreva a slamy. V obytnom dome sa nachádza šesť väčších, dobre presvetlených bytov. Výrazným architektonickým prvkom sú balkóny s prútenou "kožou", ktoré vyčnievajú do ulice a rozširujú životný priestor.
Textúra murovanej fasády je hrubšia ako obvykle, v tomto prípade však zodpovedá výške a proporcii budovy. Tehla ako materiál prechádza aj na strechu, čím zdôrazňuje jednoduchosť formy budovy.
Spoločné priestory domu sú dostatočne dimenzované a presvetlené. Osviežujúca zmena oproti lacným povrchovým úpravám a spletitým chodbám mnohých bytových domov.
Priestor preplávajúcich bytov je premyselne využitý. Možno spomenúť napríklad malú pracovňu umiestnenú do otvoreného priestoru obývacej izby v mezonetovom byte na najvyššom podlaží.
City of Glasgow College - City Campus
Architekti: Reiach And Hall Architects and Michael Laird Architects
Zlúčením Glasgow Central College, metropolitnej a námornej školy vznikla inštitúcia, ktorá sústreďuje vyučovacie kapacity umiestnené predtým v 11 samostatných budovách po celom meste v rámci dvoch nových komplexov. City Campus s rozlohou viac ako 60 000 m2 je druhým z týchto nových blokov. Spája šesť hlavných fakúlt a 300 učební, viacúčelových prednáškových sál a špecializovaných pracovísk.
Komplex už pri prvom pohľade ohromí svojou mierkou. 'Vážne" a formálne striktné architektonické stvárnenie signalizuje že ide o dôležité centrum vzdelávania. Vnútorné priestory sú navrhnuté tak, aby vyhovovali klasickému priebehu vyučovania, aj neformálnemu študentskému životu. Materiálová paleta a výrazové prvky budovy sú zámerne zdržanlivé, architektúra je jasná a racionálna.
Na komplexnom projekte s obrovským rozsahom sa prejavuje značná architektonická zručnosť. Nielen pri riešení prevádzky ale aj z urbanistického hľadiska - začlenení do organizmu mesta a premyslenej kompozícii. Táto architektonická zručnosť začína na úrovni panorámy mesta a prechádza až do komponovania vnútorných priestorov, ktoré podporujú sociálnu interakciu a interdisciplinárnu spoluprácu.
Command of the Oceans - rekonštrukcia budov v areáli Chatham Dockyard
Architekti: Baynes and Mitchell Architects
Tento projekt je príkladom progresívnej pamiatkovej obnovy, invenčného opätovného využitia a adaptácie komplexu dokov. Dôležitosť historickej štruktúry bola jasne prezentovaná, pričom však autori dokázali prispôsobiť prevádzku tak, aby do celého komplexu priniesli nový život.
Rekonštrukcia je dôsledná z hľadiska reverzibility a výberu nových materiálov a je hodnotným prírastkom do historickej lodenice. Rekonštrukcia prebiehala v spolupráci so špecializovanými remeselníkmi, s využitím pôvodných techník spracovania dreva (napríklad tesané hlavné trámy v halách).
Paleta čierneho kovu, modrého vápenca, betónu a dreva bola starostlivo zvolená v reakcii na silný priemyselný jazyk historických budov a krajiny.
Rekonštrukcia sa dočkala uznania poroty aj vďaka svojej náplni. Expozícia odkrýva a pre návštevníka sprístupňuje príbeh lodenice. Významným prvkom expozície sú v tomto prípade aj budovy samotné. Nákladnú obnovu do značnej miery financoval štát z výnosov z národnej lotérie.
Obnova hastingského móla
Architekti: dRMM Architects
Trvalo takmer sedem rokov, kým sa vyhorené mólo premenilo na živý verejný priestor.
Za týmto počinom stojí spolupráca miestnych aktivistov a mesta. Bola to však vízia architekta, ktorá bola počas celého procesu rozhodujúca.
Porota ocenila aj pozadie projektu. Architekti v tomto prípade písali “scenár” a predostreli koncept komunitne riadenej / vlastnenej platformy, ktorá má pokryť celý rad funkcií - od koncertov až po trhy. Tento koncept skutočne v praxi funguje.
Rozhodnutie neumiestniť žiadny objekt na čelo móla, porota vníma ako silný krok. Veľký otvorený priestor podporuje pocit spojenia s morom a nábrežím. Pocit voľného priestoru podporuje minimalistické stvárnenie zábradlí.
Nové návštevnícke centrum nahradzujúce najslabší úsek poškodeného móla je relatívne jednoduchá stavba z CLT panelov, ktorá je obložená rekultivovaným drevom, ktoré bolo zachránené z pôvodného ohňom poškodeného móla. To pomáha vytvárať silný duch miesta. Sedenie na streche objektu sa stalo miestom, kam návštevníci radi zájdu na kávu. Stavba ponúka variabilný priestor pre podujatia, výstavy a vzdelávanie. Rekultivovaný drevený nábytok vznikal ako súčasť miestnej iniciatívy v oblasti zamestnanosti. Projekt pomohol aj pri vzdelávaní novej generácie remeselníkov.
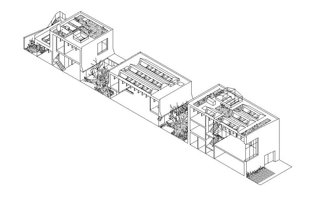
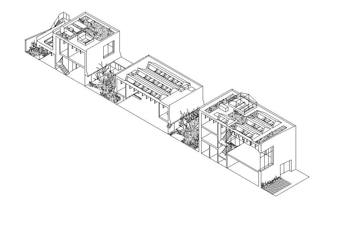
Fotografický ateliér Juergena Tellera
Architekti: 6a Architects
Projekt vtesnaný na veľmi úzku a dlhú parcelu. Budovy vznikli pre potreby nového štúdia, kancelárií a archívu fotografa Juergena Tellera. Jeho požiadavkou bol ľahký, flexibilný a neformálny priestor. S prirodzeným svetlom a spoločenským charakterom.
Objekt zručne využíva typickú situáciu v Londýne. Pozemok v bývalej priemyselnej štvrti Ladbroke Grove je vklinený medzi lacný developerský projekt a historický robotnícky dom.
Do lineárneho priestoru sa denné svetlo dostáva cez tri nádvoria so záhradami. Priestory pod strechou sú zas preklenuté tenkými betónovými trámami, ktoré sú orientované priečne a umožňujú otvoriť stropnú konštrukciu a priniesť do interiéru takmer galerijné osvetlenie.
Architektonické detaily sú skvelé. Od betónu s precízne komponovanými odtlačkami debnenia (v exteriéri zodpovedá raster susednej tehlovej fasáde), až po poctivé mosadzné balustrády. Stolárske detaily klasických drevených okenných rámov oživujú minimálnu paletu materiálov.
Projekt zrelo a sebavedomo prezentuje precíznosť a poriadnosť, no zároveň je uvoľnený a hravý. Vytvára rafinované a flexibilné pracovisko, ktoré už začína pôsobiť ako prostredie, ktoré vyvoláva a ovplyvňuje prácu svojho klienta.
The British Museum World Conservation and Exhibitions Centre
Architekti: Rogers Stirk Harbour + Partners
Budova sa nachádza na severozápadnom nároží sídla Britského Múzea v Bloomsbury. Skladá sa z piatich vertikálne prepojených pavilónov (z ktorých jeden je umiestnený v podzemí). Nový objekt rozširuje jestvujúce priestory o novú výstavnú plochu, laboratóriá, dielne a sklady.
Realizácia bola komplikovaná z hľadiska priestorových výziev a technických požiadaviek na vybavenie budovy. Úspech projektu vyplýva z elegantného a jednoduchého riešenia týchto výziev, pri zachovaní jasného a uceleného prevádzkového diagramu a racionálnej architektúry budovy.
Výstavné priestory sú dimenzované pre rozmerné objekty, ktoré by nebolo možné vystavovať inde v múzeu. Artefakty transportované na úrovni ulice v nákladných autách, sú premiestnené do nižších poschodí plošinovým výťahom.
Systém profilovaných horizontálnych panelov rozptyľuje svetlo vnikajúce do interiéru a zaisťuje ochranu vystavených exponátov. Mäkké osvetlenie v dielňach umožňuje čistenie drahých artefaktov s prístupom k prirodzenému svetlu.
Porota ocenila spôsob, akým architekti začlenili novú budovu do areálu. Zaujalo aj umiestnenie nových kancelárií pod zem. Administratívna časť je zoskupená okolo atraktívneho centrálneho priestoru s vrchným osvetlením.