Novotvar v prostredí alpskej obce.
Hansgrohe - prémiová značka kúpeľňových riešení, ponúka nadčasový dizajn, technickú precíznosť a udržateľné inovácie...
Využite špeciálnu akciu Internorm: okná za minuloročné ceny a hliníkový kryt úplne zadarmo. Ponuka je časovo obmedzená!
Na podujatí sa predstaví až 37 vystavovateľov - popredných dodávateľov stavebných materiálov a inovácií s prezentáciou...
Sumarizácia najdôležitejších inovácií, ktoré redefinujúcich využitie tohto energetického zdroja.
AMPHIBIA 3000 GRIP 1.3 od spoločnosti ATRO predstavuje modernú hydroizolačnú technológiu, ktorá spája vysokú odolnosť,...
Ambiciózne plány EK narazili na ekonomické možnosti domácností v jednotlivých členských štátoch –...
IDEA DOOR od spoločnosti JAP prináša do interiéru čistý minimalistický vzhľad vďaka bezrámovému riešeniu a precíznej...
Kontinuita riešenia od vonkajšieho obkladu až po kovania a kľučky.
Nástenné nadomietkové armatúry Vitus sú mimoriadne vhodné pre rýchlu a efektívnu...
Okenné profily z kompozitného materiálu RAU-FIPRO X od spoločnosti Rehau sú v porovnaní s tradičnými plastovými profilmi mnohonásobne...
Najnovší sortiment stolov pre zariadenie interiérov...
Spojenie moderného dizajnu, funkčnosti a svetla do harmonického architektonického prvku.
Kancelárska budova Baumit v slovinskom Trzine prešla premenou na moderné a udržateľné pracovisko. Architekti kládli dôraz...
Mottom šiesteho ročníku on-line konferencie odborníkov Xella Dialóg je Efektívny návrh budov 2025+: zmeny a riešenia

Rýchly rast infraštruktúry a ubytovacích kapacít v našich najväčších strediskách je realitou posledných rokov. Investori sa snažia z lokality vyťažiť čo najviac, výsledkom sú často neadekvátne zásahy do krajiny. Kvalitná architektúra je naozaj zriedkavým úkazom. Rovnaká situácia vládne aj u našich západných susedov. Predstavená realizácia v Peci pod Snežkou mohla dopadnúť obdobne. Nasvedčovala tomu najmä požadovaná ubytovacia kapacita, ktorá hraničí s mierou únosnou pre lokalitu.
V tomto prípade však boli kľúčové dve skutočnosti. Apartmánové domy nahradili pomerne veľkú obchodnú prevádzku, pričom ich podoba vzišla z vyzvanej architektonickej súťaže. Dvojkolovú súťaž vyhlásil investor v spolupráci s Adamom Gebrianom už v roku 2012. Oslovených bolo celkom 9 ateliérov: A1 Architects, o-v architekti, Petr Hájek architekti, Projektil architekti, Fránek Architects, DaM, Kamil Mrva Architects, Sporadical a Mjölk architekti.
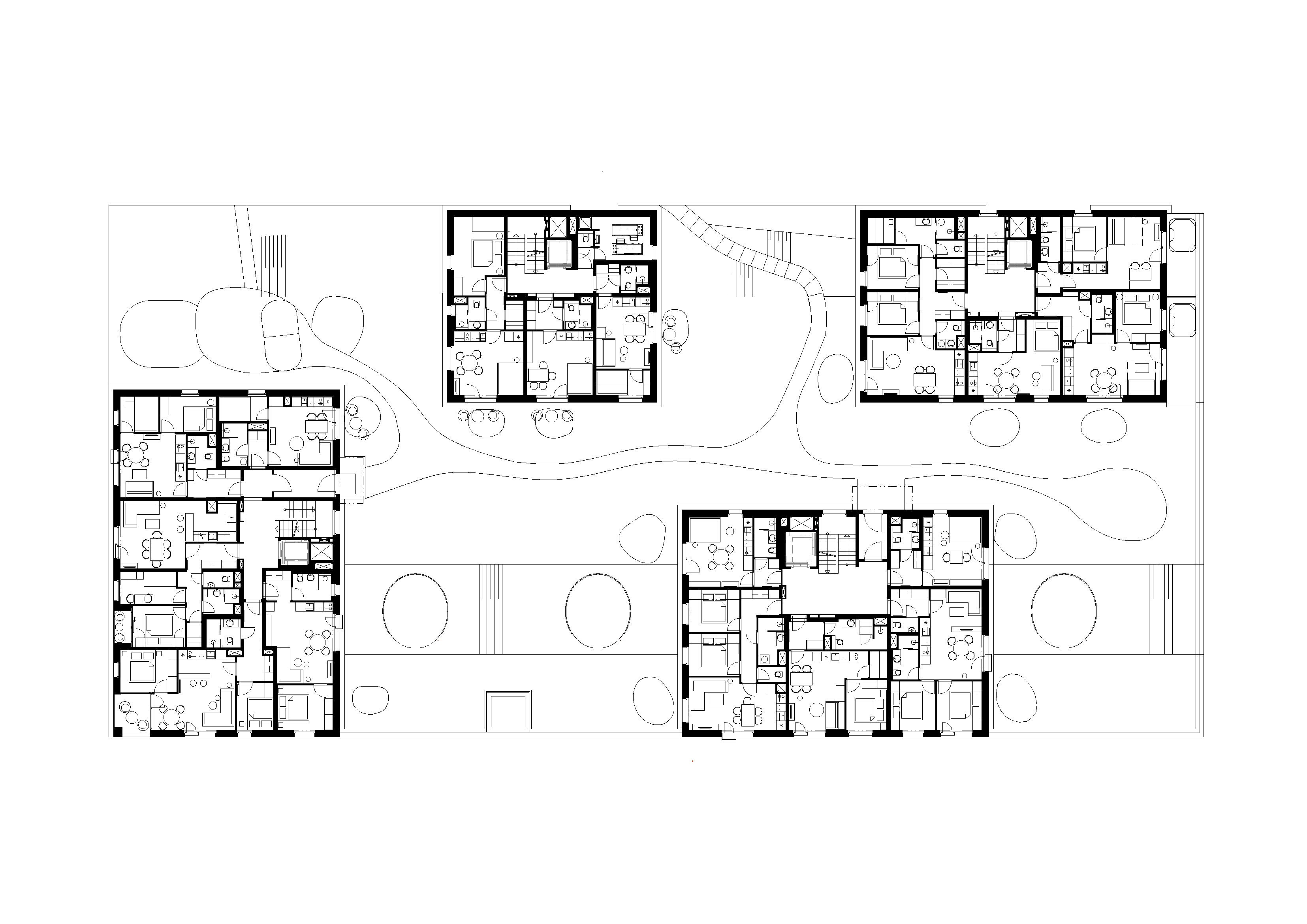
Porota, ktorej predsedal Josef Pleskot vybrala ako víťazný návrh architektov Jiřího Opočenského a Štěpána Valoucha. Architekti adresne pracovali s terénom a osadením solitérnych objektov. Štvorica apartmánových domov, "vyrastajúcich" zo zatrávnenej polyfunkčnej podnože vsádza na podobné princípy ako projekt ateliéru Šercel Švec, ktorý by mal vyrásť neďaleko zjazdoviek na Kubínskej holi. Výsledný koncept aj napriek mohutnému objemu vytvára nové priehľadové osi, ktoré uzatváral pôvodný líniový objekt. Riešenie ateliéru ov-a vynikne v kontexte ostatných súťažných návrhov:
Kontext:
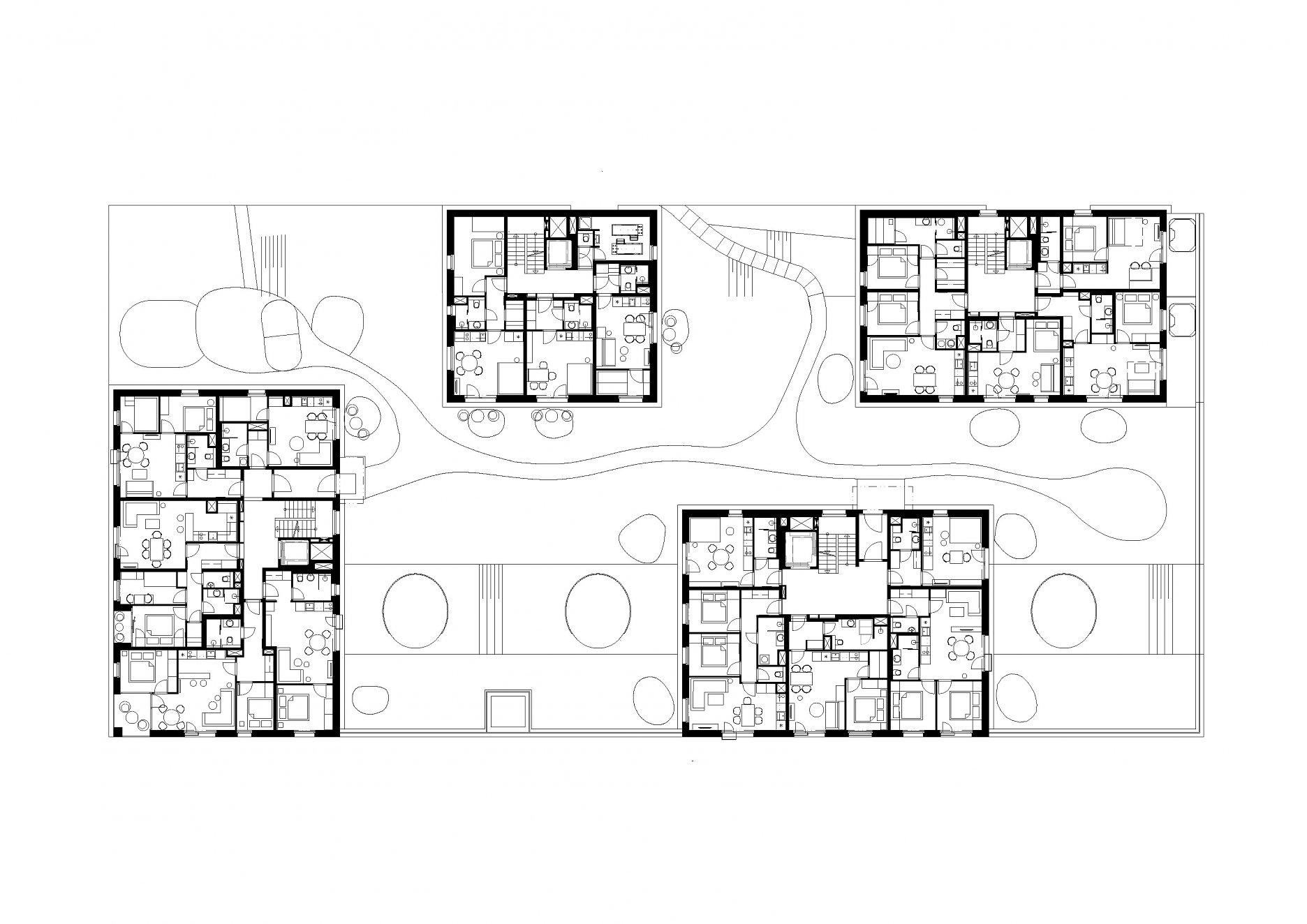
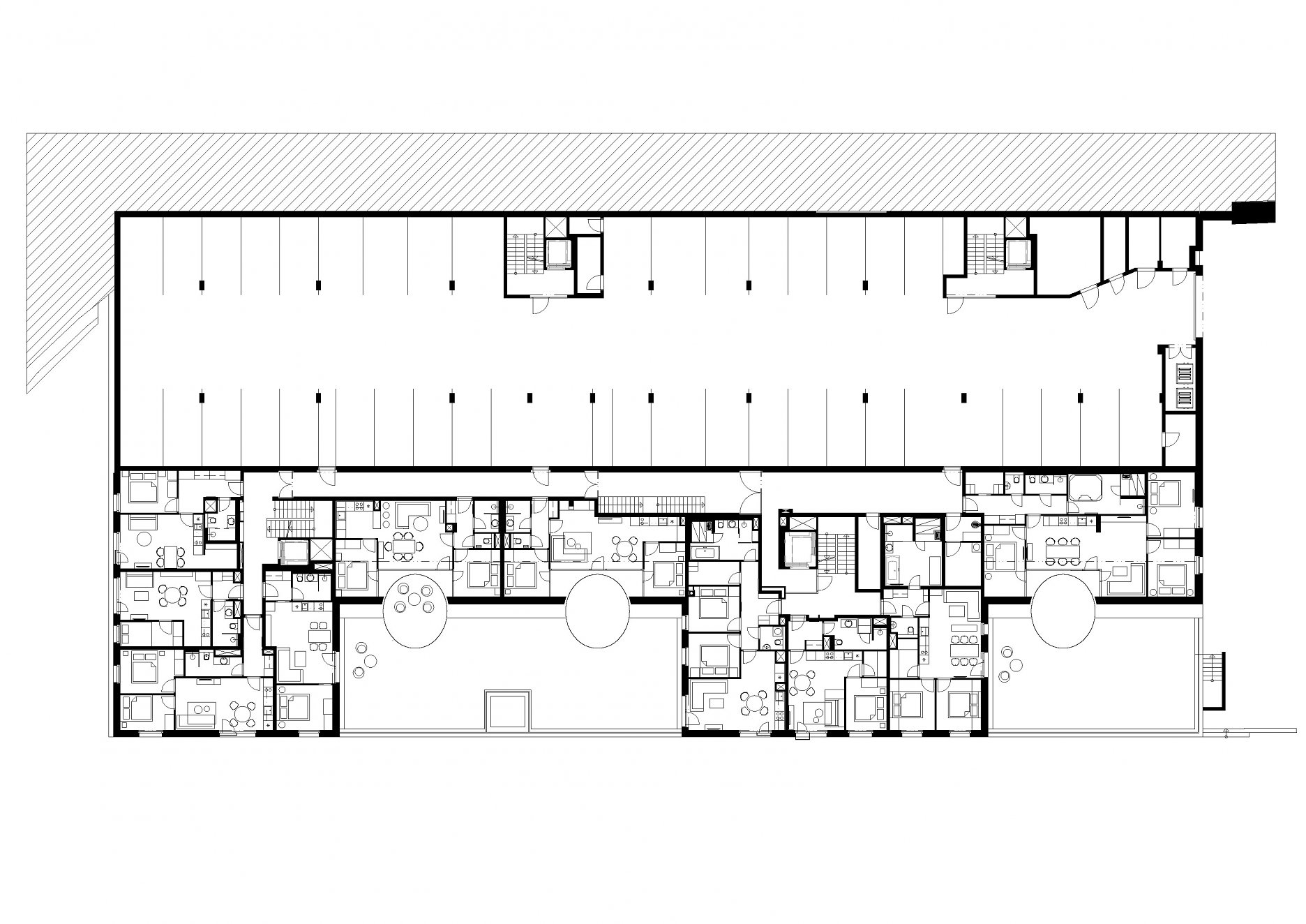
Zástavba horského mestečka a lyžiarskeho strediska, sa z údolia postupne rozširovala na okolité stráne. Časom pribudli väčšie turistické ubytovne a hotely. Rozvoj infraštruktúry zahŕňal aj výstavbu predajne Snežka, ktorá bola dokončená v 80. rokoch minulého storočia v centrálnej zóne Pece. Lineárna figúra budovy pôsobila v exponovanej polohe ako výrazná pohľadová bariéra. Okolo budovy zostal nevyužitý a neudržiavaný priestor, ktorý nepatril k domu ani k ulici. Zadaním investora bolo na mieste pôvodných budov a na priľahlých parcelách postaviť 90 apartmánov.
"Charakter místa tvoří solitérní domy situované podél hlavní ulice. Atmosféru vystihuje cesta stoupající údolím podél potoků a průhledy mezi domy do zadních plánů obce s boudami rozesetými po loukách. Návrh se čtyřmi bytovými domy na tyto kvality se snaží navázat," vysvetľujú architekti. Prvým krokom, vedúcim k realizácii nového konceptu, bola asanácia objektu predajne - spomínanej pohľadovej bariéry. Na jeho mieste vyrástol nižší obchodný parter so zelenou strechou, ktorý slúži ako podnož pre štvoricu apartmánových domov. Strešná terasa zároveň funguje ako polosúkromná rekreačná a športová zóna. Architekti adresne pracovali s terénom a osadením solitérnych objektov. Napriek kapacitám, ktoré sú na hranici únosnosti lokality, vzniká medzi jednotlivými blokmi priestor a voľné priehľadové osi."Domy jsou různě veliké a různě orientované. Vznikají mezi nimi napínavé prostorové vztahy posílené stoupajícím terénem," dopĺňajú autori.
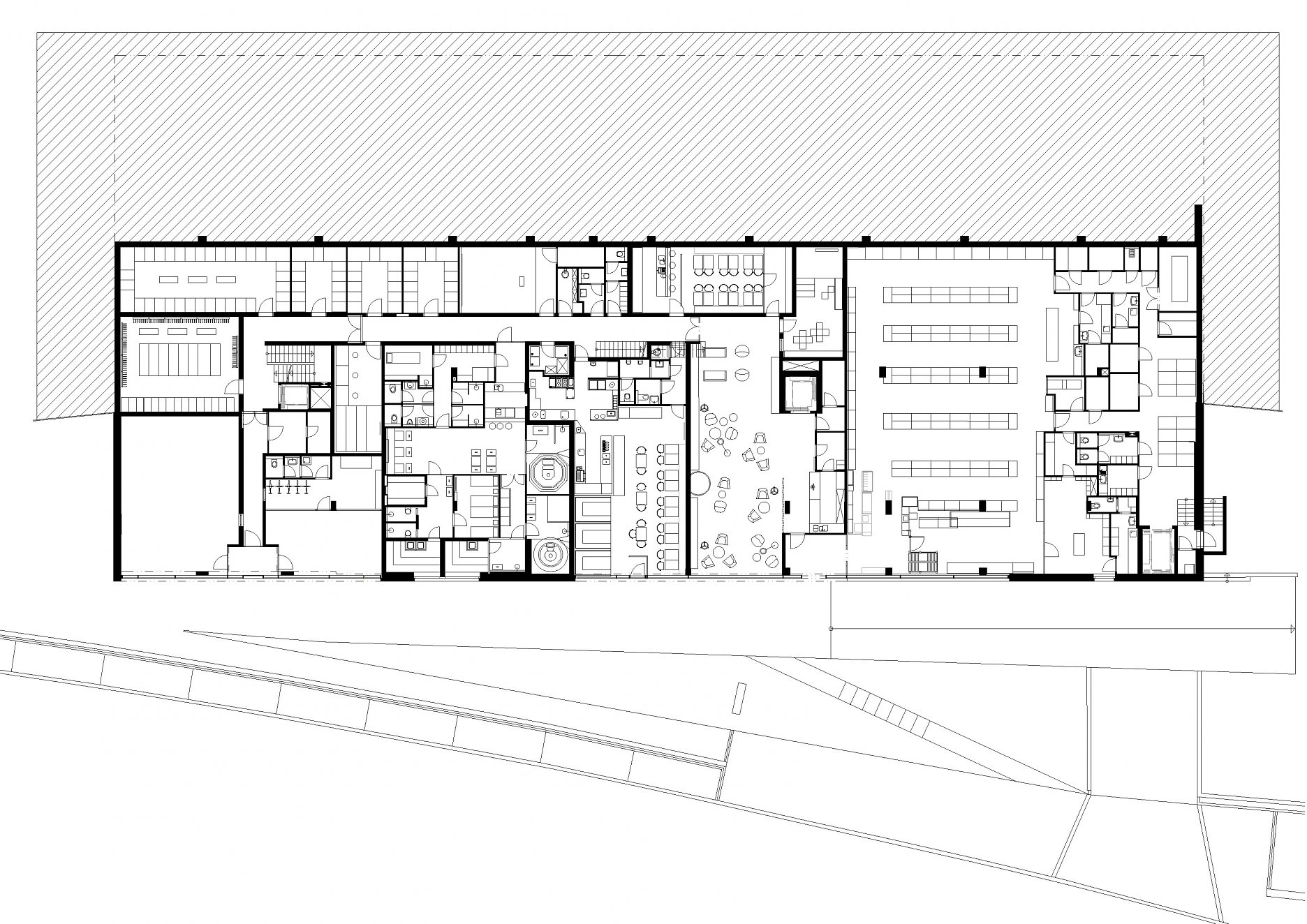
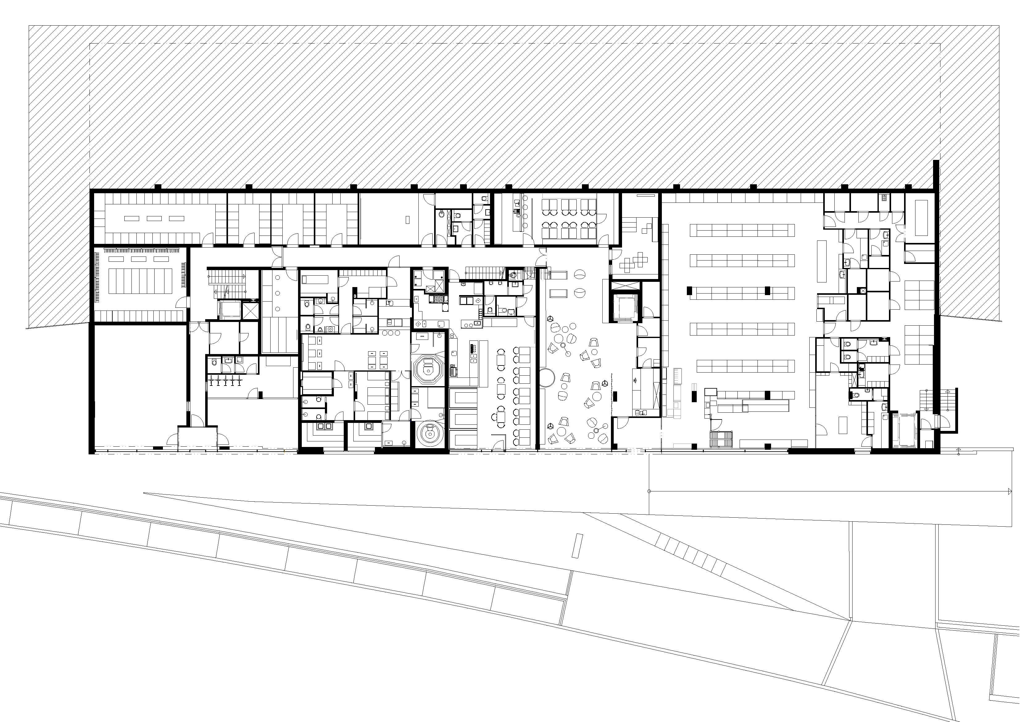
Prevádzka a dispozícia:
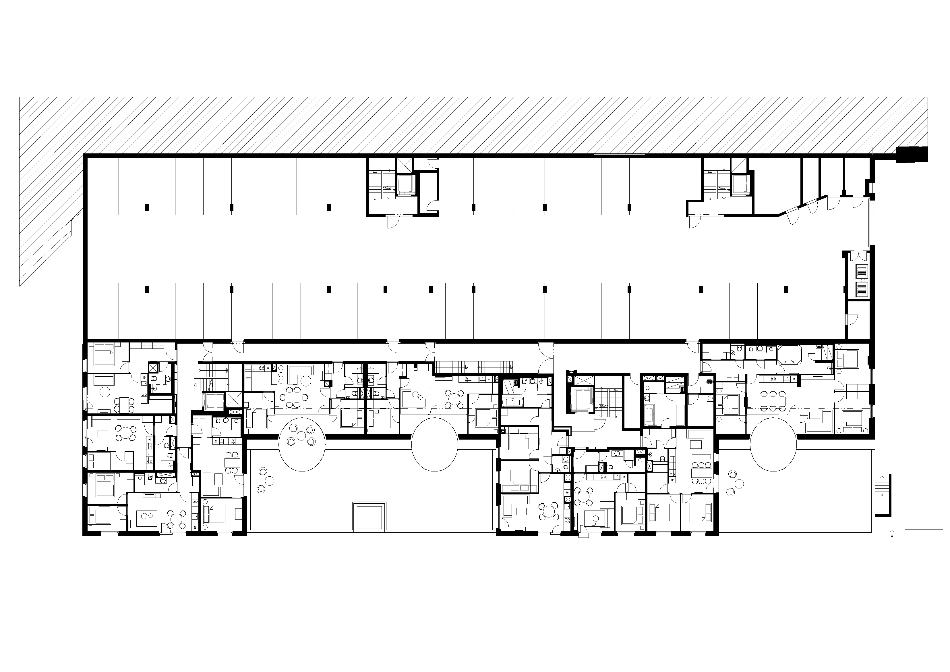
Podzemné garáže sú situované na dvoch výškových úrovniach. Spoločný parter je prístupný "suchou nohou" zo všetkých bytových jednotiek. Vstup do aparthotela vedie cez recepciu s lobby. V zime má každý vlastník apartmánu prístup k svojmu skiboxu v priestoroch lyžiarní.
V spoločnom parteri je sústredené zázemie. Spoločenské miestnosti a herne dopĺňa lobby s krbom a reštauráciu. Súčasťou vybavenia je vináreň, kde majú vlastníci súkromné vínne boxy. Obchodné plochy zahŕňajú supermarket so zázemím, lekáreň, alebo obchod a servis športového vybavenia.
Kompaktná dispozícia apartmánových domov sa zaobišla bez dlhých chodieb, čo spolu so spomínaným zázemím prispieva k budovaniu susedských vzťahov na poschodí a v dome.
Konštrukčné a materiálové riešenie:
Budova je založená na pilótach, v dvoch výškových úrovniach. Železobetónovú nosnú konštrukciu, na vyšších podlažiach dopĺňajú murované steny, kombinované s monolitickými stropmi. Šikmé strechy sú opäť železobetónové. Nosné obvodové steny sú zateplené minerálnou vlnou. Pohľadovú vrstvu zo strany exteriéru tvorí obklad z červeného cédra.
Parter budovy je obložený prírodným štiepaným kameňom. Intenzívna zelená strecha systému Optigrün je na šikmých plochách osadená zadržiavacími rebrami. Strechy apartmánových domov sú kryté extenzívnou zelenou strechou s rozchodníkovými rohožami.
Služby a Interiér:
Aparthotel slúži vlastníkom, no zároveň ich bytové jednotky ponúka na prenájom v termínoch, kedy nie sú využívané. Systém prenájmu má zaistenú recepčnú službu aj upratovanie.
Interiéry bytov boli navrhnuté v štyroch variantoch, z ktorých si mohli vlastníci voliť. Autorský interiér bol podmienkou zapojenia vlastníkov do systému prenájmov. Každý štýl zastupuje jeho grafický symbol, ktorý sa objavuje v interiéri.
Podklady: linka.news, ov-a (Opočenský Valouch architekti)
Foto: BoysPlayNice