Advertorial

Hotel Hirschen Spa House, Rakúsko

Novotvar v prostredí alpskej obce.

Vytvorte si kúpeľňu snov: dizajnové riešenie od značky hansgrohe

Hansgrohe - prémiová značka kúpeľňových riešení, ponúka nadčasový dizajn, technickú precíznosť a udržateľné inovácie...

Okná Internorm za minuloročné ceny + hliníkový kryt zdarma!

Využite špeciálnu akciu Internorm: okná za minuloročné ceny a hliníkový kryt úplne zadarmo. Ponuka je časovo obmedzená!

Pozvánka na 2. ročník stavebného veľtrhu BigMarket na Slovensku

Na podujatí sa predstaví až 37 vystavovateľov - popredných dodávateľov stavebných materiálov a inovácií s prezentáciou...

Moderné plynové technológie: Efektivita a inovácie pre 21. storočie

Sumarizácia najdôležitejších inovácií, ktoré redefinujúcich využitie tohto energetického zdroja.

Utesňovanie spodných stavieb pomocou hydro-aktívnej fólie AMPHIBIA.

AMPHIBIA 3000 GRIP 1.3 od spoločnosti ATRO predstavuje modernú hydroizolačnú technológiu, ktorá spája vysokú odolnosť,...

Dekarbonizácia individuálneho vykurovania domácností – Green Deal evolučne a nie revolučne

Ambiciózne plány EK narazili na ekonomické možnosti domácností v jednotlivých členských štátoch –...

Minimalistické dvere IDEA – technická precíznosť a čistota prevedenia

IDEA DOOR od spoločnosti JAP prináša do interiéru čistý minimalistický vzhľad vďaka bezrámovému riešeniu a precíznej...

Dom s výhľadom na údolie, Dlouhý Most (ČR)

Kontinuita riešenia od vonkajšieho obkladu až po kovania a kľučky.

Schell Vitus – osvedčené riešenie pre sprchy a umývadlá vo verejnom sektore s viac ako desaťročnou tradíciou

Nástenné nadomietkové armatúry Vitus sú mimoriadne vhodné pre rýchlu a efektívnu...

Kompozitné okná predstavujú súčasnosť a budúcnosť

Okenné profily z kompozitného materiálu RAU-FIPRO X od spoločnosti Rehau sú v porovnaní s tradičnými plastovými profilmi mnohonásobne...

Myotis - stoly 2025

Najnovší sortiment stolov pre zariadenie interiérov...

Priemyselné sklenené priečky Dorsis Digero: svetelné rozhranie pre moderné interiéry

Spojenie moderného dizajnu, funkčnosti a svetla do harmonického architektonického prvku.

Význam prirodzeného svetla pre moderné a flexibilné pracovné prostredie

Kancelárska budova Baumit v slovinskom Trzine prešla premenou na moderné a udržateľné pracovisko. Architekti kládli dôraz...

Konferencia Xella Dialóg predstaví novinky a trendy v stavebníctve

Mottom šiesteho ročníku on-line konferencie odborníkov Xella Dialóg je Efektívny návrh budov 2025+: zmeny a riešenia

Polyfunkčný objekt WellPark, Žilina

Mestský blok v zeleni.
Diela
Red 406.03.2020
45510+34
Polyfunkčný objekt WellPark, Žilina
Autori: Ing. arch. Roman Klenovič, Ing. arch. Andrea KlenovičováInvestor: WellPark, s.r.o.Zastavaná plocha: 1303 m2Podlažná plocha: 3800 m2Návrh: 2016 - 2017Realizácia: 2017 - 2019Adresa: Jána Reka , Žilina, SlovenskoPublikované: 6. marec 2020

Nový polyfunkčný objekt v širšom centre Žiliny. Prevládajúcu funkciu bývania dopĺňajú administratívne a obchodné priestory. Zvolený mix funkcií sa ukázal ako vhodná voľba pre danú lokalitu - všetky byty a nájomné celky (s výnimkou zasadačky na prízemí) našli svojich užívateľov. Nemalou mierou k tomu prispeli architekti z "domáceho" ateliéru A.R.K., ktorí sa museli pri návrhu popasovať so zložitými vstupnými podmienkami. Medzi ne patrí poloha neďaleko mestskej pamiatkovej rezervácie a hlavne priamy dotyk s mestským parkom na Studničkách. 

Kompaktný blok s vnútorným átriom akcentuje konštrukčne a materiálovo odlíšená nadstavba. Architektonické riešenie je výsledkom dlhého procesu hľadania vhodnej formy. Realizácia vynikne najmä v kontexte predchádzajúcich investičných zámerov, ktoré počítali s výstavbou jedenásťposchodovovej kancelárskej budovy, alebo dokonca dvadsaťpodlažného vežiaku, na ktorý bolo ešte pred krízou vydané platné územné rozhodnutie.

 

Architektúra

Polyfunkčný objekt obsahuje bývanie, administratívne priestory a obchodný parter v úrovni blízkeho parku. Parkovacie kapacity sú sústredené do podzemného podlažia a na úroveň prízemia. Dve najvyššie podlažia sedemposchodovej stavby v pôdoryse výrazne ustupujú. Zvolené priestorové riešenie umožňuje majiteľom nadštandardných bytov využívať rozľahlé strešné terasy.

Foto: Mgr. art. Soňa Sadloňová (fotografka / výtvarníčka / dizajnérka)

Hlavná časť budovy (bývanie medzi 2.NP až 5.NP) je zo strany exteriéru opláštená kombináciou hladkej monochromatickej omietky a presklených otvorov. Konzoly balkónov a zapustené loggie zvýrazňuje antracitové oplechovanie. Všetky stavebné otvory sú bezparapetové. Potiahnutie presklenia až po podlahu umožnila inštalácia podlahového kúrenia.

Foto: Mgr. art. Soňa Sadloňová (fotografka / výtvarníčka / dizajnérka)

Nadstavba pozdĺžnej hmoty v úrovni 6.NP a 7.NP je prirodzeným architektonickým a materiálovým akcentom. Fasáda kombinuje veľkoplošný keramický obklad a presklené plochy s priznanou oceľovou nosnou konštrukciou, predsadenou pred obvodový plášť. Priehradový rám zvýrazňuje tektoniku nadstavby. Princíp uloženia nosnej konštrukcie je voči konvenčnému riešeniu obrátený - konštrukcia je "vytiahnutá" do exteriéru, pred obvodový plášť a pohľadovo priznaná. Časť plochých striech s intenzívnou a extenzívnou zeleňou je na úrovni najvyššieho podlažia využitá ako terasy. Severovýchodný roh hlavného traktu klesá o jedno podlažie, čo je zrejmé z línie šikmých atík.

Foto: Mgr. art. Soňa Sadloňová (fotografka / výtvarníčka / dizajnérka)

Úroveň prízemia (1.NP) je vstupným podlažím do väčšiny priestorov. Je hmotovou a prevádzkovou pomlčkou medzi spodnou časťou stavby a bývaním. Okrem vstupného predpolia sú tu situované administratívne priestory. Plocha prízemia s celopresklenou fasádou je výrazne menšia.

Foto: Mgr. art. Soňa Sadloňová (fotografka / výtvarníčka / dizajnérka)

Suterén okrem parkovania zaberajú obchodné priestory, prístupné z úrovne parku. Metalická fasáda je kombinovaná s rozmernými poliami zasklenia.

Foto: Mgr. art. Soňa Sadloňová (fotografka / výtvarníčka / dizajnérka)
Foto: Mgr. art. Soňa Sadloňová (fotografka / výtvarníčka / dizajnérka)
Foto: Mgr. art. Soňa Sadloňová (fotografka / výtvarníčka / dizajnérka)
Foto: Mgr. art. Soňa Sadloňová (fotografka / výtvarníčka / dizajnérka)
Foto: Mgr. art. Soňa Sadloňová (fotografka / výtvarníčka / dizajnérka)
Foto: Mgr. art. Soňa Sadloňová (fotografka / výtvarníčka / dizajnérka)
Situácia
SituáciaAutor: A.R.K. ateliér

 

Dispozícia a prevádzka

Architektonický a priestorový koncept je jasne čitateľný. Na spodnom plate (1.PP) je cez "pomlčku" uskočeného a preskleného prízemia položený kompaktný blok bytovej časti s centrálnym átriom, prebiehajúcim cez všetky podlažia (od úrovne 2.N.P.). Do zeleného átria sú orientované presklené plochy spoločných chodbových priestorov, schodiska a časti niektorých bytov. Átrium, so severným priehľadom na centrum,  je v úrovni druhého nadzemného podlažia otvorené do ulice.

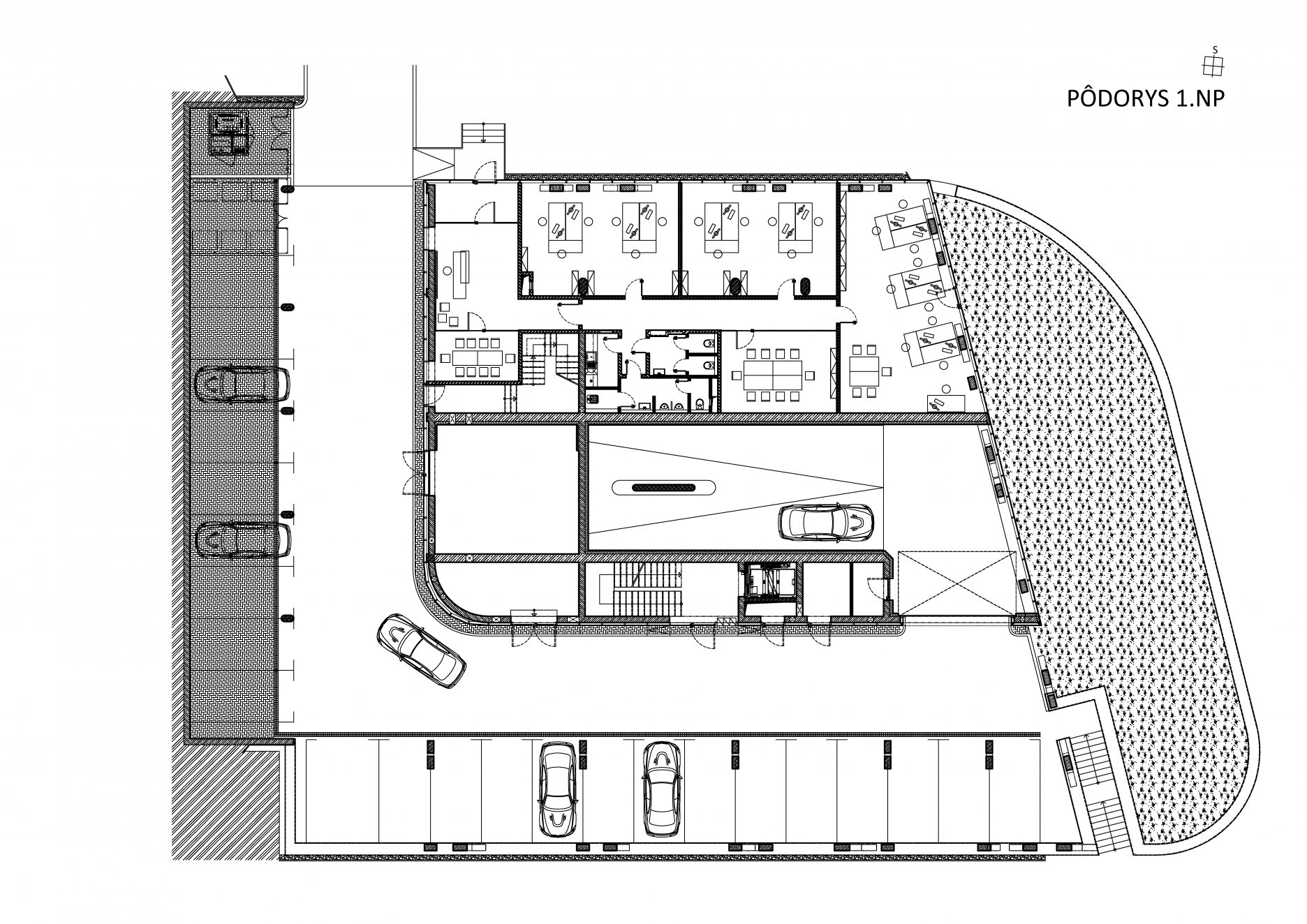
Pôdorys 1. N.P.
Pôdorys 1. N.P.Autor: A.R.K. ateliér
Pôdorys 3. N.P.
Pôdorys 3. N.P.Autor: A.R.K. ateliér
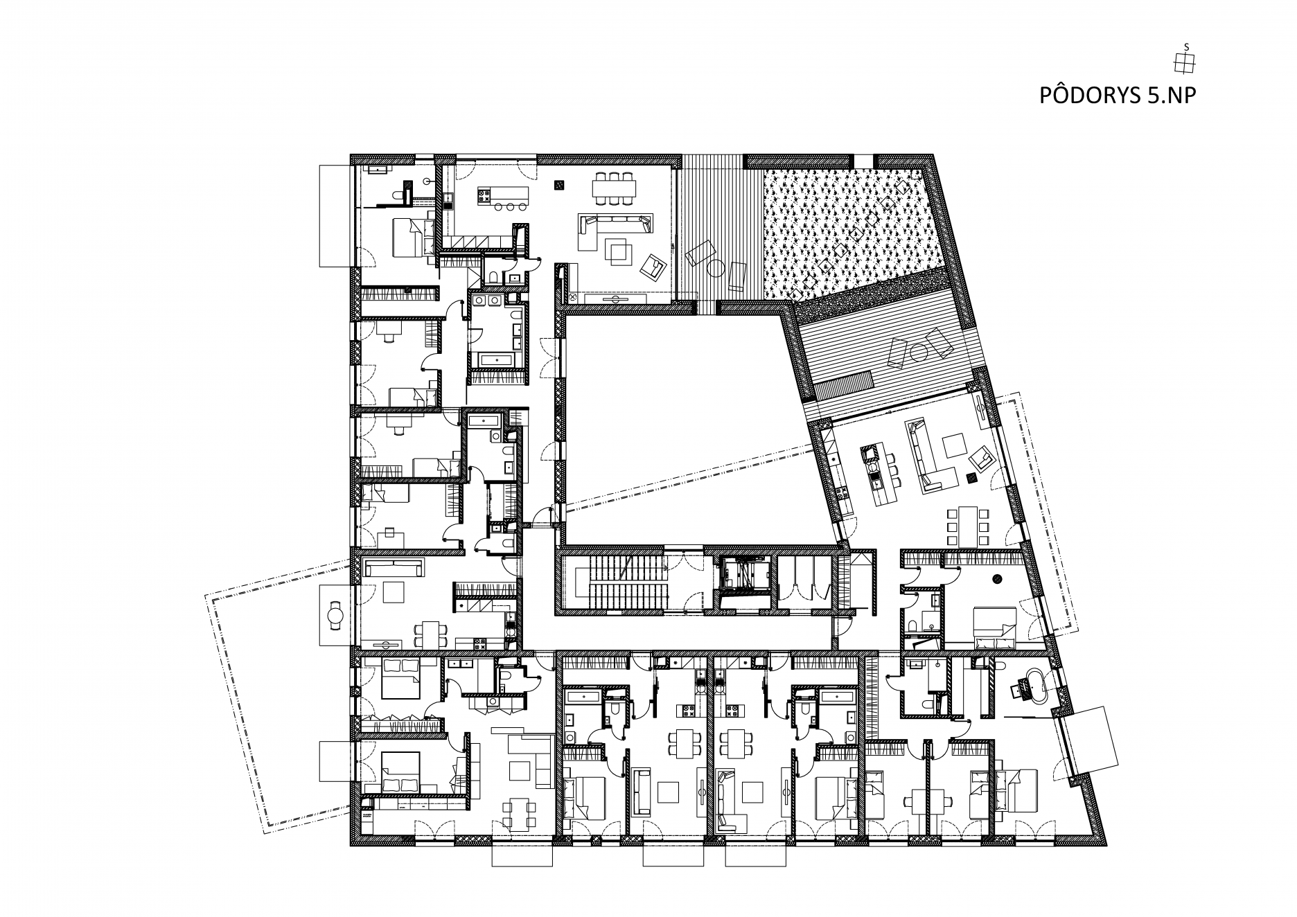
Pôdorys 5. N.P.
Pôdorys 5. N.P.Autor: A.R.K. ateliér

Na streche kompaktnej hmoty je v južnej časti, s miernym natočením, "položený" výrazný hmotový akcent - hranol "obalený" v nosnej oceľovej konštrukcii. Vo vykonzolovanom trakte sú situované tri nadštandardné byty, dva z nich sú mezonetové.

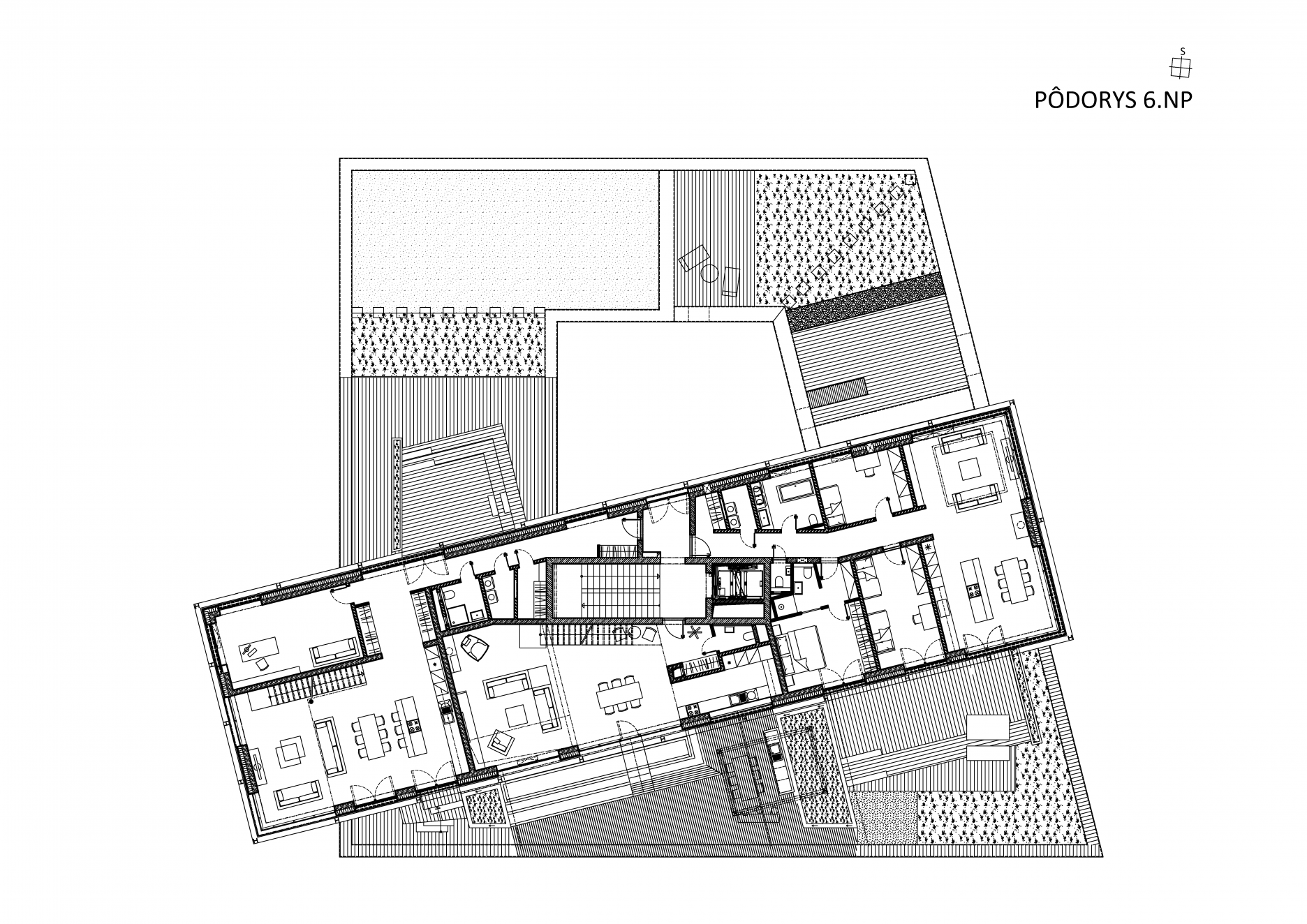
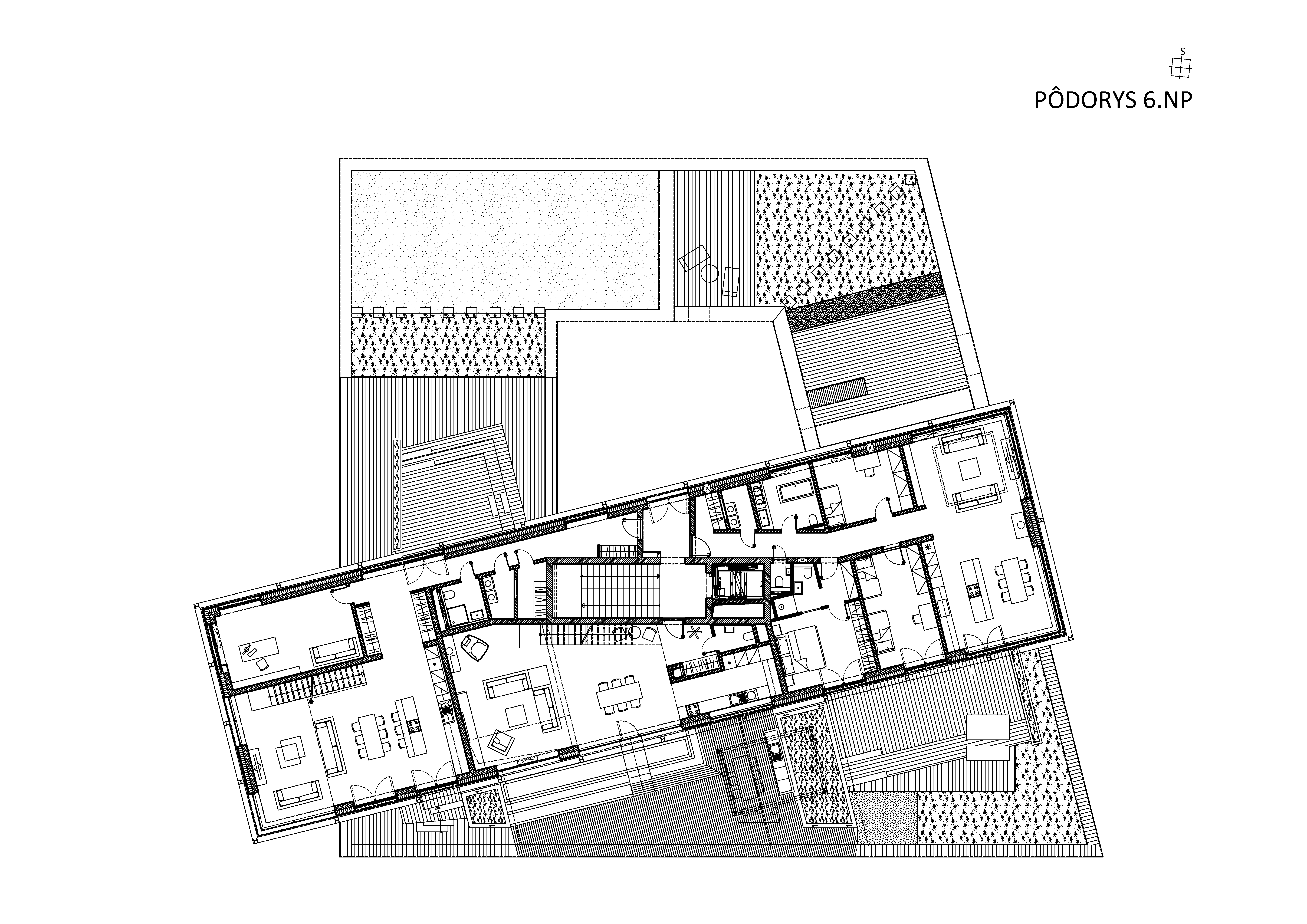
Pôdorys 6. N.P.
Pôdorys 6. N.P.Autor: A.R.K. ateliér
Pohľad
PohľadAutor: A.R.K. ateliér
Pohľad
PohľadAutor: A.R.K. ateliér
Pohľad
PohľadAutor: A.R.K. ateliér
Pohľad
PohľadAutor: A.R.K. ateliér

 

Konštrukcia a TZB

Projektový tím zvolil kombináciu plošného a hlbinného zakladania. Kvôli eliminácii sadania stavby dosku dopĺňa sústava vŕtaných pilót. Nosný systém vrchnej stavby objektu je tvorený prútovo-doskovo-stenovou konštrukciou. Zvislé nosné prvky objektu zahŕňajú železobetónové stĺpy rôzneho prierezu, monolitické steny, aj výplňové murivo. Konštrukcie sú prestropené monolitickými bezprievlakovými doskami. Svetlá výška bytov dosahuje 2,8m. Za spomenutie stoja bezparapetové hliníkové okná, s izolačným trojsklom, steny z pohľadového betónu, podlahové kúrenie...

Objekt je napojený na centrálny zdroj tepla - mestskú tepláreň, odkiaľ je teplo cez výmenníkovú stanicu distribuované do bytov a kancelárií a nájomných jednotiek. Súčasťou obálky stavby, zateplenej zväčša 24 centimetrami minerálnej vlny, sú izolačné trojsklá v hliníkových rámoch. Byty v strešnej nadstavbe využívajú nútené vetranie s rekuperáciou.

Pozdĺžny rez
Pozdĺžny rezAutor: A.R.K. ateliér
Priečny rez
Priečny rezAutor: A.R.K. ateliér
Foto: Mgr. art. Soňa Sadloňová (fotografka / výtvarníčka / dizajnérka)
Foto: Mgr. art. Soňa Sadloňová (fotografka / výtvarníčka / dizajnérka)
Foto: Mgr. art. Soňa Sadloňová (fotografka / výtvarníčka / dizajnérka)
Foto: Mgr. art. Soňa Sadloňová (fotografka / výtvarníčka / dizajnérka)
Foto: Mgr. art. Soňa Sadloňová (fotografka / výtvarníčka / dizajnérka)
Foto: Mgr. art. Soňa Sadloňová (fotografka / výtvarníčka / dizajnérka)
Foto: Mgr. art. Soňa Sadloňová (fotografka / výtvarníčka / dizajnérka)

Podklady: A.R.K. ateliér
Foto: Mgr. art. Soňa Sadloňová (fotografka / výtvarníčka / dizajnérka)

Poloha diela

Ing. arch. Roman Klenovič
Ing. arch. Andrea Klenovičová
Vložené
24. február 2020
0
4551
Hlavný obsahHlavný obsah
Čakajte prosím