Advertorial

Pozvánka na 2. ročník stavebného veľtrhu BigMarket na Slovensku

Na podujatí sa predstaví až 37 vystavovateľov - popredných dodávateľov stavebných materiálov a inovácií s prezentáciou...

Hotel Hirschen Spa House, Rakúsko

Novotvar v prostredí alpskej obce.

Vytvorte si kúpeľňu snov: dizajnové riešenie od značky hansgrohe

Hansgrohe - prémiová značka kúpeľňových riešení, ponúka nadčasový dizajn, technickú precíznosť a udržateľné inovácie...

Okná Internorm za minuloročné ceny + hliníkový kryt zdarma!

Využite špeciálnu akciu Internorm: okná za minuloročné ceny a hliníkový kryt úplne zadarmo. Ponuka je časovo obmedzená!

Moderné plynové technológie: Efektivita a inovácie pre 21. storočie

Sumarizácia najdôležitejších inovácií, ktoré redefinujúcich využitie tohto energetického zdroja.

Utesňovanie spodných stavieb pomocou hydro-aktívnej fólie AMPHIBIA.

AMPHIBIA 3000 GRIP 1.3 od spoločnosti ATRO predstavuje modernú hydroizolačnú technológiu, ktorá spája vysokú odolnosť,...

Dekarbonizácia individuálneho vykurovania domácností – Green Deal evolučne a nie revolučne

Ambiciózne plány EK narazili na ekonomické možnosti domácností v jednotlivých členských štátoch –...

Minimalistické dvere IDEA – technická precíznosť a čistota prevedenia

IDEA DOOR od spoločnosti JAP prináša do interiéru čistý minimalistický vzhľad vďaka bezrámovému riešeniu a precíznej...

Dom s výhľadom na údolie, Dlouhý Most (ČR)

Kontinuita riešenia od vonkajšieho obkladu až po kovania a kľučky.

Schell Vitus – osvedčené riešenie pre sprchy a umývadlá vo verejnom sektore s viac ako desaťročnou tradíciou

Nástenné nadomietkové armatúry Vitus sú mimoriadne vhodné pre rýchlu a efektívnu...

Kompozitné okná predstavujú súčasnosť a budúcnosť

Okenné profily z kompozitného materiálu RAU-FIPRO X od spoločnosti Rehau sú v porovnaní s tradičnými plastovými profilmi mnohonásobne...

Myotis - stoly 2025

Najnovší sortiment stolov pre zariadenie interiérov...

Priemyselné sklenené priečky Dorsis Digero: svetelné rozhranie pre moderné interiéry

Spojenie moderného dizajnu, funkčnosti a svetla do harmonického architektonického prvku.

Význam prirodzeného svetla pre moderné a flexibilné pracovné prostredie

Kancelárska budova Baumit v slovinskom Trzine prešla premenou na moderné a udržateľné pracovisko. Architekti kládli dôraz...

Konferencia Xella Dialóg predstaví novinky a trendy v stavebníctve

Mottom šiesteho ročníku on-line konferencie odborníkov Xella Dialóg je Efektívny návrh budov 2025+: zmeny a riešenia

Viladom Komenského, Banská Bystrica

Bytový dom s výhľadom na centrum mesta.
Diela
Red 408.02.2020
34980+90
Viladom Komenského, Banská Bystrica
Autori: Ing. Martin BielikInvestor: GW Development s.r.o.Plocha pozemku: 2 096 m2 Zastavaná plocha: 580,09 m2Podlažná plocha: 2 159 m2Návrh: 2015 - 2015Realizácia: 2015 - 2017Adresa: Komenského , Banská Bystrica, SlovenskoPublikované: 8. február 2020

Bytový dom na Jesenskom Vŕšku. Výhodou pozemku je vyvýšená poloha v rámci širšieho centra mesta. Okná bytov sú orientované nielen k výhľadom na panorámu sídla, ale aj na západný, zelený horizont. Projekt bytového domu od štúdie až po autorský dozor zastrešil ateliér BMX studio. Päťpodlažný dom, ktorý bol dokončený o niečo skôr ako Viladom Janka Kráľa nesie viaceré podobné znaky - monochromatické fasády, okná so zníženými parapetmi, bezrámové sklenené zábradlia... Dom na Jesenskom vŕšku však na rozdiel od svojho "súrodenca" nedefinovali  zložité vstupné podmienky, čomu zodpovedá aj výsledná jednoduchá forma. Nad základný "biely kváder" vystupuje materiálovo a tvarovo odlíšené vrchné podlažie.

Foto: Tomáš Manina

Štyri nadzemné podlažia dopĺňa najvyššie, ustúpené poschodie a parkovisko v suteréne. Dvojicu priestorov v parteri využíva kaviareň a ambulancia, na vyšších podlažiach sa nachádza 41 bytových jednotiek. Pestrá skladba bytov zahŕňa štandardné jednoizbáky, ale tiež komfortné štvorizbové byty na najvyššom podlaží. V podzemnom podlaží je priestor pre 14 parkovacích státí, na ktoré nadväzujú pivničné kobky. Ostatné parkovacie miesta lemujú prístupovú komunikáciu ku garáži.

Foto: Tomáš Manina
Foto: Tomáš Manina

Priaznivý pomer plochy bytov k ploche spoločných priestorov umožnil investovať do slušnejších materiálov a detailov. Boli to hlavne kvalitné hliníkové a plastové okná Rehau Geneo, alebo bezrámové zábradlia balkónov. Rovnako je riešené aj priebežné sklenené zábradlie na strešnej terase, ktoré sa zaobišlo bez dodatočných madiel, alebo sietí. Nášľapnú vrstvu terás a balkónov tvoria lamely zo sibírskeho smreku, uložené na plastových roštoch. Strop balkónov a lodžií mohol vďaka použitiu isokorbov ostať odhalený.

Foto: Tomáš Manina
Foto: Tomáš Manina

Jednou z predností lokality sú priehľady na centrum mesta a zelený horizont. "Snažili sme sa, aby čo najviac bytov malo rozhľad na dve svetové strany," vysvetľuje architekt Martin Bielik. Architektonický výraz budovy, definovaný hladkými, monochromatickými plochami fasády, je podporený takými detailmi, ako bezrámové zábradlia balkónov a lodžií s betónovými podhľadmi. "Posledné, tmavosivé poschodie je ustúpené z dvoch strán. V opačnom smere je naopak rôzne vystúpené, čo opticky znižuje hmotu objektu," dopĺňa Martin Bielik.

Foto: Tomáš Manina

"Hlavným zámerom bolo malé byty opticky zväčšiť o exteriér a 'priniesť' do nich veľa svetla. Preto sme zvolili nadštandardne veľké okná so zníženými parapetmi, kde horizontálny predel tvorí zábranu proti prepadnutiu. Aby sme do bytov na západnej fasáde dostali aj zapadajúce slnko, umiestnili sme sem lodžie s rohovými oknami smerované na západ. Na zvyšných fasádach sú vystupujúce balkóny doplnené o decentné zábradlie z bezrámového skla. Pri vstupe do objektu je po celej výške oceľová lamelová konštrukcia, ktorá nabúrava uniformitu objektu a súčasne prekrýva okná na schodisku," opisuje architekt.

Foto: Tomáš Manina

Byty napriek menším plošným výmerám pôsobia vďaka otvorenej dispozícii a rozsiahlemu zaskleniu celkom priestranne. Medzi ne patrí aj zrkadlová dvojica trojizbových bytov s výmerou 58m2, ktoré architekti umiestnili na každé poschodie. Tie prekvapivo, aj napriek svojej veľkosti poskytujú slušné množstvo úložného priestoru. Ostatné menšie byty sú riešené s dôrazom na väčšiu spoločenskú časť.

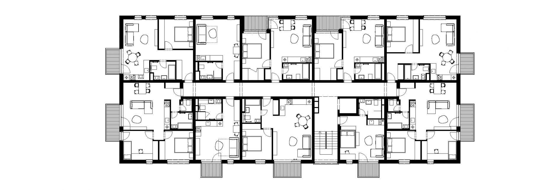
Pôdorys 2-4. NP
Pôdorys 2-4. NPAutor: Ing. arch. Martin Bielik

Skelet budovy tvoria železobetónové steny a stĺpy vyplnené murivom Porotherm s hrúbkou 250 mm. Tie sú po obvode izolované minerálnou vlnou hrúbky 150 mm. Medzibytové priečky, vymurované z akustických tehál, sú po obvode vyplnené zvukovoizolačnou penou. Strecha je odliata ako železobetónový monolit. 

Podklady: BMX studio, Foto: Tomáš Manina

Poloha diela

Ing. Martin Bielik
Vložené
22. október 2019
0
3498
Hlavný obsahHlavný obsah
Čakajte prosím