Na podujatí sa predstaví až 37 vystavovateľov - popredných dodávateľov stavebných materiálov a inovácií s prezentáciou...
Novotvar v prostredí alpskej obce.
Hansgrohe - prémiová značka kúpeľňových riešení, ponúka nadčasový dizajn, technickú precíznosť a udržateľné inovácie...
Využite špeciálnu akciu Internorm: okná za minuloročné ceny a hliníkový kryt úplne zadarmo. Ponuka je časovo obmedzená!
Sumarizácia najdôležitejších inovácií, ktoré redefinujúcich využitie tohto energetického zdroja.
AMPHIBIA 3000 GRIP 1.3 od spoločnosti ATRO predstavuje modernú hydroizolačnú technológiu, ktorá spája vysokú odolnosť,...
Ambiciózne plány EK narazili na ekonomické možnosti domácností v jednotlivých členských štátoch –...
IDEA DOOR od spoločnosti JAP prináša do interiéru čistý minimalistický vzhľad vďaka bezrámovému riešeniu a precíznej...
Kontinuita riešenia od vonkajšieho obkladu až po kovania a kľučky.
Nástenné nadomietkové armatúry Vitus sú mimoriadne vhodné pre rýchlu a efektívnu...
Okenné profily z kompozitného materiálu RAU-FIPRO X od spoločnosti Rehau sú v porovnaní s tradičnými plastovými profilmi mnohonásobne...
Najnovší sortiment stolov pre zariadenie interiérov...
Spojenie moderného dizajnu, funkčnosti a svetla do harmonického architektonického prvku.
Kancelárska budova Baumit v slovinskom Trzine prešla premenou na moderné a udržateľné pracovisko. Architekti kládli dôraz...
Mottom šiesteho ročníku on-line konferencie odborníkov Xella Dialóg je Efektívny návrh budov 2025+: zmeny a riešenia

Novostavba pri Mestskom parku je po Viladome Janka Kráľa a Viladome Komenského, ktoré sme predstavili v krátkom slede, už treťou realizáciou ateliéru BMX studio v centre Banskej Bystrice. Viladom Tajovského nesie viaceré spoločné znaky s predchádzajúcimi realizáciami - monochromatické fasády, okná so zníženými parapetmi, subtílne sklenené a oceľové zábradlia... Zaujme kultivovanosť architektonického výrazu.
Úvodné slovo autorov:
Typologický druh "bytový dom" je už notoricky známy pojem a architekt sa vždy vysporadúva s úvahou, ako ho poňať "po novom". Ani my sme nechceli spadnúť do využitia už overených detailov z predchádzajúcich realizácií. Hlavne, keď sa jednalo o miesto s opäť úplne odlišným geniom loci. No jedno však ostáva pri takýchto zadaniach nemenné, a to zladiť architektonickú víziu s možnosťami investora. Predsa len, ide v konečnom dôsledku o "produkt", ktorý nemá nekonečný rozpočet, hlavne ak prekročíme hranice územia hlavného mesta. Aj napriek tomu, sme tvrdohlavo hľadali "ňuansu" a vyjadrenie, ktoré z nášho pohľadu zapadne do prostredia. Výrazové prostriedky architektúry, ktoré sa zväčša javia ako "vyšlizmus" nebudú na našej stavbe použité samoúčelne. Máme radi, keď si vieme aj to, čo je na diele "iba" estetické, obhájiť pádnym argumentom.
Úplne na začiatku tvorby tejto stavby boli pre nás 2 základné premenné. Akoby "tvrdá" a "mäkká": územný plán zóny a naše vnímanie miesta a jeho okolia. Z hľadiska ÚPD sme sa museli vysporiadať s víziou jeho autorov o "ustupovanej hmote, pôdorysnej stope v tvare 'L' a akcente nárožia". Čo sa týka samotného miesta, alfa a omega bolo pre nás chápanie vymedzenia budúcej stavby ako rozhrania takmer dvoch svetov. Pomyselná línia ukončujúca širšie centrum Banskej Bystrice s vilami a blízkosťou rodinných domov, a na opačnej strane rozvojové územie, ktoré čaká transformácia a výstavba. Blízkosť mestského parku a výhľadov na prírodný masív okolia mesta, s vrchom Urpín nám rovnako prehovárala do duše.
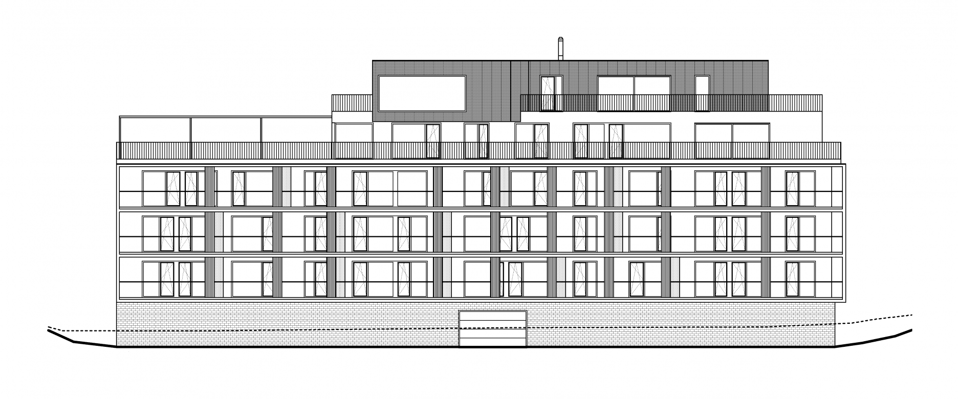
Ak by sme mali z hmotovo-estetickej stránky opísať náš návrh niekoľkými bodmi, boli by to: dvojtvarosť hmoty - umiernenosť, solídnosť a horizontálnosť smerom k existujúcej zástavbe a čistá kompozícia smerom k rozvojovej časti ; smerové upriamenie sa na prírodné priestranstvá; krytie „sa“ od rušnej a frekventovanej časti riešeného územia (ruch, pohľady okoloidúcich).
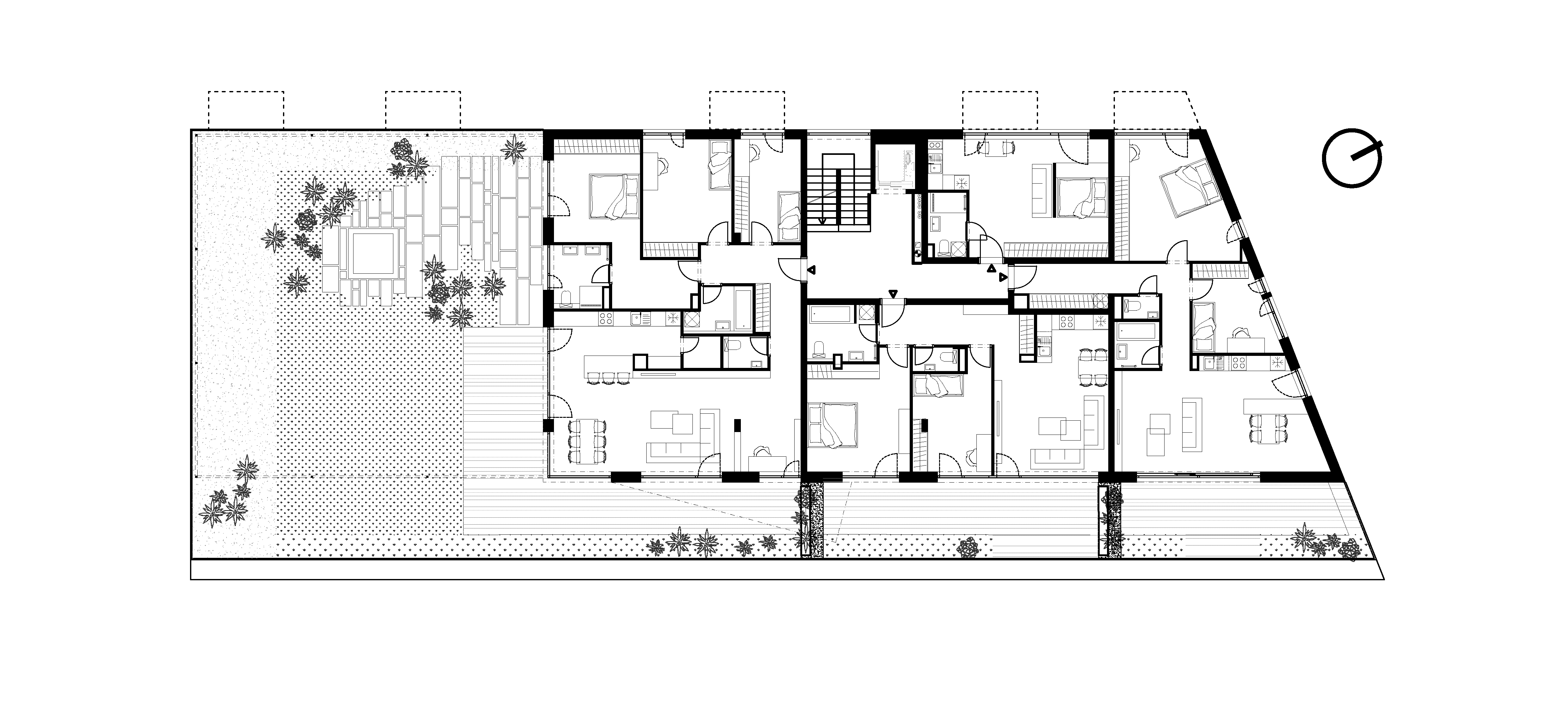
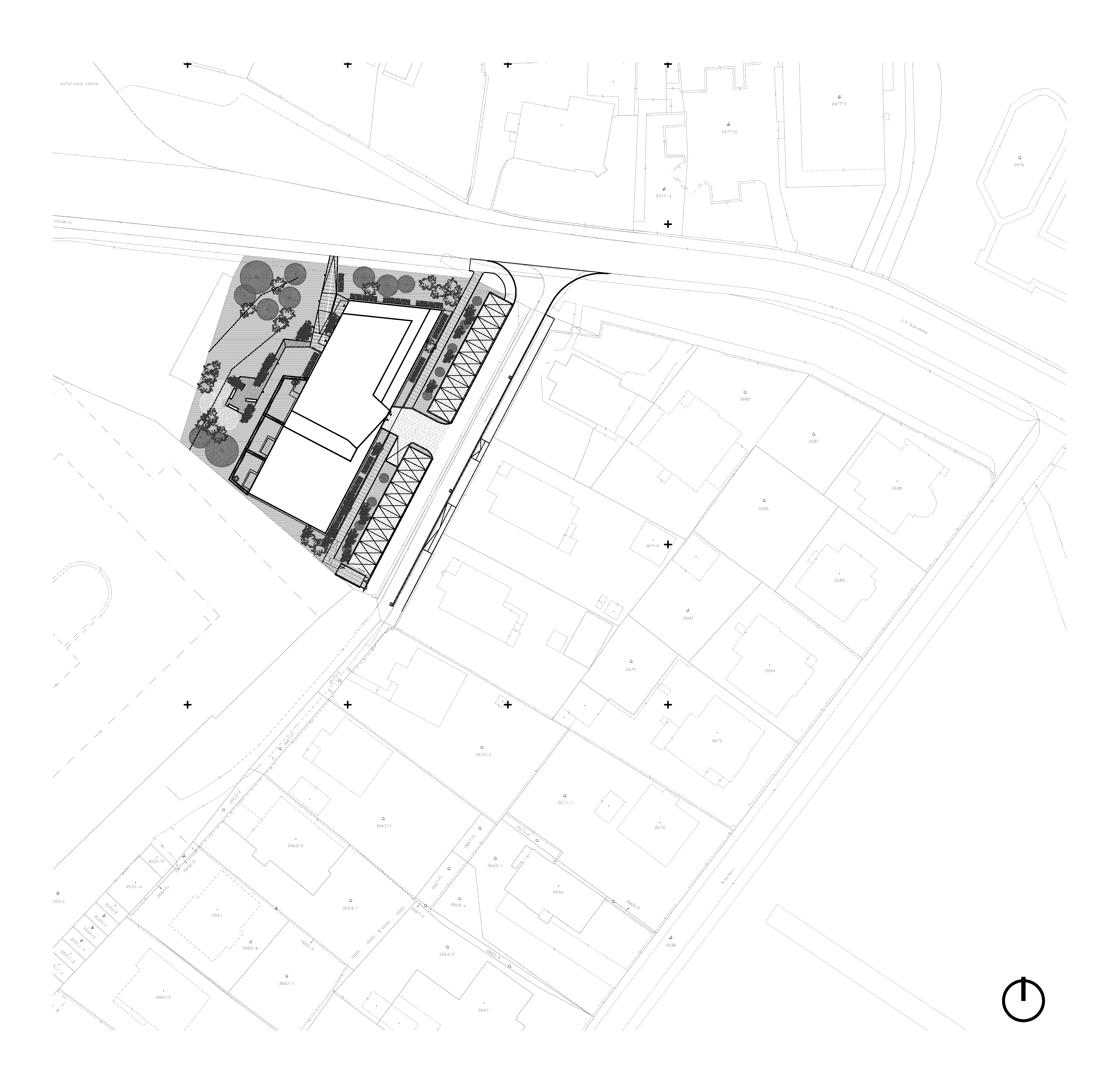
Umiestnenie objektu na pozemku, orientácia jeho hlavných fasád, odstupové vzdialenosti, situovanie polyfunkcie a vstupy a vjazdy do objektu, boli determinované hlavnou myšlienkou - vytvoriť bytový dom otvorený výhľadom na vnútorné mesto (centrum a mestský park). V širších súvislostiach na prírodný masív (vrch Urpín) obkolesujúci Banskú Bystricu, s vhodnou orientáciou bytov voči svetovým stranám. S využitím terénnych daností územia a s elimináciou okenných perforácií fasády orientovaných do rušnej Tajovského ulice.
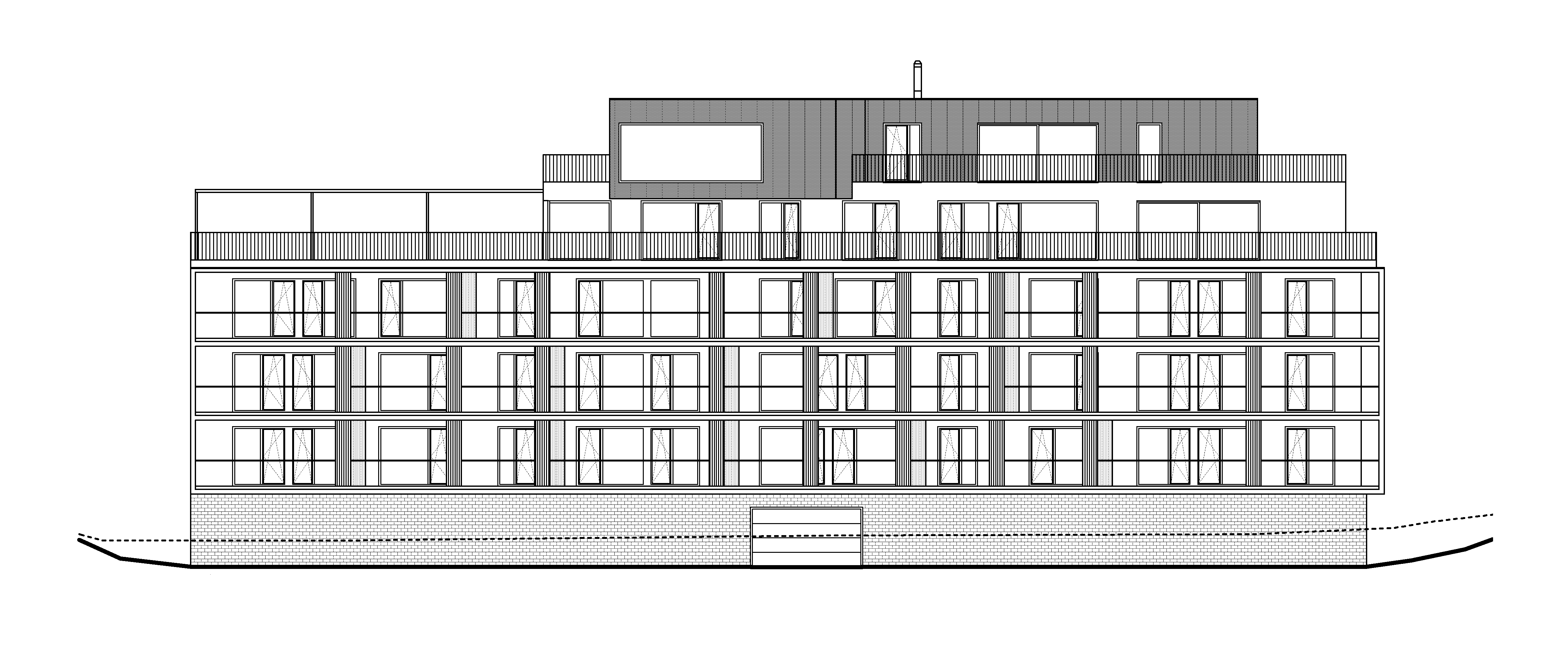
Pôdorysná stopa objektu, v tvare obdĺžnika so skosenou hranou, sleduje hranu Tajovského ulice. Vstupy do bytovej aj polyfunkčnej časti objektu sa nachádzajú na úrovni 1.NP. S verejným chodníkom sú prepojené prostredníctvom nepravidelne tvarovanej dláždenej plochy, ktorá upozorňuje na vstupy. Hmota objektu je výškovo diferencovaná s ustupujúcimi podlažiami - v smere od rodinných domov a z juhozápadnej strany. Prvé tri nadzemné podlažia využívajú celú pôdorysnú plochu, štvrté a piate poschodie je ustúpené (tvarové vysporiadanie sa s požiadavkami z ÚPN-Z BB). Na poslednom podlaží je umiestnený akcentujúci objem - “Kukaňa”, s panoramatickým výhľadom na mesto a Urpín. Jej smerovanie prepožičiava svoje natočenie ďalším konštrukčným a výrazovým prvkom - rozdeľujúce paravány na terasách, kovové zábradlia v interiéri aj exteriéri. Natočenie spomínaných prvkov chráni pred zvedavými pohľadmi pasantov (od rušných ulíc), ale neobmedzuje majiteľov vo výhľadoch.
Zelené plochy majú významné zastúpenie. V blízkosti posedenia na betónových lavičkách sú vysadené ovocné stromy, ktoré vytvárajú príjemnú zelenú kulisu. Zeleň, osvetlenie a prvky vonkajšej architektúry sú dôležitou súčasťou návrhu. Nemajú len funkčný význam, ale sú tiež spolupôsobiacim elementom celkovej kompozície.
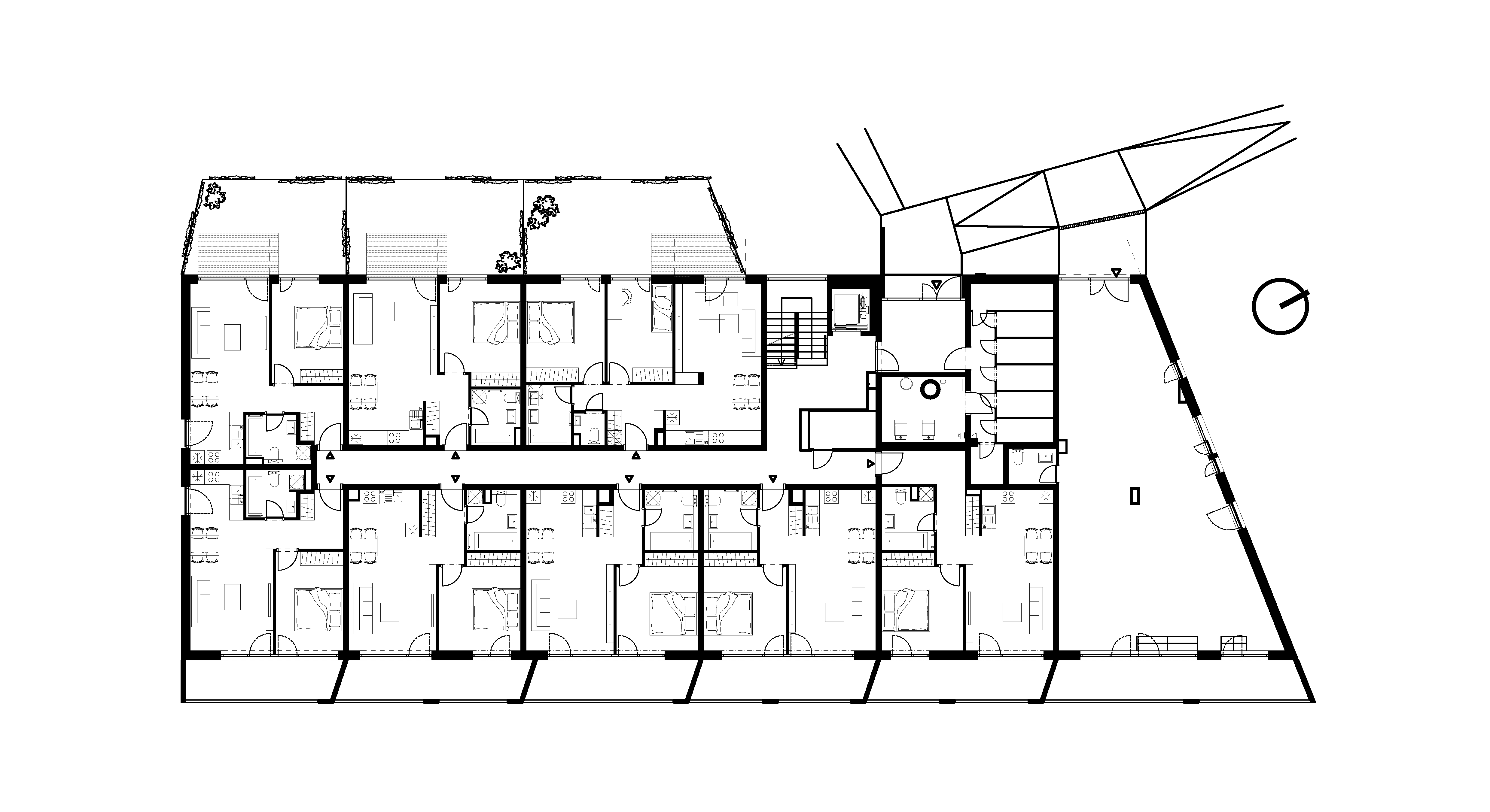
Dispozícia a prevádzka
Objekt je situovaný v centrálnej časti pozemku. Hlavný vstup do objektu aj vstup do polyfunkcie je situovaný na západnej fasáde, na úrovni 1.NP. Vjazd do podzemných garáží je orientovaný na východ, do Záhradnej ulice.
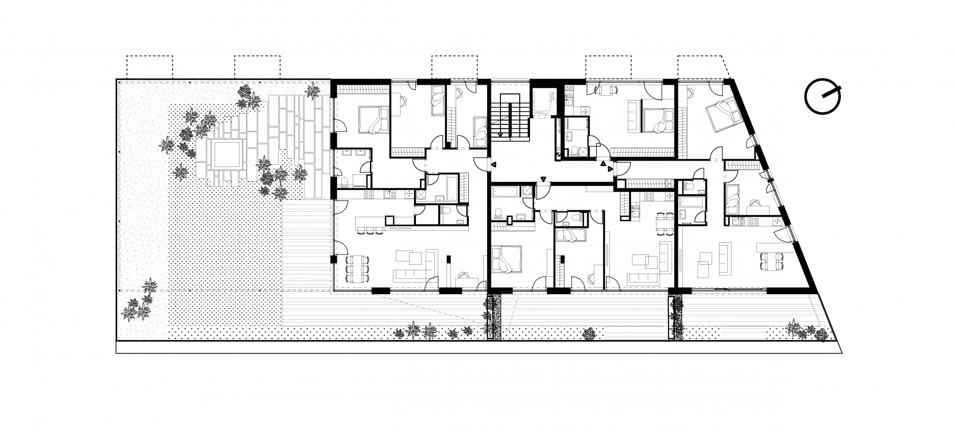
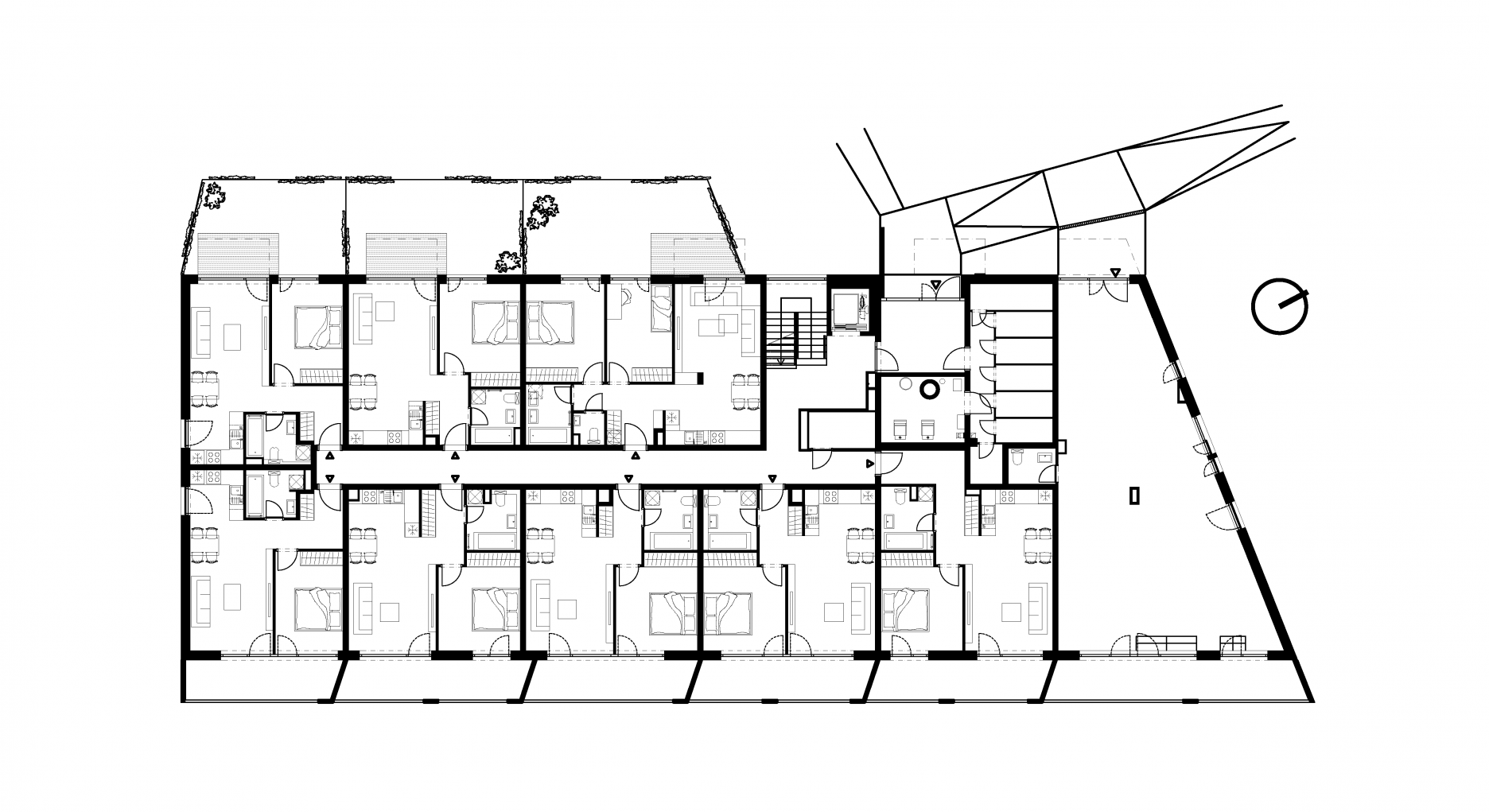
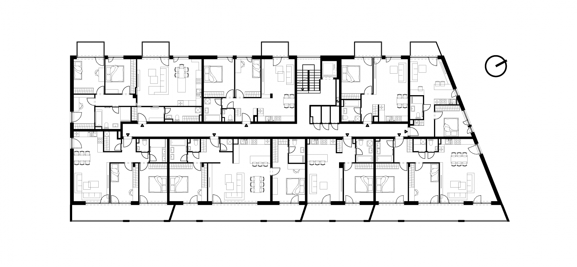
Dom má jeden vchod, jedno podzemné a päť nadzemných podlaží. Posledné dve poschodia sú ustúpené. Na 1.PP sa okrem jednopriestorovej garáže nachádza aj komunikačné jadro a miestnosť pre upratovačku.
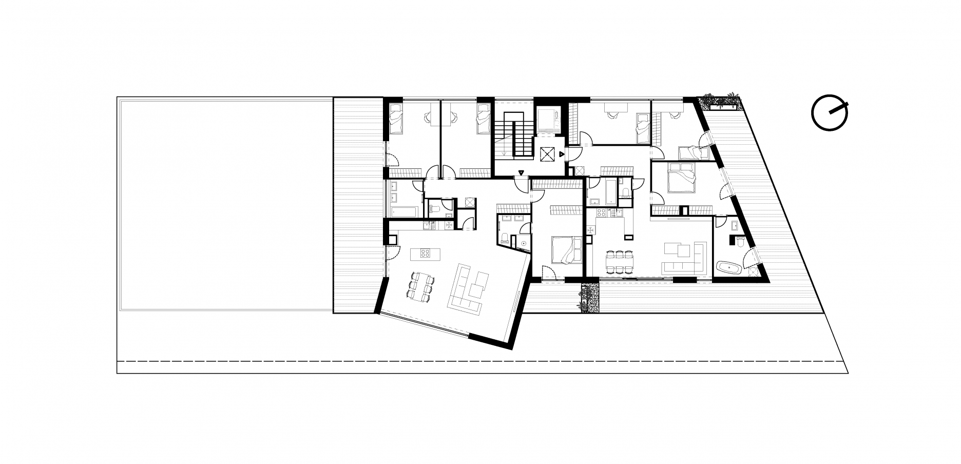
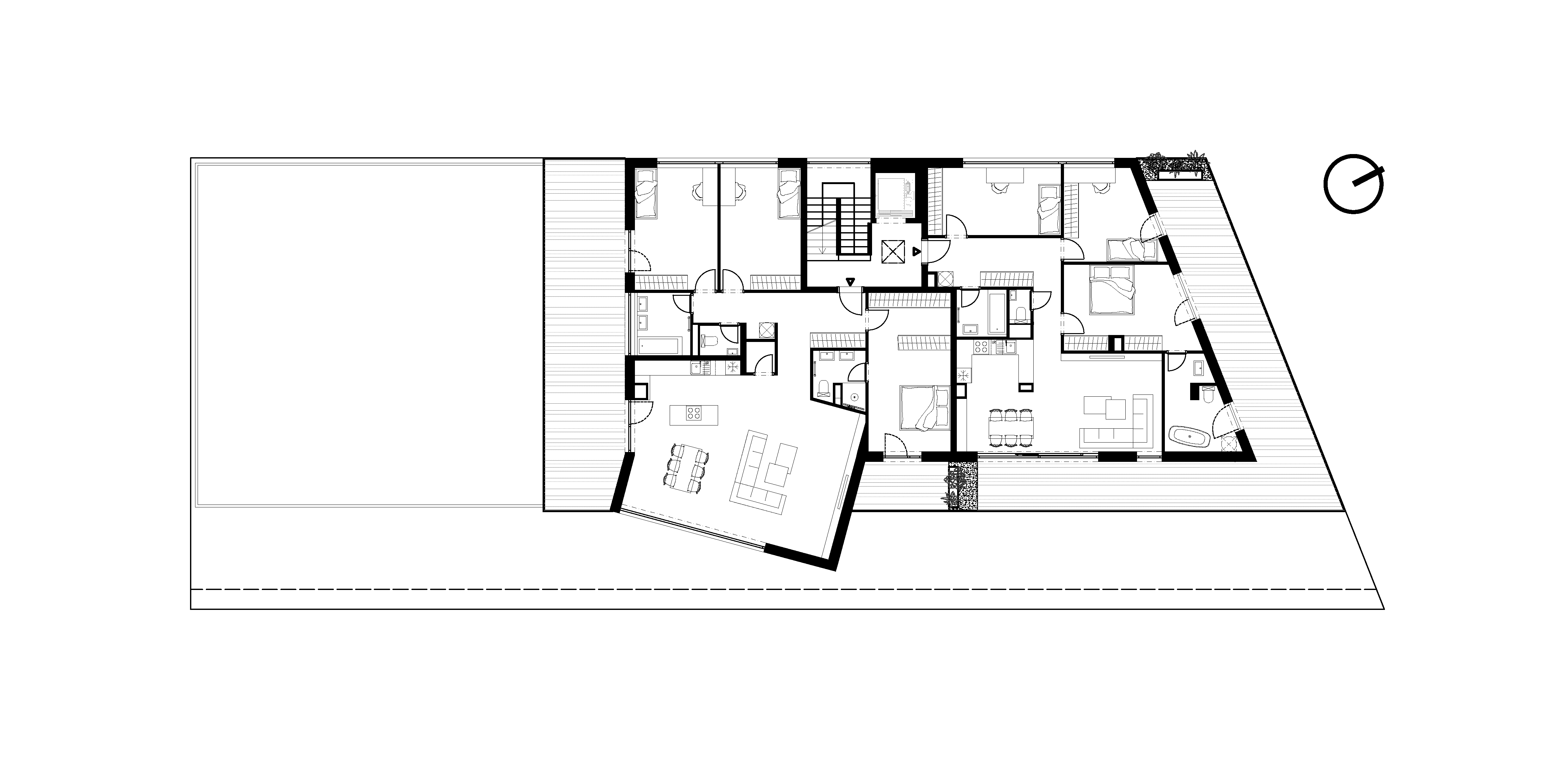
Na 1.NP je situovaný vstup do objektu, na ktorý nadväzuje osem bytových jednotiek a komerčný priestor so samostatným vstupom z exteriéru. Technické zázemie na prízemí zahŕňa kotolňa a technická miestnosť s rozvádzačmi. Jednotlivé podlažia sú prepojené vertikálnym komunikačným jadrom, ktoré tvorí výťah a dvojramenné schodisko. Na 2. a 3.NP sa nachádzajú byty, spolu s pivničnými kobkami. K bytom orientovaným na východnú stranu prislúchajú priebežné terasy (lodžie). Priebežné lodžie rozdeľujú zásteny, s výplňou z trapézového plechu. Toto rozdelenie sa čiastočne prenáša aj na pohľadovú stranu objektu a dotvára fasádu bytového domu. K bytom, orientovaným na západnú stranu, prislúchajú menšie balkóny. Na 4.NP a 5.NP sa nachádzajú väčšinou byty vyššieho štandardu, s vlastnými terasami. Rozdelenie terás je realizované prostredníctvom drevených kvetináčov s rýchlo rastúcou zeleňou. Drevená terasa je doplnená extenzívnou zeleňou. Dominantu tvorí vystupujúci kubus na najvyššom podlaží, nasmerovaný na mesto a vrch Urpín.