Advertorial

Hotel Hirschen Spa House, Rakúsko

Novotvar v prostredí alpskej obce.

Vytvorte si kúpeľňu snov: dizajnové riešenie od značky hansgrohe

Hansgrohe - prémiová značka kúpeľňových riešení, ponúka nadčasový dizajn, technickú precíznosť a udržateľné inovácie...

Okná Internorm za minuloročné ceny + hliníkový kryt zdarma!

Využite špeciálnu akciu Internorm: okná za minuloročné ceny a hliníkový kryt úplne zadarmo. Ponuka je časovo obmedzená!

Pozvánka na 2. ročník stavebného veľtrhu BigMarket na Slovensku

Na podujatí sa predstaví až 37 vystavovateľov - popredných dodávateľov stavebných materiálov a inovácií s prezentáciou...

Moderné plynové technológie: Efektivita a inovácie pre 21. storočie

Sumarizácia najdôležitejších inovácií, ktoré redefinujúcich využitie tohto energetického zdroja.

Utesňovanie spodných stavieb pomocou hydro-aktívnej fólie AMPHIBIA.

AMPHIBIA 3000 GRIP 1.3 od spoločnosti ATRO predstavuje modernú hydroizolačnú technológiu, ktorá spája vysokú odolnosť,...

Dekarbonizácia individuálneho vykurovania domácností – Green Deal evolučne a nie revolučne

Ambiciózne plány EK narazili na ekonomické možnosti domácností v jednotlivých členských štátoch –...

Minimalistické dvere IDEA – technická precíznosť a čistota prevedenia

IDEA DOOR od spoločnosti JAP prináša do interiéru čistý minimalistický vzhľad vďaka bezrámovému riešeniu a precíznej...

Dom s výhľadom na údolie, Dlouhý Most (ČR)

Kontinuita riešenia od vonkajšieho obkladu až po kovania a kľučky.

Schell Vitus – osvedčené riešenie pre sprchy a umývadlá vo verejnom sektore s viac ako desaťročnou tradíciou

Nástenné nadomietkové armatúry Vitus sú mimoriadne vhodné pre rýchlu a efektívnu...

Kompozitné okná predstavujú súčasnosť a budúcnosť

Okenné profily z kompozitného materiálu RAU-FIPRO X od spoločnosti Rehau sú v porovnaní s tradičnými plastovými profilmi mnohonásobne...

Myotis - stoly 2025

Najnovší sortiment stolov pre zariadenie interiérov...

Priemyselné sklenené priečky Dorsis Digero: svetelné rozhranie pre moderné interiéry

Spojenie moderného dizajnu, funkčnosti a svetla do harmonického architektonického prvku.

Význam prirodzeného svetla pre moderné a flexibilné pracovné prostredie

Kancelárska budova Baumit v slovinskom Trzine prešla premenou na moderné a udržateľné pracovisko. Architekti kládli dôraz...

Konferencia Xella Dialóg predstaví novinky a trendy v stavebníctve

Mottom šiesteho ročníku on-line konferencie odborníkov Xella Dialóg je Efektívny návrh budov 2025+: zmeny a riešenia

Byt PANORAMATIC, Bratislava

Organické prvky a prírodné tóny...
Diela
Red 422.07.2025
15891+42
Byt PANORAMATIC, Bratislava
Ateliér: abrama architekti, s.r.o.Autori: Ing. arch. Marek Abramovič, Ing. arch. Samuel AndrejčákPodlažná plocha: 182 m2+36 m2 terasaNávrh: 2023 - 2023Realizácia: 2024 - 2024Adresa: Bottova 2, Bratislava, SlovenskoPublikované: 22. júl 2025

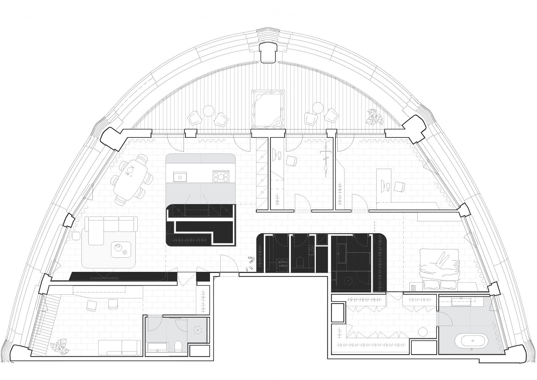
Aktuálna realizácia ateliéru abrama architekti. Po bytoch Skp23 a Skp19 sa do bratislavského rezidenčného projektu na obhliadku vraciame po tretíkrát. Dnes predstavíme najväčší z bytov s výmerou bezmála dvesto metrov štvorcových.

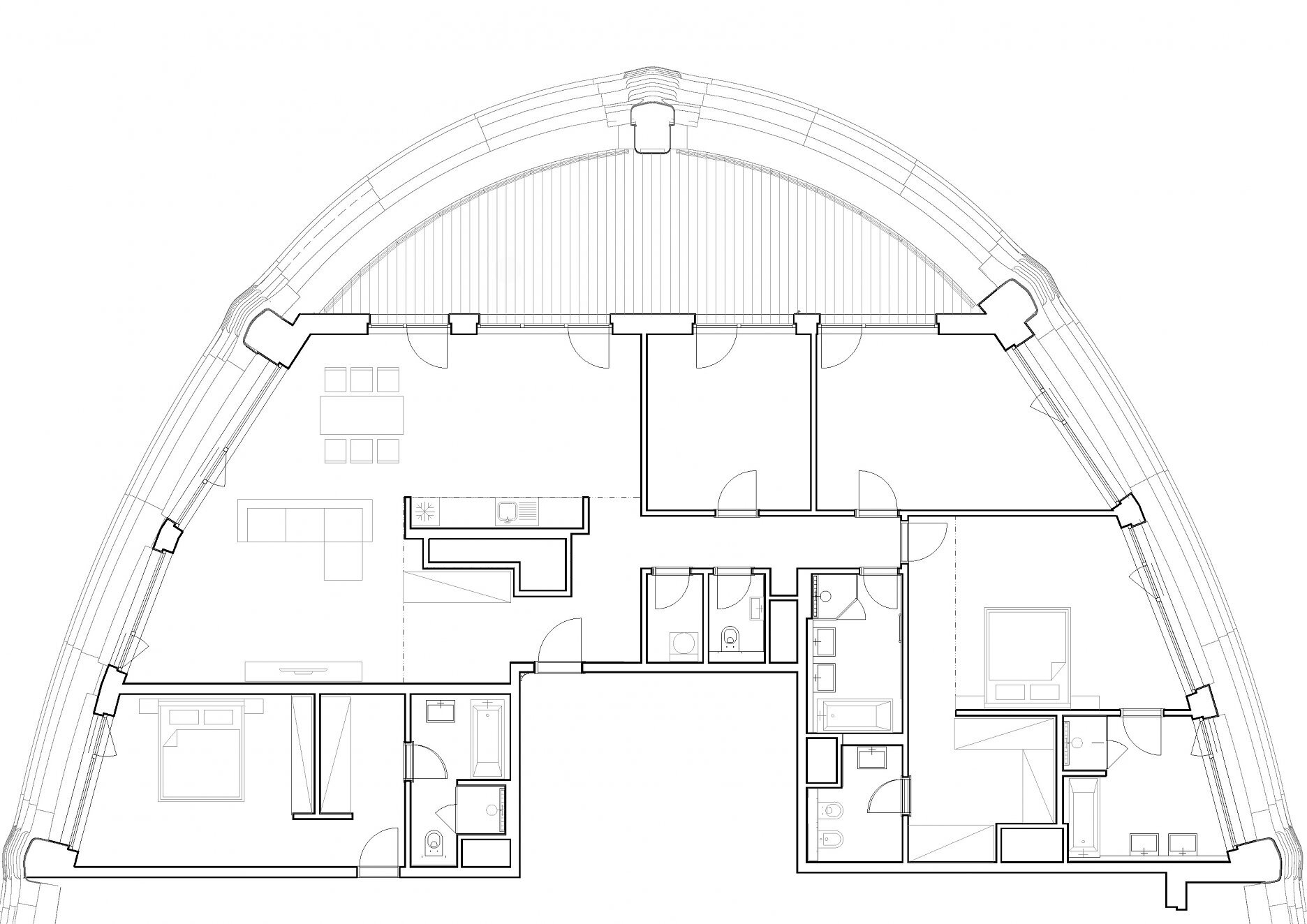
Byt prešiel výraznými zmenami, ktoré znamenali zjednodušenie celkového usporiadania priestorov. Pôvodnú dispozíciu 5i+KK byt rozšírila hosťovská izba s vlastným hygienickým zázemím. Časť,  prístupná zo vstupnej haly bytu, je rozumne oddelená od zvyšných priestorov. V rámci dispozície prešla kompletnou zmenou tiež rodičovská časť bytu spolu s kúpeľňami.

Dôležitým aspektom riešenia interiéru je množstvo úložných priestorov, integrovaných v blokových a ostrovných nábytkových zostavách.

Materialita zvolená pre tento priestor korešponduje so zámerom vytvorenia uhladeného a reprezentatívneho priestoru, ktorý je zároveň praktický. Tmavšie odtiene prírodných materiálov – drevenej podlahy, dyhovaných obkladov a nábytku – dopĺňajú svetlé povrchy v hygienickom zázemí a kuchyni.

Byt ponúka množstvo priehľadov naprieč dispozíciou, umocnených hrou so zrkadlovými plochami. Ako akcent v interiéri pôsobí drevený obklad, prechádzajúci ako chrbtica naprieč celým priestorom.

Architektonické riešenie bytu, vrátane organických fragmentov a voľby materiálov, vytvára rámec, ktorý  vhodne zapadá do prostredia.

Axonometria - nový stav
Axonometria - nový stavAutor: abrama architekti
Pôdorys - Pôvodný stav
Pôdorys - Pôvodný stavAutor: abrama architekti
Pôdorys - nový stav
Pôdorys - nový stavAutor: abrama architekti
Foto: Pavel Kudiváni
Foto: Pavel Kudiváni
Foto: Pavel Kudiváni
Foto: Pavel Kudiváni
Foto: Pavel Kudiváni
Foto: Pavel Kudiváni
Foto: Pavel Kudiváni
Foto: Pavel Kudiváni
Foto: Pavel Kudiváni
Foto: Pavel Kudiváni
Foto: Pavel Kudiváni
Foto: Pavel Kudiváni
Foto: Pavel Kudiváni
Foto: Pavel Kudiváni
Foto: Pavel Kudiváni
Foto: Pavel Kudiváni
Foto: Pavel Kudiváni
Foto: Pavel Kudiváni
Foto: Pavel Kudiváni
Foto: Pavel Kudiváni
Foto: Pavel Kudiváni
Foto: Pavel Kudiváni
Foto: Pavel Kudiváni
Foto: Pavel Kudiváni
Foto: Pavel Kudiváni
Foto: Pavel Kudiváni
Foto: Pavel Kudiváni
Foto: Pavel Kudiváni
Foto: Pavel Kudiváni
Foto: Pavel Kudiváni
Foto: Pavel Kudiváni
Foto: Pavel Kudiváni
Foto: Pavel Kudiváni
Foto: Pavel Kudiváni
Foto: Pavel Kudiváni

Podklady: abrama architekti
Fotografie: Pavel Kudiváni

Poloha diela

Ing. arch. Marek Abramovič
Ing. arch. Samuel Andrejčák
Vložené
3. jún 2025
1
1589
Hlavný obsahHlavný obsah
Čakajte prosím