Advertorial

Hotel Hirschen Spa House, Rakúsko

Novotvar v prostredí alpskej obce.

Vytvorte si kúpeľňu snov: dizajnové riešenie od značky hansgrohe

Hansgrohe - prémiová značka kúpeľňových riešení, ponúka nadčasový dizajn, technickú precíznosť a udržateľné inovácie...

Okná Internorm za minuloročné ceny + hliníkový kryt zdarma!

Využite špeciálnu akciu Internorm: okná za minuloročné ceny a hliníkový kryt úplne zadarmo. Ponuka je časovo obmedzená!

Pozvánka na 2. ročník stavebného veľtrhu BigMarket na Slovensku

Na podujatí sa predstaví až 37 vystavovateľov - popredných dodávateľov stavebných materiálov a inovácií s prezentáciou...

Moderné plynové technológie: Efektivita a inovácie pre 21. storočie

Sumarizácia najdôležitejších inovácií, ktoré redefinujúcich využitie tohto energetického zdroja.

Utesňovanie spodných stavieb pomocou hydro-aktívnej fólie AMPHIBIA.

AMPHIBIA 3000 GRIP 1.3 od spoločnosti ATRO predstavuje modernú hydroizolačnú technológiu, ktorá spája vysokú odolnosť,...

Dekarbonizácia individuálneho vykurovania domácností – Green Deal evolučne a nie revolučne

Ambiciózne plány EK narazili na ekonomické možnosti domácností v jednotlivých členských štátoch –...

Minimalistické dvere IDEA – technická precíznosť a čistota prevedenia

IDEA DOOR od spoločnosti JAP prináša do interiéru čistý minimalistický vzhľad vďaka bezrámovému riešeniu a precíznej...

Dom s výhľadom na údolie, Dlouhý Most (ČR)

Kontinuita riešenia od vonkajšieho obkladu až po kovania a kľučky.

Schell Vitus – osvedčené riešenie pre sprchy a umývadlá vo verejnom sektore s viac ako desaťročnou tradíciou

Nástenné nadomietkové armatúry Vitus sú mimoriadne vhodné pre rýchlu a efektívnu...

Kompozitné okná predstavujú súčasnosť a budúcnosť

Okenné profily z kompozitného materiálu RAU-FIPRO X od spoločnosti Rehau sú v porovnaní s tradičnými plastovými profilmi mnohonásobne...

Myotis - stoly 2025

Najnovší sortiment stolov pre zariadenie interiérov...

Priemyselné sklenené priečky Dorsis Digero: svetelné rozhranie pre moderné interiéry

Spojenie moderného dizajnu, funkčnosti a svetla do harmonického architektonického prvku.

Význam prirodzeného svetla pre moderné a flexibilné pracovné prostredie

Kancelárska budova Baumit v slovinskom Trzine prešla premenou na moderné a udržateľné pracovisko. Architekti kládli dôraz...

Konferencia Xella Dialóg predstaví novinky a trendy v stavebníctve

Mottom šiesteho ročníku on-line konferencie odborníkov Xella Dialóg je Efektívny návrh budov 2025+: zmeny a riešenia

Byt SKP 19, Bratislava

Kontrast a zaoblené hrany.
Diela
Red 421.04.2025
14960+30
Byt SKP 19, Bratislava
Ateliér: abrama architekti, s.r.o.Autori: Ing. arch. Marek Abramovič, Ing. arch. Samuel AndrejčákPodlažná plocha: 89 m2Návrh: 2023 - 2023Realizácia: 2024 - 2024Adresa: Bottova 2, Bratislava, SlovenskoPublikované: 21. apríl 2025

Pred časom sme predstavili štvorizbový byt Skp23 v  Sky Parku z dielne ateliéru abrama architekti. Dnes sa vraciame do bratislavského rezidenčného projektu na obhliadku o niečo menšieho trojizbového bytu. Návrh aj v tomto prípade vznikol s dôrazom na funkčné riešenie neštandardného priestoru a vychádza z individuálnych potrieb klienta.

Kľúčovým prvkom interiéru je nábytkový kubus – ostrov umiestnený v centre dispozície, v kuchynskej časti. Tento atypický prvok plní dve základné funkcie – slúži ako vstavaná kuchynská zostava a zároveň vytvára rozsiahle úložné priestory. Zaoblenie jeho hrán podporuje plynulosť pohybu v priestore, pričom jeho dynamiku zvýrazňuje profilový svetelný systém, ktorý ho obopína.

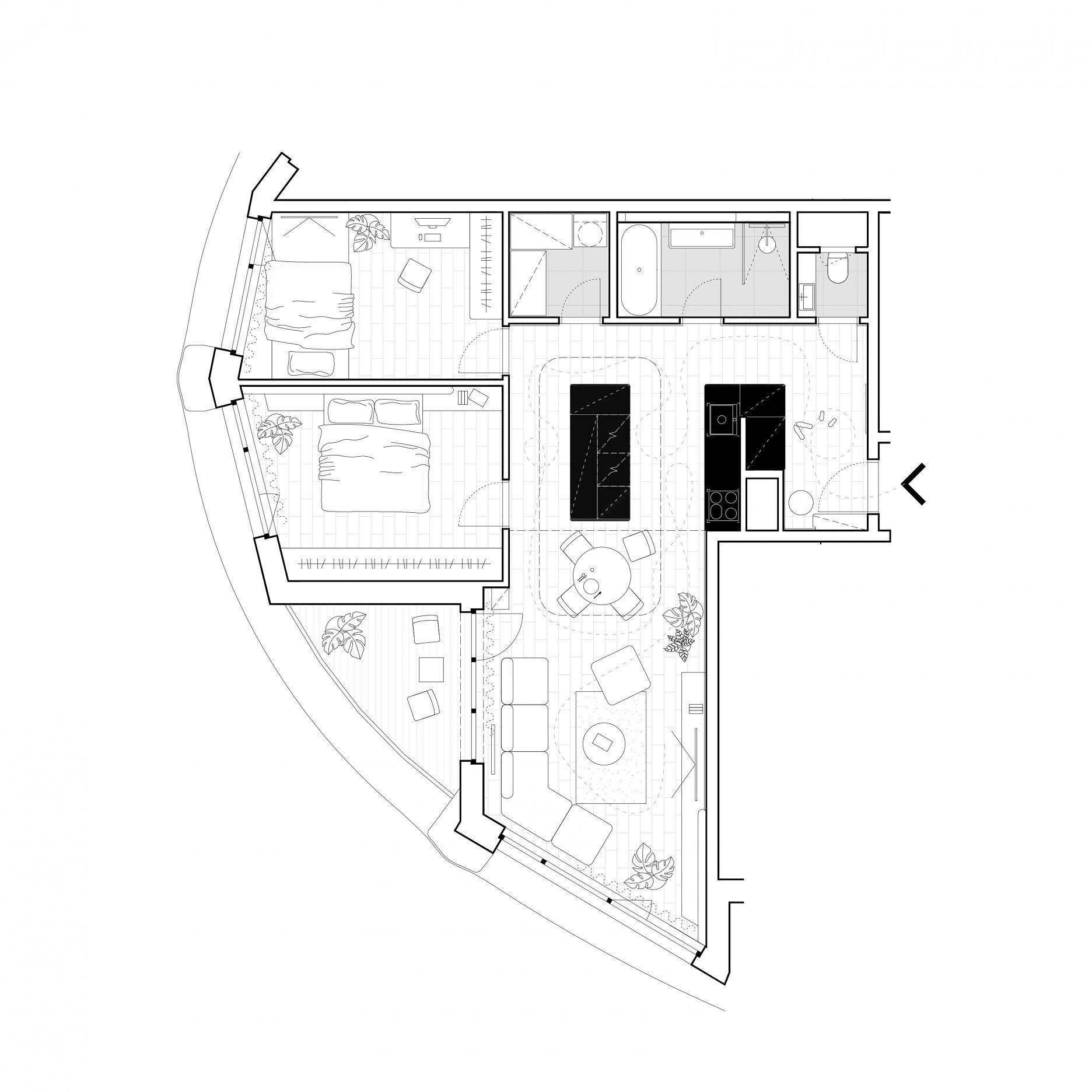
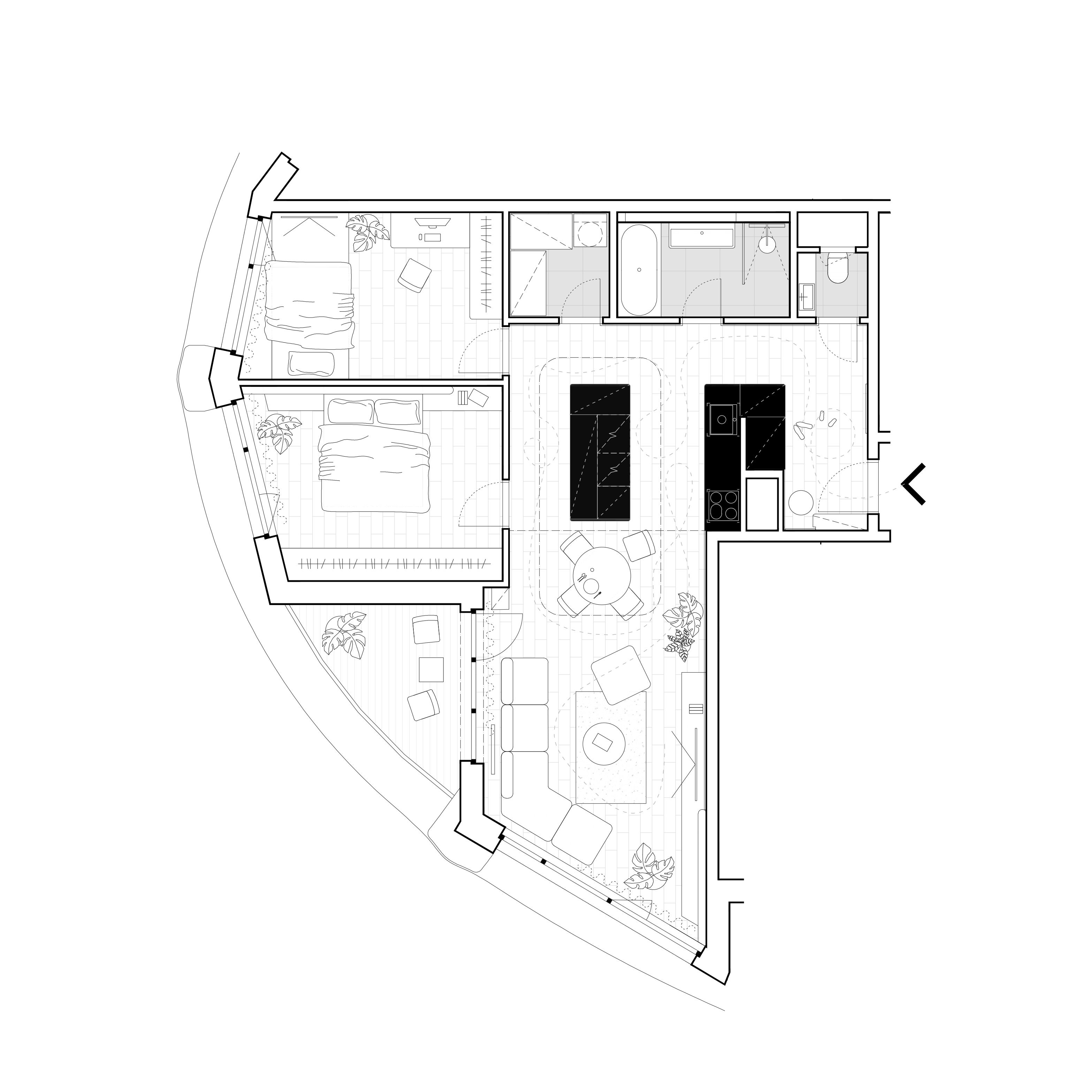
Pôdorys
PôdorysAutor: abrama architekti
Axonometria
AxonometriaAutor: abrama architekti

Materiálová paleta interiéru je založená na kombinácii svetlých povrchov a tmavých drevených dekorov. Tmavé drevené prvky vnášajú do svetlého priestoru hĺbku a vizuálnu štruktúru. Kontrast ešte viac zvýrazňuje kresba prírodných materiálov.

Medzi najvýraznejšie prvky patria dve predsadené steny, ktorých finálna vrstva omietky bola obohatená o riečne kamenivo a následne zbrúsená. Tento postup vytvoril autentickú štruktúru a textúru, ktorá do interiéru prináša zaujímavú haptickú vrstvu.

Celková koncepcia interiéru je postavená na kompozícii veľkoplošných monochromatických povrchov. Realizácia kladie dôraz na kvalitu použitých materiálov a spracovania detailov. Snahou architektov bolo podľa ich slov vytvoriť priestor, ktorý je nielen vizuálne príťažlivý, ale aj praktický a komfortný na každodenné bývanie.

Foto: Pavel Kudiváni
Foto: Pavel Kudiváni
Foto: Pavel Kudiváni
Foto: Pavel Kudiváni
Foto: Pavel Kudiváni
Foto: Pavel Kudiváni
Foto: Pavel Kudiváni
Foto: Pavel Kudiváni
Foto: Pavel Kudiváni
Foto: Pavel Kudiváni
Foto: Pavel Kudiváni
Foto: Pavel Kudiváni
Foto: Pavel Kudiváni
Foto: Pavel Kudiváni
Foto: Pavel Kudiváni
Foto: Pavel Kudiváni
Foto: Pavel Kudiváni
Foto: Pavel Kudiváni
Foto: Pavel Kudiváni
Foto: Pavel Kudiváni
Foto: Pavel Kudiváni
Foto: Pavel Kudiváni
Foto: Pavel Kudiváni
Foto: Pavel Kudiváni
Foto: Pavel Kudiváni
Foto: Pavel Kudiváni

Podklady: abrama architekti
Fotografie: Pavel Kudiváni

Poloha diela

Ing. arch. Marek Abramovič
Ing. arch. Samuel Andrejčák
Vložené
15. apríl 2025
0
1496
Hlavný obsahHlavný obsah
Čakajte prosím