Advertorial

Hotel Hirschen Spa House, Rakúsko

Novotvar v prostredí alpskej obce.

Vytvorte si kúpeľňu snov: dizajnové riešenie od značky hansgrohe

Hansgrohe - prémiová značka kúpeľňových riešení, ponúka nadčasový dizajn, technickú precíznosť a udržateľné inovácie...

Okná Internorm za minuloročné ceny + hliníkový kryt zdarma!

Využite špeciálnu akciu Internorm: okná za minuloročné ceny a hliníkový kryt úplne zadarmo. Ponuka je časovo obmedzená!

Pozvánka na 2. ročník stavebného veľtrhu BigMarket na Slovensku

Na podujatí sa predstaví až 37 vystavovateľov - popredných dodávateľov stavebných materiálov a inovácií s prezentáciou...

Moderné plynové technológie: Efektivita a inovácie pre 21. storočie

Sumarizácia najdôležitejších inovácií, ktoré redefinujúcich využitie tohto energetického zdroja.

Utesňovanie spodných stavieb pomocou hydro-aktívnej fólie AMPHIBIA.

AMPHIBIA 3000 GRIP 1.3 od spoločnosti ATRO predstavuje modernú hydroizolačnú technológiu, ktorá spája vysokú odolnosť,...

Dekarbonizácia individuálneho vykurovania domácností – Green Deal evolučne a nie revolučne

Ambiciózne plány EK narazili na ekonomické možnosti domácností v jednotlivých členských štátoch –...

Minimalistické dvere IDEA – technická precíznosť a čistota prevedenia

IDEA DOOR od spoločnosti JAP prináša do interiéru čistý minimalistický vzhľad vďaka bezrámovému riešeniu a precíznej...

Dom s výhľadom na údolie, Dlouhý Most (ČR)

Kontinuita riešenia od vonkajšieho obkladu až po kovania a kľučky.

Schell Vitus – osvedčené riešenie pre sprchy a umývadlá vo verejnom sektore s viac ako desaťročnou tradíciou

Nástenné nadomietkové armatúry Vitus sú mimoriadne vhodné pre rýchlu a efektívnu...

Kompozitné okná predstavujú súčasnosť a budúcnosť

Okenné profily z kompozitného materiálu RAU-FIPRO X od spoločnosti Rehau sú v porovnaní s tradičnými plastovými profilmi mnohonásobne...

Myotis - stoly 2025

Najnovší sortiment stolov pre zariadenie interiérov...

Priemyselné sklenené priečky Dorsis Digero: svetelné rozhranie pre moderné interiéry

Spojenie moderného dizajnu, funkčnosti a svetla do harmonického architektonického prvku.

Význam prirodzeného svetla pre moderné a flexibilné pracovné prostredie

Kancelárska budova Baumit v slovinskom Trzine prešla premenou na moderné a udržateľné pracovisko. Architekti kládli dôraz...

Konferencia Xella Dialóg predstaví novinky a trendy v stavebníctve

Mottom šiesteho ročníku on-line konferencie odborníkov Xella Dialóg je Efektívny návrh budov 2025+: zmeny a riešenia

Byt Záhrebská, Bratislava

Rekonštrukcia bytu v bratislavskom Starom meste.
Diela
Martin Maňo19.01.2020
69850+50
Byt Záhrebská, Bratislava
Autori: Mgr. art. Martin MaňoPodlažná plocha: 58,1 m²Investičný náklad: 40 000,- €Návrh: 2019 - 2019Realizácia: 2019 - 2019Adresa: Záhrebská ulica , Bratislava, SlovenskoPublikované: 19. január 2020

Interiér prešiel malou dispozičnou korekciou, ktorá mala za cieľ sprehľadniť priestor a zlepšiť funkčnosť obslužných celkov. Dôležitým prvkom sú nové nadsvetlíky, ktoré vedú svetlo do chodby a zádveria. Materiálový akcent v podobe odhalených betónových prievlakov zdôrazňuje základné členenie dispozície. Ostatným priestorom dominujú biele omietané steny a stropy doplnené o drevené povrchy zákazkových stolárskych výrobkov.

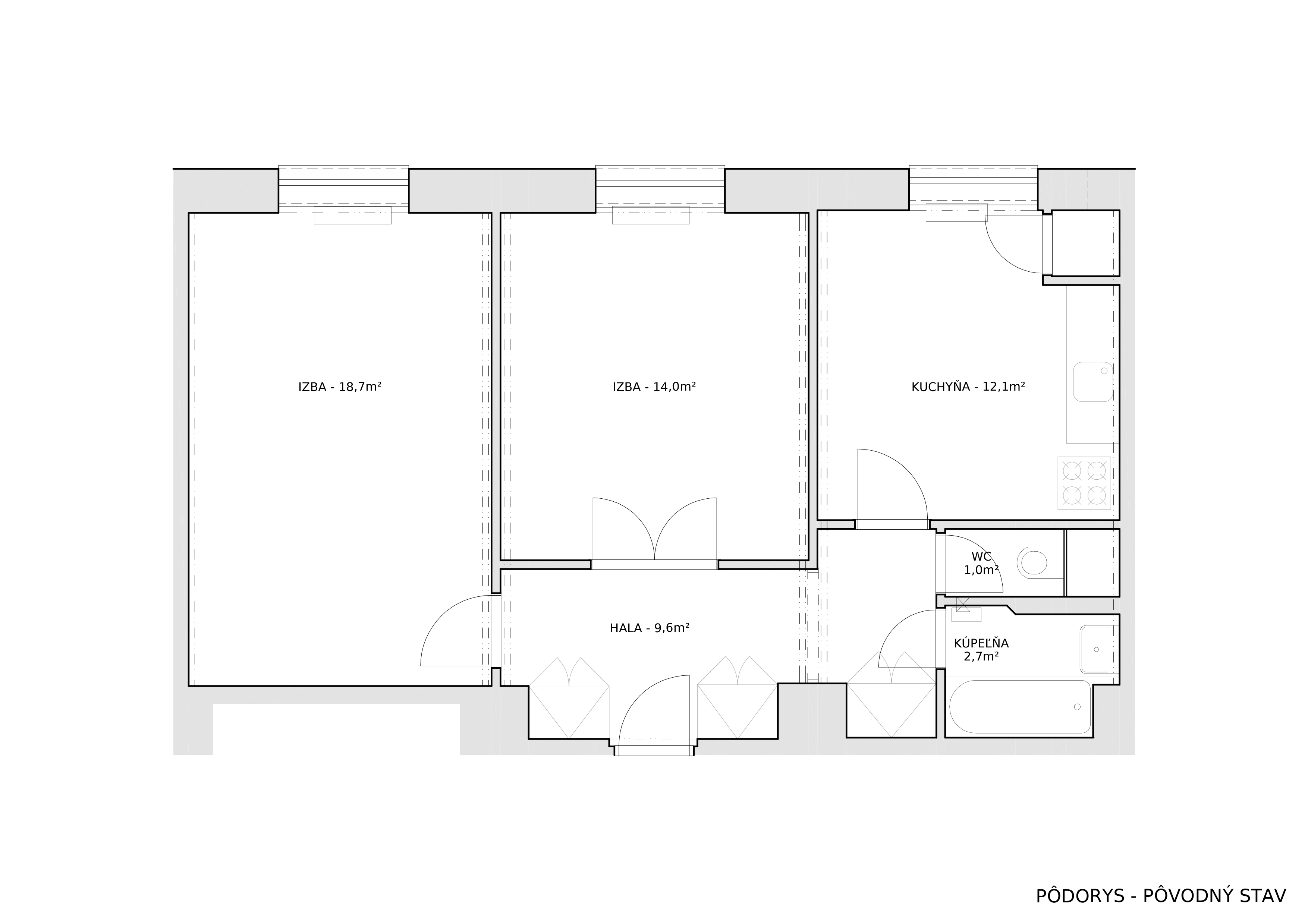
Byt na štvrtom poschodí staršieho bytového domu v bratislavskom Starom meste. Dispozičné riešenie zahŕňa halu, dvojicu nepriechodných izieb, samostatnú kuchyňu a sociálne zázemie. Všetky obytné miestnosti sú orientované na západ, priestor rozdeľuje na približne rovnaké tretiny dvojica železobetónových prievlakov. "To by pri rekonštrukcii umožňovalo značnú variabilnosť dispozície. Avšak vzhľadom na skutočnosť, že pôvodný pôdorys bol jednoduchý a funkčný, upustilo sa od návrhu úplne novej dispozície a zbytočného navyšovania finančných prostriedkov potrebných na rekonštrukciu," vysvetľuje architekt Martin Maňo.

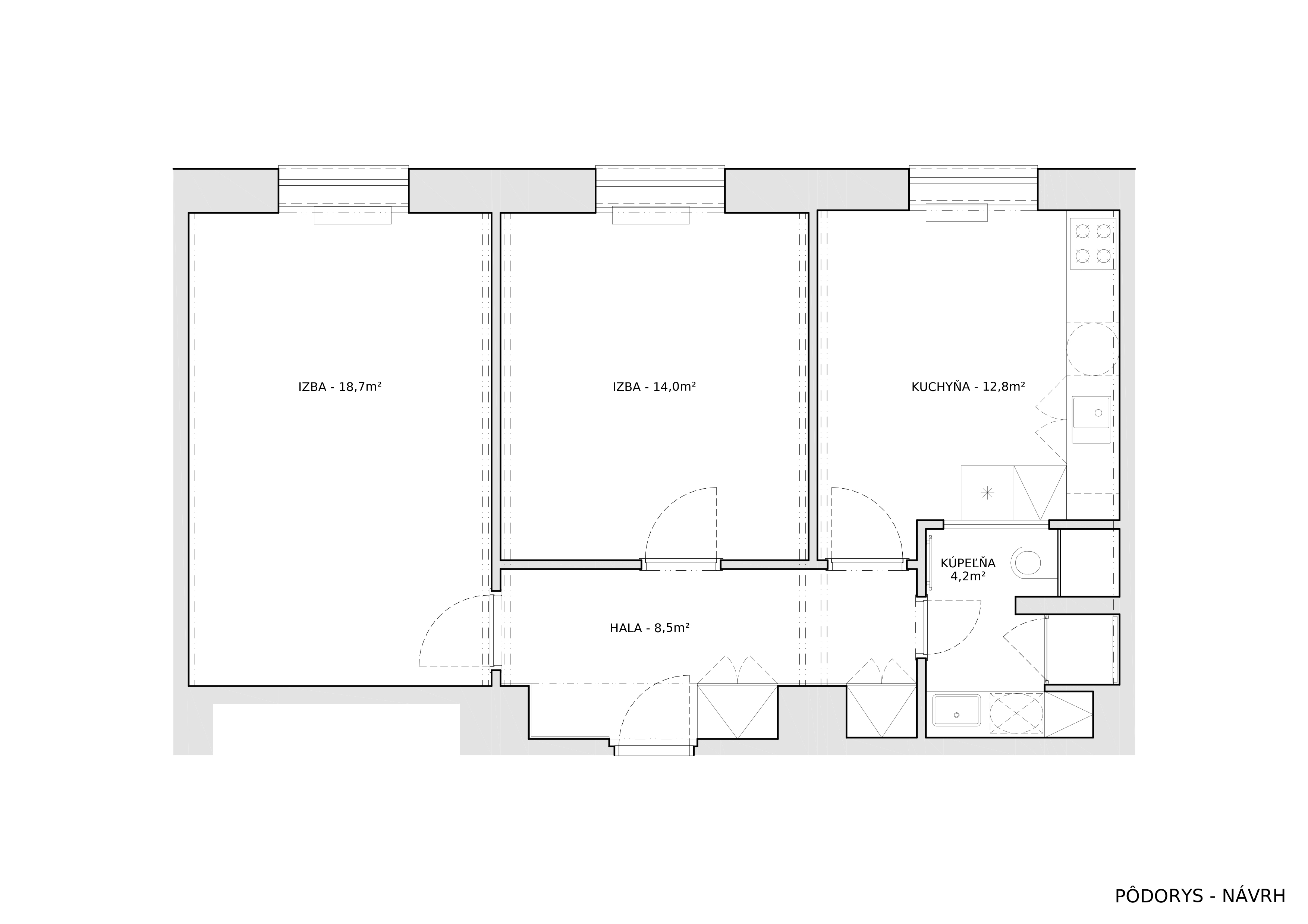
Úprava dispozície

Vybúranie priečky medzi kúpeľňou a toaletou prepojilo pôvodne samostatné miestnosti, čo umožnilo zamurovať dvere do WC. Pod stropom, v priečke medzi kuchyňou a sociálnym zázemím bol zrealizovaný nadsvetlík. Dvere vedúce do kuchyne sa posunuli na úroveň chodbovej steny. Vedľajší dverový otvor, ktorý sprístupňuje strednú izbu, bol zúžený a tiež posunutý. 

Pôdorys - pôvodný stav
Pôdorys - pôvodný stavAutor: Mgr. art. Martin Maňo
Pôdorys - návrh
Pôdorys - návrhAutor: Mgr. art. Martin Maňo
Schémy blokov zariadenia kuchyne a kúpeľne
Schémy blokov zariadenia kuchyne a kúpeľne

Postup stavebných prác

Po vyprataní bytu bola odstránená pôvodná keramická dlažba v hale a sociálnom zázemí, rovnako ako staré linoleum v kuchyni. Obdobný proces čakal aj obklad na stenách kúpeľne. Nasledovala demontáž zariaďovacích predmetov, ktorá sa nevyhla ani priestoru kuchyne. Prípravná fáza zahŕňala aj čistenie stien od maľovky. Odstránením omietky zo železobetónových prievlakov vynikla ich prirodzenú štruktúra. Zmenami prešla aj technická infraštruktúra bytu - pôvodné rozvody elektroinštalácie a zdravotechniky nahradili nové, vstupné dvere boli vymenené za bezpečnostné. 

Súčasťou oboch nových dverových výplní sú nadsvetlíky, ktoré vedú svetlo do vstupnej haly. Vyrovnané steny sú nanovo omietnuté sadrovou omietkou. Vzhľadom na nerovnosti pôvodných stropov sa rozhodol architekt použiť v byte sadrokartónové podhľady. Nová gresová dlažba našla svoje miesto v chodbe, kuchyni a sociálnom zázemí. Na stenách kúpeľne pribudol biely mozaikový obklad. Naopak, pôvodné povrchy ostali zachované v oboch izbách. Bukové parkety boli prebrúsené a nalakované. Nasledovala montáž zárubní, dverí, vstavaných skríň, kuchyne a realizácia obkladov stien v hale, alebo zásteny v sociálnom zariadení

Pôvodné stoličky a kreslá prešli čalúnickou opravou a úpravou, a spolu so stolom a obývačkovým stolíkom sú aj naďalej súčasťou interiéru.

Fotografia priestoru pred rekonštrukciou
Fotografia priestoru pred rekonštrukciou

Podklady: Martin Maňo

Poloha diela

Mgr. art. Martin Maňo
Vložené
10. január 2020
0
6985
Hlavný obsahHlavný obsah
Čakajte prosím