Na podujatí sa predstaví až 37 vystavovateľov - popredných dodávateľov stavebných materiálov a inovácií s prezentáciou...
Novotvar v prostredí alpskej obce.
Hansgrohe - prémiová značka kúpeľňových riešení, ponúka nadčasový dizajn, technickú precíznosť a udržateľné inovácie...
Využite špeciálnu akciu Internorm: okná za minuloročné ceny a hliníkový kryt úplne zadarmo. Ponuka je časovo obmedzená!
Sumarizácia najdôležitejších inovácií, ktoré redefinujúcich využitie tohto energetického zdroja.
AMPHIBIA 3000 GRIP 1.3 od spoločnosti ATRO predstavuje modernú hydroizolačnú technológiu, ktorá spája vysokú odolnosť,...
Ambiciózne plány EK narazili na ekonomické možnosti domácností v jednotlivých členských štátoch –...
IDEA DOOR od spoločnosti JAP prináša do interiéru čistý minimalistický vzhľad vďaka bezrámovému riešeniu a precíznej...
Kontinuita riešenia od vonkajšieho obkladu až po kovania a kľučky.
Nástenné nadomietkové armatúry Vitus sú mimoriadne vhodné pre rýchlu a efektívnu...
Okenné profily z kompozitného materiálu RAU-FIPRO X od spoločnosti Rehau sú v porovnaní s tradičnými plastovými profilmi mnohonásobne...
Najnovší sortiment stolov pre zariadenie interiérov...
Spojenie moderného dizajnu, funkčnosti a svetla do harmonického architektonického prvku.
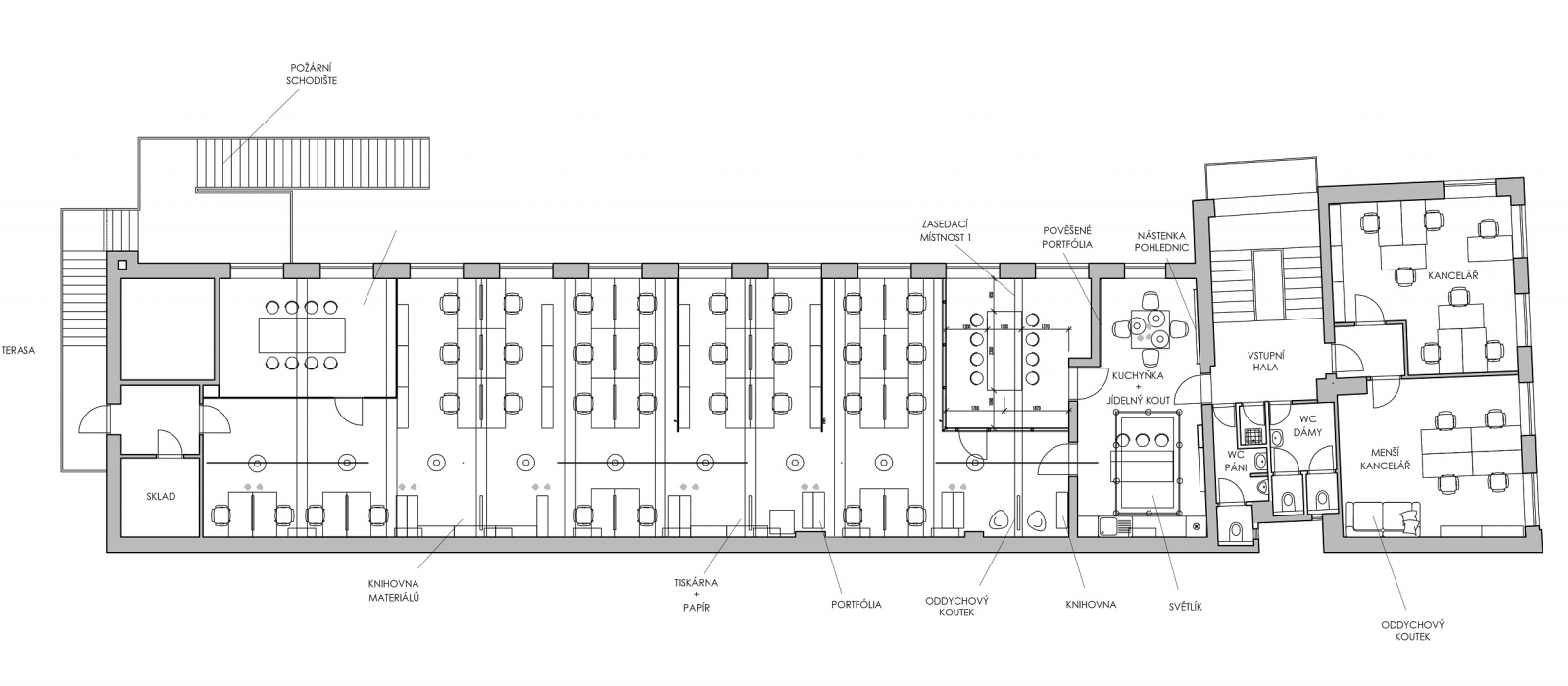
Kancelárska budova Baumit v slovinskom Trzine prešla premenou na moderné a udržateľné pracovisko. Architekti kládli dôraz...
Mottom šiesteho ročníku on-line konferencie odborníkov Xella Dialóg je Efektívny návrh budov 2025+: zmeny a riešenia

Zdieľané pracovisko - relatívne nový typologický druh, ktorý vídame čoraz častejšie. Variabilný priestor využívaný mladými ľuďmi a kreatívnymi profesiami znesie väčšiu mieru hravosti a experimentu ako kancelárie formované korporátnou vizuálnou identitou. Aj preto ide často o konverziu bývalých industriálnych objektov, kde je istá miera provizória adekvátna. Atmosféra a kvalitné využitie priestoru sú dôležitejšie ako dokonalé biele steny.
Oceňujeme, že prezentovaný priestor neskĺzol k často vídanej snahe o preplnenie interiéru módnymi hernými a oddychovými prvkami. Tieto na prvý pohľad atraktívne komponenty ostávajú často bez využitia, keďže voľný čas strávený mimo pracoviska je čoraz vzácnejší. Prioritou je produktívny networking, efektívna práca a spolupráca. Namiesto “fancy” riešení sa architekti zamerali na prehľadnosť a ergonómiu pracovného prostredia.
Do stavebnej podstaty industriálnej budovy zasiahli architekti minimálne, Ľahké deliace konštrukcie z transparentného polykarbonátu umožňujú vnímať bývalú výrobnú halu ako celok, napriek tomu však zabezpečujú adekvátne členenie pracoviska. Dôležitý je všadeprítomný dostatok prirodzeného svetla. Jednoduchá ortogonálna geometria a prírodná neutrálna farebnosť je doplnená decentnými farebnými akcentami. Celý koncept interiéru sa odvíja od novej funkčnej náplne. Na rozdiel od štandardných kancelárií je coworking miestom s pestrou skladbou užívateľov. Dynamicky sa meniace pracovisko prináša so sebou požiadavku na flexibilné využitie priestoru.
Projekt bližšie predstavia architekti zo Studia Reaktor:
Přístav je místem pro zakotvení kreativních řemesel. Sdružuje odvážné podnikavce, kteří se vydali vzhůru obtížným výzvám a neprobádaným horizontům. Vytváří zázemí před bouřlivým oceánem klientských změn a neproplacených faktur. Ať jsi architekt, stavař, grafik nebo designér, všechny zbloudilé kreativní duše jsou zde vítány.
Původně truhlářská dílna umístěna poblíž Holešovického Přístavu byla ponechána v industriálním vzhledu. Obsah se však proměnil na sdílený přístav tvůrčích jednotlivců a podnikavých lodí. Po vstupu můžeme přehlédnout celou halu, která je podél oken rozdělena na menší kóje. Zde kotví kreativní kormidelníci. Vestavěné příčky jsou makrolonové, propouštění do hloubky podpalubí dostatek světla. Po dlouhém molu je možné se pohybovat na longboardu, skládacím kole.
Velké množství kapitánů na jedné palubě se mnohdy nevyhne vzniku ponorky. Stačí však vyklopit repasovaná průmyslová okna a přístavní halu provětrat. Materiály zůstaly v původní, surové podobě, stropy a podlaha se vyspravily tmelem. Stěny posádka vymalovala, kam až dosáhla. Průhled halou je podpořen osou průmyslových lamp, jenž lemují zavěšené kokedamy (poznámka redakcie: ide o rastlinu v guľatom bale zeminy, ktorý je obalený machom).
Pod jediný světlík v prostoru jsme umístili ostrov, kde popíjíme kávu a sdílíme zážitky z dalekých cest. Úložné prostory tvoří kovové regály, nábytkové trupy jsou navrženy z voděodolné překližky, kabeláž zůstala pohledová. Plavíme se na jedné lodi, sdílíme zázemí kotviště plné nápadů a tvůrčích myšlenek. Kdo sdílí, daleko dopluje.
Vizualizácie návrhu:
Podklady: Studio Reaktor