Advertorial

Hotel Hirschen Spa House, Rakúsko

Novotvar v prostredí alpskej obce.

Vytvorte si kúpeľňu snov: dizajnové riešenie od značky hansgrohe

Hansgrohe - prémiová značka kúpeľňových riešení, ponúka nadčasový dizajn, technickú precíznosť a udržateľné inovácie...

Okná Internorm za minuloročné ceny + hliníkový kryt zdarma!

Využite špeciálnu akciu Internorm: okná za minuloročné ceny a hliníkový kryt úplne zadarmo. Ponuka je časovo obmedzená!

Pozvánka na 2. ročník stavebného veľtrhu BigMarket na Slovensku

Na podujatí sa predstaví až 37 vystavovateľov - popredných dodávateľov stavebných materiálov a inovácií s prezentáciou...

Moderné plynové technológie: Efektivita a inovácie pre 21. storočie

Sumarizácia najdôležitejších inovácií, ktoré redefinujúcich využitie tohto energetického zdroja.

Utesňovanie spodných stavieb pomocou hydro-aktívnej fólie AMPHIBIA.

AMPHIBIA 3000 GRIP 1.3 od spoločnosti ATRO predstavuje modernú hydroizolačnú technológiu, ktorá spája vysokú odolnosť,...

Dekarbonizácia individuálneho vykurovania domácností – Green Deal evolučne a nie revolučne

Ambiciózne plány EK narazili na ekonomické možnosti domácností v jednotlivých členských štátoch –...

Minimalistické dvere IDEA – technická precíznosť a čistota prevedenia

IDEA DOOR od spoločnosti JAP prináša do interiéru čistý minimalistický vzhľad vďaka bezrámovému riešeniu a precíznej...

Dom s výhľadom na údolie, Dlouhý Most (ČR)

Kontinuita riešenia od vonkajšieho obkladu až po kovania a kľučky.

Schell Vitus – osvedčené riešenie pre sprchy a umývadlá vo verejnom sektore s viac ako desaťročnou tradíciou

Nástenné nadomietkové armatúry Vitus sú mimoriadne vhodné pre rýchlu a efektívnu...

Kompozitné okná predstavujú súčasnosť a budúcnosť

Okenné profily z kompozitného materiálu RAU-FIPRO X od spoločnosti Rehau sú v porovnaní s tradičnými plastovými profilmi mnohonásobne...

Myotis - stoly 2025

Najnovší sortiment stolov pre zariadenie interiérov...

Priemyselné sklenené priečky Dorsis Digero: svetelné rozhranie pre moderné interiéry

Spojenie moderného dizajnu, funkčnosti a svetla do harmonického architektonického prvku.

Význam prirodzeného svetla pre moderné a flexibilné pracovné prostredie

Kancelárska budova Baumit v slovinskom Trzine prešla premenou na moderné a udržateľné pracovisko. Architekti kládli dôraz...

Konferencia Xella Dialóg predstaví novinky a trendy v stavebníctve

Mottom šiesteho ročníku on-line konferencie odborníkov Xella Dialóg je Efektívny návrh budov 2025+: zmeny a riešenia

Dom pri zvonici, Bratislava

Otvorené obytné prostredie, prechádzajúce cez dve podlažia domu z 50. rokov minulého storočia.
Diela
Marián Gombarček01.11.2022
38850+48
Dom pri zvonici, Bratislava
Ateliér: gmb.Autori: Ing. arch. Marián GombarčekNávrh: 2021 - 2021Realizácia: 2021 - 2022Adresa: Bratislava, SlovenskoPublikované: 1. november 2022

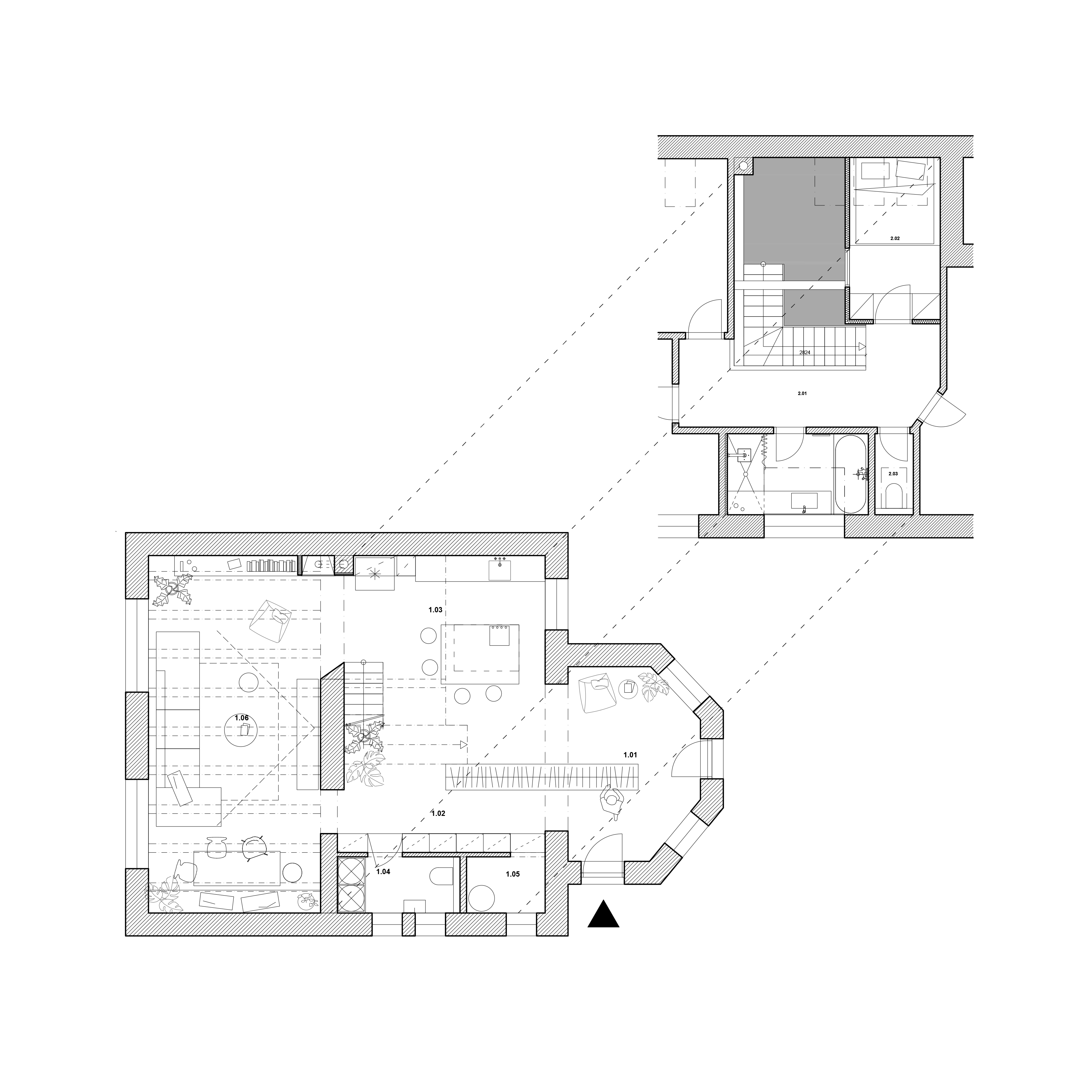
Architekt Marián Gombarček znova definoval dispozíciu a prevádzku interiéru, poznačeného mnohými nánosmi a stavebnými úpravami. Celý obytný priestor plynie okolo centrálneho schodiska a kuchyne, kde sa otvára do galérie. Medzi zaujímavé momenty patrí priehľad zo spálne na poschodí, ktorý zdôrazňuje prepojenie celkov vo vertikálnom smere. Nosnou témou rekonštrukcie je odhalenie materiality pôvodných konštrukcií a realizácia nových, na mieru navrhnutých prvkov a nábytkových solitérov.

Foto: Marián Gombarček / gmb.
Foto: Marián Gombarček / gmb.
Foto: Marián Gombarček / gmb.

Realizáciu bližšie predstaví Marián Gombarček:

Pôvodný dom z 50. rokov v minulosti postupne prešiel viacerými rekonštrukciami, vrátane nekoncepčnej prístavby a nadstavby. Cieľom súčasného zásahu bolo upratanie vnútorného priestoru, hľadanie nových priestorových a funkčných väzieb a vytvorenie prostredia, ktoré by reagovalo na potreby eklektického života mladej viacčlennej rodiny. V exteriéri sa dom v súlade s požiadavku investora prakticky nemenil. Návrh sa zameriava prevažne na riešenie vnútorných priestorov.

Koncept je založený na kontraste pôvodnej odhalenej stavby a kompozícii vloženého nábytku a prvkov zariadenia. Tie v rôznych formách vstupujú do priestoru, prepájajú ho, pretínajú a niekedy ignorujú a priam narúšajú jeho pôvodnú zonáciu. Interiér sa v otvára vo viacerých smeroch, vznikajú nové interakcie a spojenia.

Pôvodná stavba a jej konštrukcie sa zbavujú stavebných nánosov a jednotlivých zásahov, odhaľujú sa murované steny a drevené trámové stropy. Ich jednoduchá priznaná materialita necháva vyniknúť priestorovú skladbu nových vložených foriem. Centrálnym bodom sa stáva objem vloženého oceľového schodiska, akcentovaného výraznou farebnosťou.

Vstup je realizovaný v pôvodnej polohe. Od dennej časti ho oddeľuje šatníková zostava so zrkadlovým povrchom, ktorá oddeľuje priestory zázemia od dennej časti a súčasne vedie južné slnko do priestoru kuchyne. Celý obytný priestor je zokruhovaný a organizovaný okolo schodiska a kuchyne, kde sa otvára do galérie. Kuchyňa sa tak stáva bodom, ktorý spája jednotlivé priestory v horizontálnom aj vertikálnom smere. Na poschodí vzniká novotvar spálne, ktorá cez okno nazerá do galérie.

Pôdorysy - pôvodný stav
Pôdorysy - pôvodný stavAutor: Marián Gombarček / gmb.
Pôdorysy - nový stav
Pôdorysy - nový stavAutor: Marián Gombarček / gmb.
Foto: Marián Gombarček / gmb.
Foto: Marián Gombarček / gmb.
Foto: Marián Gombarček / gmb.
Foto: Marián Gombarček / gmb.
Foto: Marián Gombarček / gmb.
Foto: Marián Gombarček / gmb.
Foto: Marián Gombarček / gmb.
Foto: Marián Gombarček / gmb.
Foto: Marián Gombarček / gmb.
Foto: Marián Gombarček / gmb.
Foto: Marián Gombarček / gmb.
Foto: Marián Gombarček / gmb.
Foto: Marián Gombarček / gmb.
Foto: Marián Gombarček / gmb.
Foto: Marián Gombarček / gmb.

Podklady: Marián Gombarček / gmb.

Ateliér

Poloha diela

Ing. arch. Marián Gombarček
Vložené
31. október 2022
0
3885
Hlavný obsahHlavný obsah
Čakajte prosím