Advertorial

Hotel Hirschen Spa House, Rakúsko

Novotvar v prostredí alpskej obce.

Vytvorte si kúpeľňu snov: dizajnové riešenie od značky hansgrohe

Hansgrohe - prémiová značka kúpeľňových riešení, ponúka nadčasový dizajn, technickú precíznosť a udržateľné inovácie...

Okná Internorm za minuloročné ceny + hliníkový kryt zdarma!

Využite špeciálnu akciu Internorm: okná za minuloročné ceny a hliníkový kryt úplne zadarmo. Ponuka je časovo obmedzená!

Pozvánka na 2. ročník stavebného veľtrhu BigMarket na Slovensku

Na podujatí sa predstaví až 37 vystavovateľov - popredných dodávateľov stavebných materiálov a inovácií s prezentáciou...

Moderné plynové technológie: Efektivita a inovácie pre 21. storočie

Sumarizácia najdôležitejších inovácií, ktoré redefinujúcich využitie tohto energetického zdroja.

Utesňovanie spodných stavieb pomocou hydro-aktívnej fólie AMPHIBIA.

AMPHIBIA 3000 GRIP 1.3 od spoločnosti ATRO predstavuje modernú hydroizolačnú technológiu, ktorá spája vysokú odolnosť,...

Dekarbonizácia individuálneho vykurovania domácností – Green Deal evolučne a nie revolučne

Ambiciózne plány EK narazili na ekonomické možnosti domácností v jednotlivých členských štátoch –...

Minimalistické dvere IDEA – technická precíznosť a čistota prevedenia

IDEA DOOR od spoločnosti JAP prináša do interiéru čistý minimalistický vzhľad vďaka bezrámovému riešeniu a precíznej...

Dom s výhľadom na údolie, Dlouhý Most (ČR)

Kontinuita riešenia od vonkajšieho obkladu až po kovania a kľučky.

Schell Vitus – osvedčené riešenie pre sprchy a umývadlá vo verejnom sektore s viac ako desaťročnou tradíciou

Nástenné nadomietkové armatúry Vitus sú mimoriadne vhodné pre rýchlu a efektívnu...

Kompozitné okná predstavujú súčasnosť a budúcnosť

Okenné profily z kompozitného materiálu RAU-FIPRO X od spoločnosti Rehau sú v porovnaní s tradičnými plastovými profilmi mnohonásobne...

Myotis - stoly 2025

Najnovší sortiment stolov pre zariadenie interiérov...

Priemyselné sklenené priečky Dorsis Digero: svetelné rozhranie pre moderné interiéry

Spojenie moderného dizajnu, funkčnosti a svetla do harmonického architektonického prvku.

Význam prirodzeného svetla pre moderné a flexibilné pracovné prostredie

Kancelárska budova Baumit v slovinskom Trzine prešla premenou na moderné a udržateľné pracovisko. Architekti kládli dôraz...

Konferencia Xella Dialóg predstaví novinky a trendy v stavebníctve

Mottom šiesteho ročníku on-line konferencie odborníkov Xella Dialóg je Efektívny návrh budov 2025+: zmeny a riešenia

Interiér PERGO

PERGO je jedna z najprestížnejších a najprogresívnejších realitných kancelárií v Bratislave.
Zadanie bolo vytvoriť nový, reprezentatívny a zároveň svieži priestor pre fungovanie firmy.
Diela
Peter Kukučka29.06.2015
13990+38
Interiér PERGO
Ateliér: AT26 architectsAutori: Ing.arch. Peter Kukučka, Ing.arch. Jaroslav Takáč, Ing.arch. Branislav Loskot, Ing.arch. Juraj Benko, Ing.arch. Adam KuzmaInvestor: PERGO – Real Estate CompanyPodlažná plocha: 61,30 m2Návrh: 2013 - 2014Realizácia: 2014 - 2014Adresa: Mliekárenská , Bratislava, SlovenskoPublikované: 29. jún 2015

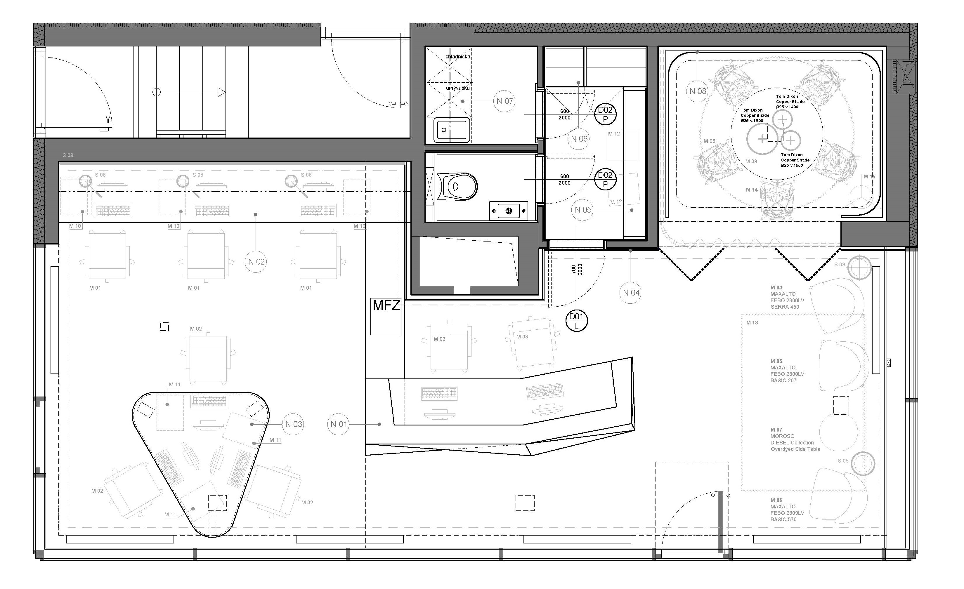
Kancelária sa nachádza v parteri dobre známeho rezidenčného komplexu Rozadol. Fasády s plne presklenými stenami otvárajú pohľady do príjémneho a udržiavaného verejného priestoru.

Peter Cintalan

Priestor je opticky rozdelený do dvoch funkčných celkov. Prvý z nich je "verejná" časť z recepciou, čakárňou pre klientov a zasadacou miestnosťou, oddelenou presklenou stenou. Druhý celok je viac "súkromný", v podstate určený ako hlavný pracovný priestor. Najvýznamnejší prvok v interiéri je polygonálny recepčný pult. Tento prvok upúta aj pri pohĺade z exteriéru a navádza potenciálnych klientov. 

Peter Cintalan

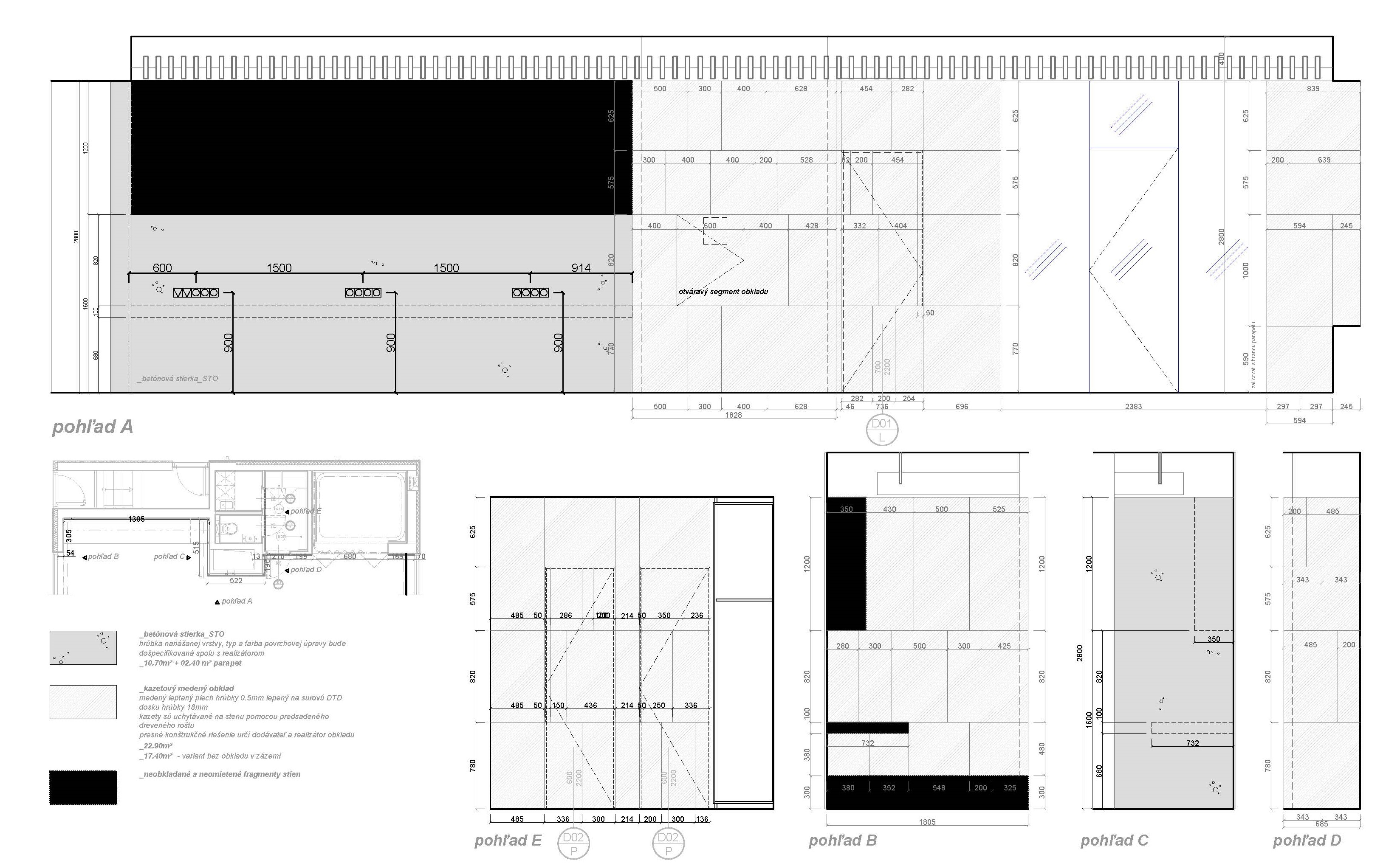
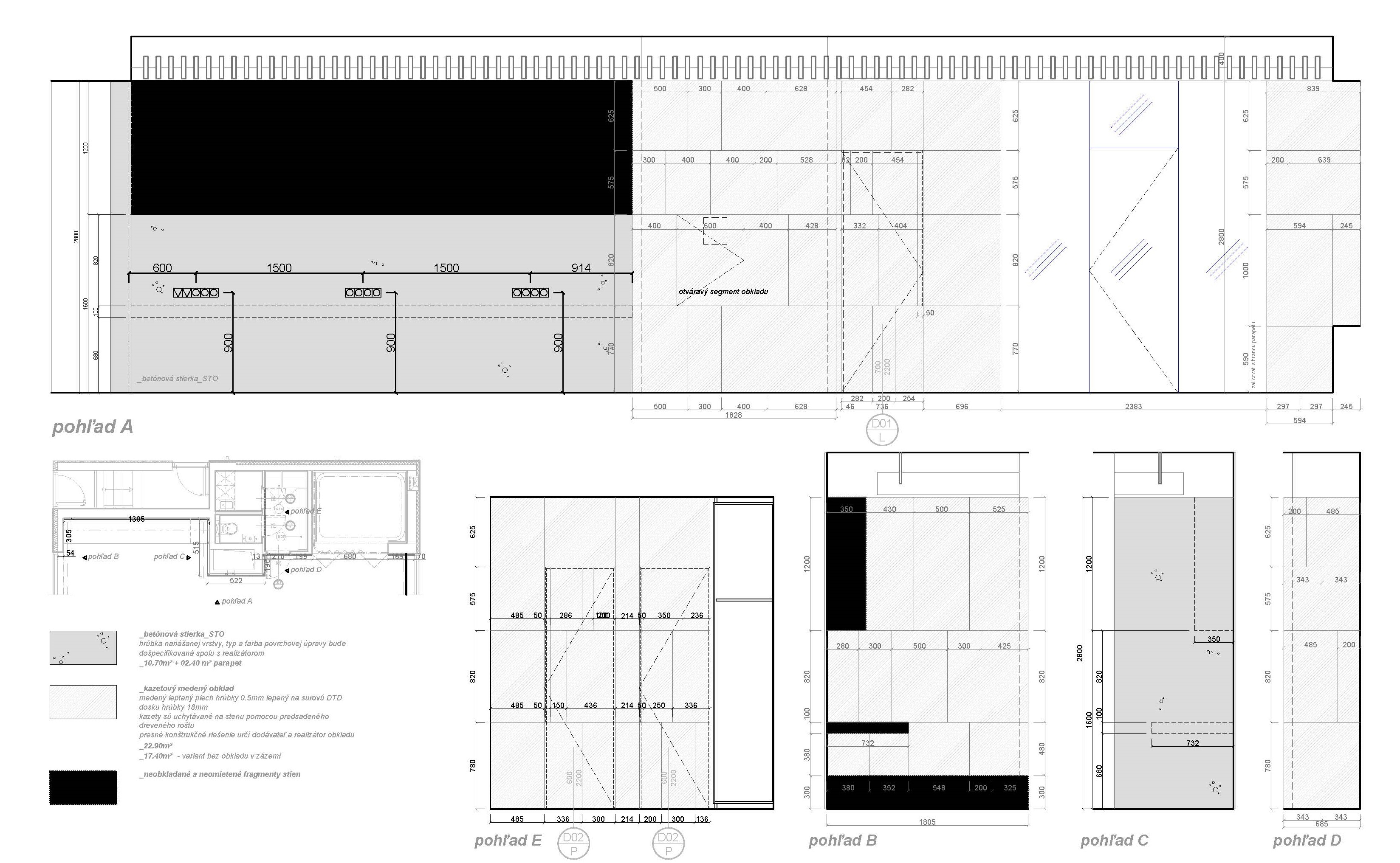
Lesklé biele plochy recepcie kontrastujú z obkladovými prvkami vyrobenými z medi. Na strope sú použité drevené lamely, medzi ktorými sa ukrývajú LED svietidlá zabezpečujúce väčšinu svetla v kancelárii. 

Peter Cintalan

Epoxidová podlaha, strom z drevených lamiel a medené panely vytvárajú prijemný mix prírodných materiálov.

Peter Cintalan
Pôdorys
Pôdorys
Rozvinuté pohľady
Rozvinuté pohľady
Peter Cintalan
Peter Cintalan
Peter Cintalan

Poloha diela

Ing.arch. Peter Kukučka
Ing.arch. Jaroslav Takáč
Ing.arch. Branislav Loskot
Ing.arch. Juraj Benko
Ing.arch. Adam Kuzma

Súvisiace články

Vložené
29. jún 2015
0
1399
Hlavný obsahHlavný obsah
Čakajte prosím