Novotvar v prostredí alpskej obce.
Hansgrohe - prémiová značka kúpeľňových riešení, ponúka nadčasový dizajn, technickú precíznosť a udržateľné inovácie...
Využite špeciálnu akciu Internorm: okná za minuloročné ceny a hliníkový kryt úplne zadarmo. Ponuka je časovo obmedzená!
Na podujatí sa predstaví až 37 vystavovateľov - popredných dodávateľov stavebných materiálov a inovácií s prezentáciou...
Sumarizácia najdôležitejších inovácií, ktoré redefinujúcich využitie tohto energetického zdroja.
AMPHIBIA 3000 GRIP 1.3 od spoločnosti ATRO predstavuje modernú hydroizolačnú technológiu, ktorá spája vysokú odolnosť,...
Ambiciózne plány EK narazili na ekonomické možnosti domácností v jednotlivých členských štátoch –...
IDEA DOOR od spoločnosti JAP prináša do interiéru čistý minimalistický vzhľad vďaka bezrámovému riešeniu a precíznej...
Kontinuita riešenia od vonkajšieho obkladu až po kovania a kľučky.
Nástenné nadomietkové armatúry Vitus sú mimoriadne vhodné pre rýchlu a efektívnu...
Okenné profily z kompozitného materiálu RAU-FIPRO X od spoločnosti Rehau sú v porovnaní s tradičnými plastovými profilmi mnohonásobne...
Najnovší sortiment stolov pre zariadenie interiérov...
Spojenie moderného dizajnu, funkčnosti a svetla do harmonického architektonického prvku.
Kancelárska budova Baumit v slovinskom Trzine prešla premenou na moderné a udržateľné pracovisko. Architekti kládli dôraz...
Mottom šiesteho ročníku on-line konferencie odborníkov Xella Dialóg je Efektívny návrh budov 2025+: zmeny a riešenia

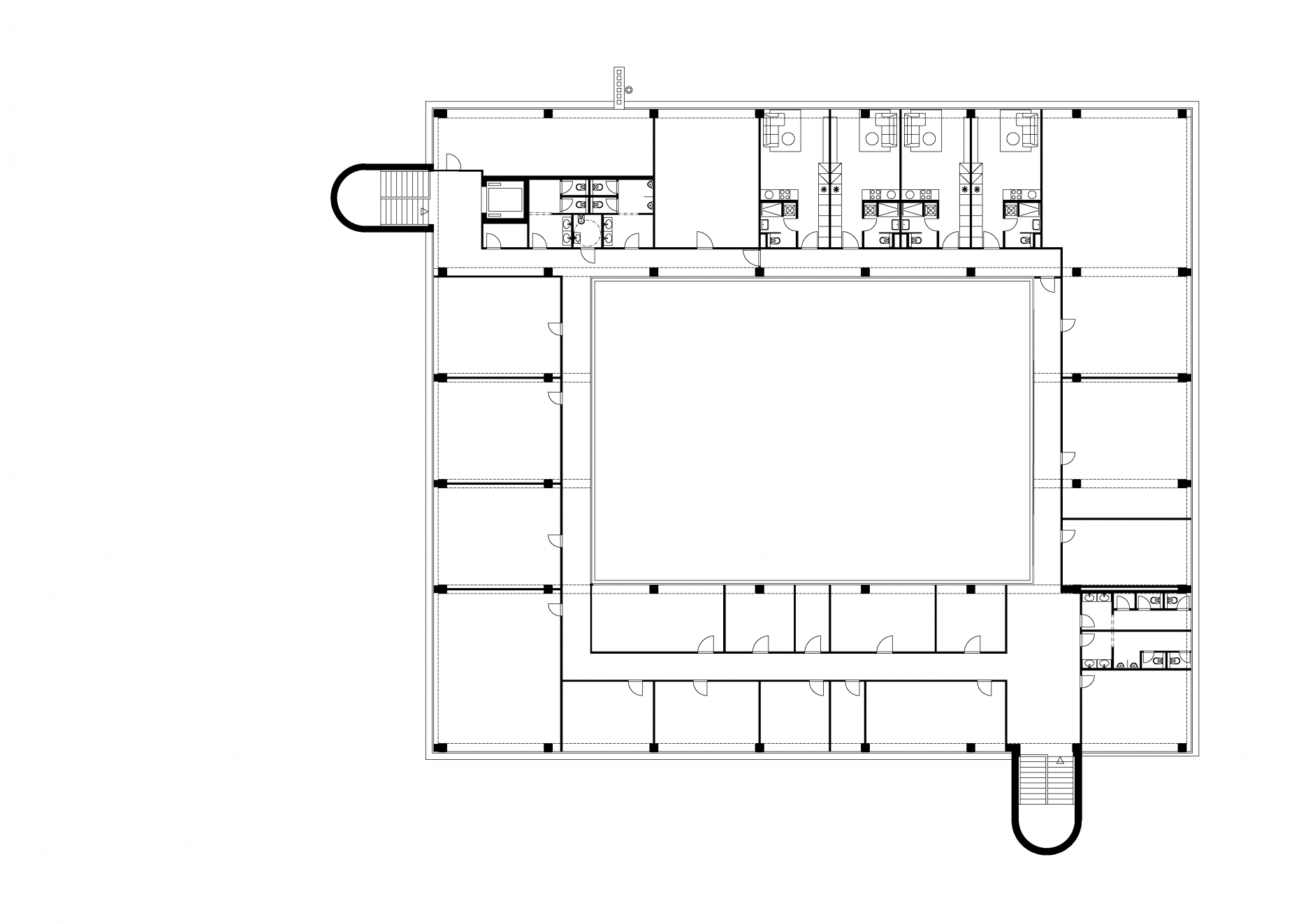
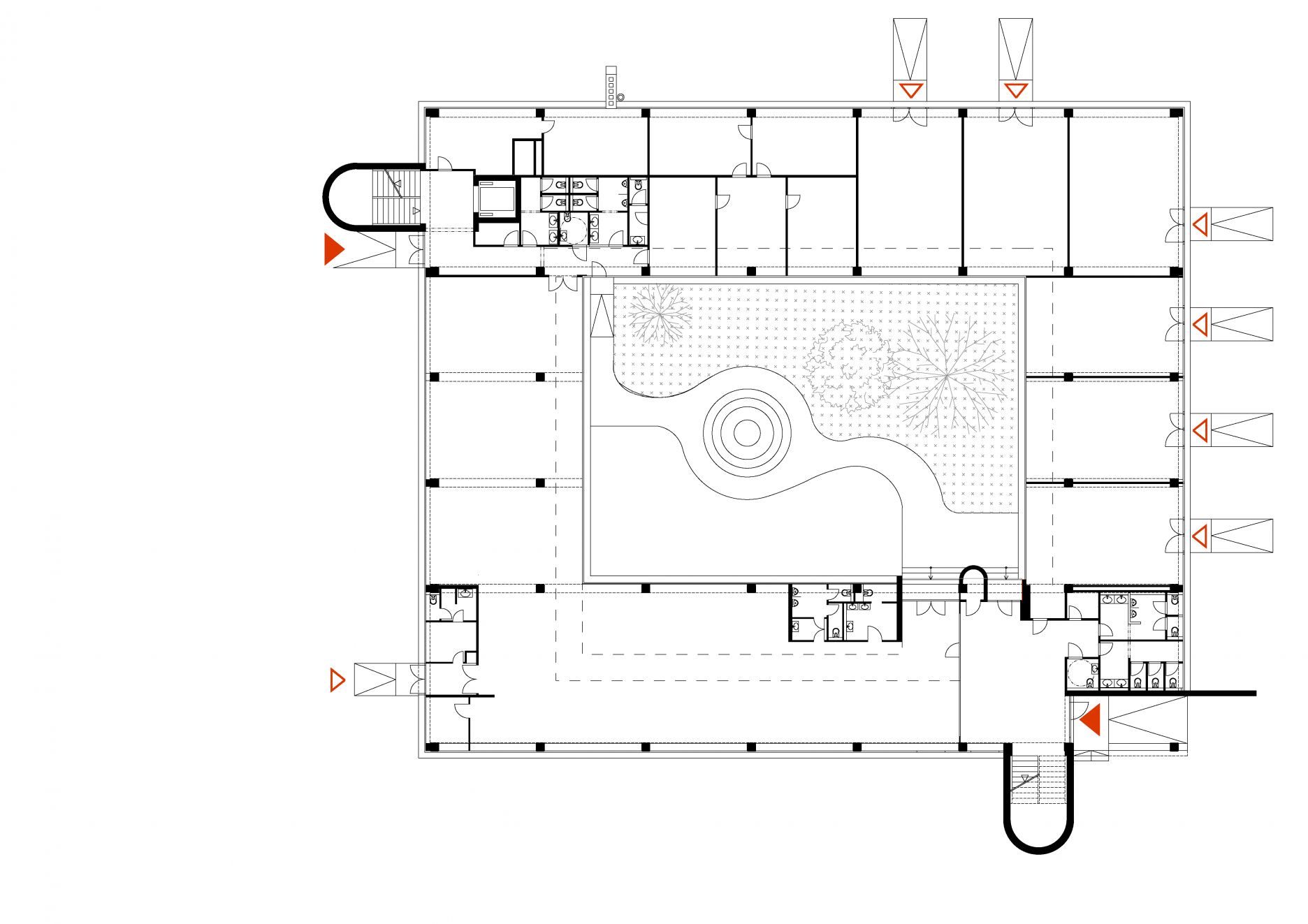
Rekonštrukcia objektu bývalého Štátneho výskumného projektového a typizačného ústavu (ŠPTÚ) v Ružinove z dielne ateliéru AT26 architects využíva pôvodný rámec administratívnej budovy a pretvára ho na flexibilne využiteľné prenajímateľné priestory.
Pochvalu si zaslúži odstránenie pôvodného oplotenia, humanizácia priľahlého verejného priestoru a átria, revitalizácia pôvodnej fontány, alebo zachovanie dobových architektonických detailov v interiéri. Objekt, ktorý prešiel výraznou premenou si tak po 50 rokoch zachováva svoju identitu.
Realizáciu bližšie predstavíme so sprievodným textom autorov:
Budova bývalého ŠPTÚ na Trnavskej ceste 67 v Bratislave, pôvodne navrhnutá v 70. rokoch Ing. arch. Spiškom, prešla komplexnou a citlivou rekonštrukciou, ktorej cieľom bolo zachovať hodnotné prvky pôvodnej architektúry a zároveň jej dodať moderný a reprezentatívny výraz. Hlavným princípom návrhu bola flexibilita dispozície, umožňujúca variabilné usporiadanie nájomných jednotiek podľa aktuálnych potrieb – od menších samostatných prevádzok až po väčšie celky a celkové otvorenie areálu, ktoré by slúžilo širokej verejnosti.
V rámci hlavných zásahov sme navrhli presun hlavného vstupu na juhovýchodné nárožie, čím sa vytvoril prekrytý vstup s možnosťou bezbariérového prístupu. Tento nový vstup prirodzene navádza návštevníkov a nenarúša pôvodnú logiku dispozície. Na severovýchodnej fasáde boli vytvorené samostatné vstupy do jednotlivých obchodných prevádzok, každý s vlastnou oceľovou rampou a totemom na umiestnenie loga, čím sa posilnila individualita a nezávislosť každého nájomcu.
Veľká pozornosť bola venovaná aj revitalizácii vnútorného átria, ktoré sa sprístupnilo a otvorilo širšiemu využitiu. Obnovila sa pôvodná fontána od akademického sochára Imricha Vaneka, doplnili sa nové povrchy vrátane liatej gumy s grafickými motívmi v odtieňoch žltej a obnovili sa trávnaté plochy. Vzrastlá zeleň bola zachovaná, doplnená novými výsadbami a boli odstránené pôvodné kríky. Pôvodné oplotenie areálu bolo odstránené, čím sa celý priestor otvoril pre verejnosť a umožnil voľný prístup z priľahlých komunikácií.
Súčasťou obnovy boli aj komplexné záhradné úpravy, ktoré zjednotili vonkajšie plochy a vytvorili príjemné mestské prostredie s dôrazom na ekologické riešenia, ako napríklad použitie priepustných dlažieb na spevnených plochách.
Architektonický výraz budovy sa obnovil použitím zaveseného odvetraného plášťa z materiálu Alucobond v takmer pôvodnej farebnosti. Schodiskové jadrá boli obložené hnedým klinkerom s vertikálnym kladením, čím sa zvýraznila ich hmota a konštrukčná čitateľnosť.
Interiér budovy bol kompletne modernizovaný – odstránili sa pôvodné priečky a zasklené steny, stropy a stĺpy zostali odkryté a boli očistené, čím sa zvýraznil pôvodný konštrukčný systém. Podlahy v prenajímateľných priestoroch boli zjednotené použitím epoxidovej liatej podlahy, deliace priečky v interiéri tvoria presklené steny s drevenými rámami a plnými dverami v zelenej farbe RAL 6005. Hygienické jadrá boli presunuté a novovytvorené tak, aby podporovali funkčné členenie priestoru.
V severnom krídle na 2. nadzemnom podlaží vznikli štyri jednoizbové bytové jednotky s vlastným oddeleným vstupom cez uzamykateľnú chodbu, čo rozšírilo funkčné využitie objektu o rezidenčný prvok.
Komplexnou rekonštrukciou sa podarilo zachovať pôvodný charakter budovy, rešpektovať jej architektonické kvality a zároveň vytvoriť otvorený, moderný a verejne prístupný priestor, ktorý ponúka vysoký štandard služieb a atraktívne prostredie pre prácu i oddych.
Fotografie objektu pred rekonštrukciou:
Podklady: AT26 architects
Fotografie: Matej Zelenay