Advertorial

Pozvánka na 2. ročník stavebného veľtrhu BigMarket na Slovensku

Na podujatí sa predstaví až 37 vystavovateľov - popredných dodávateľov stavebných materiálov a inovácií s prezentáciou...

Hotel Hirschen Spa House, Rakúsko

Novotvar v prostredí alpskej obce.

Vytvorte si kúpeľňu snov: dizajnové riešenie od značky hansgrohe

Hansgrohe - prémiová značka kúpeľňových riešení, ponúka nadčasový dizajn, technickú precíznosť a udržateľné inovácie...

Okná Internorm za minuloročné ceny + hliníkový kryt zdarma!

Využite špeciálnu akciu Internorm: okná za minuloročné ceny a hliníkový kryt úplne zadarmo. Ponuka je časovo obmedzená!

Moderné plynové technológie: Efektivita a inovácie pre 21. storočie

Sumarizácia najdôležitejších inovácií, ktoré redefinujúcich využitie tohto energetického zdroja.

Utesňovanie spodných stavieb pomocou hydro-aktívnej fólie AMPHIBIA.

AMPHIBIA 3000 GRIP 1.3 od spoločnosti ATRO predstavuje modernú hydroizolačnú technológiu, ktorá spája vysokú odolnosť,...

Dekarbonizácia individuálneho vykurovania domácností – Green Deal evolučne a nie revolučne

Ambiciózne plány EK narazili na ekonomické možnosti domácností v jednotlivých členských štátoch –...

Minimalistické dvere IDEA – technická precíznosť a čistota prevedenia

IDEA DOOR od spoločnosti JAP prináša do interiéru čistý minimalistický vzhľad vďaka bezrámovému riešeniu a precíznej...

Dom s výhľadom na údolie, Dlouhý Most (ČR)

Kontinuita riešenia od vonkajšieho obkladu až po kovania a kľučky.

Schell Vitus – osvedčené riešenie pre sprchy a umývadlá vo verejnom sektore s viac ako desaťročnou tradíciou

Nástenné nadomietkové armatúry Vitus sú mimoriadne vhodné pre rýchlu a efektívnu...

Kompozitné okná predstavujú súčasnosť a budúcnosť

Okenné profily z kompozitného materiálu RAU-FIPRO X od spoločnosti Rehau sú v porovnaní s tradičnými plastovými profilmi mnohonásobne...

Myotis - stoly 2025

Najnovší sortiment stolov pre zariadenie interiérov...

Priemyselné sklenené priečky Dorsis Digero: svetelné rozhranie pre moderné interiéry

Spojenie moderného dizajnu, funkčnosti a svetla do harmonického architektonického prvku.

Význam prirodzeného svetla pre moderné a flexibilné pracovné prostredie

Kancelárska budova Baumit v slovinskom Trzine prešla premenou na moderné a udržateľné pracovisko. Architekti kládli dôraz...

Konferencia Xella Dialóg predstaví novinky a trendy v stavebníctve

Mottom šiesteho ročníku on-line konferencie odborníkov Xella Dialóg je Efektívny návrh budov 2025+: zmeny a riešenia

The Eatery - bistro Praha, Holešovice

Kuchyňa ako javisko.
Diela
Red 309.02.2019
13700+16
The Eatery - bistro Praha, Holešovice
Autori: Ing. arch. ing. David Neuhäusl, Ing. arch. Matěj HunalPodlažná plocha: 367 m2Návrh: 2017 - 2018Realizácia: 2018 - 2018Adresa: U Uranie 18, Praha, Česká republikaPublikované: 9. február 2019

Obvyklé materiály použité v nových súvislostiach. Surovosť niekedy prekvapí, má však vždy pointu. Realizácia ateliéru Neuhäusl Hunal je urobená ako obvykle s prehľadom a vtipom.

Holešovické bistro svojim dvojznačným názvom /The(E)ater(y)/ definuje koncept projektu - kuchyňa ako javisko . Architektúra vytvára scénu pre predstavenie, ktoré sa odohráva v kuchyni i na tanieri. Kľúčové princípy - racionalita, kontrast, prirodzenosť a moderná interpretácia českej klasiky - sú v súlade s gastronomickou filozofiou fine dining podniku.

Foto: Studio Flusser - Zdeněk Porcal

Bistro sa nachádza na prízemí administratívneho objektu z deväťdesiatych rokov, kde pôvodne fungoval obchod s interiérovými dekoráciami. Počas celého tvorivého procesu bolo zásadnou úlohou udržať jednoduchosť a jednoznačnosť priestoru. Na výsledku má podľa slov mladých architektov výrazný podiel intenzívna spolupráca s budúcimi užívateľmi priestoru.

Foto: Studio Flusser - Zdeněk Porcal
Foto: Studio Flusser - Zdeněk Porcal
Foto: Studio Flusser - Zdeněk Porcal

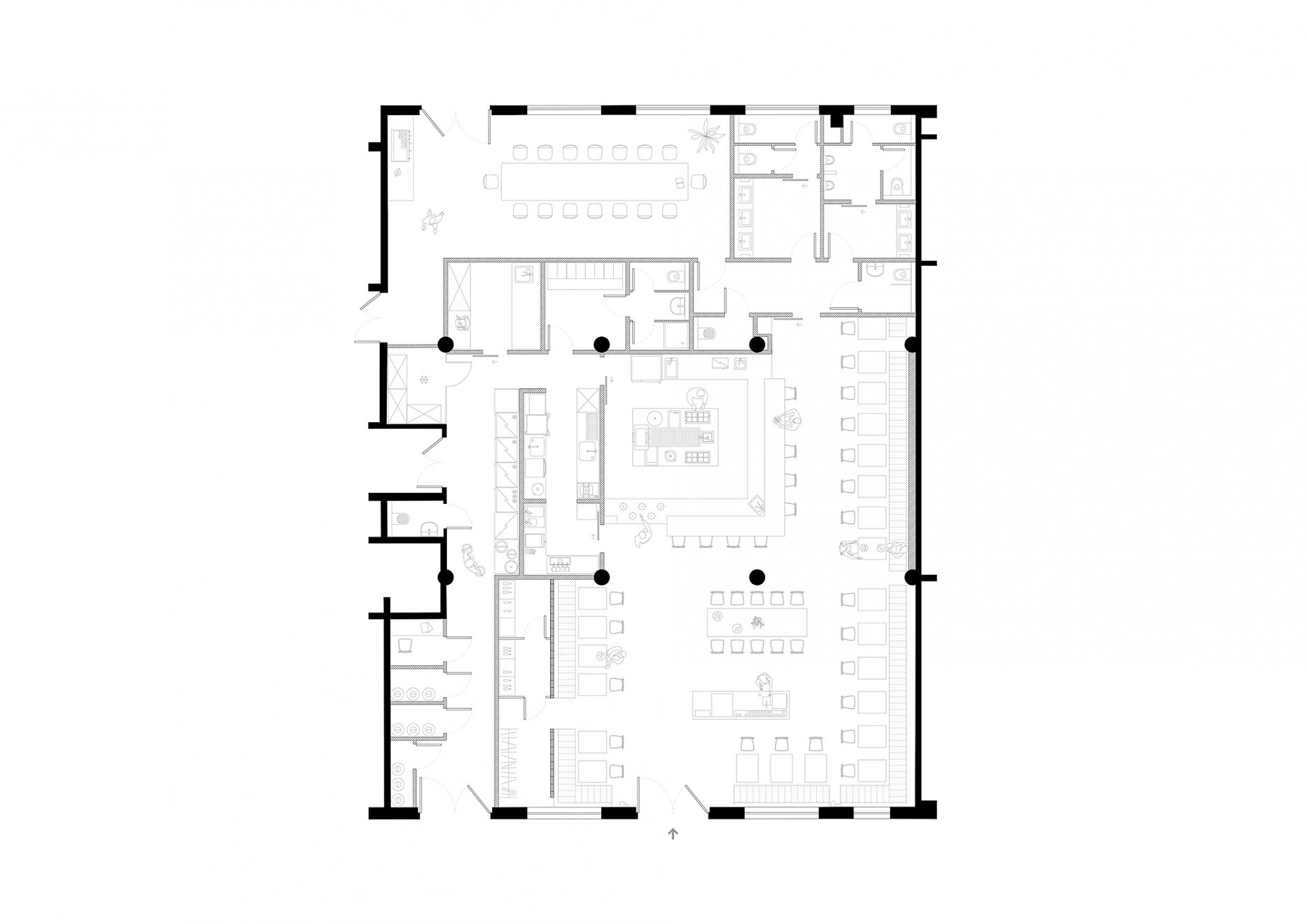
Dispozícia a prevádzka

Otvorená kuchyňa je jadrom kompaktného priestoru reštaurácie, ktorý lemuje kontinuálna čalúnená lavica. Vysoké sedenie po obvode kuchyne umožňuje pozorovať prípravu pokrmov a komunikovať s kuchármi. Absenciu tradičného baru nahrádza predsunutý pult pre čašníkov umiestnený priamo oproti vstupu do reštaurácie. Polopriehľadná stena mäkko oddeľuje vinotéku a neformálnu šatňu. Racionálna organizácia všetkých prevádzok zlepšuje orientáciu hosťa a podporuje prehľadnosť priestoru.

Axonometria
AxonometriaAutor: Neuhäusl Hunal
Pôvodný stav
Pôvodný stavAutor: Neuhäusl Hunal
Súčasný stav
Súčasný stavAutor: Neuhäusl Hunal

Materiály

Obvyklé materiály použité v nových súvislostiach definujú funkčné členenie priestoru. Základom sú odhalené nosné železobetónové konštrukcie, ktoré dopĺňa starostlivo vybratý mobiliár a predovšetkým analogicky použitý surový heraklit. Drevocementové dosky bez povrchovej úpravy plnia akustickú funkciu a podľa slov architektov tiež odkazujú na obklad fasády budovy. Obyčajné debniace tvarovky skladané na výšku čiastočne rozdeľujú priestor.

So surovými povrchmi odbytovej časti kontrastuje hladký biely keramický obklad a nerez gastronomickej prevádzky podčiarknutý jemnou grafikou. Zámerne nedokončené sadrokartónové priečky na chodbe tvoria ľahko šokujúci prechod z vizuálne "rušnej" jedálne k čiernobielemu minimalizmu toaliet.

Foto: Studio Flusser - Zdeněk Porcal
Foto: Studio Flusser - Zdeněk Porcal
Foto: Studio Flusser - Zdeněk Porcal
Foto: Studio Flusser - Zdeněk Porcal
Foto: Studio Flusser - Zdeněk Porcal
Foto: Studio Flusser - Zdeněk Porcal
Foto: Studio Flusser - Zdeněk Porcal
Foto: Studio Flusser - Zdeněk Porcal
Foto: Studio Flusser - Zdeněk Porcal
Foto: Studio Flusser - Zdeněk Porcal
Foto: Studio Flusser - Zdeněk Porcal
Foto: Studio Flusser - Zdeněk Porcal
Foto: Studio Flusser - Zdeněk Porcal
Foto: Studio Flusser - Zdeněk Porcal
Foto: Studio Flusser - Zdeněk Porcal
Foto: Studio Flusser - Zdeněk Porcal
Foto: Studio Flusser - Zdeněk Porcal

Osvetlenie 

Svetlo podporuje materiálové riešenie a členenie interiéru: zavesené betónové svietidlá bodovo osvetľujú stoly pre hostí, studené, intenzívne svetlo zdôrazňuje hygienicko-technický charakter prevádzky kuchyne. Plošné osvetlenie pod napínanými podhľadmi na chodbe a na toaletách necháva vyniknúť surové materiály stien. Podsvietenie vinotéky vytvára jemnú hru farieb a jedinú dekoráciu v priestore. 

Foto: Studio Flusser - Zdeněk Porcal
Foto: Studio Flusser - Zdeněk Porcal
Foto: Studio Flusser - Zdeněk Porcal
Foto: Studio Flusser - Zdeněk Porcal
Foto: Studio Flusser - Zdeněk Porcal
Foto: Studio Flusser - Zdeněk Porcal

Poloha diela

Ing. arch. ing. David Neuhäusl
Ing. arch. Matěj Hunal
Vložené
7. február 2019
0
1370
Hlavný obsahHlavný obsah
Čakajte prosím