Využite špeciálnu akciu Internorm: okná za minuloročné ceny a hliníkový kryt úplne zadarmo. Ponuka je časovo obmedzená!
Na podujatí sa predstaví až 37 vystavovateľov - popredných dodávateľov stavebných materiálov a inovácií s prezentáciou...
Sumarizácia najdôležitejších inovácií, ktoré redefinujúcich využitie tohto energetického zdroja.
AMPHIBIA 3000 GRIP 1.3 od spoločnosti ATRO predstavuje modernú hydroizolačnú technológiu, ktorá spája vysokú odolnosť,...
Ambiciózne plány EK narazili na ekonomické možnosti domácností v jednotlivých členských štátoch –...
IDEA DOOR od spoločnosti JAP prináša do interiéru čistý minimalistický vzhľad vďaka bezrámovému riešeniu a precíznej...
Kontinuita riešenia od vonkajšieho obkladu až po kovania a kľučky.
Nástenné nadomietkové armatúry Vitus sú mimoriadne vhodné pre rýchlu a efektívnu...
Okenné profily z kompozitného materiálu RAU-FIPRO X od spoločnosti Rehau sú v porovnaní s tradičnými plastovými profilmi mnohonásobne...
Najnovší sortiment stolov pre zariadenie interiérov...
Spojenie moderného dizajnu, funkčnosti a svetla do harmonického architektonického prvku.
Kancelárska budova Baumit v slovinskom Trzine prešla premenou na moderné a udržateľné pracovisko. Architekti kládli dôraz...
Mottom šiesteho ročníku on-line konferencie odborníkov Xella Dialóg je Efektívny návrh budov 2025+: zmeny a riešenia
Robot WLTR predstavuje moderný prístup k murovaným konštrukciám. Vďaka automatizácii dokáže rýchlo, presne a bezpečne realizovať...
Okrem bezpečnosti majú okná aj elegantný vzhľad, pretože nie sú viditeľné žiadne uzamykacie časti kovania.

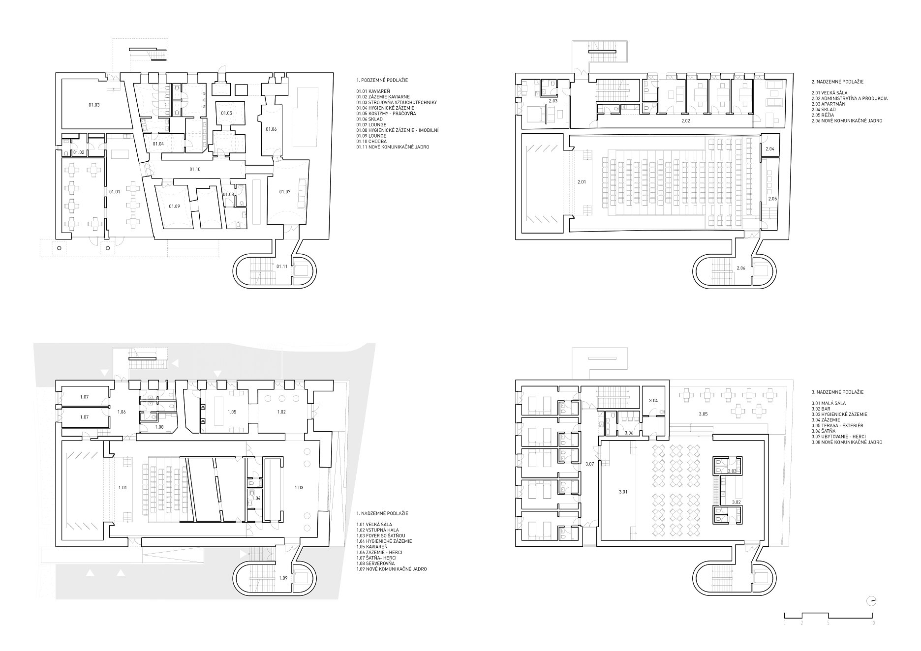
Divadlo Poprad je výsledkom radikálnej, no citlivej premeny bývalého kina Máj v historickej mestskej časti Poprad-Veľká. Ateliér zerozero pretvára v tesnom susedstve Kostola sv. Jána Evanjelistu niekoľkokrát prestavanú hmotu na plnohodnotnú profesionálnu divadelnú scénu so silným dôrazom na recykláciu existujúcej stavebnej štruktúry namiesto ďalšieho búrania.
Architektonický koncept pracuje s výraznými hmotami strešnej krajiny a so zaoblenými formami, ktoré vstupujú do dialógu s historickou parceláciou a gotickými klenbami zachovanými v podzemí.
Dispozícia prirodzene nadväzuje na pôvodný nosný systém, no zároveň vytvára plnohodnotný priestor pre súčasné divadelné umenie. Dôležitú súčasť projektu tvorí kaviareň "Záhrada", letná scéna pri Velickom potoku a terasa orientovaná na panorámu Tatier.
Výsledkom je presvedčivé architektonické riešenie so skulpturálnou kvalitou. Príkladná práca s vrstvami pôvodnej architektúry tvoria čerešničku na torte u nás ojedinelej realizácie kvalitnej verejnej kultúrnej stavby.
Realizáciu bližšie predstavíme prostredníctvom sprievodného autorského textu:
Kontext a história
Riešené územie a objekt sa nachádzajú v mestskej časti Poprad-Veľká na Scherfflerovej ulici, v susedstve národnej kultúrnej pamiatky — Kostola sv. Jána Evanjelistu. Prvá písomná zmienka o Veľkej pochádza z roku 1268; v 15. storočí patrila medzi najväčšie a najbohatšie spišské mestečká. V roku 1945 bola pričlenená k mestu Poprad. Veľká predstavuje typické spišské mestečko s lineárnym pôdorysom, ktorý vznikol pozdĺž starobylej obchodnej cesty vedúcej popod Tatry. Založená bola nemeckými kolonistami a jej urbanistická štruktúra dodnes nesie stopy pôvodnej gotickej i renesančnej parcelácie s množstvom zachovaných a zrekonštruovaných meštianskych domov.
Projekt rieši rekonštrukciu a prestavbu bývalého kina Máj na novú divadelnú prevádzku. „Družstevný dom“, neskôr kino „Máj“, postavený v 80. rokoch 20. storočia, bol založený na pôdoryse dvoch pôvodných gotických meštianskych domov, ktoré boli v renesancii spojené do jedného celku.
Rekonštrukcia zachovala pôvodné zaklenuté priestory v podzemnom podlaží a významnú časť nadzemných nosných konštrukcií. Pôvodná sedlová strecha bola nahradená manzardovou na oceľových priehradových nosníkoch. Kino fungovalo do polovice 90. rokov minulého storočia; následne bol objekt prevažne nevyužívaný a postupne chátral. Súkromný investor — pre ktorého sme v roku 2018 realizovali literárnu kaviareň a malú divadelnú sálu v inom meste — sa v roku 2022 rozhodol objekt odkúpiť od mesta a založiť historicky prvú profesionálnu divadelnú scénu vo Veľkej.
Náš návrh je recykláciou už niekoľkokrát recyklovanej stavby, čo vnímame ako príspevok do diskusie o zachovaní a opätovnom využívaní existujúcich stavebných štruktúr a o potrebe minimalizovať ekologické dopady nadmerného búrania.
Urbanistické a architektonické riešenie
Existujúci objekt svojou mierkou a formou výrazne ovplyvňoval priestorové vzťahy v území. Jednou zo základných stratégií architektonického riešenia bola redukcia jeho objemu s cieľom zmierniť dopad na uličnú zástavbu a na priľahlý kostol.
Premodelovaním strešnej krajiny, zmenšením objemu strešného podlažia a kontextuálnou úpravou strešnej roviny smerom do ulice získal objekt jasný a zapamätateľný výraz, ktorý rešpektuje svoj najdôležitejší susedný prvok. Na mieste pôvodného exteriérového schodiska na východnej strane sme navrhli nové vertikálne komunikačné jadro s objemom tvarovaným zaobleniami. Zaoblenia, artikulujú aj hlavný vstup do objektu a modelovanie strešnej krajiny. Modelácia architektonickej formy pracuje s geometriou nadväzujúcou na zachované gotické klenby. Na východnej strane bola navrhnutá aj nová rampa s pokračovaním do balkóna orientovaného k Velickému potoku.
Architektonický návrh rešpektuje pôvodnú priestorovú skladbu, ale zároveň definuje nové prevádzkové väzby potrebné pre plnohodnotné fungovanie divadla. Dominantným priestorom je hlavná sála s pevnou eleváciou hľadiska. Na 3. nadzemnom podlaží sa nachádza malá sála situovaná v strešnej nadstavbe, doplnená priestormi zázemia účinkujúcich orientovanými k potoku. Podzemné podlažie obsahuje hygienické zázemie návštevníkov, technické priestory a kaviareň Záhrada s priamym kontaktom na „letnú scénu“ na východnej časti parcely. Architektonický výraz objektu je civilný, no modelácia hmoty odzrkadľuje jeho verejnú a kultúrnu funkciu.
Dispozičné riešenie vychádza z dôkladnej analýzy priestorových kapacít pôvodného objektu. Rešpektuje historickú skladbu, no sériou zásahov zavádza nové prevádzkové princípy súčasnej kultúrnej stavby. Hlavný vstup z ulice je zachovaný, avšak doplnený o premodelovaný prekrytý nástupný priestor. Na foyer nadväzuje predaj lístkov a malý divadelný bar. Vo foyer sa nachádza šatňa v samostatnom boxe s hygienickým zázemím pre imobilných a pre zamestnancov. Hlavná sála na 1. NP pozostáva z hľadiska s pevnou eleváciou a z javiska oddeleného portálom. Na javisko nadväzuje zázemie účinkujúcich s možnosťou samostatného prístupu z exteriéru pôvodným schodiskom. Nové komunikačné jadro spája všetky podlažia vrátane lóže na 2. NP a malej sály na 3. NP. Kapacita hlavnej sály s lóžou je 180 miest.
Na 2. NP sa nachádza administratívne zázemie a apartmán pre hosťujúcich umelcov. Na 3. NP je „malá“ sála s kapacitou 80 divákov, foyer s barom a terasou orientovanou na panorámu Tatier. Sálu dopĺňajú šatne a ubytovacie bunky pre účinkujúcich. Slúži aj ako priestor na skúšky.
Nové vertikálne konštrukcie sú z monolitického železobetónu a keramickej pálenej tehly. Nové stropy sú železobetónové; nad malou sálou sú oceľové uzavreté nosníky s trapézovými plechmi. Objekt je zateplený kontaktným zatepľovacím systémom s ušľachtilou omietkou. Strechy sú ploché jednoplášťové a dažďová voda je odvádzaná do vsaku systémom skrytým v zateplení. Okná sú hliníkové s izolačným trojsklom. Interiéry kombinujú pohľadový betón, hladké omietky a brúsený betón. Obe sály sú riešené v kontrastnej materialite: drevený akustický obklad a podhľad v čiernej farbe dopĺňa „pattern“ mosadzných prvkov, ktoré dodávajú priestoru noblesu. Objekt je vykurovaný kaskádou tepelných čerpadiel vzduch/ voda, hlavné priestory sú vybavené vzduchotechnikou a javiskovou technikou na súčasnej úrovni. Interiéry sú zariadené striedmym, kvalitným mobiliárom.
Letná scéna je tvorená kaskádovitým sedením z prefabrikovaných betónových prvkov. Západná časť parcely a parkovisko sú riešené zatrávňovacími prefabrikátmi.
Podklady: zerozero
Fotografie: Matej Hakár