Advertorial

Pozvánka na 2. ročník stavebného veľtrhu BigMarket na Slovensku

Na podujatí sa predstaví až 37 vystavovateľov - popredných dodávateľov stavebných materiálov a inovácií s prezentáciou...

Hotel Hirschen Spa House, Rakúsko

Novotvar v prostredí alpskej obce.

Vytvorte si kúpeľňu snov: dizajnové riešenie od značky hansgrohe

Hansgrohe - prémiová značka kúpeľňových riešení, ponúka nadčasový dizajn, technickú precíznosť a udržateľné inovácie...

Okná Internorm za minuloročné ceny + hliníkový kryt zdarma!

Využite špeciálnu akciu Internorm: okná za minuloročné ceny a hliníkový kryt úplne zadarmo. Ponuka je časovo obmedzená!

Moderné plynové technológie: Efektivita a inovácie pre 21. storočie

Sumarizácia najdôležitejších inovácií, ktoré redefinujúcich využitie tohto energetického zdroja.

Utesňovanie spodných stavieb pomocou hydro-aktívnej fólie AMPHIBIA.

AMPHIBIA 3000 GRIP 1.3 od spoločnosti ATRO predstavuje modernú hydroizolačnú technológiu, ktorá spája vysokú odolnosť,...

Dekarbonizácia individuálneho vykurovania domácností – Green Deal evolučne a nie revolučne

Ambiciózne plány EK narazili na ekonomické možnosti domácností v jednotlivých členských štátoch –...

Minimalistické dvere IDEA – technická precíznosť a čistota prevedenia

IDEA DOOR od spoločnosti JAP prináša do interiéru čistý minimalistický vzhľad vďaka bezrámovému riešeniu a precíznej...

Dom s výhľadom na údolie, Dlouhý Most (ČR)

Kontinuita riešenia od vonkajšieho obkladu až po kovania a kľučky.

Schell Vitus – osvedčené riešenie pre sprchy a umývadlá vo verejnom sektore s viac ako desaťročnou tradíciou

Nástenné nadomietkové armatúry Vitus sú mimoriadne vhodné pre rýchlu a efektívnu...

Kompozitné okná predstavujú súčasnosť a budúcnosť

Okenné profily z kompozitného materiálu RAU-FIPRO X od spoločnosti Rehau sú v porovnaní s tradičnými plastovými profilmi mnohonásobne...

Myotis - stoly 2025

Najnovší sortiment stolov pre zariadenie interiérov...

Priemyselné sklenené priečky Dorsis Digero: svetelné rozhranie pre moderné interiéry

Spojenie moderného dizajnu, funkčnosti a svetla do harmonického architektonického prvku.

Význam prirodzeného svetla pre moderné a flexibilné pracovné prostredie

Kancelárska budova Baumit v slovinskom Trzine prešla premenou na moderné a udržateľné pracovisko. Architekti kládli dôraz...

Konferencia Xella Dialóg predstaví novinky a trendy v stavebníctve

Mottom šiesteho ročníku on-line konferencie odborníkov Xella Dialóg je Efektívny návrh budov 2025+: zmeny a riešenia

Expanzia pivovaru Falkenštejn, Krásná Lípa (ČR)

Rozšírenie priestorov pivovaru na námestí severočeského mestečka.
Diela
Red 423.04.2020
8910+12
Expanzia pivovaru Falkenštejn, Krásná Lípa (ČR)
Autori: Ing. arch. Patrik Hoffman, Ing. arch. Simona Pouzar BenátskáInvestor: Pivovar FalkenštejnNávrh: 2015 - 2015Realizácia: 2015 - 2017Adresa: Křinické náměstí 7/12, Krásná Lípa, Česká republikaPublikované: 23. apríl 2020

Pivovar zo svojich historických priestorov expandoval do susedného meštianskeho domu z 19. storočia. Zrekonštruovaný objekt umožnil rozšírenie a presunutie technológie pivovaru. Neukrýva ju. Naopak, svoju náplň cez presklené "výklady" navonok prezentuje. Funkcia objektu je tak už na prvý pohľad z námestia jasne identifikovateľná.

Realizáciu výstižne charakterizujú slová autorov:

Historie, bez níž bychom tady nepili.

Jak se bouřlivě rozvíjelo město Krásná Lípa, tak se rozvíjela i žízeň místních továrních dělníků a výroba piva. Úpadek města způsobený vyhnáním, válkou, vysídlením, kolektivizací, privatizací, restitucí, ale i globalizací, znamenal konec pivovarnictví ve městě. Vše změnila práce zastupitelů, šikovných lidí, ale i osvícených investorů. Krásná Lípa ukazuje, že s nepřízní osudu lze bojovat.

Pohľad z ulice
Pohľad z uliceFoto: Petr Špánek

I díky tomuto úsilí, jsme se mohli zabývat expanzí pivovaru, kterému se v nových podmínkách opět daří. Hlavním záměrem bylo nejen rozšíření a přesunutí stávající technologie s důrazem na odhalení provozu pivovaru široké veřejnosti, ale í nabízených služeb rozšířením restaurace a vybudováním penzionu.

Přetření domu na bílo umožnilo harmonizaci nesourodého prostředí, ukazuje, že je možné zachovat původní charakter budov při nedostatku peněz a potřebě provést nové zásahy.

Foto: Petr Špánek

Nejvýraznější změny proběhly uvnitř domu. V přízemí bylo potřeba vytvořit a upravit prostory pro výrobu piva a striktně oddělit provoz pivovaru od zbývajících částí budovy. Snahou bylo využít stávající výlohy a jejich prostřednictvím ukázat samotnou výrobu a proces vaření piva jak z náměstí, tak i z prostoru restaurace. V patře vznikly pokoje pro krátkodobé ubytování návštěvníků, tak aby si hosté mohli dopřát živý zážitek z toho jak a kde se připravuje „jejich“ pivo.

Tvarově i materiálově akcentovaná přístavba v zadní části zásobovacího dvora napomáhá celkovému zvýraznění domu jako pivovaru, v poměrně nepřehledném a nevýrazném místě. Přístavbou řešíme několik funkcí – skladové prostory, komunikační propojení i zvýraznění nového vstupu a vytvoření "zápraží" pro penzion.

Dej Bůh štěstí!

Varňa pivovaru
Varňa pivovaruFoto: Petr Špánek
"Výklad" vo varni
"Výklad" vo varniFoto: Petr Špánek
Priehľad z reštaurácie do varne
Priehľad z reštaurácie do varneFoto: Petr Špánek
Interiér ubytovacej časti
Interiér ubytovacej častiFoto: Petr Špánek
Situácia
Situácia
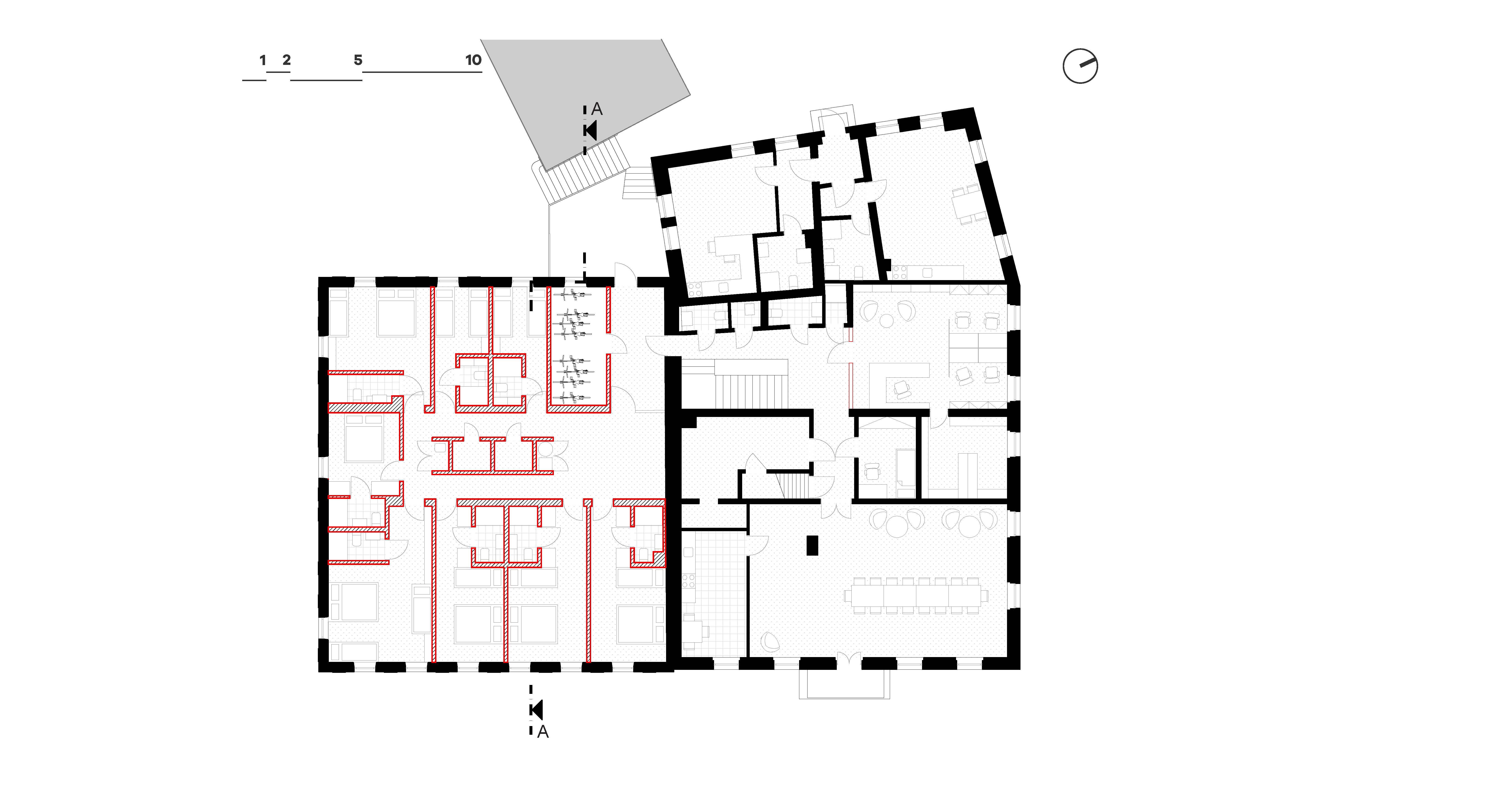
Pôdorys 1. N.P.
Pôdorys 1. N.P.Autor: Ateliér Hoffman
Pôdorys 2. N.P.
Pôdorys 2. N.P.Autor: Ateliér Hoffman
Rez A-A
Rez A-AAutor: Ateliér Hoffman
Pohľad južný
Pohľad južnýAutor: Ateliér Hoffman
Pohľad severný
Pohľad severnýAutor: Ateliér Hoffman
Pohľad východný
Pohľad východnýAutor: Ateliér Hoffman
Vizualizácia - pohľad z námestia
Vizualizácia - pohľad z námestiaAutor: Ateliér Hoffman
Vizualizácia - zadný trakt
Vizualizácia - zadný traktAutor: Ateliér Hoffman
Pôvodný stav
Pôvodný stavFoto: archív autorov
Pôvodný stav
Pôvodný stavFoto: archív autorov
Pôvodný stav
Pôvodný stavFoto: archív autorov
Pôvodný stav
Pôvodný stavFoto: archív autorov

Poloha diela

Ing. arch. Patrik Hoffman
Ing. arch. Simona Pouzar Benátská
Vložené
15. apríl 2020
0
891
Hlavný obsahHlavný obsah
Čakajte prosím