Advertorial

Pozvánka na 2. ročník stavebného veľtrhu BigMarket na Slovensku

Na podujatí sa predstaví až 37 vystavovateľov - popredných dodávateľov stavebných materiálov a inovácií s prezentáciou...

Hotel Hirschen Spa House, Rakúsko

Novotvar v prostredí alpskej obce.

Vytvorte si kúpeľňu snov: dizajnové riešenie od značky hansgrohe

Hansgrohe - prémiová značka kúpeľňových riešení, ponúka nadčasový dizajn, technickú precíznosť a udržateľné inovácie...

Okná Internorm za minuloročné ceny + hliníkový kryt zdarma!

Využite špeciálnu akciu Internorm: okná za minuloročné ceny a hliníkový kryt úplne zadarmo. Ponuka je časovo obmedzená!

Moderné plynové technológie: Efektivita a inovácie pre 21. storočie

Sumarizácia najdôležitejších inovácií, ktoré redefinujúcich využitie tohto energetického zdroja.

Utesňovanie spodných stavieb pomocou hydro-aktívnej fólie AMPHIBIA.

AMPHIBIA 3000 GRIP 1.3 od spoločnosti ATRO predstavuje modernú hydroizolačnú technológiu, ktorá spája vysokú odolnosť,...

Dekarbonizácia individuálneho vykurovania domácností – Green Deal evolučne a nie revolučne

Ambiciózne plány EK narazili na ekonomické možnosti domácností v jednotlivých členských štátoch –...

Minimalistické dvere IDEA – technická precíznosť a čistota prevedenia

IDEA DOOR od spoločnosti JAP prináša do interiéru čistý minimalistický vzhľad vďaka bezrámovému riešeniu a precíznej...

Dom s výhľadom na údolie, Dlouhý Most (ČR)

Kontinuita riešenia od vonkajšieho obkladu až po kovania a kľučky.

Schell Vitus – osvedčené riešenie pre sprchy a umývadlá vo verejnom sektore s viac ako desaťročnou tradíciou

Nástenné nadomietkové armatúry Vitus sú mimoriadne vhodné pre rýchlu a efektívnu...

Kompozitné okná predstavujú súčasnosť a budúcnosť

Okenné profily z kompozitného materiálu RAU-FIPRO X od spoločnosti Rehau sú v porovnaní s tradičnými plastovými profilmi mnohonásobne...

Myotis - stoly 2025

Najnovší sortiment stolov pre zariadenie interiérov...

Priemyselné sklenené priečky Dorsis Digero: svetelné rozhranie pre moderné interiéry

Spojenie moderného dizajnu, funkčnosti a svetla do harmonického architektonického prvku.

Význam prirodzeného svetla pre moderné a flexibilné pracovné prostredie

Kancelárska budova Baumit v slovinskom Trzine prešla premenou na moderné a udržateľné pracovisko. Architekti kládli dôraz...

Konferencia Xella Dialóg predstaví novinky a trendy v stavebníctve

Mottom šiesteho ročníku on-line konferencie odborníkov Xella Dialóg je Efektívny návrh budov 2025+: zmeny a riešenia

Livsrum - centrum pre onkologických pacientov, Dánsko

Architektúra môže pomáhať urobiť život príjemnejším. A to aj vtedy, ak ide o život.
Diela
Red 327.03.2016
13480+5
Livsrum - centrum pre onkologických pacientov, Dánsko
Autori: Sinus Lynge, Tue Hesselberg, Mikkel BøghInvestor: Realdania, Kræftens BekæmpelseZastavaná plocha: 800 m2Podlažná plocha: 800 m2Návrh: 2011 - 2012Realizácia: 2013 - 2013Adresa: Næstved, DánskoPublikované: 27. marec 2016

Centrum poradenstva a starostlivosti o onkologických pacientov  sa nachádza v areáli nemocnice v dánskom meste Næstved. Budova je situovaná v blízkosti onkologických oddelení nemocnice, ale architektonické riešenie ho jasne oddeľuje od ostatných pavilónov nemocnice. Projekt progresívneho dánskeho ateliéru EFFEKT zvíťazil v roku 2012 v otvorenej architektonickej súťaži hlavne vďaka svojej ľudskej mierke. Autorom sa podarilo vytvoriť domácke prostredie, kde sa pacient necíti ako v nemocnici. Onkologické centrá Livsrum sú inšpirované známymi Maggie’s Centers, ktoré založila architektka Maggie Keswick Jencks a jej manžel, teoretik architektúry. Maggie trpiaca rakovinou mala mal z prvej ruky skúsenosti s depresívnym prostredím liečebných zariadení, a tak sa rozhodla podporiť vznik nových centier ktoré sú založené na presvedčení že architektúra môže pacientov inšpirovať a urobiť im život príjemnejším. Maggie Jencksová po sebe zanechala centrá, ktoré sa vyznačujú kvalitným architektonickým riešením (mená ako Snøhetta, OMA a mnoho ďaĺších) a špičkovou zdravotnou starostlivosťou. Jej manžel Charles Jencks vydal knihu The Architecture of Hope, v ktorej popisuje vplyv architektúry na liečbu z vlastnej skúsenosti. Filozofia a princípy popísané v tejto knihe boli aplikované aj pri návrhu centra Livsrum. Návrh zohľadňuje potrebu dostatku denného svetla, súkromia a pocitu bezpečia. Preferuje osobný prístup k pacientom, kvalitnú zdravotnú starostlivosť, tiché a pokojné prostredie.

Foto: Quintin Lake

Centrum pre onkologických pacientov je navrhnuté ako skupina siedmich menších pavilónov. Podobne ako pri kláštoroch sú jednotlivé funkcie navzájom prepojené a v centre dispozície vznikajú dve nádvoria – jedno z nich je pokojné miesto na oddych a meditáciu, druhé zas podporuje fyzickú aktivitu a sociálnu interakciu. Každý pavilón má svoju špecifickú náplň a dohromady tvoria súvislý sled rôznych priestorov. Nájdete tu aj funkcie, ako sú knižnica, spoločenská miestnosť, kuchyňa, salónik, rehabilitačné a wellness centrum .

Ako môžeme vytvoriť priestory, ktoré zastrešia všetky aspekty života s rakovinou ?
Ako môžeme vytvoriť priestory, ktoré zastrešia všetky aspekty života s rakovinou ?Koláž: EFFEKT

Vízia architektov bola vytvoriť architektúru, ktorá napriek použitiu súčasných výrazových prostriedkov svojou mierkou a konceptom vytvára jasnú alternatívu k sterilnému nemocničnému prostrediu.

ilustrovaný schematický  rez
ilustrovaný schematický rez

Projekt financovaný Danish Cancer Society sa nachádza v blízkosti onkologického oddelenia nemocnice, čo umožňuje jednoduchý prístup pre pacientov a ich rodinných príslušníkov.

Situácia
Situácia
Letecká snímka nemocničného areálu
Letecká snímka nemocničného areálu

Na rozdiel od tradičného a logického konceptu inštitúcie pod jednou strechou sa architekti navrhli „mikrourbanizmus“, ktorý pozostáva zo siedmych pavilónov. Podarilo sa vytvoriť životné prostredie, ktoré akceptuje ľudskú mierku, a rôznorodoť a podporuje celkový zážitok z priestoru.

Schéma priestorového riešenia
Schéma priestorového riešenia

Pozemok je obklopený cestami z troch strán. Umiestnením nádvorí v strede dispozície vzniká priestor chránený pred hlukom a stáva sa neoddeliteľnou súčasťou objektu. Každý pavilón má svoju špecifickú funkčnú náplň.

Schéma funkčnej náplne objektu
Schéma funkčnej náplne objektu

V strede dispozície, medzi oboma nádvoriami sa nachádza „Livsrum“ – hlavný spoločenský a životný priestor, ktorý vytvára prirodzené ťažisko priestoru a umožňuje plynulý pohyb cez jednotlivé pavilóny. Každý z má pavilónov je aspoň jednou stenou orientovaný do nádvoria.

Kľúčové priestory centra
Kľúčové priestory centra

Všetky pavilóny sú navrhované individuálne podľa funkcie a líšia sa navzájom rôznou atmosférou.

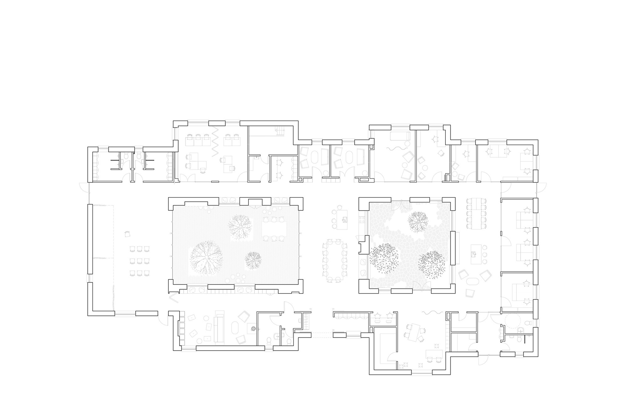
Pôdorys
Pôdorys

Návštevníci centra sú všetkých vekových kategórií. Od detí až po seniorov. Niektorí z nich sem prídu cvičiť, rehabilitovať, zatiaľ čo iní vyhľadávajú poradenstvo a konzultácie. Práve tejto rozmanitej skupine ľudí vyhovuje rôznorodá pavilónová štruktúra objektu

3D diagram centra
3D diagram centra
Rezy
Rezy
Rezová schéma vnútorných priestorov
Rezová schéma vnútorných priestorov

"Rôzna výška striech a striedanie materiálov znamená, že budova bude mať svoj ​​vlastný jedinečný architektonický charakter, ktorý ho jasne odlišuje od okolitých nemocničných budov, " napísali architekti.

Foto: Quintin Lake
Foto: Quintin Lake
Foto: EFFEKT
Foto: Quintin Lake
Foto: Quintin Lake

Na obklad boli použité biele vláknocementové fasádne dosky Equitone, ktoré sú orientované horizontálne. Strecha je pokrytá rovnakým materiálom, čo spolu s elegantným riešením detailu prispieva k čistote riešenia. Dva pavilóny sú obložené vertikálnym dreveným latovaním, čím sa výrazne odlišujú od zvyšku a jasne vyznačujú vstupy do budovy.

Foto: Quintin Lake
Foto: Quintin Lake
Foto: Quintin Lake
Foto: Quintin Lake
Foto: Quintin Lake
Foto: Quintin Lake

"Centrum ponúka širokú škálu priestorov pre neformálne poradenstvo, terapie a interakcie s dôrazom na užívateľský komfort a pohodu, " vysvetľujú architekti

Foto: Thomas Ibsen
Foto: Thomas Ibsen
Foto: EFFEKT

Do knižnice, ktorá pokrýva celú stenu sú vyrezané miesta pre okenné otvory. Parapety slúžia ako sedenie. Neformálnu atmosféra interiéru dotvára výber nábytku.

Foto: Thomas Ibsen
Foto: Thomas Ibsen
Foto: Thomas Ibsen
Foto: Thomas Ibsen
Foto: Thomas Ibsen
Foto: Thomas Ibsen

podklady: EFFEKT

Poloha diela

Sinus Lynge
Tue Hesselberg
Mikkel Bøgh

Súvisiace články

Vložené
26. marec 2016
0
1348
Hlavný obsahHlavný obsah
Čakajte prosím