Advertorial

Pozvánka na 2. ročník stavebného veľtrhu BigMarket na Slovensku

Na podujatí sa predstaví až 37 vystavovateľov - popredných dodávateľov stavebných materiálov a inovácií s prezentáciou...

Hotel Hirschen Spa House, Rakúsko

Novotvar v prostredí alpskej obce.

Vytvorte si kúpeľňu snov: dizajnové riešenie od značky hansgrohe

Hansgrohe - prémiová značka kúpeľňových riešení, ponúka nadčasový dizajn, technickú precíznosť a udržateľné inovácie...

Okná Internorm za minuloročné ceny + hliníkový kryt zdarma!

Využite špeciálnu akciu Internorm: okná za minuloročné ceny a hliníkový kryt úplne zadarmo. Ponuka je časovo obmedzená!

Moderné plynové technológie: Efektivita a inovácie pre 21. storočie

Sumarizácia najdôležitejších inovácií, ktoré redefinujúcich využitie tohto energetického zdroja.

Utesňovanie spodných stavieb pomocou hydro-aktívnej fólie AMPHIBIA.

AMPHIBIA 3000 GRIP 1.3 od spoločnosti ATRO predstavuje modernú hydroizolačnú technológiu, ktorá spája vysokú odolnosť,...

Dekarbonizácia individuálneho vykurovania domácností – Green Deal evolučne a nie revolučne

Ambiciózne plány EK narazili na ekonomické možnosti domácností v jednotlivých členských štátoch –...

Minimalistické dvere IDEA – technická precíznosť a čistota prevedenia

IDEA DOOR od spoločnosti JAP prináša do interiéru čistý minimalistický vzhľad vďaka bezrámovému riešeniu a precíznej...

Dom s výhľadom na údolie, Dlouhý Most (ČR)

Kontinuita riešenia od vonkajšieho obkladu až po kovania a kľučky.

Schell Vitus – osvedčené riešenie pre sprchy a umývadlá vo verejnom sektore s viac ako desaťročnou tradíciou

Nástenné nadomietkové armatúry Vitus sú mimoriadne vhodné pre rýchlu a efektívnu...

Kompozitné okná predstavujú súčasnosť a budúcnosť

Okenné profily z kompozitného materiálu RAU-FIPRO X od spoločnosti Rehau sú v porovnaní s tradičnými plastovými profilmi mnohonásobne...

Myotis - stoly 2025

Najnovší sortiment stolov pre zariadenie interiérov...

Priemyselné sklenené priečky Dorsis Digero: svetelné rozhranie pre moderné interiéry

Spojenie moderného dizajnu, funkčnosti a svetla do harmonického architektonického prvku.

Význam prirodzeného svetla pre moderné a flexibilné pracovné prostredie

Kancelárska budova Baumit v slovinskom Trzine prešla premenou na moderné a udržateľné pracovisko. Architekti kládli dôraz...

Konferencia Xella Dialóg predstaví novinky a trendy v stavebníctve

Mottom šiesteho ročníku on-line konferencie odborníkov Xella Dialóg je Efektívny návrh budov 2025+: zmeny a riešenia

Škola a plaváreň v Tonstado (Nórsko)

Vzorový príklad verejnej investície do obecnej infraštruktúry. Na príklade mestečka Tonstad, ktoré nemá viac ako tisíc obyvateľov, si môžeme ilustrovať racionálny prístup pri budovaní verejných stavieb.
Diela
Jana Zentková14.06.2015
15310+4
Škola a plaváreň v Tonstado (Nórsko)
Autori: Filter ArchitekterInvestor: SirdalKommunePodlažná plocha: 6 690 m2Návrh: 2009 - 2010Realizácia: 2010 - 2011Adresa: Sirdal , Tonstad, NórskoPublikované: 14. jún 2015

Tonstad leží v južnej časti Nórska na severnom brehu jazera Sildarsvatner pri ústí rieky Sira. Pri rozhodovaní o podobe, forme a materiálovom riešení nerozhodovala najnižšia cena projektu (ako u nás), ale najefektívnejší a najekonomickejší výsledok celého výsledného riešenia (stavby). Hoci Nórsko je ekonomicky na tom omnoho lepšie ako Slovensko a do verejnej infraštruktúry investuje nepochybne omnoho väčšie prostriedky, predsa môže byť príkladom úspornosti a efektivity použitých riešení. Ekonomickú efektivitu vyhodnocuje v celom cykle fungovania aživotnosti stavieb. Samozrejme súčasťou hodnotení je aj funkčnosť a schopnosť napĺňať poslanie, pre ktoré je stavba určená. Aj prezentovaný príklad je ukážkou jenoduchej, funkčnej a účelnej architektúry. Nie je to žiadna demonštrácia formy, ale striedme riešenie v spojení so slušným výberom materiálov a kvalitným architektonickým návrhom, dotiahnutým až do komlexného dizajnu interiérov.

Pohľad na južnú fasádu, zrekonštruovaná budova vravo, nová prístavba vľavo.
Pohľad na južnú fasádu, zrekonštruovaná budova vravo, nová prístavba vľavo.

Budova nie je novostavbou. Vznikla rekonštrukciou a prestavbou bývalého skladu v spojení s novou prístavbou, kde sú umiestnené nové potrebné funkcie. Architektonicky je celý komplex zvonku zjednotený fasádou z tmavosivých vláknocementových panelov Equitone.

Farebne stroho poňatú fasádu oživuje drevený (dubový) obklad a lokálne akcenty z farebných panelov. Architekti tiež citlivo pracovali s veľkoplošnými oknami a pravidelnými rastrami menších okien. Tmavý plášť objektu vytvára prvý plán vnímania objektu. Javí sa ako prirodzená súčasť drsného severského lesa v pozadí. V druhom pláne sivú hmotu odľahčujú zasunuté závetria ako vstupy do jednotlivých tried so svetlým dreveným obkladom a subtílnymi stĺpmi. Týmto zasunutím vznikla okolo budovy chránená ochodza. Celkový dojem z exteriéru rozveseľujú modré a zelené pásy na okenných osteniach.

Detailnejší pohľad na fasádu objektu.
Detailnejší pohľad na fasádu objektu.

Dvojpodlažná budova je v pôdoryse pomerne členitá, vychádza však z daného lokalitného programu. Vyučovanie prebieha v novej budove v západnom krídle. Nahradila dva staré bloky, pri ktorých už rekonštrukcia neprichádzala do úvahy.

Vyučovacia časť má priamy kontakt na priľahlý exteriér.
Vyučovacia časť má priamy kontakt na priľahlý exteriér.

Žiaci prichádzajú do tried samostatnými vchodmi. Tie sú rozmiestnené po obvode budovy, takže majú dostatok denného svetla. Pred vstupom do každej triedy majú deti šatne a vlastné WC. Triedy majú vždy dvoje dvere, okrem tých zo šatne vedú ďalšie do spoločnej chodby. V strede školskej budovy sú umiestnené rôzne obslužné priestory, laboratóriá a schodiská. Denné svetlo sem dopadá z pásových okien bazilikálneho typu alebo sklenenými stenami otočnými do vestibulu.

Schodisko.
Schodisko.

Západné a východné krídlo sa spájajú v rozľahlom školskom vestibule. Vzdušný svetlý interiér zaplavuje denné svetlo z okien umiestnených doslova pod krídlami strechy. Nadčasovú kombináciu sivej liatej podlahy, čierneho kovového zábradlia a bielej farby na stenách pretepľuje drevený funkčný mobiliár a drevený obklad stien z brezovej preglejky natretej nabielo.

Detail použitých materiálov.
Detail použitých materiálov.

Dynamiku získava priestor nielen vďaka výraznej červenej čelnej stene východného krídla, ale najmä vďaka viacúrovňovému usporiadaniu. Živá komunikácia tak môže prebiehať na rôznych výškových úrovniach.

Centrálny komunikačný priestor.
Centrálny komunikačný priestor.

Architekti vymysleli vo vestibule rôzne relaxačné zóny, ktoré sú vhodné nielen na oddychové aktivity, ale aj ako neformálne študovne či symbolické auditórium. Z vestibulu sa predchádza do východného krídla s viacúčelovou sálou a dvoma bazénovými halami.

Bazén.
Bazén.

Fascinujúce je najmä ich minimalistické poňatie so stropmi z pohľadového betónu doplnené o typicky škandinávsky brezový akustický obklad. Jediným grafickým výstrelkom, ak sa to dá vôbec tak nazvať, ktorý narúša dokonalú jednoduchosť priestoru, sú rôzne skrátené drevené lamely. Vytvárajú nepravidelnú krivku, ktorá necháva fantázii voľný priebeh, či už v nej vidíte rytmus srdca, siluetu mesta, vrcholce stromov, alebo niečo iné.

Podnetné je aj okolie budovy a areál školy. Sú tu rozmiestnené športoviská, pobytové priestory... celý areál je veľmi jednoduchý, účelný a s citom zasadený do okolitého prostredia.

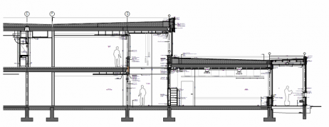
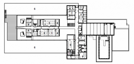
Prikladáme základé výkresy tejto dvojpodlažnej budovy:

Pôdorys prízemiaPôdorys poschodiaPohľadRez

Nazdávame sa, že prezentovaný objekt školskej budovy môže byť dobrým príkladom, ako by sa malo postupovať keď chceme efektívny a dlhoudržateľný výsledok. Ak hľadáme čo najefektívnejšie riešenie a nie krátkodobé "najlacnejšie" splnenie mechanických ukazovateľov obstarávania, hoc výsledok sa nám rozpadne a v budúcnosti nás bude stáť mnoho ďalších vyvolaných nákladov.

Tento článok bol spracovaný na základe grafických a textových podkladov, dodaných spoločnosťou Creaton SEE , ktorej materiály boli použité na obvodovom plášti prezentovanej školy. Foto: Nils Petter Dale.

Poloha diela

Filter Architekter

Súvisiace články

Vložené
14. jún 2015
0
1531
Hlavný obsahHlavný obsah
Čakajte prosím