Na podujatí sa predstaví až 37 vystavovateľov - popredných dodávateľov stavebných materiálov a inovácií s prezentáciou...
Novotvar v prostredí alpskej obce.
Hansgrohe - prémiová značka kúpeľňových riešení, ponúka nadčasový dizajn, technickú precíznosť a udržateľné inovácie...
Využite špeciálnu akciu Internorm: okná za minuloročné ceny a hliníkový kryt úplne zadarmo. Ponuka je časovo obmedzená!
Sumarizácia najdôležitejších inovácií, ktoré redefinujúcich využitie tohto energetického zdroja.
AMPHIBIA 3000 GRIP 1.3 od spoločnosti ATRO predstavuje modernú hydroizolačnú technológiu, ktorá spája vysokú odolnosť,...
Ambiciózne plány EK narazili na ekonomické možnosti domácností v jednotlivých členských štátoch –...
IDEA DOOR od spoločnosti JAP prináša do interiéru čistý minimalistický vzhľad vďaka bezrámovému riešeniu a precíznej...
Kontinuita riešenia od vonkajšieho obkladu až po kovania a kľučky.
Nástenné nadomietkové armatúry Vitus sú mimoriadne vhodné pre rýchlu a efektívnu...
Okenné profily z kompozitného materiálu RAU-FIPRO X od spoločnosti Rehau sú v porovnaní s tradičnými plastovými profilmi mnohonásobne...
Najnovší sortiment stolov pre zariadenie interiérov...
Spojenie moderného dizajnu, funkčnosti a svetla do harmonického architektonického prvku.
Kancelárska budova Baumit v slovinskom Trzine prešla premenou na moderné a udržateľné pracovisko. Architekti kládli dôraz...
Mottom šiesteho ročníku on-line konferencie odborníkov Xella Dialóg je Efektívny návrh budov 2025+: zmeny a riešenia

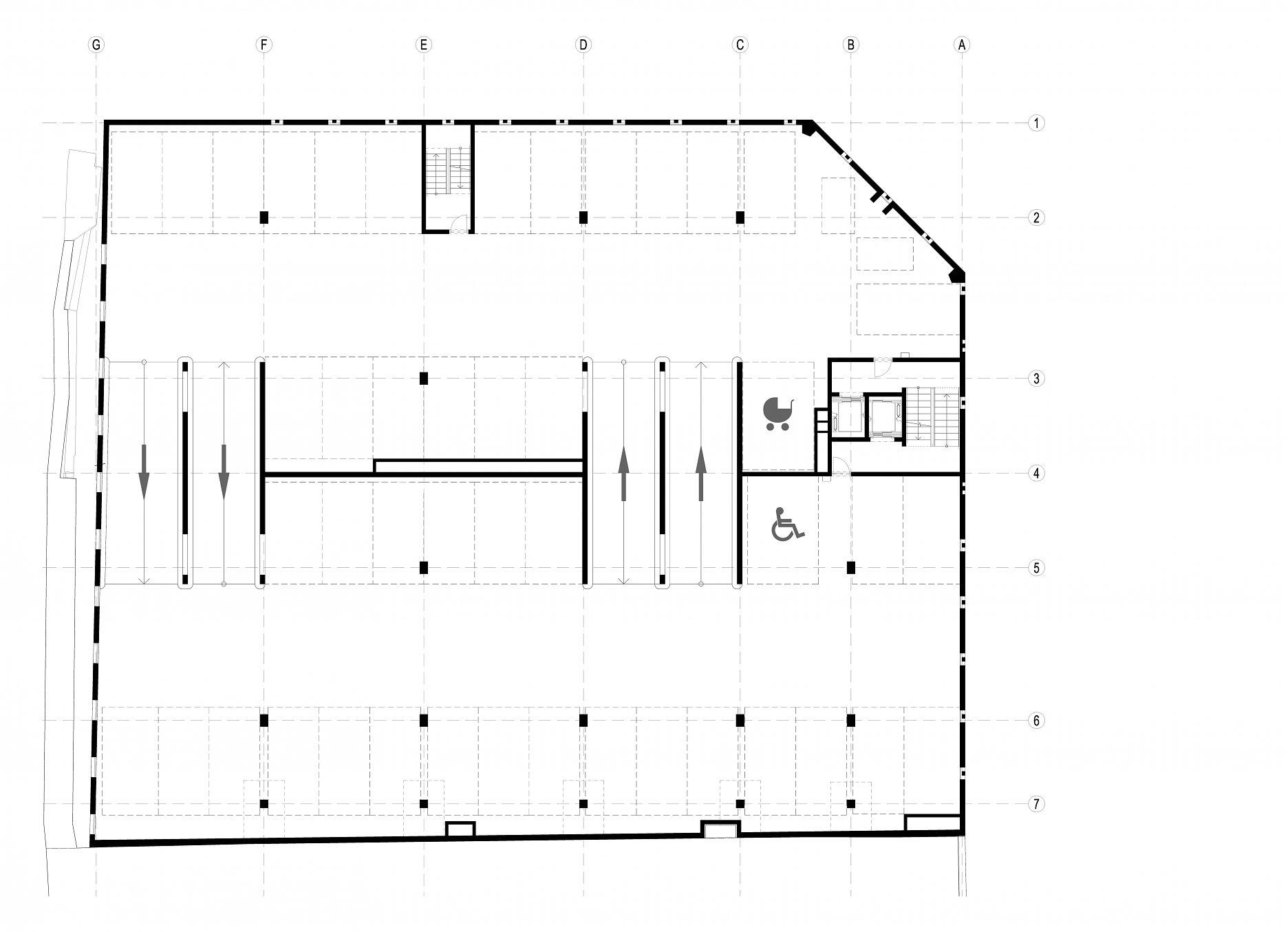
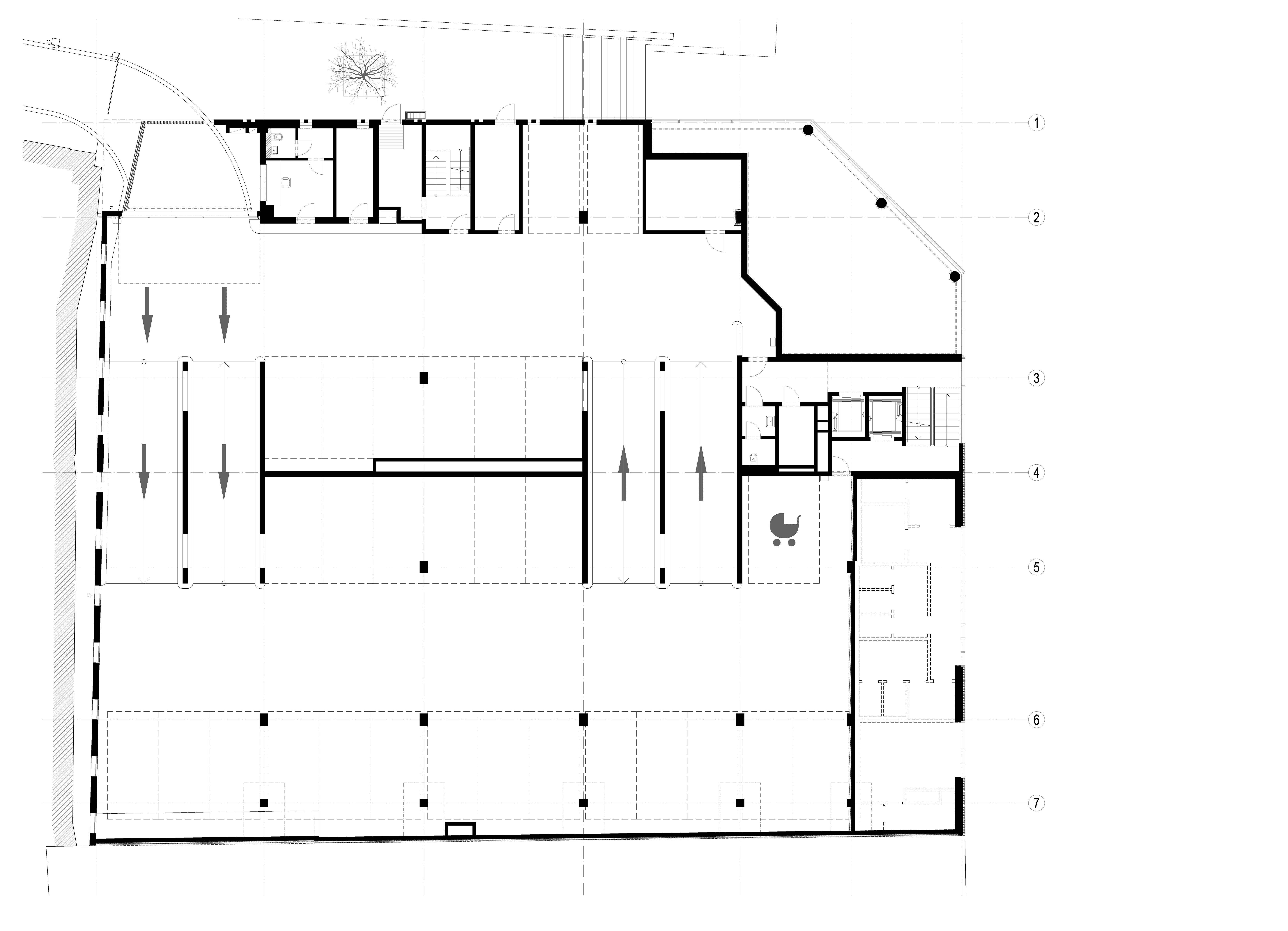
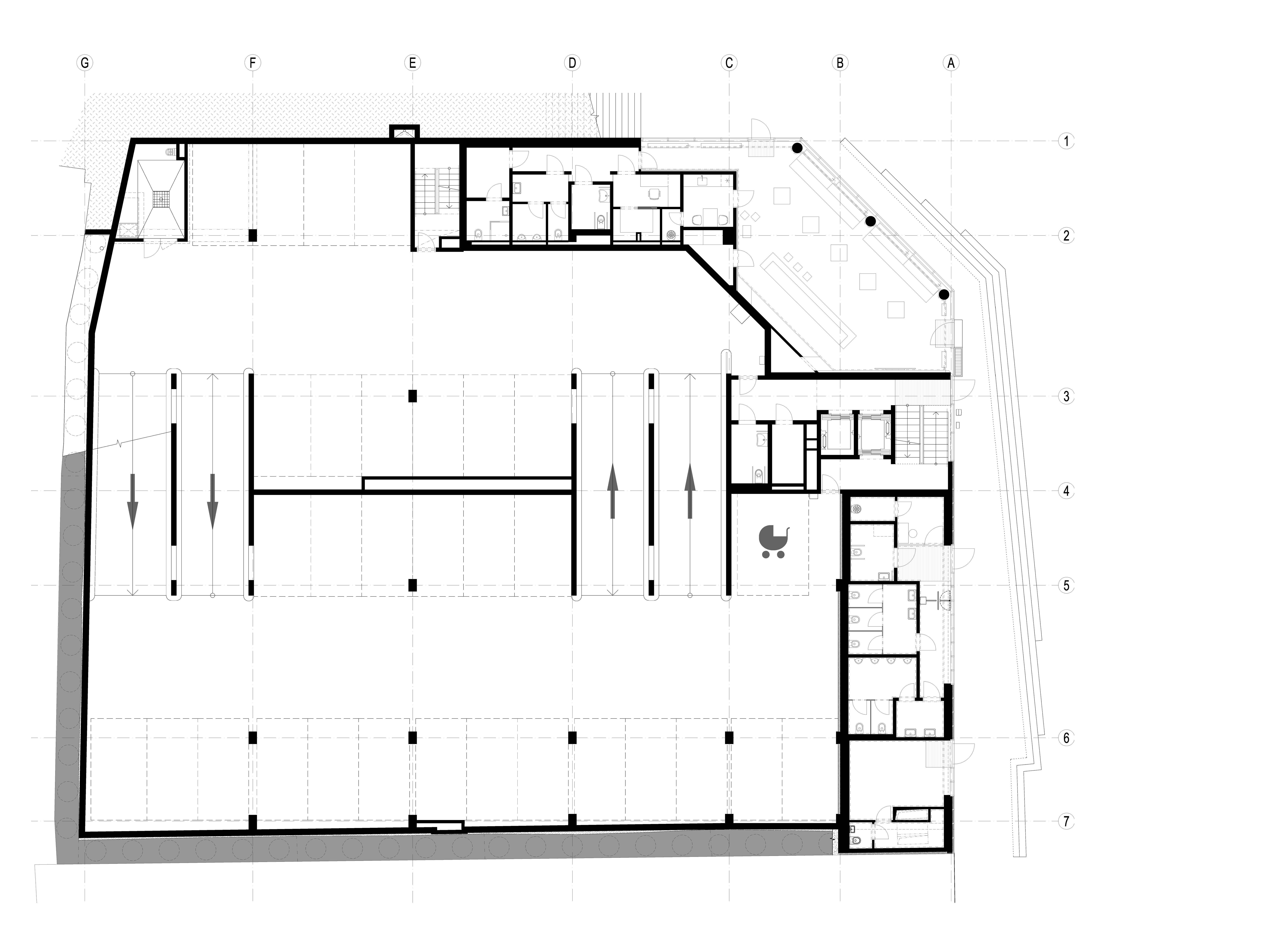
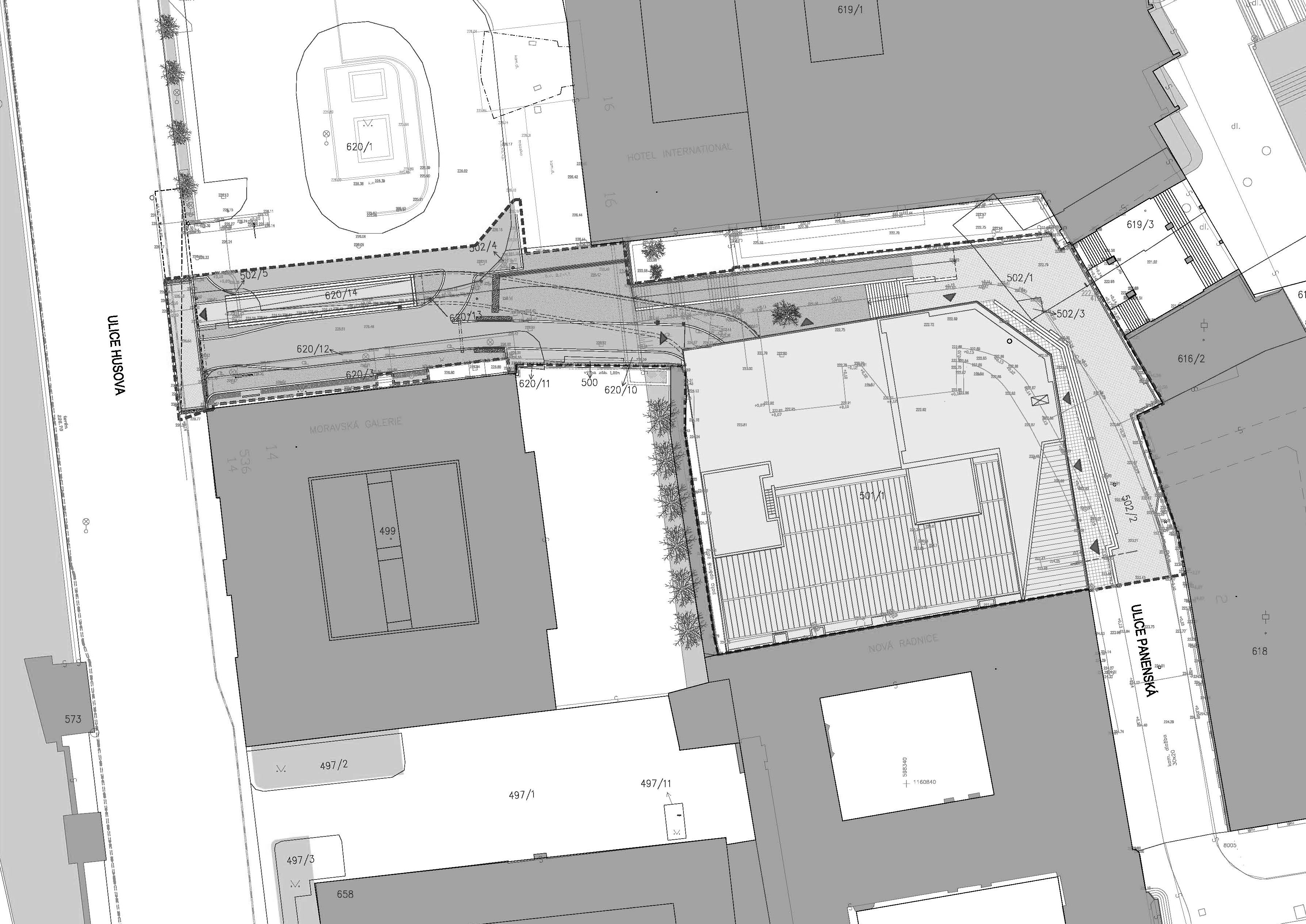
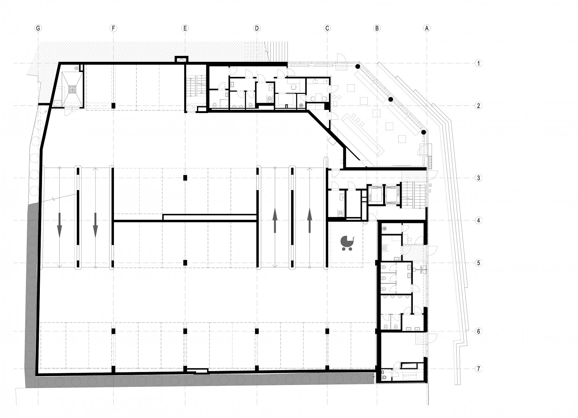
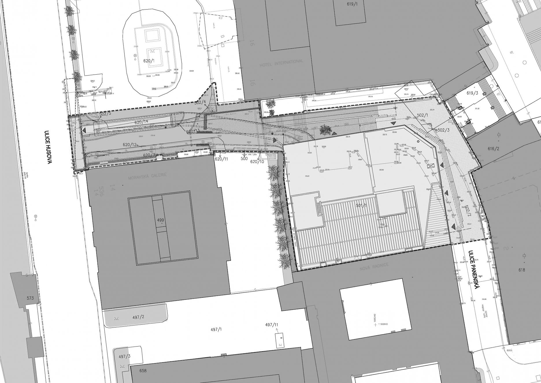
Parkovací dom sa sa nachádza v okrajovej časti centra Brna, v nadväznosti na historický areál Novej radnice (v minulosti Krajinského snemu). Objekt, ktorý vyrástol v prieluke uzatvára kompaktný mestský blok. Novostavba susedí s pamiatkovo chránenými stavbami. Príklad, ako sa aj nie veľmi vítaná, ale potrebná funkcia, môže vhodne začleniť do ucelenej mestskej štruktúry.
Parkovací dom má kapacitu 360 vozidiel v dvoch viacpodlažných blokoch parkovacích státí. Bloky sú voči sebe posunuté o pol podlažia. Jednosmernú prevádzku zabezpečuje systém polorámp.
Konštrukciu budovy tvorí železobetónový monolitický skelet založený na pilótach. Stavba má dve podzemné a osem nadzemných podlaží. Dvojdielne otvory v parkovacích podlažiach zabezpečujú prirodzené vetranie priestorov. Fasáda je omietnutá dvojvrstvovou vápennou omietkou s jemnou nepravidelnou textúrou. Veľké monochromatické plochy oživujú prvky z prírodného kameňa - okenné stĺpiky, parapety, krytie atík, ríms a sokle. takmer klasické remeselné detaily odkazujú na susediace objekty.
Na prízemí je v nároži umiestnené Turistické informačné centrum mesta Brna a ďalšie komerčné priestory. Na najvyššom podlaží s výhľadom na vedutu mesta je situovaný nájomný priestor, ktorý disponuje terasou na streche.
Podklady: Architekti Hrůša