Advertorial

Pozvánka na 2. ročník stavebného veľtrhu BigMarket na Slovensku

Na podujatí sa predstaví až 37 vystavovateľov - popredných dodávateľov stavebných materiálov a inovácií s prezentáciou...

Hotel Hirschen Spa House, Rakúsko

Novotvar v prostredí alpskej obce.

Vytvorte si kúpeľňu snov: dizajnové riešenie od značky hansgrohe

Hansgrohe - prémiová značka kúpeľňových riešení, ponúka nadčasový dizajn, technickú precíznosť a udržateľné inovácie...

Okná Internorm za minuloročné ceny + hliníkový kryt zdarma!

Využite špeciálnu akciu Internorm: okná za minuloročné ceny a hliníkový kryt úplne zadarmo. Ponuka je časovo obmedzená!

Moderné plynové technológie: Efektivita a inovácie pre 21. storočie

Sumarizácia najdôležitejších inovácií, ktoré redefinujúcich využitie tohto energetického zdroja.

Utesňovanie spodných stavieb pomocou hydro-aktívnej fólie AMPHIBIA.

AMPHIBIA 3000 GRIP 1.3 od spoločnosti ATRO predstavuje modernú hydroizolačnú technológiu, ktorá spája vysokú odolnosť,...

Dekarbonizácia individuálneho vykurovania domácností – Green Deal evolučne a nie revolučne

Ambiciózne plány EK narazili na ekonomické možnosti domácností v jednotlivých členských štátoch –...

Minimalistické dvere IDEA – technická precíznosť a čistota prevedenia

IDEA DOOR od spoločnosti JAP prináša do interiéru čistý minimalistický vzhľad vďaka bezrámovému riešeniu a precíznej...

Dom s výhľadom na údolie, Dlouhý Most (ČR)

Kontinuita riešenia od vonkajšieho obkladu až po kovania a kľučky.

Schell Vitus – osvedčené riešenie pre sprchy a umývadlá vo verejnom sektore s viac ako desaťročnou tradíciou

Nástenné nadomietkové armatúry Vitus sú mimoriadne vhodné pre rýchlu a efektívnu...

Kompozitné okná predstavujú súčasnosť a budúcnosť

Okenné profily z kompozitného materiálu RAU-FIPRO X od spoločnosti Rehau sú v porovnaní s tradičnými plastovými profilmi mnohonásobne...

Myotis - stoly 2025

Najnovší sortiment stolov pre zariadenie interiérov...

Priemyselné sklenené priečky Dorsis Digero: svetelné rozhranie pre moderné interiéry

Spojenie moderného dizajnu, funkčnosti a svetla do harmonického architektonického prvku.

Význam prirodzeného svetla pre moderné a flexibilné pracovné prostredie

Kancelárska budova Baumit v slovinskom Trzine prešla premenou na moderné a udržateľné pracovisko. Architekti kládli dôraz...

Konferencia Xella Dialóg predstaví novinky a trendy v stavebníctve

Mottom šiesteho ročníku on-line konferencie odborníkov Xella Dialóg je Efektívny návrh budov 2025+: zmeny a riešenia

Školský areál Kajzerica, Záhreb

Pohľad na moderný školský areál v chorvátskej metropole.
Diela
Red 316.03.2022
8420+15
Školský areál Kajzerica, Záhreb
Autori: Vedran Pedišić, Emil Špirić, Erick Velasco Farrera, Juan Jose Nuñez AndradePodlažná plocha: 16220 m²Adresa: Ul. Žarka Dolinara 10000, Záhreb, ChorvátskoPublikované: 16. marec 2022

Ako vyzerá funkčná škola a škôlka? U nás a našich západných susedov sa nazbieralo viacero projektov v rôznych fázach návrhu a realizácie. Dnes predstavíme "zabehnutý" a kvalitný príklad z chorvátskeho hlavného mesta. 

Nová základná a materská škola slúži deťom z päťtisícovej spádovej oblasti Kajzerica. Zóna na južnom brehu rieky Sáva je súčasťou rozsiahlej mestskej časti Novi Zagreb, ktorá podobne ako Petržalka tvorí osobitý celok v rámci metropoly. Paralely s bratislavským sídliskom možno nájsť vo viacerých smeroch. Urbanizmus zóny s prevládajúcimi obytnými blokmi z rokov 1945 až 1990 sa vyznačuje dobrým dopravným spojením s centrom mesta a dostatkom zelene vo vnútroblokoch a bezprostrednom okolí. Rozsiahla revitalizácia oblasti prebieha od roku 2000, kedy štruktúru s prevažujúcou funkciou bývania vo väčšej miere dopĺňa potrebná občianska vybavenosť. 

Medzi realizácie, ktoré doplnili kriticky chýbajúcu infraštruktúru patrí aj spomínaný areál školy a materskej školy z dielne záhrebského ateliéru Sangrad + AVP. Školský areál, realizovaný na základe víťazného návrhu z verejnej architektonickej súťaže, zaznamenal silný ohlas nielen na domácej pôde. Vedran Pedišić, Emil Špirić, Erick Velasco Farrera a Jose Nunez Andrade si rok po dokončení projektu prevzal obe najdôležitejšie domáce architektonické ceny s viac ako šesťdesiatročnou tradíciou (Cenu Vladimira Nazora, ktorú udeľuje chorvátske ministerstvo kultúry a Cenu Viktora Kovačića, za ktorou stojí Združenie chorvátskych architektov).

Foto: Sandro Lendler

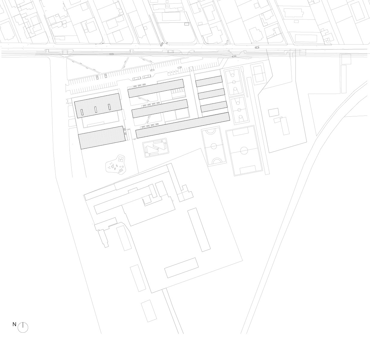
Pozemok, ktorý vyhradilo mesto pre výstavbu školského areálu leží na rozhraní všadeprítomnej severo-južnej mriežky obytných blokov a šikmou osnovou nízkopodlažnej zástavby na brehu rieky. Bezprostredná prítomnosť vodného toku a vysoká hladina spodnej vody výrazne ovplyvnila architektonický a prevádzkový koncept stavby. Ako dôležité východisko uvádzajú autori tiež špecifické prostredie s vrstvou aluviálnej pôdy, ktorá tvorí ideálne prostredie pre tunajšiu zeleň. 

Foto: Sandro Lendler
Foto: Sandro Lendler

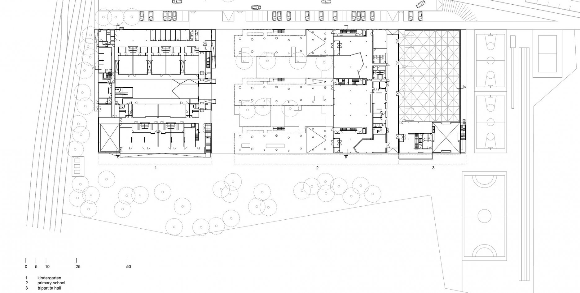
Triedy zdvihnuté nad úroveň terénu odhmotňujú parter a začleňujú život v areáli do okolitého prostredia. Dôsledné členenie prevádzky do menších blokov podporuje čitateľnosť a otvorenosť konceptu. V letných mesiacoch vytvára stavba útočisko pred teplou klímou metropoly. K príjemnému tieňu v exteriéri a v podlubiach sa pridáva tepelná zotrvačnosť masívnych betónových konštrukcií. Všetky stavebné celky, s výnimkou telocvične sú zhotovené ako štandardný monolitický skelet.

Foto: Sandro Lendler
Foto: Sandro Lendler

Výsledné architektonické riešenie do značnej miery určuje zvolené materiálové riešenie obvodového plášťa. Vláknocementové fasádne dosky Swisspearl vo farbe opal black tvoria zjednocujúcu vrstvu pri pohľade z exteriéru. Zvolené riešenie podčiarkuje striedanie formátu fasádnych dosiek a ich perforácia. Raster kruhových otvorov ukrýva okná obslužných celkov. Fasáda ožíva najmä vo večerných hodinách, kedy cez ne prúdi svetlo do exteriéru. Protiklad ku kompaktným fasádam materiálovo zjednotených blokov tvorí bohaté presklenie orientované k výhľadom a do vnútrobloku.

Foto: Sandro Lendler
Foto: Sandro Lendler

Kompaktné bloky učební uvoľňujú veľkú časť pozemku pre ihriská a v duchu posledných tendencií aj pre verejne prístupné športoviská a zelené plochy.

Foto: Sandro Lendler

Areál školy definujú dva funkčné celky: telocvičňa, ako jediná siahajúca do suterénu a bloky učební zdvihnuté nad úroveň terénu. Oba celky prepájajú spoločné vstupné priestory na úrovni prízemia so samostatnými vchodmi do jednotlivých celkov.Navrhnutá organizačná štruktúra vytvára priestor a flexibilitu pre zmeny v budúcnosti.

Fyzicky oddelená budova materskej školy funguje ako samostatný prevádzkový celok s vlastnými vchodmi a vnútornými väzbami. Zároveň ťaží z možnosti využitia spoločných priestorov v ťažisku pozemku.

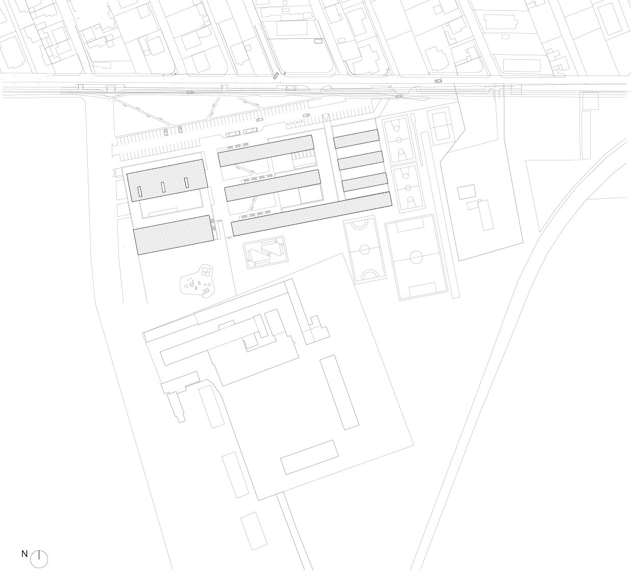
Situácia
SituáciaSangrad + AVP
Pôdorys suterénu
Pôdorys suterénuSangrad + AVP
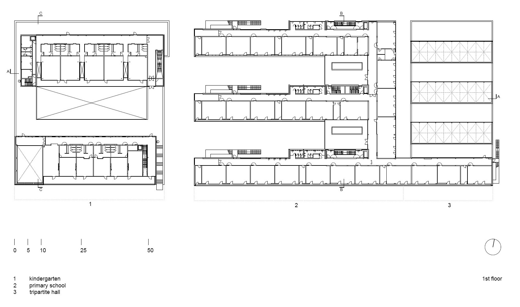
Pôdorys 1. NP
Pôdorys 1. NPSangrad + AVP
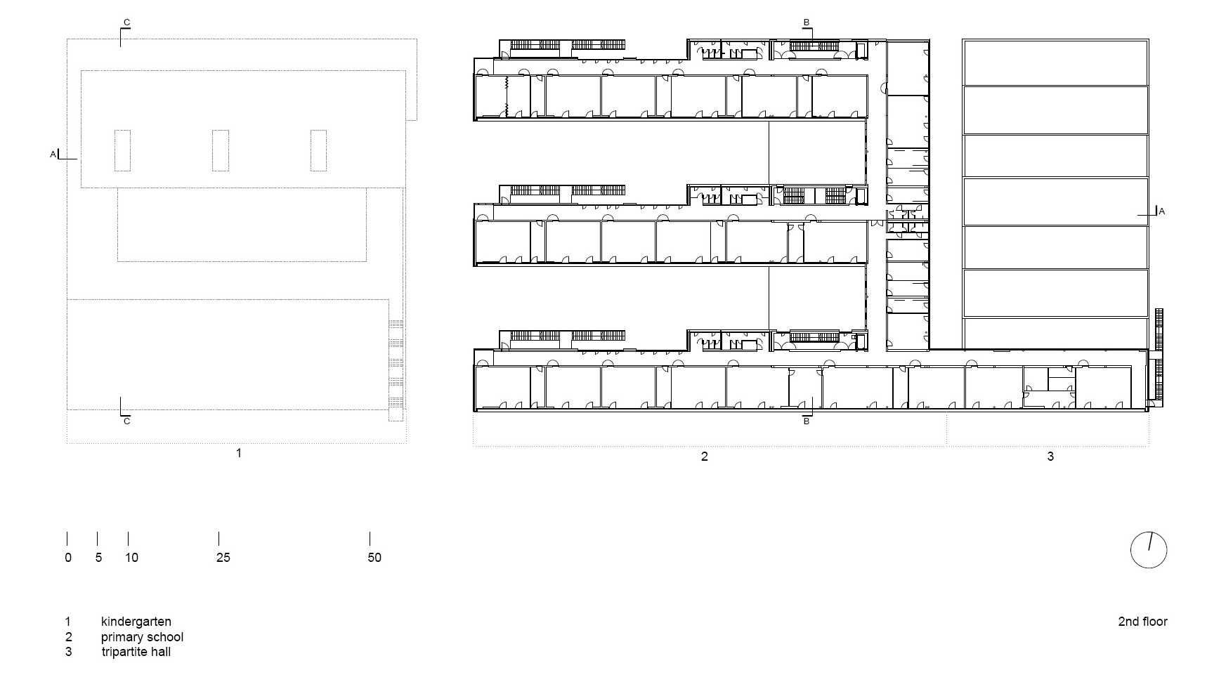
Pôdorys 2. NP
Pôdorys 2. NPSangrad + AVP
Pôdorys 3. NP
Pôdorys 3. NPSangrad + AVP
Rez
RezSangrad + AVP
Rezy
RezySangrad + AVP
Pohľady
PohľadySangrad + AVP
Pohľady
PohľadySangrad + AVP

"Všetky priestorové celky sú riešené štandardne, s využitím efektívnej konštrukčnej sústavy a primeraným výberom finálnych materiálov. Stavby z verejných zdrojov nie sú vhodným miestom pre autorskú exhibíciu. Aj s využitím obvyklých prostriedkov sa dá dosiahnuť kvalitný výsledok," dodávajú na záver autori.

Foto: Sandro Lendler
Foto: Sandro Lendler
Foto: Sandro Lendler
Foto: Sandro Lendler
Foto: Sandro Lendler
Foto: Sandro Lendler
Foto: Sandro Lendler
Foto: Sandro Lendler

Podklady: Swisspearl, Sangrad + AVP
Použité materiály: cemento-kompozitné fasádne panely Swisspearl Largo Carat Black Opal 7020 R

Poloha diela

Vedran Pedišić
Emil Špirić
Erick Velasco Farrera
Juan Jose Nuñez Andrade
Vložené
10. marec 2022
0
842
Hlavný obsahHlavný obsah
Čakajte prosím