Advertorial

Hotel Hirschen Spa House, Rakúsko

Novotvar v prostredí alpskej obce.

Vytvorte si kúpeľňu snov: dizajnové riešenie od značky hansgrohe

Hansgrohe - prémiová značka kúpeľňových riešení, ponúka nadčasový dizajn, technickú precíznosť a udržateľné inovácie...

Okná Internorm za minuloročné ceny + hliníkový kryt zdarma!

Využite špeciálnu akciu Internorm: okná za minuloročné ceny a hliníkový kryt úplne zadarmo. Ponuka je časovo obmedzená!

Pozvánka na 2. ročník stavebného veľtrhu BigMarket na Slovensku

Na podujatí sa predstaví až 37 vystavovateľov - popredných dodávateľov stavebných materiálov a inovácií s prezentáciou...

Moderné plynové technológie: Efektivita a inovácie pre 21. storočie

Sumarizácia najdôležitejších inovácií, ktoré redefinujúcich využitie tohto energetického zdroja.

Utesňovanie spodných stavieb pomocou hydro-aktívnej fólie AMPHIBIA.

AMPHIBIA 3000 GRIP 1.3 od spoločnosti ATRO predstavuje modernú hydroizolačnú technológiu, ktorá spája vysokú odolnosť,...

Dekarbonizácia individuálneho vykurovania domácností – Green Deal evolučne a nie revolučne

Ambiciózne plány EK narazili na ekonomické možnosti domácností v jednotlivých členských štátoch –...

Minimalistické dvere IDEA – technická precíznosť a čistota prevedenia

IDEA DOOR od spoločnosti JAP prináša do interiéru čistý minimalistický vzhľad vďaka bezrámovému riešeniu a precíznej...

Dom s výhľadom na údolie, Dlouhý Most (ČR)

Kontinuita riešenia od vonkajšieho obkladu až po kovania a kľučky.

Schell Vitus – osvedčené riešenie pre sprchy a umývadlá vo verejnom sektore s viac ako desaťročnou tradíciou

Nástenné nadomietkové armatúry Vitus sú mimoriadne vhodné pre rýchlu a efektívnu...

Kompozitné okná predstavujú súčasnosť a budúcnosť

Okenné profily z kompozitného materiálu RAU-FIPRO X od spoločnosti Rehau sú v porovnaní s tradičnými plastovými profilmi mnohonásobne...

Myotis - stoly 2025

Najnovší sortiment stolov pre zariadenie interiérov...

Priemyselné sklenené priečky Dorsis Digero: svetelné rozhranie pre moderné interiéry

Spojenie moderného dizajnu, funkčnosti a svetla do harmonického architektonického prvku.

Význam prirodzeného svetla pre moderné a flexibilné pracovné prostredie

Kancelárska budova Baumit v slovinskom Trzine prešla premenou na moderné a udržateľné pracovisko. Architekti kládli dôraz...

Konferencia Xella Dialóg predstaví novinky a trendy v stavebníctve

Mottom šiesteho ročníku on-line konferencie odborníkov Xella Dialóg je Efektívny návrh budov 2025+: zmeny a riešenia

Vyhliadka pod horou Gaular, Nórsko

Architektúra ako precízny, výtvarný, zároveň aj silno funkčný objekt vložený do krajiny. Autonómne a predsa kontextuálne riešenie.
Diela
Red 324.03.2017
15620+21
Vyhliadka pod horou Gaular, Nórsko
Autori: Eivind Nygaard, Bjarne RingstadSpolupráca: Steinar Bjercke (statika), Florian Kosche (statika)Investor: Nasjonale turistvegerZastavaná plocha: 850 m2Návrh: 2008 - 2008Realizácia: 2016 - 2016Adresa: Gaularfjell, NórskoPublikované: 24. marec 2017

Ďalšia z pekných nórskych krajinárskych realizácií. Ďakujeme autorom za operatívne poskytnutie podkladov. Gratulujeme im nielen k výbornému návrhu, ale aj k perfektnému technickému dotiahnutiu a presvedčivej realizácii. Toto nám tu v slovenských podmienkach často chýba.

Betónová vyhliadka je postavená na mieste známom ako Utsikten (v preklade výhľad). Toto miesto sa nachádza na serpentínach cesty, ktorá stúpa k vrchu Gaular na západnom pobreží Nórska. Pre motoristov prichádzajúcich od mora ide o bod, kde sa otvára výhľad do takmer celého 700 metrov hlbokého údolia.

Foto: Jiri Havran
Foto: Einar Aslaksen

Projekt nórskeho ateliéru CODE: architecture má podobu rozľahlej trojuholníkovej platformy, ktorá je prirodzeným pokračovaním cesty. 80 cm hrubá betónová základňa sa na rohoch dvíha, čím vymedzuje centrálny pódiový priestor. Jednotlivé časti vyhliadky umožňujú návštevníkom zažiť výhľad z rôznych uhlov a zabezpečujú adrenalínový zážitok. Stavba taktiež poskytuje cestovateľom všetko potrebné zázemie. Zdvihnuté nárožia slúžia ako terasové sedenie, je tu možný piknik a občerstvenie. Pod západným cípom orientovaným do svahu je situované potrebné hygienické zázemie.

Foto: Einar Aslaksen
Situácia
SituáciaAutor: CODE
Axonometria
AxonometriaAutor - CODE: architecture
Rez
RezAutor - CODE: architecture

Za účelom optimálneho priestorového riešenia a overenia konceptu bol na mieste vytýčený “drôtený model” vyhliadky, ktorý bol zhotovený z lán znázorňujúcich obrys budúcej stavby. Toto stvárnenie objektu pomohlo architektom pretaviť počiatočné skice do 3d modelu, ktorý poslúžil ako podklad pre vyhotovenie projektovej dokumentácie.

Vybrané časti zložitej konštrukcie sa ako prototypy odlievali v dielenských podmienkach. Tieto prvky slúžili na overenie konštrukčného riešenia a komplexnej geometrie projektu. Architekti chceli byť v maximálnej možnej miere pripravení na realizáciu objektu v zložitých podmienkach v čo najkratšom čase.

Vytyčovanie obrysu budúcej stavby
Vytyčovanie obrysu budúcej stavbyAutor - CODE: architecture

Výsledná architektúra pôsobí ako nezávislý, precízny geometrický objekt vložený do krajiny. Použité materiály a detaily sú nenápadné a robustné, dielo zaujme svojim tvarovaním. Rôzne upravené betónové povrchy dávajú najavo svoju funkciu. Niektoré z častí sú frézované, pieskované či leštené, inde bola ponechaná prirodzená textúra betónu a odtlačky debniacich prvkov. Časom bude betón starnúť a vyhliadka sa bude stávať čoraz silnejšou súčasťou krajiny. Oceľové prvky ako napríklad všetky zábradlia sú vyhotovené z robustných pozinkovaných oceľových profilov, ktoré zabezpečujú trvácnosť do budúcnosti. O bezpečnosť návštevníkov sa stará pletivo natiahnuté medzi pevnými konštrukciami.

Otvory v solídnej betónovej konštrukcii zabezpečujú optické prepojenie s krajinou, vytvarajú priechod do zázemia a starajú sa taktiež o odvod zrážkovej vody nahromadenej na platforme. V prípade daždivého počasia nájdu turisti úkryt pod západným betónovým krídlom.

Foto: Einar Aslaksen
Foto: Einar Aslaksen
Foto: Einar Aslaksen
Foto: Einar Aslaksen
Foto: Einar Aslaksen
Foto: Einar Aslaksen
Foto: Einar Aslaksen
Foto: Jiri Havran
Foto: Jiri Havran
Foto: Jiri Havran

Fotografie z výstavby:

Foto - CODE: architecture
Foto - CODE: architecture
Foto - CODE: architecture
Foto - CODE: architecture

Výkresová dokumentácia:

Situácia
SituáciaAutor - CODE: architecture
Pôdorys
PôdorysAutor - CODE: architecture
Rezy
RezyAutor - CODE: architecture
Rezy
RezyAutor - CODE: architecture
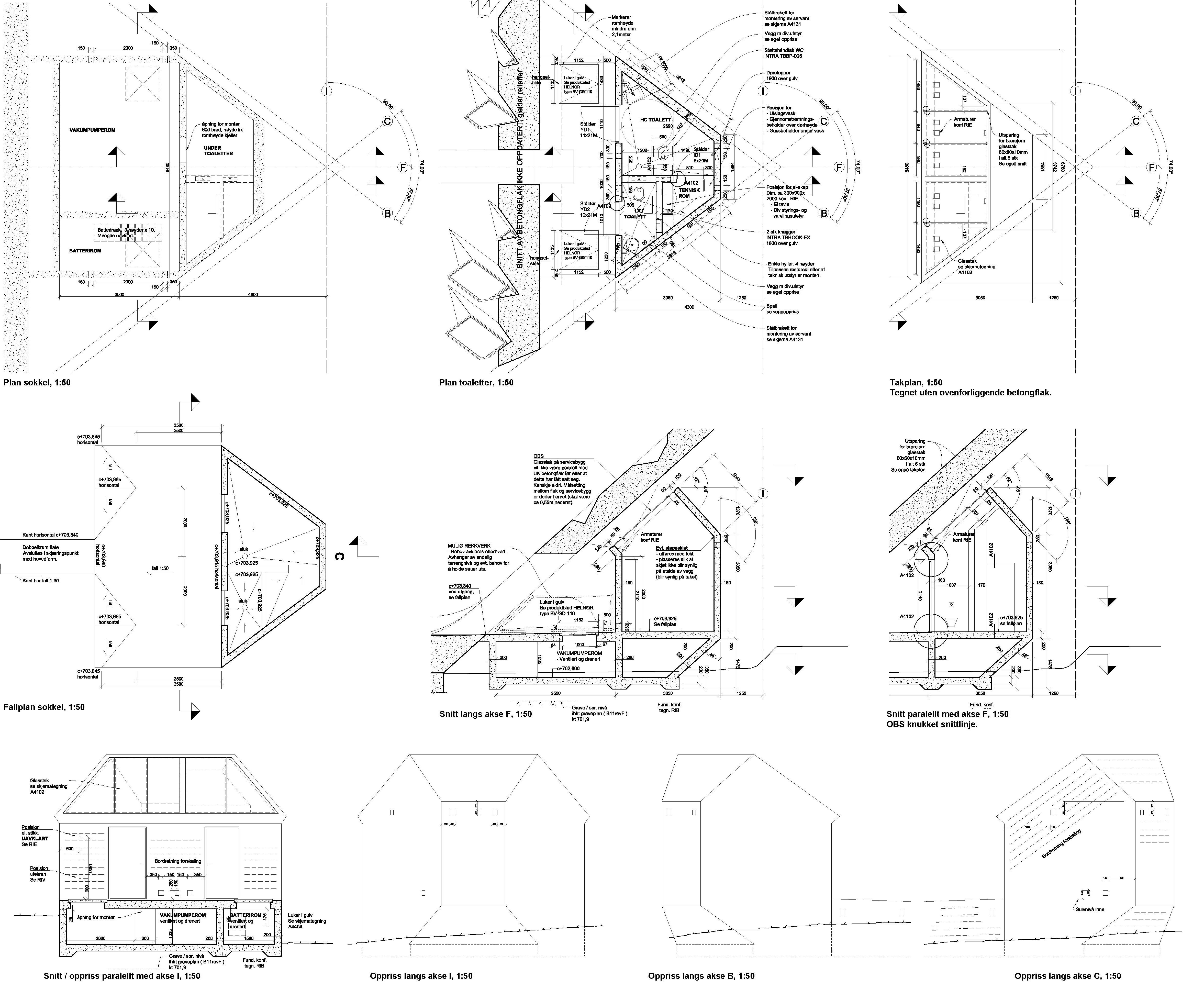
Detaily
DetailyAutor - CODE: architecture
Detaily
DetailyAutor - CODE: architecture
Detaily
DetailyAutor - CODE: architecture
Detaily
DetailyAutor - CODE: architecture
Detaily
DetailyAutor - CODE: architecture
Detaily
DetailyAutor - CODE: architecture
Model
ModelAutor - CODE: architecture
Model
ModelAutor - CODE: architecture
Model
ModelAutor - CODE: architecture

Poloha diela

Eivind Nygaard
Bjarne Ringstad
Vložené
23. marec 2017
0
1562
Hlavný obsahHlavný obsah
Čakajte prosím