Na podujatí sa predstaví až 37 vystavovateľov - popredných dodávateľov stavebných materiálov a inovácií s prezentáciou...
Novotvar v prostredí alpskej obce.
Hansgrohe - prémiová značka kúpeľňových riešení, ponúka nadčasový dizajn, technickú precíznosť a udržateľné inovácie...
Využite špeciálnu akciu Internorm: okná za minuloročné ceny a hliníkový kryt úplne zadarmo. Ponuka je časovo obmedzená!
Sumarizácia najdôležitejších inovácií, ktoré redefinujúcich využitie tohto energetického zdroja.
AMPHIBIA 3000 GRIP 1.3 od spoločnosti ATRO predstavuje modernú hydroizolačnú technológiu, ktorá spája vysokú odolnosť,...
Ambiciózne plány EK narazili na ekonomické možnosti domácností v jednotlivých členských štátoch –...
IDEA DOOR od spoločnosti JAP prináša do interiéru čistý minimalistický vzhľad vďaka bezrámovému riešeniu a precíznej...
Kontinuita riešenia od vonkajšieho obkladu až po kovania a kľučky.
Nástenné nadomietkové armatúry Vitus sú mimoriadne vhodné pre rýchlu a efektívnu...
Okenné profily z kompozitného materiálu RAU-FIPRO X od spoločnosti Rehau sú v porovnaní s tradičnými plastovými profilmi mnohonásobne...
Najnovší sortiment stolov pre zariadenie interiérov...
Spojenie moderného dizajnu, funkčnosti a svetla do harmonického architektonického prvku.
Kancelárska budova Baumit v slovinskom Trzine prešla premenou na moderné a udržateľné pracovisko. Architekti kládli dôraz...
Mottom šiesteho ročníku on-line konferencie odborníkov Xella Dialóg je Efektívny návrh budov 2025+: zmeny a riešenia

Jeden z piatich finalistov tohtoročnej Českej ceny za architektúru.
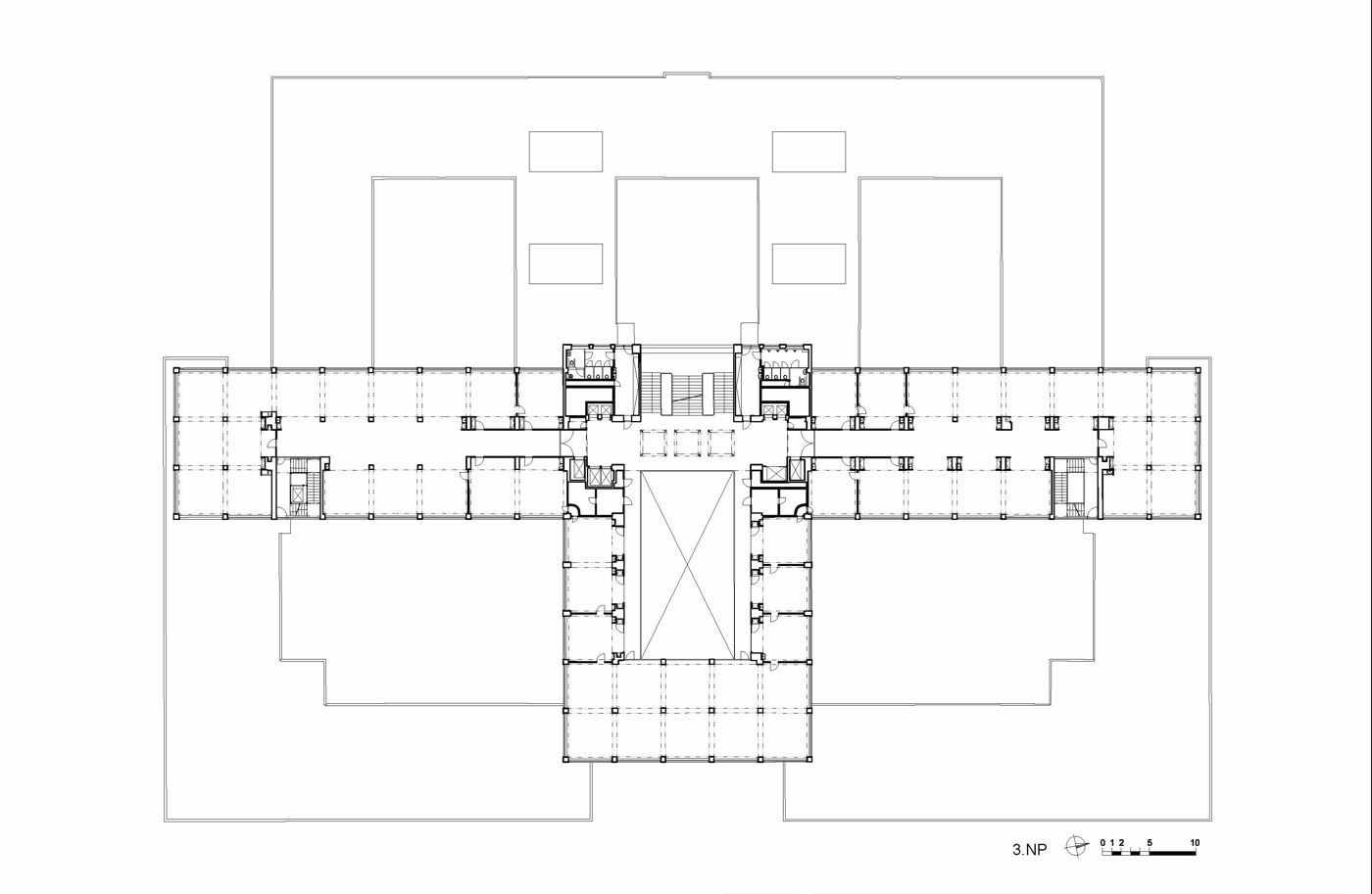
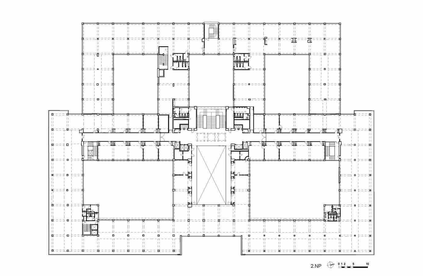
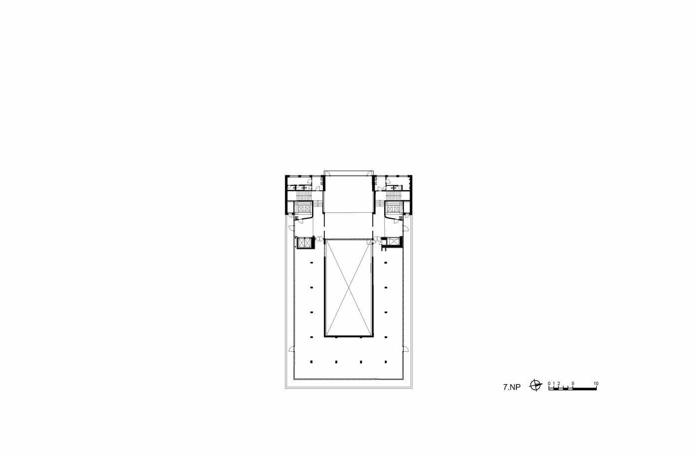
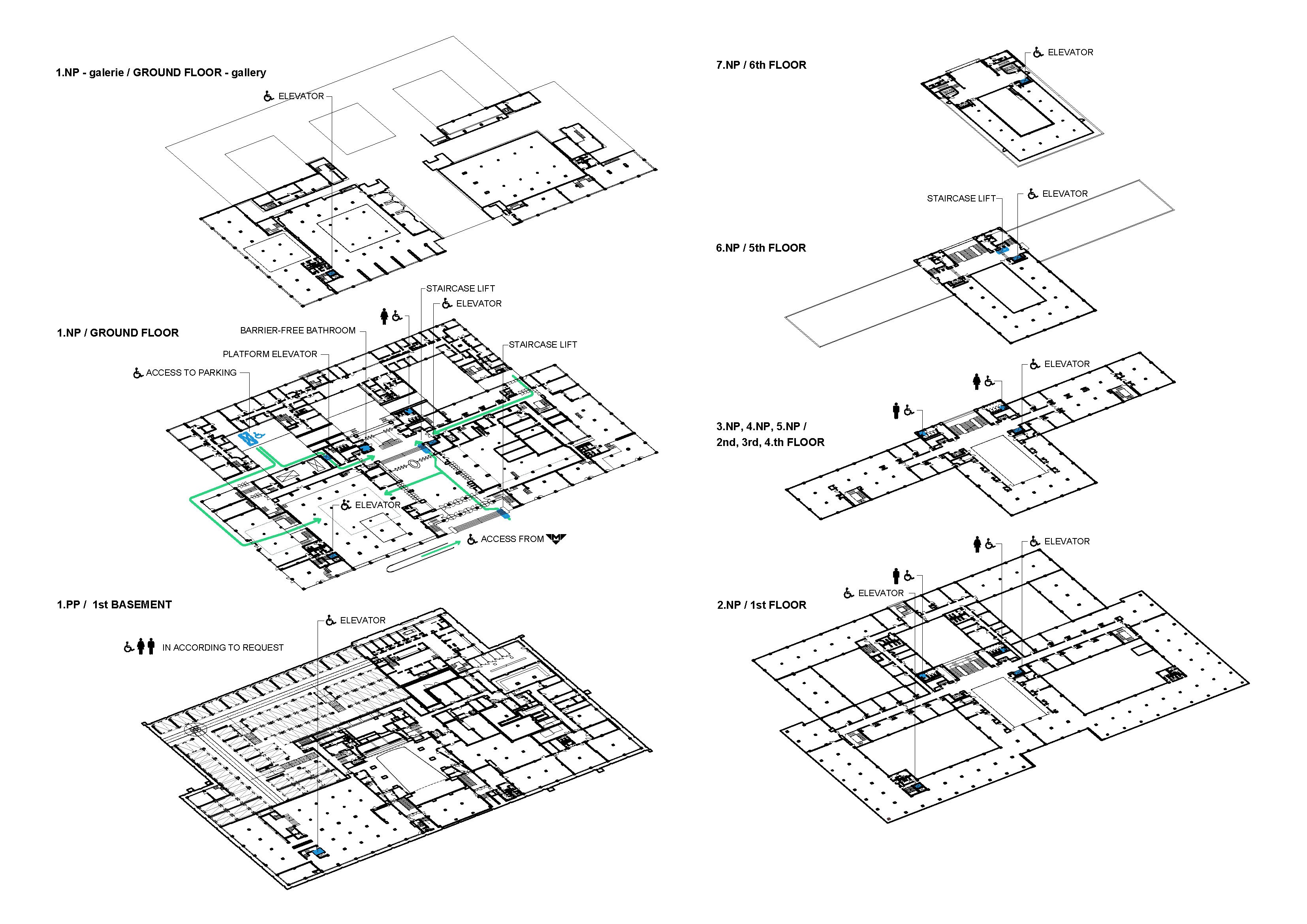
Palác Elektrických podnikov patrí medzi najvýznamnejšie pamiatky českej medzivojnovej funkcionalistickej architektúry. Hlavným zámerom obnovy bolo prezentovať kľúčové časti budovy v ich autentickej podobe. Jadro objektu tvorí kancelárska časť, s ťažiskom v päťposchodovej lodi centrálnej dvorany, lemovanej po obvode galériami.
Ako sa píše v hodnotení poroty ČCA:
"Rekonstrukce Paláce Elektrických podniků podtrhuje význam a potenciál architektonického dědictví 20. století v Praze. Architektura první republiky, často vynikající kvality, je dnes stále nedostatečně ceněná a v některých případech hrozí, že budou tyto budovy opuštěny, demolovány nebo úplně přeměněny. Naproti tomu obnova a konverze Elektrických podniků úspěšně vdechuje nový život architektonickému komplexu a okolní čtvrti. V tomto případě je proces obnovy budovy o to potřebnější, že původní budova je výjimečně kvalitní.
Pečlivé studium originální stavby umožnilo získat jednoznačné znalosti o použitých materiálech. To bylo také důležité pro pochopení pozornosti, kterou architekti věnovali přirozenému a umělému osvětlení. Původní dokumentace také ukázala, že budova byla bohatá na technologická experimentální řešení pro „dobře temperované prostředí“. Tyto poznatky se staly relevantními při rozhodování o způsobu renovace.
Obtížnost procesu transformace zvyšovaly také impozantní rozměry architektonického komplexu i snaha zachovat jeho jednotu a vyhnout se přílišné fragmentaci prostor.
Budova navržená koncem dvacátých let 20. století pro více než tisíc zaměstnanců má několik významných reprezentativních a shromažďovacích prostor, jako je hlavní vstupní hala. Tyto prostory představují další výzvu: projekt se musel přizpůsobit novému životu budovy bez přílišného tření se stávající strukturou. Kancelářské prostory pro různé obchodní činnosti, zázemí pro schůzky, volný čas a neformální setkávání nebo strukturovanější prostory pro polední přestávky tak byly nově navrženy při zachování úzké vazby na původní strukturu."
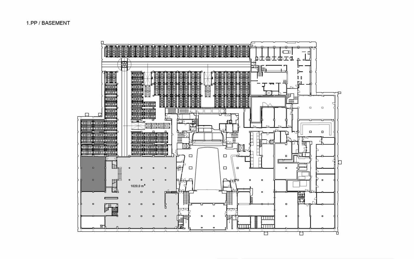
Palác Elektrických podnikov bola postavená v rokoch 1927 až 1935 podľa návrhu architektov Adolfa Benša a Josefa Kríža. Objekt po dokončení zastrešil 33 000 m² kancelárskych plôch, v tej dobe s vysoko nadštandardným vybavením. Základný rámec stavby tvorí monolitický skelet, založený na betónových pätkách, ktorý nahrádza na úrovni dvoch najvyšších podlaží oceľová nosná konštrukcia.
Hlavné body rekonštrukcie zahŕňali celkovú sanáciu základov z hlinitanových betónov, komplexnú výmenu obvodového plášťa, vrátane výplní otvorov, výmenu technického zariadenia budovy. Medzi zaujímavé riešenia patrí realizácia automatického parkovacieho zakladača v značnej časti rozsiahlych suterénov.
Celková obnova fasád (zahŕňajúca vývoj a výrobu kópií drevených a oceľových okien) a vybudovanie nových presklených konštrukcií nad pôvodnými sklobetónovými strechami vo všetkých átriách značne prispeli k zlepšeniu stavebno-fyzikálnych parametrov vonkajšej obálky. Inštalované technológie následne dotvárajú kvalitatívny posun v ekonomike a efektivite prevádzky.
Stavebne rozsiahlu a technicky komplikovanú rekonštrukciu a konverziu paláca Elektrických podnikov v Prahe je dôležité vnímať aj z hľadiska interdisciplinárnej spolupráce. Realizáciu je možné označiť za jednu z najväčších a technicky najnáročnejších rekonštrukcií pamiatkovo chráneného objektu v Prahe. Okrem iného práve rozsahom stavebnej intervencie, zapojením odborných skupín a takmer laboratórnym hľadaním finálnych riešení. Projekt v mnohých ohľadoch prispel k obohateniu poznatkov o medzivojnovej architektúre a možnostiach jej obnovy.
“Klíčový zde byl podíl skupiny stavebních historiků a restaurátorů a současně i kolegů z oboru poruchy staveb, stavebních materiálů a stavebních laboratoří. Úloha je specifická nejen tím, že se jedná o objekt poměrně novodobý, ale především tím, že palác Elektrických podniků je rozsáhlým stavebním celkem. Pro stavebně historické průzkumy a dokumentaci jednotlivých prvků a jejich skupin proto bylo třeba zavést zcela novou metodiku evidence v databázích, protože běžně používané postupy by pro objekt tohoto rozsahu byly nedostatečné a v režimu stavby nepoužitelné. Pro hledání postupů rekonstrukce pak platí, že je třeba hledat řešení, která na stavbě nebudou aplikována jednotlivě nebo na omezené ploše, ale naopak téměř průmyslově na plochách mnoha tisíc metrů čtverečních a v dodávkách čítajících řádově stovky a tisíce kusů výrobků. Stavební a technologické postupy tedy musí být většinou takové, aby je dokázali realizovat běžní stavební dodavatelé a nebo vybraní dodavatelé pod dohledem restaurátorských profesí,” vysvetľujú komplikovaný proces obnovy autori.
Architektúra z obdobia Prvej česko-slovenskej republiky je v mnohých prípadoch mimoriadna nielen svojou kvalitou, ale tiež odkazom spoločenskej ambície mladej parlamentnej demokracie. Ochrana a obnova stavebného fondu medzivojnovej architektúry je dôležitá aj preto, lebo kvalitné diela z tohto obdobia sú často prototypom / manifestom možností architektonického remesla a vtedajších technologických možností. Prezentovaný príklad ukazuje, že spomínané kvality je možné pri vynaložení dostatočného úsilia zachovať a prezentovať paralelne s prispôsobením stavby súčasným požadavkám.
Materiály:
Autor: TaK Architects
Podklady: Linka
Fotografie: KIVA