Sumarizácia najdôležitejších inovácií, ktoré redefinujúcich využitie tohto energetického zdroja.
AMPHIBIA 3000 GRIP 1.3 od spoločnosti ATRO predstavuje modernú hydroizolačnú technológiu, ktorá spája vysokú odolnosť,...
Ambiciózne plány EK narazili na ekonomické možnosti domácností v jednotlivých členských štátoch –...
IDEA DOOR od spoločnosti JAP prináša do interiéru čistý minimalistický vzhľad vďaka bezrámovému riešeniu a precíznej...
Nástenné nadomietkové armatúry Vitus sú mimoriadne vhodné pre rýchlu a efektívnu...
Okenné profily z kompozitného materiálu RAU-FIPRO X od spoločnosti Rehau sú v porovnaní s tradičnými plastovými profilmi mnohonásobne...
Najnovší sortiment stolov pre zariadenie interiérov...
Spojenie moderného dizajnu, funkčnosti a svetla do harmonického architektonického prvku.
Kancelárska budova Baumit v slovinskom Trzine prešla premenou na moderné a udržateľné pracovisko. Architekti kládli dôraz...
Mottom šiesteho ročníku on-line konferencie odborníkov Xella Dialóg je Efektívny návrh budov 2025+: zmeny a riešenia
Robot WLTR predstavuje moderný prístup k murovaným konštrukciám. Vďaka automatizácii dokáže rýchlo, presne a bezpečne realizovať...
Okrem bezpečnosti majú okná aj elegantný vzhľad, pretože nie sú viditeľné žiadne uzamykacie časti kovania.
Dvere MASTER v skrytej zárubni AKTIVE je možné vyrobiť až do výšky 3 700 mm
Internorm stavia na energetickú efektívnosť a inteligentné tieniace riešenia.
Slovensko vo výbere zastupuje šesť realizácií.
Rožnovskú pradiareň zriadila v roku 1892 viedenská firma Brill, Schreiber a spol. Textilná výroba neskoršieho areálu Loana skončila v roku 2010 a jednotlivé objekty sú odvtedy prispôsobované novému využitiu. Vzhľadom na atraktívnu polohu fabriky v rámci mesta dochádza k čiastočnému, ale významnému otváraniu urbanizmu areálu. Nové využitie je už teraz mixom ľahkého priemyslu, administratívy, obchodu, služieb aj bývania.
V neprehliadnuteľnej etážovke z 30. rokov, sídli od roku 2011 firma STROZA, ktorá vyvíja a vyrába špecializované stroje pre veľké výrobné linky. Väčšiu časť objektu adaptoval investor práve pre potreby výroby a administratívy. Na najvyššom poschodí, známom ako 3. Etáž, však podľa návrhu ateliéru Henkai vznikol priestor pre kreatívne ateliéry s DIY galériou a presahom do kultúrneho diania.
Potreba rozšíriť výrobu viedla investora ku kúpe časti priľahlého halového objektu bývalej farbiarne zo 70. rokov 20. storočia.
Komplexný prístup k obnove haly priniesol rozhodnutie nielen rozšíriť výrobu v nevyhnutnom rozsahu, ale tiež využiť možnosť doplniť priestor o ďalšie funkcie. Vznikla ďalšia časť mozaiky s názvom Barevna.
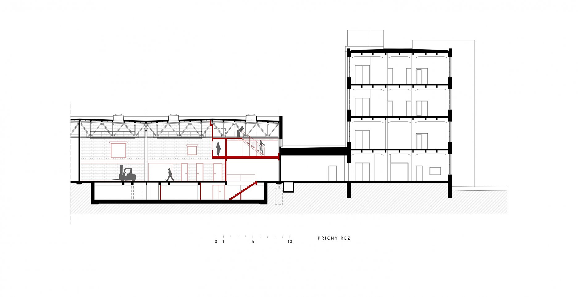
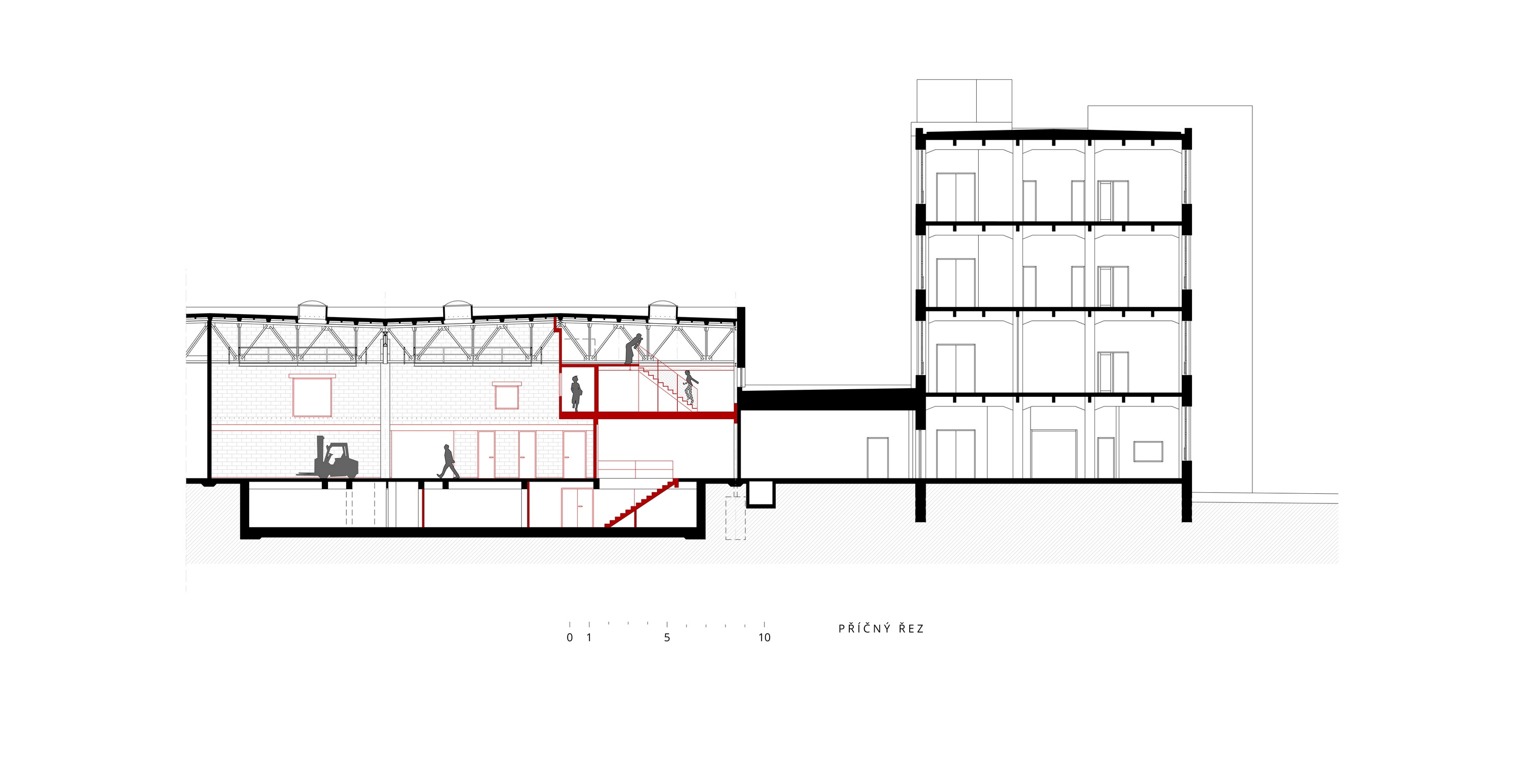
Hlavným východiskom architektonického návrhu, rovnako ako pri predošlej realizácii 3. Etáže je výrazná forma konštrukcie objektu. Tvorí autentický rámec, ktorý autori spoločne so surovou estetikou vybraných povrchov poctivo priznávajú. Priestorové usporiadanie je logicky podriadené modulu pôvodnej stavby, zvonku sú zmeny čitateľné len vďaka novým otvorom vo fasádach. Realizácia sa stáva súčasťou postupnej premeny a fragmentácie areálu. Prirodzený vývoj bez centrálneho riadenia prináša do zóny nové impulzy, ktoré vedú k jej transformácii na plnohodnotnú mestskú časť.
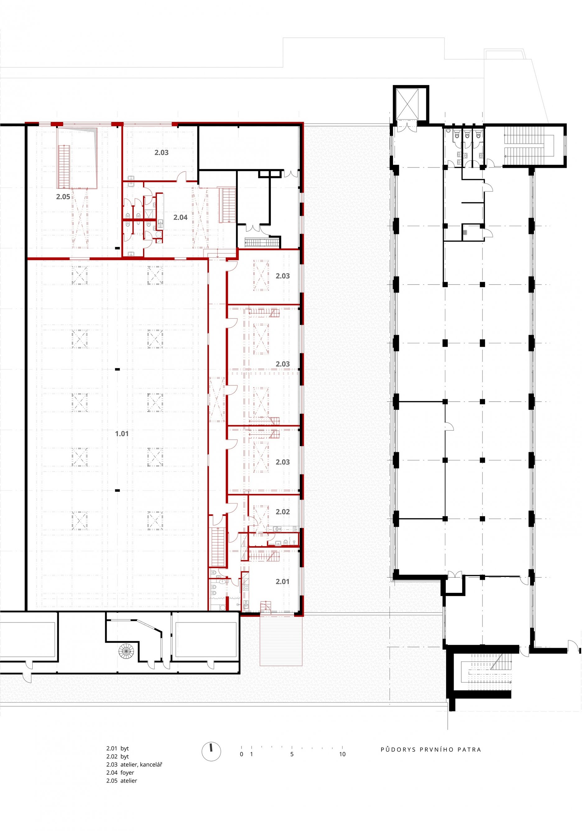
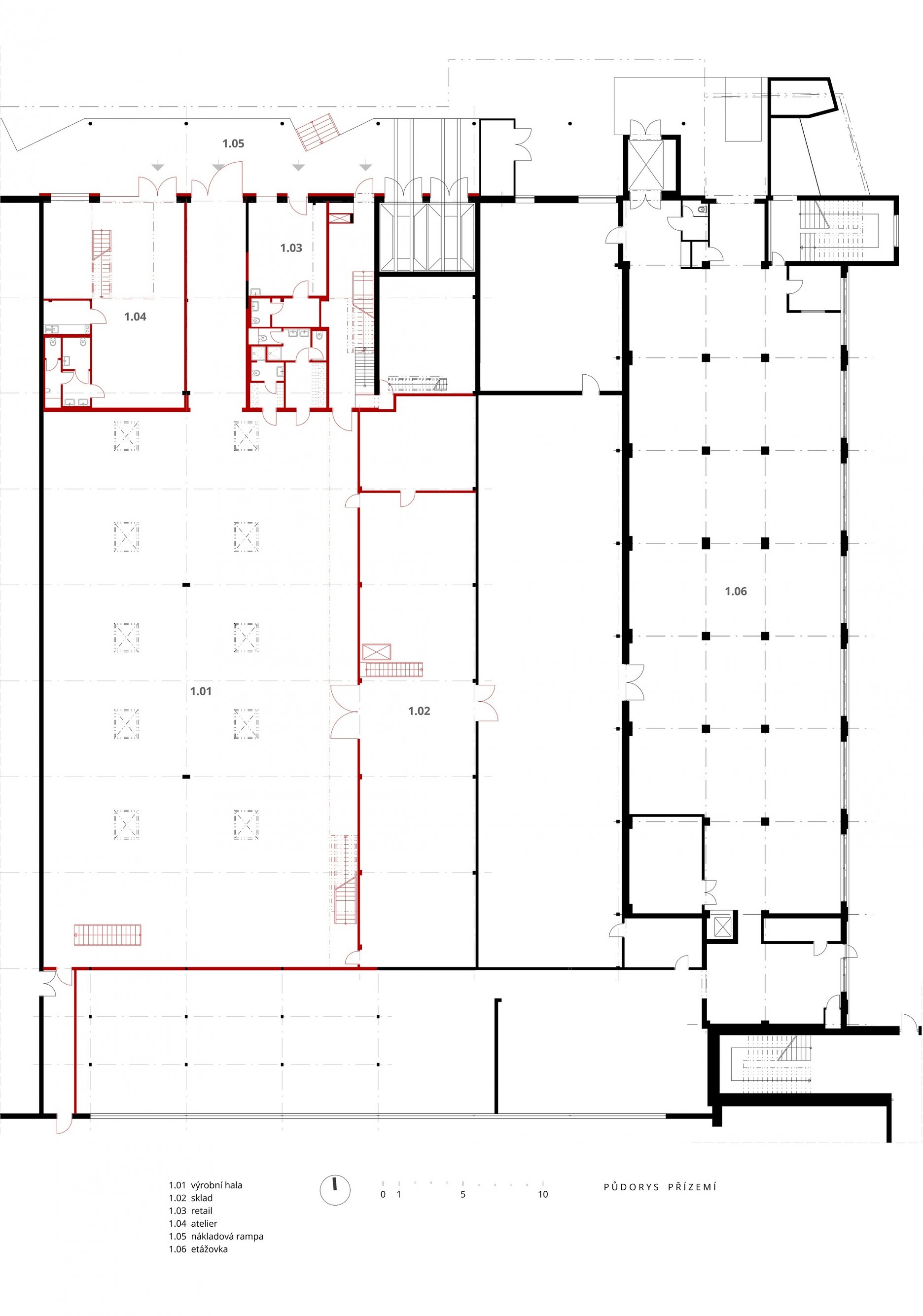
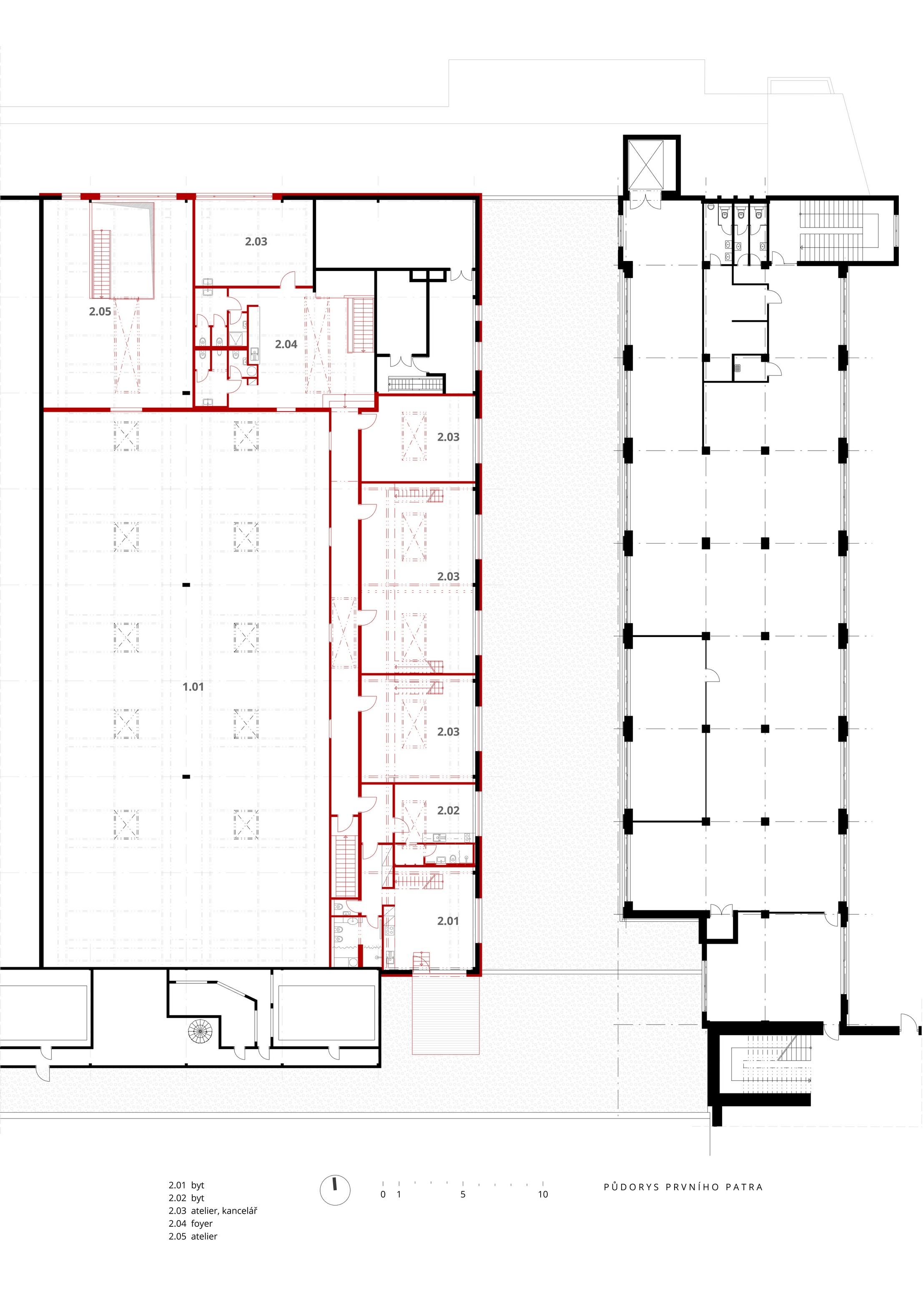
Nástupný priestor z ulice tvorí priečelie haly s rampou a oceľovým stĺporadím. Hlavná prevádzková časť je situovaná na prvom podlaží. Zo spoločného foyera a chodby sú prístupné jednotlivé ateliéry a byt v zadnej časti. Priestorovú skladbu dopĺňa dvojica nájomných jednotiek. Malá, jednopodlažná je určená na využitie ako obchodná prevádzka alebo kancelária. Prevýšený dvojpodlažný priestor dokáže pojať dielňu, kanceláriu, alebo napríklad bistro.
Do priestorov ateliérov a bytu vedia mäkké svetlo séria lineárnych svetlíkov. Vložené medziposchodia umožňujú priamy kontakt s oceľovou konštrukciou priehradových väzníkov, nesúcich prefabrikované betónové panely strechy. Architektonický koncept v plnej miere využíva potenciál charakteristickej konštrukcie priemyselnej haly a jej zastrešenia.
Materiály:
oceľ - nosná konštrukcia pôvodnej haly, stĺpy, priehradové väzníky, lávky, + nové schodisko, stropné nosníky a nábytok
pozinkovaný pororošt – schodisko
drevená preglejka - podlahy, nábytok podľa autorského návrhu
železobetón - prefabrikované stropné panely
betónové tvárnice - murivo
PVC - podlahy
čadič - podlahy
Autor: henkai architekti
Podklady: Linka
Fotografie: BoysPlayNice