Advertorial

Pozvánka na 2. ročník stavebného veľtrhu BigMarket na Slovensku

Na podujatí sa predstaví až 37 vystavovateľov - popredných dodávateľov stavebných materiálov a inovácií s prezentáciou...

Hotel Hirschen Spa House, Rakúsko

Novotvar v prostredí alpskej obce.

Vytvorte si kúpeľňu snov: dizajnové riešenie od značky hansgrohe

Hansgrohe - prémiová značka kúpeľňových riešení, ponúka nadčasový dizajn, technickú precíznosť a udržateľné inovácie...

Okná Internorm za minuloročné ceny + hliníkový kryt zdarma!

Využite špeciálnu akciu Internorm: okná za minuloročné ceny a hliníkový kryt úplne zadarmo. Ponuka je časovo obmedzená!

Moderné plynové technológie: Efektivita a inovácie pre 21. storočie

Sumarizácia najdôležitejších inovácií, ktoré redefinujúcich využitie tohto energetického zdroja.

Utesňovanie spodných stavieb pomocou hydro-aktívnej fólie AMPHIBIA.

AMPHIBIA 3000 GRIP 1.3 od spoločnosti ATRO predstavuje modernú hydroizolačnú technológiu, ktorá spája vysokú odolnosť,...

Dekarbonizácia individuálneho vykurovania domácností – Green Deal evolučne a nie revolučne

Ambiciózne plány EK narazili na ekonomické možnosti domácností v jednotlivých členských štátoch –...

Minimalistické dvere IDEA – technická precíznosť a čistota prevedenia

IDEA DOOR od spoločnosti JAP prináša do interiéru čistý minimalistický vzhľad vďaka bezrámovému riešeniu a precíznej...

Dom s výhľadom na údolie, Dlouhý Most (ČR)

Kontinuita riešenia od vonkajšieho obkladu až po kovania a kľučky.

Schell Vitus – osvedčené riešenie pre sprchy a umývadlá vo verejnom sektore s viac ako desaťročnou tradíciou

Nástenné nadomietkové armatúry Vitus sú mimoriadne vhodné pre rýchlu a efektívnu...

Kompozitné okná predstavujú súčasnosť a budúcnosť

Okenné profily z kompozitného materiálu RAU-FIPRO X od spoločnosti Rehau sú v porovnaní s tradičnými plastovými profilmi mnohonásobne...

Myotis - stoly 2025

Najnovší sortiment stolov pre zariadenie interiérov...

Priemyselné sklenené priečky Dorsis Digero: svetelné rozhranie pre moderné interiéry

Spojenie moderného dizajnu, funkčnosti a svetla do harmonického architektonického prvku.

Význam prirodzeného svetla pre moderné a flexibilné pracovné prostredie

Kancelárska budova Baumit v slovinskom Trzine prešla premenou na moderné a udržateľné pracovisko. Architekti kládli dôraz...

Konferencia Xella Dialóg predstaví novinky a trendy v stavebníctve

Mottom šiesteho ročníku on-line konferencie odborníkov Xella Dialóg je Efektívny návrh budov 2025+: zmeny a riešenia

Dom namiesto chaty, Říčany (ČR)

Dom s fasádou z opaľovaného dreva a konštrukciou z CLT panelov.
Diela
Red 312.01.2024
29060+31
Dom namiesto chaty, Říčany (ČR)
Autori: Martin Hajný, Alex JelojevováSpolupráca: 3A (stavba, projekcia)Plocha pozemku: 820 m²Zastavaná plocha: 116 m²Podlažná plocha: 216 m²Návrh: 2020 - 2021Realizácia: 2022 - 2023Adresa: Říčany, Česká republikaPublikované: 12. január 2024

Klient oslovil pražský ateliér Martina Hajného s požiadavkou na návrh domu na mieste staršej rodinnej chaty. Forma pôvodného objektu čiastočne ovplyvnila podobu novostavby. Nový územný plán počíta v celej lokalite s výstavbou rodinných domov, pričom pôvodné rekreačné objekty z územia postupne miznú. “S klientem jsme se shodli na tom, že vzhledem k charakteru území a sentimentálnímu vztahu k původní budově bude vhodné zohlednit výraz a tvar staré chaty,” vysvetľuje architekt.  

Obdĺžniková parcela v okrajovej časti mesta Říčany je zo západnej strany ohraničená protihlukovou stenou železničného koridoru. Príjazdová komunikácia prilieha k pozemku s výmerou 820 m2 z východu. Okolitú zástavbu stále tvoria prevažne chaty, charakteristické pre rekreačnú lokalitu v blízkosti Prahy. Dodržanie odstupových vzdialeností a snaha o zachovanie voľného priestoru záhrady definovali umiestnenie kompaktného domu s celkovou podlahovou plochou 180 m2.  

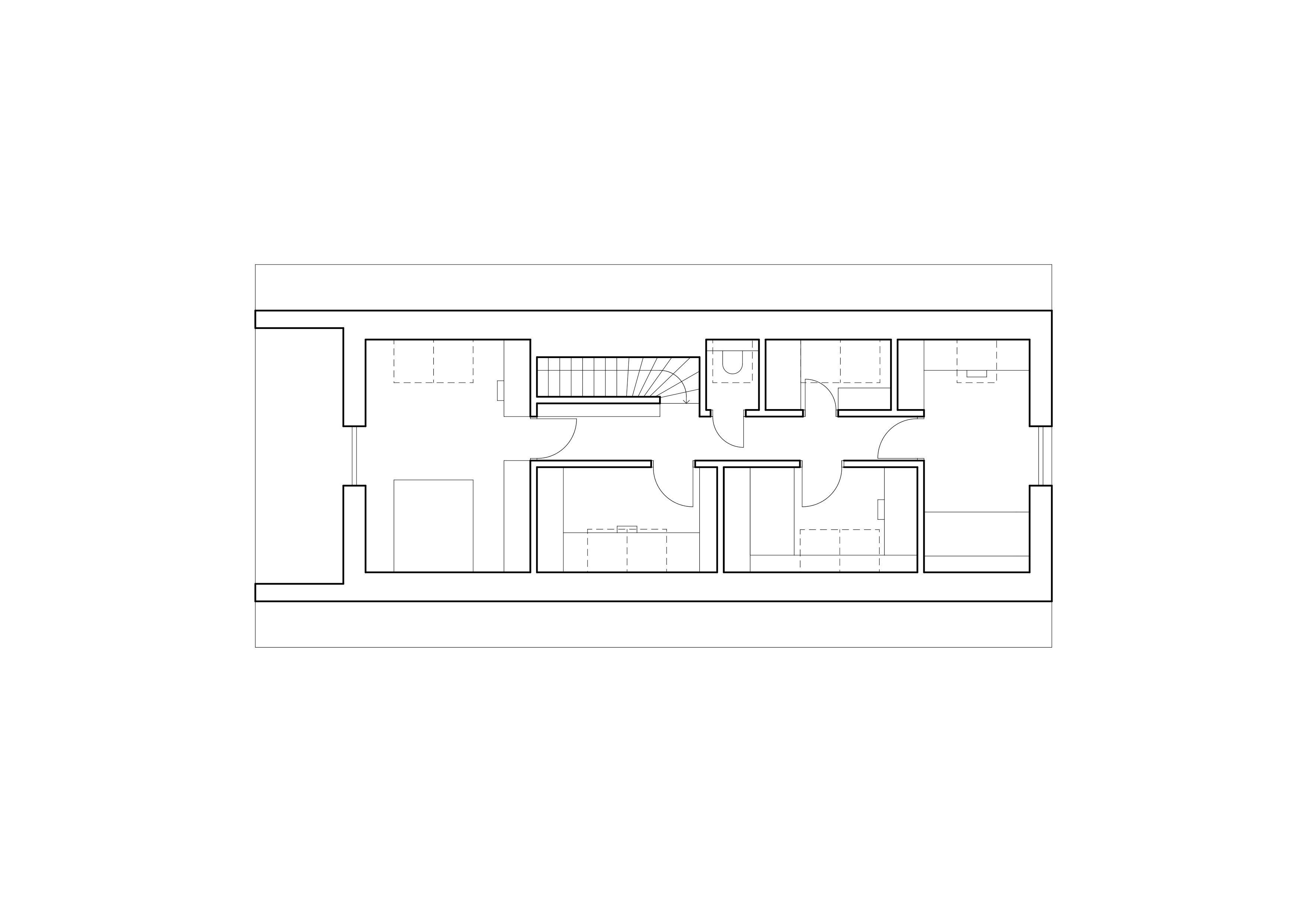
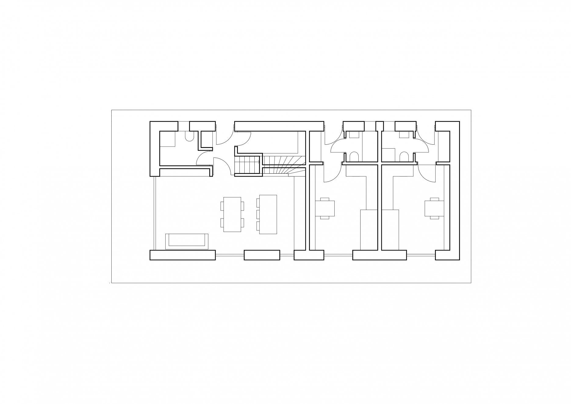
Dispozičné riešenie domu delia autori na severnú obslužnú a južnú pobytovú časť. Prízemie pojalo dve garsónky so samostatnými vstupmi, vstupnú a technickú časť hlavného bytu a väčšiu obývaciu izbu s kuchyňou. V podkroví sa nachádza spálňa, pracovňa a kúpeľňa hlavného bytu.

Pri pohľade z exteriéru jasne vystupujú trojuholníkové štíty, zvýraznené svetlými drevenými tieniacimi prvkami. “Tvar střechy a její přesahy vychází z typických tvarů původních chat, zároveň poskytují stínění jižní fasády a chrání terasu před deštěm. U hlavní ložnice, za stínícími lamelami, vzniká vykonzolovaný balkon, - venkovní pokoj,” dopĺňa Martina Hajný. 

Kontrast k tmavej obálke z opaľovaného dreva tvorí svetlý interiér. S pohľadovou vrstvou odhalených CLT panelov korešponduje zariadenie interiéru. Výnimku tvoria tmavé bloky vstavaného nábytku. Dom je realizovaný v nízkoenergetickom štandarde, s elektrickým podlahovým vykurovaním a vzduchotechnikou s rekuperáciou.

Foto: Radek Úlehla
Foto: Radek Úlehla
Foto: Radek Úlehla
Foto: Radek Úlehla
Foto: Radek Úlehla
Foto: Radek Úlehla
Foto: Radek Úlehla
Foto: Radek Úlehla
Foto: Radek Úlehla
Foto: Radek Úlehla
Foto: Radek Úlehla
Situácia
SituáciaAutor: Atelier Hajný
Pôdorys 1. NP
Pôdorys 1. NPAutor: Atelier Hajný
Pôdorys 1. NP
Pôdorys 1. NPAutor: Atelier Hajný
Rez
RezAutor: Atelier Hajný
Západný pohľad
Západný pohľadAutor: Atelier Hajný
Východný pohľad
Východný pohľadAutor: Atelier Hajný
Južný pohľad
Južný pohľadAutor: Atelier Hajný
Severný pohľad
Severný pohľadAutor: Atelier Hajný
Foto: Radek Úlehla
Foto: Radek Úlehla
Foto: Radek Úlehla
Foto: Radek Úlehla
Foto: Radek Úlehla
Foto: Radek Úlehla
Foto: Radek Úlehla
Foto: Radek Úlehla
Foto: Radek Úlehla
Foto: Radek Úlehla
Foto: Radek Úlehla
Foto: Radek Úlehla
Foto: Radek Úlehla
Foto: Radek Úlehla
Foto: Radek Úlehla
Foto: Radek Úlehla
Foto: Radek Úlehla
Foto: Radek Úlehla

Materiály:

  • CLT panely - nosná konštrukcia
  • opaľované drevo - fasáda
  • cementová stierka - podlahy, steny v kúpeľniach
  • dubová dyha - svetlý nábytok, interiérové ​​dvere
  • brezová dyha - tmavý nábytok

Autor: Atelier Hajný
Podklady: Linka
Fotografie: Radek Úlehla

Poloha diela

Martin Hajný
Alex Jelojevová
Vložené
11. január 2024
0
2906
Hlavný obsahHlavný obsah
Čakajte prosím