Advertorial

Pozvánka na 2. ročník stavebného veľtrhu BigMarket na Slovensku

Na podujatí sa predstaví až 37 vystavovateľov - popredných dodávateľov stavebných materiálov a inovácií s prezentáciou...

Hotel Hirschen Spa House, Rakúsko

Novotvar v prostredí alpskej obce.

Vytvorte si kúpeľňu snov: dizajnové riešenie od značky hansgrohe

Hansgrohe - prémiová značka kúpeľňových riešení, ponúka nadčasový dizajn, technickú precíznosť a udržateľné inovácie...

Okná Internorm za minuloročné ceny + hliníkový kryt zdarma!

Využite špeciálnu akciu Internorm: okná za minuloročné ceny a hliníkový kryt úplne zadarmo. Ponuka je časovo obmedzená!

Moderné plynové technológie: Efektivita a inovácie pre 21. storočie

Sumarizácia najdôležitejších inovácií, ktoré redefinujúcich využitie tohto energetického zdroja.

Utesňovanie spodných stavieb pomocou hydro-aktívnej fólie AMPHIBIA.

AMPHIBIA 3000 GRIP 1.3 od spoločnosti ATRO predstavuje modernú hydroizolačnú technológiu, ktorá spája vysokú odolnosť,...

Dekarbonizácia individuálneho vykurovania domácností – Green Deal evolučne a nie revolučne

Ambiciózne plány EK narazili na ekonomické možnosti domácností v jednotlivých členských štátoch –...

Minimalistické dvere IDEA – technická precíznosť a čistota prevedenia

IDEA DOOR od spoločnosti JAP prináša do interiéru čistý minimalistický vzhľad vďaka bezrámovému riešeniu a precíznej...

Dom s výhľadom na údolie, Dlouhý Most (ČR)

Kontinuita riešenia od vonkajšieho obkladu až po kovania a kľučky.

Schell Vitus – osvedčené riešenie pre sprchy a umývadlá vo verejnom sektore s viac ako desaťročnou tradíciou

Nástenné nadomietkové armatúry Vitus sú mimoriadne vhodné pre rýchlu a efektívnu...

Kompozitné okná predstavujú súčasnosť a budúcnosť

Okenné profily z kompozitného materiálu RAU-FIPRO X od spoločnosti Rehau sú v porovnaní s tradičnými plastovými profilmi mnohonásobne...

Myotis - stoly 2025

Najnovší sortiment stolov pre zariadenie interiérov...

Priemyselné sklenené priečky Dorsis Digero: svetelné rozhranie pre moderné interiéry

Spojenie moderného dizajnu, funkčnosti a svetla do harmonického architektonického prvku.

Význam prirodzeného svetla pre moderné a flexibilné pracovné prostredie

Kancelárska budova Baumit v slovinskom Trzine prešla premenou na moderné a udržateľné pracovisko. Architekti kládli dôraz...

Konferencia Xella Dialóg predstaví novinky a trendy v stavebníctve

Mottom šiesteho ročníku on-line konferencie odborníkov Xella Dialóg je Efektívny návrh budov 2025+: zmeny a riešenia

Chata Bučina, Krkonoše

Objekt pre správcu lyžiarskeho strediska Malá Úpa.
Diela
Red 320.03.2024
16900+60
Chata Bučina, Krkonoše
Autori: Mgr.A. Aleš Lapka, Mgr.A. Petr KolářSpolupráca: Ing. arch. Miloš Hradec, Ing. Pavel ČermákInvestor: SKiMUPlocha pozemku: 2717 m²Zastavaná plocha: 94 m²Podlažná plocha: 162 m²Návrh: 2020 - 2021Realizácia: 2022 - 2023Adresa: Horní Malá Úpa, Česká republikaPublikované: 20. marec 2024

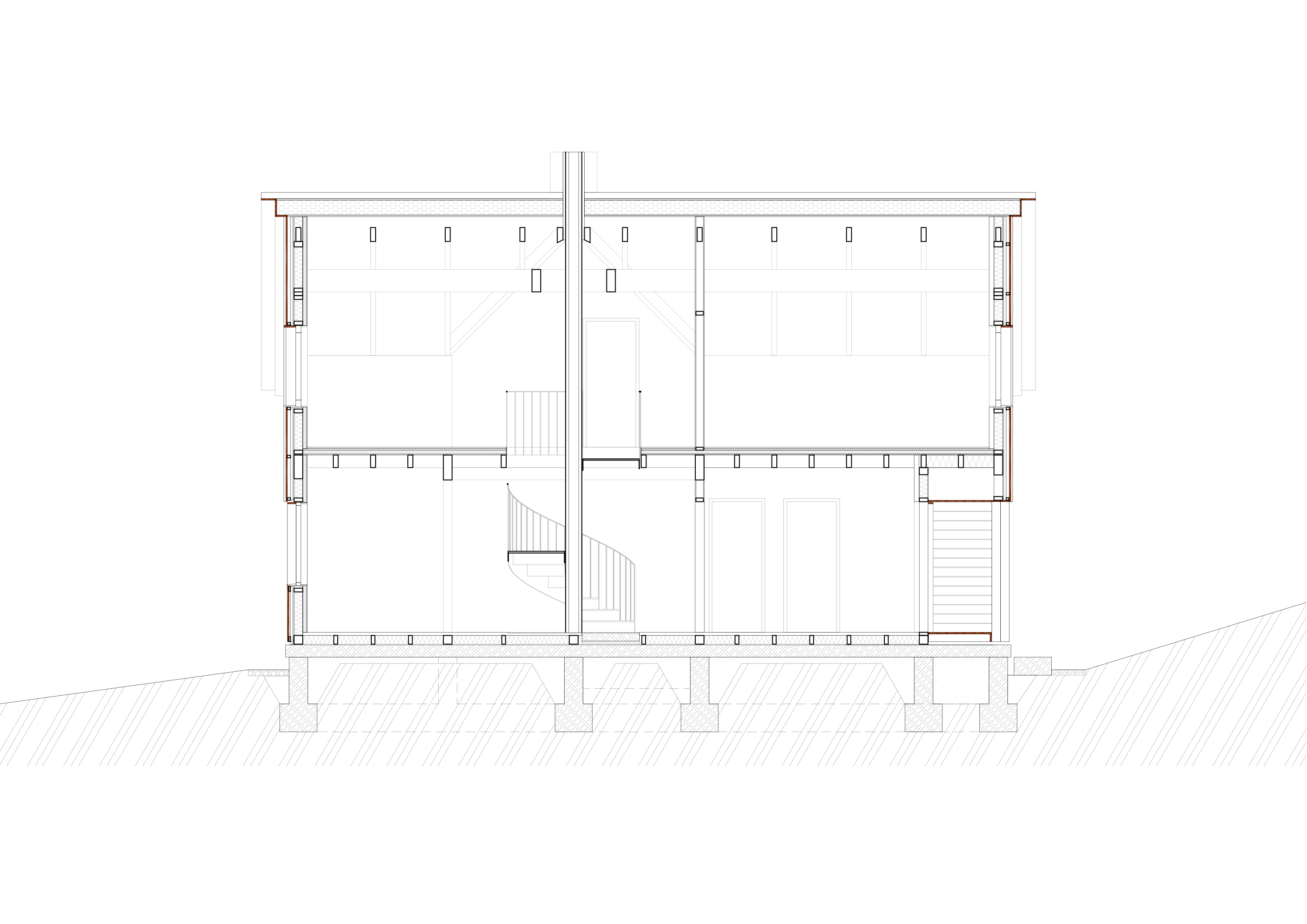
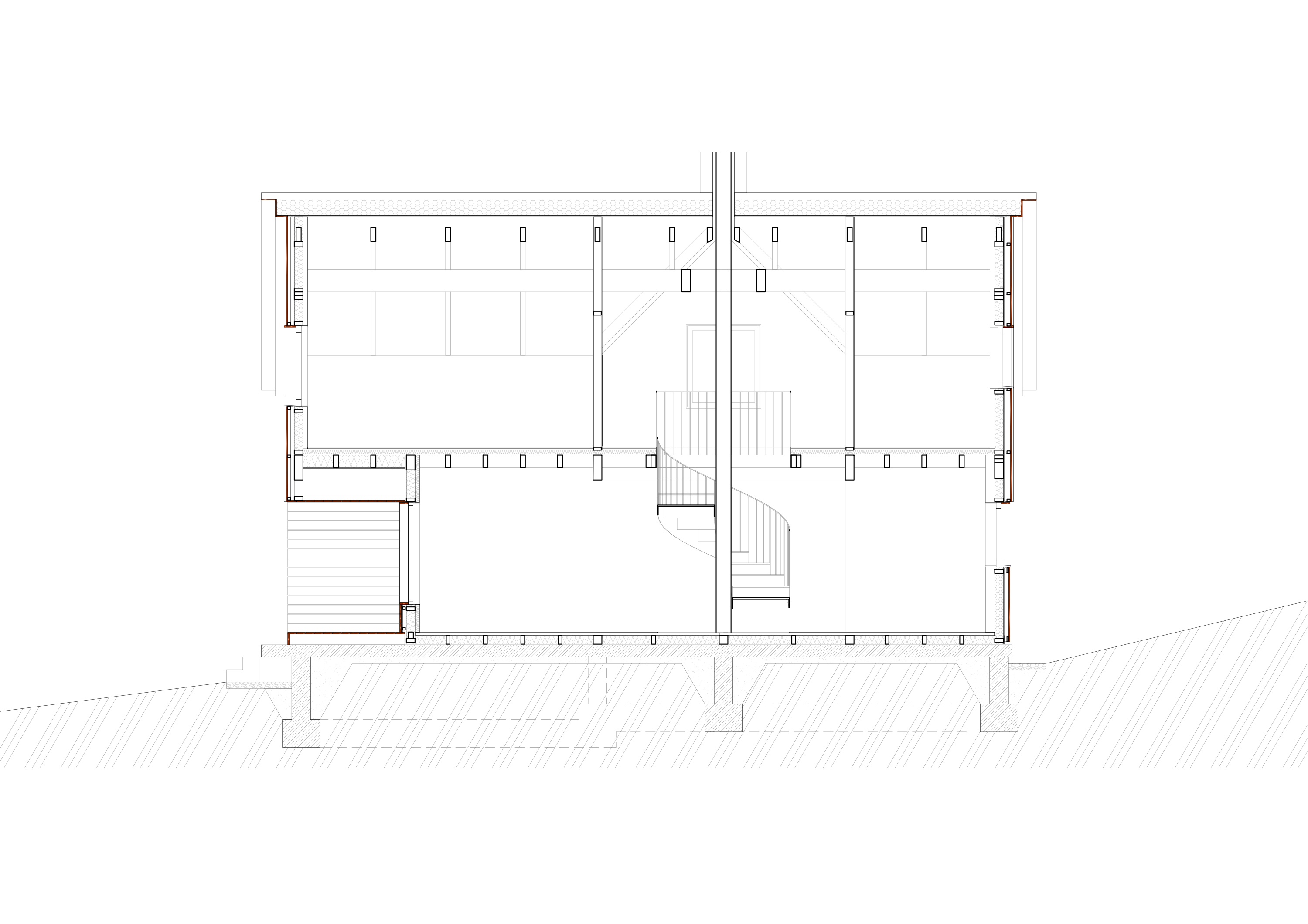
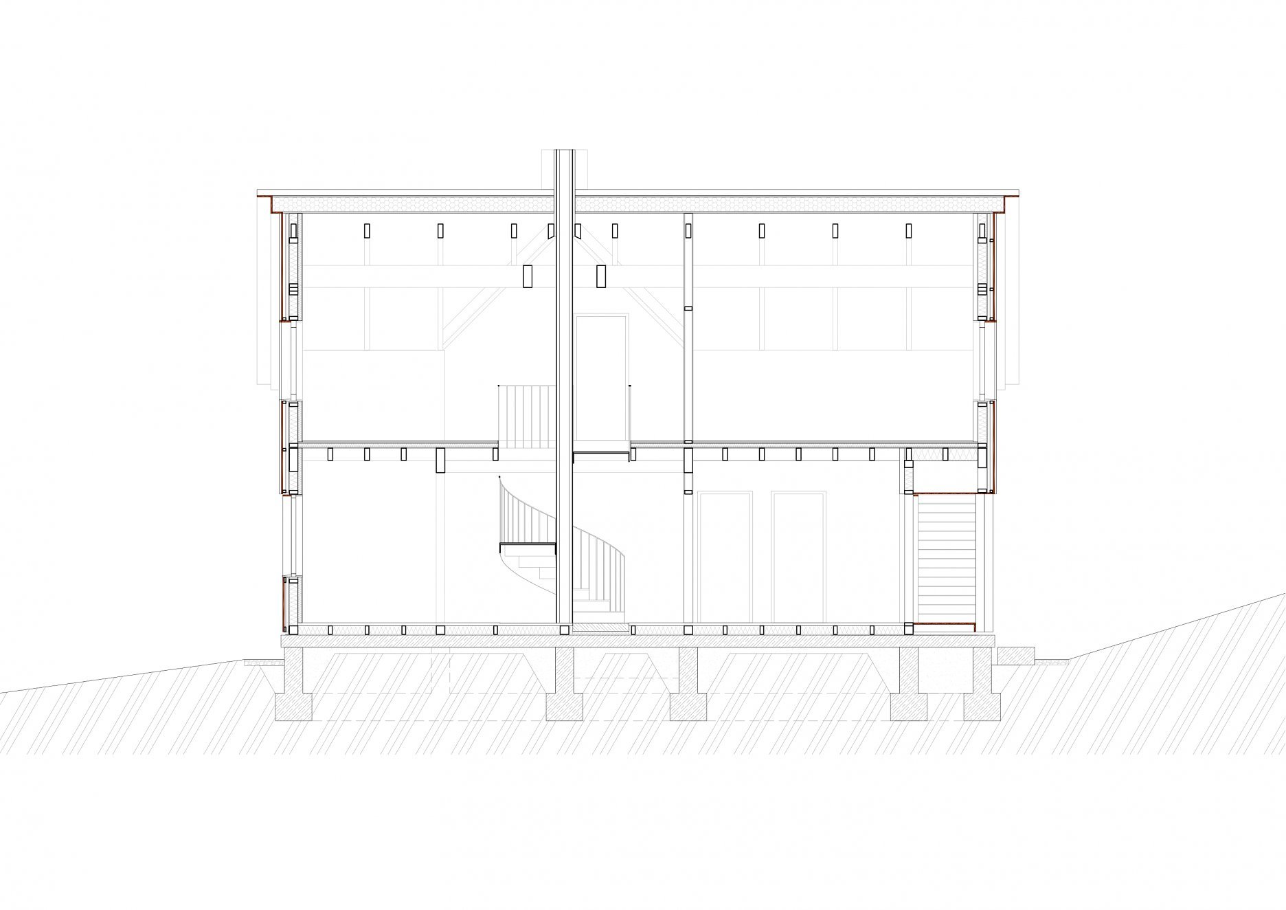
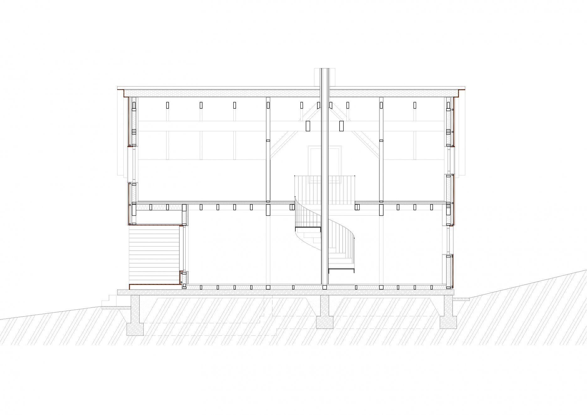
Dispozíciu v tvare asymetrického kríža definuje prienik dvojice rovnakých hmôt. Každé z ramien zastrešuje rozdielnu funkciu a smeruje k výhľadom do okolitej krajiny. Za zmienku stojí napríklad jedálenský kút, situovaný pri okne s výhľadom na siluetu Sněžky. Miesto prieniku osí definuje špirálové schodisko, ktoré sa vinie okolo komína a prepája spoločenskú časť s nočnou zónou v podkroví.

Osadenie ľahkej drevostavby na vyvýšenú betónovú základovú dosku dorovná úroveň snehovej pokrývky v zimných mesiacoch. Fasáda z nehobľovaných smrekových dosiek natretá na červeno odkazuje na tradičné drevostavby v okolí. Masívne smrekové drevo v podobe priznaných konštrukčných hranolov, podláh a všetkého atypického nábytku tvorí dôležitú súčasť interiéru.

Foto: BoysPlayNice
Foto: BoysPlayNice
Foto: BoysPlayNice
Foto: BoysPlayNice
Foto: BoysPlayNice
Foto: BoysPlayNice
Foto: BoysPlayNice
Foto: BoysPlayNice
Foto: BoysPlayNice
Foto: BoysPlayNice
Foto: BoysPlayNice
Foto: BoysPlayNice
Foto: BoysPlayNice
Foto: BoysPlayNice
Foto: BoysPlayNice
Situácia
SituáciaAutor: ADR

Pôdorys kompaktného objektu tvoria hmoty s rozmermi 4,8 x 11,4 metrov a výškou sedlovej strechy 7 metrov. Montovaná drevostavba stojí na podkladovej monolitickej doske, uloženej na dvojstupňových základových pásoch (vrchný stupeň z armovaných tvárnic strateného debnenia). Drevený obklad oddeľuje od vrstvy zateplenia prevetrávaná medzera. Strechu pokrývajú pásy z falcovaného  hliníkového plechu.

Vstup do objektu vedie z východného priečelia. Na zádverie nadväzujú priestory skladu, WC a obývacej izby. Z dennej zóny domu vedie točité schodisko do podkrovných izieb, kúpeľne a technickej miestnosti. 

Pôdorys prízemia
Pôdorys prízemiaAutor: ADR
Pôdorys podkrovia
Pôdorys podkroviaAutor: ADR
Rez A - A´
Rez A - A´Autor: ADR
Rez B - B´
Rez B - B´Autor: ADR
Východný pohľad
Východný pohľadAutor: ADR
Južný pohľad
Južný pohľadAutor: ADR
Západný pohľad
Západný pohľadAutor: ADR
Severný pohľad
Severný pohľadAutor: ADR
Foto: BoysPlayNice
Foto: BoysPlayNice
Foto: BoysPlayNice
Foto: BoysPlayNice
Foto: BoysPlayNice
Foto: BoysPlayNice
Foto: BoysPlayNice
Foto: BoysPlayNice
Foto: BoysPlayNice
Foto: BoysPlayNice
Foto: BoysPlayNice

Materiály:

  • drevo - konštrukcia, fasáda, interiér
  • strešný systém PREFA PREFALZ ® - falcovaný plech vo farbe "prírodný hliník" 
  • oceľ - schodisko
  • plech - strecha
  • betón - základová doska

Architektúra: ADR
Podklady: Linka
Fotografie: BoysPlayNice

Poloha diela

Mgr.A. Aleš Lapka
Mgr.A. Petr Kolář

Súvisiace články

Vložené
21. február 2024
0
1690
Hlavný obsahHlavný obsah
Čakajte prosím