Advertorial

Pozvánka na 2. ročník stavebného veľtrhu BigMarket na Slovensku

Na podujatí sa predstaví až 37 vystavovateľov - popredných dodávateľov stavebných materiálov a inovácií s prezentáciou...

Hotel Hirschen Spa House, Rakúsko

Novotvar v prostredí alpskej obce.

Vytvorte si kúpeľňu snov: dizajnové riešenie od značky hansgrohe

Hansgrohe - prémiová značka kúpeľňových riešení, ponúka nadčasový dizajn, technickú precíznosť a udržateľné inovácie...

Okná Internorm za minuloročné ceny + hliníkový kryt zdarma!

Využite špeciálnu akciu Internorm: okná za minuloročné ceny a hliníkový kryt úplne zadarmo. Ponuka je časovo obmedzená!

Moderné plynové technológie: Efektivita a inovácie pre 21. storočie

Sumarizácia najdôležitejších inovácií, ktoré redefinujúcich využitie tohto energetického zdroja.

Utesňovanie spodných stavieb pomocou hydro-aktívnej fólie AMPHIBIA.

AMPHIBIA 3000 GRIP 1.3 od spoločnosti ATRO predstavuje modernú hydroizolačnú technológiu, ktorá spája vysokú odolnosť,...

Dekarbonizácia individuálneho vykurovania domácností – Green Deal evolučne a nie revolučne

Ambiciózne plány EK narazili na ekonomické možnosti domácností v jednotlivých členských štátoch –...

Minimalistické dvere IDEA – technická precíznosť a čistota prevedenia

IDEA DOOR od spoločnosti JAP prináša do interiéru čistý minimalistický vzhľad vďaka bezrámovému riešeniu a precíznej...

Dom s výhľadom na údolie, Dlouhý Most (ČR)

Kontinuita riešenia od vonkajšieho obkladu až po kovania a kľučky.

Schell Vitus – osvedčené riešenie pre sprchy a umývadlá vo verejnom sektore s viac ako desaťročnou tradíciou

Nástenné nadomietkové armatúry Vitus sú mimoriadne vhodné pre rýchlu a efektívnu...

Kompozitné okná predstavujú súčasnosť a budúcnosť

Okenné profily z kompozitného materiálu RAU-FIPRO X od spoločnosti Rehau sú v porovnaní s tradičnými plastovými profilmi mnohonásobne...

Myotis - stoly 2025

Najnovší sortiment stolov pre zariadenie interiérov...

Priemyselné sklenené priečky Dorsis Digero: svetelné rozhranie pre moderné interiéry

Spojenie moderného dizajnu, funkčnosti a svetla do harmonického architektonického prvku.

Význam prirodzeného svetla pre moderné a flexibilné pracovné prostredie

Kancelárska budova Baumit v slovinskom Trzine prešla premenou na moderné a udržateľné pracovisko. Architekti kládli dôraz...

Konferencia Xella Dialóg predstaví novinky a trendy v stavebníctve

Mottom šiesteho ročníku on-line konferencie odborníkov Xella Dialóg je Efektívny návrh budov 2025+: zmeny a riešenia

Dom na horskej lúke, Dolní Malá Úpa

Útočisko v horskom prostredí.
Diela
Red 326.12.2023
15180+20
Dom na horskej lúke, Dolní Malá Úpa
Autori: Ing. arch. Martin Šenberger, Ing. arch. Václav Kastner (spoluautor)Plocha pozemku: 3642 m²Zastavaná plocha: 154 m²Podlažná plocha: 402 m²Návrh: 2018 - 2020Realizácia: 2021 - 2022Adresa: Dolní Malá Úpa 138, Dolní Malá Úpa , Česká republikaPublikované: 26. december 2023

Víkendový dom na západnom svahu pohraničného krkonošského hrebeňa.

“Do horské obce Malá Úpa jsme navrhli pro přátele dům, který čerpá z historických staveb v Krkonoších, využívá staleté poznatky života v horách a transformuje je pro potřeby soudobého bydlení,” vysvetľuje Martin Šenberger z pražského ateliéru mar.s architects.

Výsledkom je archetypálny lineárny objekt, posadený na sokli obloženom miestnym kameňom. Smrekovcová fasáda počíta s prirodzenou patinou, vznikajúcou v horskom prostredí. Zo sedlovej strechy, pokrytej tmavo lakovaným hliníkovým plechom, vystupuje dvojica vikierov. Menší z nich smeruje k ceste a je materiálovo zjednotený s plechovou krytinou. Rozmerný vikier, orientovaný k výhľadom na lúku, presvetľuje nočnú zónu domu. Jeho čelná stena korešponduje s latkovým obkladom fasád.

V západnej časti rozširuje dom veranda, inšpirovaná riešením historických chalúp. Pobytový priestor čiastočne kryje zvislé latovanie na úrovni fasády, ktoré vytvára rozhranie medzi interiérom a exteriérom. Z verandy vystupuje oceľová konštrukcia terasy, presahujúca ponad svah lúky. Protiklad k otvorenej fasáde s verandou tvorí kompaktná uličná fronta, ktorú akcentuje vstupný oceľový box, chrániaci obyvateľov pred nepriazňou počasia.

Cez vstupný box sa návštevník dostáva do zádveria a pokračuje do otvorenej dennej zóny. Z prízemia vedie schodisko do suterénu s domácim wellness a do nočnej časti v podkroví.

Striedma materiálová schéma prechádza aj do interiéru. Prevládajúce masívne drevo dopĺňajú hladké monochromatické povrchy vstavaných nábytkových blokov a vybrané solitéry mobiliáru.

Foto: BoysPlayNice
Foto: BoysPlayNice
Foto: BoysPlayNice
Foto: BoysPlayNice
Foto: BoysPlayNice
Foto: BoysPlayNice
Foto: BoysPlayNice
Foto: BoysPlayNice
Foto: BoysPlayNice
Foto: BoysPlayNice
Foto: BoysPlayNice
Pôdorys 1. NP
Pôdorys 1. NPAutori: mar.s architects
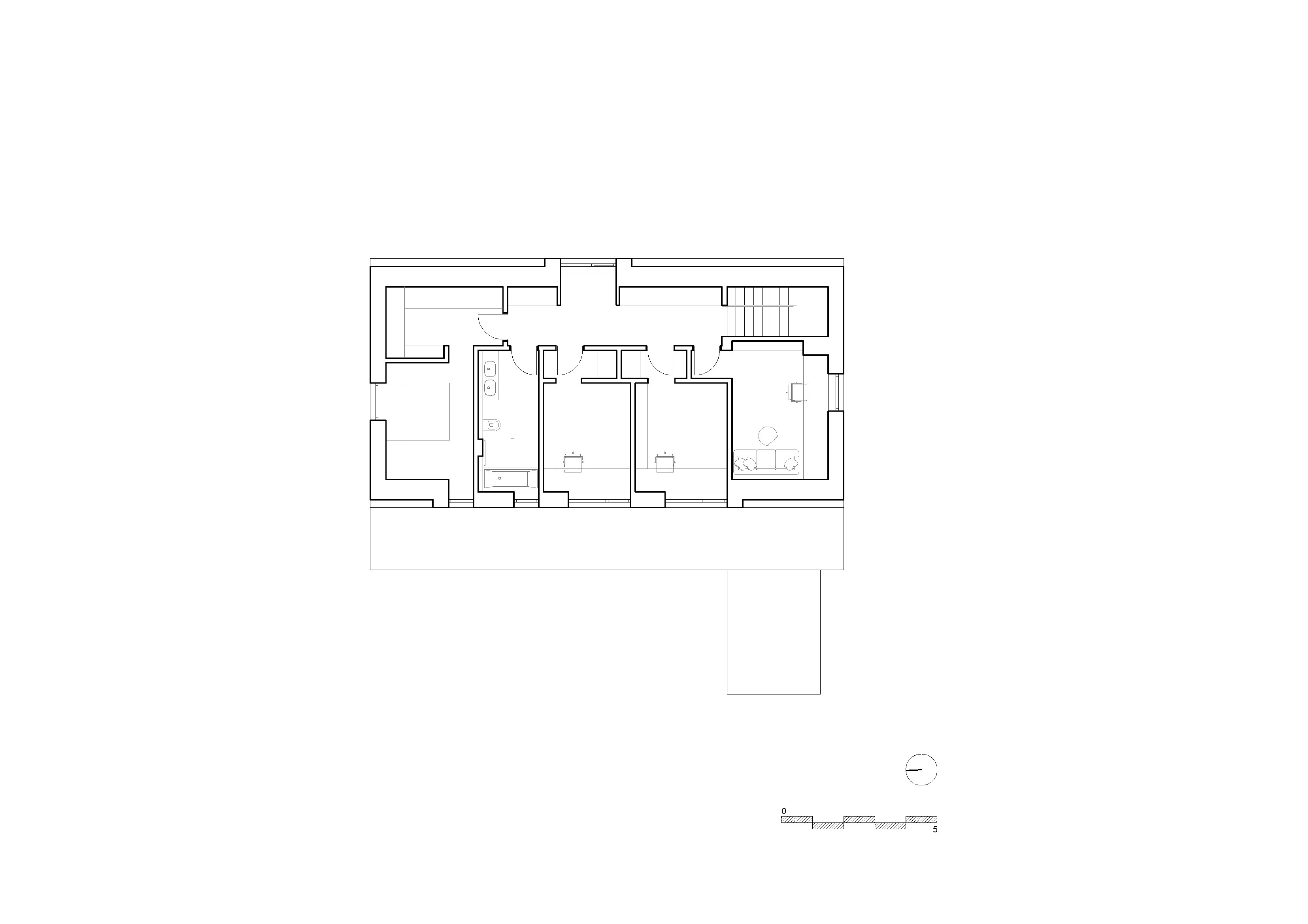
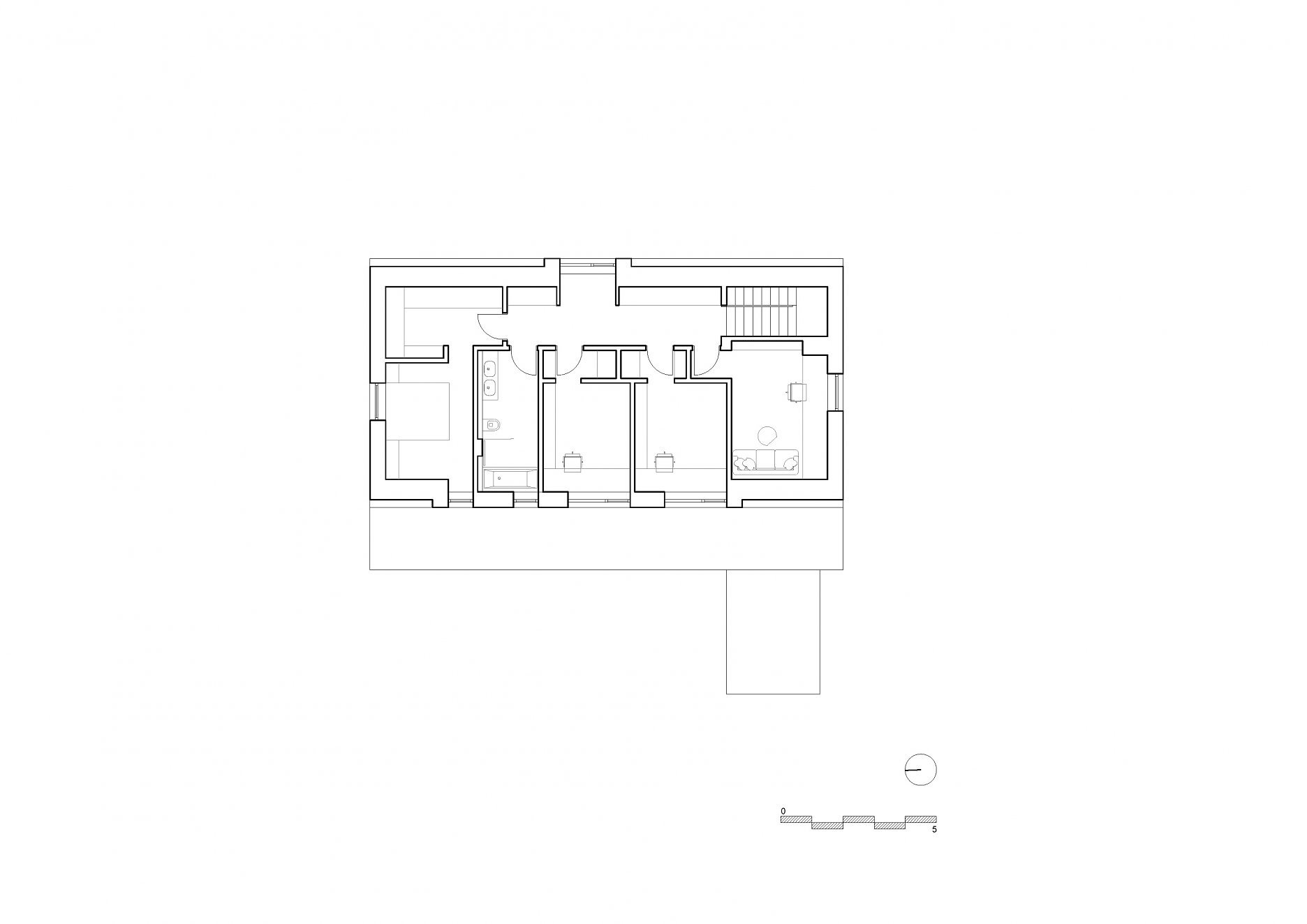
Pôdorys 2. NP
Pôdorys 2. NPAutori: mar.s architects
Južný pohľad
Južný pohľadAutori: mar.s architects
Východný pohľad
Východný pohľadAutori: mar.s architects
Severný pohľad
Severný pohľadAutori: mar.s architects
Západný pohľad
Západný pohľadAutori: mar.s architects
Foto: BoysPlayNice
Foto: BoysPlayNice
Foto: BoysPlayNice
Foto: BoysPlayNice
Foto: BoysPlayNice
Foto: BoysPlayNice
Foto: BoysPlayNice
Foto: BoysPlayNice
Foto: BoysPlayNice
Foto: BoysPlayNice
Foto: BoysPlayNice
Foto: BoysPlayNice
Foto: BoysPlayNice
Foto: BoysPlayNice
Foto: BoysPlayNice
Foto: BoysPlayNice

Materiály:

  • smrekovcové drevo - fasáda, terasa
  • dubové drevo - interiérové ​​povrchy a nábytok podľa autorského návrhu
  • plech - strecha
  • oceľ - lávka, vstup

Autori: mar.s architects
Podklady: Linka
Fotografie: BoysPlayNice

Poloha diela

Ing. arch. Martin Šenberger
Ing. arch. Václav Kastner
Vložené
13. december 2023
0
1518
Hlavný obsahHlavný obsah
Čakajte prosím