Advertorial

Okná Internorm za minuloročné ceny + hliníkový kryt zdarma!

Využite špeciálnu akciu Internorm: okná za minuloročné ceny a hliníkový kryt úplne zadarmo. Ponuka je časovo obmedzená!

Pozvánka na 2. ročník stavebného veľtrhu BigMarket na Slovensku

Na podujatí sa predstaví až 37 vystavovateľov - popredných dodávateľov stavebných materiálov a inovácií s prezentáciou...

Moderné plynové technológie: Efektivita a inovácie pre 21. storočie

Sumarizácia najdôležitejších inovácií, ktoré redefinujúcich využitie tohto energetického zdroja.

Utesňovanie spodných stavieb pomocou hydro-aktívnej fólie AMPHIBIA.

AMPHIBIA 3000 GRIP 1.3 od spoločnosti ATRO predstavuje modernú hydroizolačnú technológiu, ktorá spája vysokú odolnosť,...

Dekarbonizácia individuálneho vykurovania domácností – Green Deal evolučne a nie revolučne

Ambiciózne plány EK narazili na ekonomické možnosti domácností v jednotlivých členských štátoch –...

Minimalistické dvere IDEA – technická precíznosť a čistota prevedenia

IDEA DOOR od spoločnosti JAP prináša do interiéru čistý minimalistický vzhľad vďaka bezrámovému riešeniu a precíznej...

Dom s výhľadom na údolie, Dlouhý Most (ČR)

Kontinuita riešenia od vonkajšieho obkladu až po kovania a kľučky.

Schell Vitus – osvedčené riešenie pre sprchy a umývadlá vo verejnom sektore s viac ako desaťročnou tradíciou

Nástenné nadomietkové armatúry Vitus sú mimoriadne vhodné pre rýchlu a efektívnu...

Kompozitné okná predstavujú súčasnosť a budúcnosť

Okenné profily z kompozitného materiálu RAU-FIPRO X od spoločnosti Rehau sú v porovnaní s tradičnými plastovými profilmi mnohonásobne...

Myotis - stoly 2025

Najnovší sortiment stolov pre zariadenie interiérov...

Priemyselné sklenené priečky Dorsis Digero: svetelné rozhranie pre moderné interiéry

Spojenie moderného dizajnu, funkčnosti a svetla do harmonického architektonického prvku.

Význam prirodzeného svetla pre moderné a flexibilné pracovné prostredie

Kancelárska budova Baumit v slovinskom Trzine prešla premenou na moderné a udržateľné pracovisko. Architekti kládli dôraz...

Konferencia Xella Dialóg predstaví novinky a trendy v stavebníctve

Mottom šiesteho ročníku on-line konferencie odborníkov Xella Dialóg je Efektívny návrh budov 2025+: zmeny a riešenia

Murovací robot WLTR stavia svoj prvý dom na Slovensku

Robot WLTR predstavuje moderný prístup k murovaným konštrukciám. Vďaka automatizácii dokáže rýchlo, presne a bezpečne realizovať...

Nová éra bezpečnosti s I-tec Secure od Internorm

Okrem bezpečnosti majú okná aj elegantný vzhľad, pretože nie sú viditeľné žiadne uzamykacie časti kovania.

Kúpele Grössling - víťaz študentskej ceny CHEDDAR´20

Semestrálna práca bola na zimnej Noci architektúry vyhlásená ako najlepšia v kategórii Architektúra.
Diela
Red 402.02.2020
29360+84
Kúpele Grössling - víťaz študentskej ceny CHEDDAR´20
Autori: Bc. Tatiana TholtováSpolupráca: Ing.arch. Maroš Fečík, Ing. arch. Martin Hudec, PhD., Ing. arch. Katarína BergerováNávrh: 2019 - 2020Adresa: Vajanského nábrežie 63/9, Bratislava, SlovenskoPublikované: 2. február 2020

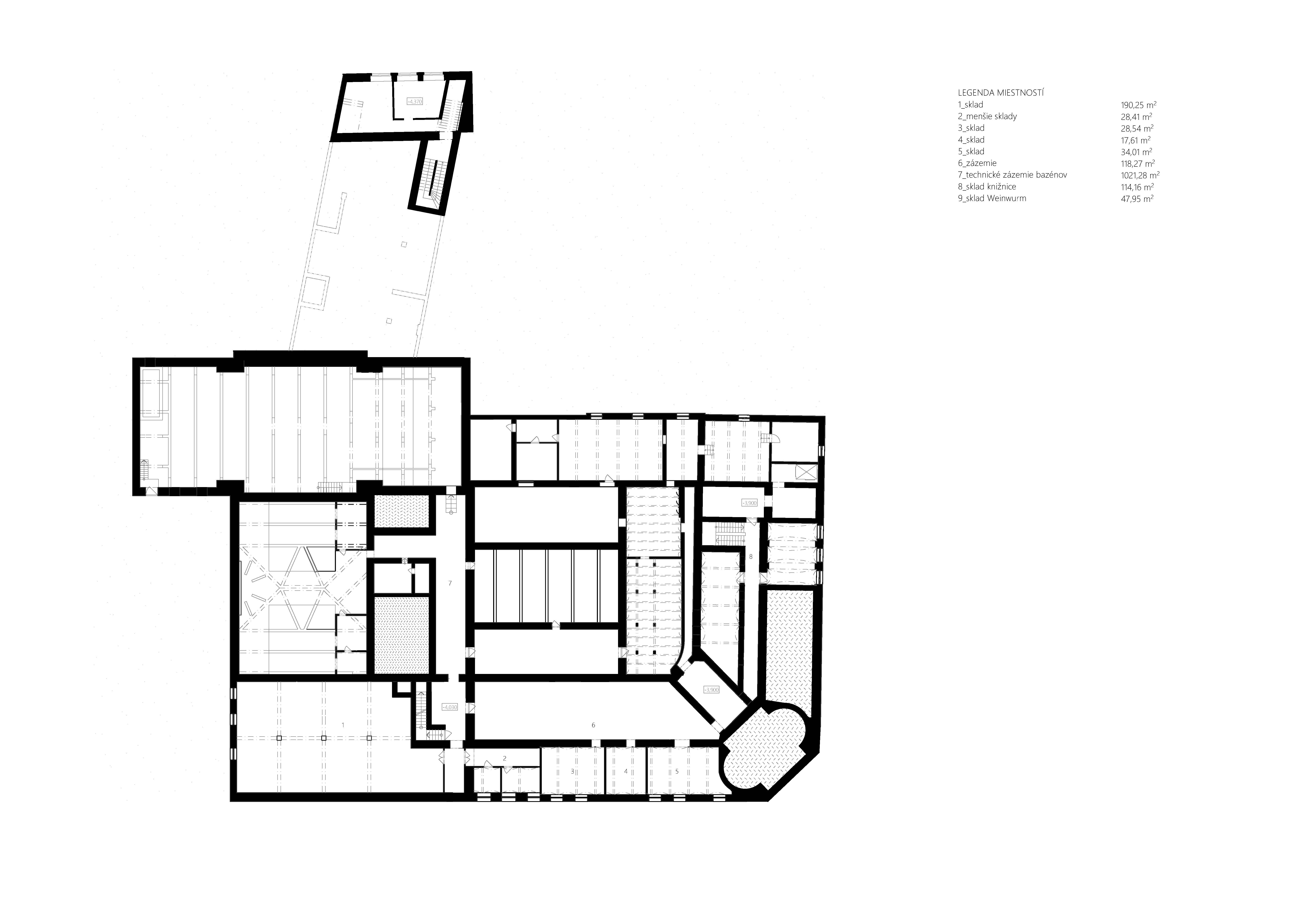
Primárnou úlohou, ktorú rieši projekt, je renesancia hodnotného kúpeľného objektu s typológiou 21. storočia. Sekundárnou úlohou je hľadanie doplnkových programov, ktoré upevnia objekt na kultúrno - spoločenskej mape. 

Pôvodný program mestských kúpeľov už nie je možné obnoviť. Je však možné sa ich konceptom inšpirovať a pretaviť ho do moderného fungujúceho riešenia pre súčasnú spoločnosť? 

"Práca v komplikovanom kontexte. Blok je kolážou, ansáblom historických domov,. Do 'vyčistenej' kompozície vložila autorka nový priestorový útvar - pátio, ktorý je jasným obohatením súboru. Z domu ponechala historickú kostru, vložila do nej svoj nový tvorivý obsah. Skvelé," popísal víťazný projekt architekt Michal Kuzemenský.

S rozvojom životnej úrovne a nárokov na bývanie sa každodenná hygiena stala neoddeliteľnou súčasťou nášho života. Hygienická stránka kúpeľov už v dnešnej dobe nehrá veľkú rolu. To čo majú však historické koncepty mestských kúpeľov spoločné je silná idea komunity, čo sa pretavuje aj v dnešných fungujúcich fínskych saunách, či maďarských kúpeľoch. Tradícia takýchto kúpeľov existovala aj na Slovensku, dnes však pojem kúpele označuje luxusné rezorty určené len pre vyvolenú časť spoločnosti, ktorá je ochotná si za tieto služby priplatiť. Pôvodný koncept mestských kúpeľov je v dnešnej dobe obnoviť už nereálne. Je však možné sa ich konceptom inšpirovať a pretaviť ho do moderného fungujúceho riešenia pre súčasnú spoločnosť?

  • Staré mesto je bohaté na budovy s rôznorodými funkciami, ktoré fungujú solitérne bez vzájomnej spolupráce
  • Cieľom vytvoriť komplex pre komunitu, doplniť chýbajúce funkcie a podporiť existujúce
  • Priestory prístupné pre všetky vekové a sociálne skupiny
  • Komplex medzigeneračného multifunkčného komunitného centra s pestrými funkciami vhodné pre obyvateľov zóny, študentox, deti seniorov či pracovníkov v oblasti

Kúpele = komunitné centrum 

Historické kúpele v minulosti boli miestom kde sa stretávali rôzne vrstvy spoločnosti a stierali sa rozdiely medzi nimi. Kúpele neboli len na očistu tela ale aj očistu ducha s rôznymi pridanými funkciami. Návrh je inšpirovaný touto ideou, je koncipovaný ako komunitné centrum s funkciami rôzneho charakteru. Kúpele na očistu tela a rekreáciu, knižnica pre rozvoj ducha a vzdelávanie, co-workingové priestory pre prácu a medzigeneračné komunitné centrum pre seniorov a mládež na rôzne workshopy, exhibície, výstavy a pohybové aktivity.

Úpravy

  • Z parku na Medenej ulici vylučujeme dopravu a vytvárame kľudný prírodný priestor,ktorý je pokračovaním kúpeľnej funkcie z celého podlažia budovy
  • Navrhovaný kiosk podporuje pobytový charakter parku a dáva príležitosť na fungovanieoblasti nielen ako tranzitnej, smerujúc do iného parku
  • Na Kúpeľnej ulici sa obnovuje pobytový charakter kolonády, ktorá navádza smerom kDunaju, s prdanou zeleňou a sedením, parkovanie je jednostranné a nadväzuje savizuálny kontakt s bývalou kotolňou/ vstupom do knižnice
  • Prieluka pri kotolni je otvorená, necháva vyniknúť industriálnemu charakteru kotolne spobytovými schodmi
  • Prieluka na Vajanského nábreží sa dopľňa návrhom komunitného centra, profil ulice jetým jednotný, avšak s prechodom do verejného prestoru za budovou, ktorá svojimirozmermi ponúka možnosti na konanie vystúpení, trhov a podobných činností
  • Zeleň je v území zachovaná v plnej miere, pričom v prielukách sa dopĺňa listnatýmistromami stredného vzrastu

Portfólio:

Podklady: Tatiana Tholtová

Poloha diela

Bc. Tatiana Tholtová
Vložené
30. január 2020
0
2936
Hlavný obsahHlavný obsah
Čakajte prosím