Advertorial

Pozvánka na 2. ročník stavebného veľtrhu BigMarket na Slovensku

Na podujatí sa predstaví až 37 vystavovateľov - popredných dodávateľov stavebných materiálov a inovácií s prezentáciou...

Hotel Hirschen Spa House, Rakúsko

Novotvar v prostredí alpskej obce.

Vytvorte si kúpeľňu snov: dizajnové riešenie od značky hansgrohe

Hansgrohe - prémiová značka kúpeľňových riešení, ponúka nadčasový dizajn, technickú precíznosť a udržateľné inovácie...

Okná Internorm za minuloročné ceny + hliníkový kryt zdarma!

Využite špeciálnu akciu Internorm: okná za minuloročné ceny a hliníkový kryt úplne zadarmo. Ponuka je časovo obmedzená!

Moderné plynové technológie: Efektivita a inovácie pre 21. storočie

Sumarizácia najdôležitejších inovácií, ktoré redefinujúcich využitie tohto energetického zdroja.

Utesňovanie spodných stavieb pomocou hydro-aktívnej fólie AMPHIBIA.

AMPHIBIA 3000 GRIP 1.3 od spoločnosti ATRO predstavuje modernú hydroizolačnú technológiu, ktorá spája vysokú odolnosť,...

Dekarbonizácia individuálneho vykurovania domácností – Green Deal evolučne a nie revolučne

Ambiciózne plány EK narazili na ekonomické možnosti domácností v jednotlivých členských štátoch –...

Minimalistické dvere IDEA – technická precíznosť a čistota prevedenia

IDEA DOOR od spoločnosti JAP prináša do interiéru čistý minimalistický vzhľad vďaka bezrámovému riešeniu a precíznej...

Dom s výhľadom na údolie, Dlouhý Most (ČR)

Kontinuita riešenia od vonkajšieho obkladu až po kovania a kľučky.

Schell Vitus – osvedčené riešenie pre sprchy a umývadlá vo verejnom sektore s viac ako desaťročnou tradíciou

Nástenné nadomietkové armatúry Vitus sú mimoriadne vhodné pre rýchlu a efektívnu...

Kompozitné okná predstavujú súčasnosť a budúcnosť

Okenné profily z kompozitného materiálu RAU-FIPRO X od spoločnosti Rehau sú v porovnaní s tradičnými plastovými profilmi mnohonásobne...

Myotis - stoly 2025

Najnovší sortiment stolov pre zariadenie interiérov...

Priemyselné sklenené priečky Dorsis Digero: svetelné rozhranie pre moderné interiéry

Spojenie moderného dizajnu, funkčnosti a svetla do harmonického architektonického prvku.

Význam prirodzeného svetla pre moderné a flexibilné pracovné prostredie

Kancelárska budova Baumit v slovinskom Trzine prešla premenou na moderné a udržateľné pracovisko. Architekti kládli dôraz...

Konferencia Xella Dialóg predstaví novinky a trendy v stavebníctve

Mottom šiesteho ročníku on-line konferencie odborníkov Xella Dialóg je Efektívny návrh budov 2025+: zmeny a riešenia

Spaľovňa odpadu - Architektúra na konci materiálového cyklu - diplomová práca

Záverečná práca nominovaná na Cenu profesora Jozefa Lacka.
Diela
Red 415.08.2019
20580+43
Spaľovňa odpadu - Architektúra na konci materiálového cyklu - diplomová práca
Autori: Ing. arch. Maroš MitroSpolupráca: Akad. arch. Ing. Karol Gregor (školiteľ), Ing. arch. Andrea Bočková, ArtD. (konzultanat)Návrh: 2018 - 2019Adresa: Žilina, SlovenskoPublikované: 15. august 2019

Práca sa zaoberá problematikou architektúry zariadení na spaľovanie a energetické zhodnocovanie komunálneho odpadu. Tie napriek svojej dôležitosti a vysokému potenciálu často zaostávajú v architektonickej kultúre, ocitajú sa na okraji záujmu architektov a verejnosti. Nelichotivá situácia na Slovensku vyplývajúca z miliónov ton odpadov uskladnených v našich pôdach viedla autora k hľadaniu spôsobov zlepšenia tohto stavu.

Tendencia približovania spaľovní k centrám miest zvyšuje nároky na ich synergiu s organizmom sídiel a prináša otázky ich kultivácie a symbiózy. 

Teoretická časť práce vytvára obraz o súčasnej kultúre v priemyselnej architektúre a vrcholí technologickým a architektonickým manuálom slúžiacim ako východiskový podklad pre samotný návrh. 

Výsledkom praktickej časti je návrh zariadenia na energetické zhodnocovanie odpadu v Žiline, ktorý pracuje s prepojením priemyslu a rekreácie. Koncept miešania funkcií je založený na využití získanej energie pre doplnkové funkcie, integrovaní priemyslu do krajiny a štruktúry mesta, a taktiež na šírení osvety o odpadovom hospodárstve. Diplomová práca vznikla na Katedre architektúry Technickej univerzity v Košiciach. 

Projekt predstavujeme so skráteným autorským textom:

Prečo Žilina?

Toxická krajina = toxické mesto

Najväčšie množstvo uskladneného odpadu pripadá práve na Žilinský kraj. Navyše, priamo v meste, v časti Považský Chlmec, na brehu rieky Váh straší skládka, ktorá sa nedávno zaslúžila o miliónovú pokutu od Súdneho dvora Európske Únie. 

Štúdia Ministerstva hospodárstva a životného prostredia na posúdenie vhodnosti zariadenia na energetické zhodnotenie odpadu vytvorila priaznivý predpoklad na realizáciu takéhoto zariadenia. Navyše, ambície spoločnosti KOSIT o rozšírenie svojho pôsobenia do Žiliny nás presvedčili o vhodnosti výberu lokality. Zariadenie by taktiež predstavovalo ekologickejšiu náhradu za spaľovanie uhlia v Žilinskej teplárni, ktoré sa všeobecne považuje za jedno z najškodlivejších spôsobov získavania energie.

Pre porozumenie procesov prebiehajúcich v spaľovacích zariadeniach je prvoradé poznať jednotlivé technologické komponenty. Proces prebiehajúci vo vnútri zariadenia možno zjednodušene opísať ako premenu prijímaného pevného materiálu na využiteľnú energiu. Technologické požiadavky a priestorové nároky stanovujú istú formu, no taktiež umožňujú vytvárať nové a inovatívne priestorové zoskupenia. Inými slovami, je možné premyslieť vzťah jednotlivých častí a celku, s cieľom reorganizovať stavbu zmenou jej pôdorysnej stopy, pridávaním nových programov, alebo otvorením vybraných procesov verejnosti. 

Koncept

Cieľom práce nebolo vytvoriť izolovaný priemyselný objekt. Za prvoradé považujeme vhodnú hybridizáciu a symbiózu objektu s doplnkovým programom, ktorý využíva energetické výstupy spaľovne. S programom, ktorý ponúkne návštevníkom technologický voyerizmus a istý druh osvety. Otvorenosť stavby umožňuje obdiv technológie a sledovanie procesu spaľovania odpadu.

Zariadenie na energetické zhodnocovanie odpadu predstavuje obrovskú masu a vizuálnu hrozbu. Stavba situovaná v citlivej lokalite s možnosťou rekreácie si vyžiadala redukciu viditeľného objemu čiastočným zapustením pod úroveň terénu. Touto cestou sa navyše dostáva zaujímavá technológia na úroveň očí pozorovateľa.

Pre umožnenie výmeny komponentov jednotlivých zariadení, je nevyhnutné zabezpečiť prístup pre ťažkú techniku. navrhovaná mobilná fasáda umožňuje nielen rýchlu údržbu a výmenu zariadení, ale aj celkovú zmenu funkcie budovy. Objekt sa tak v prípade ukončenia prevádzky vyhne demolícii a poskytne priestory novým programom.

Súčasťou konceptu je aj idea prelínania a prúdenia priestoru. Hranica ako pevná bariéra je minimalizovaná a návrhu dominuje voľne plynúci priestor. 

Formovanie hmoty a práca s terénom

Výsledná podoba objektu odzrkadľuje lokálne danosti a snahu o citlivý zásah do prostredia. Keďže klasické riešenie by predstavovalo narušenie obrazu krajiny, určili sme zapustenie objektu pod úroveň terénu za prvoradé. Strecha dosahuje výšku koruny hrádze, čím sa vytvorila možnosť ich prepojenia.

Následne bol kompaktný objem roztiahnutý okolo centrálneho átria. Výsledná forma v tvare písmena U vytvára okrem technologicko-priemyselnej oázy aj ohraničenie doplnkového programu. Ten je pojednaný ako línia, ktorá výrazne vstupuje do prírodného prostredia. Línia je symbolicky ukončená bunkrom s odpadmi. Mostové prepojením s hrádzou tvorí uzavreté átrium, ktoré vytvára sterilné prostredie obklopené technologickým svetom. Prepojenie nekončí v hrádzi, nabúráva ju, pokračuje vo forme terasy nad vodnou hladinou. 

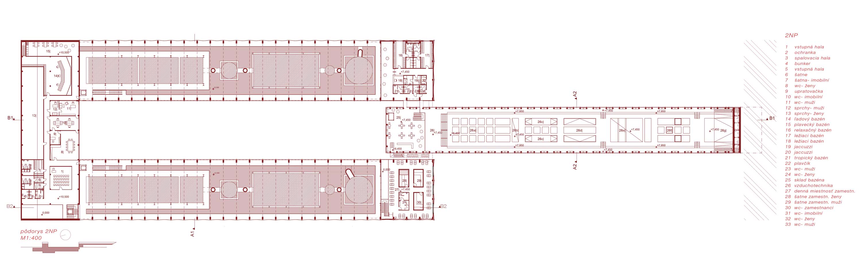
Prevádzka spaľovne

Spaľovacia linka tradične pozostáva z dvoch sústav rozdelených do krídel vytvárajúce hmotu písmena U. Prevádzka reaguje na koncept miešania funkcií a zabezpečuje potrebnú variabilitu. Prijímacia hala je situovaná pod úrovňou terénu, čím sa zabráni šíreniu zápachu do okolia. V prijímacej hale je umiestnený aj sklad a zberné silá, V určenom priestore prebieha nakladanie škváry. Celý prijímací úsek je prepojený so zvyškom objektu, čo umožňuje prejazd techniky v prípade poruchy alebo údržby. Týmto prepojením vedú potrubia spájajúce jednotlivé komponenty so zbernými silami.

Turbína, výmenníky tepla ako aj všetky doplnkové priestory v centre dispozície, pod úrovňou terénu. Týmto miestom vedú aj prepojenia medzi jednotlivými linkami .

Priestory, v ktorých sa zdržujú zamestnanci (administratíva, kontrolná miestnosť, zasadacia miestnosť prednášková hala) okupujú najvyššie podlažie s výhľadom.

Okruh určený pre návštevníkov začína vo vstupnej hale, na ktorú nadväzuje ochodza obkolesujúca spaľovaciu linku. Po návšteve turbínovej haly nasleduje obhliadka kontrolnej miestnosti, okruh končí vo vstupnej hale.

Hybridizácia

Koncept miešania funkcií je založený na využívaní energie, integrovaní priemyslu do krajiny, pozitívnejšom prijatí spaľovne do mesta a taktiež na šírení osvety o odpadovom hospodárstve. 

Na tomto mieste materiál končí svoju cestu a pri tom odovzdáva energiu ďalším programom. Práve energické, športové a rekreačné programy, sú navrhované ako spomínaní odberatelia. S cieľom lákať a poskytnúť netradičný zážitok sú navrhované raritné programy - termálne bazény v átriu obklopené spaľovacou technológiou a trampolínový park v moste prepájajúcom 80 m vzdialenoú korunu hrádze. 

Doprovodná funkcia prebieha v jednej línií ako prúdenie energetického toku zo spaľovne smerom von, pričom bazény a trampolíny naberajú striktne ortogonálne tvary. V rámci línie sú riešené výlučne spomínané funkcie a vstupné priestory. Všetky doprovodné prevádzkové priestory sú obsiahnuté v hmote, ktorá vznikla pokračovaním hmoty spaľovne. Týmto riešením sa dosiahlo prúdenie priestoru od átria smerom ku hrádzi. 

Za sprievodnú funkciu môžeme považovať aj verejnú strechu celého objektu. Premostenie ponúka na svojej piatej fasáde trojstupňový program prebiehajúci v rôznych rýchlostiach. Ten najrýchlejší predstavuje bežecká dráha, pomalší spevnená komunikácia na obvode s výhľadom do okolia a najpomalšiu formu predstavuje vegetácia okolo spevnených plôch.

Funkčná verejná zeleň pokračuje aj na strechu spaľovne, ktorá je prepojená so strechou premostením prechádzajúcim ponad átrium. Štvorcové vegetačné plochy umožňujú v budúcnosti
naberanie ďalších programov.

Komín je vyslovene funkčným prvkom a zároveň dominantou objektu. Sme toho názoru, že jeho estetické stvárnenie nie je nutné založiť na výtvarnom výzore a dizajne tvaru. V tomto návrhu je vzhľad komína postavený na proporcii a symetrii. Zdvojený komín predstavuje subtílne a elegantné riešenie, pričom bočné výpusty prieduchov vytvárajú vidlicové značenie odkazujúce na objekt spaľovne. 

Konštrukcia

Prvý konštrukčný celok predstavuje prijímacia hala, bunker, odškvarovňa, vstupná hala a priestory pre zamestnancov. Podzemná časť a nádrže sú vybudované ako železobetónový stenový systém. Stropná doska v prijímacej hale leží na oceľových priehradových nosníkoch, ktoré sú uložené na železobetónový prievlak stužujúci nosné stĺpy. Mostový žeriav operujúci v bunkri je uložený na skeletovom nosnom systéme, na ktorý nadväzuje na nosný skeletový systém nadzemných podlaží. Preklenutie rozponu v priestore bunkra zabezpečujú oceľové priehradové nosníky, ktoré sú stužené železobetónovou doskou fungujúcou ako konštrukcia podlahy vyššieho podlažia. Toto riešenie eliminovalo mohutnú konštrukciu v priestoroch administratívy, a umožnilo sa použitie bezprievlakovej strešnej dosky. 

Spaľovacia linka a pomocné priestory predstavujú osobitný dilatačný celok. Podzemná časť je tvorená železobetónovou vaňou zosilnenou železobetónovými piliermi. Tie sú následne v úrovni terénu stužené vencom, ktorý slúži aj ako ochodza. Konštrukcia nadzemnej časti pozostáva z drevených rámov v module 4 m. Jej pozdĺžne stuženie zabezpečujú oceľové tiahla. Priečne stuženie je dosiahnuté taktiež tiahlami a železobetónovou stenou, zatiaľ čo stropná doska stužuje konštrukciu v strešnej rovine. 

Konštrukciu priestorov v strede objektu tvorí najmä ŽB skelet. Doplnkové časti vodného a trampolínového parku predstavujú dopovedanie hmoty spaľovne a tak preberajú aj jej konštrukciu. Predstavujú osobitý dilatačný celok, avšak rámy sú v polovici výšky stužené doplnkovým dreveným trámom a ŽB doskou pre druhé nadzemné podlažie. 

Konštrukciu premostenia tvorí oceľová priehradovina v module 4vm, votknutá do oceľových stĺpov na prízemí. Druhý koniec premostenia, pri hrádzi, je kĺbovo uložený na základe. Vodorovné stuženie je zabezpečené železobetónovou doskou v podlahe a v strope.

Členenie fasády vytvára definuje nosná konštrukcia. Fasádny systém oboch častí tvoria štvormetrové moduly. Strieda sa zvislé členenie s diagonálnym. Fasáda spaľovne je mobilná. Pozostáva z viacvrstvovej membrány natiahnutej na pomocnú konštrukciu.

Najväčšou výhodou tohto riešenia je možnosť mobilného osadenia konštrukcie, čo umožňuje prístup ťažkej techniky cez exteriér. Navyše, membrána prepúšťa svetlo. Zaujímavá scéna sa naskytne za šera a v tme, kedy zariadenie spaľovne a vytvára zaujímavú technologickú tieňohru.

Fasáda premostenia pozostáva z ľahkého obvodového plášťa so zasklievacími profilmi, ktoré kopírujú konštrukčný systém. 

Spojovacím elementom spaľovne a premostenia je modul zasklenej steny 3x1 m (výška x šírka ). V tomto prípade je navrhované štrukturálne zasklenie, bez priznaných zasklievacích líšt, čo zvýrazňuje dominantné členenie určené nosným systémom. 

Budúcnosť objektu spaľovne

Keďže pri spaľovniach hovoríme o miliónových investíciách, je potrebné zabezpečiť čo najdlhšiu prevádzku objektu. Uzamknutie technológií vo vnútri objektu by predstavovalo značné komplikácie, preto je potrebné myslieť na možné budúce opravy či zmeny.

Údržba technológií, prípadne kompletná výmena komponentu je zjednodušená vďaka mobilnej fasáde a prístupu z prijímacej haly. V objekte je zvažovaná aj inštalácia mostového žeriavu pre manipuláciu s náhradnými dielmi.

Mesto je rozpínajúca sa štruktúra, ktorá časom môže pohltiť zvolenú lokalitu. Spaľovňa sa v takomto prípade ocitne v zástavbe. V prípade konverzie objekt poskytne rozľahlé priestory s bazilikálnym osvetlením. Pôvodnú funkciu môže pokojne nahradiť umenie, kultúra... 

Dokumentácia

Vizualizácie

Teoretickú časť diplomovej práce si môžete prelistovať v prílohe nižšie:

Kompletná praktická časť:

Podklady: Maroš Mitro

Poloha diela

Ing. arch. Maroš Mitro
Vložené
22. júl 2019
0
2058
Hlavný obsahHlavný obsah
Čakajte prosím