IDEA DOOR od spoločnosti JAP prináša do interiéru čistý minimalistický vzhľad vďaka bezrámovému riešeniu a precíznej...
Nástenné nadomietkové armatúry Vitus sú mimoriadne vhodné pre rýchlu a efektívnu...
Okenné profily z kompozitného materiálu RAU-FIPRO X od spoločnosti Rehau sú v porovnaní s tradičnými plastovými profilmi mnohonásobne...
Najnovší sortiment stolov pre zariadenie interiérov...
Spojenie moderného dizajnu, funkčnosti a svetla do harmonického architektonického prvku.
Kancelárska budova Baumit v slovinskom Trzine prešla premenou na moderné a udržateľné pracovisko. Architekti kládli dôraz...
Mottom šiesteho ročníku on-line konferencie odborníkov Xella Dialóg je Efektívny návrh budov 2025+: zmeny a riešenia
Robot WLTR predstavuje moderný prístup k murovaným konštrukciám. Vďaka automatizácii dokáže rýchlo, presne a bezpečne realizovať...
Okrem bezpečnosti majú okná aj elegantný vzhľad, pretože nie sú viditeľné žiadne uzamykacie časti kovania.
Dvere MASTER v skrytej zárubni AKTIVE je možné vyrobiť až do výšky 3 700 mm
Internorm stavia na energetickú efektívnosť a inteligentné tieniace riešenia.
Slovensko vo výbere zastupuje šesť realizácií.
Spoločnosť Internorm odteraz stavia na novej variante tepelnoizolačného skla od AGC, ktorá v produkcii ročne ušetrí 10...
Jubilejný 20. ročník prestížnej medzinárodnej súťaže pre študentov architektúry priniesol...
Otočné a posuvné dvere MASTER od podlahy až po strop, ponúkajú mimoriadnu variabilitu výšky, materiálu a zladenia so skrytými...

Zborník publikovaný v časopise Projekt 5/2018 bol zostavený z príspevkov, ktoré odzneli 16. októbra 2018 na kolokviu "Dušan Samuel Jurkovič známy a neznámy" na pôde Spoloku architektov Slovenska. Odbornými garantmi kolokvia boli doc. PhDr, Dana Bořutová, CSc. a Ing. arch. Peter Žalman, CSc.
Sprievodným podujatím kolokvia bola rovnomenná výstava v Galérii SAS na Panskej 15 v Bratislave, ktorá prebiehala od 4. do 19. októbra 2018. Kurátormi výstavy boli Ing. arch. Peter Žalman CSc. a Ing. arch. Vladimír Hain PhD., spolupracovali Ing. arch. Tomáš Hanáček, PhD. a Ing. arch. Martin Dubiny.
Publikácia a podujatia boli súčasťou jubilejného roka, v ktorom sme si pripomenuli 150. výročie narodenia Dušana Jurkoviča, významnej osobnosti československej architektúry prvej polovice 20. storočia, a zároveň aj storočnicu založenia Československa. Jurkovič bol najvýznamnejším architektom v histórii slovenskej architektúry, stal sa v roku 1947 ako prvý architekt národným umelcom. Dielo a život Dušana Jurkoviča sú síce dobre zmapované, ale stále sú obdobia života a práce architekta, ktoré si zaslúžia podrobnejšie pripomenutie. Je to napríklad posledné obdobie Jurkovičovej tvorby späté so Západoslovenskými elektrárňami, podobne aj jeho ďalšie aktivity na Slovensku.
Bratislavské kolokvium prinieslo nové poznatky a zaujímavé informácie o menej známych aktivitách a projektoch Dušana Jurkoviča. Pri tomto veľkom výročí vyšiel aj spomínaný zborník, zostavený z príspevkov, ktoré odzneli na kolokviu. Boli to príspevky doc. PhDr. Dany Bořutovej, CSc. na tému Jurkovičov koncept (národnej) architektúry, Mgr. Martiny Orosovej na tému „Potřebuji mít pevný životní program...“, Ing. Ľubomíra Fekiača o Tvorbe Dušana Jurkoviča vo Zvolene, doc. PhDr. Dany Bořutovej, CSc. o Modranskom evanjelickom sirotinci a jeho architektovi, Mgr. Petry Kalovej na tému Architekt Dušan Samuel Jurkovič a jeho realizácie pre Západoslovenské elektrárne, Ing. arch. Pavla Paulínyho, PhD. o Jurkovičovej teplárni na Čulenovej ulici v Bratislave, Ing. arch. Martina Paška o pripravovanej rekonštrukcii tejto pamiatkovo chránenej stavby.
Na stránkach zborníka vyšiel aj rozsiahly príspevok od Ing. arch Petra Žalmana, CSc., ktorého časti budeme publikovať na pokračovanie. Ing. arch. Peter Žalman, CSc. doplnil prezentáciu industriálneho obdobia tvorby architekta Jurkoviča pre Západoslovenské elektrárne. Zdôraznil tiež miesto a úlohu tehelne v Trnave, priblížil areál elektrárne v Hlohovci. Pripomenul rozsiahlu rekonštrukciu areálu Teplárne na Čulenovej ulici v Bratislave a zložité obdobie spred 10 rokov, kedy bola väčšina budov asanovaná. V predchádzajúcom článku bola predstavená spínacia stanica v Malackách, dnes bude Peter Žalman pokračovať ďalšími Jurkovičovými realizáciami pre Západoslovenské elektrárne.
Časť 2.:
Dielo architekta Jurkoviča je známe našej i zahraničnej verejnosti, tvorí základ architektonického fondu Slovenska i Československa. Popri budovách a areáloch raného aj zrelého obdobia tvorby architekta Jurkoviča sú tu však aj menej známe, málo prezentované časti tvorby, ktoré súvisia najmä s tvorbou Jurkoviča pre ZSE. Súbor realizovaných budov sa nachádza v Bratislave aj v jej okolí. V záverečnej etape tvorby sa Jurkovič venoval najmä menšej industriálnej architektúre s vyvrcholením v budove Turbocentrály na Čulenovej ulici v Bratislave. Autor konceptu výstavy sa opiera najmä o autentické materiály, podklady, ktoré sa nachádzajú v Slovenskom národnom archíve, ako aj o poznatky z návštev jednotlivých stavieb. Všetky prezentované objekty stále stoja a slúžia novému účelu. Výnimkou je tehelňa v Trnave, ktorá ustúpila novej zástavbe mesta už na prelome 60. a 70. rokov minulého storočia. Tepláreň na Čulenovej čaká prestavba.
Architekt Jurkovič sa stal od roku 1928 členom správnej rady ZSE a v 30. rokoch 20. storočia postupne vyprojektoval a zrealizoval viacero budov pre elektrárenskú spoločnosť.
Súbor stavieb pre ZSE sa vyznačuje kompaktným názorom, jednotným architektonickým výrazom, použitím keramického/tehlového obkladu a dopracovaním detailov. Súbor industriálnych budov architekta Jurkoviča tak predstavuje výnimočný príklad kvalitnej architektúry, ktorá nadväzuje na funkcionalizmus a na ďalšie európske trendy pri tvorbe tohto druhu stavieb. Zároveň má tento súbor ako vždy pri architektovi Dušanovi Jurkovičovi osobitý charakter, jeho budovy sú rozpoznateľne a majú väzby na predchádzajúcu tvorbu. Napríklad motív veže s nízkou šikmou strechou sa objavuje už skôr ako v monumentálnej Teplárni, Turbocentrále v Bratislave na Čulenovej ulici. Práca s tehlou a tehlovým obkladom tvorí organickú súčasť tohto súboru prác – Jurkovič bol aj vlastníkom tehelne v Trnave a v duchu funkcionalizmu si vytvoril vlastné čitateľné riešenie fasád industriálnych objektov. Všetky objekty mali v duchu politiky ZSE aj sociálny rozmer, súčasťou riešenia bol aj byt resp. byty. Téma bývania je osobitou témou tvorby Dušana Jurkoviča.
Spínacia stanica Senica
Objekt z roku 1934 sa nachádza neďaleko centra mesta, dnes v obytnej štvrti smerom Kostolište, medzi objektmi Okresného úradu a železničnou traťou. Objekt je zachovalý v pôvodnej hmote a členení, nový majiteľ vymenil okná a spravil drobné dispozičné zmeny. Najvýraznejšia je prístavba zimnej záhrady nad prízemnou časťou, vstupom do budovy. Dnes je tu sídlo firmy, vybavenosť, predaj bicyklov, autoškola. Architektonický výraz čistej funkcionalistickej budovy je temer nezmenený, najlepšie vnímateľný od dvora. ZSE vlastnili pozemky v Malackách od roku 1927 a postavili tu jednu z budov, kde je spojená funkcia pre distribúciu elektrického prúdu, technické zázemie, administratíva a bývanie. Technologická časť sa nachádzala na poschodí, vybavenosť na prízemí. S rozvojom nových technológií a systému prenosu elektrického prúdu sa stala budova pre ZSE nevyužiteľná a bola koncom 20. storočia odpredaná.
Spínacia stanica a trafostanica Bratislava
Objekt z roku 1938 sa nachádza na niekdajšej periférii mesta Vajnorskej ulici, pri remíze MHD s križovaním s Galvaniho ulicou, popri ktorej dodnes dominuje trasa VN. Zachovala sa pôvodná skica, podrobný nákres v ceruzke aj tuši od architekta Jurkoviča, kde je viditeľný rozsah územia a veľkosť budov, ktoré slúžili na prevod VVn vedenia na VN vedenie, plus spínacia stanica. Súčasťou areálu bola a je aj Montážna veža, ku ktorej vedú koľajnice. Slúžila na výmenu ťažkých transformátorov v areáli. Stavebne sa jedná o súbor troch hmôt.
Osobitne bola riešená obytná časť a byty. Zázemie bolo v jednom bloku. Objekty aj montážna veža sa s úpravami zachovali dodnes, slúžia ako byty, technologické časti boli postupne odstránené. Objekty sú opäť riešené v estetike funkcionalizmu s typickou strešnou, „klasicistickou“ krajinou v podaní architekta Jurkoviča.
Montážna veža, Trnava
Objekt z roku 1938 - 39 sa nachádza v priemyselnej časti Trnavy - Coburgove závody pri železničnej trati od Bratislavy. Pôvodne bol areál Spínacej stanice v Trnave súčasťou nového VVN medzi Trnavou a Bratislavou, funkčná náplň areálu v Trnave bola identická ako v BA.
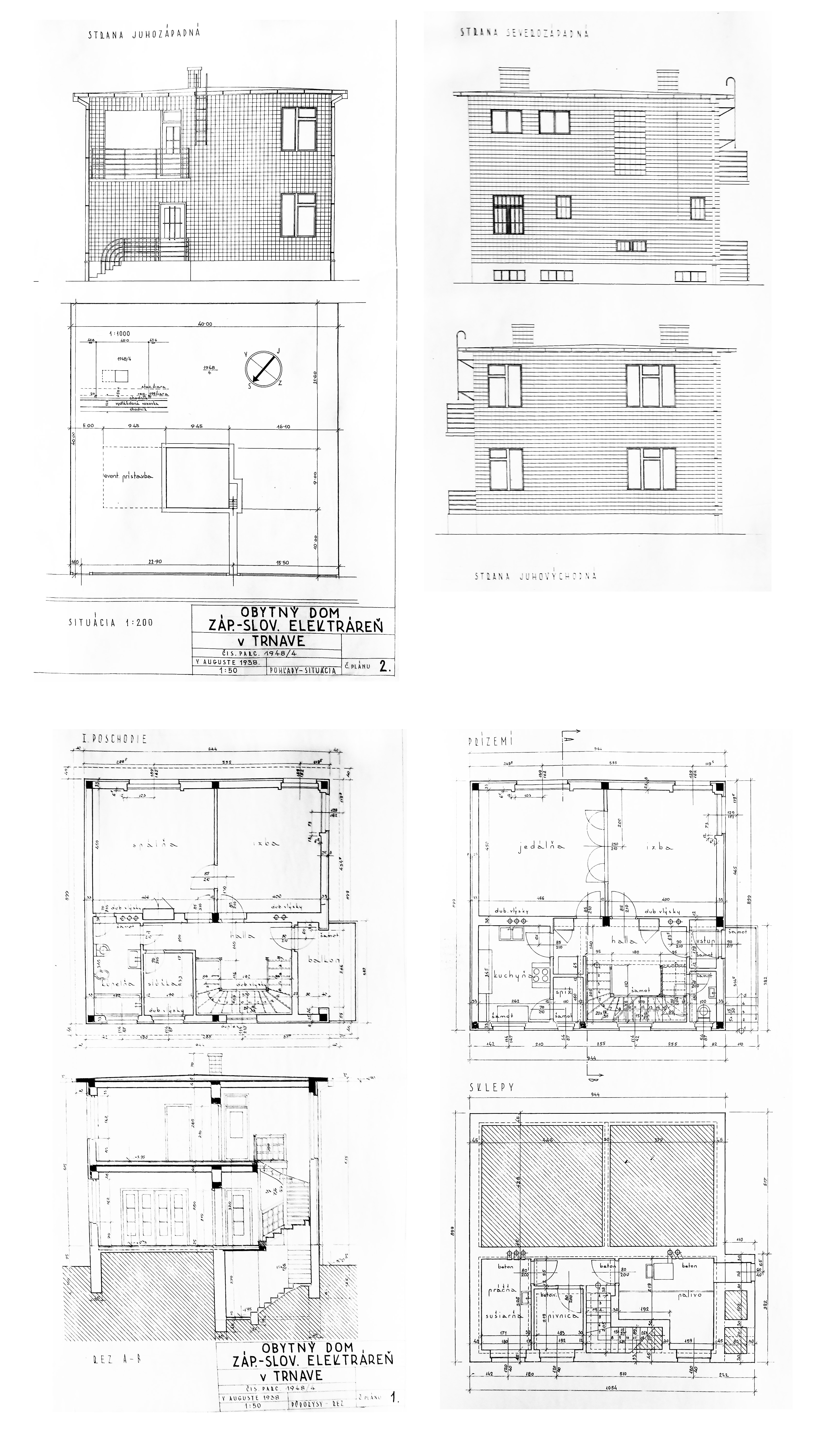
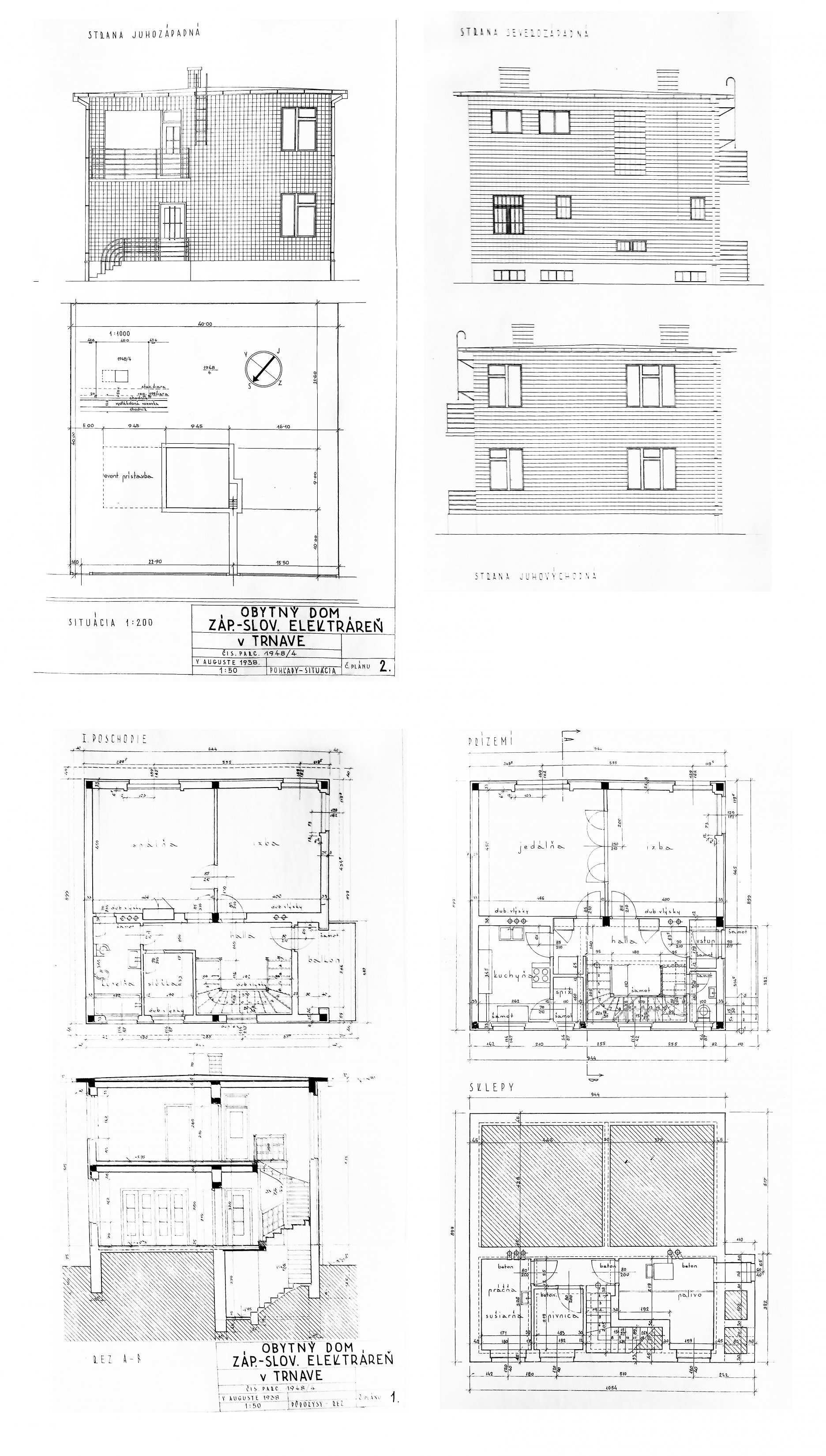
Byty pre zamestnancov, Trnava
Súčasťou sociálneho programu ZSE bola aj výstavba bytov pre zamestnancov. Prezentovaný dvojpodlažný, čiastočne podpivničený objekt stojí neďaleko Turbocentrály na Coburgovej ulici. Takmer štvorcový pôdorys 9,4 na 9,0 metra mal navrhnutú na prízemí dennú časť – halu, jedáleň, kuchyňu a izbu, na poschodí schodisko, sociálne zázemie, malú izbu pre slúžku a dve spálne plus balkón. Funkcionalistický výraz domu s keramickým obkladom bol výrazne zmenený po prevode na súkromného vlastníka.
V nasledujúcej časti budeme pokračovať predstavením areálu tehelne v Trnave a budov ZSE v Hlohovci.