Hansgrohe - prémiová značka kúpeľňových riešení, ponúka nadčasový dizajn, technickú precíznosť a udržateľné inovácie...
Využite špeciálnu akciu Internorm: okná za minuloročné ceny a hliníkový kryt úplne zadarmo. Ponuka je časovo obmedzená!
Na podujatí sa predstaví až 37 vystavovateľov - popredných dodávateľov stavebných materiálov a inovácií s prezentáciou...
Sumarizácia najdôležitejších inovácií, ktoré redefinujúcich využitie tohto energetického zdroja.
AMPHIBIA 3000 GRIP 1.3 od spoločnosti ATRO predstavuje modernú hydroizolačnú technológiu, ktorá spája vysokú odolnosť,...
Ambiciózne plány EK narazili na ekonomické možnosti domácností v jednotlivých členských štátoch –...
IDEA DOOR od spoločnosti JAP prináša do interiéru čistý minimalistický vzhľad vďaka bezrámovému riešeniu a precíznej...
Kontinuita riešenia od vonkajšieho obkladu až po kovania a kľučky.
Nástenné nadomietkové armatúry Vitus sú mimoriadne vhodné pre rýchlu a efektívnu...
Okenné profily z kompozitného materiálu RAU-FIPRO X od spoločnosti Rehau sú v porovnaní s tradičnými plastovými profilmi mnohonásobne...
Najnovší sortiment stolov pre zariadenie interiérov...
Spojenie moderného dizajnu, funkčnosti a svetla do harmonického architektonického prvku.
Kancelárska budova Baumit v slovinskom Trzine prešla premenou na moderné a udržateľné pracovisko. Architekti kládli dôraz...
Mottom šiesteho ročníku on-line konferencie odborníkov Xella Dialóg je Efektívny návrh budov 2025+: zmeny a riešenia
Robot WLTR predstavuje moderný prístup k murovaným konštrukciám. Vďaka automatizácii dokáže rýchlo, presne a bezpečne realizovať...

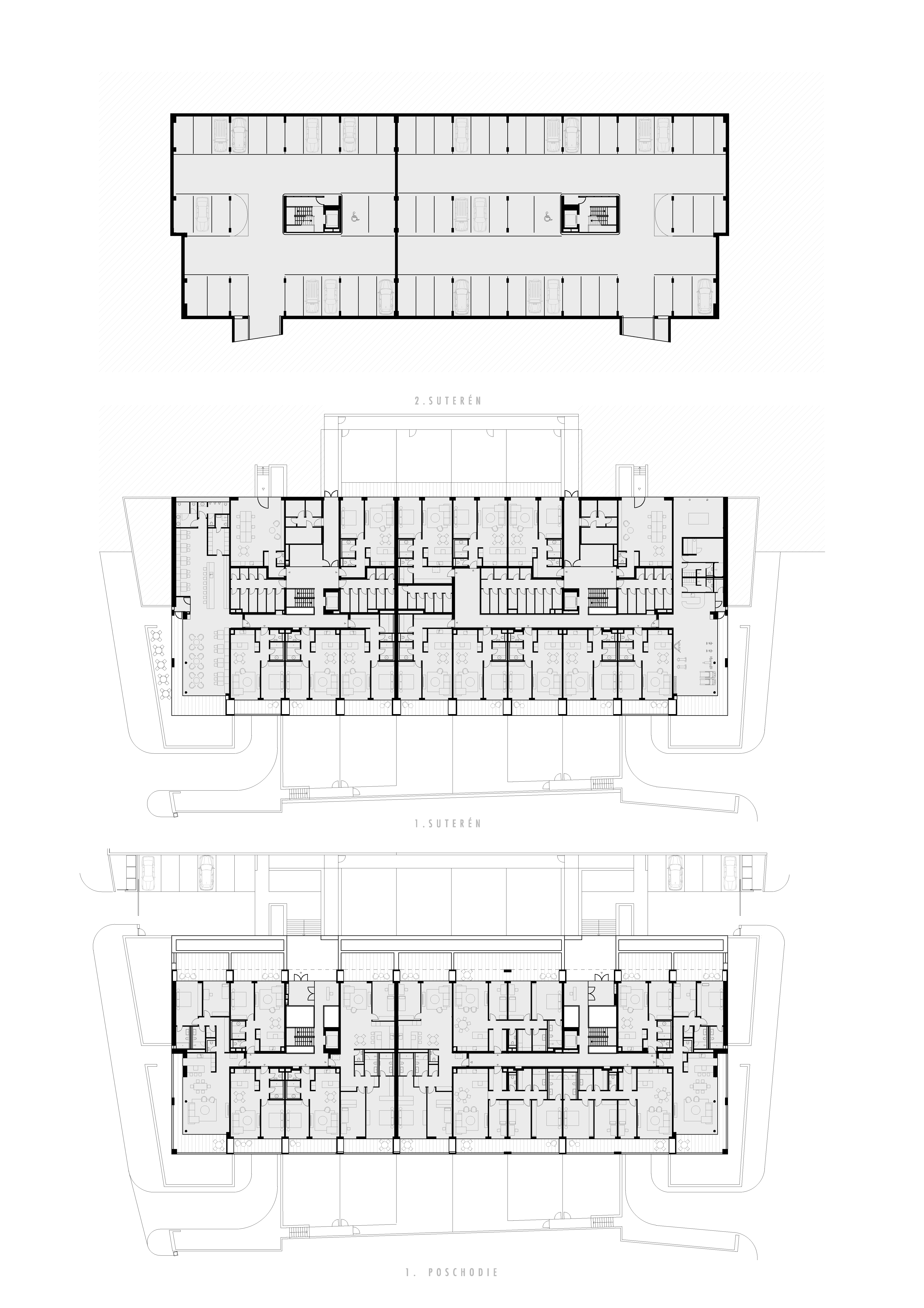
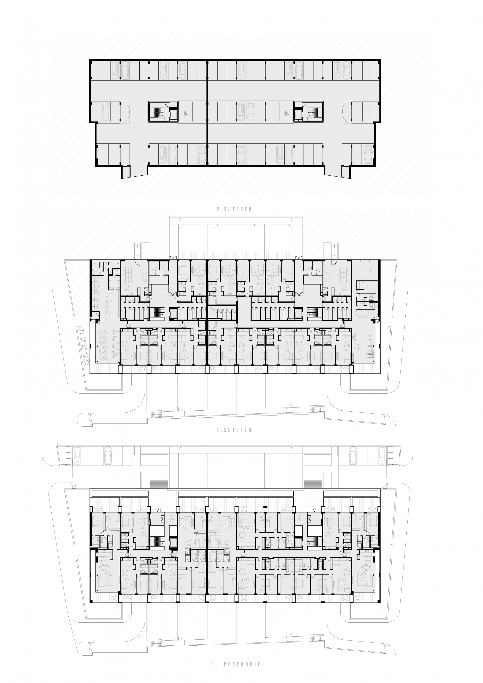
Bytový dom v prostredí s viacerými funkcionalistickými stavbami z medzivojnového obdobia ideovo nadväzuje na túto tradíciu.
Dôležitou súčasťou konceptu je poctivá materialita stavby a práca architekta s proporciou a detailom. Betón na fasáde dopĺňajú hliníkové prvky a drevené povrchy, pričom dôležitý humanizujúci prvok tvorí zeleň na terasách a streche. Obytné priestory so svetlou výškou takmer tri metre sa prostredníctvom rozsiahleho presklenia a lodžií otvárajú do pokojného mestského prostredia.
Realizáciu bližšie predstaví sprievodný text Iľju Skočeka:
Hausberg je bytový dom so 46 bytmi vo vilovej štvrti na Palisádach. Keď sme hľadali jeho architektonickú tvár, pokúsili sme sa navrhnúť dom , ktorý akoby tu stál už dávno. Nie okázalý ani výrazný, naopak zdanlivo všedný a obyčajný. Taký, čo nepúta pozornosť, nesrší nápadmi ale ktorého kvalita a solídnosť je zrejmá aj bez nich. Dom, ktorému sluší starnúť. Jeho fasáda zo štokovaného betónu má pripomínať charakteristické škrabané brizolitové omietky susedných domov. Táto betónová škrupina chráni drevené jadro, ktoré prechádza do veľkorysých spoločných priestorov schodiska a chodieb.
Použité materiály a riešenia:
Na obvodovom plášti boli použité hlinikove profily od spoločnosti Reynaers:
MasterLine 8 - okná, dvere, MasterPatio - posuvný systém, ConceptWall 50 - fasádny systém
Fotografie: Peter Jurkovič