Advertorial

Hotel Hirschen Spa House, Rakúsko

Novotvar v prostredí alpskej obce.

Vytvorte si kúpeľňu snov: dizajnové riešenie od značky hansgrohe

Hansgrohe - prémiová značka kúpeľňových riešení, ponúka nadčasový dizajn, technickú precíznosť a udržateľné inovácie...

Okná Internorm za minuloročné ceny + hliníkový kryt zdarma!

Využite špeciálnu akciu Internorm: okná za minuloročné ceny a hliníkový kryt úplne zadarmo. Ponuka je časovo obmedzená!

Pozvánka na 2. ročník stavebného veľtrhu BigMarket na Slovensku

Na podujatí sa predstaví až 37 vystavovateľov - popredných dodávateľov stavebných materiálov a inovácií s prezentáciou...

Moderné plynové technológie: Efektivita a inovácie pre 21. storočie

Sumarizácia najdôležitejších inovácií, ktoré redefinujúcich využitie tohto energetického zdroja.

Utesňovanie spodných stavieb pomocou hydro-aktívnej fólie AMPHIBIA.

AMPHIBIA 3000 GRIP 1.3 od spoločnosti ATRO predstavuje modernú hydroizolačnú technológiu, ktorá spája vysokú odolnosť,...

Dekarbonizácia individuálneho vykurovania domácností – Green Deal evolučne a nie revolučne

Ambiciózne plány EK narazili na ekonomické možnosti domácností v jednotlivých členských štátoch –...

Minimalistické dvere IDEA – technická precíznosť a čistota prevedenia

IDEA DOOR od spoločnosti JAP prináša do interiéru čistý minimalistický vzhľad vďaka bezrámovému riešeniu a precíznej...

Dom s výhľadom na údolie, Dlouhý Most (ČR)

Kontinuita riešenia od vonkajšieho obkladu až po kovania a kľučky.

Schell Vitus – osvedčené riešenie pre sprchy a umývadlá vo verejnom sektore s viac ako desaťročnou tradíciou

Nástenné nadomietkové armatúry Vitus sú mimoriadne vhodné pre rýchlu a efektívnu...

Kompozitné okná predstavujú súčasnosť a budúcnosť

Okenné profily z kompozitného materiálu RAU-FIPRO X od spoločnosti Rehau sú v porovnaní s tradičnými plastovými profilmi mnohonásobne...

Myotis - stoly 2025

Najnovší sortiment stolov pre zariadenie interiérov...

Priemyselné sklenené priečky Dorsis Digero: svetelné rozhranie pre moderné interiéry

Spojenie moderného dizajnu, funkčnosti a svetla do harmonického architektonického prvku.

Význam prirodzeného svetla pre moderné a flexibilné pracovné prostredie

Kancelárska budova Baumit v slovinskom Trzine prešla premenou na moderné a udržateľné pracovisko. Architekti kládli dôraz...

Konferencia Xella Dialóg predstaví novinky a trendy v stavebníctve

Mottom šiesteho ročníku on-line konferencie odborníkov Xella Dialóg je Efektívny návrh budov 2025+: zmeny a riešenia

Bytový dom pre seniorov, Staříč (ČR)

Nájomné bývanie v centrálnej zóne malého sídla. Polyfunkčný parter nie je iba miestom stretnutí obyvateľov domu, ale aj súčasťou občianskej vybavenosti a kultúrneho života obce.
Diela
Red 415.01.2020
27350+20
Bytový dom pre seniorov, Staříč (ČR)
Autori: Ing. arch. Kamil Mrva,, Ph.D, Ing. arch. Martin RosaSpolupráca: Ing. Jan Stuchlík, Ing. arch. Martin Vymetálek, Ing. Jaroslav Holub, Ing. arch. Monika Drholecká, Ing. Tomáš ŠenovskýInvestor: Obec StaříčNávrh: 2010 - 2014Realizácia: 2016 - 2018Adresa: Staříč, Česká republikaPublikované: 15. január 2020

Dvojtisícová obec, ktorá leží v okrese Frýdek-Místek, vypísala ešte v roku 2010 vyzvanú súťaž na plánovaný bytový dom pre seniorov. Pre samosprávu išlo o jednu z najdôležitejších a najväčších investičných akcií v porevolučnom období. Dôsledná príprava bola preto namieste.

V súťaži uspel návrh kopřivnického ateliéru Kamila Mrvu. "Od počátku studie po kolaudaci stavby uběhlo devět let. V průběhu dvou let výstavby a více než sta kontrolních dnů, jsme měli možnost zažít jak příjemnou, tak nepříjemnou atmosféru," hovorí architekt Kamil Mrva. Bytový dom, skolaudovaný v priebehu uplynulého roka, je dnes už zabývaný.

Foto: Libor Stavjaník / Studio Toast
Foto: Libor Stavjaník / Studio Toast
Foto: Libor Stavjaník / Studio Toast
Foto: Libor Stavjaník / Studio Toast
Foto: Libor Stavjaník / Studio Toast

Objekt pozostáva z dvojice samostatných traktov, prepojených “odhmotnenou” halou, v ktorej sú sústredené spoločenské priestory. "Naší snahou bylo navrhnout prostředí, v němž se budou senioři cítit doma, ale zároveň bude impulsem k jejich integraci do života obce, a naopak k možnosti vtažení života obce do domu,” vysvetľuje Kamil Mrva. Aj preto je parter objektu navrhnutý tak, aby slúžil nielen obyvateľom domu, ale aj širšej verejnosti.

Vizualizácia
VizualizáciaAutor: Kamil Mrva Architects

Seniori majú v nájomnom bytovom dome k dispozícii jednoduché byty v usporiadaní 1 KK (36m2), alebo 1 KK (58 m2). Obe varianty majú k dispozícii priestranné lodžie a pivnice na prízemí.

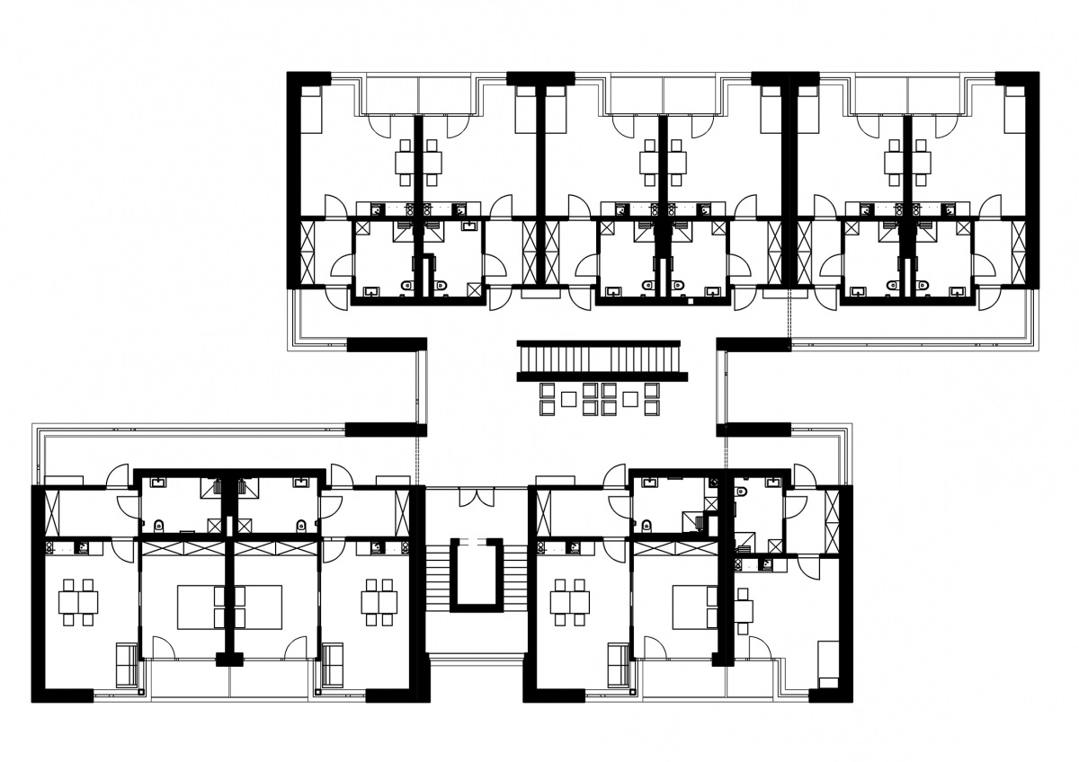
Pôdorys 1. NP
Pôdorys 1. NPAutor: Kamil Mrva Architects
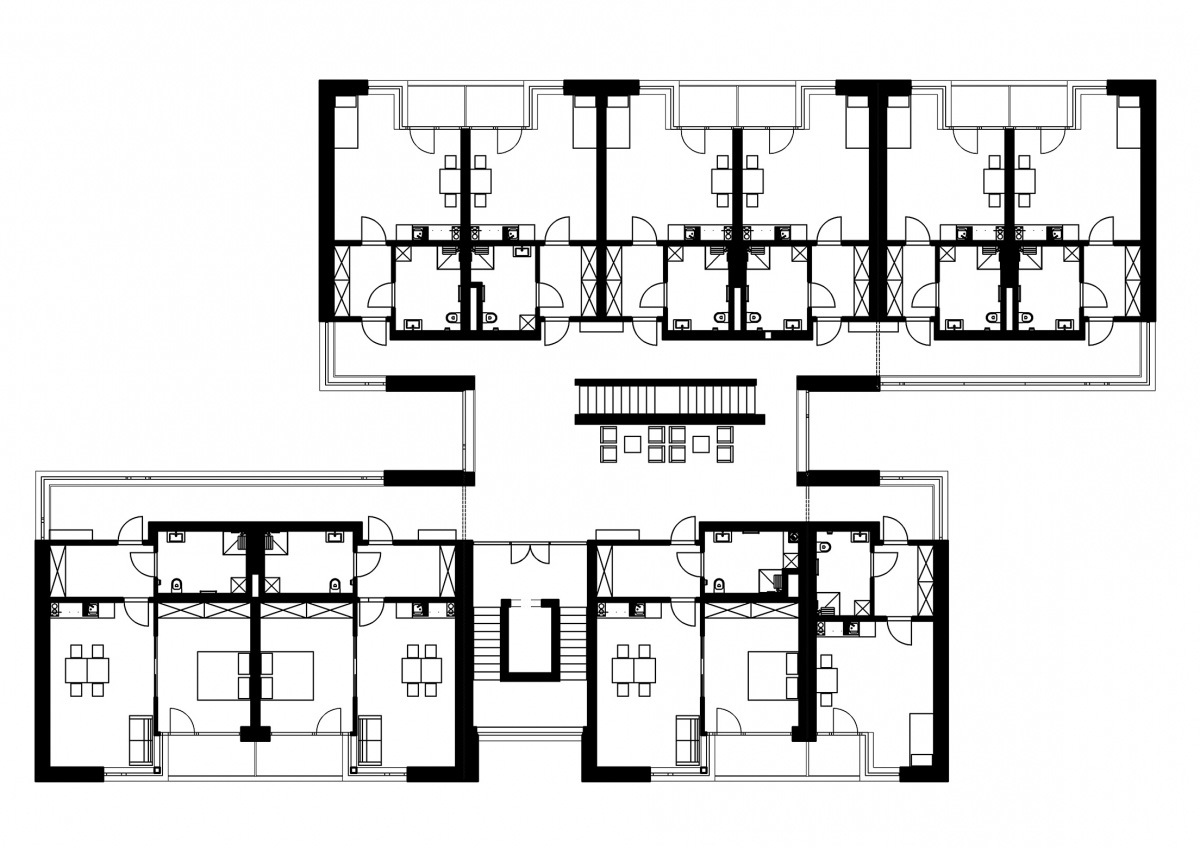
Pôdorys 2. NP
Pôdorys 2. NPAutor: Kamil Mrva Architects
Foto: Libor Stavjaník / Studio Toast
Foto: Libor Stavjaník / Studio Toast
Foto: Libor Stavjaník / Studio Toast
Foto: Libor Stavjaník / Studio Toast
Foto: Libor Stavjaník / Studio Toast
Foto: Libor Stavjaník / Studio Toast
Foto: Libor Stavjaník / Studio Toast

Poloha diela

Ing. arch. Kamil Mrva,, Ph.D
Ing. arch. Martin Rosa
Vložené
8. január 2020
0
2735
Hlavný obsahHlavný obsah
Čakajte prosím