Sumarizácia najdôležitejších inovácií, ktoré redefinujúcich využitie tohto energetického zdroja.
AMPHIBIA 3000 GRIP 1.3 od spoločnosti ATRO predstavuje modernú hydroizolačnú technológiu, ktorá spája vysokú odolnosť,...
Ambiciózne plány EK narazili na ekonomické možnosti domácností v jednotlivých členských štátoch –...
IDEA DOOR od spoločnosti JAP prináša do interiéru čistý minimalistický vzhľad vďaka bezrámovému riešeniu a precíznej...
Nástenné nadomietkové armatúry Vitus sú mimoriadne vhodné pre rýchlu a efektívnu...
Okenné profily z kompozitného materiálu RAU-FIPRO X od spoločnosti Rehau sú v porovnaní s tradičnými plastovými profilmi mnohonásobne...
Najnovší sortiment stolov pre zariadenie interiérov...
Spojenie moderného dizajnu, funkčnosti a svetla do harmonického architektonického prvku.
Kancelárska budova Baumit v slovinskom Trzine prešla premenou na moderné a udržateľné pracovisko. Architekti kládli dôraz...
Mottom šiesteho ročníku on-line konferencie odborníkov Xella Dialóg je Efektívny návrh budov 2025+: zmeny a riešenia
Robot WLTR predstavuje moderný prístup k murovaným konštrukciám. Vďaka automatizácii dokáže rýchlo, presne a bezpečne realizovať...
Okrem bezpečnosti majú okná aj elegantný vzhľad, pretože nie sú viditeľné žiadne uzamykacie časti kovania.
Dvere MASTER v skrytej zárubni AKTIVE je možné vyrobiť až do výšky 3 700 mm
Internorm stavia na energetickú efektívnosť a inteligentné tieniace riešenia.
Slovensko vo výbere zastupuje šesť realizácií.

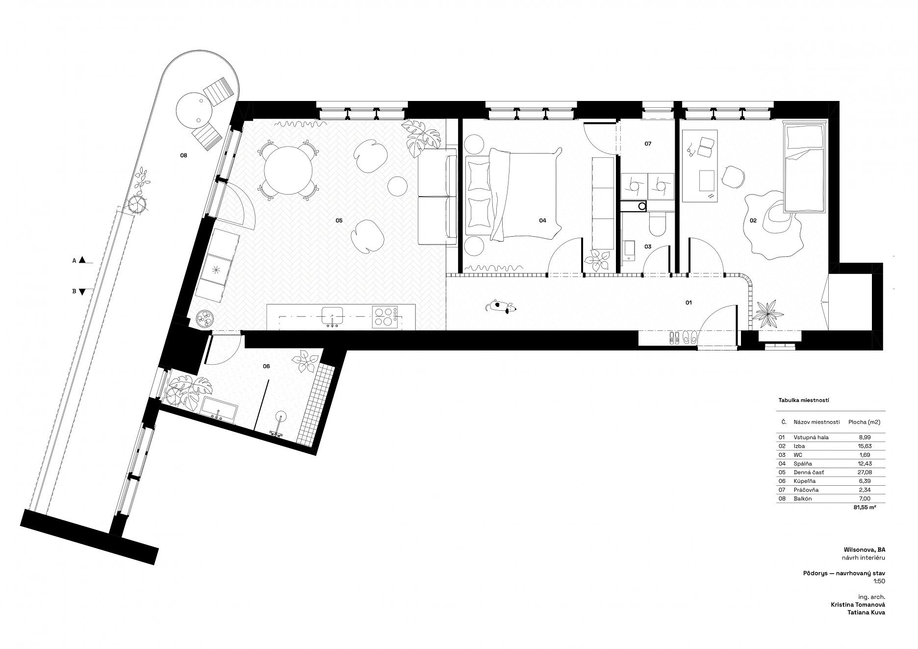
Prestavba staromestského bytu z dielne ateliéru diagram studio. Odkryté pôvodné vrstvy interiéru a ich hrubá materialita vytvárajú podklad pre nové precízne prvky zariadenia. Dominantné sklobetónové priečky vnášajú do interiéru otvorenosť a dynamickú hru s denným svetlom.
Realizáciu bližšie predstavia autorky Kristína Tomanová a Tatiana Kuva:
Pôvodne dvojizbový byt na Wilsonovej ulici v Bratislave pozostával z veľkorysých prechodných izieb. Takéto usporiadanie však mladej rodine nevyhovovalo, navyše byt bol v neobývateľnom stave. Preto sa pristúpilo k úprave na trojizbový byt.
Polohy pôvodných priečok sa takmer nemenili pre umiestnenie okien na fasádnej stene. Prirodzene tak vznikli dve izby a medzi nimi práčovňa prístupná zo spálne a WC prístupné z chodby, prepojené svetlíkom. Pozdĺž izieb sa nachádza chodba smerujúca do dennej časti bytu – nárožného priestoru s balkónom, ktorý je najatraktívnejším priestorom bytu a zároveň nadväzuje na priestrannú kúpeľňu.
Keďže izby sú svetlé a ich hĺbka relatívne malá, priečka medzi izbami, toaletou a chodbou je z sklobetónu, čo zabezpečuje celodenné presvetlenie chodby a jej prípadné využitie ako „galerijného“ priestoru bytu. Pôvodné kastlíkové okná ostávajú zachované, čím podčiarkujú charakter bytu z 30. rokov. Ich jemne žltá farba sa objavuje aj na ďalších súčasných prvkoch v byte, čím sa moderný charakter prepája s pôvodnými detailmi. V procese rekonštrukcie sa v byte objavili mnohé vrstvy stavby, ktoré boli čiastočne alebo úplne odkryté – najmä na strope. Priestoru tento prístup dodal príjemnú surovosť a pravdivý detail.
Fotografie z bytu pred rekonštrukciou:
Ateliér: diagram studio
Fotografie: isonative