Advertorial

Moderné plynové technológie: Efektivita a inovácie pre 21. storočie

Sumarizácia najdôležitejších inovácií, ktoré redefinujúcich využitie tohto energetického zdroja.

Utesňovanie spodných stavieb pomocou hydro-aktívnej fólie AMPHIBIA.

AMPHIBIA 3000 GRIP 1.3 od spoločnosti ATRO predstavuje modernú hydroizolačnú technológiu, ktorá spája vysokú odolnosť,...

Dekarbonizácia individuálneho vykurovania domácností – Green Deal evolučne a nie revolučne

Ambiciózne plány EK narazili na ekonomické možnosti domácností v jednotlivých členských štátoch –...

Minimalistické dvere IDEA – technická precíznosť a čistota prevedenia

IDEA DOOR od spoločnosti JAP prináša do interiéru čistý minimalistický vzhľad vďaka bezrámovému riešeniu a precíznej...

Schell Vitus – osvedčené riešenie pre sprchy a umývadlá vo verejnom sektore s viac ako desaťročnou tradíciou

Nástenné nadomietkové armatúry Vitus sú mimoriadne vhodné pre rýchlu a efektívnu...

Kompozitné okná predstavujú súčasnosť a budúcnosť

Okenné profily z kompozitného materiálu RAU-FIPRO X od spoločnosti Rehau sú v porovnaní s tradičnými plastovými profilmi mnohonásobne...

Myotis - stoly 2025

Najnovší sortiment stolov pre zariadenie interiérov...

Priemyselné sklenené priečky Dorsis Digero: svetelné rozhranie pre moderné interiéry

Spojenie moderného dizajnu, funkčnosti a svetla do harmonického architektonického prvku.

Význam prirodzeného svetla pre moderné a flexibilné pracovné prostredie

Kancelárska budova Baumit v slovinskom Trzine prešla premenou na moderné a udržateľné pracovisko. Architekti kládli dôraz...

Konferencia Xella Dialóg predstaví novinky a trendy v stavebníctve

Mottom šiesteho ročníku on-line konferencie odborníkov Xella Dialóg je Efektívny návrh budov 2025+: zmeny a riešenia

Murovací robot WLTR stavia svoj prvý dom na Slovensku

Robot WLTR predstavuje moderný prístup k murovaným konštrukciám. Vďaka automatizácii dokáže rýchlo, presne a bezpečne realizovať...

Nová éra bezpečnosti s I-tec Secure od Internorm

Okrem bezpečnosti majú okná aj elegantný vzhľad, pretože nie sú viditeľné žiadne uzamykacie časti kovania.

Skryté zárubne JAP – intenzívny zážitok z bývania

Dvere MASTER v skrytej zárubni AKTIVE je možné vyrobiť až do výšky 3 700 mm

Tienenie namiesto klimatizácie

Internorm stavia na energetickú efektívnosť a inteligentné tieniace riešenia.

BigMat International Architecture Award 2025 - vybrané diela

Slovensko vo výbere zastupuje šesť realizácií.

Rekonštrukcia podkrovia, Hořenice (ČR)

Prestavba podkrovného priestoru bývalej maštale pre potreby rodinného bývania. Ide o prvý krok v rámci rekonštrukcie rozľahlej hospodárskej usadlosti.
Diela
Red 330.09.2017
56840+30
Rekonštrukcia podkrovia, Hořenice (ČR)
Autori: Ing. arch. Pavel Plánička, Ing. Bruno Panenka, Ing. Barbora UrbanováPodlažná plocha: 220 m²Obostavaný objem: 900 m³Návrh: 2016 - 2016Realizácia: 2016 - 2017Adresa: Hořenice 5, Chbany, Česká republikaPublikované: 30. september 2017

Nedávno sme písali o rekonštrukcii statku v dedinke Ošelín. Dnes sa presunieme do obce Hořenice, takisto na česko - nemeckom pohraničí. Oba projekty spája odhodlanie investora pre záchranu stavebného dedičstva.  

Pohraničná obec Hořenice, ktorá leží na sverozápade Čiech najväčšiu slávu prežívala okolo roku 1900, kedy tu žilo viac ako sto obyvateľov. Po prvej svetovej vojne však dochádzalo k postupnému vysídľovaniu, ktoré vrcholilo núteným odsunom nemeckých obyvateľov.  Stav sa nezlepšil ani po druhej svetovej vojne, kedy došlo k zoštátneniu rozľahlého statku. V súčastnosti je v obci päť obývaných domov. Medzi stálych obyvateľov patria príbuzní investorov, ktorí sa starajú o rozsiahly dvor a venujú sa pestovaniu biopotravín a chovu dobytka.

Ortofotomapa
Ortofotomapa

Rodina, ktorá aj s deťmi trvalo žije a pracuje v Nemecku, si chcela na dvore v Hořeniciach zariadiť prechodné ubytovanie, s perspektívou, že sa sem v budúcnosti nasťahujú. Pre svoj zámer si vybrali nevyužívaný priestor v podkroví v jednom z objektov, ktorý pôvodne slúžil ako chliev a sklad obylia.

Foto: Pavel Plánička

Rekonštrukcia podkrovia s výmerou 200 metrov štvorcových nakoniec netrvala ani rok. „Prostor, který byl pro rekonstrukci k dispozici, byl vzhledem k zadání velký, důležité bylo udržet jednotlivosti ve vzájemném proporčním souladu,“ hovorí architekt Pavel Plánička z ateliéru 3+1 architekti. Pri stavebných prácach sa dbalo na zachovanie čo najväčšieho množstva pôvodných prvkov a na použitie kvalitných materiálov v súlade s konštrukciou starého statku. “Šlo především o to „nenapáchat ještě více architektonických neplech na jedné z nejstarších budov na statku Hořenice, jako se to stalo za bývalého režimu, za existence JZD,“ dodává investorka.

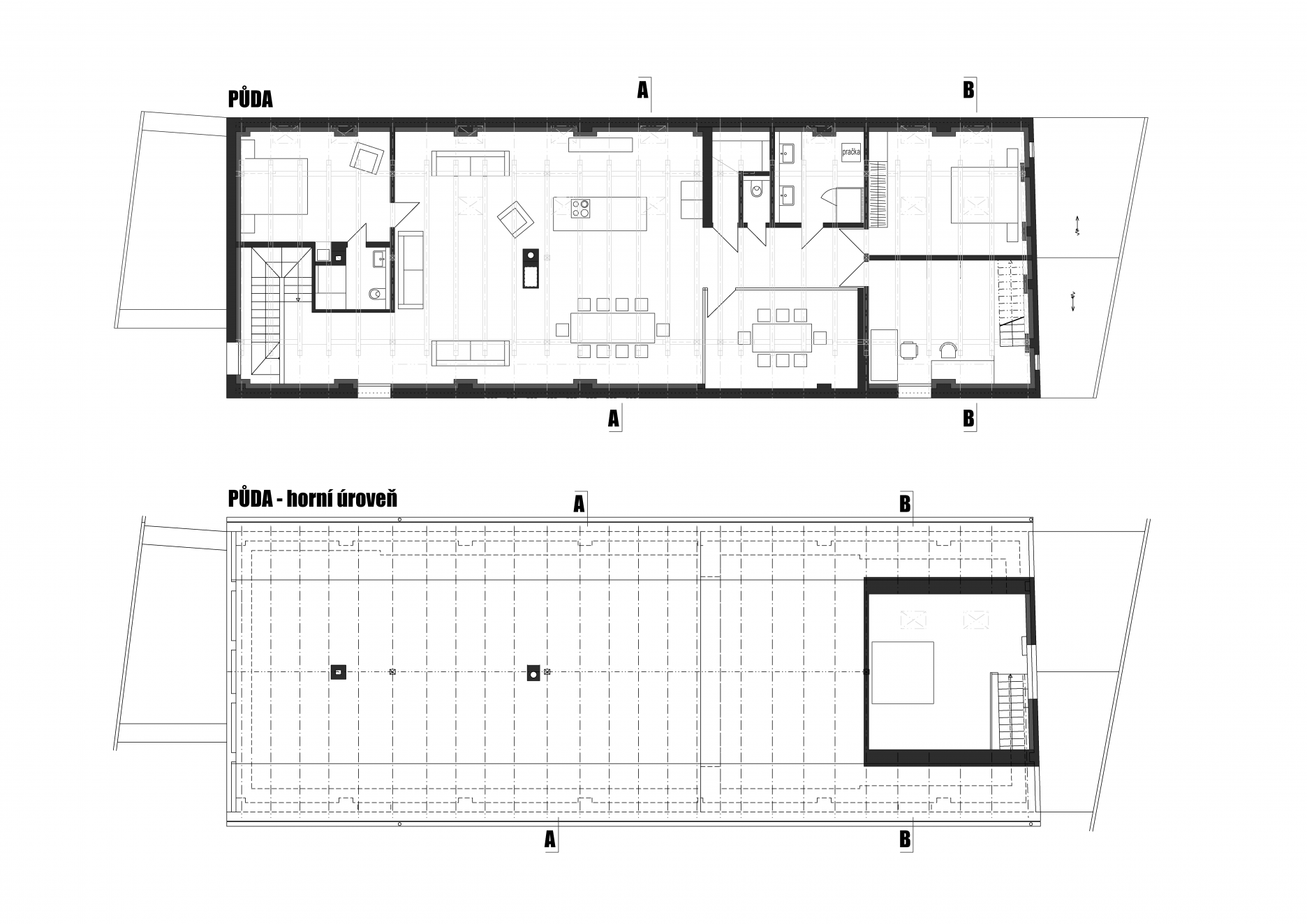
Pôdorysy
PôdorysyAutor: 3+1 architekti
Pohľad a rezy
Pohľad a rezyAutor: 3+1 architekti

V podkrovnom byte dominuje spojený priestor kuchyne, jedálne a obývacej izby, ktorý bol otvorený do štítu, čím získal svetlú výšku takmer šesť metrov. Konštrukcia krovu ostala až na niekoľko poškodených častí v pôvodnom stave. Všetky krokvy boli ručne prebrúsené a ponechané bez povrchovej úpravy. Pred rekonštrukciou bolo podkrovie bez okien. Dispozíciu po novom presvetľujú strešné okná a dva pásové vikiere. Výška krovu umožnila umiestnenie spální na poschodie.

Foto: Pavel Plánička
Foto: Pavel Plánička
Foto: Pavel Plánička

Nové konštrukcie a zariadenie bytu v bielej farbe necháva vyniknúť priestor a konštrukcie podkrovia. Výrazným prvkom je očistená tehlová stena v kuchynskej časti. Byt dotvárajú detaily ako keramické vypínače a stropné osvetlenie zavesené na trámoch. Ako zhŕňa investorka: „Za prvé nic není rovné, za druhé nic není tak, jak se to naplánuje. Atypická zakázka si žádá zakázkovou výrobu a individuální přístup”. Osobné nasadenie architektov z ateliéru  3+1 je v tomto prípade jasne viditeľné.

Foto: Pavel Plánička
Foto: Pavel Plánička
Foto: Pavel Plánička
Foto: Pavel Plánička
Foto: Pavel Plánička
Foto: Pavel Plánička
Foto: Pavel Plánička
Foto: Pavel Plánička
Foto: Pavel Plánička
Foto: Pavel Plánička
Foto: Pavel Plánička
Foto: Pavel Plánička
Foto: Pavel Plánička
Foto: Pavel Plánička
Foto: Pavel Plánička
Foto: Pavel Plánička
Foto: Pavel Plánička
Foto: Pavel Plánička
Foto: Pavel Plánička
Foto: Pavel Plánička
Foto: Pavel Plánička

Na statku v Hořeniciah sa v súčastnosti pripravuje nový ovčín a oprava drobnej kaplnky. Tešíme sa na výsledok.

Podklady: 3+1 architekti

Poloha diela

Ing. arch. Pavel Plánička
Ing. Bruno Panenka
Ing. Barbora Urbanová

Súvisiace články

Vložené
4. september 2017
0
5684
Hlavný obsahHlavný obsah
Čakajte prosím