Na podujatí sa predstaví až 37 vystavovateľov - popredných dodávateľov stavebných materiálov a inovácií s prezentáciou...
Novotvar v prostredí alpskej obce.
Hansgrohe - prémiová značka kúpeľňových riešení, ponúka nadčasový dizajn, technickú precíznosť a udržateľné inovácie...
Využite špeciálnu akciu Internorm: okná za minuloročné ceny a hliníkový kryt úplne zadarmo. Ponuka je časovo obmedzená!
Sumarizácia najdôležitejších inovácií, ktoré redefinujúcich využitie tohto energetického zdroja.
AMPHIBIA 3000 GRIP 1.3 od spoločnosti ATRO predstavuje modernú hydroizolačnú technológiu, ktorá spája vysokú odolnosť,...
Ambiciózne plány EK narazili na ekonomické možnosti domácností v jednotlivých členských štátoch –...
IDEA DOOR od spoločnosti JAP prináša do interiéru čistý minimalistický vzhľad vďaka bezrámovému riešeniu a precíznej...
Kontinuita riešenia od vonkajšieho obkladu až po kovania a kľučky.
Nástenné nadomietkové armatúry Vitus sú mimoriadne vhodné pre rýchlu a efektívnu...
Okenné profily z kompozitného materiálu RAU-FIPRO X od spoločnosti Rehau sú v porovnaní s tradičnými plastovými profilmi mnohonásobne...
Najnovší sortiment stolov pre zariadenie interiérov...
Spojenie moderného dizajnu, funkčnosti a svetla do harmonického architektonického prvku.
Kancelárska budova Baumit v slovinskom Trzine prešla premenou na moderné a udržateľné pracovisko. Architekti kládli dôraz...
Mottom šiesteho ročníku on-line konferencie odborníkov Xella Dialóg je Efektívny návrh budov 2025+: zmeny a riešenia

České Budějovice sú mesto s kompaktným historickým jadrom, bohatým na architektonickú kvalitu a detaily. Je to tiež miesto, ktoré žije kultúrou a turizmom. Historické centrum je zo severovýchodu ohraničené mestskými parkmi, zatiaľ čo juhozápadný okraj lemuje sútok riek Vltava a Malše. "Nalezli jsme v Českých Budějovicích inspiraci. Tichou i dynamickou energii, místo cyklických pohybových proměn a trajektorií, které jsou utvořeny ze silnic, mostů, potoků, parků a stavebních souborů," objasňujú architekti vplyv genia loci na samotný návrh.
Administratívne centrum PIANO stojí na priesečníku severo-južnej a západo-východnej mestskej triedy, južne od historického centra. Kompaktná bloková zástavba tu pomaly prechádza k väčším solitérnym objektom. "Sedm různých geometrických trajektorií se zde protíná, kříží, naráží, či běží paralelně a vytváří síť významných bodů, přechodových hran a osových průhledů. Toto jsou projevy místa, které jsme našli a následně použili jako katalyzátor pro návrh tvarosloví objektu, nyní pojmenovaného 'PIANO' ," zdôvodńujú autori východiská konceptu.
Úlohou ateliéru bolo navrhnúť kancelársky objekt s uvoľnenou atmosférou pre prácu a podnikanie. PIANO, s pôdorysom v tvare písmena"U", vstupuje do verejného priestoru prostredníctvom zapusteného nárožia. Priestory na prízemí sú prepojené s malým otvoreným átriom. Práve táto dualita ruchu a pohybu v exteriéri oproti tichu a pokoju vo vnútri budovy vytvára zaujímavé prostredie a "živé" miesto pre prácu.
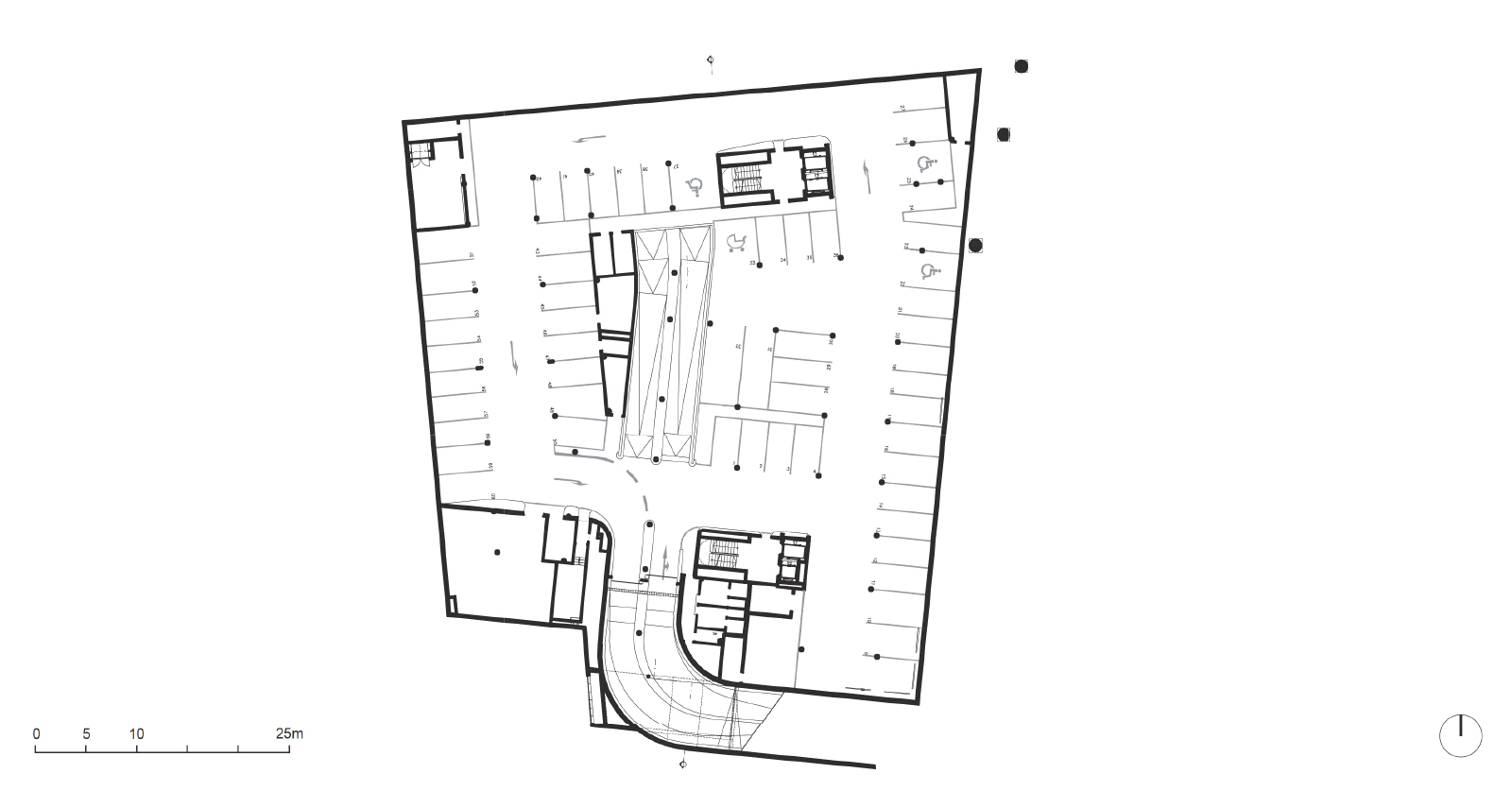
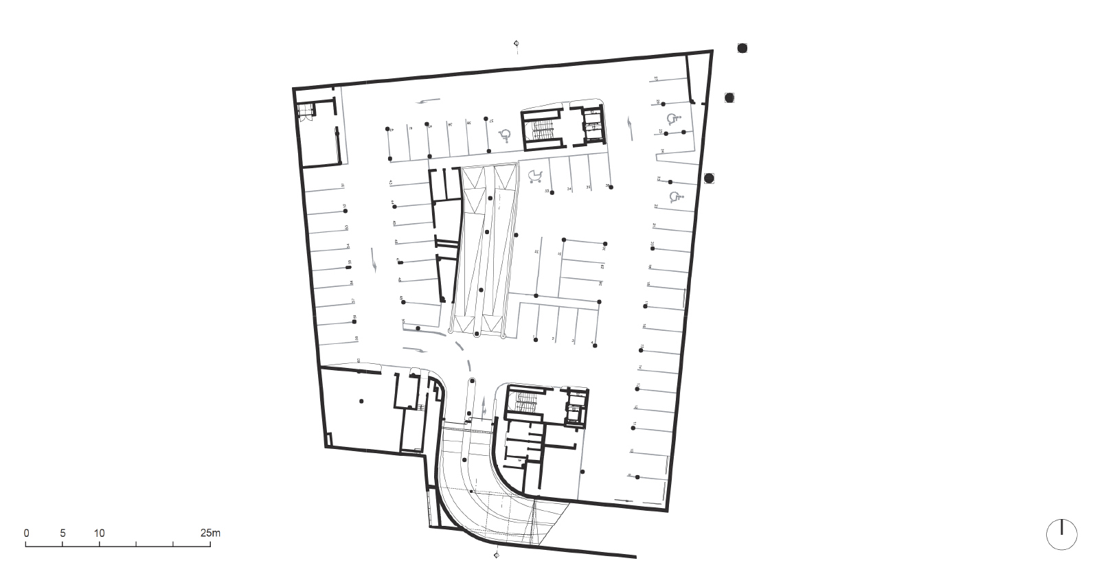
PIANO má päť nadzemných podlaží zakončených štíhlym prestrešením, ktoré zakrýva technické inštalácie. Na prízemí je prechodná recepčná hala na výšku dvoch podlaží, ktorá je prepojená s átriom, reštauráciou, kaviarňou a obchodnými priestormi. V nadzemných podlažiach má PIANO približne 9000 m2 nájomných plôch. V suteréne je na dvoch podzemných podlažiach parkovisko s kapacitou pre 125 áut.
Železobetónový skelet stavby dopĺňajú nosné obvodové steny a monolitické stropné dosky. TZB zahŕňa 4-rúrkové fancoily umiestnené na stropoch, automatické strojové vetranie a samozrejme IBS pre riadenie vnútornej klímy a energetickej úspornosti. Ako fasádny obklad boli použité izolačné ALUCOBOND kazety, v kombinácii s otváravými oknami, ktoré umožňujú prirodzené prevetranie každého kancelárskeho modulu (po 2,7 metroch). Tienenie budovy zabezpečujú vnútorné priesvitné žalúzie.
Podklady: CMC Architects