Na podujatí sa predstaví až 37 vystavovateľov - popredných dodávateľov stavebných materiálov a inovácií s prezentáciou...
Novotvar v prostredí alpskej obce.
Hansgrohe - prémiová značka kúpeľňových riešení, ponúka nadčasový dizajn, technickú precíznosť a udržateľné inovácie...
Využite špeciálnu akciu Internorm: okná za minuloročné ceny a hliníkový kryt úplne zadarmo. Ponuka je časovo obmedzená!
Sumarizácia najdôležitejších inovácií, ktoré redefinujúcich využitie tohto energetického zdroja.
AMPHIBIA 3000 GRIP 1.3 od spoločnosti ATRO predstavuje modernú hydroizolačnú technológiu, ktorá spája vysokú odolnosť,...
Ambiciózne plány EK narazili na ekonomické možnosti domácností v jednotlivých členských štátoch –...
IDEA DOOR od spoločnosti JAP prináša do interiéru čistý minimalistický vzhľad vďaka bezrámovému riešeniu a precíznej...
Kontinuita riešenia od vonkajšieho obkladu až po kovania a kľučky.
Nástenné nadomietkové armatúry Vitus sú mimoriadne vhodné pre rýchlu a efektívnu...
Okenné profily z kompozitného materiálu RAU-FIPRO X od spoločnosti Rehau sú v porovnaní s tradičnými plastovými profilmi mnohonásobne...
Najnovší sortiment stolov pre zariadenie interiérov...
Spojenie moderného dizajnu, funkčnosti a svetla do harmonického architektonického prvku.
Kancelárska budova Baumit v slovinskom Trzine prešla premenou na moderné a udržateľné pracovisko. Architekti kládli dôraz...
Mottom šiesteho ročníku on-line konferencie odborníkov Xella Dialóg je Efektívny návrh budov 2025+: zmeny a riešenia

Na svetovej výstave Expo, ktorá sa konala v roku 2015 v Miláne získal modulárny pavilón Českej republiky viacero ocenení, medzi ktoré patrí aj bronzová medaila za architektúru. Stavbu zrealizovala na základe výberového konania vizovická firma KOMA MODULAR, autorom architektonického riešenia bol česko-slovenský ateliér CHYBIK+KRISTOF. V návrhu bola zohľadnená téma výstavy „Potraviny pre planétu, energia pre život“. Pavilón prezentoval najnovšie možnosti čistenia vody a zároveň tradičný vzťah Českej republiky k vode (rybníky, kúpele...).
Už od začiatku sa počítalo s možnosťou demontáže budovy po výstave, a jej presunom naspäť do Českej republiky. Aj napriek site-specific inštalácii (pri návrhu boli zohľadnené klimatické podmienky letného Milána) umožnila variabilita modulov zmenu funkcie. Po skončení výstavy spoločnosť KOMA MODULAR odmietla ponuky k odpredaju a pavilón si ponechala. Moduly sa tak po čase vrátili na miesto, kde boli pôvodne vyrobené.
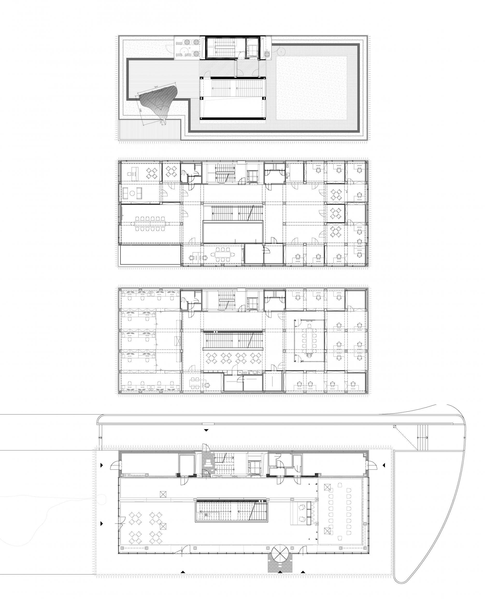
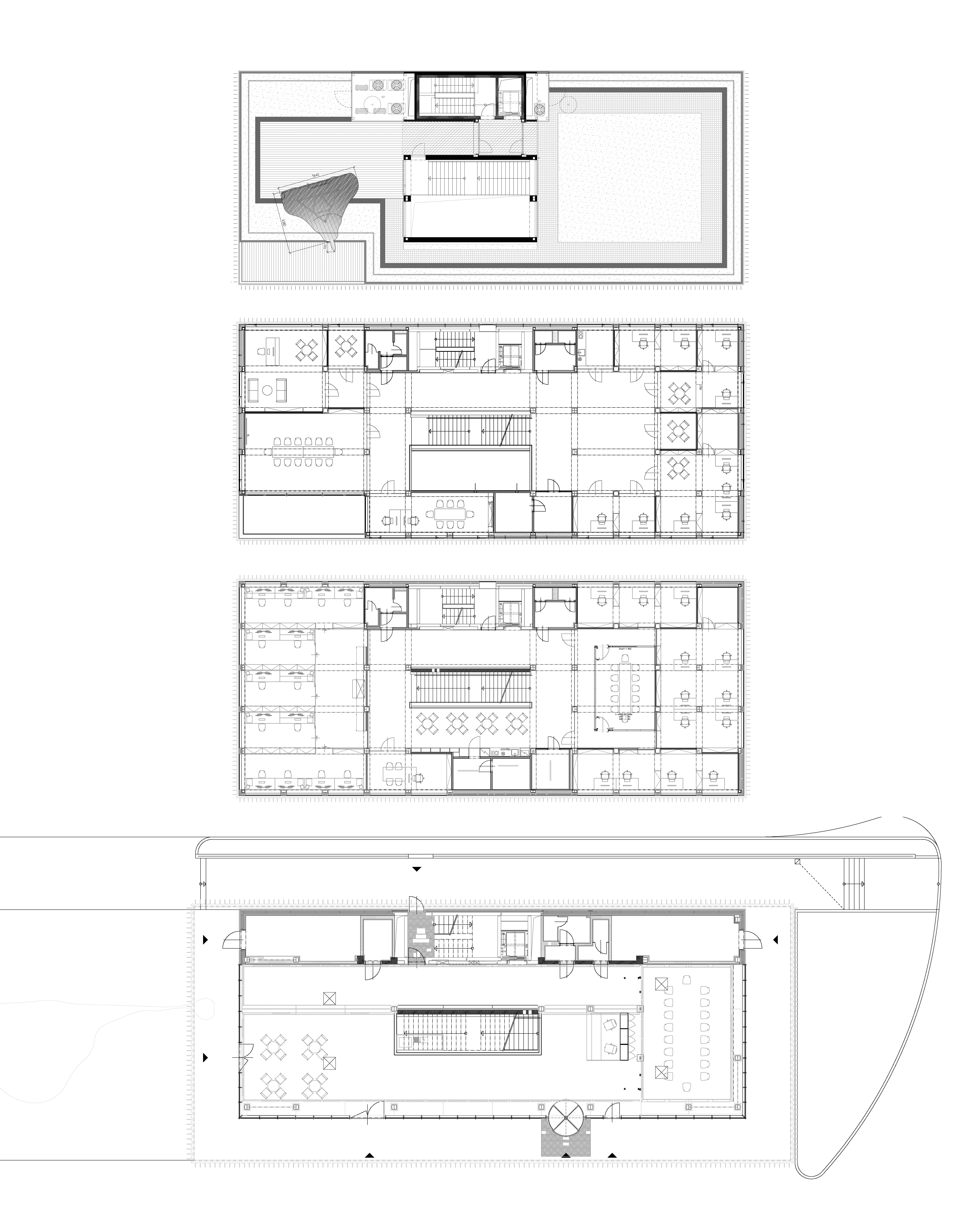
Aj keď sa modulárny pavilón stal súčasťou areálu vizovickej firmy, ľudia majú aj naďalej možnosť si ho prezrieť. Pôvodný výstavný priestor, ktorý bol doslova preplnený exponátmi dnes slúži ako administratívne centrum firmy. Na prízemí je výstavná plocha, kde je v súčasnosti inštalovaná expozícia venujúca sa českej účasti na Expo. Aj napriek zmene vnútornej náplne, výraznej úprave dispozície, či novému plášťu stavba ostáva pavilónom, ktorý reprezentoval Českú republiku na svetovej výstave.
Podobný projekt si samozrejme vyžaduje komplexný prístup. Od urbanistického riešenia a začlenenia stavby do jestvujúceho areálu, cez návrh novej prevádzky a dispozície, až po riešenie interiéru a detailov. Spomenuté úlohy mal na starosti ateliér Olgoj Chorchoj, ktorý s vizovickou firmou dlhodobo spolupracuje.
Pavilón našiel svoje miesto v blízkosti niekoľko rokov starej modulárnej jedálne (autormi ktorej boli architekti z ateliéru CHYBIK+KRISTOF). Stavby spolu tvoria nádvorie, ktoré má v budúcnosti doplniť malý amfiteáter. Z milánskeho Expa bol na miesto importovaný aj vodný prvok v podobe plytkého vonkajšieho bazéna.
Objekt je už z diaľky ľahko identifikovateľný, aj vďaka umeleckým dielam Lukáša Rittsteina. Pri nádrži s vodou stojí rozmerná socha “autovtáka” ktorého chvost sa vinie celým interiérom. Zdobia ho farebné motívy, ktoré stvárnila umelkyňa Bára Šlapetová. Prechádza cez tri podlažia, až na strechu, kde “hniezdi” ďalšia podobná plastika. Socha na streche pavilónu je jasným a z diaľky viditeľným poznávacím znamením.
Samotný pavilón po konverzii podľa slov architekta funguje ako “kamenný dom”. Dočasná stavba dostala nový plášť, ktorý zaručuje jej trvalé fungovanie v tuzemskom klimatickom pásme. Pribudli terazzové podlahy, železobetónové konštrukcie… Odolné materiály zabezpečujú dlhú životnosť stavby. V interiéri nenájdeme sadrokartón, je tu použité železo, drevo a sklo.
Najväčším zásahom do dispozície bolo otočenie schodiska. Pôvodne slúžilo ako výstavný priestor, alebo priestor na performance, dnes ide o účelovú technickú komunikáciu. Od tejto zmeny sa odvíja celé nové priestorové riešenie. Z expozície na prízemí vedie schodisko na kancelárske poschodia. Z najvyšších podlaží je následne prístupná pobytová strecha s bylinkovou záhradou a výhľadom na areál firmy a Vizovice.
Konverzia pavilónu a príprava pozemku a samotná stavba trvala približne rok.
Novootvorené priestory Vám priblíži video z Dňa architektúry, kedy bol areál firmy KOMA MODULAR otvorený pre verejnosť.
Podklady a fotografie: KOMA Modular