Na podujatí sa predstaví až 37 vystavovateľov - popredných dodávateľov stavebných materiálov a inovácií s prezentáciou...
Novotvar v prostredí alpskej obce.
Hansgrohe - prémiová značka kúpeľňových riešení, ponúka nadčasový dizajn, technickú precíznosť a udržateľné inovácie...
Využite špeciálnu akciu Internorm: okná za minuloročné ceny a hliníkový kryt úplne zadarmo. Ponuka je časovo obmedzená!
Sumarizácia najdôležitejších inovácií, ktoré redefinujúcich využitie tohto energetického zdroja.
AMPHIBIA 3000 GRIP 1.3 od spoločnosti ATRO predstavuje modernú hydroizolačnú technológiu, ktorá spája vysokú odolnosť,...
Ambiciózne plány EK narazili na ekonomické možnosti domácností v jednotlivých členských štátoch –...
IDEA DOOR od spoločnosti JAP prináša do interiéru čistý minimalistický vzhľad vďaka bezrámovému riešeniu a precíznej...
Kontinuita riešenia od vonkajšieho obkladu až po kovania a kľučky.
Nástenné nadomietkové armatúry Vitus sú mimoriadne vhodné pre rýchlu a efektívnu...
Okenné profily z kompozitného materiálu RAU-FIPRO X od spoločnosti Rehau sú v porovnaní s tradičnými plastovými profilmi mnohonásobne...
Najnovší sortiment stolov pre zariadenie interiérov...
Spojenie moderného dizajnu, funkčnosti a svetla do harmonického architektonického prvku.
Kancelárska budova Baumit v slovinskom Trzine prešla premenou na moderné a udržateľné pracovisko. Architekti kládli dôraz...
Mottom šiesteho ročníku on-line konferencie odborníkov Xella Dialóg je Efektívny návrh budov 2025+: zmeny a riešenia

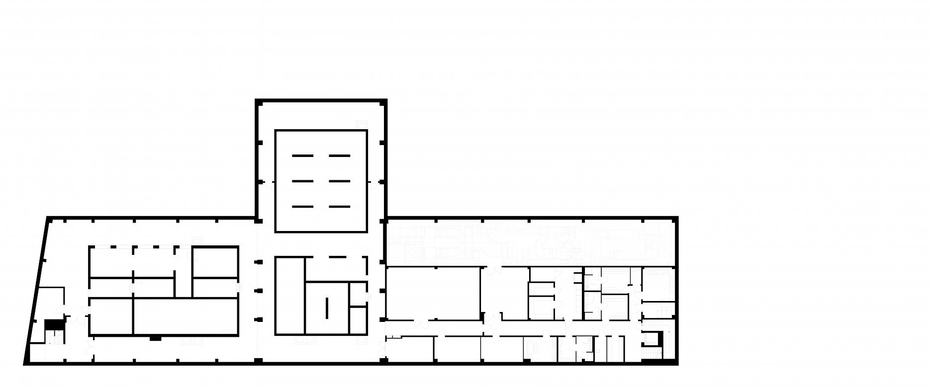
Areál “Aqua v parku Kyjov” vznikol modernizáciou vonkajšieho mestského kúpaliska a jeho rozšírením o novostavbu krytého plaveckého bazéna. História športovo-rekreačného areálu v jedenásťtisícovom juhomoravskom meste siaha do začiatku 20. storočia, kedy tu vznikli riečne kúpele. Komplex na rozhraní hustej urbánnej štruktúry a parku v centre Kyjova dnes obklopujú koruny storočných stromov.
Nedávno dokončená rekonštrukcia okrem prestavby vonkajších bazénov zahŕňa tiež výstavbu bazénovej haly, ktorá zabezpečuje celoročné športové a relaxačné vyžitie areálu v kontakte s parkom. Nový lineárny objekt plynie pozdĺž ulice Mezivodí. V rámci revitalizácie predpolia stavby, ktorým prechádza hlavná mestská pešia a cyklistická trasa, bola obnovená alej a doplnený mobiliár. Návštevníci bazéna aj okoloidúci si tak môžu v lete vychutnať kávu na jednej z vonkajších terás, prístupnej z centrálnej haly.
Krytý plavecký bazén z dĺžkou 25 metrov je voči pozdĺžnej osi objektu otočený o 90 stupňov. Kompozičné členenie objektu, vychádzajúce z jeho priestorovej logiky, zvýrazňuje materiálová skladba - obklad z tehlových pásikov a fasádny systém z profilovaných plechových šablón. Presklená fasáda kolmého traktu podporuje prepojenie bazénovej haly s vonkajším kúpaliskom.
Novostavba je rozdelená na tri hlavné celky - plavecký bazén, zážitkový bazén a wellness zónu. Hlavný plavecký bazén disponuje piatimi plaveckými dráhami. Návštěvníci akvaparku môžu využiť tiež zážitkový bazén s masážnymi tryskami, tobogán, vírivku, alebo detský bazén. Wellness zóna zastrešuje päť druhov sáun, ochladzovací bazénik, relaxačnú miestnosť… Na prízemí nájdeme tiež šatne, sprchy a prezliekárne pre letné vonkajšie kúpalisko a “aqua bar”.
Usporiadanie vonkajších bazénov zostalo z veľkej časti zachované. Do pôvodných betónových telies však pribudli nové antikorové vane. Päťdesiatmetrový vonkajší plavecký bazén s tromi dráhami dopĺňa menšia zážitková vodná plocha. Vonkajší bar s občerstvením situovali architekti v centre kúpaliska.
Objekt bazénovej haly stojí na vŕtaných pilótach s priemerom 600 mm. Vzhľadom na vysokú hladinu podzemnej vody tvorí spodnú stavbu monolitická biela vaňa z vodostavebného betónu Permacrete. Polia montovaného železobetónového skeletu nadzemnej časti vypĺňajú výmurovky. Kolmý trakt s plaveckým bazénom je opláštený CLT panelami s tepelnou izoláciou z minerálnej vlny. Pohľadovú vrstvu kontaktne zateplených stien na prízemí tvorí obklad z tehlových pásikov. Druhé poschodie má prevetrávanú fasádu s profilovaným plechom zlatej farby. Nad hydroizolačnou vrstvou strechy nájdeme pôdny substrát pre extenzívnu zeleň.
Autor: SENAA architekti
Podklady: Linka
Fotografie: BoysPlayNice