Na podujatí sa predstaví až 37 vystavovateľov - popredných dodávateľov stavebných materiálov a inovácií s prezentáciou...
Novotvar v prostredí alpskej obce.
Hansgrohe - prémiová značka kúpeľňových riešení, ponúka nadčasový dizajn, technickú precíznosť a udržateľné inovácie...
Využite špeciálnu akciu Internorm: okná za minuloročné ceny a hliníkový kryt úplne zadarmo. Ponuka je časovo obmedzená!
Sumarizácia najdôležitejších inovácií, ktoré redefinujúcich využitie tohto energetického zdroja.
AMPHIBIA 3000 GRIP 1.3 od spoločnosti ATRO predstavuje modernú hydroizolačnú technológiu, ktorá spája vysokú odolnosť,...
Ambiciózne plány EK narazili na ekonomické možnosti domácností v jednotlivých členských štátoch –...
IDEA DOOR od spoločnosti JAP prináša do interiéru čistý minimalistický vzhľad vďaka bezrámovému riešeniu a precíznej...
Kontinuita riešenia od vonkajšieho obkladu až po kovania a kľučky.
Nástenné nadomietkové armatúry Vitus sú mimoriadne vhodné pre rýchlu a efektívnu...
Okenné profily z kompozitného materiálu RAU-FIPRO X od spoločnosti Rehau sú v porovnaní s tradičnými plastovými profilmi mnohonásobne...
Najnovší sortiment stolov pre zariadenie interiérov...
Spojenie moderného dizajnu, funkčnosti a svetla do harmonického architektonického prvku.
Kancelárska budova Baumit v slovinskom Trzine prešla premenou na moderné a udržateľné pracovisko. Architekti kládli dôraz...
Mottom šiesteho ročníku on-line konferencie odborníkov Xella Dialóg je Efektívny návrh budov 2025+: zmeny a riešenia

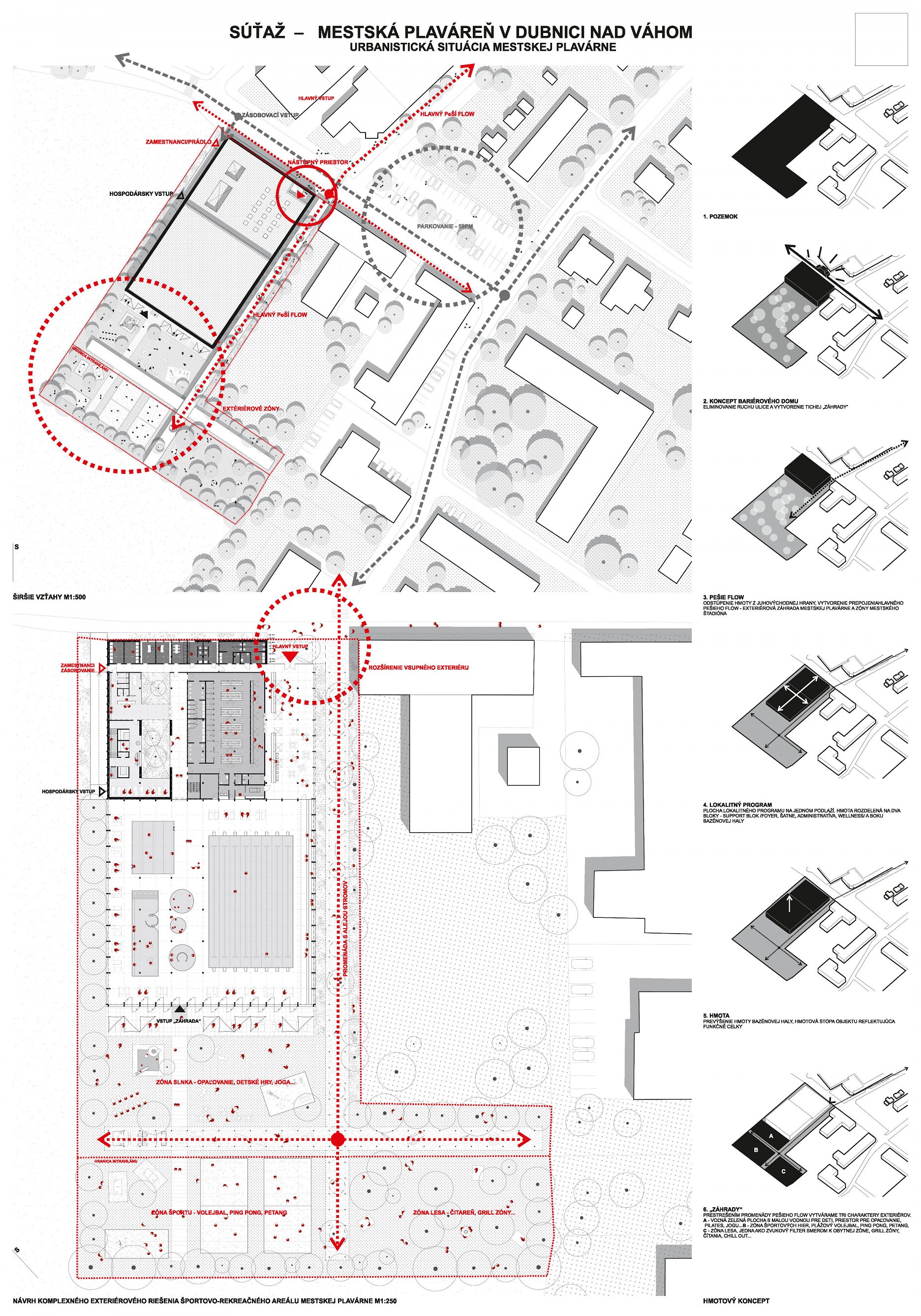
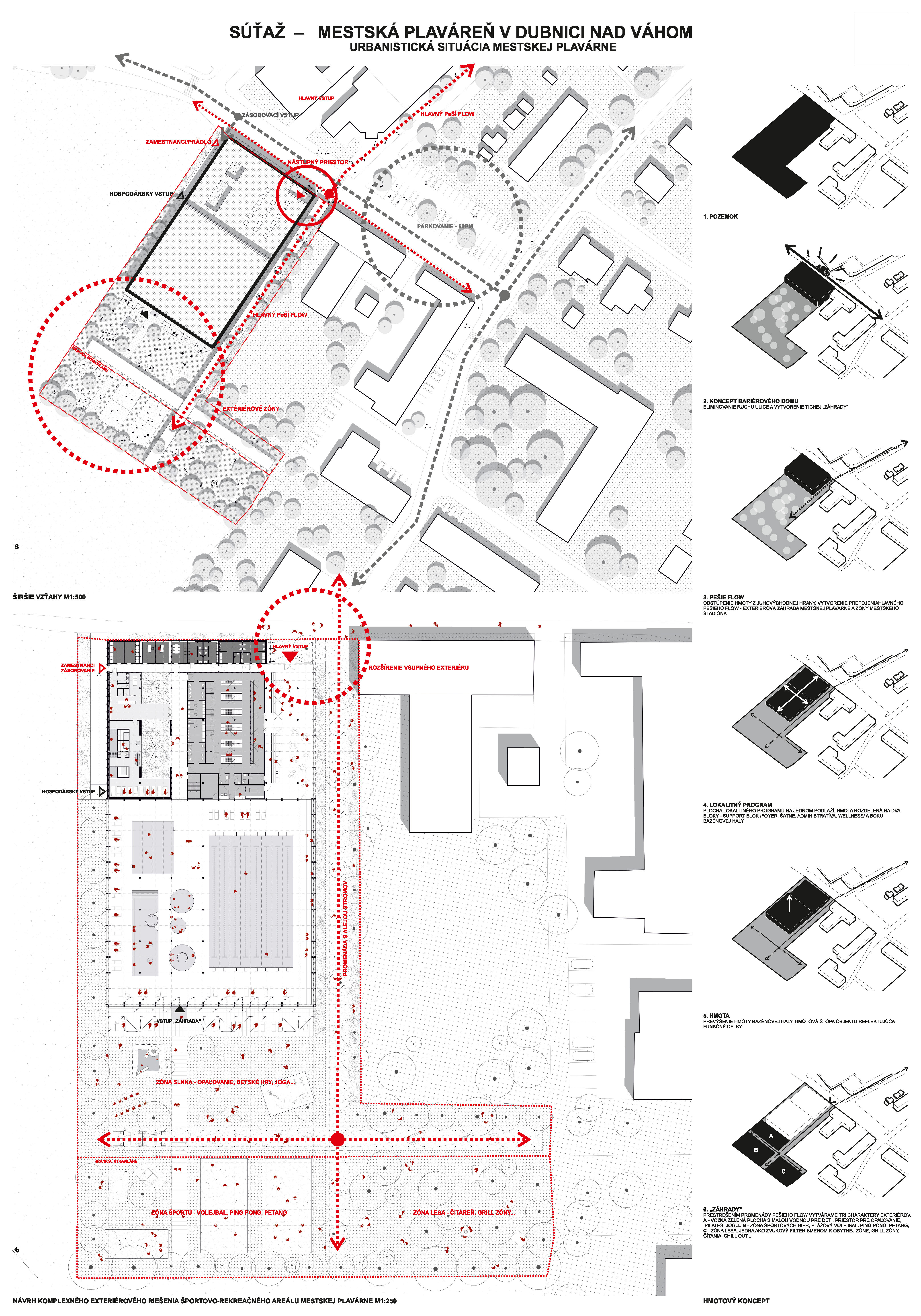
Dubnica nad Váhom, ako verejný obstarávateľ, vyhlásila v septembri súťaž, ktorej účelom bolo získať komplexné riešenie návrhu mestskej krytej plavárne. Nový plavecký areál má vyrásť na ploche bývalej mestskej práčovne, na Ulici športovcov, oproti Zimnému štadiónu. Zóna na hranici intravilánu mesta je súčasťou plôch určených na telovýchovu a šport. Do súťaže sa zapojilo 14 autorských kolektívov.
"Vysoko oceňujeme, že mesto Dubnica nad Váhom na túto tému vyhlásilo verejnú architektonickú súťaž. Relatívne vysoký počet návrhov je dokladom, že súťaž bola vzorne pripravená (súťažné podmienky a podklady) a že po podobnej súťaži v Novom Meste nad Váhom je to mimoriadne atraktívna téma. Súťaž mala v našich očiach vysokú odbornú úroveň a sme presvedčení, že realizáciou víťazného návrhu po jeho dopracovaní získa mesto ďalší kvalitný objekt do portfólia športových stavieb mesta. Vyšší počet ocenených a odmenených návrhov bol motivovaný faktom, aby najpodnetnejšie návrhy ostali vo vlastníctve vyhlasovateľa. Očakávame aj diskusiu verejnosti k výsledku súťaže a sme pripravení sa jej zúčastniť," hodnotí priebeh súťaže porota.
Sedemčlenná hodnotiaca v zložení: Anton Reitzner, Bohumil Kováč, Martin Beďatš, Ján Gustiňák, Jozef Králik, Patrícia Kvasnicová a Peter Marcinko rozhodla 9. decembra o výsledkoch nasledovne:
1. cena (15 000 €): návrh E
Autorský kolektív: Ing. arch. Peter Dunajovec, Ing. arch. Ivan Hodás, Ing. arch. Veronika Hodásová
Komentár poroty:
Víťazný súťažný návrh E v najväčšom rozsahu splnil súťažné podmienky a dáva najväčšie možnosti na dopracovanie podľa vyššie uvedených kritérií. Poskytuje najväčšiu variabilitu z hľadiska budúceho prevádzkovateľa, ponecháva mu veľkú mieru možností ako zareagovať na dopyt po nových atrakciách, na rozvojové aktivity i na požiadavky celoročného užívania areálu. Návrh správnym umiestnením hlavného vstupu reaguje na zámer možnosti ďalšieho rozšírenia územia smerom severozápadným.
Vzhľadom na účel súťaže určiť víťaza a vybrať súťažný návrh na ďalšie spodrobnenie formou štúdie, porota vyjadruje nasledovné hodnotenie návrhu a odporučenia na jeho dopracovanie:
2. cena (8 000 €): návrh B - Light4Sace s.r.o.
Autorský kolektív: Ing. arch. Igor Koválovský, Ing. arch. Anna Juhásová, Ing. arch. Ján Krchnavý, Bc. Patrik Čačala
Komentár poroty:
Návrh B postavil koncepciu riešenia na peknej myšlienke priameho vizuálneho kontaktu plaveckej haly a ulice, pričom hala je otvorená do troch strán. Naproti tomu vstup do areálu takto akcentovaný nie je a aj vstupná hala je poddimenzovaná. Za ideálne nemožno považovať umiestnenie hlavného vstupu s ohľadom na možnosti Ďalšieho rozvoja územia smerom na severozápad. Problematická môže byť obojsmerná prevádzka v dlhej chodbe od vstupu k šatniam, tiež vstupy zo šatní a hygienického filtra do bazéna by si zaslúžili veľkorysejšie proporcie. Úsporné riešenie prinieslo možnosť na ostatnej časti pozemku realizovať malé letné kúpalisko, ktoré môže byť v lete spojené aj s krytým bazénom. Návrh prináša možnosť etapizácie výstavby, čo je na jednej strane pragmatické, ale na strane druhej postup ďalšej výstavby môže pôsobiť rušivo, porota preto odporúča jednorazovú výstavbu.
3. cena (7 000 €): návrh N - Ing. arch. Peter Matúš ARCHITECTS + ENGINEERS
Autor: Ing. arch. Peter Matúš
Komentár poroty:
Návrh N priniesol otvorenie vstupnej haly plavárne do ulice, odsun stavebnej čiary umožnil autorom vytvoriť kvalitný nástupný priestor do plavárne. Poloha vstupu do šatní v rohu haly ale nie je vhodná, ponúka sa aj priamejšie riešenie. Prevádzková čiara mužov je od vstupu až do bazénu neprehľadná. Poloha vstupu do welness priamo z haly bazéna nie je vhodná. Tvarovanie zážitkového detského bazénu je príjemným spestrením racionálnej dispozície. Návrh naznačuje potrebu bezpečnostného priechodu cez ul. Športovcov, čo je významný odkaz pre mesto, spojiť problematiku plavárne aj s ulicou a náprotivným parkoviskom.
4. – 5. miesto ex aequo (odmena 1500 €): návrh A - vranka architekti s.r.o
Autor: Ing. arch. Radovan Vranka
Komentár poroty:
Veľkorysé riešenie, stĺpová ochodza je príjemným prvkom tienenia v letnej prevádzke, keď sa môžu otvoriť sklené steny a interiér haly s bazénmi sa prepojí s exteriérom. Návrh však nerešpektuje výhľadovú plochu športu a telovýchovy podľa územného plánu, keď sa k nej otáča chrbtom plnou stenou, čím súčasne stráca inak veľkorysá bazénová hala aj vizuálny kontakt na prírodnú scénu v okolí mesta. Riešenie zaberá v pozdĺžnom smere takmer celý disponibilný pozemok.
4. – 5. miesto ex aequo (odmena 1500 €): návrh F - ATOMstudio s.r.o.
Autorský kolektív: Ing. arch. Katarína Bergerová, Ing. arch. Martin Hudec, PhD.
Komentár poroty:
Návrh F Je dispozične príbuzný s návrhom A, otvára plavárenskú časť do troch smerov, čo porota oceňuje. Nedostatkom riešenia je „mŕtvy“ parter od ul. Športovcov, Hygienické priestory medzi šatňami a vstupom k bazénom sú poddimenzované.
6. miesto (odmena 1500 €): návrh G - young.s architekti, s.r.o.
Autorský kolektív: Ing. arch. Jozef Bátor, PhD., Ing. arch. Tomáš Medlen, Ing. arch. Michaela Perejdová, Lucia Višváderová
Komentár poroty:
Rriešenie do troch strán otvorenej plavárenskej haly je veľkorysé, ale predimenzované. Akcentácia vstupu do plavárne od ul. Športovcov je naopak nevýrazná, absentuje aktívny parter.
7.- 14. miesto ex aequo: návrh C - LABANC STUDIO s.r.o.
Autor: Mgr. art. Tomáš Labanc
Spoluautor: Ing. arch. Martin Boleš
Spolupráca: Ing. arch. Nadia Al Ailová, Bc. Marko Brkic, Bc. Karolina Bogusz, Ing. Peter Tegza, Ing. Vladimír Vagaský
7.- 14. miesto ex aequo: návrh D - OON Design s.r.o.
Autorský kolektív: Ing. arch. Igor Hradský, Ing. arch. Ladislav Balogh
7.- 14. miesto ex aequo: návrh H - DeRaxa s.r.o.
Autor: Ing. arch. Peter Rakšány
7.- 14. miesto ex aequo: návrh I
Autorský kolektív: Eva Hrivňékvá, Ing. arch. Tomáš Boroš, ArtD., doc. Ing. arch. Juraj Koban, PhD.
7.- 14. miesto ex aequo: návrh J - Architektonický atelíér o_blok
Autorský kolektív: Ing. arch. Maroš Miko, Ing. arch. Peter Albert, Ing. Tomáš Hošták, Ing. Alžbeta Beňadiková, Ing. Michaela Podešvová, Alena Miková
7.- 14. miesto ex aequo: návrh L
Autorský kolektív: Ing. arch. Michal Čičala, Ing. arch. Michal Matika
7.- 14. miesto ex aequo: návrh J - SILBERT+TALAŠ, spol. s.r.o
Autorský kolektív: Ing. arch. Matej Siebert, PhD., Ing. Ján Babic, Ing. Oskar Gaál, Ing. Tomáš Klásek, Ing. arch. Ivan Kulifaj, Ing. arch. Roman Talaš
7.- 14. miesto ex aequo: návrh M
Autor: Ing. arch. Matúš Pastorok
Zápisnica z hodnotiaceho rokovania poroty:
Hodnotenie návrhov:
Za podklady ďakujeme Vierke Šottníkovej.