Advertorial

Pozvánka na 2. ročník stavebného veľtrhu BigMarket na Slovensku

Na podujatí sa predstaví až 37 vystavovateľov - popredných dodávateľov stavebných materiálov a inovácií s prezentáciou...

Hotel Hirschen Spa House, Rakúsko

Novotvar v prostredí alpskej obce.

Vytvorte si kúpeľňu snov: dizajnové riešenie od značky hansgrohe

Hansgrohe - prémiová značka kúpeľňových riešení, ponúka nadčasový dizajn, technickú precíznosť a udržateľné inovácie...

Okná Internorm za minuloročné ceny + hliníkový kryt zdarma!

Využite špeciálnu akciu Internorm: okná za minuloročné ceny a hliníkový kryt úplne zadarmo. Ponuka je časovo obmedzená!

Moderné plynové technológie: Efektivita a inovácie pre 21. storočie

Sumarizácia najdôležitejších inovácií, ktoré redefinujúcich využitie tohto energetického zdroja.

Utesňovanie spodných stavieb pomocou hydro-aktívnej fólie AMPHIBIA.

AMPHIBIA 3000 GRIP 1.3 od spoločnosti ATRO predstavuje modernú hydroizolačnú technológiu, ktorá spája vysokú odolnosť,...

Dekarbonizácia individuálneho vykurovania domácností – Green Deal evolučne a nie revolučne

Ambiciózne plány EK narazili na ekonomické možnosti domácností v jednotlivých členských štátoch –...

Minimalistické dvere IDEA – technická precíznosť a čistota prevedenia

IDEA DOOR od spoločnosti JAP prináša do interiéru čistý minimalistický vzhľad vďaka bezrámovému riešeniu a precíznej...

Dom s výhľadom na údolie, Dlouhý Most (ČR)

Kontinuita riešenia od vonkajšieho obkladu až po kovania a kľučky.

Schell Vitus – osvedčené riešenie pre sprchy a umývadlá vo verejnom sektore s viac ako desaťročnou tradíciou

Nástenné nadomietkové armatúry Vitus sú mimoriadne vhodné pre rýchlu a efektívnu...

Kompozitné okná predstavujú súčasnosť a budúcnosť

Okenné profily z kompozitného materiálu RAU-FIPRO X od spoločnosti Rehau sú v porovnaní s tradičnými plastovými profilmi mnohonásobne...

Myotis - stoly 2025

Najnovší sortiment stolov pre zariadenie interiérov...

Priemyselné sklenené priečky Dorsis Digero: svetelné rozhranie pre moderné interiéry

Spojenie moderného dizajnu, funkčnosti a svetla do harmonického architektonického prvku.

Význam prirodzeného svetla pre moderné a flexibilné pracovné prostredie

Kancelárska budova Baumit v slovinskom Trzine prešla premenou na moderné a udržateľné pracovisko. Architekti kládli dôraz...

Konferencia Xella Dialóg predstaví novinky a trendy v stavebníctve

Mottom šiesteho ročníku on-line konferencie odborníkov Xella Dialóg je Efektívny návrh budov 2025+: zmeny a riešenia

Areál Café fara v Klentnici na južnej Morave

V juhomoravskej dedinke na úpätí Pavlovských vrchov vznikol na mieste bývalej barokovej fary a farského dvora areál kaviarne. Aj keď má obec iba 560 obyvateľov, miesto sa ukázlo ako vyhľadávané a životaschopné. Kaviareň sa dokonca dostala medzi desať najlepších v republike podľa rebríčka Hospodářských novin.
Diela
Red 317.07.2016
32240+14
Areál Café fara v Klentnici na južnej Morave
Autori: Ing. arch. Marek ŠtěpánInvestor: Krásná Pálava s.r.o.Podlažná plocha: 80 m2 (kaviareň)Návrh: 2008 - 2011Realizácia: 2009 - 2015Adresa: Klentnice 166, Klentnice, Česká republikaPublikované: 17. júl 2016

Café fara vznikla tak nějak organicky v průběhu pěti let. Prvotní záměr bylo vytvořit malou kavárnu, o kterou by se staral čerstvý děda. Chodili by do ní lidi ze sousedství a měla by takovou domácí, klidnou atmosféru. Nedlouho  po otevření (na sv. Jiří 2009) bylo jasné, že zájem návštěvníků je veliký, že nejsou pouze ze sousedství a že se na něj bude muset zareagovat. Tak začal příběh tohoto intimního areálu.

Foto: Štěpán Vrzala

Nyní se věhlasný areál skládá z několika budov kolem podlouhlého dvora s ořechem – barokní fary, dřevěné stodoly, staré školy, sally terreny se sklepem a oranžerie (ta ještě není postavena), na ně navazuje zahrada. To vše je samozřejmě pod kompoziční ochranou kostela sv. Jiří. Všechny domy mají skoro totožnou obdélnou půdorysnou stopu. Vznikla areál vyhledávaný, pro svou atmosféru a sladké nicnedělání.

Situácia
SituáciaAtelier Štěpán
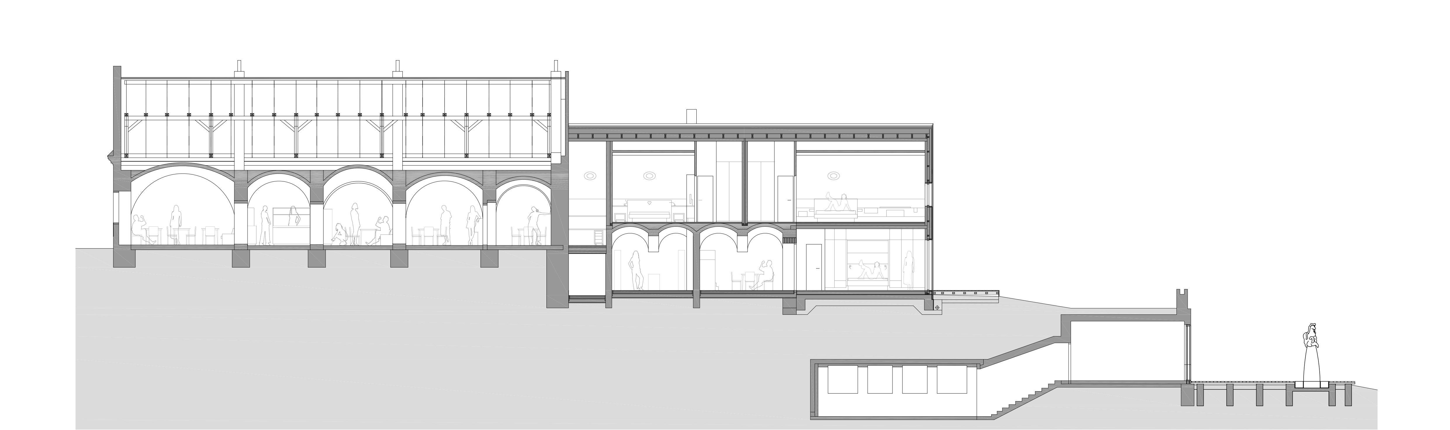
Pozdĺžny rez
Pozdĺžny rezAtelier Štěpán
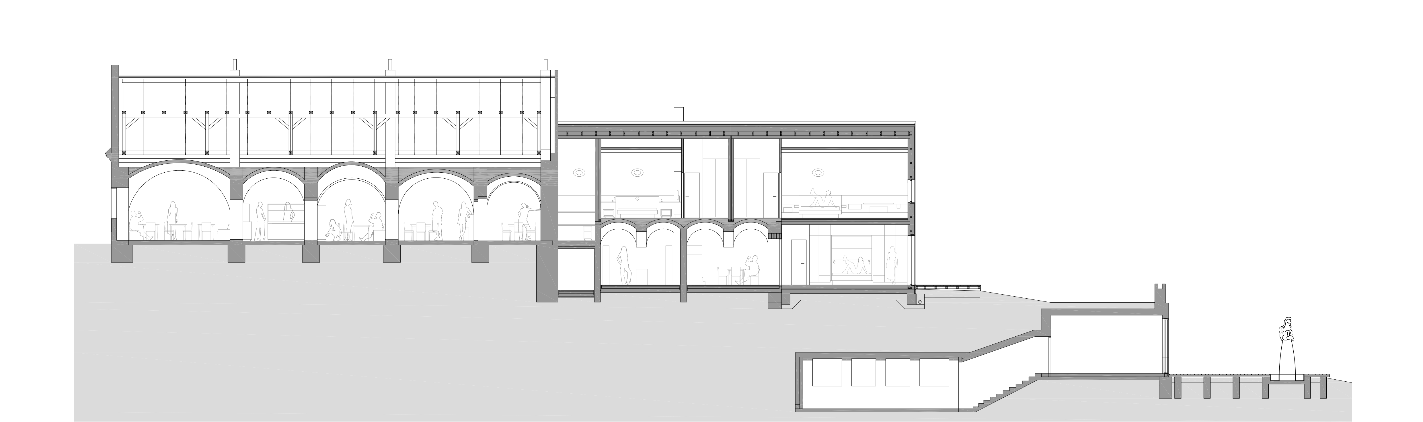
Priečny rez
Priečny rezAtelier Štěpán

Fara - kavárna

Budova fary je pozdně barokní, z období vlády Josefa II. Je postavená jako čistě funkční komorní objekt pro nově myšlenou roli faráře – úředníka, jíž císař řešil správu země. Objekt je podlouhlý, přízemní, postavený kolmo ke komunikaci. Je  zastřešen sedlovou střechou,štít do ulice je střízlivě zdobný. Má velmi symbiotické postavení vzhledem ke kostelu, který stojí rovnoběžně s ní ve vzdálenosti 3 m. Na fasádě ke kostelu je v 50-tých letech provedené sgrafito  s tématem Dobrého pastýře se stádem ovcí. Pikantní na něm je podoba pastýře, který je v duchu 50-tých let  podobný soudruhu Gottwaldovi, byť je autorkou řádová sestra.

Foto: Štěpán Vrzala

Nová náplň budovy je úplně jiná než původní – namísto obydlí, kanceláře a zázemí faráře je to kavárna se zázemím. Zajímavé je, že původní dispozice s enfiládou průchozích místností neomylně funguje i v novém provozu. Vlastní dispozice je rozdělena malou vstupní halou, nalevo je farní salón – kavárna a bar, napravo etnografický salón a jizba s názvem Cofeespirit. Původní úzká (90cm) zásobovací chodba byla rozparcelována na nutné potřebné zázemí (wc muži, ženy, zaměstnanci, sklad a šatna).

Fara je opravena důsledně historickým způsobem. Byly zde opravena původní fasáda a zrepasovány původní výmalby, podlahy a výplně otvorů. Zařízení je navrženo rovněž v tomto duchu, nenásilně, zčásti autorsky navržené, zčásti vybrané od starožitníků a vetešníků. Cílem bylo vytvořit autentické prostředí. Byly použity litinové radiátory, litinové umývátka na ruce ne toaletách, wc klozet s keramickou horní splachovací nádržkou byl dovezen až z Anglie, kde se dodnes tyto starší typy vyrábějí. Dále zde jsou klasické kavárenské stoly, ořechové lavice a židle, bar s mramorovou deskou, empírový typ kachlových kamen apod. Celá projektová příprava a realizace byla velmi intenzivní (celkem 6 měsíců).

Pôdorys fary
Pôdorys faryAtelier Štěpán

Stodola - penzion

Dřevěný penzion je  postaven na místě původních chlívků a právě jejich hospodářská funkce byla inspirací autorovi stavby. Novostavba je totiž malou abstraktně  stylizovanou stodolou. Tvar budovy je pro tuto  oblast typický až archetypální – podélný dům se sedlovou střechou, její velikost  respektuje okolní měřítko historické architektury a  její forma je abstraktní. Svým detailem je stavba v kontrastu k historickému prostředí, vertikální modřínové latě fasády vytváří poetické pozadí pro vržené stíny ořechu na dvoře i představy návštěvníků. Budova má unikátní nosnou konstrukci z masivních křížem lepených dřevěných panelů, která zůstává v interiéru odhalená. Vnitřek je celodřevěný s použitím dvou druhů dřeva – smrk a dub. Uvnitř stodola skrývá levandulový, meruňkový, mandlový a farní apartmány.

Foto: Štěpán Vrzala

Stará škola

Stará škola byla před rekonstrukci v dezolátním stavu. Tato budova byla opravena a prodloužena. Zde našel areál větší zázemí včetně kuchyně. Je zde rovněž knihovna a apartmány školní, ořechový, rajský, kabinet a klenotnické Madony. V apartmánech jsou použity hliněné omítky a samozřejmě dřevo. Nejoblíbenějšími se stal apartmán rajský (inspirovaný rájem, ne rajčaty), který je celý bílý a apartmán klenotnické madony, který má romantickou ložnici s baldachýnem.

Foto: Štěpán Vrzala

Salla terrena

Do starých sklepních prostor se vchází klenutou salou terenou. Salla terena je na terénním zlomu mezi farním dvorem a zahradou a má vlastně pouze jednu fasádu s velkými obloukovými okny orientovanými na východ do zahrady. Před ní je dřevěná terasa s jezdeckou sochou sv. Jiří provedenou René Vlasákem z vápence.  K zajímavostem jistě patří i to, že na zahradě je umístěna kopie gotické sochy Madony, která se na zdejší faře našla.

Foto: Štěpán Vrzala
Foto: Štěpán Vrzala
Foto: Štěpán Vrzala
Foto: Štěpán Vrzala
Foto: Štěpán Vrzala
Foto: Štěpán Vrzala
Foto: Štěpán Vrzala
Foto: Štěpán Vrzala
Foto: Štěpán Vrzala
Foto: Štěpán Vrzala
Foto: Štěpán Vrzala
Foto: Štěpán Vrzala
Foto: Štěpán Vrzala
Foto: Štěpán Vrzala
Foto: Štěpán Vrzala
Foto: Štěpán Vrzala
Foto: Štěpán Vrzala
Fotografia areálu fary pred rekonštrukciou
Fotografia areálu fary pred rekonštrukciou

Poloha diela

Ing. arch. Marek Štěpán

Súvisiace články

Vložené
7. júl 2016
0
3224
Hlavný obsahHlavný obsah
Čakajte prosím