Advertorial

Okná Internorm za minuloročné ceny + hliníkový kryt zdarma!

Využite špeciálnu akciu Internorm: okná za minuloročné ceny a hliníkový kryt úplne zadarmo. Ponuka je časovo obmedzená!

Pozvánka na 2. ročník stavebného veľtrhu BigMarket na Slovensku

Na podujatí sa predstaví až 37 vystavovateľov - popredných dodávateľov stavebných materiálov a inovácií s prezentáciou...

Moderné plynové technológie: Efektivita a inovácie pre 21. storočie

Sumarizácia najdôležitejších inovácií, ktoré redefinujúcich využitie tohto energetického zdroja.

Utesňovanie spodných stavieb pomocou hydro-aktívnej fólie AMPHIBIA.

AMPHIBIA 3000 GRIP 1.3 od spoločnosti ATRO predstavuje modernú hydroizolačnú technológiu, ktorá spája vysokú odolnosť,...

Dekarbonizácia individuálneho vykurovania domácností – Green Deal evolučne a nie revolučne

Ambiciózne plány EK narazili na ekonomické možnosti domácností v jednotlivých členských štátoch –...

Minimalistické dvere IDEA – technická precíznosť a čistota prevedenia

IDEA DOOR od spoločnosti JAP prináša do interiéru čistý minimalistický vzhľad vďaka bezrámovému riešeniu a precíznej...

Dom s výhľadom na údolie, Dlouhý Most (ČR)

Kontinuita riešenia od vonkajšieho obkladu až po kovania a kľučky.

Schell Vitus – osvedčené riešenie pre sprchy a umývadlá vo verejnom sektore s viac ako desaťročnou tradíciou

Nástenné nadomietkové armatúry Vitus sú mimoriadne vhodné pre rýchlu a efektívnu...

Kompozitné okná predstavujú súčasnosť a budúcnosť

Okenné profily z kompozitného materiálu RAU-FIPRO X od spoločnosti Rehau sú v porovnaní s tradičnými plastovými profilmi mnohonásobne...

Myotis - stoly 2025

Najnovší sortiment stolov pre zariadenie interiérov...

Priemyselné sklenené priečky Dorsis Digero: svetelné rozhranie pre moderné interiéry

Spojenie moderného dizajnu, funkčnosti a svetla do harmonického architektonického prvku.

Význam prirodzeného svetla pre moderné a flexibilné pracovné prostredie

Kancelárska budova Baumit v slovinskom Trzine prešla premenou na moderné a udržateľné pracovisko. Architekti kládli dôraz...

Konferencia Xella Dialóg predstaví novinky a trendy v stavebníctve

Mottom šiesteho ročníku on-line konferencie odborníkov Xella Dialóg je Efektívny návrh budov 2025+: zmeny a riešenia

Murovací robot WLTR stavia svoj prvý dom na Slovensku

Robot WLTR predstavuje moderný prístup k murovaným konštrukciám. Vďaka automatizácii dokáže rýchlo, presne a bezpečne realizovať...

Nová éra bezpečnosti s I-tec Secure od Internorm

Okrem bezpečnosti majú okná aj elegantný vzhľad, pretože nie sú viditeľné žiadne uzamykacie časti kovania.

Bývanie vyššieho štandardu na ulici Na Zatlance v Prahe - diplomová práca

Predstavujeme vám víťazný projekt 16. ročníka prehliadky diplomových prác, ktorú organizuje Česká komora architektov. Prvú cenu získala absolventka Fakulty architektúry ČVUT v Prahe Eva Rosenová za projekt Bývanie vyššieho štandardu na ulici Na Zatlance v Prahe. Projekt predstavujeme slovami autorky,
Diela
Red 316.10.2015
11090+4
Bývanie vyššieho štandardu na ulici Na Zatlance v Prahe - diplomová práca
Autori: Ing. arch, Eva RosenováPodlažná plocha: 11420 m2Návrh: 2014 - 2015Adresa: Na Zatlance , Praha, Česká republikaPublikované: 16. október 2015

Pod kopcem Mrázovka, na rozhraní města a parku, na rohu ulic Na Zatlance a Ostrovského se nachází naše parcela. Její nárožní část je orientována jižně na křižovatku přiléhajících ulic a severně se otvírá do parku Mrázovka. K parcele patří i část ležící na úpatí parku, limitem je však biokoridor ÚSES definující tak možnou zastavitelnou plochu. Pozemek lemuje hranu parku Mrázovka a dotvaří tak jeho zastavěné území. Parcela se nachází nad vysokou zdí v ulici Na Zatlance, která zadržuje sestupující svah a na západní straně je uzavřena novou zástavbou. Výškový rozdíl na pozemku jsou necelé tři metry v jeho zastavitelné části, v horní části parcely je rozdíl 25 metrů.

Poloha parcely v rámci Prahy
Poloha parcely v rámci Prahy© Ing. arh. Eva Rosenová
Poloha parcely v rámci štvrti Smíchov
Poloha parcely v rámci štvrti Smíchov © Ing. arh. Eva Rosenová
Parcela a bližšie vztahy
Parcela a bližšie vztahy© Ing. arh. Eva Rosenová

V docházkové vzdálenosti se nachází centrum Smíchova, rozprostírající se okolo historické křižovatky U Zlatého Anděla, nyní stanice metra Anděl a nákupního centra Nový Smíchov. V blízkosti je proto zajištěna vysoká nabídka občanských ( škola, školka, zdravotní zařízení) i sekundárních služeb ( nákupní centrum, různá řemesla ). V budoucnosti by měl být uskutečněn projekt přestavby Smíchovského nádraží, v plánu je návrh čtvrti obsahující bydlení i komerci. Parcela přímo navazuje na park Mrázovka se sportovním zázemím a dětskými hřišti.

Historický rast Smíchova
Historický rast Smíchova© Ing. arh. Eva Rosenová

Parcela je také velmi dobře dopravně dostupná městskou hromadnou dopravou, v blízkosti je stanice metra Anděl-Na Knížecí a zastávka autobusu. Výhodou je i rychlé napojení na Městský okruh a výjezd z Prahy a na letiště.

Smíchov a jeho pocitové rozdelenie
Smíchov a jeho pocitové rozdelenie© Ing. arh. Eva Rosenová

Z mého pohledu se jedná o velmi hodnotnou parcelu, která svým vyjímečným umístěním může nabídnout kvalitní bydlení vyšší kategorie, které bude svou specifičností, kvalitou návrhu a provedení odpovídat poptávce v dané lokalitě. Návrh vznikal za předpokladu platnosti nových Pražských stavebních předpisů. Jelikož se nachází v blokové zástavbě vedly by dle mého názoru požadavky na splnění starých Obecně technických předpisů k nevhodnému urbanistickému řešení.

Historické mapy z 19. storočia
Historické mapy z 19. storočia© Ing. arh. Eva Rosenová

První zmínky o osídlení budoucí pražské čtvrti Smíchov pocházejí ze 13. století. První kláštery byly založeny o století později, kdy byly pozemky rozděleny mezi církevní instituce cisterciáků a kartuziánů. Za vlády Karla IV. byl Smíchov rozparcelován a přicházejí noví obyvatelé a dochází ke “smíchání” obyvatel. Teprve kolem 16. století vznikají první měšťanská sídla, která však byla po 30-ti leté válce částečně srovnána se zemí.

Historické mapy 1/2. pol 20. storočia
Historické mapy 1/2. pol 20. storočia© Ing. arh. Eva Rosenová

Díky výhodné poloze v blízkosti Prahy zde začala šlechta zakládat svá sídla, letohrádky, viniční usedlosti a parky. Během 18. století zde vznikaly manufaktury na porcelán a textil, kartounka, později i strojírenský průmysl. Smíchovu se říkalo Stokomínový Manchester. Průmyslový ráz zůstal Smíchovu až do 80. let 20.století, kdy sem bylo zavedeno metro a ním příslušná infrastruktura služeb.

Historické mapy 1/2. 20. storočia
Historické mapy 1/2. 20. storočia© Ing. arh. Eva Rosenová

Průmysl Na Smíchově je stále patrná jeho průmyslová historie a stavby s ní související. Jedná se nejen o bývalé a současné tovární haly nebo menší podniky, ale i o domy, které byly později postaveny jako odpověď na potřeby obyvatelstva. Přímo v ulici Na Zatlance se dříve nacházely cihelny a v kopcích nad ní, v parku Mrázovka, dělnická kolonie cihlářů. Cihelny a s nimi spojený svět měly špatnou pověst, jednalo se drsnu práci, kterou vykonávala nejnižší vrstva. “Obzvláště vůkol Košíře máme roztroušené cihelny, ve kterých jest skoro polodivoký proletariát, který je nebezpečný každému slušnému člověku.” (Obzor,1898) 

Obraz domu - hranica mesto a park
Obraz domu - hranica mesto a park© Ing. arh. Eva Rosenová

Kontrast k tomuto obrázku Smíchova z 19.stol jsou vily a letohrádky, které rostly ve svazích obklopující údolí Smíchova. Původně barokní hospodářské dvory s vinicemi a loukami, idylicky nazývané libosady, se v průběhu času přeměnily na honosnější letohrádky s parky. Koncem 18. století vznikají další umělecky řešené zahrady ( např. Santoška, Zahrada Kinských). Dotváří tak charakter smíchovské krajiny. Práce a ruch města zůstal v kotlinách a bydlení se rozrůstalo na okolní svahy.

Panoráma pozemku
Panoráma pozemku© Ing. arh. Eva Rosenová

“Máť Smíchov, ze všech předměstí pražských má nejkrásnější okolí, rozmanité půvabnými úvaly, malebnými vrchy i dolíky a starými samotami s pěknými zahradami.”

Okolité priestory
Okolité priestory© Ing. arh. Eva Rosenová

Z celkové atmosféry Smíchova je stále zřejmá jeho původní průmyslová historie, ale vnímáme i vznešenost a dekorativnost činžovních domů a parků s letohrádky, které údolí obklopují. Tyto dvě nálady Smíchova jsou pro mne silným prvekm jeho charakteru.

Okolitá zástavba
Okolitá zástavba© Ing. arh. Eva Rosenová

Z celkové atmosféry současného Smíchova je stále zřejmá jeho původní průmyslová historie, vnímáme ale i vznešenost a honosnost činžovních domů a parků s letohrádky, které údolí obklopují. Tyto dvě nálady Smíchova jsou pro mne silným prvkem jeho charakteru. Výraz domu vychází právě ze spojení přetrvávající drsnosti čtvrti a noblesy okolních domů.

Charakteristika pozemku
Charakteristika pozemku© Ing. arh. Eva Rosenová

Pozemek na rohu ulice Ostrovského a Na Zatlance se vždy v průběhu své historie nacházel na pomezí města a parku, a tento balanc si udržel i do své současnosti. V návrhu jsem se rozhodla jeho ambivalentnost ponechat a nabídnout propojení dvou rozdílných atmosfér. Udržet tu část, která se chce stát městem, městskou a tu, která se obrací ke kopci parkovou. Zahrada působí kontrastně k městskosti, kterou nabízí okolní ulice. V opačném případě působí okolní domy jako fragmenty města při pohledu zevnitř.

Schéma blokov v okolí
Schéma blokov v okolí© Ing. arh. Eva Rosenová

Tichá přítomnost města, ne jeho odtržení, se staly jedním z prvků návrhu.

Schwarzplan
Schwarzplan© Ing. arh. Eva Rosenová

Návrh fasády tak reaguje na přísné domy z 30. let 20. století a pro Smíchov typické domy postavané v novostylu. Dekorativní i funkční prvek zábradlí, který domy zkrášloval a odlišoval jeden od druhého jsem až banálně reprodukovala ve svém návrhu. Vybrala jsem nejtypičtější dekorované zabradlí, které je vnímáno jako symbol vznešenosti a buržoazie. Balancování mezi banalitou až kýčem a kvalitním prvkem dekoru jsem se pokusila vyvážit tvrdší hrubou fasádou z betonové omítky a přesným usazením hmot.

Analýza bloku
Analýza bloku© Ing. arh. Eva Rosenová

Blok je rozčleněn na čtyři domy, které si směrem do ulice udržují přísnější rovnější linku a naopak zahradní strana domů je uvolněnější, s balkóny a měkkou plynoucí linkou, která dvůr obepisuje a otevírá do parku. Uliční část vnímáme jako pevnou linii, ale já si dovoluji ponechat propustnost mezi jednotlivými domy. Parcela je orientována převážně severním směrem do parku, proto je blok načleněn a tím je dvůr lépe osluněn a provětrán. Nárožní část parcely reaguje na místní podmínky a vyzdvihuje specifičnost místa. Tím, že je ponecháno volné, dává prostor staré lípě, čímž je zachován motiv vstupu a vytváří tak hodnotný vstupní předprostor. Reakce na specifické podmínky najdeme i v okolí parcely, zástavba není tvořena přesnými bloky, které známe z Vinohrad, ale ponechává si uvolněnější charakter. Neuzavřený blok, úskoky jako reakce na terén, douzavření bloku zdí, vyhnutí se stromu, předprostor se vstupy do domu, to jsou některé příklady, které se objevují v okolí. Inspirací jsou i okolní narožní domy, které svými vznešenými rohy vytváří noblesu, ta se odráží na atmosféře domu, dům na který budu hrdý a budu rád, že bydlím práve zde.

Situácia
Situácia© Ing. arh. Eva Rosenová
Návrh
Návrh© Ing. arh. Eva Rosenová
Zákres
Zákres© Ing. arh. Eva Rosenová

Společeným vstupem je náměstíčko s brankou odkud se každý přes dvůr a zahradu vydá ke svému domu. V pozadí vidí část zahrady ve svahu s altánkem nabízející možnost pro trávení osamělých či naopak společných chvil. Cestou mineme společenskou místnost umístěnou v blízkosti náměstíčka, soukromé zahrádky přízemních bytů a vstoupíme do osvětleného prostoru schodiště. Pokud bychom pokračovali dvorem dál přijdeme k prostoru s dětským hřištěm. Svažitá část pozemku bude upravena zídkami a posezeními, tak aby mohla sloužit k volnočasovým aktivitám obyvatelů. Protože je z horní části výborný výhled, navrhuji zde altánek, který symbolicky uzavírá celý dvůr a slouží jako místo k zastavení, grilování, společenským událostem.

Pohled z rohu U Santošky
Pohled z rohu U Santošky© Ing. arh. Eva Rosenová
Pohled z dvora
Pohled z dvora© Ing. arh. Eva Rosenová
Z ulice Ostrovského
Z ulice Ostrovského © Ing. arh. Eva Rosenová
z ulice Na Zatlance
z ulice Na Zatlance© Ing. arh. Eva Rosenová
Lego domu
Lego domu© Ing. arh. Eva Rosenová
Princíp bytov
Princíp bytov© Ing. arh. Eva Rosenová

V přízemních patrech na úrovni ulice Ostrovského se nachází pronajímatelné prostory. Podzemní garáže jsou umístěny přímo pod domy a jsou napojeny na komunikační jádra, spolu se sklepy pro jednotlivé domy zabírají dvě podzemní podlaží. Spojené jsou polorampami, které vyvažují svažitý terén. Příjezd je z ulice Na Zatlance, kde jsou také umístěny vchody do prvního podzemního patra domu D. Vchody jsou navrženy jako převýšené prostory s vrchním osvětlením.
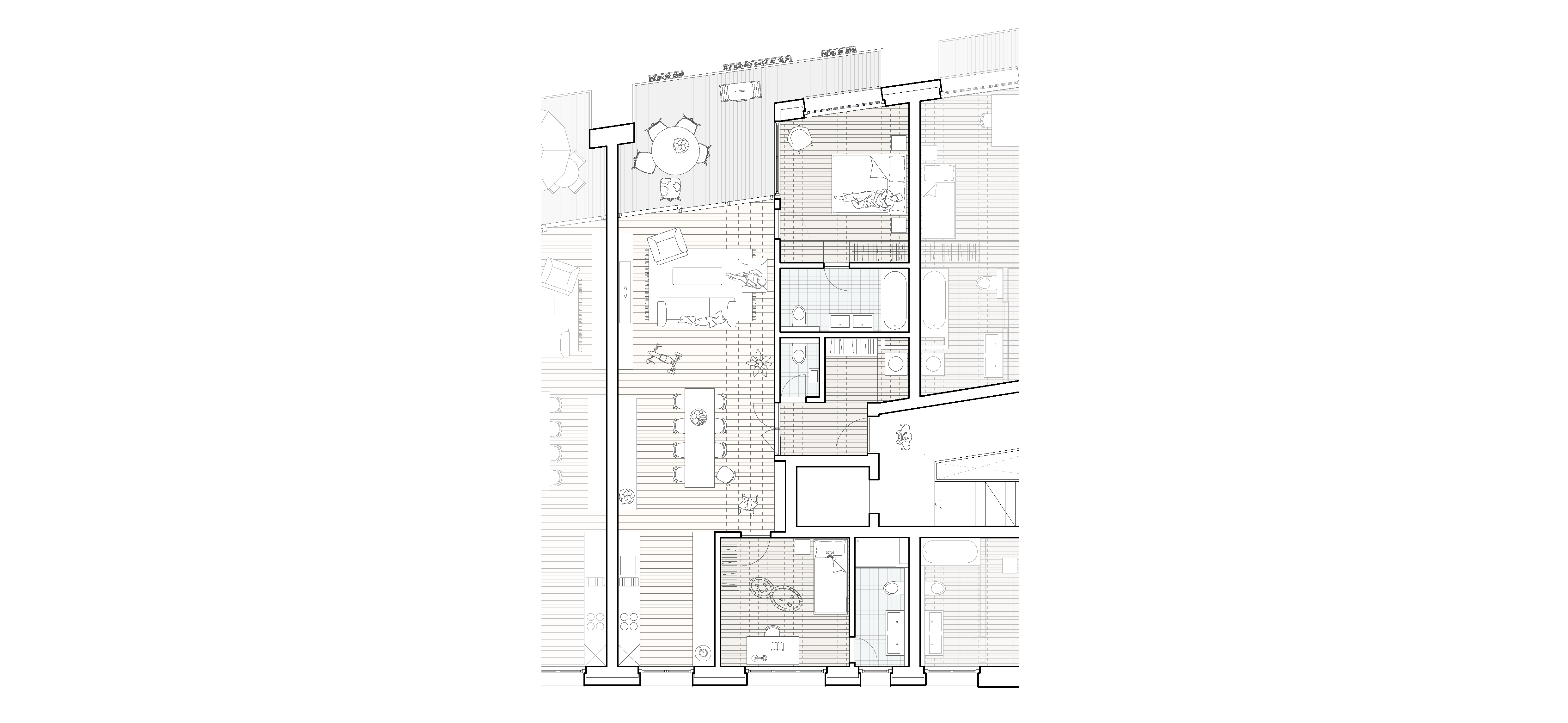
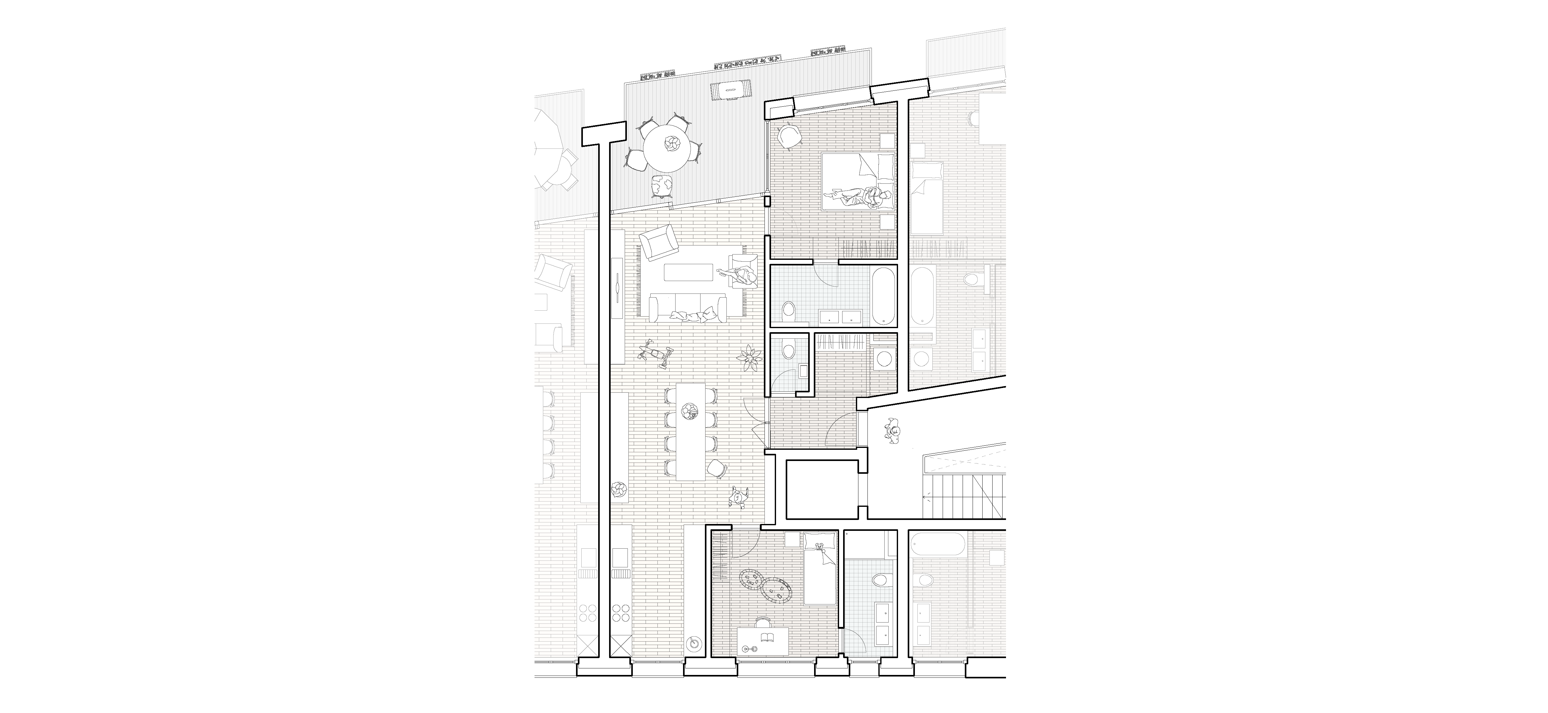
Byty

Vstupné poschodie / 1.nadzemé podlažie
Vstupné poschodie / 1.nadzemé podlažie © Ing. arh. Eva Rosenová

Propustnot obou světů, je přenesena i do vnitřních dispozic. Princip bytu je založen na průhledech obytným prostorem, pokud vstoupíme do nárožního bytu uvědomíme si jeho vícestranné proslunění a hned od vstupu můžeme diagonalně zamířit do hlavní obytné místnosti. Základním aspektem příčných bytů je jejich jendoduchá linka průhledu města a zahrady a jejich západovýchodní orientace nám prosvětluje byt po celý den. Společným prvkem je obytná místnost s velkým jídelním stolem a lodžií, kterou objímá věnec dalších pokojů. Výška domů je odpovědí na situaci ve svém okolí, spolu se snahou o vvysokou kvalita bydlení, kterou nabízí velké i malé střešní byty. Byty jsou navrženy od malých, pro mladé páry či zcestovalé jednotlivce, střední pro rodiny s dětmi, ale i prostorné pro větší rodiny nebo lidi neváhající obydlet zajímavý prostor a ocenit jeho kvality. Flexibilita dispozic je umožněna spojováním menších nárožních bytů, jak v ploše jednoho patra, tak vertikálně počítající s návrhem mezonetů.

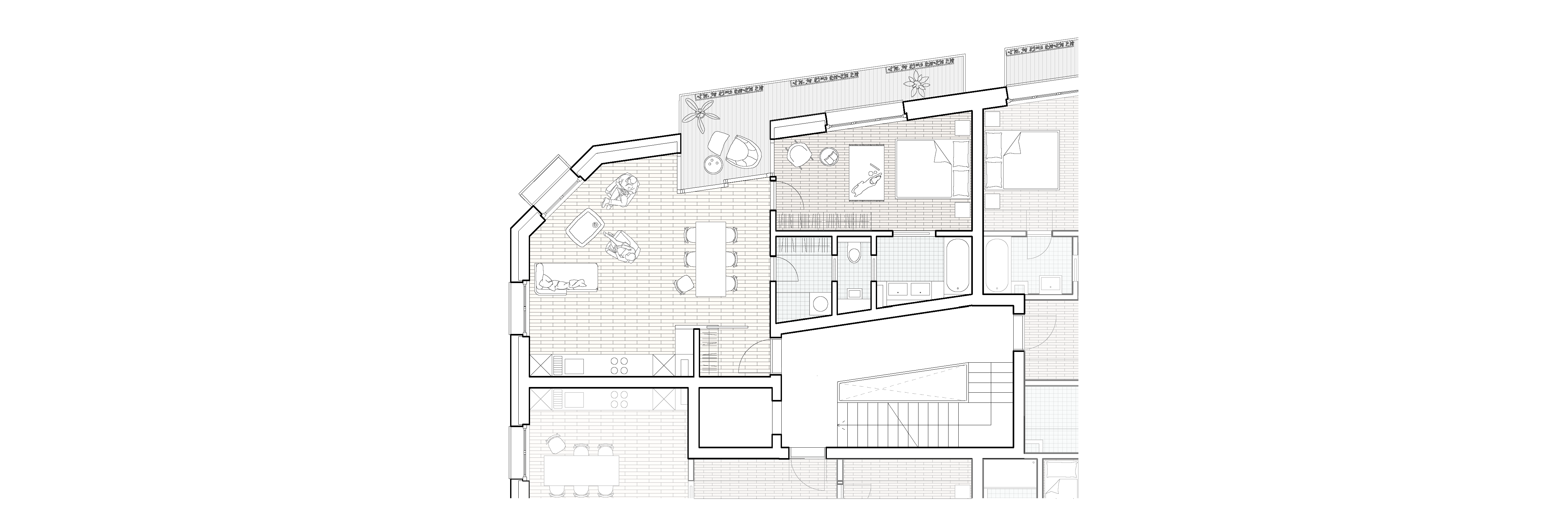
2.nadzemné podlažie
2.nadzemné podlažie© Ing. arh. Eva Rosenová
3.nadzemné podlažie
3.nadzemné podlažie© Ing. arh. Eva Rosenová
4.nadzemné podlažie
4.nadzemné podlažie© Ing. arh. Eva Rosenová
5.nadzemné podlažie
5.nadzemné podlažie© Ing. arh. Eva Rosenová
6.nadzemné podlažie
6.nadzemné podlažie© Ing. arh. Eva Rosenová
1.podzemné podlažie
1.podzemné podlažie© Ing. arh. Eva Rosenová
2.podzemné podlažie
2.podzemné podlažie© Ing. arh. Eva Rosenová
Pohľad z ulice Na Zatlance
Pohľad z ulice Na Zatlance© Ing. arh. Eva Rosenová
Pohľad z ulice Ostrovského
Pohľad z ulice Ostrovského © Ing. arh. Eva Rosenová
Rez A-A’
Rez A-A’ © Ing. arh. Eva Rosenová
Rez B-B’
Rez B-B’ © Ing. arh. Eva Rosenová
Rez C-C’
Rez C-C’ © Ing. arh. Eva Rosenová

Z hlediska konstrukce jsou objekty navrženy jako vyzdívaný železobetonový monolit. Sloupový nosný systém garáží, vycházející z modulu parkovacího stání – 2.70 m, je dimenzován na rozpony 5,4 m respektive 8,1 m. V úrovni vnitrobloku – v prvním bytovém patře přechází sloupový systém do příčného stěnového nosného systému. Obvodové (nosné) stěny tloušťky 0,5 m jsou vyzděny termoizolačními tvárnicemi Porotherm a zatepleny minerálními deskami. Vnější povrchovou úpravu fasády tvoří na hrubo proškrábávaná šedivá betonová omítka. Typické horizontální římsy a šambrány okolo okeních otvorů jsou navrženy jako opakující se betonové prefabrikáty. Předstupující balkóny jsou z hlediska konstrukce a tepelných mostů řešeny pomocí systému Schöck IsoKorb. Okení rámy jsou dřevěné (dub), ošetřeny přírodním bezbarvým lakem. Dekorativní zábradlí je navrženo jako kovový zámečnický výrobek

Rez fasádou do dvora
Rez fasádou do dvora© Ing. arh. Eva Rosenová
Rez fasádou do ulice
Rez fasádou do ulice © Ing. arh. Eva Rosenová
Priečný byt  3+1 dom A / D
Priečný byt 3+1 dom A / D © Ing. arh. Eva Rosenová
Nárožný byt  4kk
Nárožný byt 4kk © Ing. arh. Eva Rosenová
Nárožný byt 2kk
Nárožný byt 2kk © Ing. arh. Eva Rosenová
Priečny byt s priehľadom
Priečny byt s priehľadom© Ing. arh. Eva Rosenová
Nárožný byt s výhľadom do parku
Nárožný byt s výhľadom do parku© Ing. arh. Eva Rosenová
Mezonetový byt na námestí
Mezonetový byt na námestí © Ing. arh. Eva Rosenová
Zákres
Zákres© Ing. arh. Eva Rosenová
Zákres
Zákres© Ing. arh. Eva Rosenová
Zákres
Zákres© Ing. arh. Eva Rosenová
Zákres
Zákres© Ing. arh. Eva Rosenová
z ulice U Santošky
z ulice U Santošky© Ing. arh. Eva Rosenová
Z rohu Ostrovského a U Santošky
Z rohu Ostrovského a U Santošky© Ing. arh. Eva Rosenová
Pohled z terasy domu A
Pohled z terasy domu A© Ing. arh. Eva Rosenová

Poloha diela

Ing. arch, Eva Rosenová
Vložené
16. október 2015
0
1109
Hlavný obsahHlavný obsah
Čakajte prosím