Advertorial

95 rokov Internorm: 30 miliónov okien a dverí z Rakúska

Európska značka okien oslavuje jubileum: za 95 rokov sa vyvinula na najväčšiu medzinárodne pôsobiacu okennú značku a inovačného...

Pozvánka na 2. ročník stavebného veľtrhu BigMarket na Slovensku

Na podujatí sa predstaví až 37 vystavovateľov - popredných dodávateľov stavebných materiálov a inovácií s prezentáciou...

Hotel Hirschen Spa House, Rakúsko

Novotvar v prostredí alpskej obce.

Vytvorte si kúpeľňu snov: dizajnové riešenie od značky hansgrohe

Hansgrohe - prémiová značka kúpeľňových riešení, ponúka nadčasový dizajn, technickú precíznosť a udržateľné inovácie...

Okná Internorm za minuloročné ceny + hliníkový kryt zdarma!

Využite špeciálnu akciu Internorm: okná za minuloročné ceny a hliníkový kryt úplne zadarmo. Ponuka je časovo obmedzená!

Moderné plynové technológie: Efektivita a inovácie pre 21. storočie

Sumarizácia najdôležitejších inovácií, ktoré redefinujúcich využitie tohto energetického zdroja.

Utesňovanie spodných stavieb pomocou hydro-aktívnej fólie AMPHIBIA.

AMPHIBIA 3000 GRIP 1.3 od spoločnosti ATRO predstavuje modernú hydroizolačnú technológiu, ktorá spája vysokú odolnosť,...

Dekarbonizácia individuálneho vykurovania domácností – Green Deal evolučne a nie revolučne

Ambiciózne plány EK narazili na ekonomické možnosti domácností v jednotlivých členských štátoch –...

Minimalistické dvere IDEA – technická precíznosť a čistota prevedenia

IDEA DOOR od spoločnosti JAP prináša do interiéru čistý minimalistický vzhľad vďaka bezrámovému riešeniu a precíznej...

Dom s výhľadom na údolie, Dlouhý Most (ČR)

Kontinuita riešenia od vonkajšieho obkladu až po kovania a kľučky.

Schell Vitus – osvedčené riešenie pre sprchy a umývadlá vo verejnom sektore s viac ako desaťročnou tradíciou

Nástenné nadomietkové armatúry Vitus sú mimoriadne vhodné pre rýchlu a efektívnu...

Kompozitné okná predstavujú súčasnosť a budúcnosť

Okenné profily z kompozitného materiálu RAU-FIPRO X od spoločnosti Rehau sú v porovnaní s tradičnými plastovými profilmi mnohonásobne...

Myotis - stoly 2025

Najnovší sortiment stolov pre zariadenie interiérov...

Priemyselné sklenené priečky Dorsis Digero: svetelné rozhranie pre moderné interiéry

Spojenie moderného dizajnu, funkčnosti a svetla do harmonického architektonického prvku.

Význam prirodzeného svetla pre moderné a flexibilné pracovné prostredie

Kancelárska budova Baumit v slovinskom Trzine prešla premenou na moderné a udržateľné pracovisko. Architekti kládli dôraz...

Konverzia železničných opravovní nádražia Bubny v Prahe

Projekt ocenený v rámci 16. ročníka prehliadky diplomových prác, ktorú organizuje Česká komora architektov. Budúcnosť významného industriálneho komplexu, ktorý sa jeho vlastník rozhodol po zrušení pamiatkovej ochrany zbúrať je neistá. Jednou zo šancí na záchranu podobných objektov môže byť konverzia. O životaschopnosti tohto konceptu sa môžete presvedčiť v práci Ivy Matějovskej. Mnohé paralely môžeme nájsť aj u nás.
Diela
Red 311.11.2015
11320+4
Konverzia železničných opravovní nádražia Bubny v Prahe
Autori: Ing. arch. Iva MatějovskáSpolupráca: prof. Ing. arch. Tomáš Šenberge (vedúci práce)Návrh: 2014 - 2015Adresa: Argentinská , Praha, Holešovice, Česká republikaPublikované: 11. november 2015

Urbanistické řešení
Stávající hala bývalých železničních opraváren a strojíren je chápána jako stěžejní bod a centrum nově navrženého území. Jedná se o jednopodlažní halu, jejíž půdorysné rozměry jsou 150x100m. Západní průčelí haly tvoří hranu největšího navrhovaného náměstí. Z východní strany je hala vzdálena přibližně 50m od Argentinské ulice. Urbanistické okolnosti vybízejí k připojení tohoto 50-ti metrového pruhu k řešenému objektu a předmětem řešení je tedy čtvercové území o rozměrech 150x150m.

Schwarzplan
Schwarzplanautor: Iva Matějovská

Velkorysý prostor uvnitř haly vybízí k zachování tohoto prostoru jako celku. Část haly přiléhající k náměstí je proto krytým exteriérovým prostorem, rozšiřuje veřejný prostor náměstí a nabízí odlišné kvality a ochranu před povětrnostními vlivy. Do východní části haly jsou vnořeny objemy galerie (kunsthalle), které těží z atmosféry historického objektu.
Východní část řešeného území si klade za cíl vytvořit hranu Argentinské ulice. Zástavba přiléhající z východní strany má nestejnoměrnou výšku. Jedná se o budovy o čtyřech až sedmi podlažích. Severovýchodním směrem se nachází řídce zastavěné území se sportovními plochami. V těchto souvislostech jsou na východní části pozemku navrženy izolované objekty o čtyřech až šesti podlažích, tvořící mezi sebou úzké prostory sloužící jako komunikace nebo prostory k odpočinku.

Situácia 1:2000
Situácia 1:2000autor: Iva Matějovská

Tyto nové objekty různých tvarů postupně vrůstají do staré haly, která v místech kolize ustupuje, a mezi halou a novými objekty se vytváří různorodá poloveřejná místa s intimním charakterem jako protipól k veřejnému prostoru v západní části haly. Tyto prostory jsou z důvodu maximální prostupnosti územím propojeny a vytváří meandr vinoucí se ze severu k jihu mezi historickým objektem a současnou zástavbou.
Ve východo-západním směru jsou navržena dvě pěší propojení, území je tak rozděleno na tři celky, které korespondují s rozdělením provozů. V jižní části se nachází objekty pro UMPRUM. Střední část zaujímají ateliéry jak pro hostující umělce, tak pro veřejnost nabízející vzdělávací umělecky zaměřený program. K této části náleží objekt pro ubytování hostujících umělců. Severní část tvoří objekt, ve kterém se nachází administrativní zázemí celého areálu a z velké části nabízí pronajímatelné prostory. Prostory 1.np směřující do Argentinské ulice jsou komerčně využívány

Prevádzková schéma
Prevádzková schémaautor: Iva Matějovská

Zástavba vrůstající do haly se postupně snižuje a přechází do jednopodlažních hmot, které tvoří izolované objemy uvnitř haly. Jako prvek odkazující na nové dění podél Argentinské ulice je navržen samostatný objekt i při západním průčelí haly, který vystupuje do náměstí.

Ideová skica
Ideová skicaautor: Iva Matějovská

Areál je dopravně obsloužen především z Argentinské ulice. Ze severní a z jižní strany přiléhají komunikace, které v prostoru náměstí přecházejí do komunikace typu shared space.

Ideová skica
Ideová skicaautor: Iva Matějovská

Architektonické řešení
Přesné hranice zastavěných a nezastavěných ploch vycházejí z analýzy navazujících ulic, pěších propojení a uličních čar. Vzniklé nepravidelné hranice jsou v rámci haly „vyplněny“ prostory galerie a korespondují s tvary nově navržené zástavby, která do haly prorůstá.

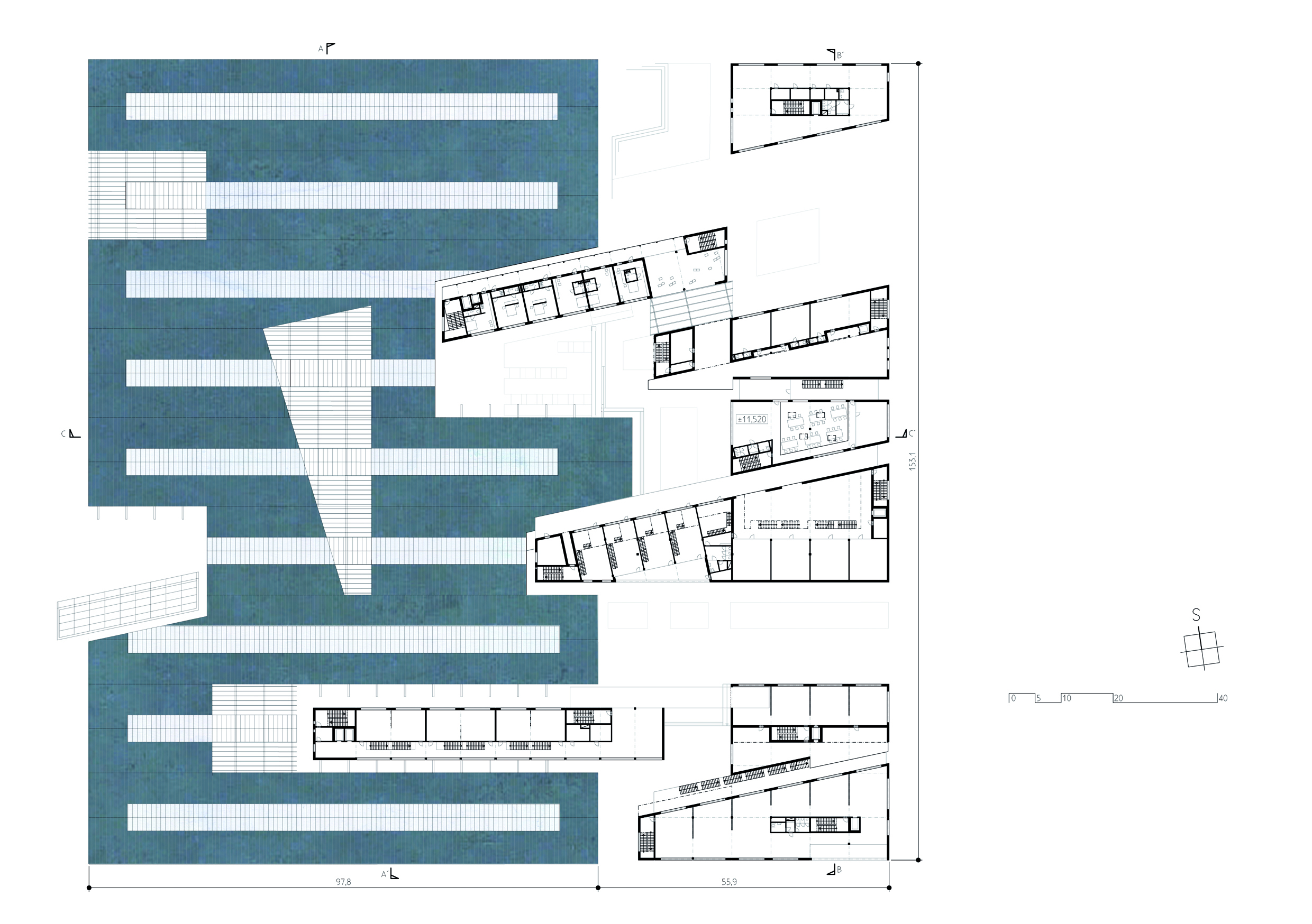
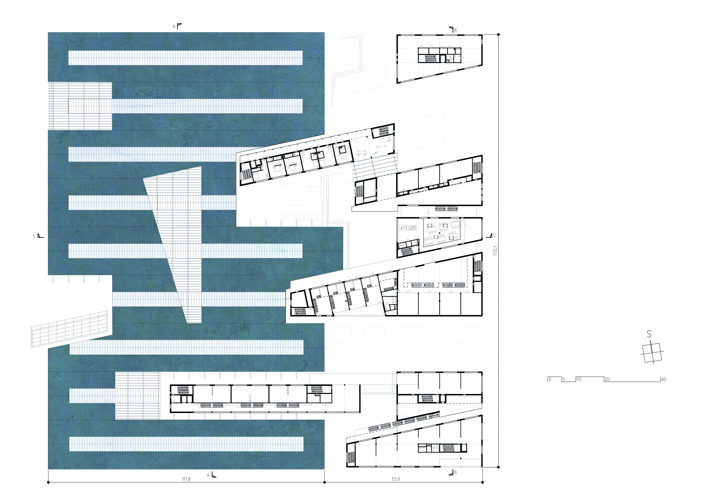
Pôdorys 1NP
Pôdorys 1NPautor: Iva Matějovská

Navrhované hmoty mají jednoduché půdorysné tvary, které vycházejí z potřeby členit prostor mezi objekty, který se stává stejně důležitý jako samy domy. O to více jsou pak hmoty členěny ve vertikálním směru, především z důvodu dosažení maximálního množství denního světla. Chtěné severní rozptýlené světlo pro ateliéry se dostává do objektů mimo jiné pomocí šedových světlíků, které tvoří významný prvek na charakteru budov. Hmoty jsou dále
členěny pomocí vnitřních otevřených dvorů, které taktéž přispívají k získání maximálního množství světla.

Pôdorys 2NP
Pôdorys 2NPautor: Iva Matějovská
Pôdorys 4NP
Pôdorys 4NPautor: Iva Matějovská
Pôdorys 1PP
Pôdorys 1PPautor: Iva Matějovská
Rezy
Rezyautor: Iva Matějovská
Pohľady
Pohľadyautor: Iva Matějovská

Proluky mezi hmotami tvoří buď exteriérový pobytový prostor a přímé propojení na terén, nebo náleží k sousedícím hmotám a rozšiřují jejich vnitřní prostor.

Vizualizácia
Vizualizáciaautor: Iva Matějovská

Samotná hala je dále členěna pomocí členění střechy. Konstrukce střechy je na určitých místech odstraněna úplně tak, aby byl umožněn nekonfliktní vztah ve styku staré a nové konstrukce, popřípadě vytvořen prostor pro vzrostlou zeleň. V některých případech je ze střechy odstraněna pouze krytina, aby byl umožněn přístup většímu množství světla a vláhy pro nízkou zeleň.

Vizualizácia
Vizualizáciaautor: Iva Matějovská

Obvodové stěny si zachovávají svůj původní charakter. Původní trojdílné členění fasády je zachováno, je pouze odstraněn parapet tak, aby byl do haly umožněn v celé délce náměstí průchod. V návaznosti na členění střechy a vznik vnitřních otevřených prostorů je v těchto místech fasáda také přizpůsobena a více se otevírá

Vizualizácia
Vizualizáciaautor: Iva Matějovská

Základním pohledovým materiálem nových objektů je bílá omítka, která kontrastuje s tmavým titanzinkovým plechem na střeše haly. Dalším materiálem, který se výrazně uplatňuje na nových stavbách, je ocelová konstrukce a s ní ocelová síťovina tvořící konstrukce v prolukách a navazující lávky.

Vizualizácia
Vizualizáciaautor: Iva Matějovská
Detail parteru
Detail parteruautor: Iva Matějovská

Provozní řešení
Provoz celého areálu je členěn do jednotlivých objektů, z čehož vyplývají poměrně velké kapacity. V historické hale se v rámci jednoho podlaží nachází velkoprostorová kunsthalle s návštěvnickým zázemím a vstupní prostory do UMPRUM. UMPRUM zaujímá tři vzájemně propojené objekty od čtyř do šesti podlaží. Další celek tvoří srostlice tří domů, ve kterých se nachází nájemní i veřejně přístupné ateliéry, které slouží k umělecky zaměřenému vzdělávání široké veřejnosti. Jsou k disposici různě velké prostory, které nabízejí různorodá využití. Součástí tohoto celku je i objekt, který slouží jako ubytovací kapacity pro hostující umělce. Objekt, který uzavírá areál ze severní strany, je administrativního charakteru a kromě pronajímatelných prostor se zde nachází administrativní zázemí areálu. Nové objekty jsou při Argentinské ulici propojené podzemním podlažím, které slouží parkování a jako prostory pro technické zázemí.

podklady: Ing. arch. Iva Matějovská

Poloha diela

Ing. arch. Iva Matějovská

Súvisiace články

Vložené
11. november 2015
0
1132
Hlavný obsahHlavný obsah
Čakajte prosím