Využite špeciálnu akciu Internorm: okná za minuloročné ceny a hliníkový kryt úplne zadarmo. Ponuka je časovo obmedzená!
Na podujatí sa predstaví až 37 vystavovateľov - popredných dodávateľov stavebných materiálov a inovácií s prezentáciou...
Sumarizácia najdôležitejších inovácií, ktoré redefinujúcich využitie tohto energetického zdroja.
AMPHIBIA 3000 GRIP 1.3 od spoločnosti ATRO predstavuje modernú hydroizolačnú technológiu, ktorá spája vysokú odolnosť,...
Ambiciózne plány EK narazili na ekonomické možnosti domácností v jednotlivých členských štátoch –...
IDEA DOOR od spoločnosti JAP prináša do interiéru čistý minimalistický vzhľad vďaka bezrámovému riešeniu a precíznej...
Kontinuita riešenia od vonkajšieho obkladu až po kovania a kľučky.
Nástenné nadomietkové armatúry Vitus sú mimoriadne vhodné pre rýchlu a efektívnu...
Okenné profily z kompozitného materiálu RAU-FIPRO X od spoločnosti Rehau sú v porovnaní s tradičnými plastovými profilmi mnohonásobne...
Najnovší sortiment stolov pre zariadenie interiérov...
Spojenie moderného dizajnu, funkčnosti a svetla do harmonického architektonického prvku.
Kancelárska budova Baumit v slovinskom Trzine prešla premenou na moderné a udržateľné pracovisko. Architekti kládli dôraz...
Mottom šiesteho ročníku on-line konferencie odborníkov Xella Dialóg je Efektívny návrh budov 2025+: zmeny a riešenia
Robot WLTR predstavuje moderný prístup k murovaným konštrukciám. Vďaka automatizácii dokáže rýchlo, presne a bezpečne realizovať...
Okrem bezpečnosti majú okná aj elegantný vzhľad, pretože nie sú viditeľné žiadne uzamykacie časti kovania.

Oživený projekt martinskej "Nemocnice budúcnosti", dokončovacie práce na Boroch, alebo ohlásený zámer realizácie nového pavilónu nemocnice v Humennom… Výsledky veľkých projektov budeme môcť posúdiť až v nasledujúcich rokoch.
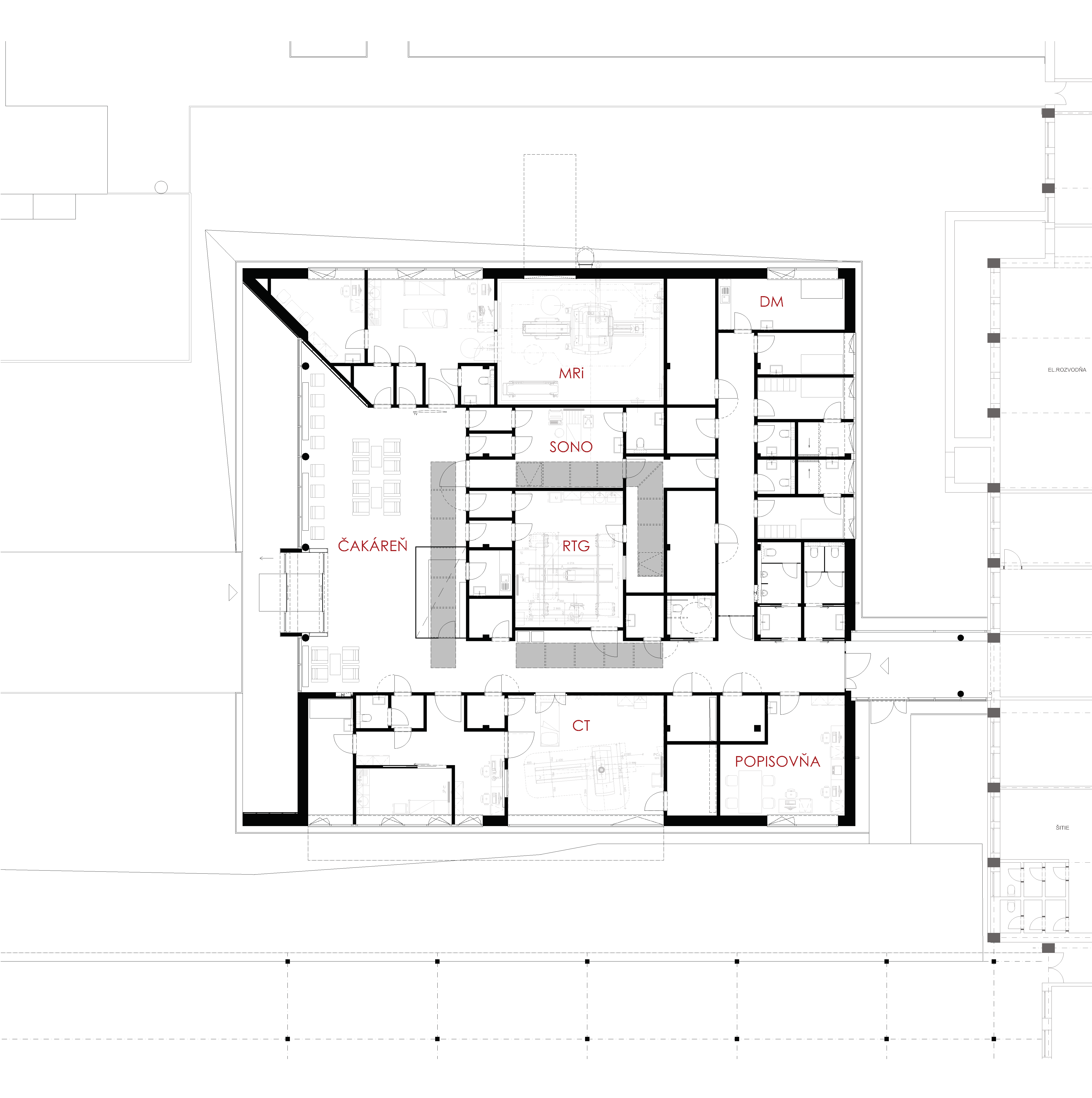
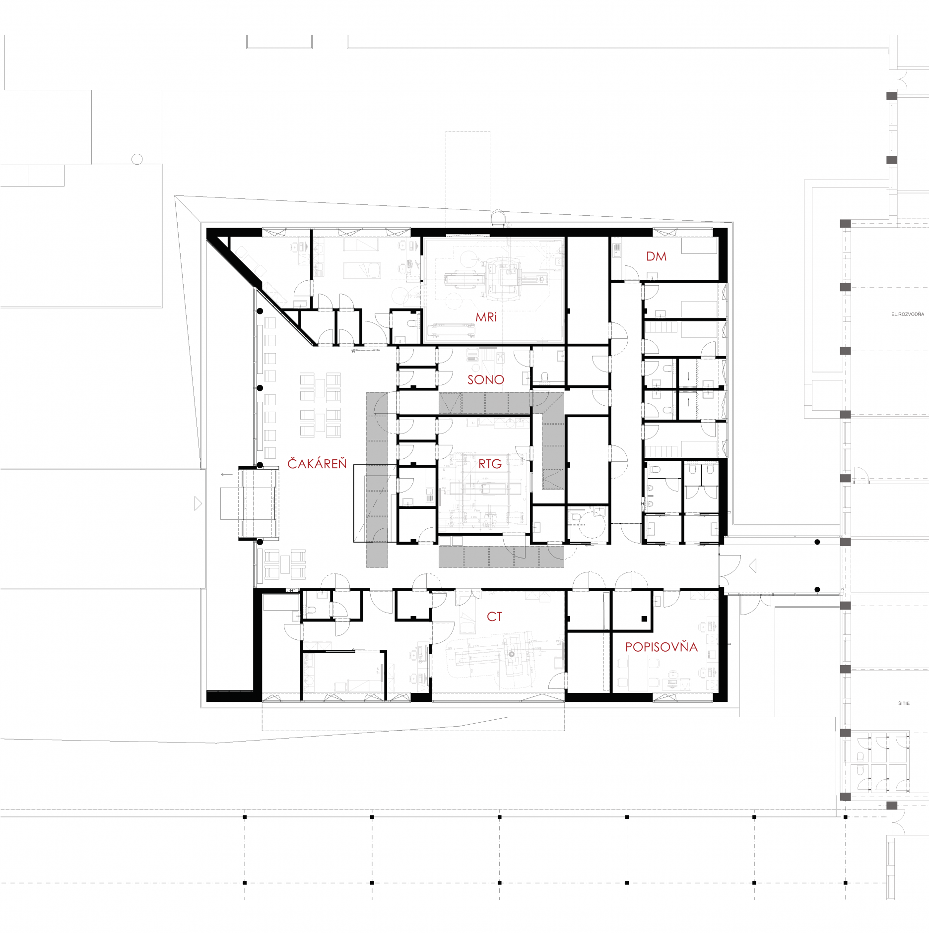
V aktuálnom kontexte predstavujeme nové Centrum diagnostiky v areáli NsP Považská Bystrica, ktoré slúži pacientom od 1. februára. Cieľom nemocnice a Trenčianskeho samosprávneho kraja bolo podľa slov autorov vybudovať nový pavilón diagnostiky s prevádzkami, ktoré budú okrem humánneho prostredia prinášať aj ekonomický profit. Výsledkom je racionálne architektonické riešenie, zamerané na vytvorenie prehľadného a prívetivého prostredia pre pacientov a optimalizáciu prevádzkových vzťahov. Dôležitou súčasťou stavby je pobytová zóna na zelenej streche, priamo prístupná zo staršieho bloku urgentného príjmu.
Urbanizmus
Poloha nového pavilónu bola určená s dôrazom na priame napojenie na urgentný príjem. Pozícia v centrálnej časti nemocnice zároveň zodpovedá významu prevádzky, ktorá spĺňa požiadavky nadregionálneho významu. Takmer symetrický pôdorysný tvar, vychádzajúci z centrálneho umiestnenia pavilónu sa stal novou dominantou vnútrobloku. Objekt je so starším blokom nemocnice prepojený zo zadnej strany cez spojovaciu chodbu.
Architektúra
Architektonické riešenie vychádza z funkčného usporiadania prevádzky. Vstupnú halu a čakáreň prepája s exteriérom celopresklená stena. Čelná fasáda je zároveň v celej dĺžke prekrytá, čo umožňuje pacientom čakať na diagnostiku v krytom exteriéri. Intenzívna zelená strecha nového pavilónu je priamo prístupná z oddelenia urgentného príjmu. Okrem vytvorenia oddychového priestoru eliminuje zvolené riešenie aj množstvo tvrdých plôch vo vnútrobloku, čím obmedzuje jeho prehrievanie. Tvar a kompozícia svetlíkov znázorňuje logo zariadenia.
Dispozícia
Vnútorná prevádzka zodpovedá požiadavkám jednotlivých diagnostických pracovísk ako MRi, CT, RTG a SONO. Prevádzky MRi a CT so situované po obvode pavilónu, čo umožňuje výmenu zariadení (po uplynutí ich životnosti) bez nutnosti búrania vnútorných konštrukcií. RTG a SONO je situované medzi týmito prevádzkami, čím sa dosahuje aj optimálny rozostup medzi magnetom CT a MRi. Z čakárne sú diagnostické prevádzky prístupné cez prezliekacie kabínky, v prípade MRi a CT sú kabínky kombinované s toaletou. Zo zadnej strany sú prevádzky napojené na personálno-technickú časť s centrálnou popisovňou pre všetky pracoviská diagnostiky.
Interiér
Neutrálne vnútorné prostredie s bielymi plochami stien a epoxidovými liatymi podlahami dopĺňa kvalitný mobiliár. Jednotlivé diagnostické oddelenia sú navzájom odlíšené farebným kódovaním (farebnou líniou nad hornou hranou zárubne). Steny a strop krytého závetria sú obložené smrekovcovými lamelami, ktoré prechádzajú do interiéru a zmierňujú sterilnosť vnútorných priestorov.
Podklady: archico.sk - Jablonský / Majcher
Foto: Tomáš Manina, Radovan Stoklasa