Advertorial

Pozvánka na 2. ročník stavebného veľtrhu BigMarket na Slovensku

Na podujatí sa predstaví až 37 vystavovateľov - popredných dodávateľov stavebných materiálov a inovácií s prezentáciou...

Hotel Hirschen Spa House, Rakúsko

Novotvar v prostredí alpskej obce.

Vytvorte si kúpeľňu snov: dizajnové riešenie od značky hansgrohe

Hansgrohe - prémiová značka kúpeľňových riešení, ponúka nadčasový dizajn, technickú precíznosť a udržateľné inovácie...

Okná Internorm za minuloročné ceny + hliníkový kryt zdarma!

Využite špeciálnu akciu Internorm: okná za minuloročné ceny a hliníkový kryt úplne zadarmo. Ponuka je časovo obmedzená!

Moderné plynové technológie: Efektivita a inovácie pre 21. storočie

Sumarizácia najdôležitejších inovácií, ktoré redefinujúcich využitie tohto energetického zdroja.

Utesňovanie spodných stavieb pomocou hydro-aktívnej fólie AMPHIBIA.

AMPHIBIA 3000 GRIP 1.3 od spoločnosti ATRO predstavuje modernú hydroizolačnú technológiu, ktorá spája vysokú odolnosť,...

Dekarbonizácia individuálneho vykurovania domácností – Green Deal evolučne a nie revolučne

Ambiciózne plány EK narazili na ekonomické možnosti domácností v jednotlivých členských štátoch –...

Minimalistické dvere IDEA – technická precíznosť a čistota prevedenia

IDEA DOOR od spoločnosti JAP prináša do interiéru čistý minimalistický vzhľad vďaka bezrámovému riešeniu a precíznej...

Dom s výhľadom na údolie, Dlouhý Most (ČR)

Kontinuita riešenia od vonkajšieho obkladu až po kovania a kľučky.

Schell Vitus – osvedčené riešenie pre sprchy a umývadlá vo verejnom sektore s viac ako desaťročnou tradíciou

Nástenné nadomietkové armatúry Vitus sú mimoriadne vhodné pre rýchlu a efektívnu...

Kompozitné okná predstavujú súčasnosť a budúcnosť

Okenné profily z kompozitného materiálu RAU-FIPRO X od spoločnosti Rehau sú v porovnaní s tradičnými plastovými profilmi mnohonásobne...

Myotis - stoly 2025

Najnovší sortiment stolov pre zariadenie interiérov...

Priemyselné sklenené priečky Dorsis Digero: svetelné rozhranie pre moderné interiéry

Spojenie moderného dizajnu, funkčnosti a svetla do harmonického architektonického prvku.

Význam prirodzeného svetla pre moderné a flexibilné pracovné prostredie

Kancelárska budova Baumit v slovinskom Trzine prešla premenou na moderné a udržateľné pracovisko. Architekti kládli dôraz...

Konferencia Xella Dialóg predstaví novinky a trendy v stavebníctve

Mottom šiesteho ročníku on-line konferencie odborníkov Xella Dialóg je Efektívny návrh budov 2025+: zmeny a riešenia

Konverzia industriálneho objektu Schuppen Eins v Brémach

Originálny architektonický koncept a funkčné využitie pamiatkovo chránenej skladovej budovy z roku 1959.
Diela
Red 303.06.2016
16130+12
Konverzia industriálneho objektu Schuppen Eins v Brémach
Autori: Birgit Westphal, Jost Westphal, Klaas DambeckPodlažná plocha: 30.102 m²Obostavaný objem: 172.684 m³Investičný náklad: 28 mil. €Návrh: 2011 - 2012Realizácia: 2012 - 2013Adresa: Konsul-Schmidt-Straße 10, Bremen, NemeckoPublikované: 3. jún 2016

V prístavnom meste Brémy bola postavená v roku 1959 dvojpodlažná skladová budova, ktorá slúžila dlhé roky na dočasné uskladnenie tovaru po vykládke. V deväťdesiatychr rokoch, po presťahovaní nákladnej časti prístavu rokoch prestali sklady a priemyselné budovy v tejto lokalite plniť svoj účel. Mesto preto začalo hľadať spôsob, ako za pomoci súkromných investorov revitalizovať v tej dobe nie veľmi atraktívnu lokalitu. Zaujímavá bola hlavne poloha bezprostredne pri rieke Weser.

Foto: archív Westphal architekten

V rámci revitalizácie bývalej prístavnej časti Bremens zur Überseestadt zaujala investorov hlavne spomínaná 400 metrová skladová budova, ktorá bola v tom čase už pamiatkovo chránená. Poloha, orientácia budovy a nepoškodený nosný systém naznačovali veľký potenciál pre modernú konverziu. 

Foto: Conné van d’Grachten

Ako ideálna sa javila voľná dispozícia a otvorená juhozápadná fasáda orientovaná smerom k vode. Výzvou bolo nájsť vhodnú náplň a funkčné využitie budovy s hĺbkou dispozície až 50m. Ambiciózny projekt takéhoto rozsahu rátal s celkovými nákladmi 28 mil. €.

Foto: Conné van d’Grachten

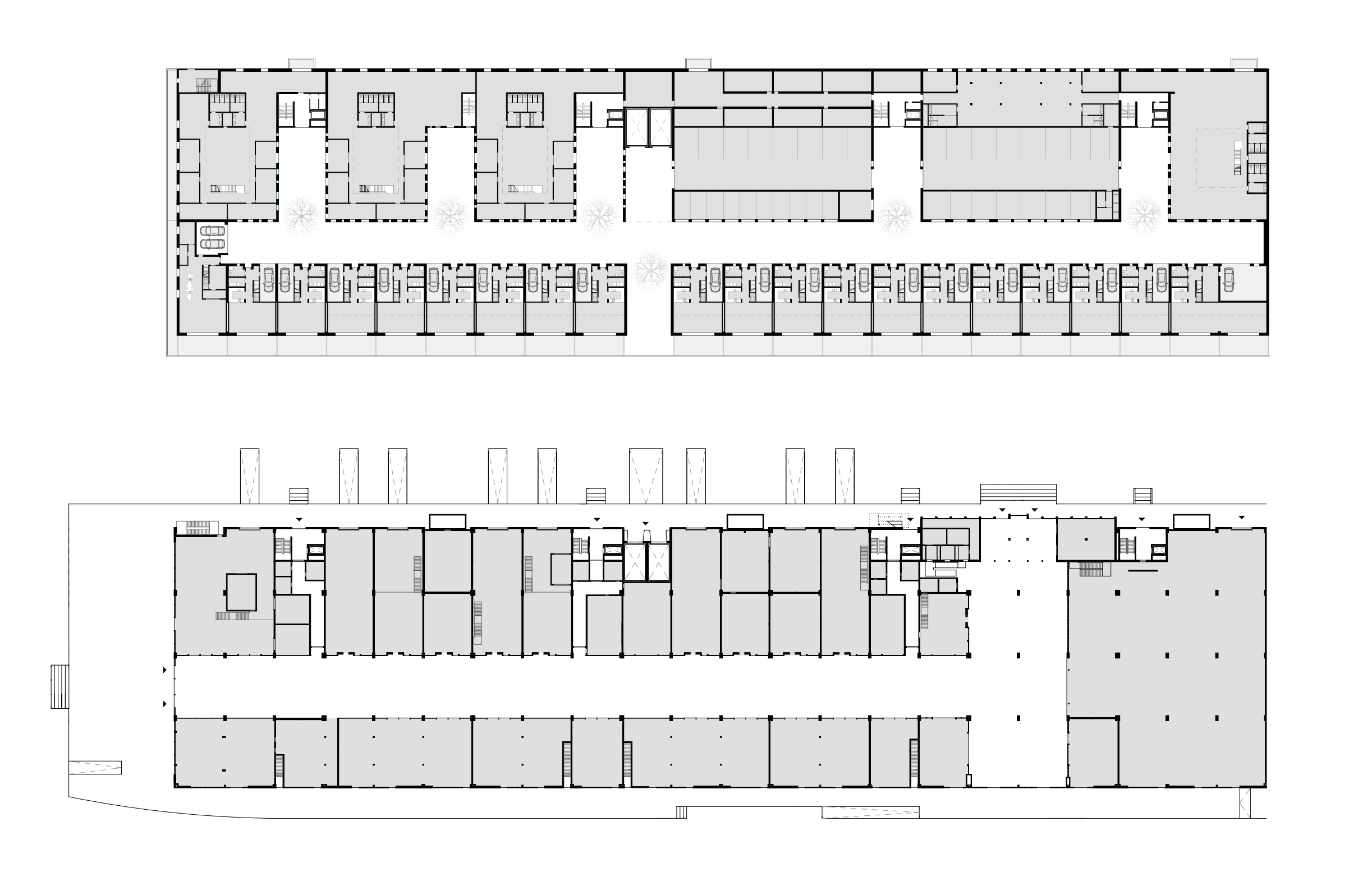
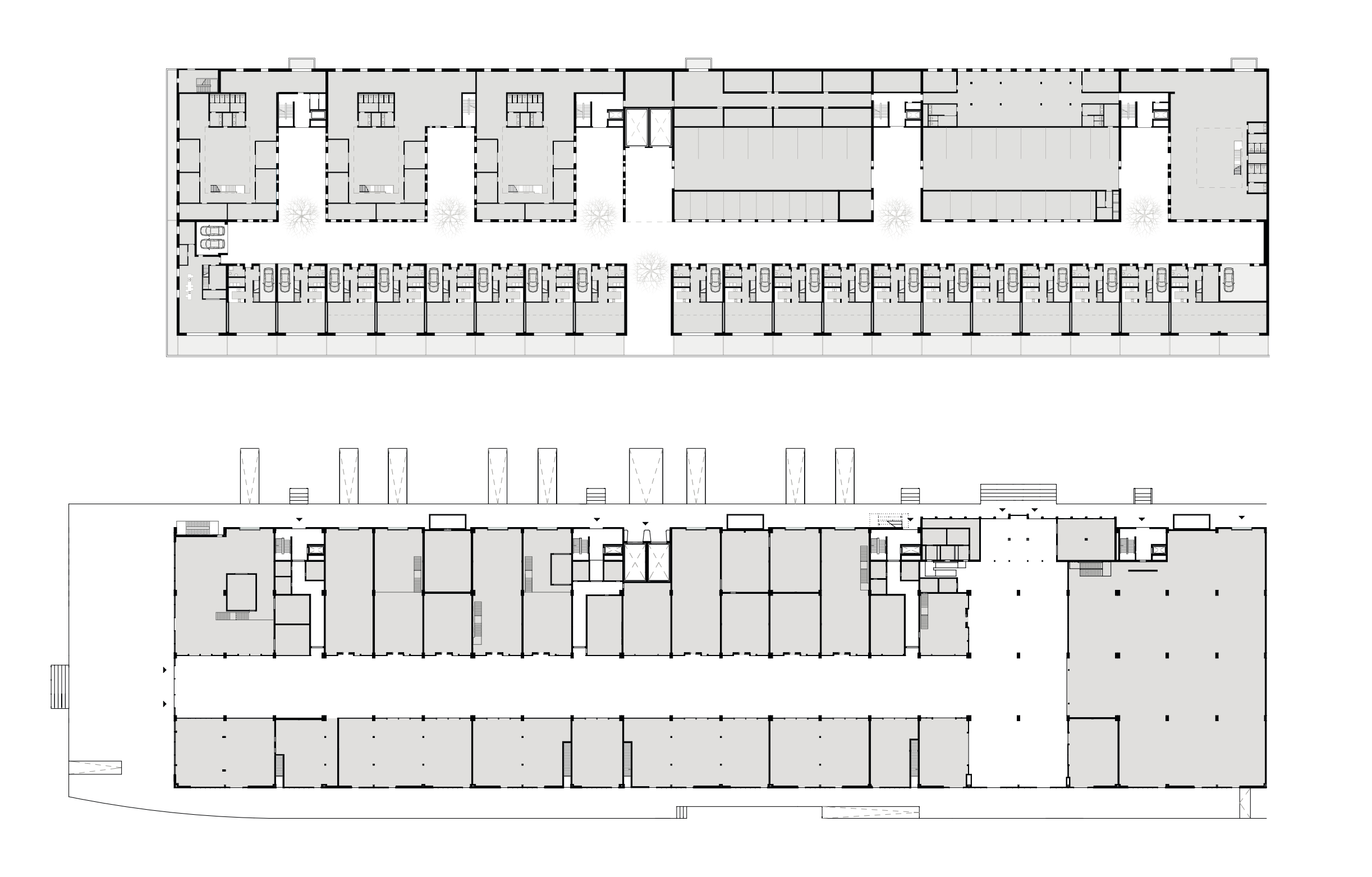
Architektov už pri prvej obhliadke stavby zaujal obrovský vnútorný priestor a najmä bazilikálne osvetlenie cez centrálny svetlík prebiehajúci po celej dĺžke budovy. Rozhodli sa pre odvážne riešenie.  Bola odstránená strecha a na úrovni 2.NP v mieste pôvodného hrebeňa strechy vznikol otvorený priesor. Zastavané časti sa od seba akoby odsunuli a umožnili tak vzniknúť novému bulváru. Tento vnútroblok s bočnými uličkami je určený nielen pre peších, ale aj pre automobily. Je dlhý viac ako 200 metrov a dáva predstavu o pôvodnej veľkosti haly. Doprava automobilov na poschodie je zabezpečená nákladnými výťahmi.

Schematický rez
Schematický rez
Pôdorysy 1.NP a 2.NP
Pôdorysy 1.NP a 2.NP

Oplatí sa pozrieť video, ktoré názorne ilustruje tento originálny koncept:

30445
Youtube

Pamiatkovo chránený areál skladu sa aj vzhľadom na vysoké náklady revitalizoval v dvoch etapách. Najskôr sa v parteri vybudovali priestory pre kaviarne a maloobchodné prevádzky. Nachádzajú sa tu aj ateliéry a malé súkromné galérie. 

Foto: Conné van d’Grachten
Foto: Conné van d’Grachten

Najvýznamnejšou prevádzkou v zrekonštruovanej budove je Centrum automobilovej kultúry a mobility. Poskytuje služby ako je distribúcia, údržba, starostlivosť a reštaurovanie klasických automobilov. Súčasťou centra je aj rozsiahla zbierka veteránov na prízemí vo verejne prístupnej pasáži. Pravidelne sa tu konajú zrazy fanúšikov a nadšencov historických automobilov.

Foto: Conné van d’Grachten
Foto: Conné van d’Grachten

V druhej etape vznikli na poschodí luxusné byty s vlastnou garážou. Byty sú situované pozdĺž juhozápadnej fasády a každý z nich má terasu s výhľadom na vodu. Dispozične sú riešené ako mezonety vysokého  štandardu. Do bytu sa vstupuje zo spoločného bulváru, alebo priamo z vlastnej garáže. Na poschodí sa nachádzajú tiež prenajímateľné kancelárske priestory.

Foto: Conné van d’Grachten
Foto: Steffen Fuchs

Pri rekonštrukcii ostali fasády skladového objektu „Schuppen Eins“ zachované takmer v pôvodnej forme. Fasády vo vnútrobloku boli stvárnené s použitím nových materiálov. Architekti navrhli obklad z veľkoformátových vláknocementových dosiek Equitone v cementovo sivom farebnom prevedení s jemnými perleťovými odleskmi. Použitie fasádnych dosiek odkazuje na industriálnu minulosť objektu a dopĺňa priznané betónové povrchy. Obklad bol montovaný na hliníkovú podkonštrukciu, čo umožnilo precízne vyhotovenie detailov, ako napríklad zapustené rámy okien. Veľký dôraz sa pri realizácii kládol na umiestnenie jednotlivých dosiek a lícovanie špár.

Foto: Conné van d’Grachten
Detaily fasády a osadenia okien
Detaily fasády a osadenia okien
Foto: Steffen Fuchs
Foto: Conné van d’Grachten
Foto: Conné van d’Grachten
Foto: Conné van d’Grachten
Foto: Conné van d’Grachten
Foto: Conné van d’Grachten

Historické fotografie "Schuppen Eins"

Foto: Westphal architekten
Foto: Westphal architekten
Foto: Westphal architekten
Foto: Westphal architekten

Letecké zábery areálu počas zrazu veteránov:

5583
Youtube

Zdroj: Equitone

Poloha diela

Birgit Westphal
Jost Westphal
Klaas Dambeck

Súvisiace články

Vložené
31. máj 2016
0
1613
Hlavný obsahHlavný obsah
Čakajte prosím