Na podujatí sa predstaví až 37 vystavovateľov - popredných dodávateľov stavebných materiálov a inovácií s prezentáciou...
Novotvar v prostredí alpskej obce.
Hansgrohe - prémiová značka kúpeľňových riešení, ponúka nadčasový dizajn, technickú precíznosť a udržateľné inovácie...
Využite špeciálnu akciu Internorm: okná za minuloročné ceny a hliníkový kryt úplne zadarmo. Ponuka je časovo obmedzená!
Sumarizácia najdôležitejších inovácií, ktoré redefinujúcich využitie tohto energetického zdroja.
AMPHIBIA 3000 GRIP 1.3 od spoločnosti ATRO predstavuje modernú hydroizolačnú technológiu, ktorá spája vysokú odolnosť,...
Ambiciózne plány EK narazili na ekonomické možnosti domácností v jednotlivých členských štátoch –...
IDEA DOOR od spoločnosti JAP prináša do interiéru čistý minimalistický vzhľad vďaka bezrámovému riešeniu a precíznej...
Kontinuita riešenia od vonkajšieho obkladu až po kovania a kľučky.
Nástenné nadomietkové armatúry Vitus sú mimoriadne vhodné pre rýchlu a efektívnu...
Okenné profily z kompozitného materiálu RAU-FIPRO X od spoločnosti Rehau sú v porovnaní s tradičnými plastovými profilmi mnohonásobne...
Najnovší sortiment stolov pre zariadenie interiérov...
Spojenie moderného dizajnu, funkčnosti a svetla do harmonického architektonického prvku.
Kancelárska budova Baumit v slovinskom Trzine prešla premenou na moderné a udržateľné pracovisko. Architekti kládli dôraz...
Mottom šiesteho ročníku on-line konferencie odborníkov Xella Dialóg je Efektívny návrh budov 2025+: zmeny a riešenia

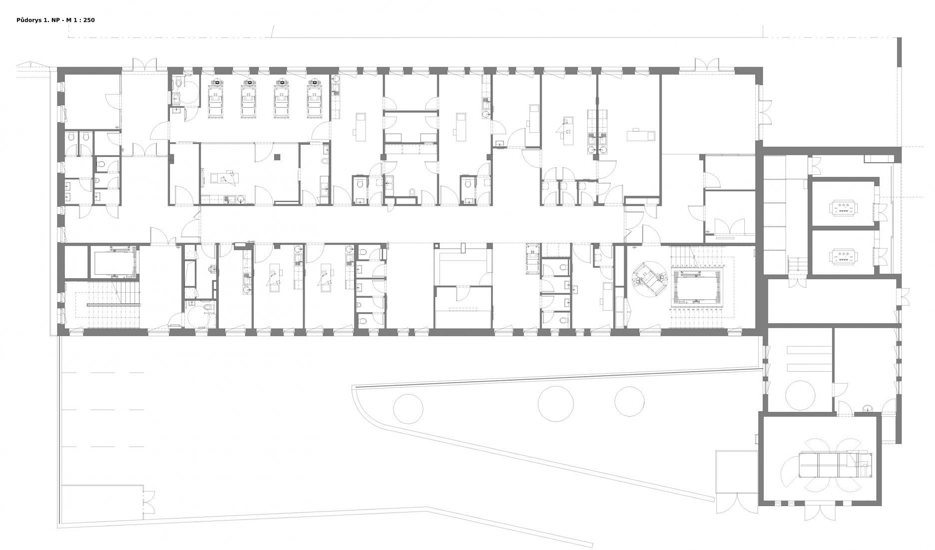
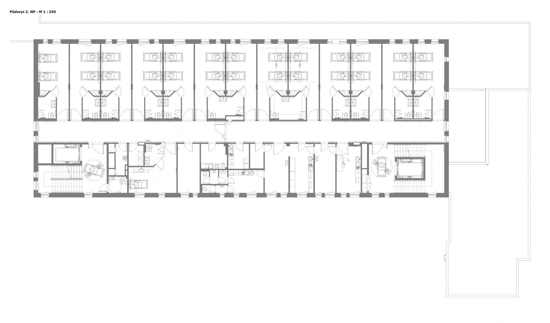
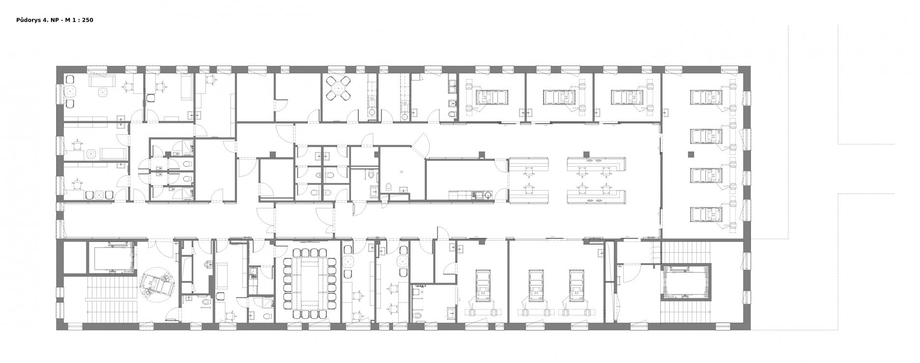
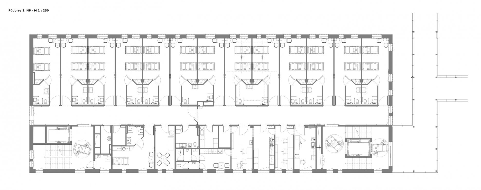
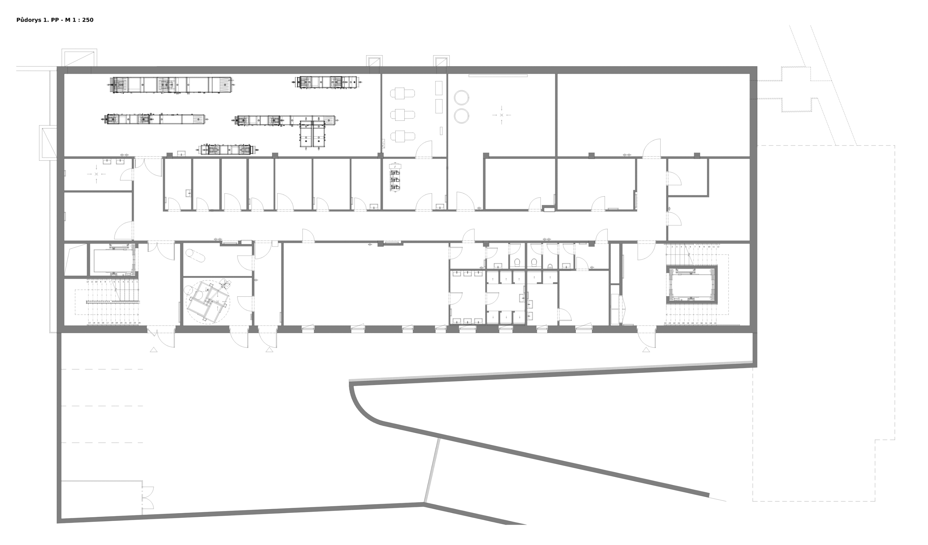
Ateliér Adam Rujbr Architects, v ktorého portfóliu majú výrazné zastúpenie projekty zdravotníckych zariadení (viď. súvisiace články v závere textu), v závere minulého roka dokončil pavilón internej medicíny. Novostavba sa nachádza v severnej časti areálu šternberskej nemocnice. Jednou z priorít pri riešení objektu bola ideálna nadväznosť na existujúce pavilóny a vytvorenie prehľadného vstupu do zdravotníckeho komplexu.
Stavbe ustúpila pôvodná budova riaditeľstva nemocnice. Z juhu k novému pavilónu prilieha staršia budova trafostanice s dieselcentrálou.
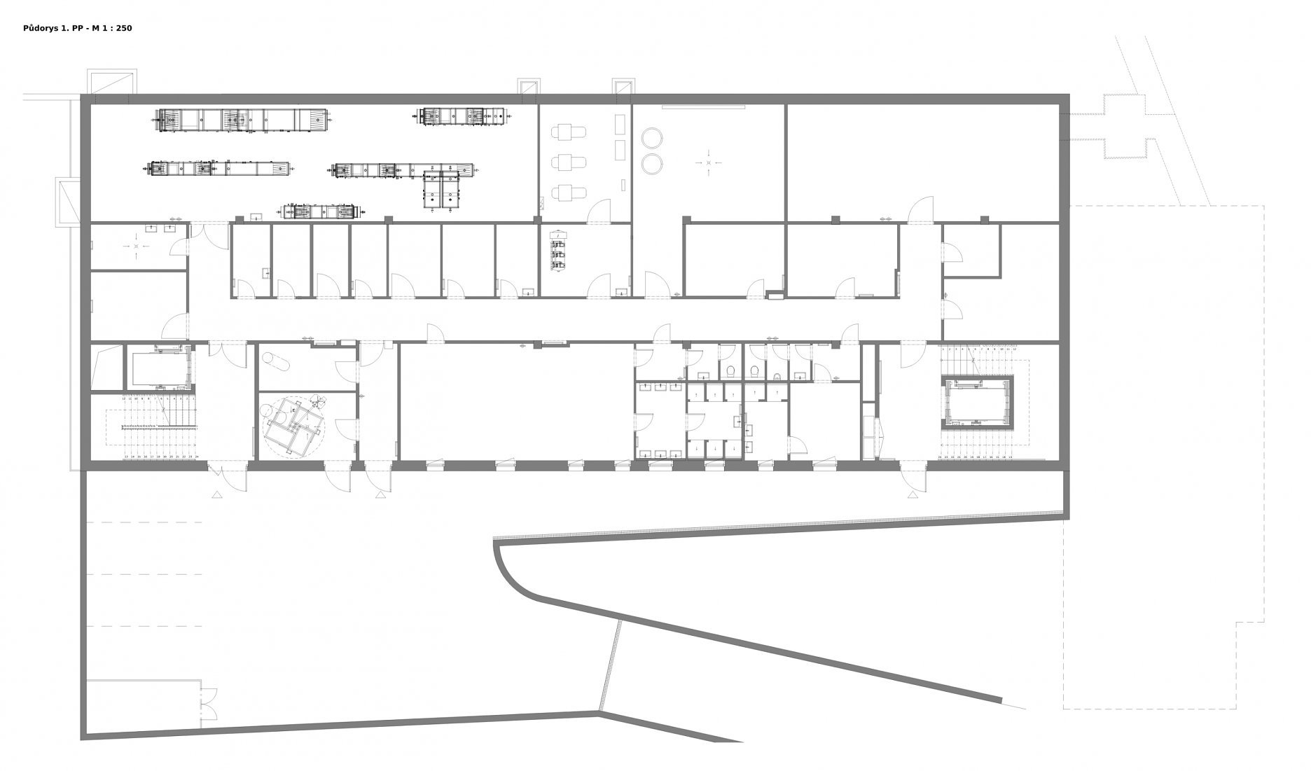
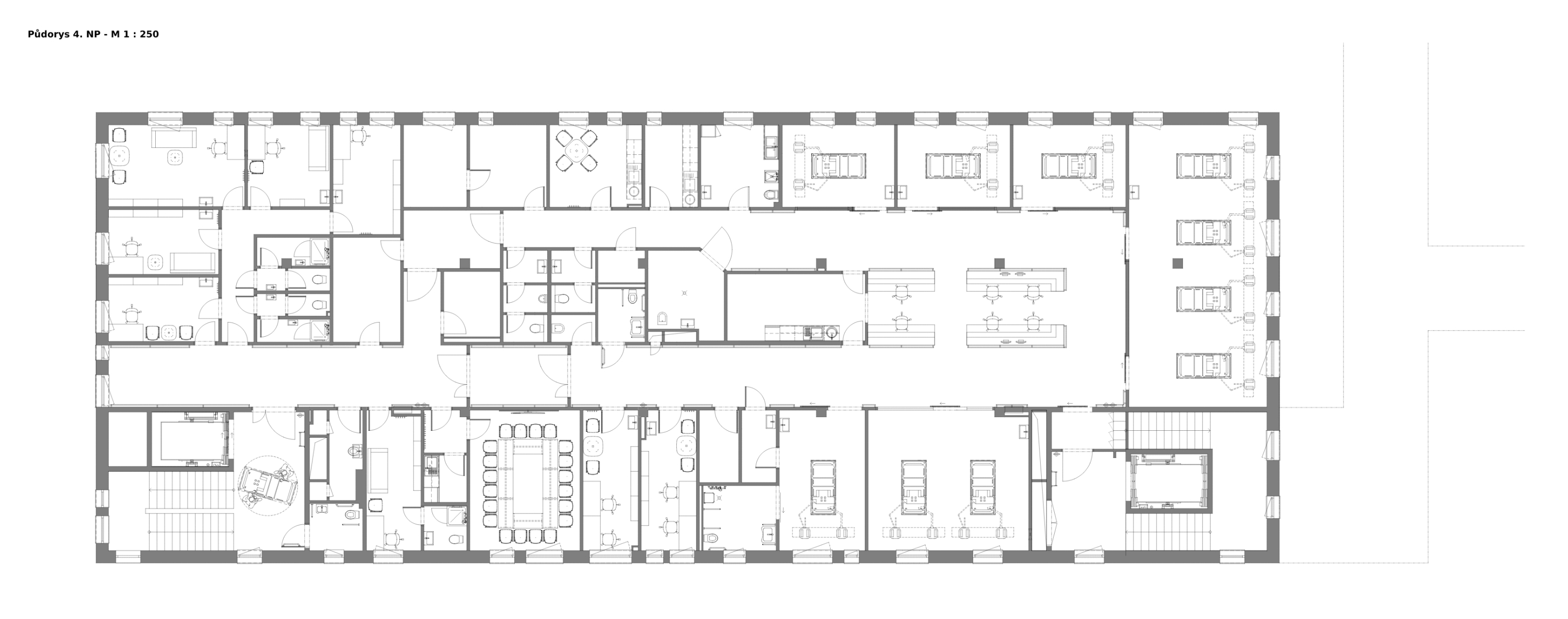
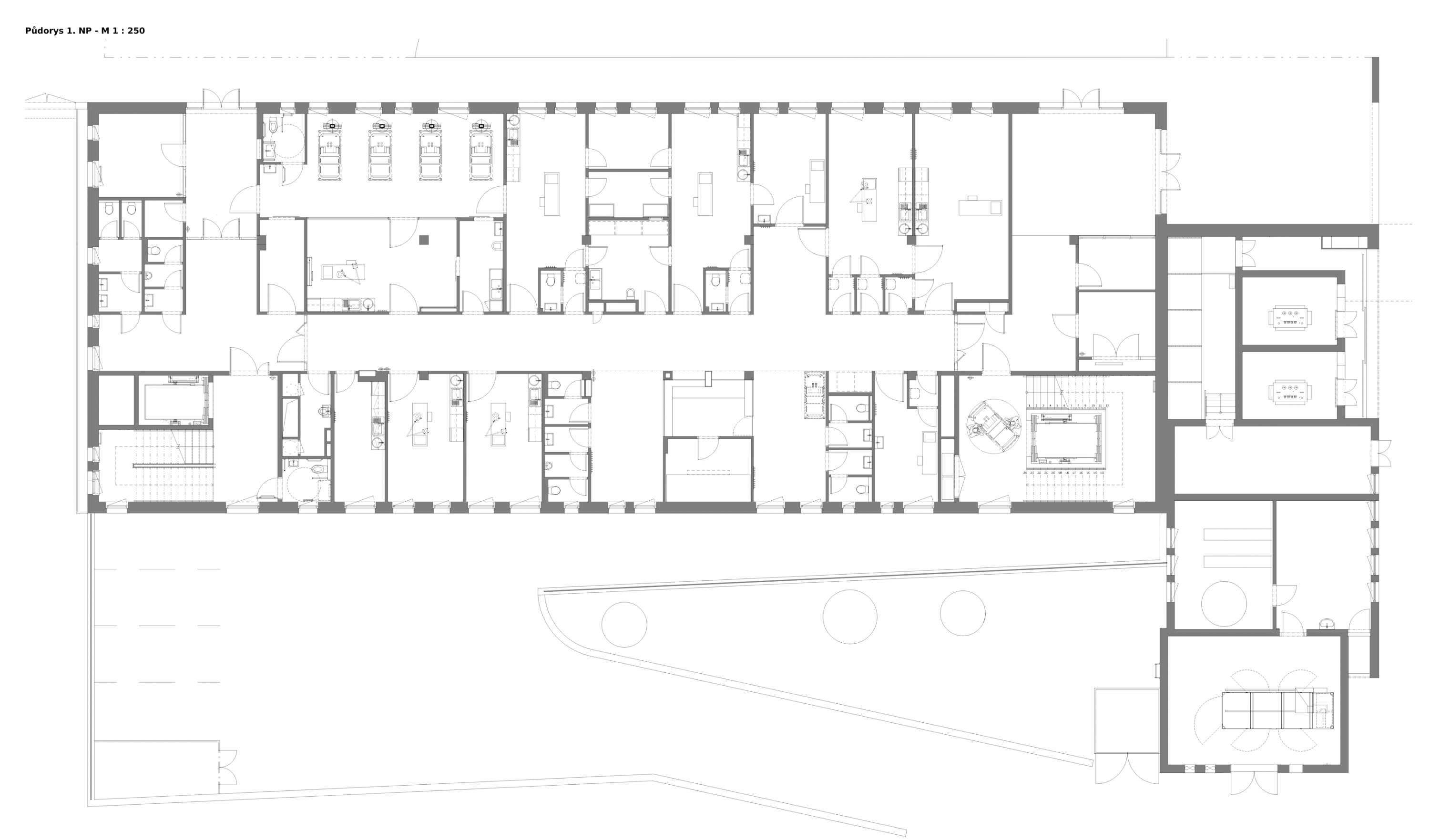
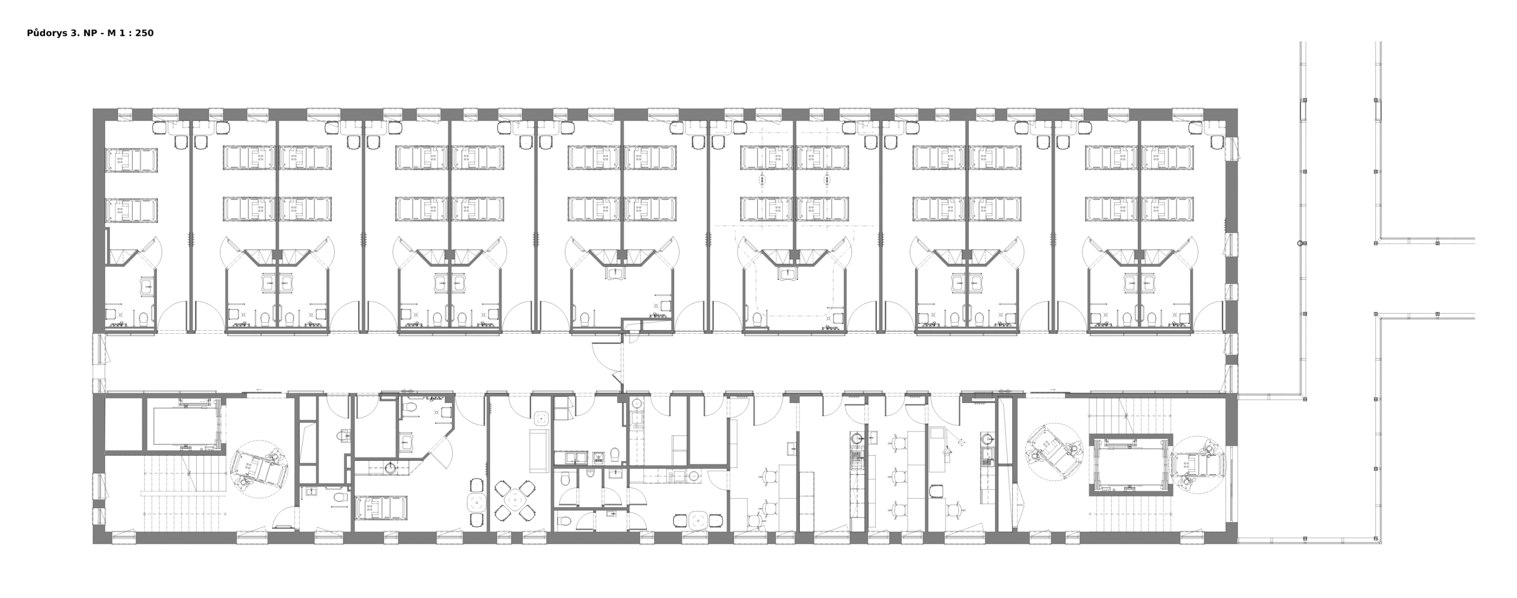
Novostavba, koncipovaná ako jednoduchý kváder, stojí na pôdoryse s rozmermi 48x18 metrov. Budova má jedno podzemné a päť nadzemných podlaží, na streche sa nachádza technické zázemie a fotovoltaické panely.
Raster fasády umožňuje variabilné riešenie vnútorných dispozícií. Podstatné nie je len množstvo denného svetla a prehľadnosť celého pavilónu, ale aj premenlivosť svetelnej atmosféry v interiéri počas dňa. Pre pacientov a ich rodiny, ale aj pre zamestnancov, ktorí tu pracujú, to znamená, že nie sú izolovaní od okolitého sveta.
V pavilóne sa nachádza niekoľko prevádzok internej kliniky. Za recepciou nájdeme ambulanciu pre akútne prípady, odberové a zákrokové miestnosti, lôžkové izby a izby intenzívnej starostlivosti. Pri návrhu budovy bol kladený dôraz na variabilitu dispozícií a technologického vybavenia, kompaktný tvar, optimálny pomer pevných a presklených plôch, akustiku a vnútornú klímu.
Pavilón disponuje tromi hlavnými vstupmi. Prvý z nich je určený predovšetkým pre personál sanitných vozidiel, pacientov privezených týmito vozidlami a peších návštevníkov nemocnice. Tento vstup je umiestnený na severovýchodnom rohu budovy, čo umožňuje rýchlu a jednoduchú dostupnosť pavilónu z hlavnej komunikácie Jívavská.
Druhý vstup slúži návštevníkom, ktorí prichádzajú osobným automobilom. Je umiestnený na juhovýchodnom rohu budovy a ľahko prístupný z novo vybudovaného parkoviska na západnej strane areálu nemocnice.
Tretí vstup pre personál nemocnice, umiestnený na 1. podlaží, sprístupňuje vonkajšia rampa na juhozápadnej strane budovy.
Pavilón internej nemocnice je ďalej prepojený s pavilónom chirurgie a budovou SVLS prostredníctvom spojovacieho krčku v 3. nadzemnom podlaží, ktorý umožňuje bezbariérový prístup.
Architekt bol pri návrhu nového pavilónu obmedzený konštrukčnou výškou budovy a preto hľadal stropný systém s rovným podhľadom a dostatočným priestorom pre rozvod vzduchotechniky. Požiadavky splnila stropná konštrukcia tvorená kombináciou nosníkov DELTABEAM® od spoločnosti Peikko a dutinových panelov. Vďaka tomuto riešeniu s minimom mokrých procesov bola dodržaná aj požadovaná vysoká rýchlosť výstavby.
Fermacell® sa osvedčil ako jedna doska na všetko. Priečky sú podľa Ing. Michala Surky z ateliéru Adam Rujbr Architects zrealizované prevažne zo sadrovláknitých dosiek fermacell® v rôznych skladbách podľa požadovanej požiarnej odolnosti, akustických požiadaviek a hrúbky steny. "Dôvodom je vysoká pevnosť a mechanická odolnosť týchto dosiek, navyše aj pri jednovrstvovom opláštení plní fermacell® požiadavky na požiarnu odolnosť a akustiku, ktoré sme pre vnútorné priečky nového pavilónu stanovili. Výhodou je aj zisk priestoru pre vnútorné rozvody a rýchlejšia realizácia priečok.“
Pavilón, postavený v pasívnom štandarde, spadá podľa energetického certifikátu budovy do energetickej triedy A.
Budova spĺňa nasledujúce parametre:
Autori: Adam Rujbr Architects
Podklady: Linka
Fotografie: BoysPlayNice