Na podujatí sa predstaví až 37 vystavovateľov - popredných dodávateľov stavebných materiálov a inovácií s prezentáciou...
Novotvar v prostredí alpskej obce.
Hansgrohe - prémiová značka kúpeľňových riešení, ponúka nadčasový dizajn, technickú precíznosť a udržateľné inovácie...
Využite špeciálnu akciu Internorm: okná za minuloročné ceny a hliníkový kryt úplne zadarmo. Ponuka je časovo obmedzená!
Sumarizácia najdôležitejších inovácií, ktoré redefinujúcich využitie tohto energetického zdroja.
AMPHIBIA 3000 GRIP 1.3 od spoločnosti ATRO predstavuje modernú hydroizolačnú technológiu, ktorá spája vysokú odolnosť,...
Ambiciózne plány EK narazili na ekonomické možnosti domácností v jednotlivých členských štátoch –...
IDEA DOOR od spoločnosti JAP prináša do interiéru čistý minimalistický vzhľad vďaka bezrámovému riešeniu a precíznej...
Kontinuita riešenia od vonkajšieho obkladu až po kovania a kľučky.
Nástenné nadomietkové armatúry Vitus sú mimoriadne vhodné pre rýchlu a efektívnu...
Okenné profily z kompozitného materiálu RAU-FIPRO X od spoločnosti Rehau sú v porovnaní s tradičnými plastovými profilmi mnohonásobne...
Najnovší sortiment stolov pre zariadenie interiérov...
Spojenie moderného dizajnu, funkčnosti a svetla do harmonického architektonického prvku.
Kancelárska budova Baumit v slovinskom Trzine prešla premenou na moderné a udržateľné pracovisko. Architekti kládli dôraz...
Mottom šiesteho ročníku on-line konferencie odborníkov Xella Dialóg je Efektívny návrh budov 2025+: zmeny a riešenia

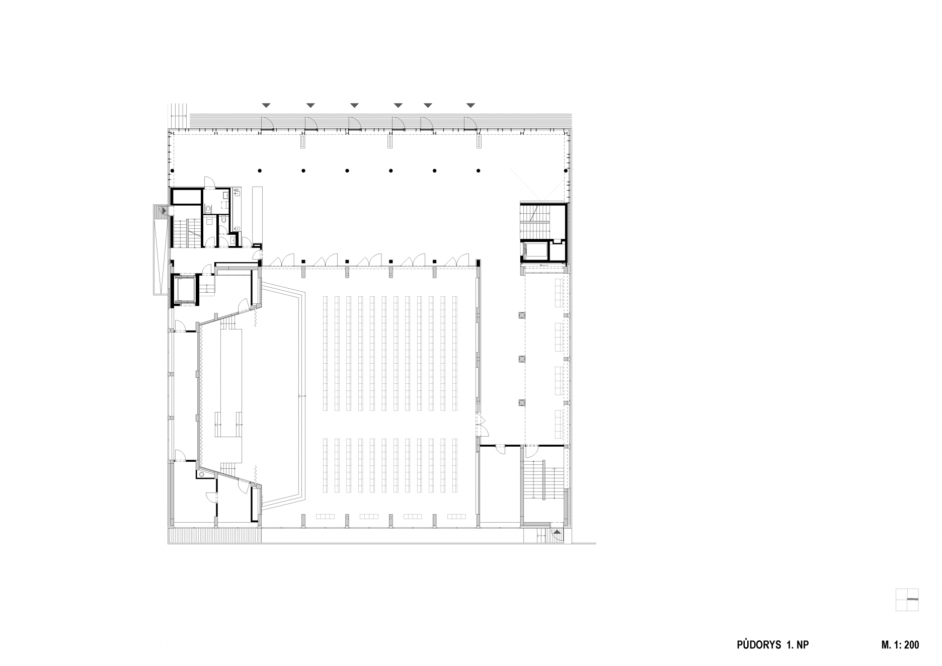
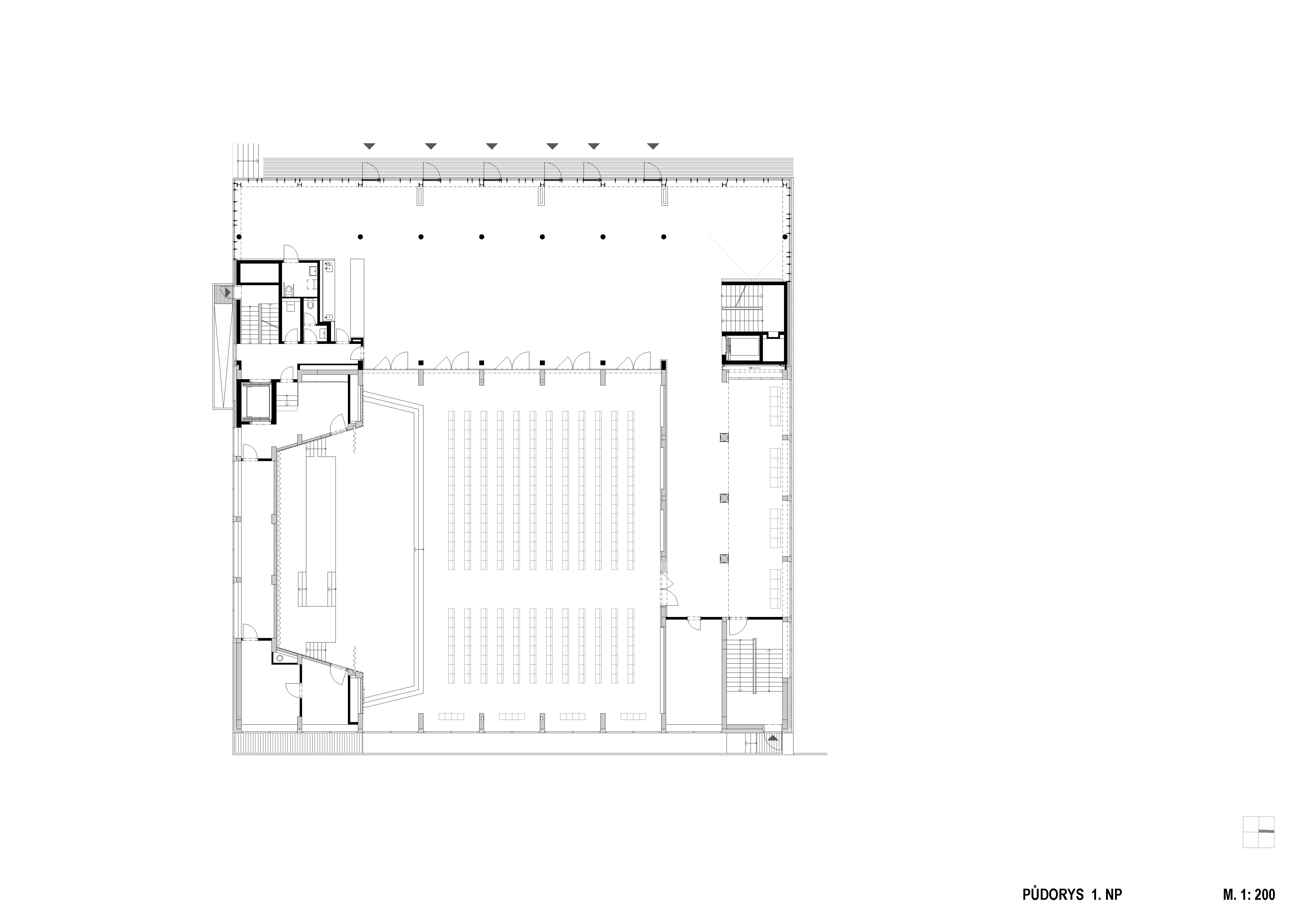
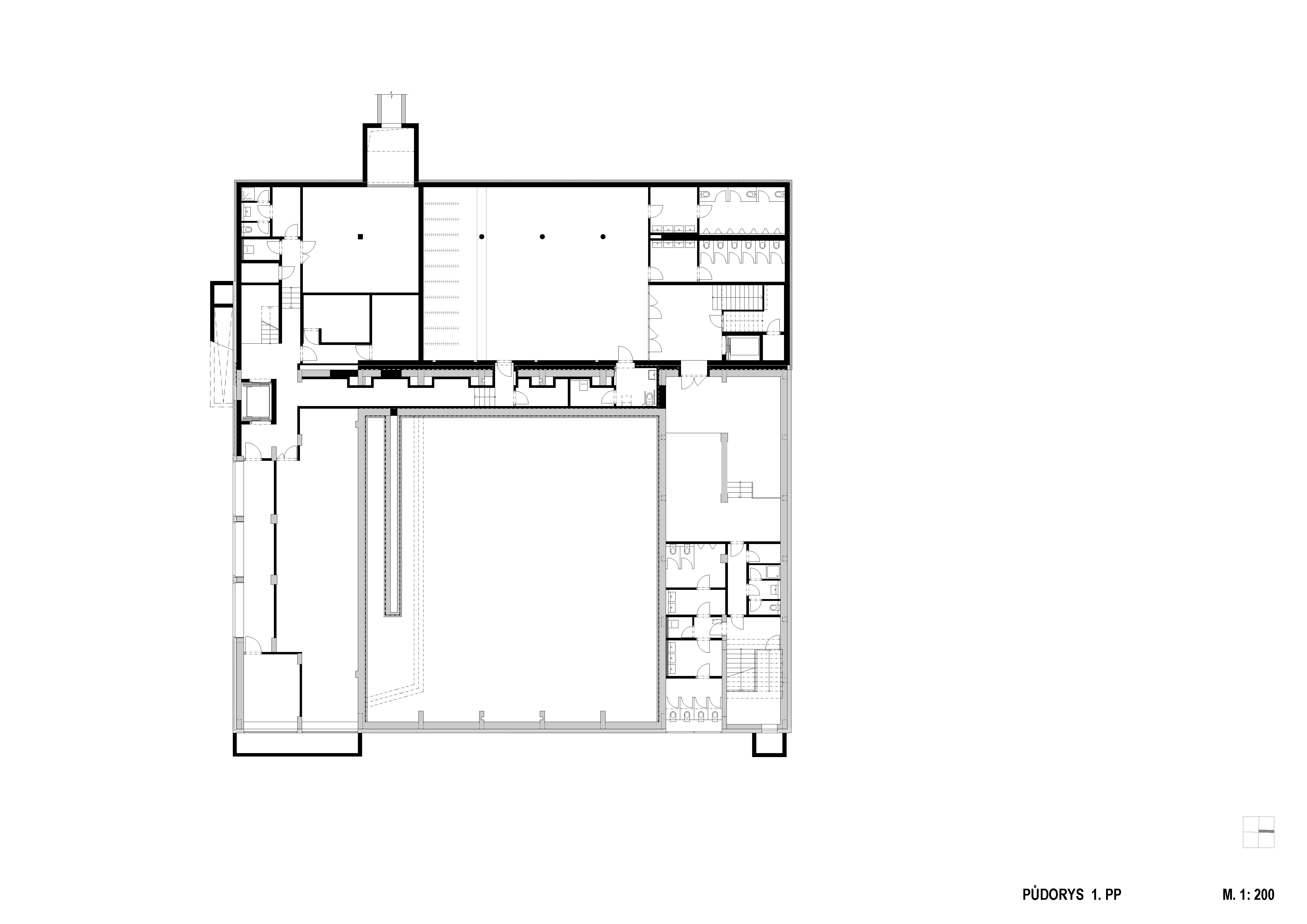
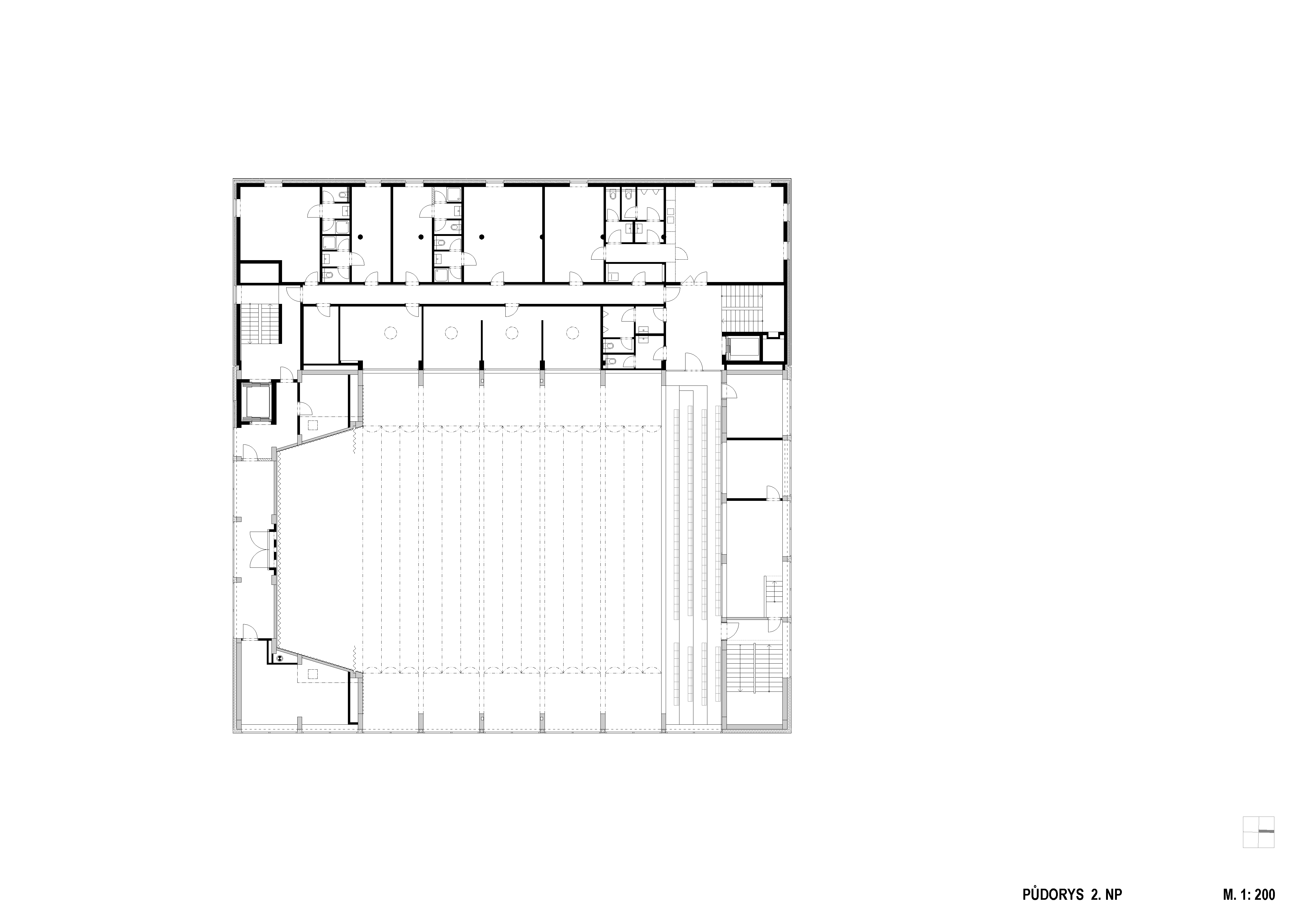
Areál českej poľnohospodárskej univerzity v Prahe na Suchdole bol vybudovaný v 60. rokoch minulého storočia a predstavuje dobovú ukážku urbanistickej tvorby. V areáli nájdete budovy rektorátu, učební, laboratórií, prednáškové pavilóny, dielne, športový areál s telocvičňami a bazénom, konferenčnú sálu, ubytovacie a stravovacie zariadenia. Celý komplex budov je postavený v jednotnom architektonickom štýle neofunkcionalizmu, s priznaným monolitickým železobetónovým skeletom.
Ako riešiť nedostatočné kapacity univerzity s náporom čoraz väčšieho počtu nových študentov a prispôsobiť ju požiadavkám modernej doby? Dávnejšie sme predstavili dostavbu átria ekonomickej fakulty.
Dnes sa pozrieme na objekt Auly, postavený v roku 1965 na základe architektonickej súťaže na areál VŠZ, ktorú vyhral architekt Ján Čejka. Dnes takmer deväťdesiatročný profesor (okrem iného dekan Fakulta architektúry v jordánskom Ammáne na prelome 70. a 80. rokov) sa autorsky podieľal aj na súčasnej rekonštrukcii objektu.
Pôvodná budova, nespĺňajúca súčasné podmienky z hľadiska technického vybavenia, dispozičného riešenia a ekonomiky prevádzky, prešla celkovou rekonštrukciou. Počnúc sanáciou oceľobetónového nosného skeletu, cez nové povrchy, podlahy, interiér a zateplený fasádny plášť, až po novú prístavbu pred západným priečelím pôvodného objektu. Tá rieši predovšetkým rozšírenie plôch návštevníckeho, prevádzkového a technického zázemia budovy. Priestorovo reaguje na budovou Rektorátu a na priľahlé námestie, s ktorými spoločne definuje ťažiskový priestor celého areálu ČZU.
Význam objektu podčiarkuje zlatá farba strešnej krytiny pôvodnej Auly, ktorá podľa slov autorov navodzuje dojem koruny. Tá prechádza aj do interiéru, v podobe zlatých baldachýnov v podhľade hlavnej sály. Námestie medzi Aulou a Rektorátom bolo v rámci rekonštrukcie novo tvarovo a výškovo upravené a predláždené. Priestor dotvárajú nové zelené prvky a skrytý objekt hmloviska, zaisťujúci osvieženie v letných mesiacoch.
Fasádny plášť prístavby je v úrovni prízemia plne transparentný. Zachováva prepojenie exteriéru s foyer Auly. Protiklad tvorí poschodie bez priznaných okenných otvorov, ktoré sú prekryté predsadeným skleneným obkladom s premenlivou svetelnou priepustnosťou a nepravidelným vertikálnym formátovaním ad hoc. Vegetačná strecha prístavby tvorí kvôli blízkej výškovej budove rektorátu dôležitú pohľadovú rovinu.
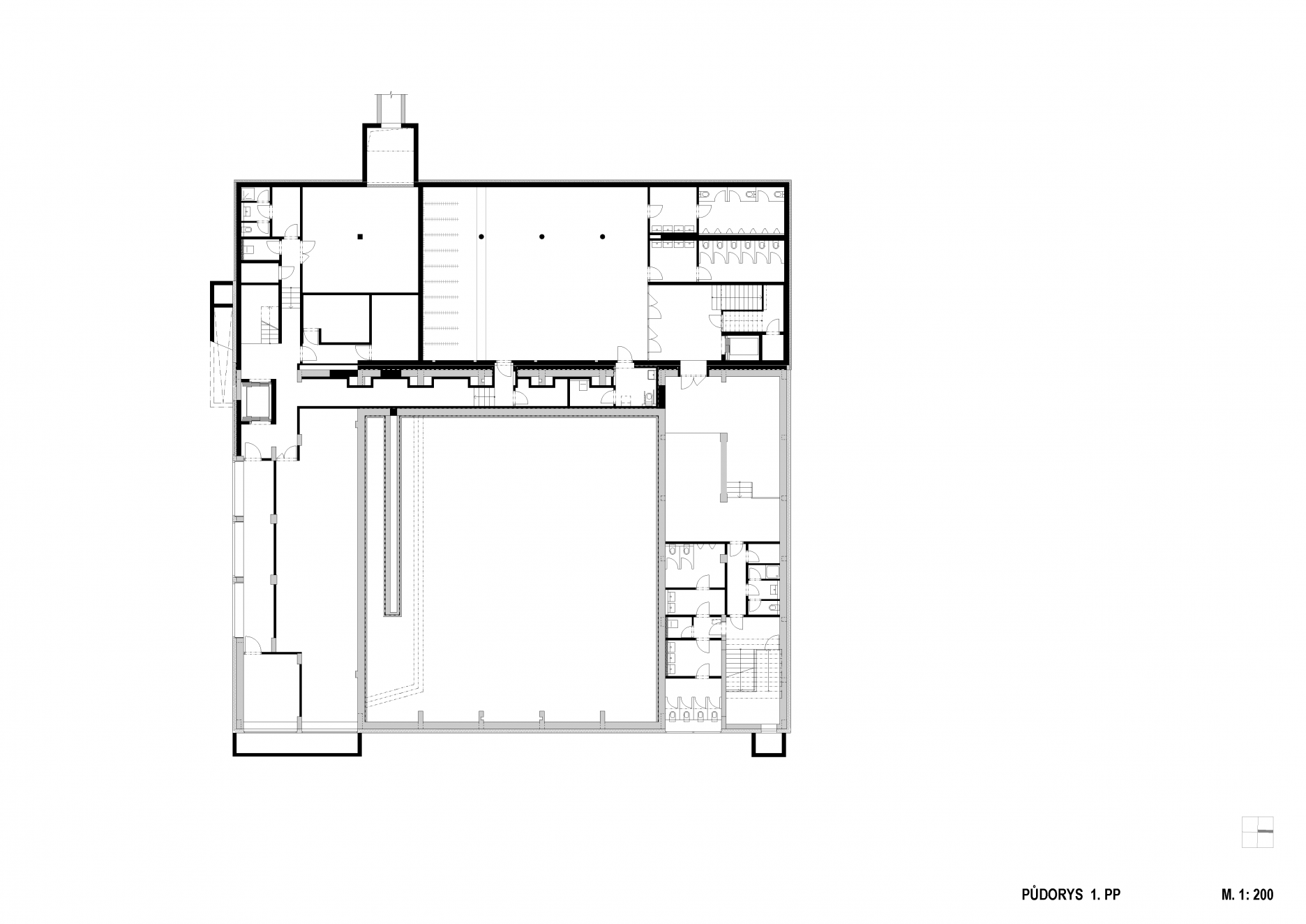
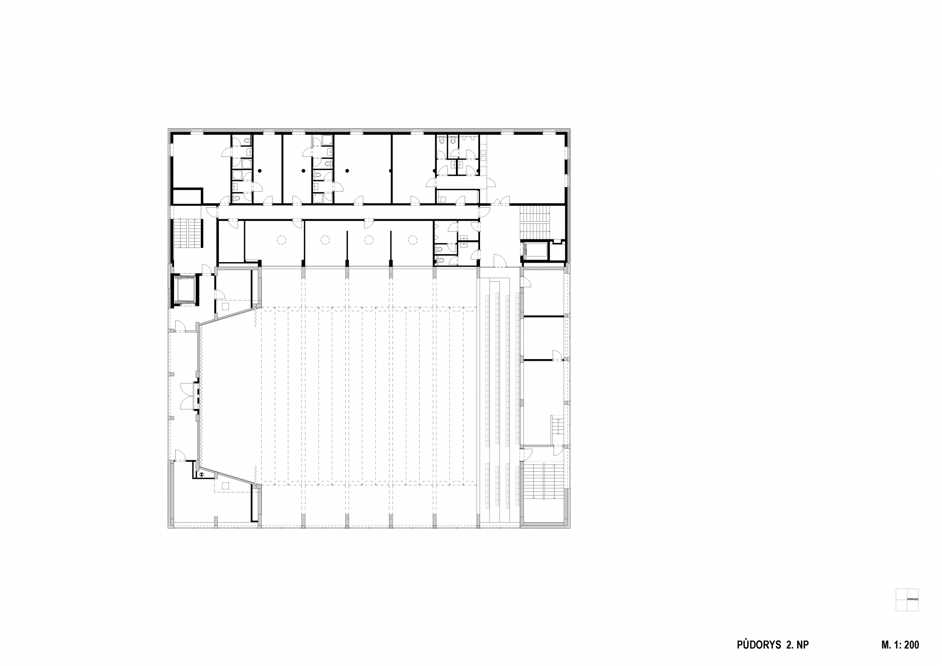
Výkresová dokumentácia:
Technické riešenia:
Systém vykurovania zaisťuje prípravu teplej vody pre vzduchotechniku a samotné vykurovanie objektu prevažne formou podlahového vykurovania s doplnkovými radiátorovými telesami. Zdrojom tepla je novo vybudovaná nízkotlaková plynová kotolňa III. kategória situovaná v suteréne Auly. Nový systém vzduchotechniky zahŕňa aj klimatizáciu s rekuperáciou tepla a vlhkosti z odpadového vzduchu.
Dažďová voda zo strechy objektu je zhromažďovaná v novovybudovanom podzemnom priestore. Znova je využitá na splachovanie toaliet a závlahu vegetačnej strechy.
Fotografie z interiéru:
Podklady: Architekti DRNH a Jan Čejka
Fotografie: Tomáš Malý