Na podujatí sa predstaví až 37 vystavovateľov - popredných dodávateľov stavebných materiálov a inovácií s prezentáciou...
Novotvar v prostredí alpskej obce.
Hansgrohe - prémiová značka kúpeľňových riešení, ponúka nadčasový dizajn, technickú precíznosť a udržateľné inovácie...
Využite špeciálnu akciu Internorm: okná za minuloročné ceny a hliníkový kryt úplne zadarmo. Ponuka je časovo obmedzená!
Sumarizácia najdôležitejších inovácií, ktoré redefinujúcich využitie tohto energetického zdroja.
AMPHIBIA 3000 GRIP 1.3 od spoločnosti ATRO predstavuje modernú hydroizolačnú technológiu, ktorá spája vysokú odolnosť,...
Ambiciózne plány EK narazili na ekonomické možnosti domácností v jednotlivých členských štátoch –...
IDEA DOOR od spoločnosti JAP prináša do interiéru čistý minimalistický vzhľad vďaka bezrámovému riešeniu a precíznej...
Kontinuita riešenia od vonkajšieho obkladu až po kovania a kľučky.
Nástenné nadomietkové armatúry Vitus sú mimoriadne vhodné pre rýchlu a efektívnu...
Okenné profily z kompozitného materiálu RAU-FIPRO X od spoločnosti Rehau sú v porovnaní s tradičnými plastovými profilmi mnohonásobne...
Najnovší sortiment stolov pre zariadenie interiérov...
Spojenie moderného dizajnu, funkčnosti a svetla do harmonického architektonického prvku.
Kancelárska budova Baumit v slovinskom Trzine prešla premenou na moderné a udržateľné pracovisko. Architekti kládli dôraz...
Mottom šiesteho ročníku on-line konferencie odborníkov Xella Dialóg je Efektívny návrh budov 2025+: zmeny a riešenia

Prvé dve realizácie zo siete kanadských bilingválnych škôl v Česku – Materská škola Maple Bear Olomouc a Základná škola Maple Bear Brno.
Návrh interiéru vychádzal z prístupu investora, zameraného na vzdelávanie v podnetnom prostredí, ktoré podporuje pozitívny vzťah k učeniu. V spolupráci s českým zastúpením vytvorili autori z ateliéru SOA architekti dizajnový koncept, ktorý zohľadňuje miestne špecifiká a zároveň spĺňa kvalitatívne štandardy globálnej značky.
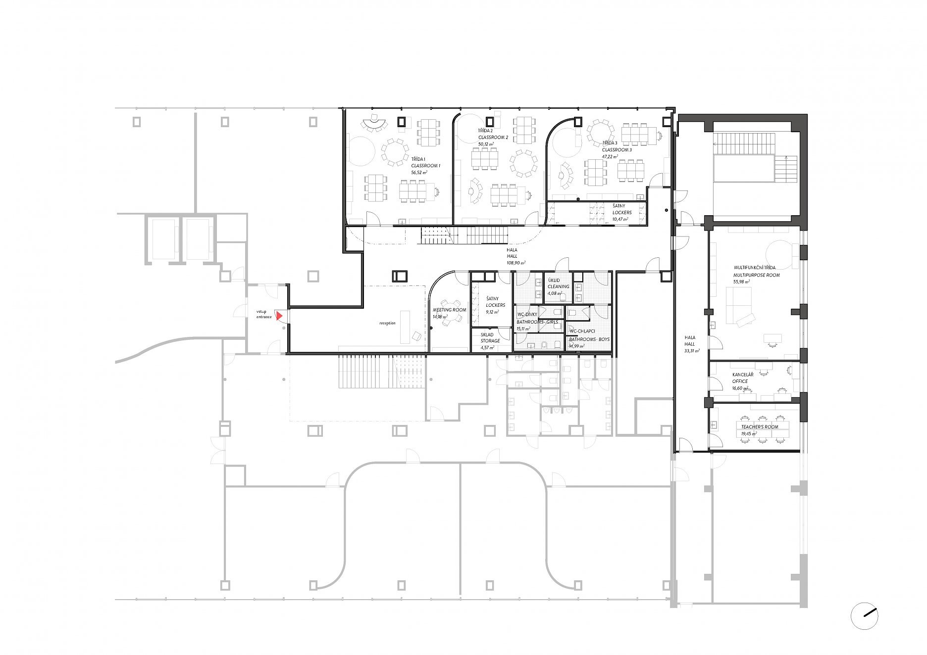
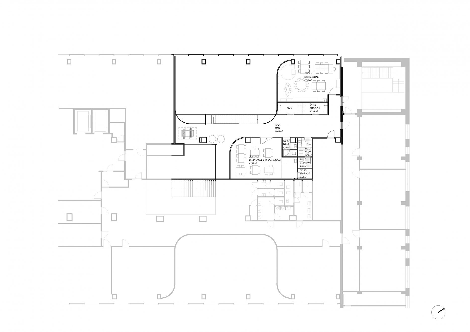
Základná škola Brno
Základná škola v Brne sa nachádza v administratívnej budove ZET office na rozvojovom území Nová Zbrojovka. Na pôvodný industriálny charakter objektu odkazuje vstupná centrálna hala s výškou cez dve podlažia a priznanými oceľovými nosníkmi. Jej súčasťou je lobby, recepcia a knižnica určená na pobytové využitie. Tento priestor umožňuje vystavenie školských produktov a uniforiem, obsahuje úložné priestory pre recepciu a kútik pre deti na hranie a čítanie.
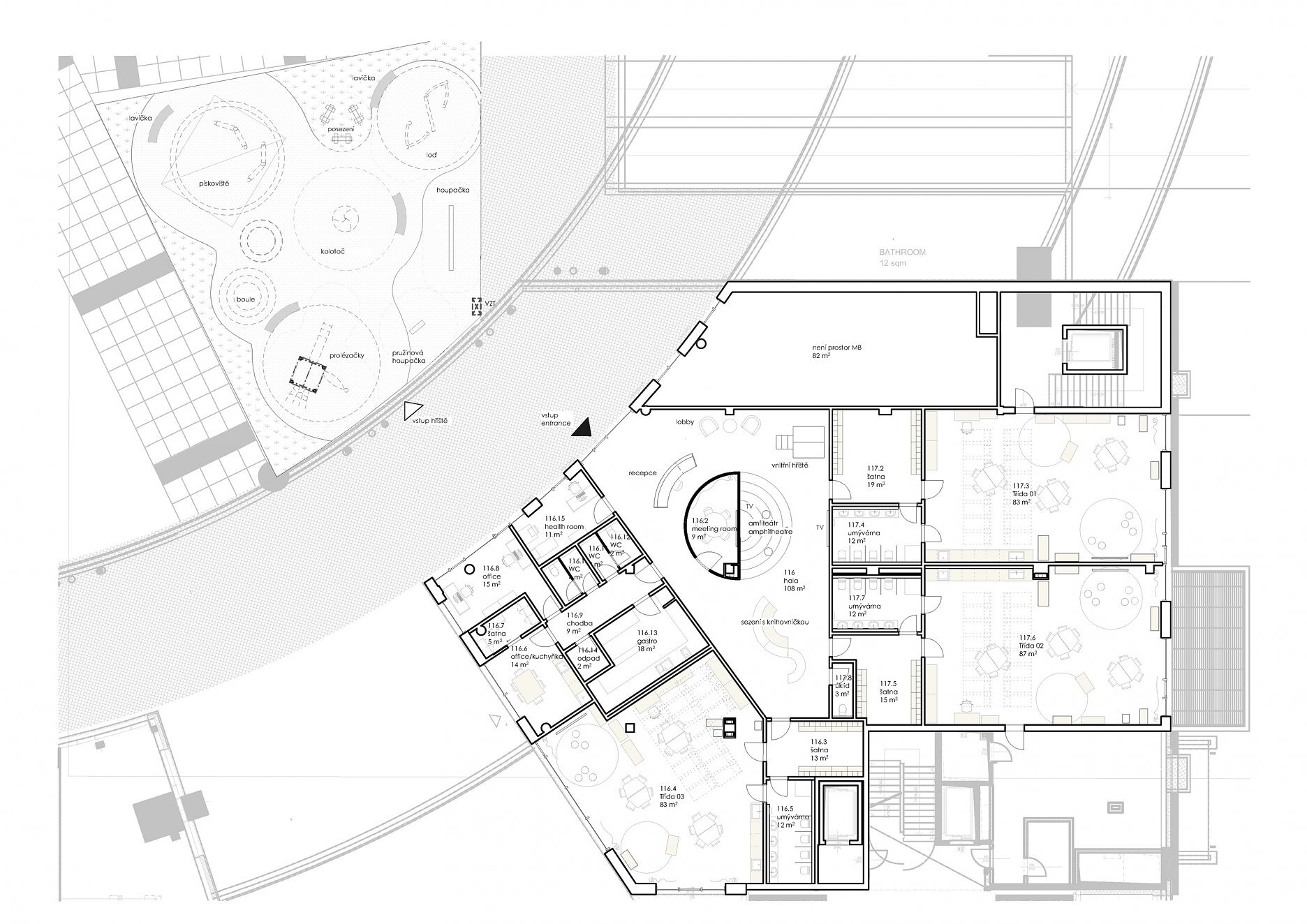
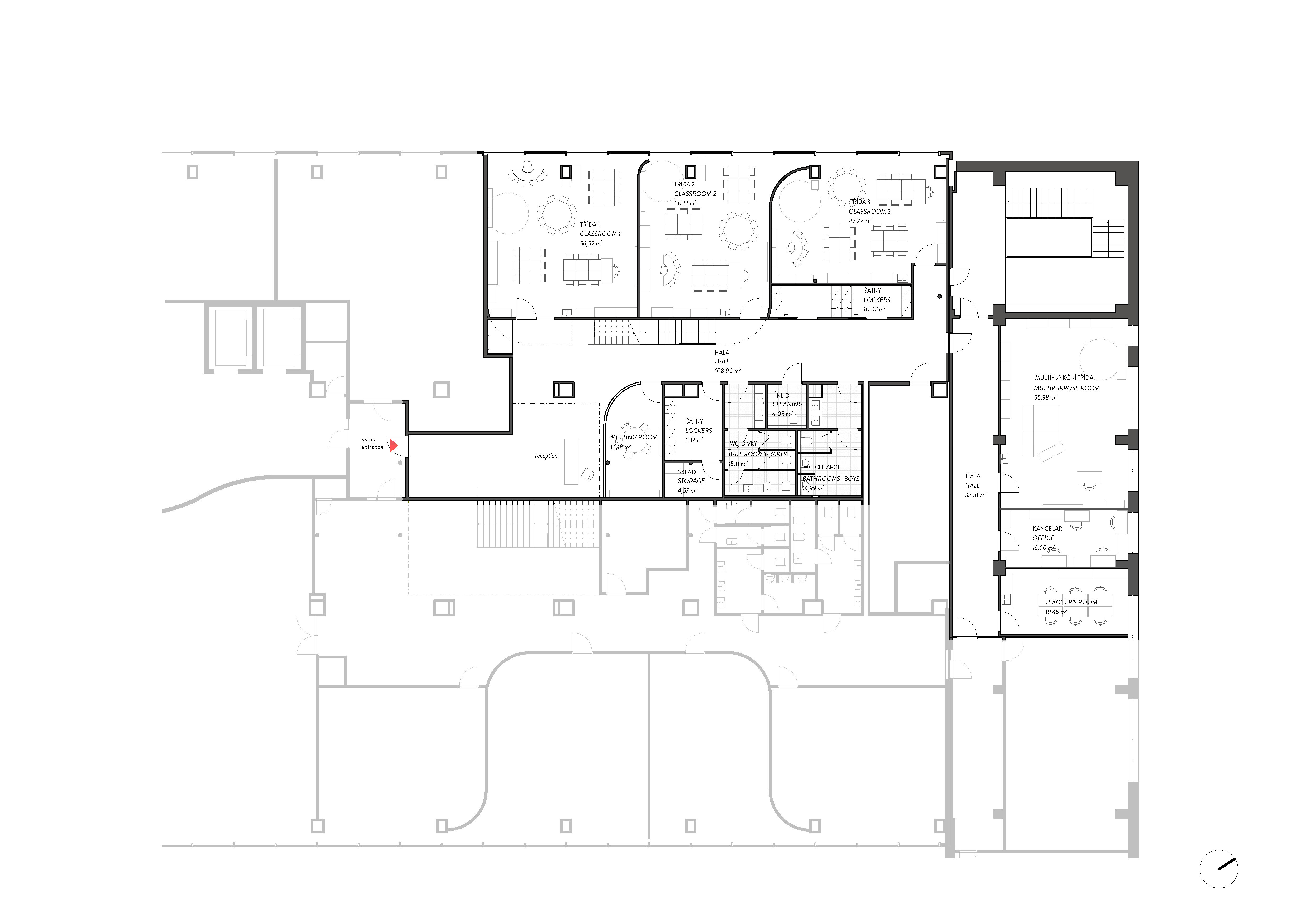
Materská škola Olomouc
Dispozičné riešenie umiestňuje triedy pozdĺž presvetleného obvodu multifunkčnej budovy BEA centra v Olomouci. V jej strede vznikol centrálny priestor – hala. Zvolený prístup eliminoval tradičný model chodieb v prospech multifunkčného priestoru, ktorý okrem prístupu do tried poskytuje zázemie aj deťom a rodičom. Nachádza sa tu vstupné lobby, vnútorné ihrisko, menší amfiteáter, oddychová zóna s knižnicou a hernými prvkami. Súčasťou haly je aj valcovitý objem zasadacej miestnosti, ktorý tvorí jej vizuálnu dominantu. Jednotlivé triedy sú tematicky odlíšené prostredníctvom nábytkového riešenia, farebnosti a nástenných grafík.
Obe školy dopĺňa grafické riešenie navrhnuté špeciálne pre tieto priestory. Grafika zjednocuje dizajn škôl a tematicky prepája globálnu identitu značky s miestnym kontextom.
Autor: SOA architekti
Podklady: Linka
Fotografie: Studio Flusser