Na podujatí sa predstaví až 37 vystavovateľov - popredných dodávateľov stavebných materiálov a inovácií s prezentáciou...
Novotvar v prostredí alpskej obce.
Hansgrohe - prémiová značka kúpeľňových riešení, ponúka nadčasový dizajn, technickú precíznosť a udržateľné inovácie...
Využite špeciálnu akciu Internorm: okná za minuloročné ceny a hliníkový kryt úplne zadarmo. Ponuka je časovo obmedzená!
Sumarizácia najdôležitejších inovácií, ktoré redefinujúcich využitie tohto energetického zdroja.
AMPHIBIA 3000 GRIP 1.3 od spoločnosti ATRO predstavuje modernú hydroizolačnú technológiu, ktorá spája vysokú odolnosť,...
Ambiciózne plány EK narazili na ekonomické možnosti domácností v jednotlivých členských štátoch –...
IDEA DOOR od spoločnosti JAP prináša do interiéru čistý minimalistický vzhľad vďaka bezrámovému riešeniu a precíznej...
Kontinuita riešenia od vonkajšieho obkladu až po kovania a kľučky.
Nástenné nadomietkové armatúry Vitus sú mimoriadne vhodné pre rýchlu a efektívnu...
Okenné profily z kompozitného materiálu RAU-FIPRO X od spoločnosti Rehau sú v porovnaní s tradičnými plastovými profilmi mnohonásobne...
Najnovší sortiment stolov pre zariadenie interiérov...
Spojenie moderného dizajnu, funkčnosti a svetla do harmonického architektonického prvku.
Kancelárska budova Baumit v slovinskom Trzine prešla premenou na moderné a udržateľné pracovisko. Architekti kládli dôraz...
Mottom šiesteho ročníku on-line konferencie odborníkov Xella Dialóg je Efektívny návrh budov 2025+: zmeny a riešenia

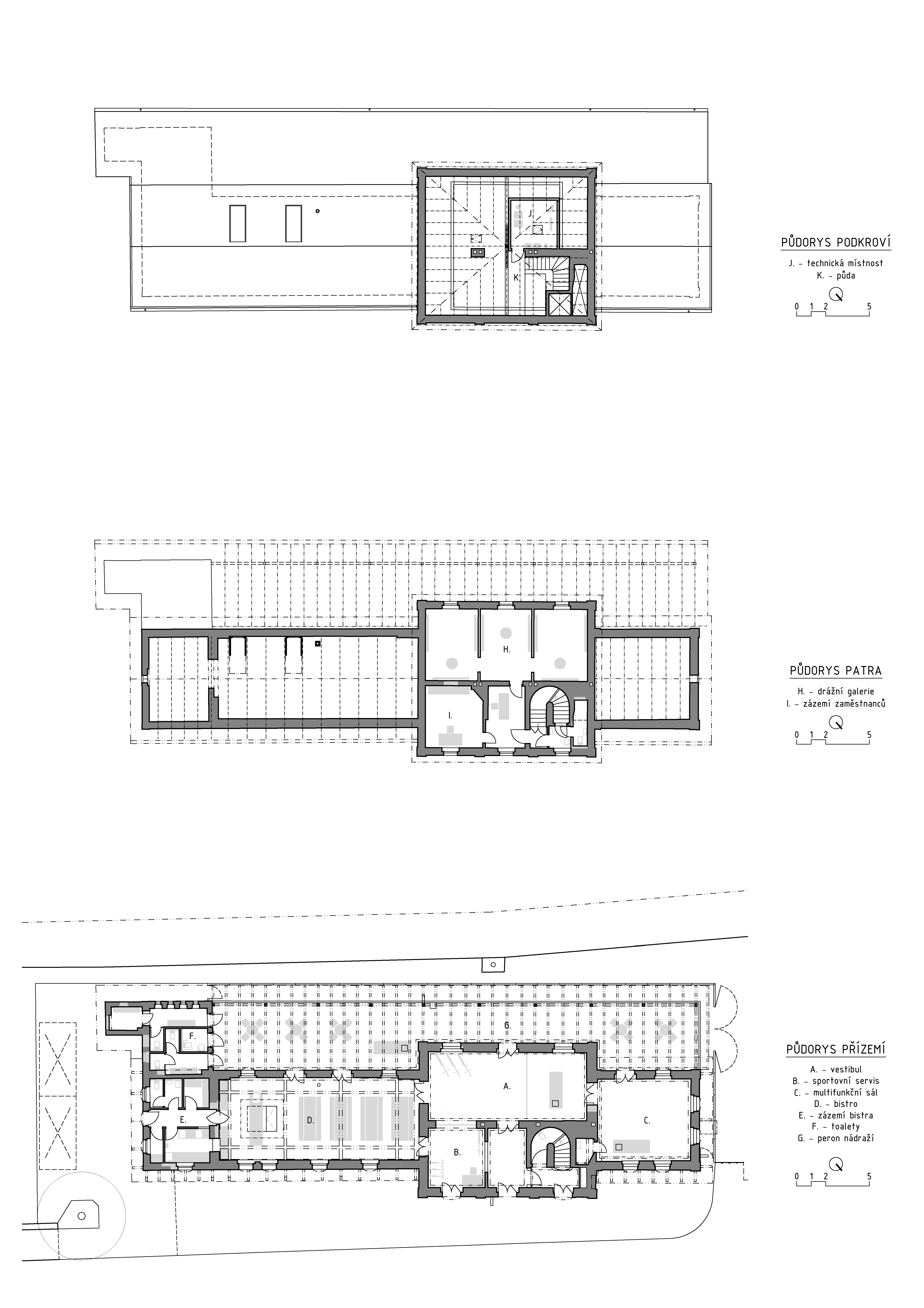
Aktuálna práca pražského ateliéru architekta Ondřeja Tučeka prinavrátila bývalej staničnej budove pôvodnú dôstojnosť. Zároveň vytvorila ideálne východisko pre zmysluplnú náplň, ktorá má potenciál udržať objekt v kondícii ešte dlhé obdobie.
Typizovaná výpravná budova IV. triedy bola postavená v rámci Severnej štátnej železnice Praha-Drážďany okolo roku 1850 a následne rozšírená prístavbami v rokoch 1877 a 1914. Jej autorom bol architekt železničných budov Anton Jüngling. V roku 2013 nadobudol objekt status kultúrnej pamiatky a len o rok neskôr bol vyradený z prevádzky. Dominantnú dvojpodlažnú ústrednú časť dopĺňajú dve nižšie bočné krídla. Podobné typové stanice boli postavené na viacerých miestach, pričom niektoré z nich slúžia svojmu účelu dodnes.
Hlavným cieľom rekonštrukcie bolo dôsledné prepojenie všetkých hlavných priestorov, odstránenie nepôvodných priečok a otvorenie budovy pre variabilné možnosti využitia. Kľúčovým kompozičným princípom bol návrat ku konceptu s krížovými osami.
Obnovou prešli takmer všetky stavebné prvky – fasády, strecha, výplne otvorov, drevené prvky aj okolité spevnené plochy. Kvôli dlhodobému pôsobeniu vlhkosti bolo potrebné vykonať hĺbkové čistenie muriva a odstránenie drevokazných organizmov. V interiéri boli položené nové podlahy, zosilnené stropné konštrukcie a opravené krovy, dvere aj omietky.
Bohato zdobenú drevenú verandu sa podarilo starostlivo zrekonštruovať a doplniť chýbajúce časti. V bývalej čakárni bol obnovený hodnotný drevený maľovaný strop. V centrálnom priestore vyniká replika pôvodnej glazovanej dlažby. Ďalšie podlahy sú vyhotovené z liateho terrazza, dlažby a drevených parkiet.
Nepôvodné okenné výplne boli nahradené replikami, ktoré rešpektujú proporcie a štýl okien z konca 19. storočia. Farebnosť drevených prvkov bola obnovená na základe odobratých vzoriek zo zachovaných segmentov. Historická stavebná obálka bola doplnená o nové autorské prvky, ako sú napr. barový pult a vonkajšie oplotenie z cortenového plechu, ktoré oddeľuje priestor pozemku stanice a jej drevenej verandy od železničného telesa.
Objekt po rekonštrukcii slúži ako kultúrne zariadenie „Stanica 6“. Nachádza sa tu bistro, multifunkčná sála, „športovňa“, požičovňa bicyklov a galéria.
Podklady: ARCHITEKT Ondřej Tuček
Fotografie: Viktor Tuček