Objavte riešenia Dorsis, ktoré spájajú minimalistický vzhľad s vysokou variabilitou, funkčnosťou a spracovaním na mieru.
Súčasné bývanie v prostredí budapeštianskej vilovej štvrte.
Moderné strešné okná ponúkajú pohodlné ovládanie aj lepšiu ochranu domácnosti počas celého roka.
Rad interiérových dverí DIVA DOOR od spoločnosti J.A.P. ponúka čistý dizajn a variabilné riešenia pre súčasné interiéry.
REHAU Window Solutions na veľtrhu Fensterbau Frontale 2026
Sortiment Slim Line zahŕňa pestrý výber dekorov a textúr.
Európska značka okien oslavuje jubileum: za 95 rokov sa vyvinula na najväčšiu medzinárodne pôsobiacu okennú značku a inovačného...
Na podujatí sa predstaví až 37 vystavovateľov - popredných dodávateľov stavebných materiálov a inovácií s prezentáciou...
Novotvar v prostredí alpskej obce.
Hansgrohe - prémiová značka kúpeľňových riešení, ponúka nadčasový dizajn, technickú precíznosť a udržateľné inovácie...
Využite špeciálnu akciu Internorm: okná za minuloročné ceny a hliníkový kryt úplne zadarmo. Ponuka je časovo obmedzená!
Sumarizácia najdôležitejších inovácií, ktoré redefinujúcich využitie tohto energetického zdroja.
AMPHIBIA 3000 GRIP 1.3 od spoločnosti ATRO predstavuje modernú hydroizolačnú technológiu, ktorá spája vysokú odolnosť,...
Ambiciózne plány EK narazili na ekonomické možnosti domácností v jednotlivých členských štátoch –...
IDEA DOOR od spoločnosti JAP prináša do interiéru čistý minimalistický vzhľad vďaka bezrámovému riešeniu a precíznej...

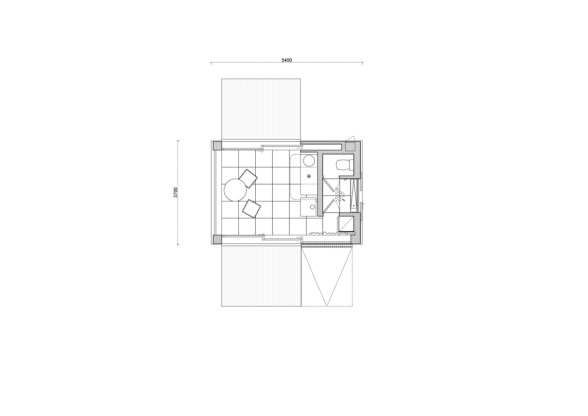
Zadaním bolo navrhnúť plnohodnotné víkendové bývanie na ploche 20 m² bez kompromisu na komfort a súčastne zabezpečiť úplnú energetickú sebestačnosť v našich klimatických podmienkach.
Cabin stojí na konci viníc vinárstva Zlatý Roh, približne 3 km nad reštauráciou ECK. Poloha vysoko nad Hradom Devín otvára výhľad ponad vinice na západ slnka nad rakúskym pohorím. Zámerom architektov bolo navrhnúť priestor, ktorý poskytne komfort v každom ročnom období a zároveň zostane v neustálom kontakte s krajinou.
Dve strany domčeka je možné otvoriť prostredníctvom sklopných terás, ktoré po vyklopení odhalia posuvné sklenené steny. Predsadené tienenie rovnako skrýva celoplošné zasklenie čelnej steny. Interiér v otvorenom stave rozširujú spomínané terasy na oboch stranách a úžitková plocha sa opticky aj funkčne násobí.
Za chrbtom hlavného pobytového priestoru je situovaná kompaktná kuchynská linka a za ňou kúpeľňa so sprchou. Betónové umývadlo, osadené priamo v okne, smeruje pohľad do lesa.
Večer nastáva transformácia. V interiéri visí lampa, ktorej kábel siaha až z podkrovia. Po potiahnutí sa lampa začne dvíhať a odhalí priestor na spanie, ktorý počas dňa ostáva skrytý. Absencia pevného schodiska umožňuje, aby podkrovie nebolo vizuálne prítomné. Schodisko je zasunuté v skrini a pôsobí ako regál, objaví sa až v prípade potreby. Strešná rovina uzatvára podkrovie do intímneho priestoru. Nad hlavou ostáva len stropný svetlík, určený na pozorovanie hviezd.
Stavba funguje ako off-grid objekt počas všetkých štyroch ročných období. V našej zemepisnej šírke to znamená navrhnúť systém, ktorý zvládne zimné obdobie bez obmedzenia komfortu.
Energetická koncepcia kombinuje solárne panely s batériovým úložiskom a plynovými fľašami. Hybridné spotrebiče automaticky prepínajú z elektrickej energie na plyn v momente, keď kapacita batérie klesne pod nastavenú úroveň. Elektrina zostáva prioritne pre osvetlenie a drobné zariadenia, zatiaľ čo energeticky náročnejšie procesy, ako ohrev vody, kúrenie či chladenie, sa flexibilne prispôsobujú dostupnému zdroju.
Úžitková voda sa akumuluje v rezervoári ukrytom pod zvýšenou podlahou. Splašková voda je zhromažďovaná v samostatnej nádrži integrovanej v podlahe. Ochranu proti prehrievaniu zabezpečuje inteligentné tienenie a riadené vetranie. V lete systém nasáva chladnejší vzduch spod podlahy na severnej strane a teplý vzduch odsáva cez rekuperačnú jednotku pod strešným svetlíkom. V zime je prevádzka obojsmerná a riadená podľa meraní CO₂ a vlhkosti.
"Objekt je komprimovaná architektúra zážitku – malý objem, maximálna intenzita priestoru a plná technologická nezávislosť," dodávajú architekti na záver svoj pohľad.
Materiály:
Autori: Ark-Shelter + Archekta
Podklady: Linka
Fotografie: BoysPlayNice